mobile_sound +7 (930) 655-55-90

Типовые конструкции и железобетонные изделия. Рабочие чертежи (Серия 1.432-5)

Поделиться:
Поделиться:

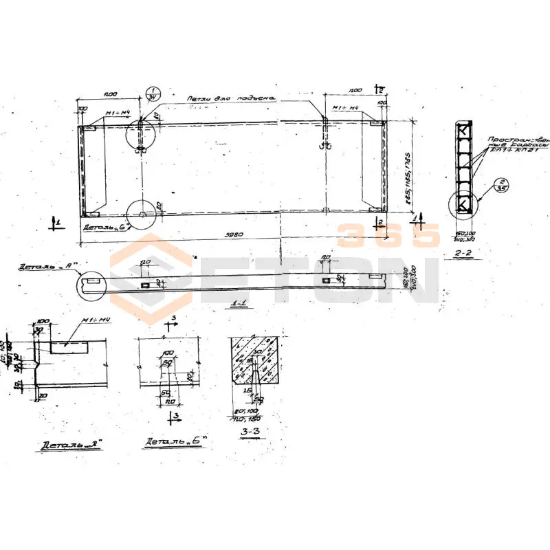
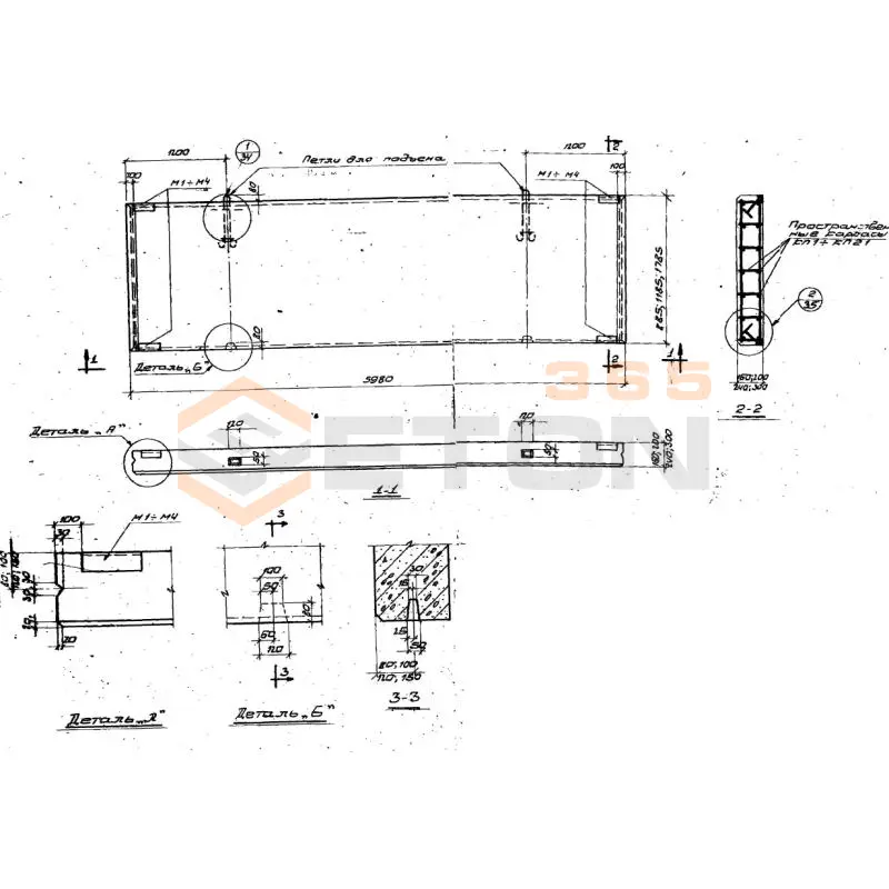
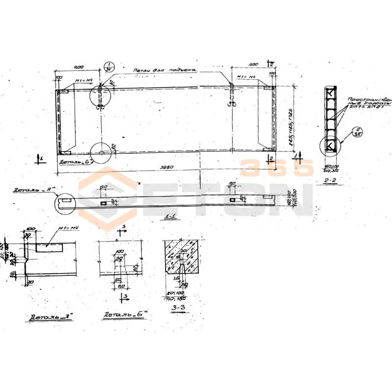
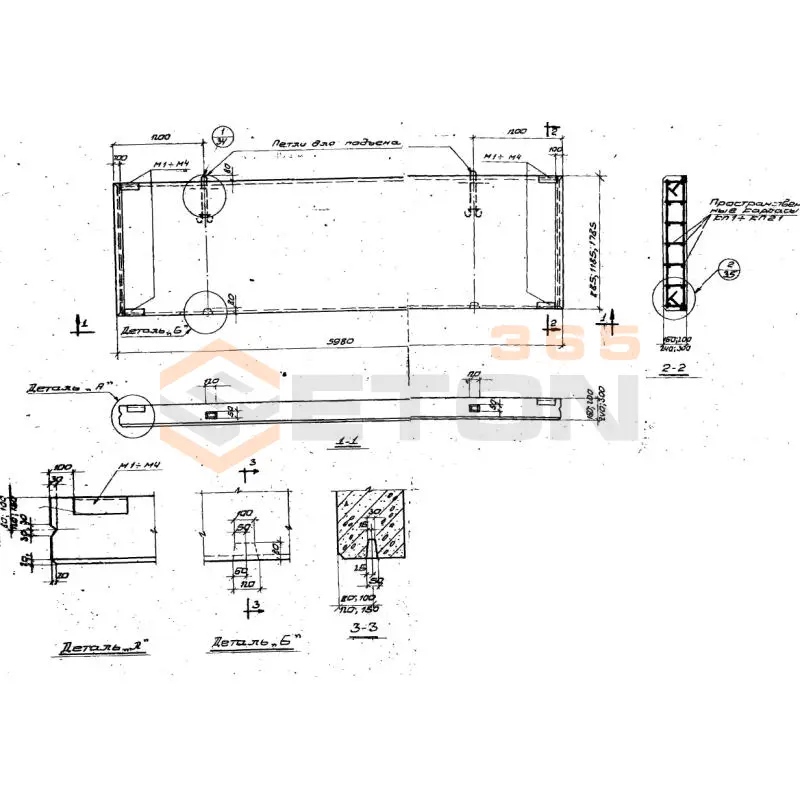
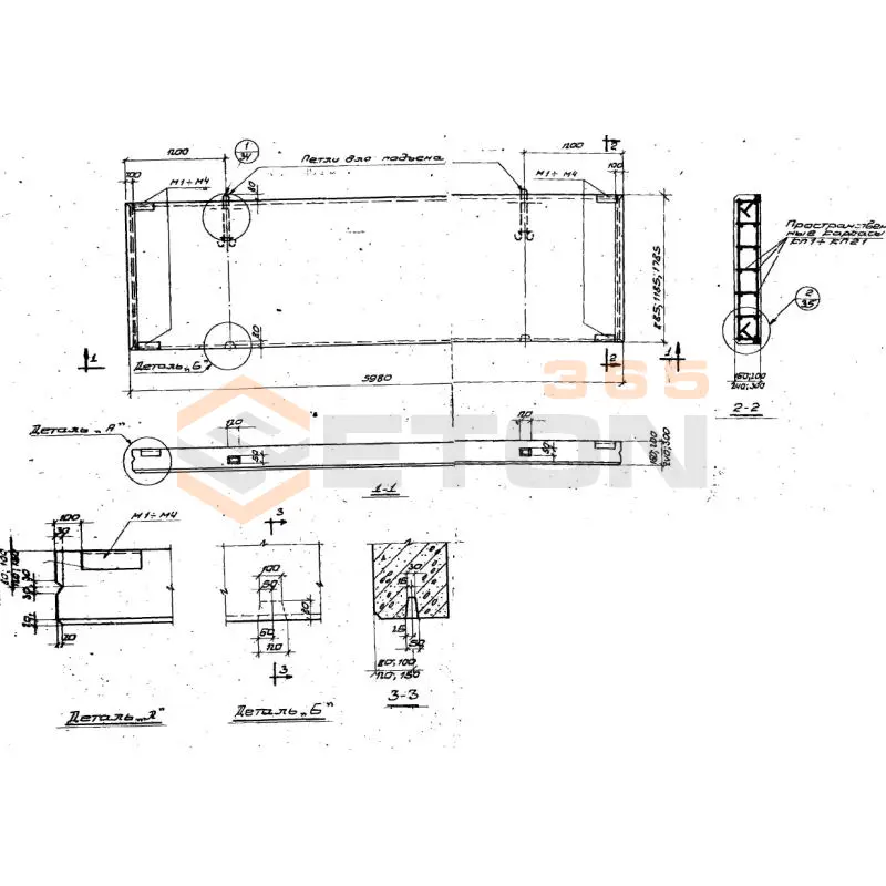
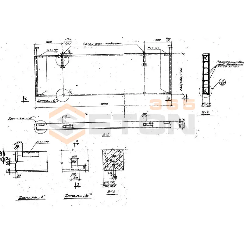
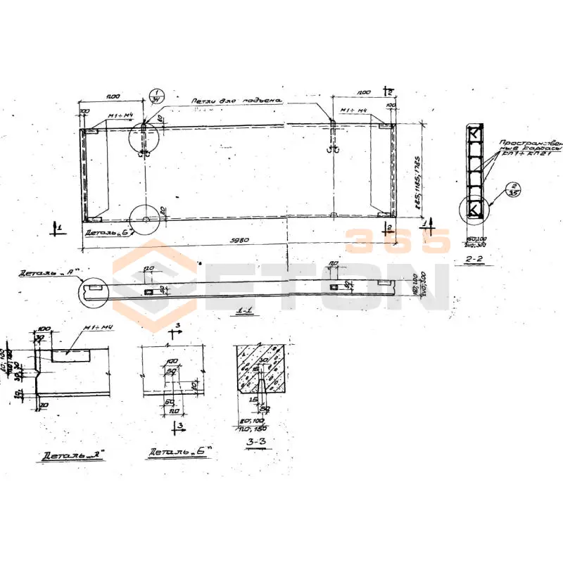
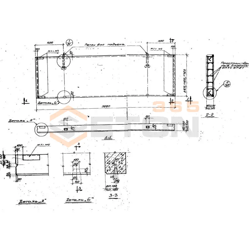
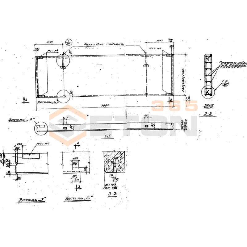
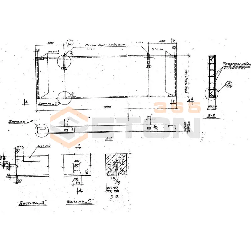
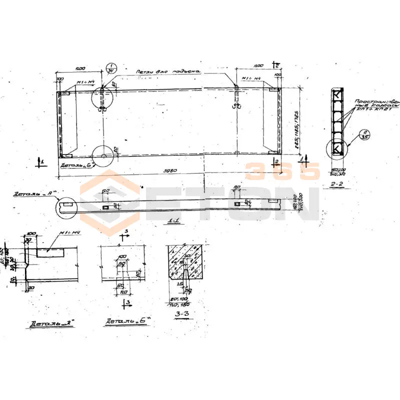
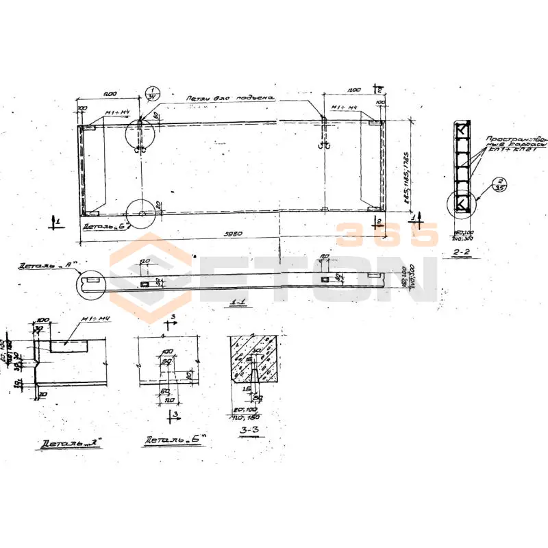
Документ Серия 1.432-5 описывает область применения, номенклатуру и ключевые требования, опираясь на действующие нормы и практику проектирования. Серия 1.432-5 входит в состав строительных каталог типовых конструкций и описывает производство стеновых панелей, предназначенных для промышленных сооружений, возводимых с шагом колонн равным 6 метрам. Документ был разработан ЦНИИпромзданий совместно с НИИЖБ, а также НИИСФ. После утверждения Госстроем СССР регламент был введён в действие с 1 января 1973 года и для удобства разбит на четыре выпуска.

Файлы для скачивания:
picture_as_pdf

5226.pdf

6,963.6 KB

скачать
picture_as_pdf

5227.pdf

6,247.3 KB

скачать
picture_as_pdf

5228.pdf

3,867.7 KB

скачать
picture_as_pdf

5229.pdf

880.0 KB

скачать
Товары Серия 1.432-5 (23)
ПСЯ 30-1,8-1,5-022 (1.432-5)
Панели стеновые Серия 1.432-5
  • Длина 1450 мм.
  • Ширина 300 мм.
  • Высота 1785 мм.
  • Вес 1100 кг.
  • Объем бетона 0,81 м3
  • Геометрический объем 0,7765 м3
Цена: 31428 руб.
Подробнее
ПСЯ 30-1,8-3-121 (1.432-5)
Панели стеновые Серия 1.432-5
  • Длина 2950 мм.
  • Ширина 300 мм.
  • Высота 1780 мм.
  • Вес 1500 кг.
  • Объем бетона 1,59 м3
  • Геометрический объем 1,5753 м3
Цена: 61692 руб.
Подробнее
ПСЯ 30-1,8-3-122 (1.432-5)
Панели стеновые Серия 1.432-5
  • Длина 2950 мм.
  • Ширина 300 мм.
  • Высота 1780 мм.
  • Вес 1500 кг.
  • Объем бетона 1,59 м3
  • Геометрический объем 1,5753 м3
Цена: 61692 руб.
Подробнее
ПСЯ 30-1,8-3-221 (1.432-5)
Панели стеновые Серия 1.432-5
  • Длина 2950 мм.
  • Ширина 300 мм.
  • Высота 1780 мм.
  • Вес 1500 кг.
  • Объем бетона 1,59 м3
  • Геометрический объем 1,5753 м3
Цена: 61692 руб.
Подробнее
ПСЯ 30-1,8-1,5-022 (1.432-5)
Панели стеновые Серия 1.432-5
  • Длина 1450 мм.
  • Ширина 300 мм.
  • Высота 1785 мм.
  • Вес 700 кг.
  • Объем бетона 0,81 м3
  • Геометрический объем 0,7765 м3
Цена: 31428 руб.
Подробнее
ПСЯ 30-1,8-3-021 (1.432-5)
Панели стеновые Серия 1.432-5
  • Длина 2950 мм.
  • Ширина 300 мм.
  • Высота 1780 мм.
  • Вес 1500 кг.
  • Объем бетона 1,59 м3
  • Геометрический объем 1,5753 м3
Цена: 61692 руб.
Подробнее
ПСЯ 30-1,8-3-222 (1.432-5)
Панели стеновые Серия 1.432-5
  • Длина 2950 мм.
  • Ширина 300 мм.
  • Высота 1780 мм.
  • Вес 1500 кг.
  • Объем бетона 1,59 м3
  • Геометрический объем 1,5753 м3
Цена: 61692 руб.
Подробнее
ПСЯ 30-1,8-6-121 (1.432-5)
Панели стеновые Серия 1.432-5
  • Длина 5980 мм.
  • Ширина 300 мм.
  • Высота 1785 мм.
  • Вес 3000 кг.
  • Объем бетона 3,21 м3
  • Геометрический объем 3,2023 м3
Цена: 124548 руб.
Подробнее
ПСЯ 30-1,8-6-211 (1.432-5)
Панели стеновые Серия 1.432-5
  • Длина 5980 мм.
  • Ширина 300 мм.
  • Высота 1785 мм.
  • Вес 3000 кг.
  • Объем бетона 3,21 м3
  • Геометрический объем 3,2023 м3
Цена: 124548 руб.
Подробнее
ПСЯ 30-1,8-6-221 (1.432-5)
Панели стеновые Серия 1.432-5
  • Длина 5980 мм.
  • Ширина 300 мм.
  • Высота 1785 мм.
  • Вес 3000 кг.
  • Объем бетона 3,21 м3
  • Геометрический объем 3,2023 м3
Цена: 124548 руб.
Подробнее
ПСЯ 30-1,8-6-212 (1.432-5)
Панели стеновые Серия 1.432-5
  • Длина 5980 мм.
  • Ширина 300 мм.
  • Высота 1785 мм.
  • Вес 3000 кг.
  • Объем бетона 3,21 м3
  • Геометрический объем 3,2023 м3
Цена: 124548 руб.
Подробнее
ПСЯ 30-1,8-6-222 (1.432-5)
Панели стеновые Серия 1.432-5
  • Длина 5980 мм.
  • Ширина 300 мм.
  • Высота 1785 мм.
  • Вес 3000 кг.
  • Объем бетона 3,21 м3
  • Геометрический объем 3,2023 м3
Цена: 124548 руб.
Подробнее
ПСЯ 30-1,8-6-122 (1.432-5)
Панели стеновые Серия 1.432-5
  • Длина 5980 мм.
  • Ширина 300 мм.
  • Высота 1785 мм.
  • Вес 3000 кг.
  • Объем бетона 3,21 м3
  • Геометрический объем 3,2023 м3
Цена: 124548 руб.
Подробнее
ПСЯ 30-1,8-6-311 (1.432-5)
Панели стеновые Серия 1.432-5
  • Длина 5980 мм.
  • Ширина 300 мм.
  • Высота 1785 мм.
  • Вес 3000 кг.
  • Объем бетона 3,21 м3
  • Геометрический объем 3,2023 м3
Цена: 124548 руб.
Подробнее
ПСЯ 30-1,8-6-321 (1.432-5)
Панели стеновые Серия 1.432-5
  • Длина 5980 мм.
  • Ширина 300 мм.
  • Высота 1785 мм.
  • Вес 3000 кг.
  • Объем бетона 3,21 м3
  • Геометрический объем 3,2023 м3
Цена: 124548 руб.
Подробнее
ПСЯ 30-1,8-6-312 (1.432-5)
Панели стеновые Серия 1.432-5
  • Длина 5980 мм.
  • Ширина 300 мм.
  • Высота 1785 мм.
  • Вес 3000 кг.
  • Объем бетона 3,21 м3
  • Геометрический объем 3,2023 м3
Цена: 124548 руб.
Подробнее
ПСЯ 30-1,8-6-322 (1.432-5)
Панели стеновые Серия 1.432-5
  • Длина 5980 мм.
  • Ширина 300 мм.
  • Высота 1785 мм.
  • Вес 3000 кг.
  • Объем бетона 3,21 м3
  • Геометрический объем 3,2023 м3
Цена: 124548 руб.
Подробнее
ПСЯ 30-1,8-6-421 (1.432-5)
Панели стеновые Серия 1.432-5
  • Длина 5980 мм.
  • Ширина 300 мм.
  • Высота 1785 мм.
  • Вес 3000 кг.
  • Объем бетона 3,21 м3
  • Геометрический объем 3,2023 м3
Цена: 124548 руб.
Подробнее
ПСЯ 30-1,8-6-521 (1.432-5)
Панели стеновые Серия 1.432-5
  • Длина 5980 мм.
  • Ширина 300 мм.
  • Высота 1785 мм.
  • Вес 3000 кг.
  • Объем бетона 3,21 м3
  • Геометрический объем 3,2023 м3
Цена: 124548 руб.
Подробнее
ПСЯ 30-1,8-6-621 (1.432-5)
Панели стеновые Серия 1.432-5
  • Длина 5980 мм.
  • Ширина 300 мм.
  • Высота 1785 мм.
  • Вес 3000 кг.
  • Объем бетона 3,21 м3
  • Геометрический объем 3,2023 м3
Цена: 124548 руб.
Подробнее
ПК 1 (1.432-5)
Панели карнизные Серия 1.432-5
  • Длина 5980 мм.
  • Ширина 650 мм.
  • Высота 240 мм.
  • Вес 1200 кг.
  • Объем бетона 0,77 м3
  • Геометрический объем 0,9329 м3
Цена: 26142 руб.
Подробнее
ПК 2 (1.432-5)
Панели карнизные Серия 1.432-5
  • Длина 5980 мм.
  • Ширина 690 мм.
  • Высота 240 мм.
  • Вес 1300 кг.
  • Объем бетона 0,84 м3
  • Геометрический объем 0,9903 м3
Цена: 28518 руб.
Подробнее
ПК 3 (1.432-5)
Панели карнизные Серия 1.432-5
  • Длина 5980 мм.
  • Ширина 750 мм.
  • Высота 240 мм.
  • Вес 1400 кг.
  • Объем бетона 0,92 м3
  • Геометрический объем 1,0764 м3
Цена: 31234 руб.
Подробнее

Уведомление о файлах cookie

Мы используем файлы cookie для улучшения вашего опыта просмотра и анализа трафика. Нажимая "Принять все", вы соглашаетесь с нашей политикой конфиденциальности и политикой обработки файлов cookie.

MAX Дзен Телеграм Вконтакте vk