mobile_sound +7 (930) 655-55-90

Типовые конструкции и железобетонные изделия. Рабочие чертежи (Серия 1.432-5)

Поделиться:
Поделиться:

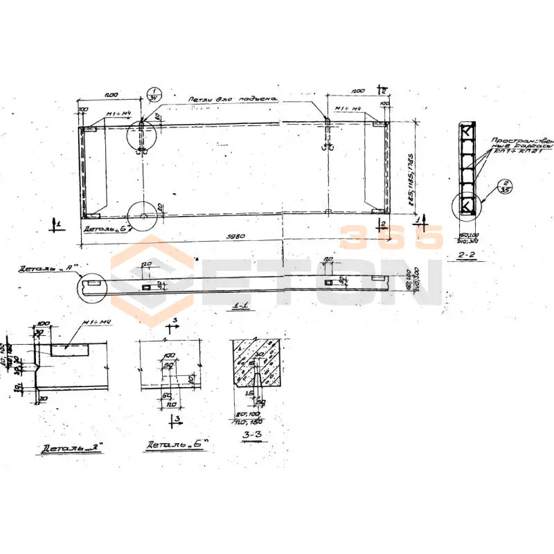
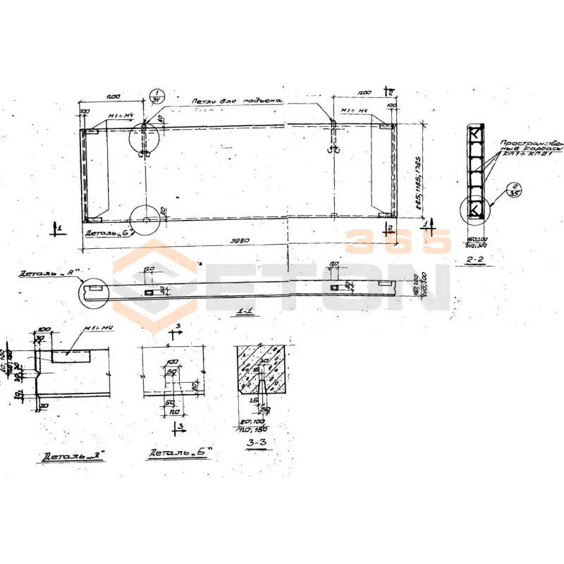
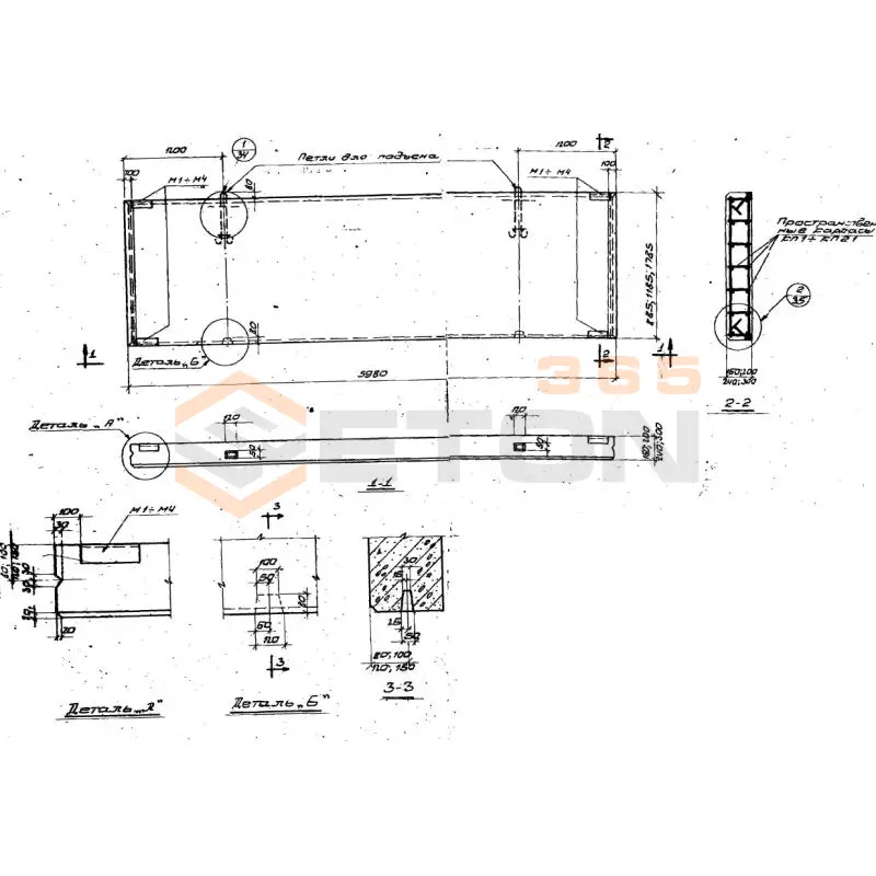
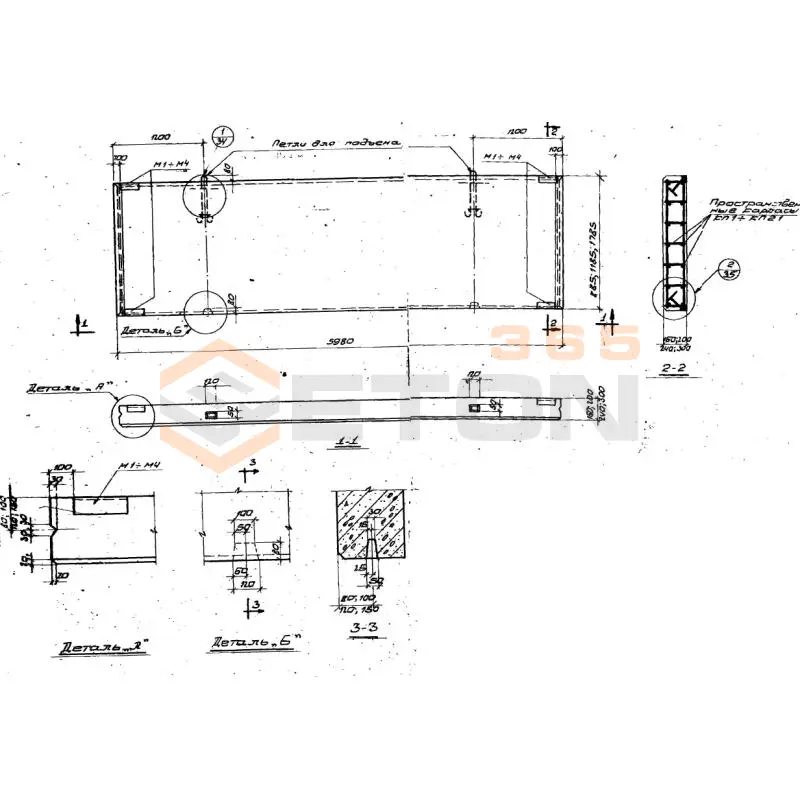
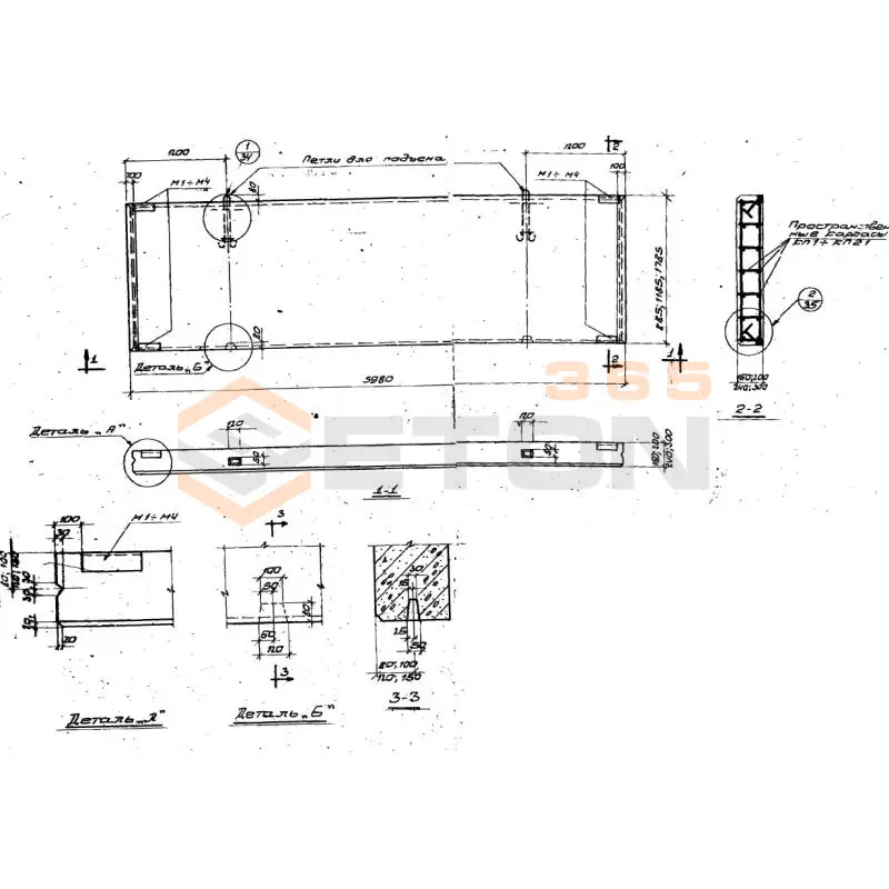
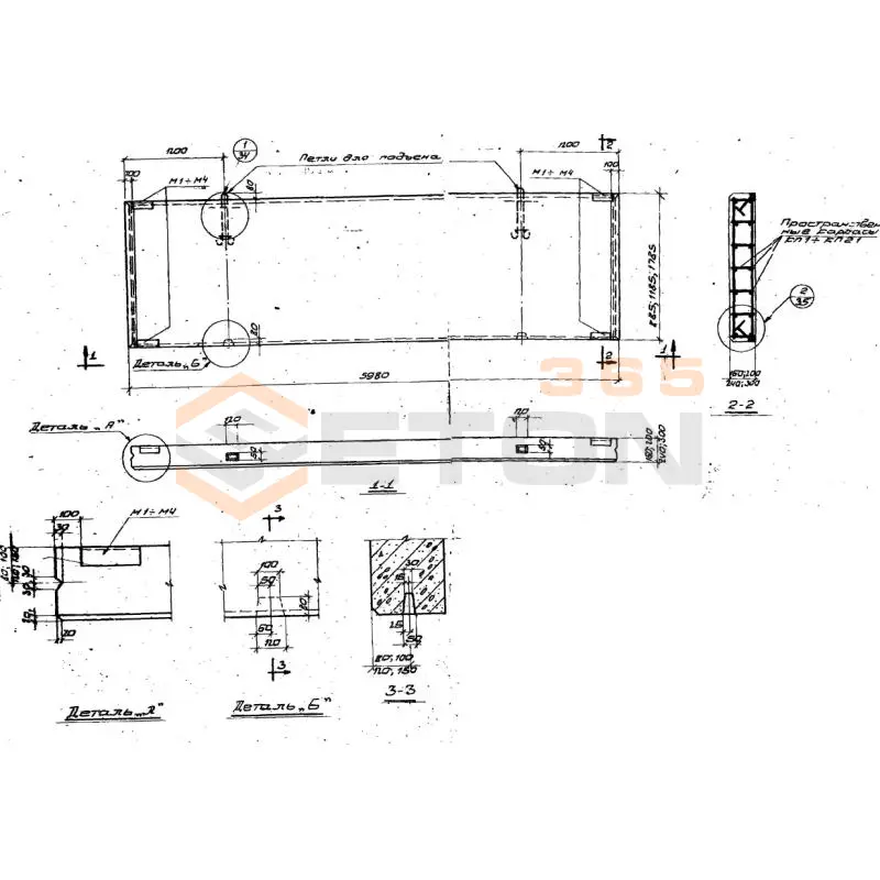
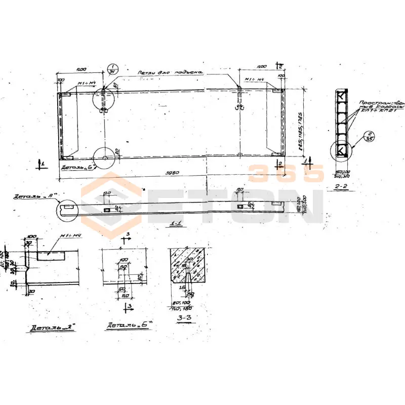
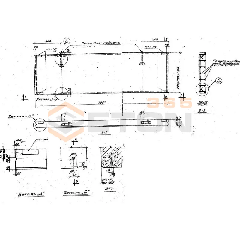
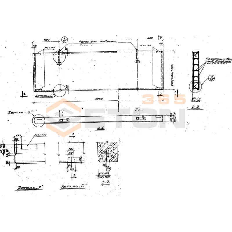
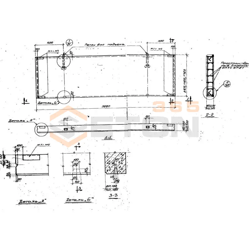
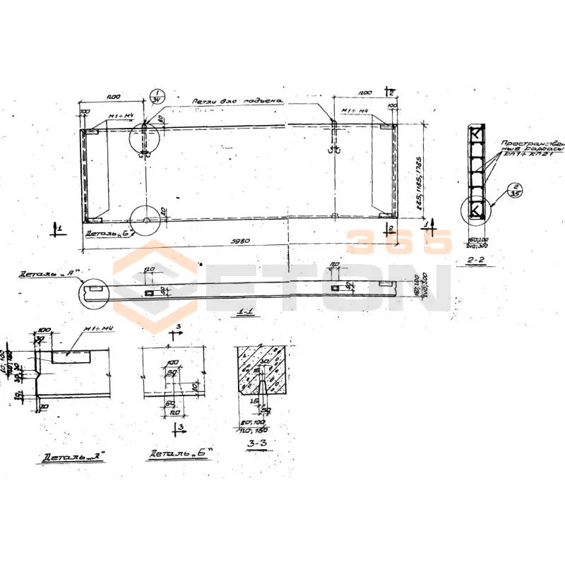
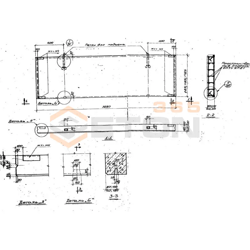
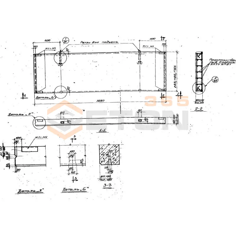
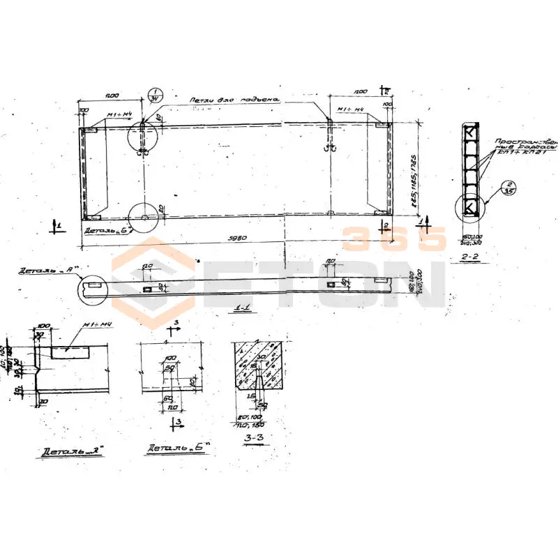
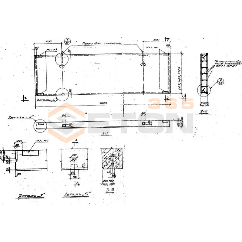
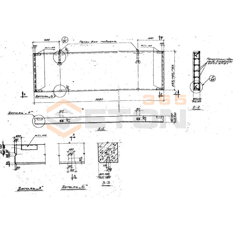
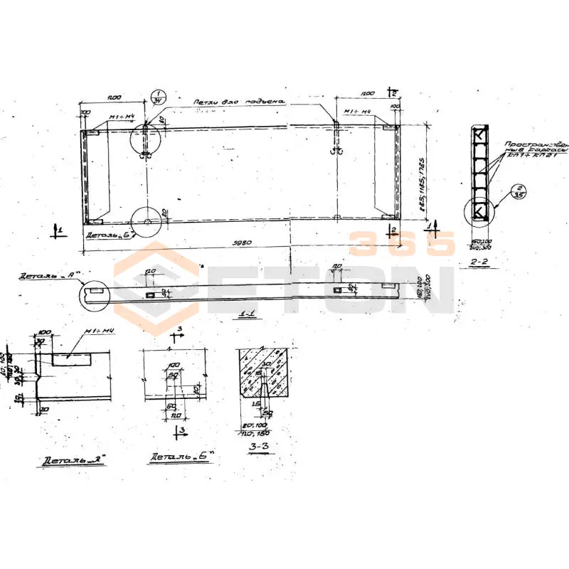
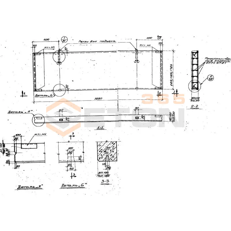
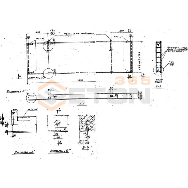
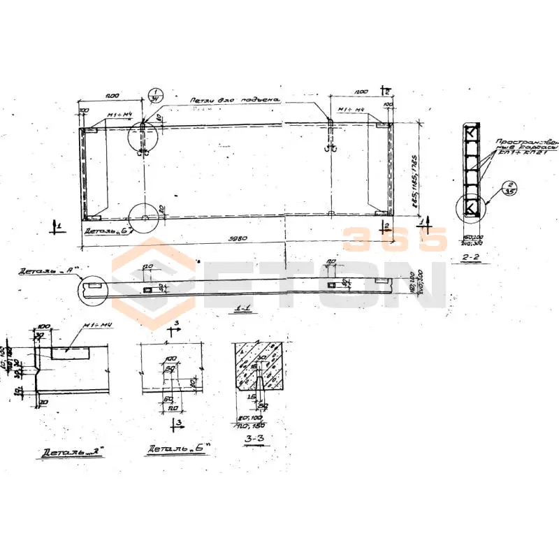
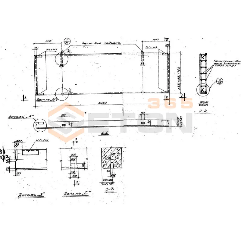
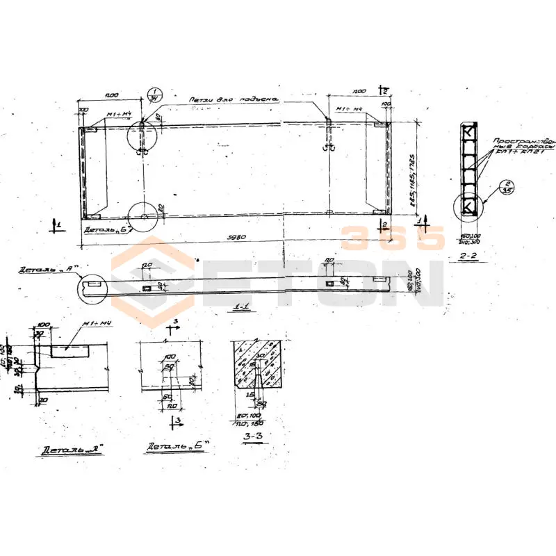
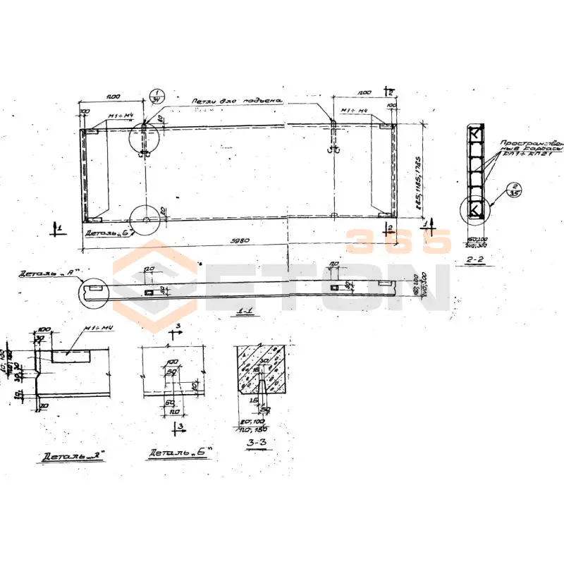
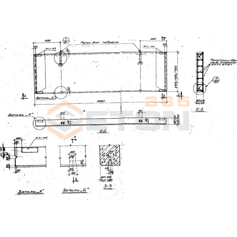
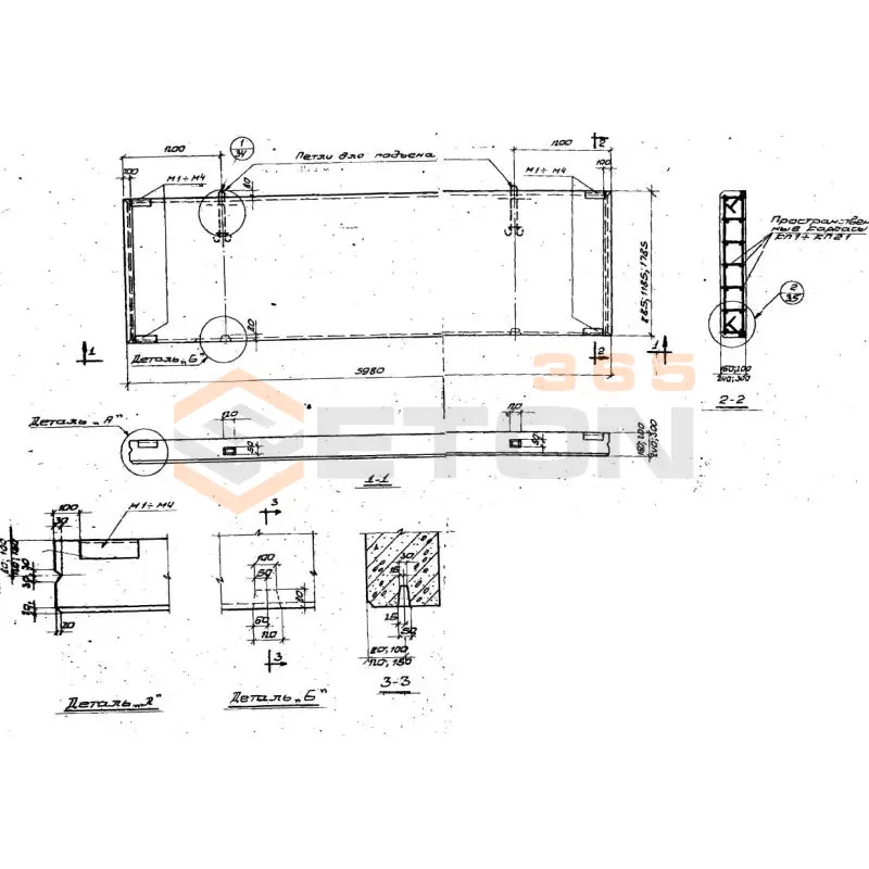
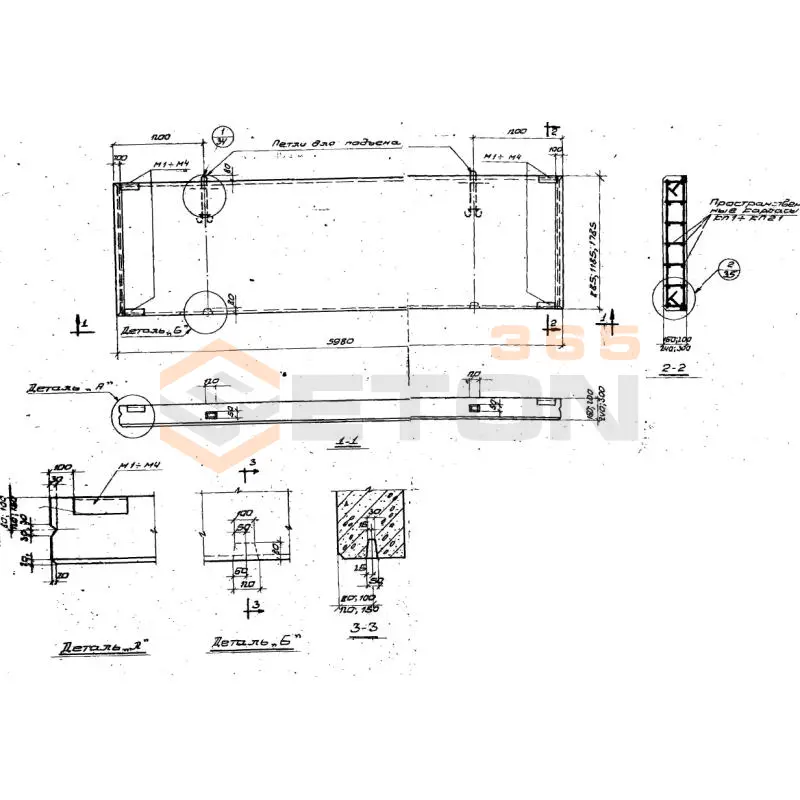
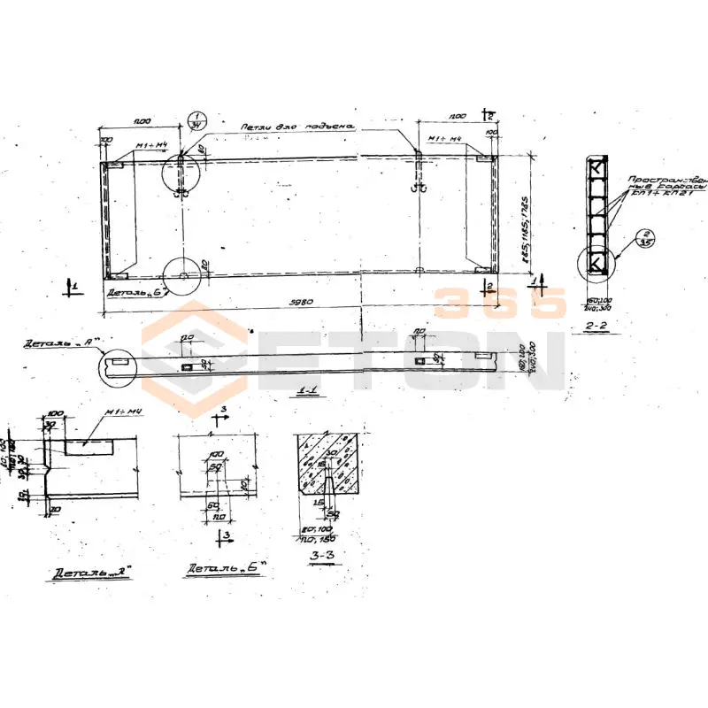
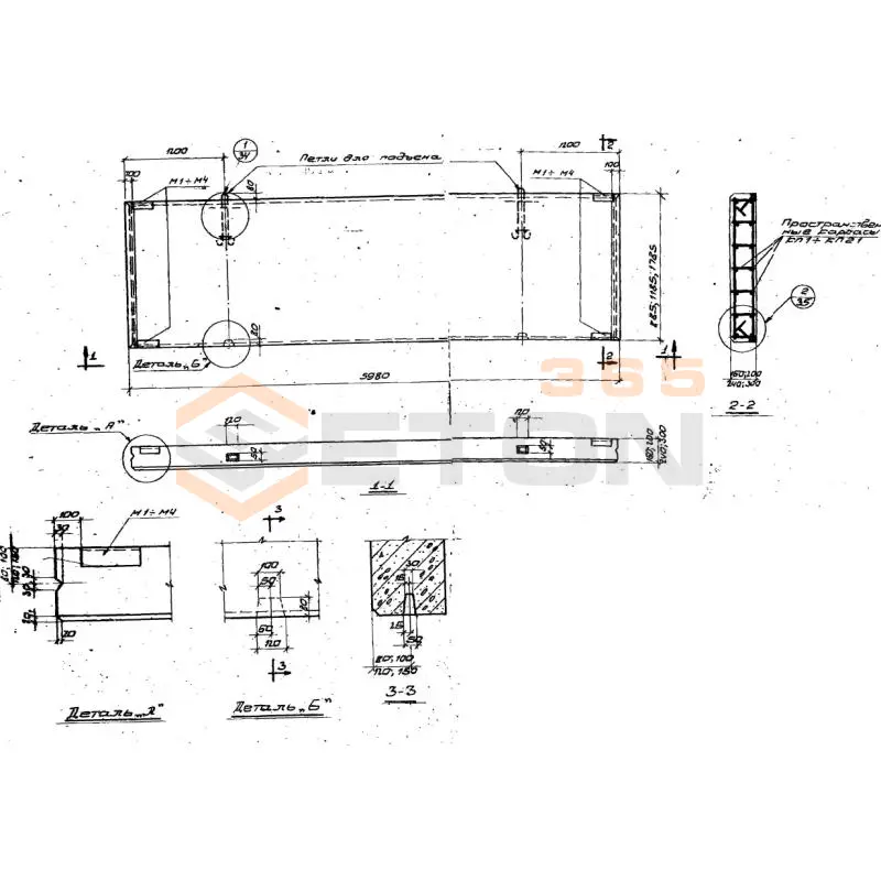
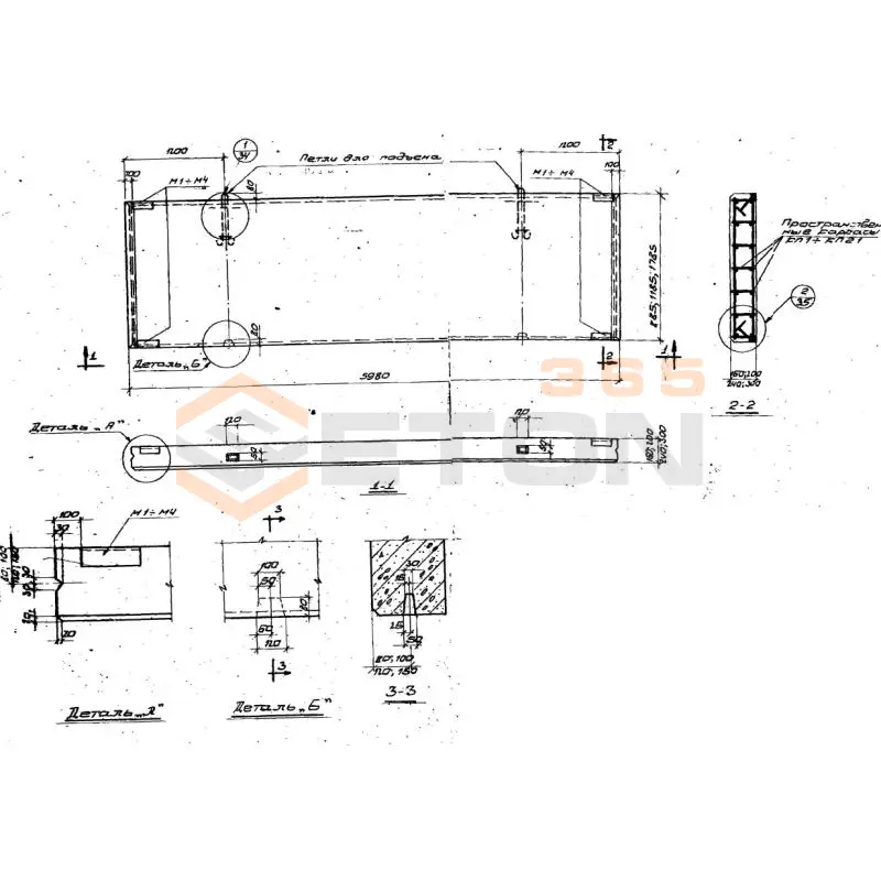
Документ Серия 1.432-5 описывает область применения, номенклатуру и ключевые требования, опираясь на действующие нормы и практику проектирования. Серия 1.432-5 входит в состав строительных каталог типовых конструкций и описывает производство стеновых панелей, предназначенных для промышленных сооружений, возводимых с шагом колонн равным 6 метрам. Документ был разработан ЦНИИпромзданий совместно с НИИЖБ, а также НИИСФ. После утверждения Госстроем СССР регламент был введён в действие с 1 января 1973 года и для удобства разбит на четыре выпуска.

Файлы для скачивания:
picture_as_pdf

5226.pdf

6,963.6 KB

скачать
picture_as_pdf

5227.pdf

6,247.3 KB

скачать
picture_as_pdf

5228.pdf

3,867.7 KB

скачать
picture_as_pdf

5229.pdf

880.0 KB

скачать
Товары Серия 1.432-5 (60)
ПСЖН АтVI 1,2-6,35-121 (1.432-5)
Панели стеновые Серия 1.432-5
  • Длина 6330 мм.
  • Ширина 70 мм.
  • Высота 1185 мм.
  • Вес 1320 кг.
  • Объем бетона 0,53 м3
  • Геометрический объем 0,5251 м3
Цена: 20564 руб.
Подробнее
ПСЖН АтVI 1,2-6,1-111 (1.432-5)
Панели стеновые Серия 1.432-5
  • Длина 6080 мм.
  • Ширина 70 мм.
  • Высота 1185 мм.
  • Вес 1250 кг.
  • Объем бетона 0,5 м3
  • Геометрический объем 0,5043 м3
Цена: 19400 руб.
Подробнее
ПСЖН АтVI 1,5-6-411 (1.432-5)
Панели стеновые Серия 1.432-5
  • Длина 5980 мм.
  • Ширина 70 мм.
  • Высота 1485 мм.
  • Вес 1550 кг.
  • Объем бетона 0,62 м3
  • Геометрический объем 0,6216 м3
Цена: 24056 руб.
Подробнее
ПСЖН АтVI 1,5-6-421 (1.432-5)
Панели стеновые Серия 1.432-5
  • Длина 5980 мм.
  • Ширина 70 мм.
  • Высота 1485 мм.
  • Вес 1550 кг.
  • Объем бетона 0,62 м3
  • Геометрический объем 0,6216 м3
Цена: 24056 руб.
Подробнее
ПСЖН АтVI 1,8-6-111 (1.432-5)
Панели стеновые Серия 1.432-5
  • Длина 5980 мм.
  • Ширина 70 мм.
  • Высота 1785 мм.
  • Вес 1870 кг.
  • Объем бетона 0,75 м3
  • Геометрический объем 0,7472 м3
Цена: 29100 руб.
Подробнее
ПСЖН АтVI 1,8-6-122 (1.432-5)
Панели стеновые Серия 1.432-5
  • Длина 5980 мм.
  • Ширина 70 мм.
  • Высота 1785 мм.
  • Вес 1870 кг.
  • Объем бетона 0,75 м3
  • Геометрический объем 0,7472 м3
Цена: 29100 руб.
Подробнее
ПСЖН АтVI 1,8-6-421 (1.432-5)
Панели стеновые Серия 1.432-5
  • Длина 5980 мм.
  • Ширина 70 мм.
  • Высота 1785 мм.
  • Вес 1870 кг.
  • Объем бетона 0,75 м3
  • Геометрический объем 0,7472 м3
Цена: 29100 руб.
Подробнее
ПСЖН АтVI 1,8-6-411 (1.432-5)
Панели стеновые Серия 1.432-5
  • Длина 5980 мм.
  • Ширина 70 мм.
  • Высота 1785 мм.
  • Вес 1870 кг.
  • Объем бетона 0,75 м3
  • Геометрический объем 0,7472 м3
Цена: 29100 руб.
Подробнее
ПСЖН АтVI 1,8-6-112 (1.432-5)
Панели стеновые Серия 1.432-5
  • Длина 5980 мм.
  • Ширина 70 мм.
  • Высота 1785 мм.
  • Вес 1870 кг.
  • Объем бетона 0,75 м3
  • Геометрический объем 0,7472 м3
Цена: 29100 руб.
Подробнее
ПСЖН АтVI 1,8-6-121 (1.432-5)
Панели стеновые Серия 1.432-5
  • Длина 5980 мм.
  • Ширина 70 мм.
  • Высота 1785 мм.
  • Вес 1870 кг.
  • Объем бетона 0,75 м3
  • Геометрический объем 0,7472 м3
Цена: 29100 руб.
Подробнее
ПСЖН АтVI 1,8-6,1-111 (1.432-5)
Панели стеновые Серия 1.432-5
  • Длина 6080 мм.
  • Ширина 70 мм.
  • Высота 1785 мм.
  • Вес 1900 кг.
  • Объем бетона 0,76 м3
  • Геометрический объем 0,7597 м3
Цена: 29488 руб.
Подробнее
ПСЖН АтVI 1,8-6,1-121 (1.432-5)
Панели стеновые Серия 1.432-5
  • Длина 6080 мм.
  • Ширина 70 мм.
  • Высота 1785 мм.
  • Вес 1900 кг.
  • Объем бетона 0,76 м3
  • Геометрический объем 0,7597 м3
Цена: 29488 руб.
Подробнее
ПСЖН АтVI 1,8-6,35-111 (1.432-5)
Панели стеновые Серия 1.432-5
  • Длина 6330 мм.
  • Ширина 70 мм.
  • Высота 1785 мм.
  • Вес 1980 кг.
  • Объем бетона 0,79 м3
  • Геометрический объем 0,7909 м3
Цена: 30652 руб.
Подробнее
ПСЖН АтVI 1,8-6,35-121 (1.432-5)
Панели стеновые Серия 1.432-5
  • Длина 6330 мм.
  • Ширина 70 мм.
  • Высота 1785 мм.
  • Вес 1980 кг.
  • Объем бетона 0,79 м3
  • Геометрический объем 0,7909 м3
Цена: 30652 руб.
Подробнее
ПСЛ 16-0,9-3-211 (1.432-5)
Панели стеновые Серия 1.432-5
  • Длина 2950 мм.
  • Ширина 160 мм.
  • Высота 885 мм.
  • Вес 600 кг.
  • Объем бетона 0,43 м3
  • Геометрический объем 0,4177 м3
Цена: 16684 руб.
Подробнее
ПСЛ 16-0,9-3-121 (1.432-5)
Панели стеновые Серия 1.432-5
  • Длина 2950 мм.
  • Ширина 160 мм.
  • Высота 885 мм.
  • Вес 600 кг.
  • Объем бетона 0,43 м3
  • Геометрический объем 0,4177 м3
Цена: 16684 руб.
Подробнее
ПСЛ 16-0,9-3-122 (1.432-5)
Панели стеновые Серия 1.432-5
  • Длина 2950 мм.
  • Ширина 160 мм.
  • Высота 885 мм.
  • Вес 600 кг.
  • Объем бетона 0,43 м3
  • Геометрический объем 0,4177 м3
Цена: 16684 руб.
Подробнее
ПСЛ 16-0,9-3-212 (1.432-5)
Панели стеновые Серия 1.432-5
  • Длина 2950 мм.
  • Ширина 160 мм.
  • Высота 885 мм.
  • Вес 600 кг.
  • Объем бетона 0,43 м3
  • Геометрический объем 0,4177 м3
Цена: 16684 руб.
Подробнее
ПСЛ 16-0,9-6-112 (1.432-5)
Панели стеновые Серия 1.432-5
  • Длина 5980 мм.
  • Ширина 160 мм.
  • Высота 885 мм.
  • Вес 1200 кг.
  • Объем бетона 0,75 м3
  • Геометрический объем 0,8468 м3
Цена: 29100 руб.
Подробнее
ПСЛ 16-0,9-6-111 (1.432-5)
Панели стеновые Серия 1.432-5
  • Длина 5980 мм.
  • Ширина 160 мм.
  • Высота 885 мм.
  • Вес 1200 кг.
  • Объем бетона 0,75 м3
  • Геометрический объем 0,8468 м3
Цена: 29100 руб.
Подробнее
ПСЛ 16-0,9-6-122 (1.432-5)
Панели стеновые Серия 1.432-5
  • Длина 5980 мм.
  • Ширина 160 мм.
  • Высота 885 мм.
  • Вес 1200 кг.
  • Объем бетона 0,75 м3
  • Геометрический объем 0,8468 м3
Цена: 29100 руб.
Подробнее
ПСЛ 16-0,9-6-211 (1.432-5)
Панели стеновые Серия 1.432-5
  • Длина 5980 мм.
  • Ширина 160 мм.
  • Высота 885 мм.
  • Вес 1200 кг.
  • Объем бетона 0,75 м3
  • Геометрический объем 0,8468 м3
Цена: 29100 руб.
Подробнее
ПСЛ 16-0,9-6-121 (1.432-5)
Панели стеновые Серия 1.432-5
  • Длина 5980 мм.
  • Ширина 160 мм.
  • Высота 885 мм.
  • Вес 1200 кг.
  • Объем бетона 0,75 м3
  • Геометрический объем 0,8468 м3
Цена: 29100 руб.
Подробнее
ПСЛ 16-0,9-6-212 (1.432-5)
Панели стеновые Серия 1.432-5
  • Длина 5980 мм.
  • Ширина 160 мм.
  • Высота 885 мм.
  • Вес 1200 кг.
  • Объем бетона 0,75 м3
  • Геометрический объем 0,8468 м3
Цена: 29100 руб.
Подробнее
ПСЛ 16-0,9-6-221 (1.432-5)
Панели стеновые Серия 1.432-5
  • Длина 5980 мм.
  • Ширина 160 мм.
  • Высота 885 мм.
  • Вес 1200 кг.
  • Объем бетона 0,75 м3
  • Геометрический объем 0,8468 м3
Цена: 29100 руб.
Подробнее
ПСЛ 16-1,2-3-121 (1.432-5)
Панели стеновые Серия 1.432-5
  • Длина 2950 мм.
  • Ширина 160 мм.
  • Высота 1185 мм.
  • Вес 800 кг.
  • Объем бетона 0,56 м3
  • Геометрический объем 0,5593 м3
Цена: 21728 руб.
Подробнее
ПСЛ 16-1,2-3-122 (1.432-5)
Панели стеновые Серия 1.432-5
  • Длина 2950 мм.
  • Ширина 160 мм.
  • Высота 1185 мм.
  • Вес 800 кг.
  • Объем бетона 0,56 м3
  • Геометрический объем 0,5593 м3
Цена: 21728 руб.
Подробнее
ПСЛ 16-1,2-3-211 (1.432-5)
Панели стеновые Серия 1.432-5
  • Длина 2950 мм.
  • Ширина 160 мм.
  • Высота 1185 мм.
  • Вес 800 кг.
  • Объем бетона 0,56 м3
  • Геометрический объем 0,5593 м3
Цена: 21728 руб.
Подробнее
ПСЛ 16-1,2-6-111 (1.432-5)
Панели стеновые Серия 1.432-5
  • Длина 5980 мм.
  • Ширина 160 мм.
  • Высота 1185 мм.
  • Вес 1600 кг.
  • Объем бетона 1,13 м3
  • Геометрический объем 1,1338 м3
Цена: 43844 руб.
Подробнее
ПСЛ 16-1,2-3-212 (1.432-5)
Панели стеновые Серия 1.432-5
  • Длина 2950 мм.
  • Ширина 160 мм.
  • Высота 1185 мм.
  • Вес 800 кг.
  • Объем бетона 0,56 м3
  • Геометрический объем 0,5593 м3
Цена: 21728 руб.
Подробнее
ПСЛ 16-1,2-6-112 (1.432-5)
Панели стеновые Серия 1.432-5
  • Длина 5980 мм.
  • Ширина 160 мм.
  • Высота 1185 мм.
  • Вес 1600 кг.
  • Объем бетона 1,13 м3
  • Геометрический объем 1,1338 м3
Цена: 43844 руб.
Подробнее
ПСЛ 16-1,2-6-121 (1.432-5)
Панели стеновые Серия 1.432-5
  • Длина 5980 мм.
  • Ширина 160 мм.
  • Высота 1185 мм.
  • Вес 1600 кг.
  • Объем бетона 1,13 м3
  • Геометрический объем 1,1338 м3
Цена: 43844 руб.
Подробнее
ПСЛ 16-1,2-6-122 (1.432-5)
Панели стеновые Серия 1.432-5
  • Длина 5980 мм.
  • Ширина 160 мм.
  • Высота 1185 мм.
  • Вес 1600 кг.
  • Объем бетона 1,13 м3
  • Геометрический объем 1,1338 м3
Цена: 43844 руб.
Подробнее
ПСЛ 16-1,2-6-212 (1.432-5)
Панели стеновые Серия 1.432-5
  • Длина 5980 мм.
  • Ширина 160 мм.
  • Высота 1185 мм.
  • Вес 1600 кг.
  • Объем бетона 1,13 м3
  • Геометрический объем 1,1338 м3
Цена: 43844 руб.
Подробнее
ПСЛ 16-1,2-6-721 (1.432-5)
Панели стеновые Серия 1.432-5
  • Длина 5980 мм.
  • Ширина 160 мм.
  • Высота 1185 мм.
  • Вес 1600 кг.
  • Объем бетона 1,13 м3
  • Геометрический объем 1,1338 м3
Цена: 43844 руб.
Подробнее
ПСЛ 16-1,2-6-211 (1.432-5)
Панели стеновые Серия 1.432-5
  • Длина 5980 мм.
  • Ширина 160 мм.
  • Высота 1185 мм.
  • Вес 1600 кг.
  • Объем бетона 1,13 м3
  • Геометрический объем 1,1338 м3
Цена: 43844 руб.
Подробнее
ПСЛ 16-1,2-6-821 (1.432-5)
Панели стеновые Серия 1.432-5
  • Длина 5980 мм.
  • Ширина 160 мм.
  • Высота 1185 мм.
  • Вес 1600 кг.
  • Объем бетона 1,13 м3
  • Геометрический объем 1,1338 м3
Цена: 43844 руб.
Подробнее
ПСЛ 16-1,8-3-121 (1.432-5)
Панели стеновые Серия 1.432-5
  • Длина 2950 мм.
  • Ширина 160 мм.
  • Высота 1780 мм.
  • Вес 1200 кг.
  • Объем бетона 0,85 м3
  • Геометрический объем 0,8402 м3
Цена: 32980 руб.
Подробнее
ПСЛ 16-1,8-3-122 (1.432-5)
Панели стеновые Серия 1.432-5
  • Длина 2950 мм.
  • Ширина 160 мм.
  • Высота 1780 мм.
  • Вес 1200 кг.
  • Объем бетона 0,85 м3
  • Геометрический объем 0,8402 м3
Цена: 32980 руб.
Подробнее
ПСЛ 16-1,8-3-212 (1.432-5)
Панели стеновые Серия 1.432-5
  • Длина 2950 мм.
  • Ширина 160 мм.
  • Высота 1780 мм.
  • Вес 1200 кг.
  • Объем бетона 0,85 м3
  • Геометрический объем 0,8402 м3
Цена: 32980 руб.
Подробнее
ПСЛ 16-1,8-3-211 (1.432-5)
Панели стеновые Серия 1.432-5
  • Длина 2950 мм.
  • Ширина 160 мм.
  • Высота 1780 мм.
  • Вес 1200 кг.
  • Объем бетона 0,85 м3
  • Геометрический объем 0,8402 м3
Цена: 32980 руб.
Подробнее
ПСЛ 16-1,8-6-111 (1.432-5)
Панели стеновые Серия 1.432-5
  • Длина 5980 мм.
  • Ширина 160 мм.
  • Высота 1785 мм.
  • Вес 2500 кг.
  • Объем бетона 1,7 м3
  • Геометрический объем 1,7079 м3
Цена: 65960 руб.
Подробнее
ПСЛ 16-1,8-6-122 (1.432-5)
Панели стеновые Серия 1.432-5
  • Длина 5980 мм.
  • Ширина 160 мм.
  • Высота 1785 мм.
  • Вес 2500 кг.
  • Объем бетона 1,7 м3
  • Геометрический объем 1,7079 м3
Цена: 65960 руб.
Подробнее
ПСЛ 16-1,8-6-112 (1.432-5)
Панели стеновые Серия 1.432-5
  • Длина 5980 мм.
  • Ширина 160 мм.
  • Высота 1785 мм.
  • Вес 2500 кг.
  • Объем бетона 1,7 м3
  • Геометрический объем 1,7079 м3
Цена: 65960 руб.
Подробнее
ПСЛ 16-1,8-6-121 (1.432-5)
Панели стеновые Серия 1.432-5
  • Длина 5980 мм.
  • Ширина 160 мм.
  • Высота 1785 мм.
  • Вес 2500 кг.
  • Объем бетона 1,7 м3
  • Геометрический объем 1,7079 м3
Цена: 65960 руб.
Подробнее
ПСЛ 16-1,8-6-211 (1.432-5)
Панели стеновые Серия 1.432-5
  • Длина 5980 мм.
  • Ширина 160 мм.
  • Высота 1785 мм.
  • Вес 2500 кг.
  • Объем бетона 1,7 м3
  • Геометрический объем 1,7079 м3
Цена: 65960 руб.
Подробнее
ПСЛ 16-1,8-6-212 (1.432-5)
Панели стеновые Серия 1.432-5
  • Длина 5980 мм.
  • Ширина 160 мм.
  • Высота 1785 мм.
  • Вес 2500 кг.
  • Объем бетона 1,7 м3
  • Геометрический объем 1,7079 м3
Цена: 65960 руб.
Подробнее
ПСЛ 20-0,9-3-121 (1.432-5)
Панели стеновые Серия 1.432-5
  • Длина 2950 мм.
  • Ширина 200 мм.
  • Высота 885 мм.
  • Вес 800 кг.
  • Объем бетона 0,53 м3
  • Геометрический объем 0,5222 м3
Цена: 20564 руб.
Подробнее
ПСЛ 20-0,9-6-111 (1.432-5)
Панели стеновые Серия 1.432-5
  • Длина 5980 мм.
  • Ширина 200 мм.
  • Высота 885 мм.
  • Вес 1500 кг.
  • Объем бетона 1,08 м3
  • Геометрический объем 1,0585 м3
Цена: 41904 руб.
Подробнее
ПСЛ 20-0,9-3-221 (1.432-5)
Панели стеновые Серия 1.432-5
  • Длина 2950 мм.
  • Ширина 200 мм.
  • Высота 885 мм.
  • Вес 800 кг.
  • Объем бетона 0,53 м3
  • Геометрический объем 0,5222 м3
Цена: 20564 руб.
Подробнее
ПСЛ 20-0,9-3-122 (1.432-5)
Панели стеновые Серия 1.432-5
  • Длина 2950 мм.
  • Ширина 200 мм.
  • Высота 885 мм.
  • Вес 800 кг.
  • Объем бетона 0,53 м3
  • Геометрический объем 0,5222 м3
Цена: 20564 руб.
Подробнее
ПСЛ 20-0,9-3-222 (1.432-5)
Панели стеновые Серия 1.432-5
  • Длина 2950 мм.
  • Ширина 200 мм.
  • Высота 885 мм.
  • Вес 800 кг.
  • Объем бетона 0,53 м3
  • Геометрический объем 0,5222 м3
Цена: 20564 руб.
Подробнее
ПСЛ 20-0,9-6-112 (1.432-5)
Панели стеновые Серия 1.432-5
  • Длина 5980 мм.
  • Ширина 200 мм.
  • Высота 885 мм.
  • Вес 1500 кг.
  • Объем бетона 1,08 м3
  • Геометрический объем 1,0585 м3
Цена: 41904 руб.
Подробнее
ПСЛ 20-0,9-6-211 (1.432-5)
Панели стеновые Серия 1.432-5
  • Длина 5980 мм.
  • Ширина 200 мм.
  • Высота 885 мм.
  • Вес 1500 кг.
  • Объем бетона 1,08 м3
  • Геометрический объем 1,0585 м3
Цена: 41904 руб.
Подробнее
ПСЛ 20-0,9-6-122 (1.432-5)
Панели стеновые Серия 1.432-5
  • Длина 5980 мм.
  • Ширина 200 мм.
  • Высота 885 мм.
  • Вес 1500 кг.
  • Объем бетона 1,08 м3
  • Геометрический объем 1,0585 м3
Цена: 41904 руб.
Подробнее
ПСЛ 20-0,9-6-212 (1.432-5)
Панели стеновые Серия 1.432-5
  • Длина 5980 мм.
  • Ширина 200 мм.
  • Высота 885 мм.
  • Вес 1500 кг.
  • Объем бетона 1,08 м3
  • Геометрический объем 1,0585 м3
Цена: 41904 руб.
Подробнее
ПСЛ 20-0,9-6-221 (1.432-5)
Панели стеновые Серия 1.432-5
  • Длина 5980 мм.
  • Ширина 200 мм.
  • Высота 885 мм.
  • Вес 1500 кг.
  • Объем бетона 1,08 м3
  • Геометрический объем 1,0585 м3
Цена: 41904 руб.
Подробнее
ПСЛ 20-0,9-6-222 (1.432-5)
Панели стеновые Серия 1.432-5
  • Длина 5980 мм.
  • Ширина 200 мм.
  • Высота 885 мм.
  • Вес 1500 кг.
  • Объем бетона 1,08 м3
  • Геометрический объем 1,0585 м3
Цена: 41904 руб.
Подробнее
ПСЛ 20-0,9-6-121 (1.432-5)
Панели стеновые Серия 1.432-5
  • Длина 5980 мм.
  • Ширина 200 мм.
  • Высота 885 мм.
  • Вес 1500 кг.
  • Объем бетона 1,08 м3
  • Геометрический объем 1,0585 м3
Цена: 41904 руб.
Подробнее
ПСЛ 20-0,9-6-321 (1.432-5)
Панели стеновые Серия 1.432-5
  • Длина 5980 мм.
  • Ширина 200 мм.
  • Высота 885 мм.
  • Вес 1500 кг.
  • Объем бетона 1,08 м3
  • Геометрический объем 1,0585 м3
Цена: 41904 руб.
Подробнее

Уведомление о файлах cookie

Мы используем файлы cookie для улучшения вашего опыта просмотра и анализа трафика. Нажимая "Принять все", вы соглашаетесь с нашей политикой конфиденциальности и политикой обработки файлов cookie.

MAX Дзен Телеграм Вконтакте vk