mobile_sound +7 (930) 655-55-90

Железобетонные опоры линий электропередачи. Рабочие чертежи (Серия 1.030.1-1/88)

Поделиться:
Поделиться:

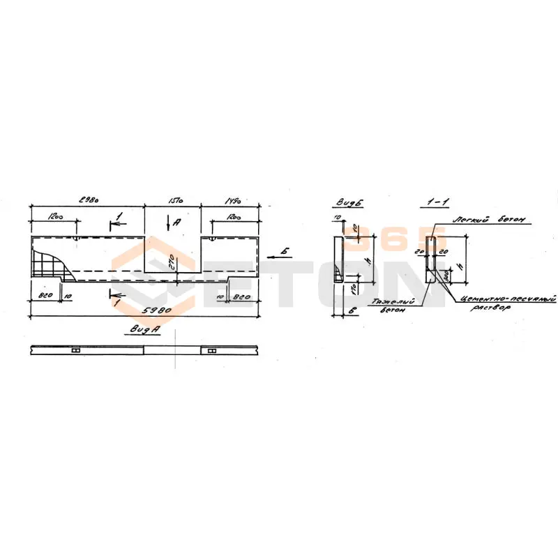
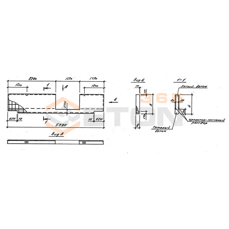
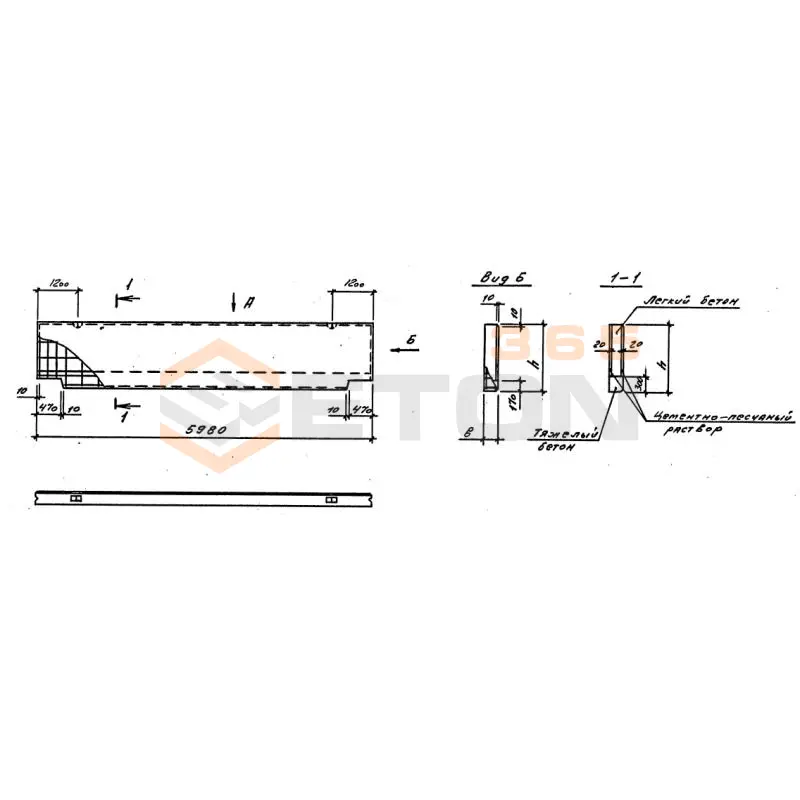
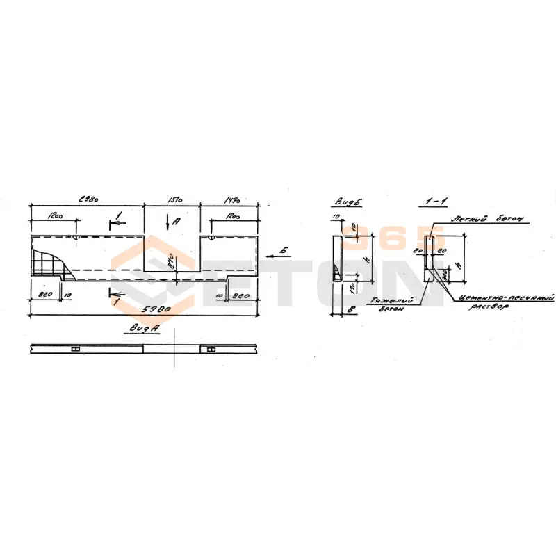
Документ Серия 1.030.1-1/88 описывает область применения, номенклатуру и ключевые требования, опираясь на действующие нормы и практику проектирования. В составе строительного каталога с нормативными документами типовых конструкций присутствует Серия 1.030.1-1/88. Регламент был разработан ЦНИИЭП ТБЭ и ТК при участии НИИЖБ ГОССТРОЯ СССР и введён в действие после утверждения в 1989 годе. В составе документа насчитывается 36 выпусков, среди которых присутствуют внесенные в качестве дополнений в 1996 году материалы для проектирования и рабочие чертежи вспомогательных конструкций.

Файлы для скачивания:
picture_as_pdf

634.pdf

11,349.1 KB

скачать
picture_as_pdf

635.pdf

9,185.9 KB

скачать
picture_as_pdf

636.pdf

14,222.9 KB

скачать
picture_as_pdf

637.pdf

4,772.1 KB

скачать
picture_as_pdf

638.pdf

8,635.7 KB

скачать
picture_as_pdf

639.pdf

8,652.8 KB

скачать
picture_as_pdf

640.pdf

8,487.0 KB

скачать
picture_as_pdf

641.pdf

7,724.7 KB

скачать
picture_as_pdf

650.pdf

5,865.6 KB

скачать
picture_as_pdf

651.pdf

6,500.4 KB

скачать
picture_as_pdf

652.pdf

6,062.9 KB

скачать
picture_as_pdf

653.pdf

10,347.2 KB

скачать
picture_as_pdf

642.pdf

23,516.9 KB

скачать
picture_as_pdf

643.pdf

43,199.4 KB

скачать
picture_as_pdf

644.pdf

32,057.2 KB

скачать
picture_as_pdf

645.pdf

36,011.2 KB

скачать
picture_as_pdf

646.pdf

3,801.2 KB

скачать
picture_as_pdf

647.pdf

29,899.7 KB

скачать
picture_as_pdf

648.pdf

9,581.3 KB

скачать
picture_as_pdf

649.pdf

6,337.2 KB

скачать
picture_as_pdf

654.pdf

6,796.2 KB

скачать
picture_as_pdf

655.pdf

7,636.5 KB

скачать
picture_as_pdf

656.pdf

7,245.8 KB

скачать
picture_as_pdf

657.pdf

6,535.2 KB

скачать
picture_as_pdf

658.pdf

3,993.7 KB

скачать
picture_as_pdf

659.pdf

13,331.0 KB

скачать
picture_as_pdf

660.pdf

14,264.4 KB

скачать
picture_as_pdf

661.pdf

2,977.9 KB

скачать
picture_as_pdf

662.pdf

11,491.8 KB

скачать
picture_as_pdf

663.pdf

5,509.6 KB

скачать
picture_as_pdf

664.pdf

14,086.6 KB

скачать
picture_as_pdf

665.pdf

8,446.3 KB

скачать
picture_as_pdf

666.pdf

6,395.0 KB

скачать
picture_as_pdf

667.pdf

2,531.4 KB

скачать
picture_as_pdf

668.pdf

4,566.6 KB

скачать
picture_as_pdf

669.pdf

3,782.5 KB

скачать
Товары Серия 1.030.1-1/88 (60)
ПСЦ 60-15-2,5-3-14,1
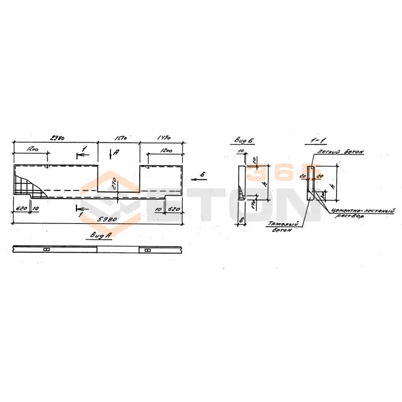
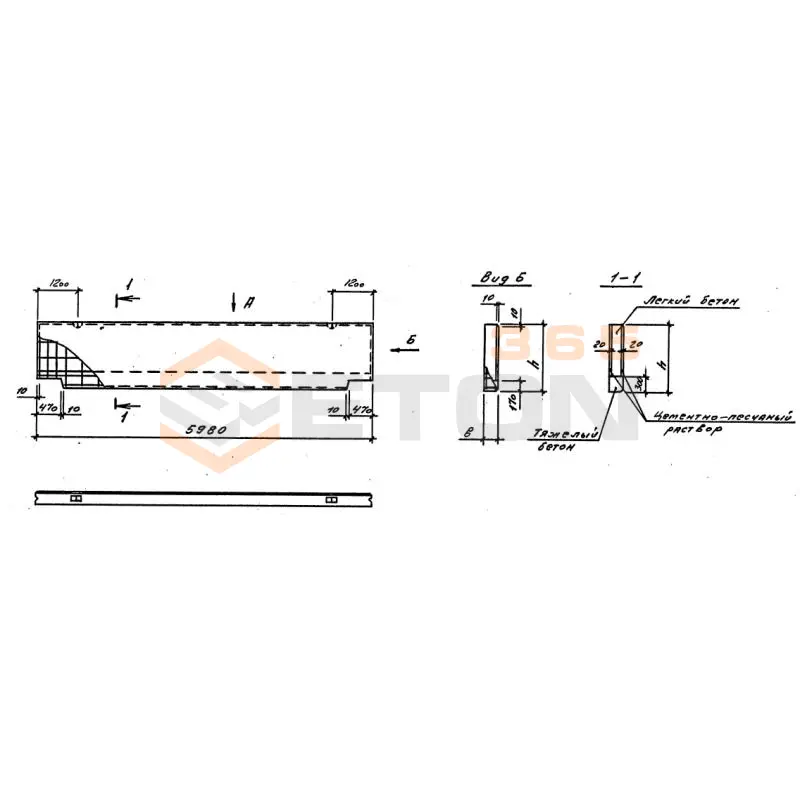
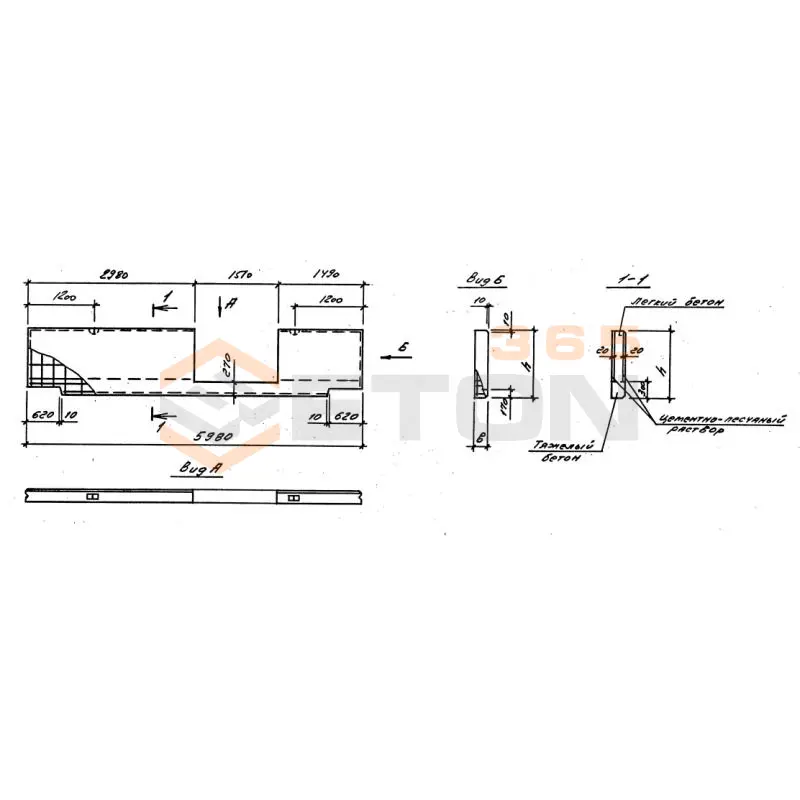
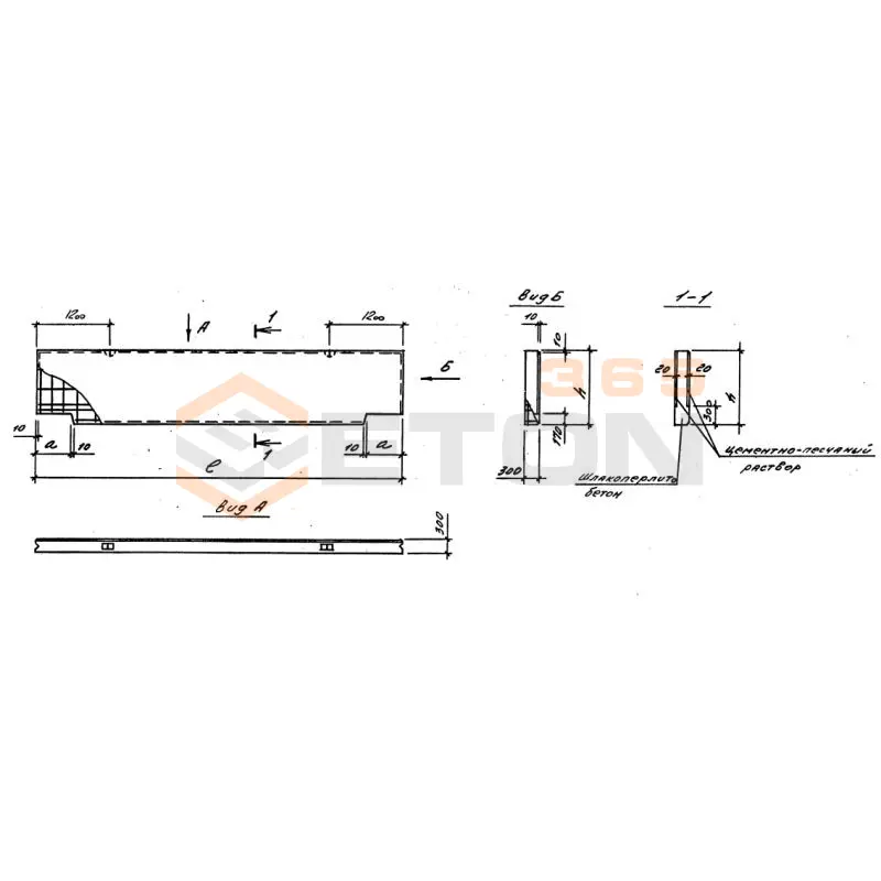
Панели стеновые цокольные Серия 1.030.1-1/88
  • Длина 5980 мм.
  • Ширина 250 мм.
  • Высота 1480 мм.
  • Вес 4480 кг.
  • Объем бетона 1,48 м3
  • Геометрический объем 2,2126 м3
Цена: 61731 руб.
Подробнее
ПСЦ 60-15-2,5-3-14,2
Панели стеновые цокольные Серия 1.030.1-1/88
  • Длина 5980 мм.
  • Ширина 250 мм.
  • Высота 1480 мм.
  • Вес 4480 кг.
  • Объем бетона 1,48 м3
  • Геометрический объем 2,2126 м3
Цена: 61731 руб.
Подробнее
ПСЦ 60-15-2,5-2-14,1
Панели стеновые цокольные Серия 1.030.1-1/88
  • Длина 5980 мм.
  • Ширина 250 мм.
  • Высота 1480 мм.
  • Вес 4480 кг.
  • Объем бетона 1,48 м3
  • Геометрический объем 2,2126 м3
Цена: 61731 руб.
Подробнее
ПСЦ 60-15-2,5-2-14,2
Панели стеновые цокольные Серия 1.030.1-1/88
  • Длина 5980 мм.
  • Ширина 250 мм.
  • Высота 1480 мм.
  • Вес 4480 кг.
  • Объем бетона 1,48 м3
  • Геометрический объем 2,2126 м3
Цена: 61731 руб.
Подробнее
ПСЦ 60-15-2,5-4
Панели стеновые цокольные Серия 1.030.1-1/88
  • Длина 5980 мм.
  • Ширина 250 мм.
  • Высота 1480 мм.
  • Вес 4480 кг.
  • Объем бетона 1,48 м3
  • Геометрический объем 2,2126 м3
Цена: 61731 руб.
Подробнее
ПСЦ 60-15-3 ш-4
Панели стеновые цокольные Серия 1.030.1-1/88
  • Длина 5980 мм.
  • Ширина 300 мм.
  • Высота 1480 мм.
  • Вес 5360 кг.
  • Объем бетона 1,84 м3
  • Геометрический объем 2,6551 м3
Цена: 76746 руб.
Подробнее
ПСЦ 60-15-3-1
Панели стеновые цокольные Серия 1.030.1-1/88
  • Длина 5980 мм.
  • Ширина 300 мм.
  • Высота 1480 мм.
  • Вес 5360 кг.
  • Объем бетона 1,84 м3
  • Геометрический объем 2,6551 м3
Цена: 76746 руб.
Подробнее
ПСЦ 60-15-3 ш-3
Панели стеновые цокольные Серия 1.030.1-1/88
  • Длина 5980 мм.
  • Ширина 300 мм.
  • Высота 1480 мм.
  • Вес 5360 кг.
  • Объем бетона 1,84 м3
  • Геометрический объем 2,6551 м3
Цена: 76746 руб.
Подробнее
ПСЦ 60-15-3 ш-1
Панели стеновые цокольные Серия 1.030.1-1/88
  • Длина 5980 мм.
  • Ширина 300 мм.
  • Высота 1480 мм.
  • Вес 5360 кг.
  • Объем бетона 1,84 м3
  • Геометрический объем 2,6551 м3
Цена: 76746 руб.
Подробнее
ПСЦ 60-15-3 ш-2
Панели стеновые цокольные Серия 1.030.1-1/88
  • Длина 5980 мм.
  • Ширина 300 мм.
  • Высота 1480 мм.
  • Вес 5360 кг.
  • Объем бетона 1,84 м3
  • Геометрический объем 2,6551 м3
Цена: 76746 руб.
Подробнее
ПСЦ 60-15-3-1-14,1
Панели стеновые цокольные Серия 1.030.1-1/88
  • Длина 5980 мм.
  • Ширина 300 мм.
  • Высота 1480 мм.
  • Вес 5360 кг.
  • Объем бетона 1,84 м3
  • Геометрический объем 2,6551 м3
Цена: 76746 руб.
Подробнее
ПСЦ 60-15-3-1-14,2
Панели стеновые цокольные Серия 1.030.1-1/88
  • Длина 5980 мм.
  • Ширина 300 мм.
  • Высота 1480 мм.
  • Вес 5360 кг.
  • Объем бетона 1,84 м3
  • Геометрический объем 2,6551 м3
Цена: 76746 руб.
Подробнее
ПСЦ 60-15-3-2
Панели стеновые цокольные Серия 1.030.1-1/88
  • Длина 5980 мм.
  • Ширина 300 мм.
  • Высота 1480 мм.
  • Вес 5360 кг.
  • Объем бетона 1,84 м3
  • Геометрический объем 2,6551 м3
Цена: 76746 руб.
Подробнее
ПСЦ 60-15-3-3-14,1
Панели стеновые цокольные Серия 1.030.1-1/88
  • Длина 5980 мм.
  • Ширина 300 мм.
  • Высота 1480 мм.
  • Вес 5360 кг.
  • Объем бетона 1,84 м3
  • Геометрический объем 2,6551 м3
Цена: 76746 руб.
Подробнее
ПСЦ 60-15-3-4
Панели стеновые цокольные Серия 1.030.1-1/88
  • Длина 5980 мм.
  • Ширина 300 мм.
  • Высота 1480 мм.
  • Вес 5360 кг.
  • Объем бетона 1,84 м3
  • Геометрический объем 2,6551 м3
Цена: 76746 руб.
Подробнее
ПСЦ 60-15-3-2-14,1
Панели стеновые цокольные Серия 1.030.1-1/88
  • Длина 5980 мм.
  • Ширина 300 мм.
  • Высота 1480 мм.
  • Вес 5360 кг.
  • Объем бетона 1,84 м3
  • Геометрический объем 2,6551 м3
Цена: 76746 руб.
Подробнее
ПСЦ 60-15-3-3
Панели стеновые цокольные Серия 1.030.1-1/88
  • Длина 5980 мм.
  • Ширина 300 мм.
  • Высота 1480 мм.
  • Вес 5360 кг.
  • Объем бетона 1,84 м3
  • Геометрический объем 2,6551 м3
Цена: 76746 руб.
Подробнее
ПСЦ 60-15-3-2-14,2
Панели стеновые цокольные Серия 1.030.1-1/88
  • Длина 5980 мм.
  • Ширина 300 мм.
  • Высота 1480 мм.
  • Вес 5360 кг.
  • Объем бетона 1,84 м3
  • Геометрический объем 2,6551 м3
Цена: 76746 руб.
Подробнее
ПСЦ 60-15-3-3-14,2
Панели стеновые цокольные Серия 1.030.1-1/88
  • Длина 5980 мм.
  • Ширина 300 мм.
  • Высота 1480 мм.
  • Вес 5360 кг.
  • Объем бетона 1,84 м3
  • Геометрический объем 2,6551 м3
Цена: 76746 руб.
Подробнее
ПСЦ 60-15-3,5-1
Панели стеновые цокольные Серия 1.030.1-1/88
  • Длина 5980 мм.
  • Ширина 350 мм.
  • Высота 1480 мм.
  • Вес 6250 кг.
  • Объем бетона 2,19 м3
  • Геометрический объем 3,0976 м3
Цена: 91345 руб.
Подробнее
ПСЦ 60-15-3,5-1-14,1
Панели стеновые цокольные Серия 1.030.1-1/88
  • Длина 5980 мм.
  • Ширина 350 мм.
  • Высота 1480 мм.
  • Вес 6250 кг.
  • Объем бетона 2,19 м3
  • Геометрический объем 3,0976 м3
Цена: 91345 руб.
Подробнее
ПСЦ 60-15-3,5-2-14,1
Панели стеновые цокольные Серия 1.030.1-1/88
  • Длина 5980 мм.
  • Ширина 350 мм.
  • Высота 1480 мм.
  • Вес 6250 кг.
  • Объем бетона 2,19 м3
  • Геометрический объем 3,0976 м3
Цена: 91345 руб.
Подробнее
ПСЦ 60-15-3,5-2
Панели стеновые цокольные Серия 1.030.1-1/88
  • Длина 5980 мм.
  • Ширина 350 мм.
  • Высота 1480 мм.
  • Вес 6250 кг.
  • Объем бетона 2,19 м3
  • Геометрический объем 3,0976 м3
Цена: 91345 руб.
Подробнее
ПСЦ 60-15-3,5-2-14,2
Панели стеновые цокольные Серия 1.030.1-1/88
  • Длина 5980 мм.
  • Ширина 350 мм.
  • Высота 1480 мм.
  • Вес 6250 кг.
  • Объем бетона 2,19 м3
  • Геометрический объем 3,0976 м3
Цена: 91345 руб.
Подробнее
ПСЦ 60-15-3,5-1-14,2
Панели стеновые цокольные Серия 1.030.1-1/88
  • Длина 5980 мм.
  • Ширина 350 мм.
  • Высота 1480 мм.
  • Вес 6250 кг.
  • Объем бетона 2,19 м3
  • Геометрический объем 3,0976 м3
Цена: 91345 руб.
Подробнее
ПСЦ 60-15-3,5-3
Панели стеновые цокольные Серия 1.030.1-1/88
  • Длина 5980 мм.
  • Ширина 350 мм.
  • Высота 1480 мм.
  • Вес 6250 кг.
  • Объем бетона 2,19 м3
  • Геометрический объем 3,0976 м3
Цена: 91345 руб.
Подробнее
ПСЦ 60-21-3,5 л
Панели стеновые цокольные Серия 1.030.1-1/88
  • Длина 5980 мм.
  • Ширина 350 мм.
  • Высота 2070 мм.
  • Вес 6520 кг.
  • Объем бетона 3,961 м3
  • Геометрический объем 4,3325 м3
Цена: 165213 руб.
Подробнее
ПСЦ 60-15-3,5-3-14,1
Панели стеновые цокольные Серия 1.030.1-1/88
  • Длина 5980 мм.
  • Ширина 350 мм.
  • Высота 1480 мм.
  • Вес 6250 кг.
  • Объем бетона 2,19 м3
  • Геометрический объем 3,0976 м3
Цена: 91345 руб.
Подробнее
ПСЦ 62-12-2,5-4
Панели стеновые цокольные Серия 1.030.1-1/88
  • Длина 6200 мм.
  • Ширина 250 мм.
  • Высота 1180 мм.
  • Вес 3620 кг.
  • Объем бетона 1,15 м3
  • Геометрический объем 1,829 м3
Цена: 47967 руб.
Подробнее
ПСЦ 60-15-3,5-3-14,2
Панели стеновые цокольные Серия 1.030.1-1/88
  • Длина 5980 мм.
  • Ширина 350 мм.
  • Высота 1480 мм.
  • Вес 6250 кг.
  • Объем бетона 2,19 м3
  • Геометрический объем 3,0976 м3
Цена: 91345 руб.
Подробнее
ПСЦ 62-12-2-4
Панели стеновые цокольные Серия 1.030.1-1/88
  • Длина 6200 мм.
  • Ширина 200 мм.
  • Высота 1180 мм.
  • Вес 2850 кг.
  • Объем бетона 0,87 м3
  • Геометрический объем 1,4632 м3
Цена: 36288 руб.
Подробнее
ПСЦ 60-15-3,5-4
Панели стеновые цокольные Серия 1.030.1-1/88
  • Длина 5980 мм.
  • Ширина 350 мм.
  • Высота 1480 мм.
  • Вес 6250 кг.
  • Объем бетона 2,19 м3
  • Геометрический объем 3,0976 м3
Цена: 91345 руб.
Подробнее
ПСЦ 60-21-2,5 л
Панели стеновые цокольные Серия 1.030.1-1/88
  • Длина 5980 мм.
  • Ширина 250 мм.
  • Высота 2070 мм.
  • Вес 4720 кг.
  • Объем бетона 2,723 м3
  • Геометрический объем 3,0947 м3
Цена: 113576 руб.
Подробнее
ПСЦ 62-12-3 ш-4
Панели стеновые цокольные Серия 1.030.1-1/88
  • Длина 6200 мм.
  • Ширина 300 мм.
  • Высота 1180 мм.
  • Вес 4330 кг.
  • Объем бетона 1,42 м3
  • Геометрический объем 2,1948 м3
Цена: 59228 руб.
Подробнее
ПСЦ 62-12-3-4
Панели стеновые цокольные Серия 1.030.1-1/88
  • Длина 6200 мм.
  • Ширина 300 мм.
  • Высота 1180 мм.
  • Вес 4330 кг.
  • Объем бетона 1,42 м3
  • Геометрический объем 2,1948 м3
Цена: 59228 руб.
Подробнее
ПСЦ 62-15-2 ш-4
Панели стеновые цокольные Серия 1.030.1-1/88
  • Длина 6200 мм.
  • Ширина 200 мм.
  • Высота 1480 мм.
  • Вес 3570 кг.
  • Объем бетона 1,17 м3
  • Геометрический объем 1,8352 м3
Цена: 48801 руб.
Подробнее
ПСЦ 62-15-3-4
Панели стеновые цокольные Серия 1.030.1-1/88
  • Длина 6200 мм.
  • Ширина 300 мм.
  • Высота 1480 мм.
  • Вес 5380 кг.
  • Объем бетона 1,9 м3
  • Геометрический объем 2,7528 м3
Цена: 79249 руб.
Подробнее
ПСЦ 62-12-3,5-4
Панели стеновые цокольные Серия 1.030.1-1/88
  • Длина 6200 мм.
  • Ширина 350 мм.
  • Высота 1180 мм.
  • Вес 5050 кг.
  • Объем бетона 1,69 м3
  • Геометрический объем 2,5606 м3
Цена: 70490 руб.
Подробнее
ПСЦ 62-15-2,5-4
Панели стеновые цокольные Серия 1.030.1-1/88
  • Длина 6200 мм.
  • Ширина 250 мм.
  • Высота 1480 мм.
  • Вес 4500 кг.
  • Объем бетона 1,54 м3
  • Геометрический объем 2,294 м3
Цена: 64233 руб.
Подробнее
ПСЦ 62-15-2-4
Панели стеновые цокольные Серия 1.030.1-1/88
  • Длина 6200 мм.
  • Ширина 200 мм.
  • Высота 1480 мм.
  • Вес 3570 кг.
  • Объем бетона 1,17 м3
  • Геометрический объем 1,8352 м3
Цена: 48801 руб.
Подробнее
ПСЦ 62-15-3,5-4
Панели стеновые цокольные Серия 1.030.1-1/88
  • Длина 6200 мм.
  • Ширина 350 мм.
  • Высота 1480 мм.
  • Вес 6270 кг.
  • Объем бетона 2,27 м3
  • Геометрический объем 3,2116 м3
Цена: 94682 руб.
Подробнее
ПСЦ 62,5-12-2-5
Панели стеновые цокольные Серия 1.030.1-1/88
  • Длина 6230 мм.
  • Ширина 200 мм.
  • Высота 1180 мм.
  • Вес 2830 кг.
  • Объем бетона 0,88 м3
  • Геометрический объем 1,4703 м3
Цена: 36705 руб.
Подробнее
ПСЦ 62,5-12-2-6
Панели стеновые цокольные Серия 1.030.1-1/88
  • Длина 6230 мм.
  • Ширина 200 мм.
  • Высота 1180 мм.
  • Вес 2830 кг.
  • Объем бетона 0,88 м3
  • Геометрический объем 1,4703 м3
Цена: 36705 руб.
Подробнее
ПСЦ 62,5-15-2-5
Панели стеновые цокольные Серия 1.030.1-1/88
  • Длина 6230 мм.
  • Ширина 200 мм.
  • Высота 1480 мм.
  • Вес 3530 кг.
  • Объем бетона 1,18 м3
  • Геометрический объем 1,8441 м3
Цена: 49218 руб.
Подробнее
ПСЦ 62,5-15-2-6
Панели стеновые цокольные Серия 1.030.1-1/88
  • Длина 6230 мм.
  • Ширина 200 мм.
  • Высота 1480 мм.
  • Вес 3530 кг.
  • Объем бетона 1,18 м3
  • Геометрический объем 1,8441 м3
Цена: 49218 руб.
Подробнее
ПСЦ 63-12-2,5-5
Панели стеновые цокольные Серия 1.030.1-1/88
  • Длина 6280 мм.
  • Ширина 250 мм.
  • Высота 1180 мм.
  • Вес 3550 кг.
  • Объем бетона 1,16 м3
  • Геометрический объем 1,8526 м3
Цена: 48384 руб.
Подробнее
ПСЦ 63-12-2,5-6
Панели стеновые цокольные Серия 1.030.1-1/88
  • Длина 6280 мм.
  • Ширина 250 мм.
  • Высота 1180 мм.
  • Вес 3550 кг.
  • Объем бетона 1,16 м3
  • Геометрический объем 1,8526 м3
Цена: 48384 руб.
Подробнее
ПСЦ 63-15-2,5-5
Панели стеновые цокольные Серия 1.030.1-1/88
  • Длина 6280 мм.
  • Ширина 250 мм.
  • Высота 1480 мм.
  • Вес 4430 кг.
  • Объем бетона 1,56 м3
  • Геометрический объем 2,3236 м3
Цена: 65068 руб.
Подробнее
ПСЦ 63,5-12-3 ш-6
Панели стеновые цокольные Серия 1.030.1-1/88
  • Длина 6330 мм.
  • Ширина 300 мм.
  • Высота 1180 мм.
  • Вес 4290 кг.
  • Объем бетона 1,45 м3
  • Геометрический объем 2,2408 м3
Цена: 60480 руб.
Подробнее
ПСЦ 63-15-2,5-6
Панели стеновые цокольные Серия 1.030.1-1/88
  • Длина 6280 мм.
  • Ширина 250 мм.
  • Высота 1480 мм.
  • Вес 4430 кг.
  • Объем бетона 1,56 м3
  • Геометрический объем 2,3236 м3
Цена: 65068 руб.
Подробнее
ПСЦ 63,5-15-3 ш-5
Панели стеновые цокольные Серия 1.030.1-1/88
  • Длина 6330 мм.
  • Ширина 300 мм.
  • Высота 1480 мм.
  • Вес 5350 кг.
  • Объем бетона 1,94 м3
  • Геометрический объем 2,8105 м3
Цена: 80917 руб.
Подробнее
ПСЦ 63,5-12-3 ш-5
Панели стеновые цокольные Серия 1.030.1-1/88
  • Длина 6330 мм.
  • Ширина 300 мм.
  • Высота 1180 мм.
  • Вес 4290 кг.
  • Объем бетона 1,45 м3
  • Геометрический объем 2,2408 м3
Цена: 60480 руб.
Подробнее
ПСЦ 63,5-12-3-5
Панели стеновые цокольные Серия 1.030.1-1/88
  • Длина 6330 мм.
  • Ширина 300 мм.
  • Высота 1180 мм.
  • Вес 4290 кг.
  • Объем бетона 1,45 м3
  • Геометрический объем 2,2408 м3
Цена: 60480 руб.
Подробнее
ПСЦ 63,5-12-3-6
Панели стеновые цокольные Серия 1.030.1-1/88
  • Длина 6330 мм.
  • Ширина 300 мм.
  • Высота 1180 мм.
  • Вес 4290 кг.
  • Объем бетона 1,45 м3
  • Геометрический объем 2,2408 м3
Цена: 60480 руб.
Подробнее
ПСЦ 63,5-15-3-5
Панели стеновые цокольные Серия 1.030.1-1/88
  • Длина 6330 мм.
  • Ширина 300 мм.
  • Высота 1480 мм.
  • Вес 5350 кг.
  • Объем бетона 1,94 м3
  • Геометрический объем 2,8105 м3
Цена: 80917 руб.
Подробнее
ПСЦ 64-12-3,5-6
Панели стеновые цокольные Серия 1.030.1-1/88
  • Длина 6380 мм.
  • Ширина 350 мм.
  • Высота 1180 мм.
  • Вес 5040 кг.
  • Объем бетона 1,74 м3
  • Геометрический объем 2,6349 м3
Цена: 72575 руб.
Подробнее
ПСЦ 64-15-3,5-6
Панели стеновые цокольные Серия 1.030.1-1/88
  • Длина 6380 мм.
  • Ширина 350 мм.
  • Высота 1480 мм.
  • Вес 6290 кг.
  • Объем бетона 2,33 м3
  • Геометрический объем 3,3048 м3
Цена: 97184 руб.
Подробнее
ПСЦ 63,5-15-3-6
Панели стеновые цокольные Серия 1.030.1-1/88
  • Длина 6330 мм.
  • Ширина 300 мм.
  • Высота 1480 мм.
  • Вес 5350 кг.
  • Объем бетона 1,94 м3
  • Геометрический объем 2,8105 м3
Цена: 80917 руб.
Подробнее
ПСЦ 63,5-15-3 ш-6
Панели стеновые цокольные Серия 1.030.1-1/88
  • Длина 6330 мм.
  • Ширина 300 мм.
  • Высота 1480 мм.
  • Вес 5350 кг.
  • Объем бетона 1,94 м3
  • Геометрический объем 2,8105 м3
Цена: 80917 руб.
Подробнее
ПСЦ 64-12-3,5-5
Панели стеновые цокольные Серия 1.030.1-1/88
  • Длина 6380 мм.
  • Ширина 350 мм.
  • Высота 1180 мм.
  • Вес 5040 кг.
  • Объем бетона 1,74 м3
  • Геометрический объем 2,6349 м3
Цена: 72575 руб.
Подробнее

Уведомление о файлах cookie

Мы используем файлы cookie для улучшения вашего опыта просмотра и анализа трафика. Нажимая "Принять все", вы соглашаетесь с нашей политикой конфиденциальности и политикой обработки файлов cookie.

MAX Дзен Телеграм Вконтакте vk