mobile_sound +7 (930) 655-55-90

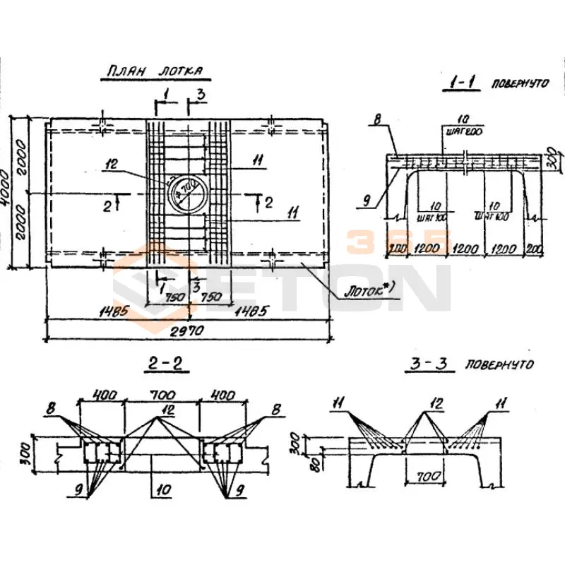
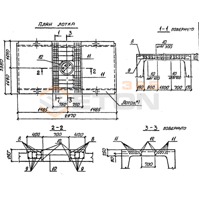
Мотки теплотрасс Мо Серия 3.006.1-2/82 с отверстием

Поделиться:
Фильтр по характеристикам
Длина (мм.)
keyboard_arrow_down
мм.
мм.
Ширина (мм.)
keyboard_arrow_down
мм.
мм.
Высота (мм.)
keyboard_arrow_down
мм.
мм.
Вес (кг.)
keyboard_arrow_down
кг.
кг.
Поделиться:

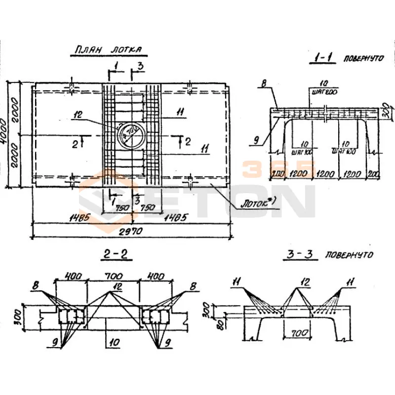
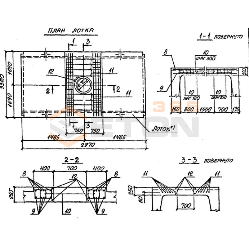
Завод "Бетон365" производит лотки теплотрасс Мо Серия 3.006.1-2/82 с отверстием — специализированные железобетонные конструкции для прокладки и защиты подземных коммуникаций. Эти изделия, соответствующие строгим требованиям ГОСТ, обеспечивают надежную изоляцию тепловых сетей и систем водоотвода, равномерно распределяя нагрузку от грунта и транспорта. Благодаря продуманной конструкции с технологическими отверстиями монтаж значительно ускоряется, а сама теплотрасса получает дополнительную жесткость и долговечность даже в сложных грунтовых условиях Москвы.

Реализуем лотки теплотрасс Мо Серия 3.006.1-2/82 с отверстием напрямую от производителя — это гарантирует выгодную цену и контроль качества на всех этапах. Доставка по Мск и Московской области выполняется оперативно, а профессиональные консультации по выбору и применению продукции помогут оптимизировать ваш проект. Чтобы купить надежные железобетонные лотки для тепловых сетей, обращайтесь к нам — предложим лучшие условия!

Ло 14-8 (3.006.1-2/82)
Мотки теплотрасс Мо Серия 3.006.1-2/82 с отверстием
  • Длина 5970 мм.
  • Ширина 1840 мм.
  • Высота 630 мм.
  • Вес 4900 кг.
  • Объем бетона 1,96 м3
  • Геометрический объем 6,9204 м3
Цена: 47530 руб.
Подробнее
Ло 15-8 (3.006.1-2/82)
Мотки теплотрасс Мо Серия 3.006.1-2/82 с отверстием
  • Длина 5970 мм.
  • Ширина 1840 мм.
  • Высота 780 мм.
  • Вес 5200 кг.
  • Объем бетона 2,08 м3
  • Геометрический объем 8,5681 м3
Цена: 50440 руб.
Подробнее
Ло 16-8 (3.006.1-2/82)
Мотки теплотрасс Мо Серия 3.006.1-2/82 с отверстием
  • Длина 5970 мм.
  • Ширина 1840 мм.
  • Высота 1080 мм.
  • Вес 6500 кг.
  • Объем бетона 2,62 м3
  • Геометрический объем 11,8636 м3
Цена: 63535 руб.
Подробнее
Ло 18-8 (3.006.1-2/82)
Мотки теплотрасс Мо Серия 3.006.1-2/82 с отверстием
  • Длина 5970 мм.
  • Ширина 1840 мм.
  • Высота 1680 мм.
  • Вес 9550 кг.
  • Объем бетона 3,82 м3
  • Геометрический объем 18,4545 м3
Цена: 92635 руб.
Подробнее
Ло 17-8 (3.006.1-2/82)
Мотки теплотрасс Мо Серия 3.006.1-2/82 с отверстием
  • Длина 5970 мм.
  • Ширина 1840 мм.
  • Высота 1380 мм.
  • Вес 7750 кг.
  • Объем бетона 3,1 м3
  • Геометрический объем 15,159 м3
Цена: 75175 руб.
Подробнее
Ло 20-11 (3.006.1-2/82)
Мотки теплотрасс Мо Серия 3.006.1-2/82 с отверстием
  • Длина 5970 мм.
  • Ширина 2160 мм.
  • Высота 1100 мм.
  • Вес 7770 кг.
  • Объем бетона 3,11 м3
  • Геометрический объем 14,1847 м3
Цена: 75418 руб.
Подробнее
Ло 21-8 (3.006.1-2/82)
Мотки теплотрасс Мо Серия 3.006.1-2/82 с отверстием
  • Длина 5970 мм.
  • Ширина 2160 мм.
  • Высота 1400 мм.
  • Вес 9120 кг.
  • Объем бетона 3,65 м3
  • Геометрический объем 18,0533 м3
Цена: 88513 руб.
Подробнее
Ло 19-8 (3.006.1-2/82)
Мотки теплотрасс Мо Серия 3.006.1-2/82 с отверстием
  • Длина 5970 мм.
  • Ширина 2160 мм.
  • Высота 800 мм.
  • Вес 6570 кг.
  • Объем бетона 2,63 м3
  • Геометрический объем 10,3162 м3
Цена: 63778 руб.
Подробнее
Ло 22-8 (3.006.1-2/82)
Мотки теплотрасс Мо Серия 3.006.1-2/82 с отверстием
  • Длина 2970 мм.
  • Ширина 2160 мм.
  • Высота 1700 мм.
  • Вес 5450 кг.
  • Объем бетона 2,18 м3
  • Геометрический объем 10,9058 м3
Цена: 52865 руб.
Подробнее
Ло 23-8 (3.006.1-2/82)
Мотки теплотрасс Мо Серия 3.006.1-2/82 с отверстием
  • Длина 5970 мм.
  • Ширина 2460 мм.
  • Высота 800 мм.
  • Вес 7450 кг.
  • Объем бетона 2,98 м3
  • Геометрический объем 11,749 м3
Цена: 72265 руб.
Подробнее
Ло 24-8 (3.006.1-2/82)
Мотки теплотрасс Мо Серия 3.006.1-2/82 с отверстием
  • Длина 5970 мм.
  • Ширина 2460 мм.
  • Высота 1100 мм.
  • Вес 8450 кг.
  • Объем бетона 3,38 м3
  • Геометрический объем 16,1548 м3
Цена: 81965 руб.
Подробнее
Ло 25-8 (3.006.1-2/82)
Мотки теплотрасс Мо Серия 3.006.1-2/82 с отверстием
  • Длина 2970 мм.
  • Ширина 2460 мм.
  • Высота 1400 мм.
  • Вес 5070 кг.
  • Объем бетона 2,03 м3
  • Геометрический объем 10,2287 м3
Цена: 49228 руб.
Подробнее
Ло 27-8 (3.006.1-2/82)
Мотки теплотрасс Мо Серия 3.006.1-2/82 с отверстием
  • Длина 2970 мм.
  • Ширина 2780 мм.
  • Высота 820 мм.
  • Вес 4850 кг.
  • Объем бетона 1,94 м3
  • Геометрический объем 6,7704 м3
Цена: 47045 руб.
Подробнее
Ло 26-8 (3.006.1-2/82)
Мотки теплотрасс Мо Серия 3.006.1-2/82 с отверстием
  • Длина 2970 мм.
  • Ширина 2460 мм.
  • Высота 1700 мм.
  • Вес 5840 кг.
  • Объем бетона 2,33 м3
  • Геометрический объем 12,4205 м3
Цена: 56503 руб.
Подробнее
Ло 28-8 (3.006.1-2/82)
Мотки теплотрасс Мо Серия 3.006.1-2/82 с отверстием
  • Длина 2970 мм.
  • Ширина 2780 мм.
  • Высота 1120 мм.
  • Вес 5370 кг.
  • Объем бетона 2,15 м3
  • Геометрический объем 9,2474 м3
Цена: 52138 руб.
Подробнее
Ло 29-8 (3.006.1-2/82)
Мотки теплотрасс Мо Серия 3.006.1-2/82 с отверстием
  • Длина 2970 мм.
  • Ширина 2780 мм.
  • Высота 1420 мм.
  • Вес 6120 кг.
  • Объем бетона 2,45 м3
  • Геометрический объем 11,7244 м3
Цена: 59413 руб.
Подробнее
Ло 30-8 (3.006.1-2/82)
Мотки теплотрасс Мо Серия 3.006.1-2/82 с отверстием
  • Длина 2970 мм.
  • Ширина 2780 мм.
  • Высота 1720 мм.
  • Вес 6870 кг.
  • Объем бетона 2,75 м3
  • Геометрический объем 14,2014 м3
Цена: 66688 руб.
Подробнее
Ло 32-8 (3.006.1-2/82)
Мотки теплотрасс Мо Серия 3.006.1-2/82 с отверстием
  • Длина 2970 мм.
  • Ширина 3380 мм.
  • Высота 1150 мм.
  • Вес 680 кг.
  • Объем бетона 2,72 м3
  • Геометрический объем 11,5444 м3
Цена: 65960 руб.
Подробнее
Ло 31-8 (3.006.1-2/82)
Мотки теплотрасс Мо Серия 3.006.1-2/82 с отверстием
  • Длина 2970 мм.
  • Ширина 3380 мм.
  • Высота 850 мм.
  • Вес 6280 кг.
  • Объем бетона 2,51 м3
  • Геометрический объем 8,5328 м3
Цена: 60868 руб.
Подробнее
Ло 33-8 (3.006.1-2/82)
Мотки теплотрасс Мо Серия 3.006.1-2/82 с отверстием
  • Длина 2970 мм.
  • Ширина 3380 мм.
  • Высота 1450 мм.
  • Вес 7550 кг.
  • Объем бетона 3,02 м3
  • Геометрический объем 14,556 м3
Цена: 73235 руб.
Подробнее
Ло 34-8 (3.006.1-2/82)
Мотки теплотрасс Мо Серия 3.006.1-2/82 с отверстием
  • Длина 2970 мм.
  • Ширина 3380 мм.
  • Высота 1750 мм.
  • Вес 8370 кг.
  • Объем бетона 3,35 м3
  • Геометрический объем 17,5676 м3
Цена: 81238 руб.
Подробнее
Ло 36-8 (3.006.1-2/82)
Мотки теплотрасс Мо Серия 3.006.1-2/82 с отверстием
  • Длина 2970 мм.
  • Ширина 4000 мм.
  • Высота 1200 мм.
  • Вес 8930 кг.
  • Объем бетона 3,37 м3
  • Геометрический объем 14,256 м3
Цена: 81723 руб.
Подробнее
Ло 35-8 (3.006.1-2/82)
Мотки теплотрасс Мо Серия 3.006.1-2/82 с отверстием
  • Длина 2970 мм.
  • Ширина 4000 мм.
  • Высота 900 мм.
  • Вес 8400 кг.
  • Объем бетона 3,36 м3
  • Геометрический объем 10,692 м3
Цена: 81480 руб.
Подробнее
Ло 37-8 (3.006.1-2/82)
Мотки теплотрасс Мо Серия 3.006.1-2/82 с отверстием
  • Длина 2970 мм.
  • Ширина 4000 мм.
  • Высота 1500 мм.
  • Вес 9750 кг.
  • Объем бетона 3,9 м3
  • Геометрический объем 17,82 м3
Цена: 94575 руб.
Подробнее
Ло 38-8 (3.006.1-2/82)
Мотки теплотрасс Мо Серия 3.006.1-2/82 с отверстием
  • Длина 2970 мм.
  • Ширина 4000 мм.
  • Высота 1800 мм.
  • Вес 10570 кг.
  • Объем бетона 4,23 м3
  • Геометрический объем 21,384 м3
Цена: 102578 руб.
Подробнее

Как правильно выбрать - Мотки теплотрасс Мо Серия 3.006.1-2/82 с отверстием

Мотки теплотрасс Мо Серия 3.006.1-2/82 с отверстием предназначены для прокладки подземных тепловых сетей. Они служат защитной конструкцией, предохраняющей трубопроводы от давления грунта и обеспечивающей доступ для обслуживания. Отличительная черта данной серии – наличие технологических отверстий, которые используются для пропуска труб, устройства дренажа или вентиляции. Долговечность и бесперебойная работа всей теплотрассы определяются соответствием выбранных лотков проектным нагрузкам и агрессивности грунтовых вод.

Критерии выбора

  • Марка бетона и защитные свойства: Изделия изготавливаются из тяжелого бетона марки не ниже М300. Ключевые показатели – водонепроницаемость W6 и морозостойкость F200, что критично для работы в водонасыщенных грунтах.
  • Класс арматуры: Каркас выполнен из стальной арматуры класса А-III, что обеспечивает необходимую прочность на изгиб и восприятие нагрузок от грунта и транспорта.
  • Геометрия и конфигурация: Строгое соответствие типоразмерам по серии 3.006.1-2/82. Наличие монтажных петель и точное расположение отверстий – обязательные условия для стыковки с соседними элементами.
  • Расчетные нагрузки: Убедитесь, что лотки рассчитаны на постоянную нагрузку от грунта засыпки и временную – от транспорта в соответствии с категорией дороги или территории.
  • Нормативная база: Все изделия должны соответствовать рабочим чертежам серии 3.006.1-2/82 и иметь паспорт качества с указанием завода-изготовителя.

Рекомендации по подбору и монтажу

При закупке лотков теплотрасс Мо Серия 3.006.1-2/82 с отверстиями требуйте полный комплект технической документации, включая сертификаты на бетон и арматуру. Особое внимание уделите визуальному контролю: на поверхностях не должно быть трещин, а отверстия должны иметь четкую геометрию без сколов. При проектировании трассы заранее определите ориентацию лотков с отверстиями для корректного сопряжения с камерами и ответвлениями.

Монтаж выполняйте на подготовленное и уплотненное песчаное основание. Обязательно проверяйте горизонтальность укладки и плотность стыков между лотками. Для компенсации температурных деформаций и обеспечения гидроизоляции швы должны быть герметизированы рекомендованными материалами. Правильная установка лотков данной серии предотвратит их просадку и защитит тепловую изоляцию трубопроводов от грунтовой влаги.

Ответы экспертов на ваши вопросы

Ответ: Основное назначение данных лотков — это прокладка и защита трубопроводов тепловых сетей (теплотрасс) при бесканальной подземной прокладке. Они применяются в системах централизованного теплоснабжения для транспортировки теплоносителя (горячей воды или пара) от источника (ТЭЦ, котельной) к потребителям (жилые, общественные и промышленные здания). Отверстие в лотке служит для пропуска самой теплопроводной трубы, обеспечивая ее фиксацию и защиту от механических повреждений и давления грунта.

Ответ: Лотки данной серии изготавливаются из тяжелого бетона, армированного стальной арматурой (железобетон). Ключевые характеристики соответствуют строгим строительным нормам:

  • Класс (Марка) прочности бетона: обычно не ниже В25 (М350).
  • Морозостойкость: F150-F200, что позволяет уверенно эксплуатировать их в большинстве климатических зон России.
  • Водонепроницаемость: W6-W8, обеспечивая защиту от грунтовых вод.
  • Долговечность: Расчетный срок службы таких железобетонных конструкций составляет 50 и более лет, при условии соблюдения технологии монтажа и эксплуатации.

Ответ: Стандартные габаритные размеры лотка по серии 3.006.1-2/82 составляют: длина 6000 мм, ширина 1180 мм, высота 740 мм. Диаметр отверстия стандартизирован под типовые трубы теплосетей. Вес одного лотка составляет примерно 2,5 - 3 тонны, что требует для монтажа использования грузоподъемной техники (автокрана). Отверстие является конструктивным элементом, вокруг которого происходит центрирование и укладка трубы. При монтаже труба пропускается через это отверстие, а затем пространство вокруг трубы в лотке и стыки между лотками герметизируются для предотвращения попадания влаги.

Ответ: Прокладка трубы в железобетонном лотке сама по себе является защитой от механических повреждений и равномерного давления грунта. Однако для защиты от электрохимической коррозии применяется комплекс мер:

  1. Изоляция трубы: Стальная труба перед укладкой покрывается заводской теплоизоляцией (например, из пенополиуретана) в гидрозащитной оболочке (полиэтиленовой или оцинкованной стальной).
  2. Система оперативного дистанционного контроля (СОДК): В современной изоляции монтируется система проводников, позволяющая дистанционно обнаружить повреждение изоляционного слоя и место увлажнения.
  3. Катодная защита: На участках с высокой агрессивностью грунтов может дополнительно применяться катодная защита, которая подавляет коррозионные процессы с помощью внешнего тока.

Ответ: Использование лотков данной серии имеет несколько ключевых преимуществ:

  • Надежность и долговечность: Железобетонная конструкция надежно защищает трубу от внешних нагрузок, продлевая срок службы теплотрассы.
  • Снижение теплопотерь: Правильно смонтированная конструкция с изолированной трубой обеспечивает высокую энергоэффективность.
  • Ремонтопригодность: При возникновении повреждения на участке, есть возможность вскрыть грунт над конкретным лотком и произвести ремонт, не разрушая всю трассу.
  • Стандартизация: Серийное производство по ГОСТ и сериям обеспечивает predictable качество, простоту проектирования и монтажа.
  • Экономическая эффективность: По сравнению с прокладкой в проходных коллекторах (тоннелях) этот способ значительно дешевле, а по сравнению с бесканальной прокладкой напрямую в грунте — более надежен и ремонтопригоден, особенно в сложных грунтовых условиях.
Ранее смотрели
Кормушки Серия 3.818.9-2 КТ 118-49-25
КТ 118-49-25
Кормушки Серия 3.818.9-2
Стойки железобетонные серия 3.407.1-136; серия 3.407.1-143 СВ 110-3,5
СВ 110-3,5
Стойки железобетонные серия 3.407.1-136; серия 3.407.1-143
Лежни Серия 3.407.1-157 ЛЖ 8
ЛЖ 8
Лежни Серия 3.407.1-157
Утяжелители железобетонные болотные клиновидные ВСН 007-88 1УБКМ 529-9
1УБКМ 529-9
Утяжелители железобетонные болотные клиновидные ВСН 007-88
Камни для кладки стен ГОСТ 6133-99 КЛ-ПР-ПС 39,2
КЛ-ПР-ПС 39,2
Камни для кладки стен ГОСТ 6133-99
Стойки СК ГОСТ 22687-85 ( 3.407.1-152 ) СК 22,3-1,1
СК 22,3-1,1
Стойки СК ГОСТ 22687-85 ( 3.407.1-152 )
Лежни Серия 3.407.1-157 ЛЖ 45
ЛЖ 45
Лежни Серия 3.407.1-157
Звенья железобетонные круглых водопропускных труб для автомобильных дорог Серия 3.501-59 и 3.501.1-144, шифр 1484 ЗК 5-200
ЗК 5-200
Звенья железобетонные круглых водопропускных труб для автомобильных дорог Серия 3.501-59 и 3.501.1-144, шифр 1484

Уведомление о файлах cookie

Мы используем файлы cookie для улучшения вашего опыта просмотра и анализа трафика. Нажимая "Принять все", вы соглашаетесь с нашей политикой конфиденциальности и политикой обработки файлов cookie.

Дзен Телеграм Вконтакте vk