mobile_sound +7 (930) 655-55-90

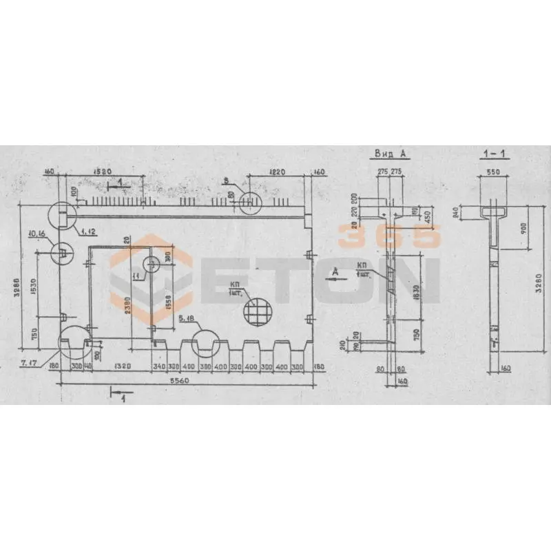
Диафрагмы жесткости Серия 1.020.1-2с/89

Поделиться:
Фильтр по характеристикам
Длина (мм.)
keyboard_arrow_down
мм.
мм.
Ширина (мм.)
keyboard_arrow_down
мм.
мм.
Высота (мм.)
keyboard_arrow_down
мм.
мм.
Вес (кг.)
keyboard_arrow_down
кг.
кг.
Объем бетона (м3)
keyboard_arrow_down
м3
м3
Поделиться:

Диафрагмы жесткости серии 1.020.1-2с/89 от завода-производителя "Бетон365" — это ключевые элементы, обеспечивающие пространственную устойчивость зданий при воздействии ветровых и сейсмических нагрузок. Изготовленные в строгом соответствии с ГОСТ, эти железобетонные конструкции отличаются повышенной прочностью и долговечностью, эффективно распределяя нагрузки между несущими стенами и предотвращая деформации сооружений. Применение готовых диафрагм жесткости позволяет оптимизировать сроки строительства и гарантировать надежность объектов промышленного и гражданского назначения.

Компания "Бетон365" реализует диафрагмы жесткости серии 1.020.1-2с/89 по конкурентной цене от производителя в Москве и Московской области. Мы обеспечиваем полный цикл — от консультации по выбору марки бетона до оперативной доставки на объект. Гарантируем соответствие продукции заявленным характеристикам и готовы организовать отгрузку в кратчайшие сроки. Для расчета стоимости и оформления заказа обратитесь к нашим специалистам!

1Д 22-36-2 с
Диафрагмы жесткости Серия 1.020.1-2с/89
  • Длина 2170 мм.
  • Ширина 480 мм.
  • Высота 3580 мм.
  • Вес 3200 кг.
  • Объем бетона 1,3 м3
  • Геометрический объем 3,7289 м3
Цена: 27742 руб.
Подробнее
1Д 22-42-2 с
Диафрагмы жесткости Серия 1.020.1-2с/89
  • Длина 2170 мм.
  • Ширина 480 мм.
  • Высота 4180 мм.
  • Вес 3800 кг.
  • Объем бетона 1,5 м3
  • Геометрический объем 4,3539 м3
Цена: 32010 руб.
Подробнее
1Д 34-17-2 с
Диафрагмы жесткости Серия 1.020.1-2с/89
  • Длина 3370 мм.
  • Ширина 480 мм.
  • Высота 1750 мм.
  • Вес 2700 кг.
  • Объем бетона 1,1 м3
  • Геометрический объем 2,8308 м3
Цена: 23474 руб.
Подробнее
1Д 34-36-2 с
Диафрагмы жесткости Серия 1.020.1-2с/89
  • Длина 3370 мм.
  • Ширина 480 мм.
  • Высота 3580 мм.
  • Вес 5500 кг.
  • Объем бетона 2,2 м3
  • Геометрический объем 5,791 м3
Цена: 46948 руб.
Подробнее
1Д 34-33-2 с
Диафрагмы жесткости Серия 1.020.1-2с/89
  • Длина 3370 мм.
  • Ширина 480 мм.
  • Высота 3280 мм.
  • Вес 4800 кг.
  • Объем бетона 1,9 м3
  • Геометрический объем 5,3057 м3
Цена: 40546 руб.
Подробнее
1Д 34-42-2 с
Диафрагмы жесткости Серия 1.020.1-2с/89
  • Длина 3370 мм.
  • Ширина 480 мм.
  • Высота 4180 мм.
  • Вес 6300 кг.
  • Объем бетона 2,5 м3
  • Геометрический объем 6,7616 м3
Цена: 53350 руб.
Подробнее
1Д 56-33-2 с
Диафрагмы жесткости Серия 1.020.1-2с/89
  • Длина 5560 мм.
  • Ширина 480 мм.
  • Высота 3280 мм.
  • Вес 8000 кг.
  • Объем бетона 3,2 м3
  • Геометрический объем 8,7537 м3
Цена: 68288 руб.
Подробнее
1Д 56-17-2 с
Диафрагмы жесткости Серия 1.020.1-2с/89
  • Длина 5560 мм.
  • Ширина 480 мм.
  • Высота 1750 мм.
  • Вес 4400 кг.
  • Объем бетона 1,8 м3
  • Геометрический объем 4,6704 м3
Цена: 38412 руб.
Подробнее
2Д 22-36-2 с
Диафрагмы жесткости Серия 1.020.1-2с/89
  • Длина 2170 мм.
  • Ширина 550 мм.
  • Высота 3580 мм.
  • Вес 3400 кг.
  • Объем бетона 1,4 м3
  • Геометрический объем 4,2727 м3
Цена: 29876 руб.
Подробнее
2Д 34-33-2 с
Диафрагмы жесткости Серия 1.020.1-2с/89
  • Длина 3370 мм.
  • Ширина 550 мм.
  • Высота 3280 мм.
  • Вес 4900 кг.
  • Объем бетона 2 м3
  • Геометрический объем 6,0795 м3
Цена: 42680 руб.
Подробнее
2Д 22-42-2 с
Диафрагмы жесткости Серия 1.020.1-2с/89
  • Длина 2170 мм.
  • Ширина 550 мм.
  • Высота 4180 мм.
  • Вес 3900 кг.
  • Объем бетона 1,6 м3
  • Геометрический объем 4,9888 м3
Цена: 34144 руб.
Подробнее
2Д 22-36-2 с20
Диафрагмы жесткости Серия 1.020.1-2с/89
  • Длина 2170 мм.
  • Ширина 160 мм.
  • Высота 3580 мм.
  • Вес 3000 кг.
  • Объем бетона 1,2 м3
  • Геометрический объем 1,243 м3
Цена: 25608 руб.
Подробнее
2Д 34-17-2 с
Диафрагмы жесткости Серия 1.020.1-2с/89
  • Длина 3370 мм.
  • Ширина 550 мм.
  • Высота 1750 мм.
  • Вес 2800 кг.
  • Объем бетона 1,1 м3
  • Геометрический объем 3,2436 м3
Цена: 23474 руб.
Подробнее
2Д 34-33-1-2 с
Диафрагмы жесткости Серия 1.020.1-2с/89
  • Длина 3370 мм.
  • Ширина 550 мм.
  • Высота 3280 мм.
  • Вес 3700 кг.
  • Объем бетона 1,5 м3
  • Геометрический объем 6,0795 м3
Цена: 32010 руб.
Подробнее
2Д 34-36-1-2 с
Диафрагмы жесткости Серия 1.020.1-2с/89
  • Длина 3370 мм.
  • Ширина 550 мм.
  • Высота 3580 мм.
  • Вес 4500 кг.
  • Объем бетона 1,8 м3
  • Геометрический объем 6,6355 м3
Цена: 38412 руб.
Подробнее
2Д 34-33-2-2 с
Диафрагмы жесткости Серия 1.020.1-2с/89
  • Длина 3370 мм.
  • Ширина 160 мм.
  • Высота 3280 мм.
  • Вес 4000 кг.
  • Объем бетона 1,6 м3
  • Геометрический объем 1,7686 м3
Цена: 34144 руб.
Подробнее
2Д 34-36-2 с
Диафрагмы жесткости Серия 1.020.1-2с/89
  • Длина 3370 мм.
  • Ширина 550 мм.
  • Высота 3580 мм.
  • Вес 5700 кг.
  • Объем бетона 2,3 м3
  • Геометрический объем 6,6355 м3
Цена: 49082 руб.
Подробнее
2Д 34-36-1-3 с
Диафрагмы жесткости Серия 1.020.1-2с/89
  • Длина 3370 мм.
  • Ширина 550 мм.
  • Высота 3580 мм.
  • Вес 3300 кг.
  • Объем бетона 1,3 м3
  • Геометрический объем 6,6355 м3
Цена: 27742 руб.
Подробнее
2Д 34-36-2-2 с
Диафрагмы жесткости Серия 1.020.1-2с/89
  • Длина 3370 мм.
  • Ширина 550 мм.
  • Высота 3580 мм.
  • Вес 4500 кг.
  • Объем бетона 1,8 м3
  • Геометрический объем 6,6355 м3
Цена: 38412 руб.
Подробнее
2Д 34-36-2 с7
Диафрагмы жесткости Серия 1.020.1-2с/89
  • Длина 3370 мм.
  • Ширина 160 мм.
  • Высота 3580 мм.
  • Вес 5800 кг.
  • Объем бетона 2,32 м3
  • Геометрический объем 1,9303 м3
Цена: 49509 руб.
Подробнее
2Д 34-36-2-3 с
Диафрагмы жесткости Серия 1.020.1-2с/89
  • Длина 3370 мм.
  • Ширина 550 мм.
  • Высота 3580 мм.
  • Вес 3300 кг.
  • Объем бетона 1,3 м3
  • Геометрический объем 6,6355 м3
Цена: 27742 руб.
Подробнее
2Д 34-42-1-2 с
Диафрагмы жесткости Серия 1.020.1-2с/89
  • Длина 3370 мм.
  • Ширина 550 мм.
  • Высота 4180 мм.
  • Вес 5300 кг.
  • Объем бетона 2,1 м3
  • Геометрический объем 7,7476 м3
Цена: 44814 руб.
Подробнее
2Д 34-42-2-2 с
Диафрагмы жесткости Серия 1.020.1-2с/89
  • Длина 3370 мм.
  • Ширина 550 мм.
  • Высота 4180 мм.
  • Вес 5300 кг.
  • Объем бетона 2,1 м3
  • Геометрический объем 7,7476 м3
Цена: 44814 руб.
Подробнее
2Д 34-42-1-3 с
Диафрагмы жесткости Серия 1.020.1-2с/89
  • Длина 3370 мм.
  • Ширина 550 мм.
  • Высота 4180 мм.
  • Вес 4100 кг.
  • Объем бетона 1,7 м3
  • Геометрический объем 7,7476 м3
Цена: 36278 руб.
Подробнее
2Д 34-42-2 с
Диафрагмы жесткости Серия 1.020.1-2с/89
  • Длина 3370 мм.
  • Ширина 550 мм.
  • Высота 4180 мм.
  • Вес 6500 кг.
  • Объем бетона 2,6 м3
  • Геометрический объем 7,7476 м3
Цена: 55484 руб.
Подробнее
2Д 34-42-2-3 с
Диафрагмы жесткости Серия 1.020.1-2с/89
  • Длина 3370 мм.
  • Ширина 550 мм.
  • Высота 4180 мм.
  • Вес 4100 кг.
  • Объем бетона 1,7 м3
  • Геометрический объем 7,7476 м3
Цена: 36278 руб.
Подробнее
2Д 56-17-2 с
Диафрагмы жесткости Серия 1.020.1-2с/89
  • Длина 5560 мм.
  • Ширина 550 мм.
  • Высота 1750 мм.
  • Вес 4800 кг.
  • Объем бетона 1,9 м3
  • Геометрический объем 5,3515 м3
Цена: 40546 руб.
Подробнее
2Д 56-33-1-1 с
Диафрагмы жесткости Серия 1.020.1-2с/89
  • Длина 5560 мм.
  • Ширина 550 мм.
  • Высота 3280 мм.
  • Вес 7000 кг.
  • Объем бетона 2,8 м3
  • Геометрический объем 10,0302 м3
Цена: 59752 руб.
Подробнее
2Д 56-33-2-2 с
Диафрагмы жесткости Серия 1.020.1-2с/89
  • Длина 5560 мм.
  • Ширина 550 мм.
  • Высота 3280 мм.
  • Вес 7000 кг.
  • Объем бетона 2,8 м3
  • Геометрический объем 10,0302 м3
Цена: 59752 руб.
Подробнее
2Д 56-33-2-1 с
Диафрагмы жесткости Серия 1.020.1-2с/89
  • Длина 5560 мм.
  • Ширина 550 мм.
  • Высота 3280 мм.
  • Вес 7000 кг.
  • Объем бетона 2,8 м3
  • Геометрический объем 10,0302 м3
Цена: 59752 руб.
Подробнее
2Д 56-33-1-2 с
Диафрагмы жесткости Серия 1.020.1-2с/89
  • Длина 5560 мм.
  • Ширина 550 мм.
  • Высота 3280 мм.
  • Вес 7000 кг.
  • Объем бетона 2,8 м3
  • Геометрический объем 10,0302 м3
Цена: 59752 руб.
Подробнее
2Д 56-33-2 с
Диафрагмы жесткости Серия 1.020.1-2с/89
  • Длина 5560 мм.
  • Ширина 550 мм.
  • Высота 3280 мм.
  • Вес 8300 кг.
  • Объем бетона 3,3 м3
  • Геометрический объем 10,0302 м3
Цена: 70422 руб.
Подробнее

Как правильно выбрать - Диафрагмы жесткости Серия 1.020.1-2с/89

Диафрагмы жесткости Серия 1.020.1-2с/89 – это железобетонные элементы, предназначенные для обеспечения пространственной жесткости и устойчивости каркасов зданий. Они применяются в связевых системах многоэтажных строений, воспринимая горизонтальные нагрузки (ветровые, сейсмические) и передавая их на несущие конструкции. Ключевая функция – предотвращение деформаций и обеспечение общей стабильности здания. Долговечность и надежность всей конструкции напрямую определяются соответствием выбранных диафрагм жесткости расчетным схемам и проектным нагрузкам.

Критерии выбора

  • Марка бетона и класс арматуры: Изделия изготавливаются из тяжелого бетона марки не ниже М300. Класс продольной рабочей арматуры – А-III (А400).
  • Эксплуатационные характеристики бетона: Обязательно проверяйте паспортные значения морозостойкости (F150-F200) и водонепроницаемости (W6-W8), особенно для конструкций, эксплуатируемых в условиях переменной влажности.
  • Типоразмеры и конфигурация: Строго сверяйте габаритные размеры (длину, высоту, толщину) и расположение закладных деталей, предусмотренных рабочими чертежами серии 1.020.1-2с/89.
  • Наличие монтажных петель: Убедитесь в наличии и корректном расположении строповочных петель или отверстий для безопасного монтажа.
  • Расчетные нагрузки: Выбор конкретной марки диафрагмы жесткости должен основываться на расчетных усилиях (продольных силах, изгибающих моментах), указанных в проекте.
  • Соответствие нормативам: Изделие должно полностью соответствовать требованиям серии 1.020.1-2с/89 и ГОСТ 13015-2012.

Рекомендации по подбору и монтажу

При закупке диафрагм жесткости Серия 1.020.1-2с/89 тщательно проверяйте сопроводительную документацию, включая паспорт качества с указанием фактической прочности бетона и результатов контроля арматурных каркасов. Убедитесь, что все монтажные элементы (закладные детали, анкерные выпуски) поставляются в комплекте и соответствуют рабочим чертежам.

На этапе монтажа критически важна точная выверка положения диафрагмы жесткости в пространстве каркаса. Стыковка с колоннами и другими вертикальными элементами должна обеспечивать проектное защемление. Все сварные соединения закладных деталей необходимо выполнять в соответствии с указаниями проекта, используя электроды, рекомендованные для сварки арматурной стали заданного класса. Пренебрежение качеством анкеровки – наиболее частая причина снижения несущей способности узла.

Ответы экспертов на ваши вопросы

Диафрагмы жесткости серии 1.020.1-2с/89 выполняют следующие основные функции:

  • Обеспечение пространственной жесткости каркаса здания
  • Восприятие и распределение горизонтальных нагрузок (ветровых, сеймических)
  • Предотвращение деформаций и смещений конструкций
  • Обеспечение устойчивости здания в целом

Диафрагмы жесткости серии 1.020.1-2с/89 изготавливаются из тяжелого бетона классов В15-В25 по прочности на сжатие. Армирование выполняется стальной арматурой классов А-I, А-II, А-III. Для монтажных петель используется арматура класса А-I.

Основные характеристики диафрагм жесткости серии 1.020.1-2с/89:

  • Высота: кратно 600 мм (от 1800 до 4200 мм)
  • Длина: 1200, 1800, 2400, 3000 мм
  • Толщина: 140, 160, 180 мм
  • Масса: от 0,8 до 3,5 тонн в зависимости от размеров
  • Маркировка включает габаритные размеры и несущую способность

Монтаж диафрагм жесткости серии 1.020.1-2с/89 осуществляется:

  • Установка в проектное положение с помощью крана
  • Выверка по вертикали и горизонтали
  • Соединение с колоннами через закладные детали сваркой
  • Стыкование с перекрытиями через выпуски арматуры
  • Последующее замоноличивание стыков бетоном

Требования к транспортировке и хранению:

  • Транспортировка в вертикальном положении с надежным креплением
  • Укладка на прокладки высотой не менее 100 мм при хранении
  • Защита от механических повреждений и увлажнения
  • Складирование штабелями высотой не более 2 метров
  • Обязательная маркировка каждого изделия
Ранее смотрели
Панели перекрытий ребристые Альбом ВИ 37-76 БП 212 у-1 (Альбом ВИ 37-76)
БП 212 у-1 (Альбом ВИ 37-76)
Панели перекрытий ребристые Альбом ВИ 37-76
Колонны верхних этажей высотой 3,6; 4,8 и 6,0 м Серия 1.420-12 вып. 4 К 76-3-1
К 76-3-1
Колонны верхних этажей высотой 3,6; 4,8 и 6,0 м Серия 1.420-12 вып. 4
Блоки шахт лифтов Серия 1.089.1-1 БШЛ 100-12 п-2 б
БШЛ 100-12 п-2 б
Блоки шахт лифтов Серия 1.089.1-1
Панели перекрытий ребристые Альбом ВИ 37-76 БП 213 у (Альбом ВИ 37-76)
БП 213 у (Альбом ВИ 37-76)
Панели перекрытий ребристые Альбом ВИ 37-76
Плиты тротуарные ТП 501-259 ТП 8 (ТП 501-259)
ТП 8 (ТП 501-259)
Плиты тротуарные ТП 501-259
Вкладыши Серия ИИ 01-02 Л 10 (ИИ 01-02)
Л 10 (ИИ 01-02)
Вкладыши Серия ИИ 01-02
Лестничные площадки Альбом НК 33-07 ЛП 32-16 (Альбом НК 33-07)
ЛП 32-16 (Альбом НК 33-07)
Лестничные площадки Альбом НК 33-07
Блоки шахт лифтов Серия 1.089.1-1 БШЛ 100-12 п-4 б
БШЛ 100-12 п-4 б
Блоки шахт лифтов Серия 1.089.1-1

Уведомление о файлах cookie

Мы используем файлы cookie для улучшения вашего опыта просмотра и анализа трафика. Нажимая "Принять все", вы соглашаетесь с нашей политикой конфиденциальности и политикой обработки файлов cookie.

Дзен Телеграм Вконтакте vk