mobile_sound +7 (930) 655-55-90

Блоки шкафные Серия 3.501-61

Поделиться:
Фильтр по характеристикам
Длина (мм.)
keyboard_arrow_down
мм.
мм.
Ширина (мм.)
keyboard_arrow_down
мм.
мм.
Высота (мм.)
keyboard_arrow_down
мм.
мм.
Вес (кг.)
keyboard_arrow_down
кг.
кг.
Поделиться:

Завод "Бетон365" производит блоки шкафные серии 3.501-61 — специализированные железобетонные изделия для создания прочных и функциональных инженерных шкафов в жилых и промышленных зданиях. Эти конструкции обеспечивают надежное размещение коммуникаций, распределяют нагрузку и повышают жесткость стен, соответствуя требованиям ГОСТ. Использование готовых блоков значительно ускоряет монтаж и повышает долговечность объектов.

В Москве и МО вы можете купить блоки шкафные серии 3.501-61 по доступной цене напрямую от производителя. Мы гарантируем качество продукции, оперативную доставку и помощь в подборе решений для вашего проекта. Обращайтесь в "Бетон365", чтобы заказать надежные ЖБИ для строительства!

Ш 2
Блоки шкафные Серия 3.501-61
  • Длина 3700 мм.
  • Ширина 2200 мм.
  • Высота 2300 мм.
  • Вес 11000 кг.
  • Объем бетона 4,4 м3
  • Геометрический объем 18,722 м3
Цена: 170720 руб.
Подробнее
Ш 1
Блоки шкафные Серия 3.501-61
  • Длина 4700 мм.
  • Ширина 2200 мм.
  • Высота 2300 мм.
  • Вес 13300 кг.
  • Объем бетона 5,3 м3
  • Геометрический объем 23,782 м3
Цена: 205640 руб.
Подробнее

Как правильно выбрать - Блоки шкафные Серия 3.501-61

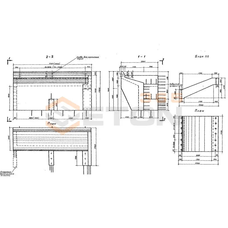
Блоки шкафные Серия 3.501-61 представляют собой сборные железобетонные конструкции, предназначенные для устройства вводно-распределительных устройств (ВРУ), тепловых пунктов и других технологических помещений в жилых, общественных и промышленных зданиях. Они применяются как в подземной, так и в наземной части сооружений, обеспечивая компактное размещение инженерного оборудования. Долговечность и бесперебойная работа смонтированных систем зависят от точного соответствия характеристик блоков шкафных Серии 3.501-61 проектным нагрузкам и специфическим условиям эксплуатации.

Критерии выбора

  • Марка и класс бетона: Изделия изготавливаются из тяжелого бетона марки не ниже М200 (класс В15). Обращайте внимание на показатели водонепроницаемости (W4) и морозостойкости (F150-F200), особенно для блоков, устанавливаемых ниже уровня земли.
  • Армирование: Каркас выполняется из стальной арматуры классов А-I и А-III. Проверяйте паспорт на соответствие проектным нагрузкам и отсутствие коррозии арматуры.
  • Типоразмеры и конфигурация: Серия включает блоки различной высоты и ширины. Ключевой параметр – наличие и расположение проемов для дверей, вентиляции и ввода коммуникаций, которые должны строго соответствовать монтажным схемам.
  • Закладные детали и монтажные петли: Обязательно наличие закладных деталей для крепления оборудования внутри блока и монтажных петель, рассчитанных на нагрузки при погрузо-разгрузочных работах и установке.
  • Соответствие нормам: Все блоки шкафные должны производиться в строгом соответствии с рабочими чертежами Серии 3.501-61 и ГОСТ 13015-2012.

Рекомендации по подбору и монтажу

При составлении спецификации на блоки шкафные Серии 3.501-61 тщательно сверяйте маркировку с рабочими чертежами, обращая особое внимание на индекс исполнения (например, наличие или отсутствие основания). Требуйте от поставщика паспорта качества и результатов испытаний бетона на прочность. Убедитесь, что поставка комплектная и включает все необходимые доборные элементы.

На этапе монтажа критически важна подготовка основания – оно должно быть выровнено и уплотнено. Установку блоков производите с помощью грузоподъемной техники, строго контролируя вертикальность и совпадение монтажных осей. Стыки между соседними блоками шкафными необходимо герметизировать для предотвращения проникновения влаги и грунтовых вод. Правильная анкеровка к фундаменту и между собой обеспечивает устойчивость всей конструкции.

Ответы экспертов на ваши вопросы

Блоки шкафные серии 3.501-61 обладают несколькими ключевыми преимуществами: унифицированные габаритные размеры обеспечивают простоту монтажа и совместимость с другими элементами серии, повышенная несущая способность конструкции позволяет выдерживать значительные нагрузки, а также предусмотрена возможность установки различного электротехнического оборудования благодаря стандартизированным местам крепления. Конструкция обеспечивает надежную защиту оборудования от внешних воздействий.

Производство и применение блоков шкафных серии 3.501-61 регламентируется следующими основными документами: серийный рабочий проект 3.501-61, ГОСТ 26633-2015 "Бетоны тяжелые и мелкозернистые", СП 63.13330.2018 "Бетонные и железобетонные конструкции", а также ведомственными строительными нормами ВСН 01-82 для сборных железобетонных конструкций.

Серия 3.501-61 включает блоки шкафные следующих основных типоразмеров: БШ-1 (основной шкафной блок), БШ-2 (угловой блок), БШ-3 (торцевой блок). Габаритные размеры стандартизированы: высота 2390 мм, глубина 450 мм, ширина варьируется от 900 до 1800 мм в зависимости от модификации. Все блоки изготавливаются из тяжелого бетона класса В15-В25 с армированием стальной арматурой.

Монтаж блоков шкафных серии 3.501-61 требует подготовки фундамента или основания с точным соблюдением проектных отметок. Блоки устанавливаются с помощью грузоподъемной техники, стыки между блоками герметизируются цементно-песчаным раствором. Особое внимание уделяется точности установки первого блока в ряду, так как от этого зависит правильность монтажа последующих элементов. Обязательна проверка вертикальности и горизонтальности установки.

Эксплуатация блоков шкафных серии 3.501-61 требует регулярного визуального осмотра состояния бетонных поверхностей (отсутствие трещин, сколов), контроля целостности гидроизоляции и состояния защитного покрытия. Не допускается механическое воздействие, превышающее расчетные нагрузки. При необходимости ремонта бетонных поверхностей используются ремонтные составы на цементной основе. Периодичность технического обслуживания - не реже 1 раза в год.

Уведомление о файлах cookie

Мы используем файлы cookie для улучшения вашего опыта просмотра и анализа трафика. Нажимая "Принять все", вы соглашаетесь с нашей политикой конфиденциальности и политикой обработки файлов cookie.

MAX Дзен Телеграм Вконтакте vk