mobile_sound +7 (930) 655-55-90

Блоки лежня Серия 3.503.1-57

Поделиться:
Фильтр по характеристикам
Длина (мм.)
keyboard_arrow_down
мм.
мм.
Ширина (мм.)
keyboard_arrow_down
мм.
мм.
Высота (мм.)
keyboard_arrow_down
мм.
мм.
Вес (кг.)
keyboard_arrow_down
кг.
кг.
Объем бетона (м3)
keyboard_arrow_down
м3
м3
Поделиться:

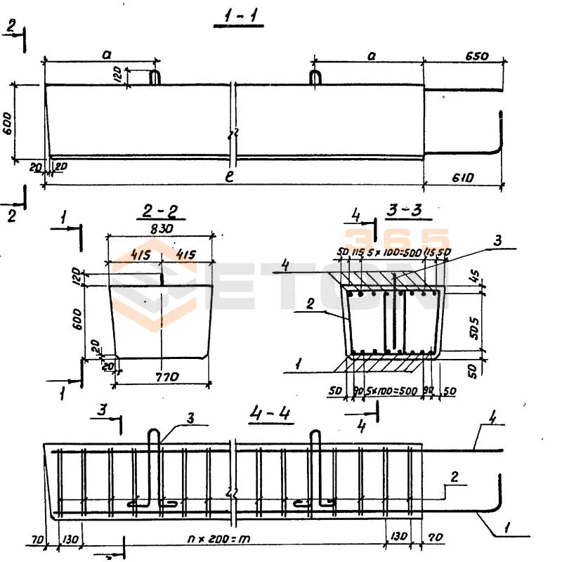
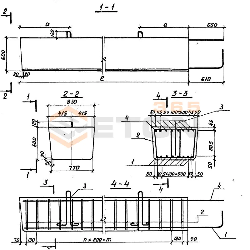
Завод "Бетон365" производит блоки лежня серии 3.503.1-57 – специализированные железобетонные изделия, которые служат надежной опорой при монтаже подземных коммуникаций и трубопроводов. Эти конструкции из тяжелого бетона соответствуют строгим требованиям ГОСТ, обеспечивая равномерное распределение нагрузок и защиту инженерных систем от деформаций. Применение готовых блоков лежня значительно упрощает процесс прокладки коммуникаций, сокращает сроки строительства и гарантирует долговечность всей системы.

Мы реализуем блоки лежня серии 3.503.1-57 в Москве и Московской области по конкурентной цене от производителя. Предлагаем выгодные условия покупки с гарантией качества, оперативной доставкой на объект и профессиональными консультациями по выбору оптимальных решений для вашего проекта. Обращайтесь к нам для расчета стоимости и оформления заказа!

Л 1
Блоки лежня Серия 3.503.1-57
  • Длина 4800 мм.
  • Ширина 830 мм.
  • Высота 600 мм.
  • Вес 5800 кг.
  • Объем бетона 2,3 м3
  • Геометрический объем 2,3904 м3
Цена: 66930 руб.
Подробнее
Л 2
Блоки лежня Серия 3.503.1-57
  • Длина 4200 мм.
  • Ширина 830 мм.
  • Высота 600 мм.
  • Вес 5000 кг.
  • Объем бетона 2 м3
  • Геометрический объем 2,0916 м3
Цена: 58200 руб.
Подробнее

Как правильно выбрать - Блоки лежня Серия 3.503.1-57

Блоки лежня Серия 3.503.1-57 представляют собой фундаментные блоки, предназначенные для устройства опорных оснований под лотки теплотрасс, каналов и других подземных инженерных коммуникаций. Их ключевая функция – равномерное распределение нагрузки от вышележащих конструкций на грунтовое основание, предотвращение просадок и деформаций. Долговечность и надежность всей подземной конструкции в значительной степени определяются грамотным подбором параметров блоков лежня в соответствии с проектными решениями и реальными условиями строительной площадки.

Критерии выбора

  • Класс бетона по прочности: Блоки лежня изготавливаются из тяжелого бетона класса В15 (М200). Обязательно проверяйте паспорт качества на соответствие этому параметру.
  • Морозостойкость и водонепроницаемость: Для эксплуатации в насыщенных грунтах критически важна марка по морозостойкости не ниже F100 и водонепроницаемость W4. Это обеспечит стойкость к циклическому замораживанию и агрессивному воздействию грунтовых вод.
  • Геометрические параметры и маркировка: Строго сверяйте типоразмеры (длину, ширину, высоту) и маркировку изделия с рабочей документацией. Серия 3.503.1-57 регламентирует строгие допуски по геометрии.
  • Наличие и расположение монтажных петель: Убедитесь в наличии закладных деталей (петель) из арматуры класса А-I, А-II или А-III для безопасной строповки. Их отсутствие или непроектное расположение усложнит монтаж.
  • Соответствие нормативной документации: Изделие должно полностью соответствовать требованиям серии 3.503.1-57 и ГОСТ на железобетонные конструкции.
  • Состояние поверхности: Визуально оцените блок на отсутствие сквозных трещин, сколов бетона в зонах опирания лотков и обнажения арматурного каркаса.

Рекомендации по подбору и монтажу

При составлении спецификации на блоки лежня Серия 3.503.1-57 обязательно учитывайте геологию участка. На слабых и пучинистых грунтах может потребоваться устройство песчано-гравийной подушки под блоки для дополнительного выравнивания и дренирования. Приемку партии проводите с проверкой паспортов, где указаны фактические прочностные и морозостойкие характеристики бетона.

Монтаж блоков лежня ведите на спланированное и уплотненное основание. Ключевой момент – точное выверение отметок верха блоков и их горизонтальности с помощью нивелира. Не допускается монтаж изделий с видимыми дефектами, а также их установка непосредственно на неподготовленное, просадочное основание. Правильная установка блоков лежня данной серии – залог стабильности положения лотков и предотвращения перекосов всей трассы.

Ответы экспертов на ваши вопросы

Блоки лежня серии 3.503.1-57 — это железобетонные изделия, которые используются в качестве опорных элементов под рельсовые пути кранового оборудования. Они обеспечивают стабильное основание, равномерно распределяют нагрузку от крана на грунт и используются на открытых складах, производственных площадках и в цехах.

Основные характеристики включают: стандартные размеры согласно серии (например, длина 2-6 м), бетон класса не ниже В30 (М400), армирование рабочей арматурой класса А-III, наличие закладных деталей для крепления рельсов, расчетную нагрузку в соответствии с грузоподъемностью кранового оборудования (обычно указывается в проектной документации).

Основные преимущества: высокая прочность и долговечность (срок службы 50+ лет), устойчивость к атмосферным воздействиям и агрессивным средам, минимальные требования к обслуживанию, быстрый монтаж благодаря стандартизированным размерам, возможность использования в различных грунтовых условиях.

Монтаж включает: подготовку основания (уплотненный грунт или песчано-гравийная подушка), установку блоков по проектным осям с соблюдением уровня и высотных отметок, выверку положения с помощью геодезических инструментов, крепление рельсов к закладным элементам блоков, заполнение швов между блоками цементным раствором.

Требования включают: транспортировку в горизонтальном положении на специальных подкладках, исключение ударных нагрузок при погрузке-разгрузке, хранение на ровной площадке штабелями высотой не более 2 метров с деревянными прокладками между блоками, защиту от прямого воздействия атмосферных осадков при длительном хранении.

Ранее смотрели
Столбики бетонные Серия 2.800-2 БС 11 (2.800-2)
БС 11 (2.800-2)
Столбики бетонные Серия 2.800-2
Блоки бетонные Серия 3.503.1-66 Б 1-20-75 а
Б 1-20-75 а
Блоки бетонные Серия 3.503.1-66
Блоки шахт лифтов Серия 1.089.1-1 БШЛ 100-30-5
БШЛ 100-30-5
Блоки шахт лифтов Серия 1.089.1-1
К 15-10 и (ПС 334)
К 15-10 и (ПС 334)
Кольца колодцев стеновые Альбом ПС 334
Колонны верхних этажей высотой 3,6; 4,8 и 6,0 м Серия 1.420-12 вып. 4 К 76-3-3
К 76-3-3
Колонны верхних этажей высотой 3,6; 4,8 и 6,0 м Серия 1.420-12 вып. 4
Лестничные площадки плоские 1ЛП ГОСТ 9818-2015 1ЛП 22-16-4 ЛК (ГОСТ 9818-2015)
1ЛП 22-16-4 ЛК (ГОСТ 9818-2015)
Лестничные площадки плоские 1ЛП ГОСТ 9818-2015
Блоки шахт лифтов Серия 1.089.1-1 БШЛ 100-36-2
БШЛ 100-36-2
Блоки шахт лифтов Серия 1.089.1-1
С 2 А
С 2 А
Столбы оград Серия 3.017-1

Уведомление о файлах cookie

Мы используем файлы cookie для улучшения вашего опыта просмотра и анализа трафика. Нажимая "Принять все", вы соглашаетесь с нашей политикой конфиденциальности и политикой обработки файлов cookie.

Дзен Телеграм Вконтакте vk