mobile_sound +7 (930) 655-55-90
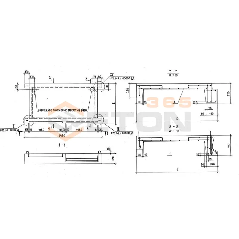
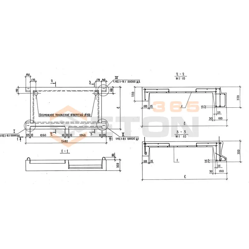
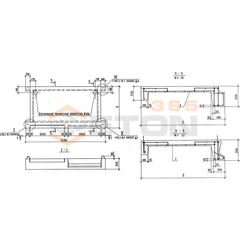
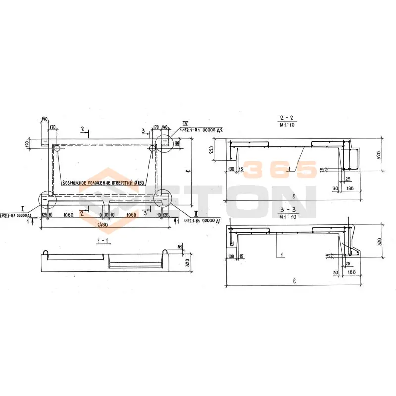
Лестничные площадки ребристые 2ЛП серия 1.152.1-8 ( 1.152-3 ) и ГОСТ 9818-85 2ЛП 25-15-4 к

Лестничные площадки ребристые 2ЛП серия 1.152.1-8 ( 1.152-3 ) и ГОСТ 9818-85 2ЛП 25-15-4 к

Поделиться:
  • Длина 2780 мм.
  • Ширина 1600 мм.
  • Высота 320 мм.
  • Вес 1345 кг.
  • Объем бетона 0,538 м3
  • Геометрический объем 1,4234 м3
Внешний вид товаров и/или упаковки может быть изменён изготовителем и отличаться от изображенных на .
Цена: 8350 руб.
credit_card
Принимаем оплату в любой форме
delivery_truck_speed
Доставка по МСК и МО
deployed_code_history
Круглосуточная отгрузка товара без выходных
hand_package
Срок поставки на следующий день
star_shine
Контроль качества на каждом этапе

Стандарт изготовления изделия: Серия 1.152.1-8

Лестничные площадки ребристые 2ЛП 25-15-4 к – это не просто стандартный элемент многоэтажных зданий, а важная конструктивная часть, обеспечивающая безопасность и удобство передвижения между этажами. Они состоят из маршей, площадок и крепежных элементов, причем в некоторых случаях марш и площадка могут быть объединены в единую конструкцию. В зависимости от типа здания и его архитектурных особенностей применяются лестничные площадки ребристые 2ЛП 25-15-4 к, которые отличаются высокой надежностью и долговечностью.

Эти железобетонные изделия изготавливаются с учетом строгих требований к прочности и устойчивости к нагрузкам. Благодаря ребристой структуре они обладают повышенной жесткостью, что делает их незаменимыми в панельных, блочных и кирпичных домах. Лестничная площадка не только разделяет марш на две части, облегчая подъем, но и повышает безопасность эксплуатации лестницы. Согласно нормативам, максимальное количество ступеней в одном марше не должно превышать 18, после чего обязательно устанавливается площадка.

1. Варианты маркировки изделий

Маркировка ребристых площадок 2ЛП 25-15-4 к может записываться в двух вариантах:

  • 2ЛП 25-15-4 к
  • 2ЛП 25.15.4 к

Оба варианта соответствуют Серии 1.152.1-8 и содержат информацию о типе изделия и его ключевых параметрах.

2. Сфера применения

Основное отличие ребристых площадок 2ЛП 25-15-4 к от плоских аналогов заключается в наличии специальных пазов и выступов, обеспечивающих надежное соединение с лестничными маршами. Они используются как для соединения маршей, так и в качестве входных платформ. В некоторых модификациях предусмотрено отверстие для мусоропровода, а поверхность может быть отделана керамической плиткой или отшлифована.

3. Расшифровка маркировки

Маркировка 2ЛП 25-15-4 к содержит следующие параметры:

  • Длина – 2780 мм
  • Ширина – 1600 мм
  • Высота – 320 мм
  • Масса – 1345 кг

Буквенные обозначения в маркировке указывают на дополнительные особенности: "г" – глянцевая поверхность, "ш" – шлифованная, "м" – наличие мусоропровода, "к" – консольное крепление.

4. Материалы и технология производства

Для изготовления площадок 2ЛП 25-15-4 к используется тяжелый бетон класса В15, армированный сталью марок A-III и Вр-1. Технология вибропрессования обеспечивает высокую плотность бетона и отсутствие воздушных пустот. Арматурные каркасы заливаются бетоном с защитным слоем не менее 30 мм, что гарантирует долговечность конструкции.

Морозостойкость изделий достигает 150 циклов, что позволяет использовать их в регионах с суровым климатом (до -55°C). Благодаря качественным материалам и точному соблюдению технологии, эти площадки обладают высокой износостойкостью и устойчивостью к механическим нагрузкам.

5. Транспортировка и хранение

Перевозка осуществляется в горизонтальном положении с обязательной прокладкой между изделиями деревянных брусков толщиной 30 мм. Штабелирование при хранении должно исключать точечные нагрузки и повреждения кромок. Строго запрещена навалка изделий друг на друга без дополнительной защиты.

Таким образом, ребристые площадки 2ЛП 25-15-4 к – это надежные и долговечные конструкции, соответствующие всем современным строительным стандартам. Их применение гарантирует безопасность и комфорт при эксплуатации лестничных пролетов в жилых и общественных зданиях.

Похожие товары
2ЛП 22-12
Лестничные площадки ребристые 2ЛП серия 1.152.1-8 ( 1.152-3 ) и ГОСТ 9818-85
  • Длина 2480 мм.
  • Ширина 1300 мм.
  • Высота 320 мм.
  • Вес 917,5 кг.
  • Объем бетона 0,367 м3
  • Геометрический объем 1,0317 м3
Цена: 5696 руб.
Подробнее
2ЛП 22-12-2 к
Лестничные площадки ребристые 2ЛП серия 1.152.1-8 ( 1.152-3 ) и ГОСТ 9818-85
  • Длина 2480 мм.
  • Ширина 1300 мм.
  • Высота 320 мм.
  • Вес 917,5 кг.
  • Объем бетона 0,367 м3
  • Геометрический объем 1,0317 м3
Цена: 5696 руб.
Подробнее
2ЛП 22-12-4
Лестничные площадки ребристые 2ЛП серия 1.152.1-8 ( 1.152-3 ) и ГОСТ 9818-85
  • Длина 2200 мм.
  • Ширина 1300 мм.
  • Высота 320 мм.
  • Вес 1000 кг.
  • Объем бетона 0,4 м3
  • Геометрический объем 0,9152 м3
Цена: 6208 руб.
Подробнее
2ЛП 22-12-4
Лестничные площадки ребристые 2ЛП серия 1.152.1-8 ( 1.152-3 ) и ГОСТ 9818-85
  • Длина 2480 мм.
  • Ширина 1300 мм.
  • Высота 320 мм.
  • Вес 1035 кг.
  • Объем бетона 0,41 м3
  • Геометрический объем 1,0317 м3
Цена: 6363 руб.
Подробнее
Ранее смотрели
Лестничные площадки ребристые 2ЛП серия 1.152.1-8 ( 1.152-3 ) и ГОСТ 9818-85 2ЛП 25-15-4 к
2ЛП 25-15-4 к
Лестничные площадки ребристые 2ЛП серия 1.152.1-8 ( 1.152-3 ) и ГОСТ 9818-85
Колонны для зданий с высотой этажей 4,8 (6,0) и 3,6 (4,8) м серия 1.020-1/87 ( 1.020.1-7, 1.020-1/83, ИИ 04-1, 1.020.1-3пв ) 2КНД 60-2-22/24
2КНД 60-2-22/24
Колонны для зданий с высотой этажей 4,8 (6,0) и 3,6 (4,8) м серия 1.020-1/87 ( 1.020.1-7, 1.020-1/83, ИИ 04-1, 1.020.1-3пв )
Колонны для зданий с высотой этажей 5,4 и 6,0 (7,2) м серия 1.020-1/87 ( 1.020.1-7, 1.020-1/83, ИИ 04-1, 1.020.1-3пв ) 1КВО 60-1
1КВО 60-1
Колонны для зданий с высотой этажей 5,4 и 6,0 (7,2) м серия 1.020-1/87 ( 1.020.1-7, 1.020-1/83, ИИ 04-1, 1.020.1-3пв )
Колонны для зданий с высотой этажей 4,8 (6,0) и 3,6 (4,8) м серия 1.020-1/87 ( 1.020.1-7, 1.020-1/83, ИИ 04-1, 1.020.1-3пв ) 3КБД 4-48-4,3
3КБД 4-48-4,3
Колонны для зданий с высотой этажей 4,8 (6,0) и 3,6 (4,8) м серия 1.020-1/87 ( 1.020.1-7, 1.020-1/83, ИИ 04-1, 1.020.1-3пв )
Колонны для зданий с высотой этажей 4,8 (6,0) и 3,6 (4,8) м серия 1.020-1/87 ( 1.020.1-7, 1.020-1/83, ИИ 04-1, 1.020.1-3пв ) 2КС 4-48-2
2КС 4-48-2
Колонны для зданий с высотой этажей 4,8 (6,0) и 3,6 (4,8) м серия 1.020-1/87 ( 1.020.1-7, 1.020-1/83, ИИ 04-1, 1.020.1-3пв )
Колонны для зданий с высотой этажей 5,4 и 6,0 (7,2) м серия 1.020-1/87 ( 1.020.1-7, 1.020-1/83, ИИ 04-1, 1.020.1-3пв ) 1КСД 60-1
1КСД 60-1
Колонны для зданий с высотой этажей 5,4 и 6,0 (7,2) м серия 1.020-1/87 ( 1.020.1-7, 1.020-1/83, ИИ 04-1, 1.020.1-3пв )
Колонны для зданий с высотой этажа 2,8 и 3,3 м серия 1.020-1/87 ( 1.020.1-7, 1.020-1/83, ИИ 04-1, 1.020.1-3пв ) 3КБО 33-1
3КБО 33-1
Колонны для зданий с высотой этажа 2,8 и 3,3 м серия 1.020-1/87 ( 1.020.1-7, 1.020-1/83, ИИ 04-1, 1.020.1-3пв )
Колонны для зданий с высотой этажей 5,4 и 6,0 (7,2) м серия 1.020-1/87 ( 1.020.1-7, 1.020-1/83, ИИ 04-1, 1.020.1-3пв ) 2КНД 60-2-29/36
2КНД 60-2-29/36
Колонны для зданий с высотой этажей 5,4 и 6,0 (7,2) м серия 1.020-1/87 ( 1.020.1-7, 1.020-1/83, ИИ 04-1, 1.020.1-3пв )
Вопросы? 5 вещей, которые нужно узнать за 5 минут или меньше.
Чтобы узнать больше о нас, ознакомьтесь с нашими техническими документами
или свяжитесь с нами.

Да. Мы изготавливаем ЖБИ по индивидуальным чертежам и размерам, учитывая специфику вашего проекта.

Да. Для крупных заказов и постоянных партнёров действуют специальные цены и индивидуальные условия сотрудничества.

Мы располагаем собственным автопарком для доставки ЖБИ, а также организуем железнодорожные и морские перевозки при необходимости.

Уведомление о файлах cookie

Мы используем файлы cookie для улучшения вашего опыта просмотра и анализа трафика. Нажимая "Принять все", вы соглашаетесь с нашей политикой конфиденциальности и политикой обработки файлов cookie.

Дзен Телеграм Вконтакте vk