mobile_sound +7 (930) 655-55-90

Колонны железобетонные Серия 1.423.1-3/88 2К 96-6 м3

Поделиться:
Колонны железобетонные Серия 1.423.1-3/88 2К 96-6 м3
visibility 5
Цена: 52962 руб.
credit_card
Принимаем оплату в любой форме
delivery_truck_speed
Доставка по МСК и МО
deployed_code_history
Круглосуточная отгрузка товара без выходных
hand_package
Срок поставки на следующий день
star_shine
Контроль качества на каждом этапе

Стандарт изготовления изделия: Серия 1.423.1-3/88

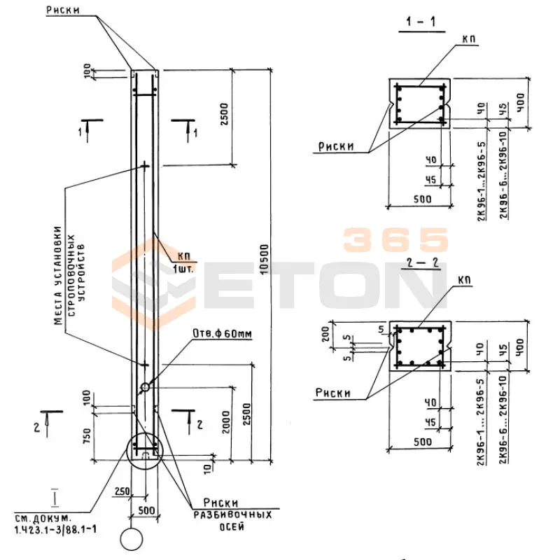
Железобетонные колонны 2К 96-6 м3 представляют собой надежные несущие конструкции квадратного сечения, специально разработанные для строительства одноэтажных промышленных зданий без мостовых кранов. Эти элементы обладают высокой прочностью и долговечностью, что делает их незаменимыми в промышленном строительстве.

1. Варианты написания маркировки

В технической документации и проектах маркировка может встречаться в нескольких вариантах:

  • 2К 96-6 м3
  • 2К 96-6-м3
  • 2К 96.6 м3

2. Основные характеристики и применение

Колонны имеют поперечное сечение 400х500 мм и оснащены технологическими уступами для удобного монтажа стропильных конструкций. Они идеально подходят для:

  • Строительства промышленных объектов
  • Возведения зданий в сейсмоопасных районах
  • Создания каркасов производственных помещений

Монтаж требует специального оборудования и квалифицированных специалистов. Колонны поднимают из положения "на ребро", а для точной установки используют специальные разметочные оси.

3. Расшифровка маркировки

Маркировка 2К 96-6 м3 содержит важную информацию:

  1. 2 - номер типоразмера
  2. К - тип конструкции (колонна)
  3. 96 - высота этажа в дециметрах
  4. 6 - группа несущей способности
  5. м3 - марка бетона

4. Технические параметры

Основные характеристики колонн:

  • Длина: 10500 мм
  • Ширина: 400 мм
  • Высота: 500 мм
  • Вес: 5300 кг
  • Объем бетона: 2,1 м³

5. Производство и материалы

Колонны изготавливают методом виброформования с использованием:

  • Высококачественного бетона
  • Арматуры классов А-100, А-300 и Вр-1
  • Стальных строповочных петель

Все элементы проходят строгий контроль качества и сопровождаются технической документацией.

6. Транспортировка и хранение

При перевозке и хранении важно:

  • Использовать спецтехнику
  • Складировать штабелями до 2 метров
  • Прокладывать слои деревянными досками

Колонны 2К 96-6 м3 - это проверенное временем решение для промышленного строительства, сочетающее в себе надежность, долговечность и удобство монтажа. Их применение позволяет создавать прочные каркасы зданий, способные выдерживать значительные нагрузки в течение многих лет эксплуатации.

  • Длина 10500 мм.
  • Ширина 400 мм.
  • Высота 500 мм.
  • Вес 5300 кг.
  • Объем бетона 2,1 м3
  • Геометрический объем 2,1 м3

Серия 1.423.1-3/88

Подробнее

Документ Серия 1.423.1-3/88 описывает область применения, номенклатуру и ключевые требования, опираясь на действующие нормы и практику проектирования. Серия 1.423.1-3/88 была разработана институтом ГПИ ПРОМСТРОЙПРОЕКТ совместно с НИИЖБ и введён в действие в действие с 1989 года. В состав регламента входит десять выпусков, содержащих подробную информацию о производстве железобетонных колонн, которые используются для строительства одноэтажных промышленных предприятий, имеющих высоту до 9,6 метров. В возводимых сооружениях недопустимо наличие мостовых опорных кранов.

picture_as_pdf

1099.pdf

15,577.5 KB

скачать
picture_as_pdf

1100.pdf

14,411.1 KB

скачать
picture_as_pdf

1101.pdf

19,772.2 KB

скачать
picture_as_pdf

1102.pdf

11,878.6 KB

скачать
picture_as_pdf

1103.pdf

12,160.8 KB

скачать
picture_as_pdf

1104.pdf

16,257.0 KB

скачать
picture_as_pdf

1105.pdf

15,848.6 KB

скачать
picture_as_pdf

1106.pdf

17,532.9 KB

скачать
picture_as_pdf

1107.pdf

657.4 KB

скачать
picture_as_pdf

1108.pdf

18,275.0 KB

скачать
Похожие товары
1К 30-2 м3 с
Колонны железобетонные Серия 1.423.1-3/88
  • Длина 3800 мм.
  • Ширина 300 мм.
  • Высота 300 мм.
  • Вес 860 кг.
  • Объем бетона 0,34 м3
  • Геометрический объем 0,342 м3
Цена: 8575 руб.
Подробнее
1К 36-1 м2
Колонны железобетонные Серия 1.423.1-3/88
  • Длина 4400 мм.
  • Ширина 300 мм.
  • Высота 300 мм.
  • Вес 1000 кг.
  • Объем бетона 0,396 м3
  • Геометрический объем 0,396 м3
Цена: 9987 руб.
Подробнее
1К 30-4 м3 с
Колонны железобетонные Серия 1.423.1-3/88
  • Длина 3800 мм.
  • Ширина 300 мм.
  • Высота 300 мм.
  • Вес 860 кг.
  • Объем бетона 0,34 м3
  • Геометрический объем 0,342 м3
Цена: 8575 руб.
Подробнее
1К 30-3 м3 с
Колонны железобетонные Серия 1.423.1-3/88
  • Длина 3800 мм.
  • Ширина 300 мм.
  • Высота 300 мм.
  • Вес 860 кг.
  • Объем бетона 0,34 м3
  • Геометрический объем 0,342 м3
Цена: 8575 руб.
Подробнее
Ранее смотрели
Панели перегородок железобетонные для зданий промышленных и сельскохозяйственных предприятий Серия 1.030.9-2 ПГ 60-15-2 л В11 т
ПГ 60-15-2 л В11 т
Панели перегородок железобетонные для зданий промышленных и сельскохозяйственных предприятий Серия 1.030.9-2
Колонны железобетонные Серия 1.423.1-3/88 2К 96-6 м3
2К 96-6 м3
Колонны железобетонные Серия 1.423.1-3/88
Плиты перекрытия многопустотные Серия 1.141.1-38 1ПК 48-12-4 АтIVл а (1.141.1-38)
1ПК 48-12-4 АтIVл а (1.141.1-38)
Плиты перекрытия многопустотные Серия 1.141.1-38
Колонны сечением 400х400 мм для зданий с высотами этажей 5,4-6,0 и 6,0 (7,2) м Серия 1.020.1-2с/89 4КБ 60-127-2 с
4КБ 60-127-2 с
Колонны сечением 400х400 мм для зданий с высотами этажей 5,4-6,0 и 6,0 (7,2) м Серия 1.020.1-2с/89
Колонны железобетонные Серия 1.423.1-3/88 5К 60-7 м2
5К 60-7 м2
Колонны железобетонные Серия 1.423.1-3/88
Колонны железобетонные для многоэтажных производственных зданий на высоту этажа 6,0 м Серия 1.420-12 вып. 3 К 25а-1
К 25а-1
Колонны железобетонные для многоэтажных производственных зданий на высоту этажа 6,0 м Серия 1.420-12 вып. 3
ПП 60-15-3,5-3 (1.432.1-33.93)
ПП 60-15-3,5-3 (1.432.1-33.93)
Панели перегородок Серия 1.432.1-33.93
Колонны сечением 400х400 мм для зданий с высотами этажей 5,4-6,0 и 6,0 (7,2) м Серия 1.020.1-2с/89 5КБ 60-127-4 сн
5КБ 60-127-4 сн
Колонны сечением 400х400 мм для зданий с высотами этажей 5,4-6,0 и 6,0 (7,2) м Серия 1.020.1-2с/89
Вопросы? 5 вещей, которые нужно узнать за 5 минут или меньше.
Чтобы узнать больше о нас, ознакомьтесь с нашими техническими документами
или свяжитесь с нами.

Да. Мы изготавливаем ЖБИ по индивидуальным чертежам и размерам, учитывая специфику вашего проекта.

Да. Для крупных заказов и постоянных партнёров действуют специальные цены и индивидуальные условия сотрудничества.

Мы располагаем собственным автопарком для доставки ЖБИ, а также организуем железнодорожные и морские перевозки при необходимости.

Уведомление о файлах cookie

Мы используем файлы cookie для улучшения вашего опыта просмотра и анализа трафика. Нажимая "Принять все", вы соглашаетесь с нашей политикой конфиденциальности и политикой обработки файлов cookie.

Дзен Телеграм Вконтакте vk