mobile_sound +7 (930) 655-55-90
Колонны железобетонные Серия 1.423.1-3/88 2К 78-8 м3 с

Колонны железобетонные Серия 1.423.1-3/88 2К 78-8 м3 с

Поделиться:
  • ГОСТ, Серия Серия 1.423.1-3/88
  • Длина 8700 мм.
  • Ширина 500 мм.
  • Высота 500 мм.
  • Вес 5400 кг.
  • Объем бетона 2,2 м3
  • Геометрический объем 2,175 м3
Внешний вид товаров и/или упаковки может быть изменён изготовителем и отличаться от изображенных на .
Цена: 55484 руб.
credit_card
Принимаем оплату в любой форме
delivery_truck_speed
Доставка по МСК и МО
deployed_code_history
Круглосуточная отгрузка товара без выходных
hand_package
Срок поставки на следующий день
star_shine
Контроль качества на каждом этапе

Стандарт изготовления изделия: Серия 1.423.1-3/88

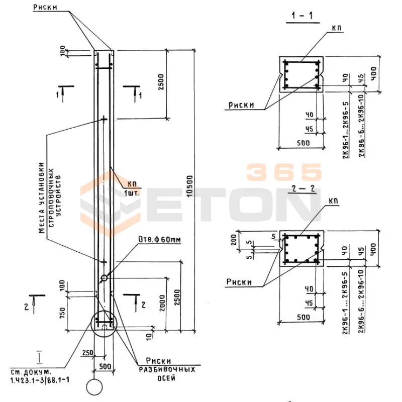
Железобетонные колонны 2К 78-8 м3 с представляют собой надежные строительные элементы квадратного сечения 500х500 мм, специально разработанные для возведения одноэтажных промышленных зданий без мостовых кранов. Эти конструкции отличаются высокой прочностью и долговечностью благодаря использованию качественных материалов и современных технологий производства.

1. Варианты написания маркировки

В технической документации и проектах маркировка может встречаться в нескольких вариантах:

  • 2К 78-8 м3 с
  • 2К 78-8 м3-с
  • 2К 78.8 м3 с

Все эти обозначения равнозначны и соответствуют одному типу конструкции.

2. Основная сфера применения

Эти колонны идеально подходят для строительства промышленных объектов в любых климатических условиях, включая сейсмоопасные районы с активностью до 8-9 баллов. Их особая конструкция с технологическими уступами позволяет надежно крепить стропильные и подстропильные системы.

Монтаж требует профессионального подхода - подъем осуществляется только из положения "на ребро" с использованием специальной техники. Для точной установки на колоннах предусмотрены разбивочные оси (риски), которые помогают выровнять конструкцию относительно осей фундамента и балок.

3. Подробная расшифровка маркировки

Каждый символ в обозначении 2К 78-8 м3 с несет важную информацию:

  1. 2 - номер типоразмера для данной высоты этажа
  2. К - обозначение типа конструкции (колонна)
  3. 78 - высота этажа в дециметрах (округленное значение)
  4. 8 - группа несущей способности
  5. м3 - марка используемого бетона
  6. с - показатель сейсмостойкости конструкции

4. Технические характеристики

Основные параметры изделия:

  • Длина: 8700 мм
  • Ширина: 500 мм
  • Высота: 500 мм
  • Вес: 5400 кг
  • Объем бетона: 2,2 м³
  • Геометрический объем: 2,175 м³

5. Технология производства и материалы

Колонны изготавливаются методом виброформования в металлических опалубках с использованием высококачественного бетона и стальной арматуры классов А-100, А-300 и Вр-1. Особое внимание уделяется антикоррозийной защите металлических элементов.

Бетон подбирается с учетом требований по морозостойкости, водонепроницаемости и трещиностойкости. Огнестойкость конструкции составляет 2,5 часа, что соответствует строгим требованиям промышленного строительства.

6. Транспортировка и хранение

Перед транспортировкой каждое изделие проходит проверку на прочность. Перевозка возможна любым видом спецтранспорта, включая железнодорожный и водный. На строительной площадке колонны хранят в горизонтальном положении штабелями высотой до 2 метров с обязательной прокладкой деревянных досок между рядами.

Эти колонны - надежное решение для промышленного строительства, сочетающее в себе прочность, долговечность и удобство монтажа. Их использование позволяет создавать устойчивые конструкции, способные выдерживать значительные нагрузки в различных климатических условиях.

Серия 1.423.1-3/88

Подробнее

Документ Серия 1.423.1-3/88 описывает область применения, номенклатуру и ключевые требования, опираясь на действующие нормы и практику проектирования. Серия 1.423.1-3/88 была разработана институтом ГПИ ПРОМСТРОЙПРОЕКТ совместно с НИИЖБ и введён в действие в действие с 1989 года. В состав регламента входит десять выпусков, содержащих подробную информацию о производстве железобетонных колонн, которые используются для строительства одноэтажных промышленных предприятий, имеющих высоту до 9,6 метров. В возводимых сооружениях недопустимо наличие мостовых опорных кранов.

picture_as_pdf

1099.pdf

15,577.5 KB

скачать
picture_as_pdf

1100.pdf

14,411.1 KB

скачать
picture_as_pdf

1101.pdf

19,772.2 KB

скачать
picture_as_pdf

1102.pdf

11,878.6 KB

скачать
picture_as_pdf

1103.pdf

12,160.8 KB

скачать
picture_as_pdf

1104.pdf

16,257.0 KB

скачать
picture_as_pdf

1105.pdf

15,848.6 KB

скачать
picture_as_pdf

1106.pdf

17,532.9 KB

скачать
picture_as_pdf

1107.pdf

657.4 KB

скачать
picture_as_pdf

1108.pdf

18,275.0 KB

скачать
Похожие товары
1К 30-2 м3 с
Колонны железобетонные Серия 1.423.1-3/88
  • Длина 3800 мм.
  • Ширина 300 мм.
  • Высота 300 мм.
  • Вес 860 кг.
  • Объем бетона 0,34 м3
  • Геометрический объем 0,342 м3
Цена: 8575 руб.
Подробнее
1К 36-1 м2
Колонны железобетонные Серия 1.423.1-3/88
  • Длина 4400 мм.
  • Ширина 300 мм.
  • Высота 300 мм.
  • Вес 1000 кг.
  • Объем бетона 0,396 м3
  • Геометрический объем 0,396 м3
Цена: 9987 руб.
Подробнее
1К 30-4 м3 с
Колонны железобетонные Серия 1.423.1-3/88
  • Длина 3800 мм.
  • Ширина 300 мм.
  • Высота 300 мм.
  • Вес 860 кг.
  • Объем бетона 0,34 м3
  • Геометрический объем 0,342 м3
Цена: 8575 руб.
Подробнее
1К 30-3 м3 с
Колонны железобетонные Серия 1.423.1-3/88
  • Длина 3800 мм.
  • Ширина 300 мм.
  • Высота 300 мм.
  • Вес 860 кг.
  • Объем бетона 0,34 м3
  • Геометрический объем 0,342 м3
Цена: 8575 руб.
Подробнее
Ранее смотрели
Колонны железобетонные Серия 1.423.1-3/88 2К 78-8 м3 с
2К 78-8 м3 с
Колонны железобетонные Серия 1.423.1-3/88
Колонны сечением 400х400 мм для зданий с высотами этажей 5,4-6,0 и 6,0 (7,2) м Серия 1.020.1-2с/89 2КН 60-148-13 с
2КН 60-148-13 с
Колонны сечением 400х400 мм для зданий с высотами этажей 5,4-6,0 и 6,0 (7,2) м Серия 1.020.1-2с/89
Плиты ребристые серия 1.465.1-20 ( 1.465.1-7/84 ) 4ПГ 6-5 АIV н
4ПГ 6-5 АIV н
Плиты ребристые серия 1.465.1-20 ( 1.465.1-7/84 )
Колонны сечением 400х400 мм для зданий с высотами этажей 4,8 и 4,8 (6,0) м Серия 1.020.1-2с/89 5КС 48-48-6 н
5КС 48-48-6 н
Колонны сечением 400х400 мм для зданий с высотами этажей 4,8 и 4,8 (6,0) м Серия 1.020.1-2с/89
Колонны сечением 400х400 мм для зданий с высотами этажей 3,3 м Серия 1.020.1-2с/89 4КБ 33-110-4
4КБ 33-110-4
Колонны сечением 400х400 мм для зданий с высотами этажей 3,3 м Серия 1.020.1-2с/89
Колонны сечением 400х400 мм для зданий с высотами этажей 3,3 м Серия 1.020.1-2с/89 4КБ 33-44-5
4КБ 33-44-5
Колонны сечением 400х400 мм для зданий с высотами этажей 3,3 м Серия 1.020.1-2с/89
Колонны железобетонные Серия 1.423.1-3/88 2К 54-6 м3 с
2К 54-6 м3 с
Колонны железобетонные Серия 1.423.1-3/88
Колонны для зданий высотой 12,0; 13,2 и 14,4 м Серия 1.424.1-5 5К 132-22 с
5К 132-22 с
Колонны для зданий высотой 12,0; 13,2 и 14,4 м Серия 1.424.1-5
Вопросы? 5 вещей, которые нужно узнать за 5 минут или меньше.
Чтобы узнать больше о нас, ознакомьтесь с нашими техническими документами
или свяжитесь с нами.

Да. Мы изготавливаем ЖБИ по индивидуальным чертежам и размерам, учитывая специфику вашего проекта.

Да. Для крупных заказов и постоянных партнёров действуют специальные цены и индивидуальные условия сотрудничества.

Мы располагаем собственным автопарком для доставки ЖБИ, а также организуем железнодорожные и морские перевозки при необходимости.

Уведомление о файлах cookie

Мы используем файлы cookie для улучшения вашего опыта просмотра и анализа трафика. Нажимая "Принять все", вы соглашаетесь с нашей политикой конфиденциальности и политикой обработки файлов cookie.

MAX Дзен Телеграм Вконтакте vk