mobile_sound +7 (930) 655-55-90
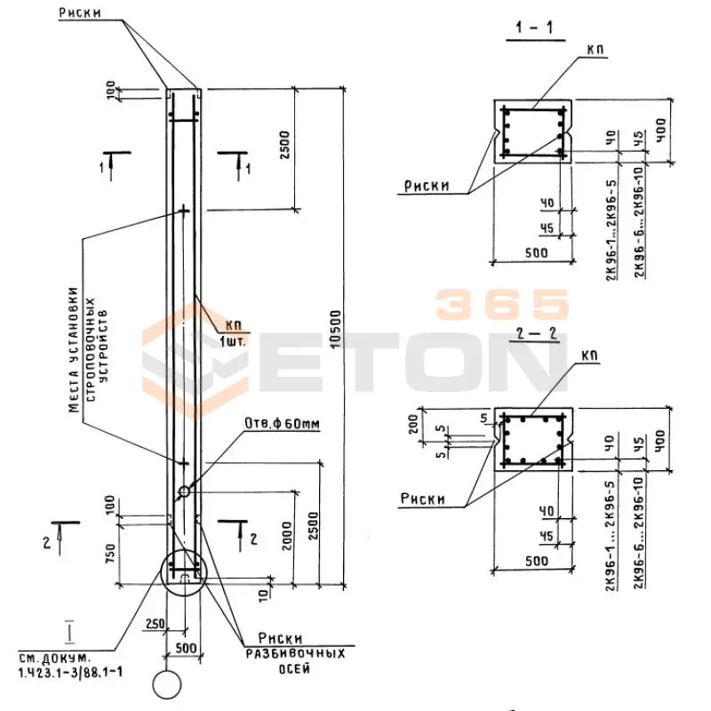
Плиты ребристые Серия 1.465.1-13 1ПВ 18-7 к7 т-4,1

Плиты ребристые Серия 1.465.1-13 1ПВ 18-7 к7 т-4,1

Поделиться:
  • ГОСТ, Серия Серия 1.465.1-13
  • Длина 17940 мм.
  • Ширина 2930 мм.
  • Высота 600 мм.
  • Вес 11700 кг.
  • Объем бетона 4,6 м3
  • Геометрический объем 31,5385 м3
Внешний вид товаров и/или упаковки может быть изменён изготовителем и отличаться от изображенных на .
Цена: 132968 руб.
credit_card
Принимаем оплату в любой форме
delivery_truck_speed
Доставка по МСК и МО
deployed_code_history
Круглосуточная отгрузка товара без выходных
hand_package
Срок поставки на следующий день
star_shine
Контроль качества на каждом этапе

Стандарт изготовления изделия: Серия 1.465.1-13

Ребристая плита 1ПВ 18-7 к7 т-4,1 представляет собой надежную железобетонную конструкцию П-образного сечения, которая благодаря особой системе ребер жесткости (как продольных, так и поперечных) обладает исключительной несущей способностью. Эти конструктивные особенности позволяют изделию сохранять геометрическую стабильность даже под воздействием значительных эксплуатационных нагрузок.

Между ребрами плиты расположены плоские полки, которые согласно техническим требованиям могут быть как сплошными, так и иметь специальные проемы. Эти технологические отверстия в процессе строительства используются для монтажа инженерных коммуникаций - вентиляционных шахт, осветительных фонарей или элементов кровельной системы.

Область применения

Хотя ребристые плиты широко применяются в различных строительных конструкциях, модель 1ПВ 18-7 к7 т-4,1 согласно нормативным документам рекомендуется преимущественно для возведения одноэтажных промышленных зданий, где она выполняет функцию малоуклонного покрытия.

Расшифровка маркировки

Для удобства идентификации в строительной номенклатуре каждой плите присваивается уникальная маркировка, содержащая всю необходимую информацию о ее характеристиках:

  • 1 - обозначение типоразмера конструкции
  • ПВ - тип плиты с вентиляционным проемом
  • 18 - длина изделия в метрах
  • 7 - показатель допустимой нагрузки
  • к7 - класс напрягаемой арматуры
  • т - использование тяжелого бетона
  • 4 - диаметр технологического отверстия в дециметрах
  • 1 - наличие закладных деталей и специальных выемок для монтажа

Технология производства

Изготовление плит осуществляется в соответствии с требованиями Серии 1.465.1-13 по двум основным технологиям: агрегатно-поточной или стендовой, с использованием стальных форм. В производстве применяются различные виды бетона:

  • Тяжелые марки М300-М600
  • Легкие на пористых заполнителях (керамзитобетон, шлакопемзобетон) марки М300-М400

Выбор конкретного материала зависит от условий эксплуатации - для слабоагрессивных сред используется бетон нормальной плотности (W4), для среднеагрессивных - повышенной плотности (W6).

Армирование и дополнительные элементы

Для усиления конструкции применяется:

  • Напрягаемая арматура (класс подбирается в зависимости от условий эксплуатации)
  • Ненапрягаемая арматура (стержни класса А-III и проволока Вр-I)
  • Закладные детали из углеродистой стали ВСт3кп2
  • Монтажные петли из арматуры класса А-I

Требования к качеству

Лицевая поверхность плиты должна соответствовать категории А6, а невидимые при эксплуатации поверхности - категории А7.

Транспортировка и хранение

При складировании и перевозке плиты укладываются горизонтально в штабеля высотой не более трех единиц. Между рядами обязательно устанавливаются специальные прокладки толщиной 4 см, расположенные строго друг над другом на расстоянии 5 см от торцов. Для погрузочно-разгрузочных работ используются траверсы, а транспортировка осуществляется специализированным транспортом - автоплитовозами или железнодорожными платформами с турникетами.

Такая система хранения и перевозки гарантирует сохранность изделий и их технических характеристик до момента монтажа на строительном объекте.

Серия 1.465.1-13

Подробнее

Документ Серия 1.465.1-13 описывает область применения, номенклатуру и ключевые требования, опираясь на действующие нормы и практику проектирования. Серия 1.465.1-13 описывает последовательность производства железобетонных плит, имеющих размеры 3х18 метров и применяемых в качестве элементов покрытий при строительстве одноэтажных сооружений производственных предприятий, имеющих кровлю с малым уклоном. Кроме рекомендаций по подбору сырья, в зависимости от климатических особенностей в регионе строительства, в документе представлено несколько способов армирования: стрежневой сталью и с использованием предварительно напряженной арматуры. Это позволяет расширить способы применения разных изделия и конструкции в зависимости от экономической целесообразности и величин воздействующих нагрузок.

picture_as_pdf

2733.pdf

27,870.0 KB

скачать
picture_as_pdf

2734.pdf

7,258.5 KB

скачать
Похожие товары
1ПВ 18-1 АIIIв л-10,1
Плиты ребристые Серия 1.465.1-13
  • Длина 17940 мм.
  • Ширина 2930 мм.
  • Высота 600 мм.
  • Вес 9000 кг.
  • Объем бетона 4,6 м3
  • Геометрический объем 31,5385 м3
Цена: 132968 руб.
Подробнее
1ПВ 18-1 АIIIв л-10,1*
Плиты ребристые Серия 1.465.1-13
  • Длина 17940 мм.
  • Ширина 2930 мм.
  • Высота 600 мм.
  • Вес 10600 кг.
  • Объем бетона 4,6 м3
  • Геометрический объем 31,5385 м3
Цена: 132968 руб.
Подробнее
1ПВ 18-1 АIIIв л-10
Плиты ребристые Серия 1.465.1-13
  • Длина 17940 мм.
  • Ширина 2930 мм.
  • Высота 600 мм.
  • Вес 8900 кг.
  • Объем бетона 4,6 м3
  • Геометрический объем 31,5385 м3
Цена: 132968 руб.
Подробнее
1ПВ 18-1 АIIIв л-10*
Плиты ребристые Серия 1.465.1-13
  • Длина 17940 мм.
  • Ширина 2930 мм.
  • Высота 600 мм.
  • Вес 10500 кг.
  • Объем бетона 4,6 м3
  • Геометрический объем 31,5385 м3
Цена: 132968 руб.
Подробнее
Ранее смотрели
Плиты перекрытия многопустотные Серия 1.141.1-32с ПК 71-15-8 АIVт с7а
ПК 71-15-8 АIVт с7а
Плиты перекрытия многопустотные Серия 1.141.1-32с
Плиты многопустотные ТУ 5842-001-01217316-05 ПБ 2-78-15-12,5 к7
ПБ 2-78-15-12,5 к7
Плиты многопустотные ТУ 5842-001-01217316-05
Плиты ребристые Серия 1.465.1-13 1ПФ 18-2 АIIIв л-5
1ПФ 18-2 АIIIв л-5
Плиты ребристые Серия 1.465.1-13
Плиты перекрытия многопустотные Серия 1.141.1-32с ПК 59-15-8 АIVт с9
ПК 59-15-8 АIVт с9
Плиты перекрытия многопустотные Серия 1.141.1-32с
Плиты ребристые Серия 1.465.1-13 1ПГ 18-6 АIIIв т
1ПГ 18-6 АIIIв т
Плиты ребристые Серия 1.465.1-13
Плиты ребристые Серия 1.465.1-13 1ПВ 18-7 к7 т-4,1
1ПВ 18-7 к7 т-4,1
Плиты ребристые Серия 1.465.1-13
Плиты перекрытия многопустотные Серия 1.041.1-2 ПК 56-15-7 АIV п-2
ПК 56-15-7 АIV п-2
Плиты перекрытия многопустотные Серия 1.041.1-2
Плиты многопустотные ТУ 5842-001-01217316-05 ПБ 3-42-12-12 к7
ПБ 3-42-12-12 к7
Плиты многопустотные ТУ 5842-001-01217316-05
Вопросы? 5 вещей, которые нужно узнать за 5 минут или меньше.
Чтобы узнать больше о нас, ознакомьтесь с нашими техническими документами
или свяжитесь с нами.

Да. Мы изготавливаем ЖБИ по индивидуальным чертежам и размерам, учитывая специфику вашего проекта.

Да. Для крупных заказов и постоянных партнёров действуют специальные цены и индивидуальные условия сотрудничества.

Мы располагаем собственным автопарком для доставки ЖБИ, а также организуем железнодорожные и морские перевозки при необходимости.

Уведомление о файлах cookie

Мы используем файлы cookie для улучшения вашего опыта просмотра и анализа трафика. Нажимая "Принять все", вы соглашаетесь с нашей политикой конфиденциальности и политикой обработки файлов cookie.

Дзен Телеграм Вконтакте vk