mobile_sound +7 (930) 655-55-90

Техническая документация и чертежи (ТП 811-29)

Поделиться:
Поделиться:

Документ ТП 811-29 описывает область применения, номенклатуру и ключевые требования, опираясь на действующие нормы и практику проектирования. Типовой проект 811-29 разрабатывался проектным институтом ГИПРОНИСЕЛЬХОЗ специально для отражения информации по строительству траншей, предназначенных для хранения силоса. Номенклатурный перечень включает в себя стеновые блоки, плиты, фундаменты и контрфорсы. Элементы не рассчитаны на применение на территориях с вечной мерзлотой, пучинистых и просадочных грунтах.

Файлы для скачивания:
picture_as_pdf

2263.pdf

8,326.3 KB

скачать
Товары ТП 811-29 (5)
СБТ
Блоки стеновые ТП 811-29
  • Длина 1700 мм.
  • Ширина 1490 мм.
  • Высота 3700 мм.
  • Вес 2850 кг.
  • Объем бетона 1,13 м3
  • Геометрический объем 9,3721 м3
Цена: 10961 руб.
Подробнее
П 1
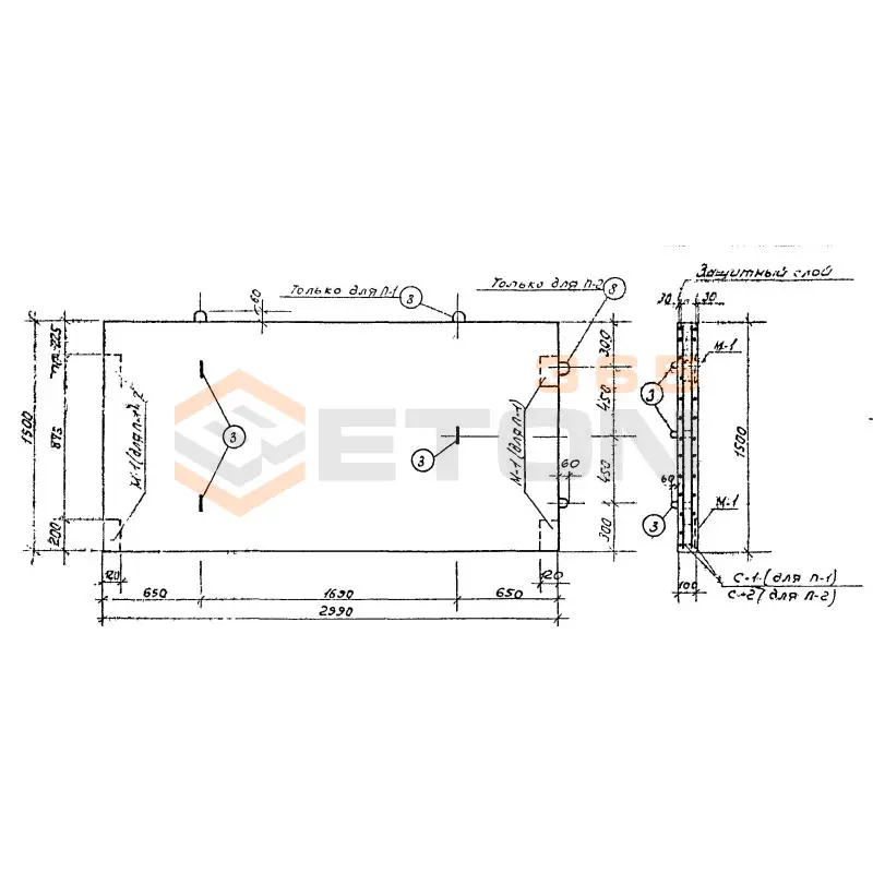
Плиты ТП 811-29
  • Длина 2990 мм.
  • Ширина 1500 мм.
  • Высота 100 мм.
  • Вес 1125 кг.
  • Объем бетона 0,45 м3
  • Геометрический объем 0,4485 м3
Цена: 15278 руб.
Подробнее
П 2
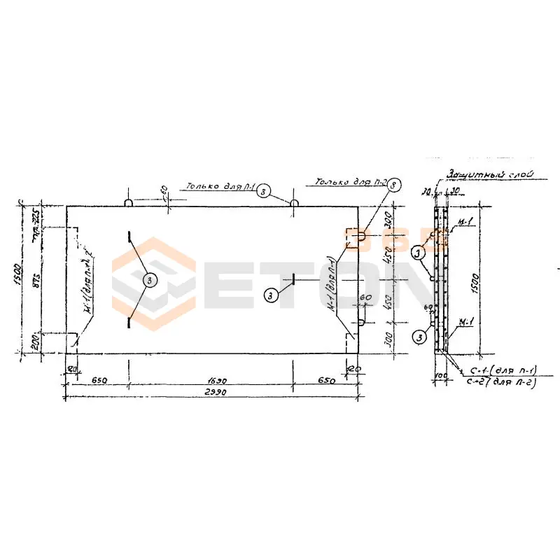
Плиты ТП 811-29
  • Длина 2990 мм.
  • Ширина 1500 мм.
  • Высота 100 мм.
  • Вес 1125 кг.
  • Объем бетона 0,45 м3
  • Геометрический объем 0,4485 м3
Цена: 15278 руб.
Подробнее
ФП
Плиты фундаментные ТП 811-29
  • Длина 1800 мм.
  • Ширина 800 мм.
  • Высота 200 мм.
  • Вес 675 кг.
  • Объем бетона 0,29 м3
  • Геометрический объем 0,288 м3
Цена: 7595 руб.
Подробнее
КФ
Контрфорсы ТП 811-29
  • Длина 1500 мм.
  • Ширина 200 мм.
  • Высота 3000 мм.
  • Вес 900 кг.
  • Объем бетона 0,37 м3
  • Геометрический объем 0,9 м3
Цена: 9690 руб.
Подробнее

Уведомление о файлах cookie

Мы используем файлы cookie для улучшения вашего опыта просмотра и анализа трафика. Нажимая "Принять все", вы соглашаетесь с нашей политикой конфиденциальности и политикой обработки файлов cookie.

MAX Дзен Телеграм Вконтакте vk