mobile_sound +7 (930) 655-55-90

Железобетонные опоры линий электропередачи. Рабочие чертежи (Серия СТ 02-31)

Поделиться:
Поделиться:

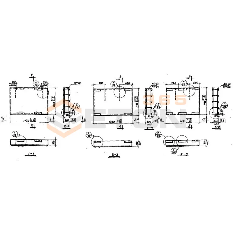
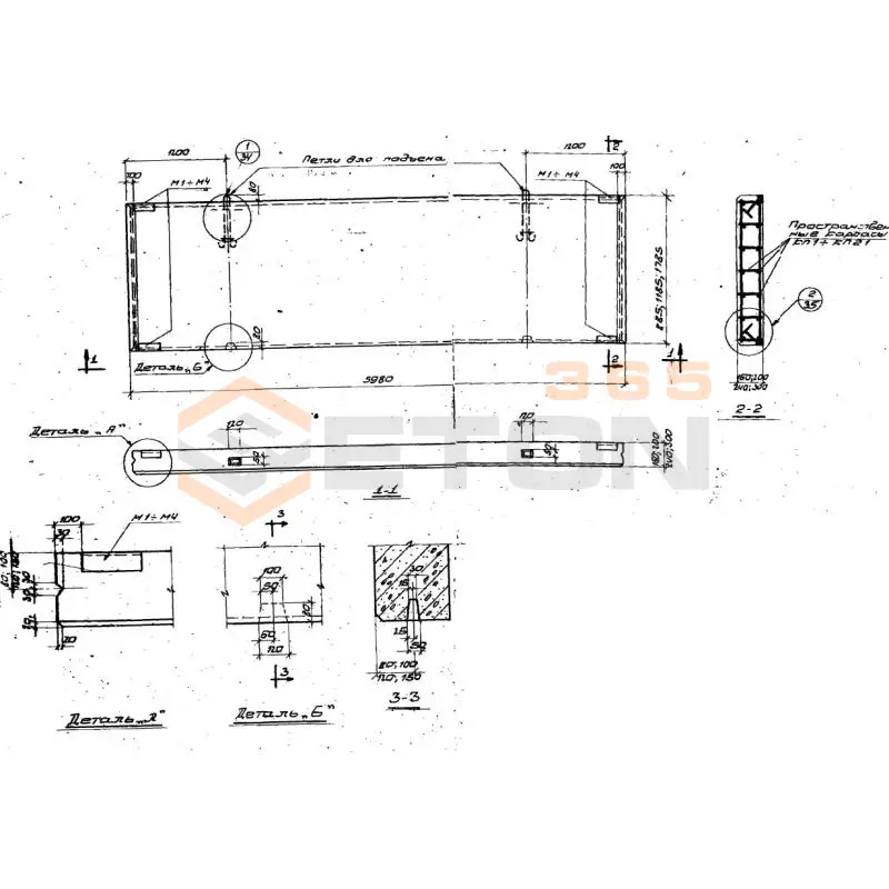
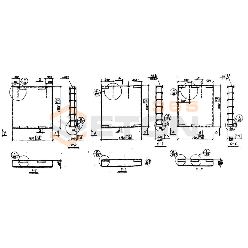
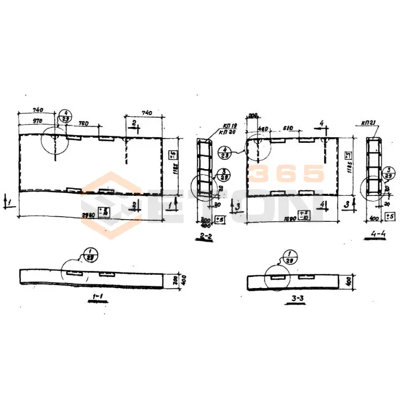
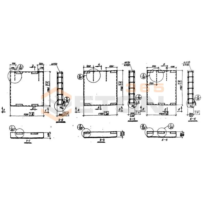
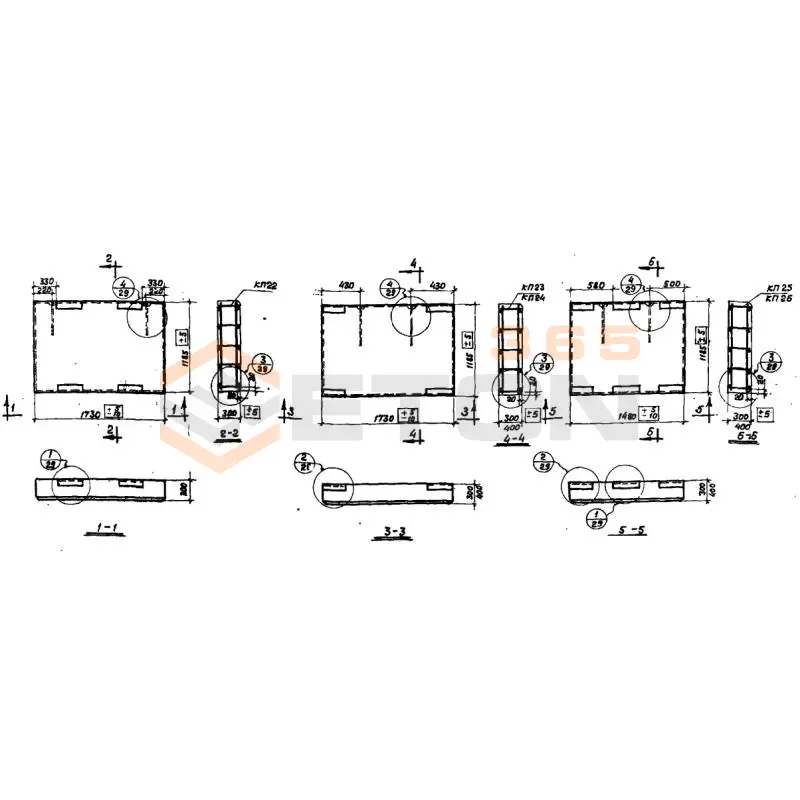
Документ Серия СТ 02-31 описывает область применения, номенклатуру и ключевые требования, опираясь на действующие нормы и практику проектирования. Строительство промышленных сооружений и производственных предприятий требует ответственного подхода, особенно в объектах с шагом колонн равным 6 метров. Для этого требуются унифицированные стеновые панели, легкие при монтаже и обладающие прочными и надежными креплениями. Именно такие конструкции описываются в Серии СТ 02-31.

Файлы для скачивания:
picture_as_pdf

5567.pdf

3,871.2 KB

скачать
picture_as_pdf

5568.pdf

4,518.1 KB

скачать
picture_as_pdf

5569.pdf

1,874.1 KB

скачать
picture_as_pdf

5570.pdf

1,005.6 KB

скачать
picture_as_pdf

5571.pdf

1,768.8 KB

скачать
picture_as_pdf

5572.pdf

2,816.9 KB

скачать
picture_as_pdf

5573.pdf

4,537.0 KB

скачать
Товары Серия СТ 02-31 (60)
ПСЛ 40-2-1,2-1,15 (СТ 02-31)
Панели стеновые Серия СТ 02-31
  • Длина 1140 мм.
  • Ширина 400 мм.
  • Высота 1185 мм.
  • Вес 600 кг.
  • Объем бетона 0,42 м3
  • Геометрический объем 0,5404 м3
Цена: 14259 руб.
Подробнее
ПСЛ 40-2-1,2-1,0 (СТ 02-31)
Панели стеновые Серия СТ 02-31
  • Длина 960 мм.
  • Ширина 400 мм.
  • Высота 1185 мм.
  • Вес 600 кг.
  • Объем бетона 0,48 м3
  • Геометрический объем 0,455 м3
Цена: 16296 руб.
Подробнее
ПСЛ 40-2-1,2-1,5 (СТ 02-31)
Панели стеновые Серия СТ 02-31
  • Длина 1480 мм.
  • Ширина 400 мм.
  • Высота 1185 мм.
  • Вес 1100 кг.
  • Объем бетона 0,72 м3
  • Геометрический объем 0,7015 м3
Цена: 24444 руб.
Подробнее
ПСЛ 40-2-1,2-1,75 (СТ 02-31)
Панели стеновые Серия СТ 02-31
  • Длина 1730 мм.
  • Ширина 400 мм.
  • Высота 1185 мм.
  • Вес 1200 кг.
  • Объем бетона 0,84 м3
  • Геометрический объем 0,82 м3
Цена: 28518 руб.
Подробнее
ПСЛ 40-2-1,2-1,9 (СТ 02-31)
Панели стеновые Серия СТ 02-31
  • Длина 1890 мм.
  • Ширина 400 мм.
  • Высота 1185 мм.
  • Вес 1300 кг.
  • Объем бетона 0,91 м3
  • Геометрический объем 0,8959 м3
Цена: 30895 руб.
Подробнее
ПСЛ 40-2-1,2-3,0 (СТ 02-31)
Панели стеновые Серия СТ 02-31
  • Длина 2980 мм.
  • Ширина 400 мм.
  • Высота 1185 мм.
  • Вес 2000 кг.
  • Объем бетона 1,44 м3
  • Геометрический объем 1,4125 м3
Цена: 48888 руб.
Подробнее
ПСЛ 40-2-1,2-6,25 (СТ 02-31)
Панели стеновые Серия СТ 02-31
  • Длина 6230 мм.
  • Ширина 400 мм.
  • Высота 1185 мм.
  • Вес 4200 кг.
  • Объем бетона 2,96 м3
  • Геометрический объем 2,953 м3
Цена: 100492 руб.
Подробнее
ПСЛ 40-2-1,2-6,4 (СТ 02-31)
Панели стеновые Серия СТ 02-31
  • Длина 6400 мм.
  • Ширина 400 мм.
  • Высота 1185 мм.
  • Вес 4300 кг.
  • Объем бетона 3,04 м3
  • Геометрический объем 3,0336 м3
Цена: 103208 руб.
Подробнее
ПСЛ 40-2-1,2-6 (СТ 02-31)
Панели стеновые Серия СТ 02-31
  • Длина 5980 мм.
  • Ширина 400 мм.
  • Высота 1185 мм.
  • Вес 4000 кг.
  • Объем бетона 2,93 м3
  • Геометрический объем 2,8345 м3
Цена: 99474 руб.
Подробнее
ПСЛ 40-2-1,8-0,75 (СТ 02-31)
Панели стеновые Серия СТ 02-31
  • Длина 730 мм.
  • Ширина 400 мм.
  • Высота 1785 мм.
  • Вес 700 кг.
  • Объем бетона 0,54 м3
  • Геометрический объем 0,5212 м3
Цена: 18333 руб.
Подробнее
ПСЛ 40-2-1,8-1,0 (СТ 02-31)
Панели стеновые Серия СТ 02-31
  • Длина 960 мм.
  • Ширина 400 мм.
  • Высота 1785 мм.
  • Вес 1100 кг.
  • Объем бетона 0,72 м3
  • Геометрический объем 0,6854 м3
Цена: 24444 руб.
Подробнее
ПСЛ 40-2-1,8-1,15 (СТ 02-31)
Панели стеновые Серия СТ 02-31
  • Длина 1140 мм.
  • Ширина 400 мм.
  • Высота 1785 мм.
  • Вес 1100 кг.
  • Объем бетона 0,82 м3
  • Геометрический объем 0,814 м3
Цена: 27839 руб.
Подробнее
ПСЛ 40-2-1,8-1,5 (СТ 02-31)
Панели стеновые Серия СТ 02-31
  • Длина 1480 мм.
  • Ширина 400 мм.
  • Высота 1785 мм.
  • Вес 1600 кг.
  • Объем бетона 1,08 м3
  • Геометрический объем 1,0567 м3
Цена: 36666 руб.
Подробнее
ПСЛ 40-2-1,8-1,75 (СТ 02-31)
Панели стеновые Серия СТ 02-31
  • Длина 1730 мм.
  • Ширина 400 мм.
  • Высота 1785 мм.
  • Вес 1700 кг.
  • Объем бетона 1,27 м3
  • Геометрический объем 1,2352 м3
Цена: 43117 руб.
Подробнее
ПСЛ 40-2-1,8-6 (СТ 02-31)
Панели стеновые Серия СТ 02-31
  • Длина 5980 мм.
  • Ширина 400 мм.
  • Высота 1785 мм.
  • Вес 6000 кг.
  • Объем бетона 4,32 м3
  • Геометрический объем 4,2697 м3
Цена: 146664 руб.
Подробнее
ПСЛ 40-2-1,8-1,9 (СТ 02-31)
Панели стеновые Серия СТ 02-31
  • Длина 1890 мм.
  • Ширина 400 мм.
  • Высота 1785 мм.
  • Вес 1900 кг.
  • Объем бетона 1,37 м3
  • Геометрический объем 1,3495 м3
Цена: 46512 руб.
Подробнее
ПСЛ 40-2-1,8-3,0 (СТ 02-31)
Панели стеновые Серия СТ 02-31
  • Длина 2980 мм.
  • Ширина 400 мм.
  • Высота 1785 мм.
  • Вес 3000 кг.
  • Объем бетона 2,14 м3
  • Геометрический объем 2,1277 м3
Цена: 72653 руб.
Подробнее
ПСЛ 40-2-1,8-6,4 (СТ 02-31)
Панели стеновые Серия СТ 02-31
  • Длина 6400 мм.
  • Ширина 400 мм.
  • Высота 1785 мм.
  • Вес 4300 кг.
  • Объем бетона 3,04 м3
  • Геометрический объем 4,5696 м3
Цена: 103208 руб.
Подробнее
ПСЛ 40-2-1,8-6,25 (СТ 02-31)
Панели стеновые Серия СТ 02-31
  • Длина 6230 мм.
  • Ширина 400 мм.
  • Высота 1785 мм.
  • Вес 6800 кг.
  • Объем бетона 4,44 м3
  • Геометрический объем 4,4482 м3
Цена: 150738 руб.
Подробнее
ПСЛ 40-2а-1,2-6 (СТ 02-31)
Панели стеновые Серия СТ 02-31
  • Длина 5980 мм.
  • Ширина 400 мм.
  • Высота 1185 мм.
  • Вес 4000 кг.
  • Объем бетона 2,93 м3
  • Геометрический объем 2,8345 м3
Цена: 99474 руб.
Подробнее
ПСЛ 40-2г-1,8-6 (СТ 02-31)
Панели стеновые Серия СТ 02-31
  • Длина 5980 мм.
  • Ширина 400 мм.
  • Высота 1785 мм.
  • Вес 4000 кг.
  • Объем бетона 2,83 м3
  • Геометрический объем 4,2697 м3
Цена: 96079 руб.
Подробнее
ПСЛ 40-2а-1,2-6,4 (СТ 02-31)
Панели стеновые Серия СТ 02-31
  • Длина 6400 мм.
  • Ширина 400 мм.
  • Высота 1185 мм.
  • Вес 4300 кг.
  • Объем бетона 3,04 м3
  • Геометрический объем 3,0336 м3
Цена: 103208 руб.
Подробнее
ПСЛ 40-2б-1,2-1,5 (СТ 02-31)
Панели стеновые Серия СТ 02-31
  • Длина 1480 мм.
  • Ширина 400 мм.
  • Высота 1185 мм.
  • Вес 1100 кг.
  • Объем бетона 0,73 м3
  • Геометрический объем 0,7015 м3
Цена: 24784 руб.
Подробнее
ПСЛ 40-2б-1,2-6,4 (СТ 02-31)
Панели стеновые Серия СТ 02-31
  • Длина 6400 мм.
  • Ширина 400 мм.
  • Высота 1185 мм.
  • Вес 4300 кг.
  • Объем бетона 3,04 м3
  • Геометрический объем 3,0336 м3
Цена: 103208 руб.
Подробнее
ПСЛ 40-2б-1,2-6 (СТ 02-31)
Панели стеновые Серия СТ 02-31
  • Длина 5980 мм.
  • Ширина 400 мм.
  • Высота 1185 мм.
  • Вес 4000 кг.
  • Объем бетона 2,93 м3
  • Геометрический объем 2,8345 м3
Цена: 99474 руб.
Подробнее
ПСЛ 40-2б-1,8-1,5 (СТ 02-31)
Панели стеновые Серия СТ 02-31
  • Длина 1480 мм.
  • Ширина 400 мм.
  • Высота 1785 мм.
  • Вес 1600 кг.
  • Объем бетона 1,08 м3
  • Геометрический объем 1,0567 м3
Цена: 36666 руб.
Подробнее
ПСЛ 40-2г-1,8-6,25 (СТ 02-31)
Панели стеновые Серия СТ 02-31
  • Длина 6230 мм.
  • Ширина 400 мм.
  • Высота 1785 мм.
  • Вес 4200 кг.
  • Объем бетона 2,86 м3
  • Геометрический объем 4,4482 м3
Цена: 97097 руб.
Подробнее
ПСЛ 40-3-1,2-6,25 (СТ 02-31)
Панели стеновые Серия СТ 02-31
  • Длина 6230 мм.
  • Ширина 400 мм.
  • Высота 1185 мм.
  • Вес 4200 кг.
  • Объем бетона 2,96 м3
  • Геометрический объем 2,953 м3
Цена: 100492 руб.
Подробнее
ПСЛ 40-2д-1,8-6,25 (СТ 02-31)
Панели стеновые Серия СТ 02-31
  • Длина 6230 мм.
  • Ширина 400 мм.
  • Высота 1785 мм.
  • Вес 4200 кг.
  • Объем бетона 2,96 м3
  • Геометрический объем 4,4482 м3
Цена: 100492 руб.
Подробнее
ПСЛ 40-3-1,2-6 (СТ 02-31)
Панели стеновые Серия СТ 02-31
  • Длина 5980 мм.
  • Ширина 400 мм.
  • Высота 1185 мм.
  • Вес 4000 кг.
  • Объем бетона 2,93 м3
  • Геометрический объем 2,8345 м3
Цена: 99474 руб.
Подробнее
ПСЛ 40-2д-1,8-6 (СТ 02-31)
Панели стеновые Серия СТ 02-31
  • Длина 5980 мм.
  • Ширина 400 мм.
  • Высота 1785 мм.
  • Вес 4600 кг.
  • Объем бетона 2,83 м3
  • Геометрический объем 4,2697 м3
Цена: 96079 руб.
Подробнее
ПСЛ 40-3-1,2-6,4 (СТ 02-31)
Панели стеновые Серия СТ 02-31
  • Длина 6400 мм.
  • Ширина 400 мм.
  • Высота 1185 мм.
  • Вес 4300 кг.
  • Объем бетона 3,04 м3
  • Геометрический объем 3,0336 м3
Цена: 103208 руб.
Подробнее
ПСЛ 40-3-1,8-6 (СТ 02-31)
Панели стеновые Серия СТ 02-31
  • Длина 5980 мм.
  • Ширина 400 мм.
  • Высота 1785 мм.
  • Вес 6000 кг.
  • Объем бетона 4,32 м3
  • Геометрический объем 4,2697 м3
Цена: 146664 руб.
Подробнее
ПСЛ 40-3-1,8-6,25 (СТ 02-31)
Панели стеновые Серия СТ 02-31
  • Длина 6230 мм.
  • Ширина 400 мм.
  • Высота 1785 мм.
  • Вес 6800 кг.
  • Объем бетона 4,44 м3
  • Геометрический объем 4,4482 м3
Цена: 150738 руб.
Подробнее
ПСЛ 40-3-1,8-6,4 (СТ 02-31)
Панели стеновые Серия СТ 02-31
  • Длина 6400 мм.
  • Ширина 400 мм.
  • Высота 1785 мм.
  • Вес 4300 кг.
  • Объем бетона 3,04 м3
  • Геометрический объем 4,5696 м3
Цена: 103208 руб.
Подробнее
ПСЛ 40-3в-1,2-6 (СТ 02-31)
Панели стеновые Серия СТ 02-31
  • Длина 5980 мм.
  • Ширина 400 мм.
  • Высота 1185 мм.
  • Вес 4000 кг.
  • Объем бетона 2,93 м3
  • Геометрический объем 2,8345 м3
Цена: 99474 руб.
Подробнее
ПСЛ 40-3в-1,2-6,25 (СТ 02-31)
Панели стеновые Серия СТ 02-31
  • Длина 6230 мм.
  • Ширина 400 мм.
  • Высота 1185 мм.
  • Вес 4200 кг.
  • Объем бетона 2,96 м3
  • Геометрический объем 2,953 м3
Цена: 100492 руб.
Подробнее
ПСЛ 40-3в-1,8-6 (СТ 02-31)
Панели стеновые Серия СТ 02-31
  • Длина 5980 мм.
  • Ширина 400 мм.
  • Высота 1785 мм.
  • Вес 6000 кг.
  • Объем бетона 4,32 м3
  • Геометрический объем 4,2697 м3
Цена: 146664 руб.
Подробнее
ПСЛ 40-3в-1,8-6,25 (СТ 02-31)
Панели стеновые Серия СТ 02-31
  • Длина 6230 мм.
  • Ширина 400 мм.
  • Высота 1785 мм.
  • Вес 6800 кг.
  • Объем бетона 4,44 м3
  • Геометрический объем 4,4482 м3
Цена: 150738 руб.
Подробнее
ПСЛ 40-3в-1,8-6,4 (СТ 02-31)
Панели стеновые Серия СТ 02-31
  • Длина 6400 мм.
  • Ширина 400 мм.
  • Высота 1785 мм.
  • Вес 4300 кг.
  • Объем бетона 3,04 м3
  • Геометрический объем 4,5696 м3
Цена: 103208 руб.
Подробнее
ПСЛ 40-3в-1,2-6,4 (СТ 02-31)
Панели стеновые Серия СТ 02-31
  • Длина 6400 мм.
  • Ширина 400 мм.
  • Высота 1185 мм.
  • Вес 4300 кг.
  • Объем бетона 3,04 м3
  • Геометрический объем 3,0336 м3
Цена: 103208 руб.
Подробнее
ПСТ 28-1-1-1,2-6 (СТ 02-31)
Панели стеновые Серия СТ 02-31
  • Длина 5980 мм.
  • Ширина 280 мм.
  • Высота 1185 мм.
  • Вес 1900 кг.
  • Объем бетона 0,58 м3
  • Геометрический объем 1,9842 м3
Цена: 19691 руб.
Подробнее
ПСТ 28-1-1,8-6 (СТ 02-31)
Панели стеновые Серия СТ 02-31
  • Длина 5980 мм.
  • Ширина 280 мм.
  • Высота 1785 мм.
  • Вес 2700 кг.
  • Объем бетона 1 м3
  • Геометрический объем 2,9888 м3
Цена: 33950 руб.
Подробнее
ПСТ 28-1-2-1,2-6 (СТ 02-31)
Панели стеновые Серия СТ 02-31
  • Длина 5980 мм.
  • Ширина 280 мм.
  • Высота 1185 мм.
  • Вес 1900 кг.
  • Объем бетона 0,58 м3
  • Геометрический объем 1,9842 м3
Цена: 19691 руб.
Подробнее
ПСТ 28-1-1,2-6 (СТ 02-31)
Панели стеновые Серия СТ 02-31
  • Длина 5980 мм.
  • Ширина 280 мм.
  • Высота 1185 мм.
  • Вес 1800 кг.
  • Объем бетона 0,58 м3
  • Геометрический объем 1,9842 м3
Цена: 19691 руб.
Подробнее
ПСТ 28-1-2-1,8-6 (СТ 02-31)
Панели стеновые Серия СТ 02-31
  • Длина 5980 мм.
  • Ширина 280 мм.
  • Высота 1785 мм.
  • Вес 2700 кг.
  • Объем бетона 1 м3
  • Геометрический объем 2,9888 м3
Цена: 33950 руб.
Подробнее
ПСТ 28-1-1-1,8-6 (СТ 02-31)
Панели стеновые Серия СТ 02-31
  • Длина 5980 мм.
  • Ширина 280 мм.
  • Высота 1785 мм.
  • Вес 2700 кг.
  • Объем бетона 1 м3
  • Геометрический объем 2,9888 м3
Цена: 33950 руб.
Подробнее
ПСТ 28-1а-1-1,2-6 (СТ 02-31)
Панели стеновые Серия СТ 02-31
  • Длина 5980 мм.
  • Ширина 280 мм.
  • Высота 1185 мм.
  • Вес 1900 кг.
  • Объем бетона 0,58 м3
  • Геометрический объем 1,9842 м3
Цена: 19691 руб.
Подробнее
ПСТ 28-1а-1,2-6 (СТ 02-31)
Панели стеновые Серия СТ 02-31
  • Длина 5980 мм.
  • Ширина 280 мм.
  • Высота 1185 мм.
  • Вес 1800 кг.
  • Объем бетона 0,58 м3
  • Геометрический объем 1,9842 м3
Цена: 19691 руб.
Подробнее
ПСТ 28-1а-2-1,2-6 (СТ 02-31)
Панели стеновые Серия СТ 02-31
  • Длина 5980 мм.
  • Ширина 280 мм.
  • Высота 1185 мм.
  • Вес 1900 кг.
  • Объем бетона 0,58 м3
  • Геометрический объем 1,9842 м3
Цена: 19691 руб.
Подробнее
ПСТ 28-1б-1-1,2-6 (СТ 02-31)
Панели стеновые Серия СТ 02-31
  • Длина 5980 мм.
  • Ширина 280 мм.
  • Высота 1185 мм.
  • Вес 1900 кг.
  • Объем бетона 0,58 м3
  • Геометрический объем 1,9842 м3
Цена: 19691 руб.
Подробнее
ПСТ 28-1б-1,2-6 (СТ 02-31)
Панели стеновые Серия СТ 02-31
  • Длина 5980 мм.
  • Ширина 280 мм.
  • Высота 1185 мм.
  • Вес 1800 кг.
  • Объем бетона 0,58 м3
  • Геометрический объем 1,9842 м3
Цена: 19691 руб.
Подробнее
ПСТ 28-2-1-1,2-6 (СТ 02-31)
Панели стеновые Серия СТ 02-31
  • Длина 5980 мм.
  • Ширина 280 мм.
  • Высота 1185 мм.
  • Вес 1900 кг.
  • Объем бетона 0,58 м3
  • Геометрический объем 1,9842 м3
Цена: 19691 руб.
Подробнее
ПСТ 28-1б-2-1,2-6 (СТ 02-31)
Панели стеновые Серия СТ 02-31
  • Длина 5980 мм.
  • Ширина 280 мм.
  • Высота 1185 мм.
  • Вес 1900 кг.
  • Объем бетона 0,58 м3
  • Геометрический объем 1,9842 м3
Цена: 19691 руб.
Подробнее
ПСТ 28-2-1-1,8-6 (СТ 02-31)
Панели стеновые Серия СТ 02-31
  • Длина 5980 мм.
  • Ширина 280 мм.
  • Высота 1785 мм.
  • Вес 2700 кг.
  • Объем бетона 1 м3
  • Геометрический объем 2,9888 м3
Цена: 33950 руб.
Подробнее
ПСТ 28-2-1,2-6 (СТ 02-31)
Панели стеновые Серия СТ 02-31
  • Длина 5980 мм.
  • Ширина 280 мм.
  • Высота 1185 мм.
  • Вес 1800 кг.
  • Объем бетона 0,58 м3
  • Геометрический объем 1,9842 м3
Цена: 19691 руб.
Подробнее
ПСТ 28-2-2-1,2-6 (СТ 02-31)
Панели стеновые Серия СТ 02-31
  • Длина 5980 мм.
  • Ширина 280 мм.
  • Высота 1185 мм.
  • Вес 1900 кг.
  • Объем бетона 0,58 м3
  • Геометрический объем 1,9842 м3
Цена: 19691 руб.
Подробнее
ПСТ 28-2-1,8-6 (СТ 02-31)
Панели стеновые Серия СТ 02-31
  • Длина 5980 мм.
  • Ширина 280 мм.
  • Высота 1785 мм.
  • Вес 2700 кг.
  • Объем бетона 1 м3
  • Геометрический объем 2,9888 м3
Цена: 33950 руб.
Подробнее
ПСТ 28-2а-2-1,2-6 (СТ 02-31)
Панели стеновые Серия СТ 02-31
  • Длина 5980 мм.
  • Ширина 280 мм.
  • Высота 1185 мм.
  • Вес 1900 кг.
  • Объем бетона 0,58 м3
  • Геометрический объем 1,9842 м3
Цена: 19691 руб.
Подробнее
ПСТ 28-2а-1-1,2-6 (СТ 02-31)
Панели стеновые Серия СТ 02-31
  • Длина 5980 мм.
  • Ширина 280 мм.
  • Высота 1185 мм.
  • Вес 1900 кг.
  • Объем бетона 0,58 м3
  • Геометрический объем 1,9842 м3
Цена: 19691 руб.
Подробнее

Уведомление о файлах cookie

Мы используем файлы cookie для улучшения вашего опыта просмотра и анализа трафика. Нажимая "Принять все", вы соглашаетесь с нашей политикой конфиденциальности и политикой обработки файлов cookie.

MAX Дзен Телеграм Вконтакте vk