mobile_sound +7 (930) 655-55-90

Железобетонные опоры линий электропередачи. Рабочие чертежи (Серия СТ 02-31)

Поделиться:
Поделиться:

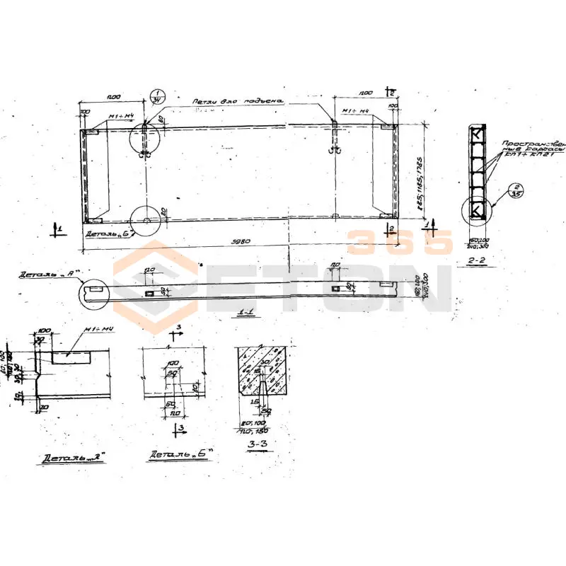
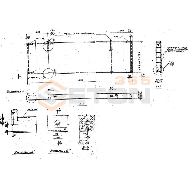
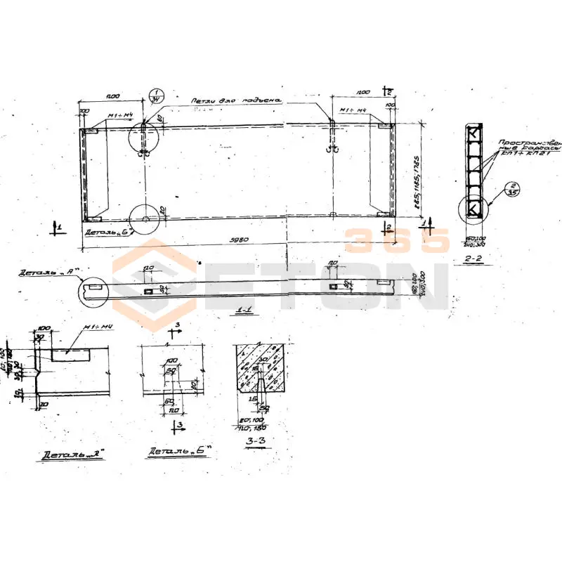
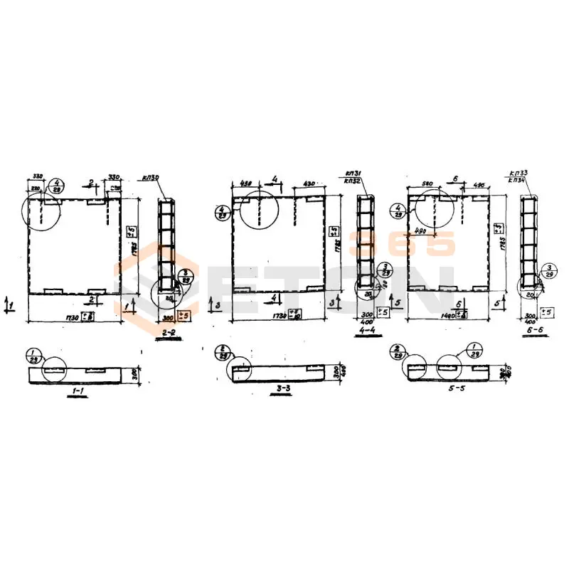
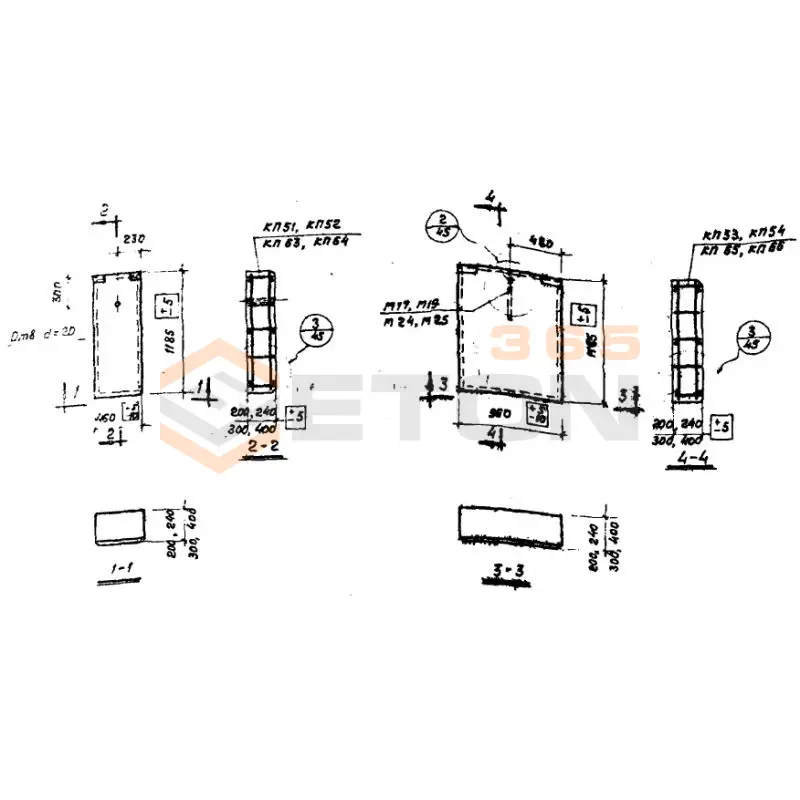
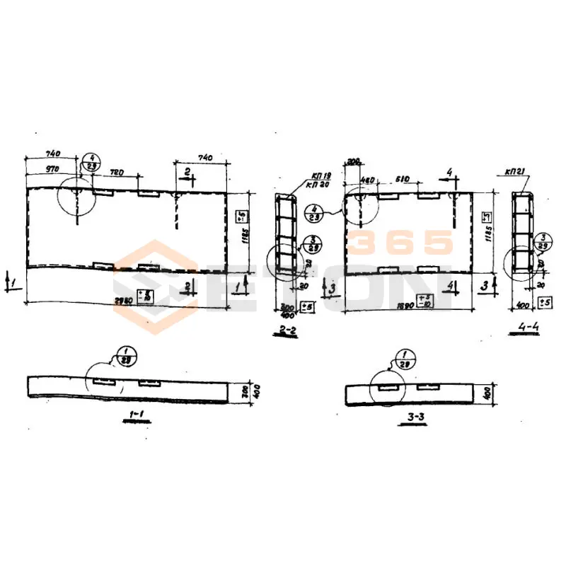
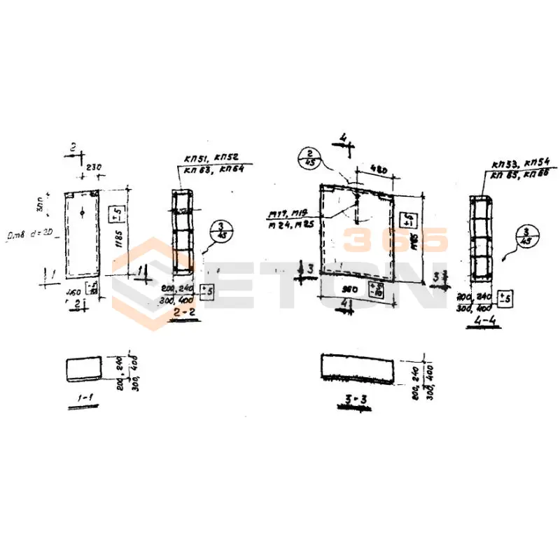
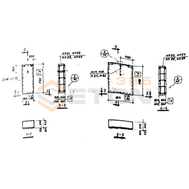
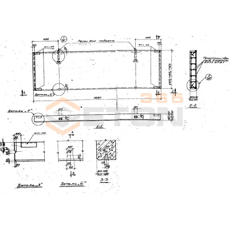
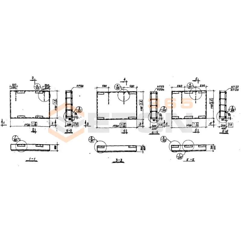
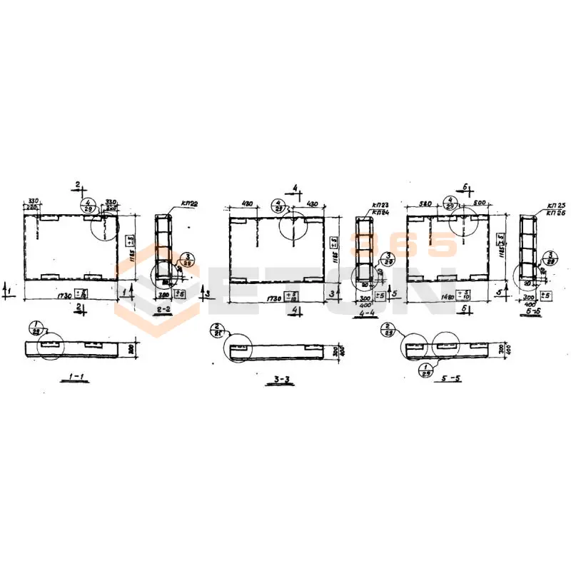
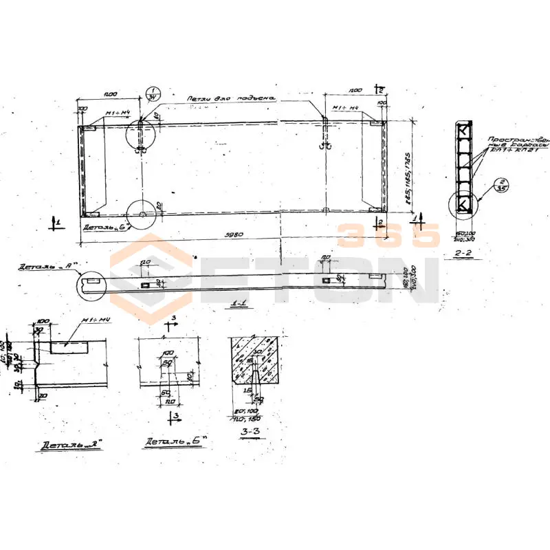
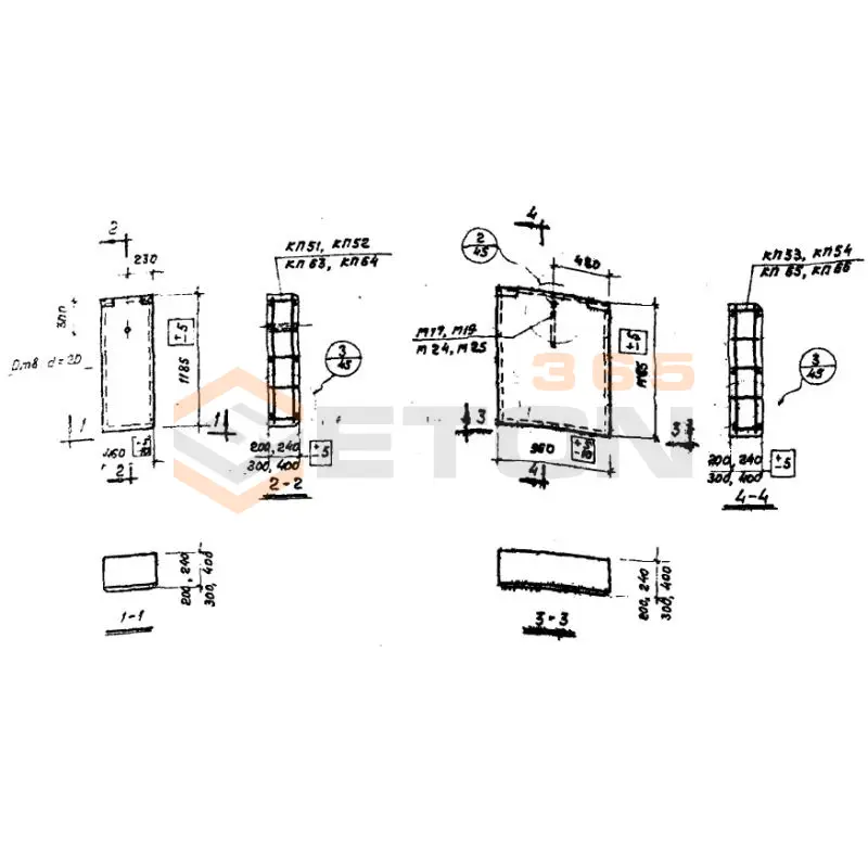
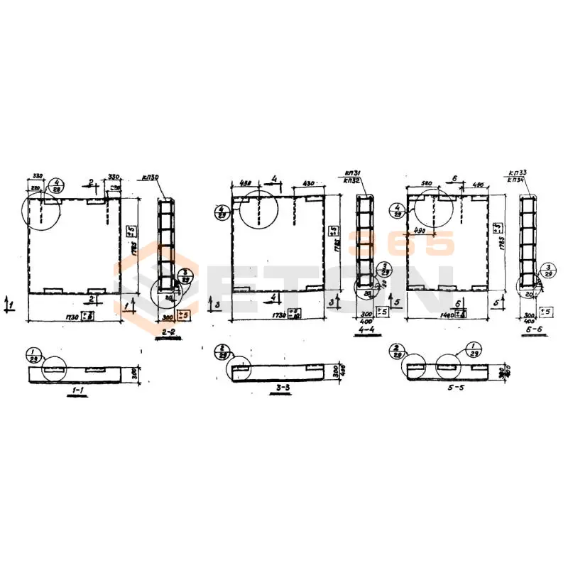
Документ Серия СТ 02-31 описывает область применения, номенклатуру и ключевые требования, опираясь на действующие нормы и практику проектирования. Строительство промышленных сооружений и производственных предприятий требует ответственного подхода, особенно в объектах с шагом колонн равным 6 метров. Для этого требуются унифицированные стеновые панели, легкие при монтаже и обладающие прочными и надежными креплениями. Именно такие конструкции описываются в Серии СТ 02-31.

Файлы для скачивания:
picture_as_pdf

5567.pdf

3,871.2 KB

скачать
picture_as_pdf

5568.pdf

4,518.1 KB

скачать
picture_as_pdf

5569.pdf

1,874.1 KB

скачать
picture_as_pdf

5570.pdf

1,005.6 KB

скачать
picture_as_pdf

5571.pdf

1,768.8 KB

скачать
picture_as_pdf

5572.pdf

2,816.9 KB

скачать
picture_as_pdf

5573.pdf

4,537.0 KB

скачать
Товары Серия СТ 02-31 (60)
ПСЛ 24-2-1,8-6 (СТ 02-31)
Панели стеновые Серия СТ 02-31
  • Длина 5980 мм.
  • Ширина 240 мм.
  • Высота 1785 мм.
  • Вес 3700 кг.
  • Объем бетона 2,56 м3
  • Геометрический объем 2,5618 м3
Цена: 86912 руб.
Подробнее
ПСЛ 24-2а-1,2-6,25 (СТ 02-31)
Панели стеновые Серия СТ 02-31
  • Длина 6230 мм.
  • Ширина 240 мм.
  • Высота 1185 мм.
  • Вес 2600 кг.
  • Объем бетона 1,78 м3
  • Геометрический объем 1,7718 м3
Цена: 60431 руб.
Подробнее
ПСЛ 24-2-1,2-6,25 (СТ 02-31)
Панели стеновые Серия СТ 02-31
  • Длина 6230 мм.
  • Ширина 240 мм.
  • Высота 1185 мм.
  • Вес 2600 кг.
  • Объем бетона 1,78 м3
  • Геометрический объем 1,7718 м3
Цена: 60431 руб.
Подробнее
ПСЛ 24-2-1,8-6,25 (СТ 02-31)
Панели стеновые Серия СТ 02-31
  • Длина 6230 мм.
  • Ширина 240 мм.
  • Высота 1785 мм.
  • Вес 3900 кг.
  • Объем бетона 2,65 м3
  • Геометрический объем 2,6689 м3
Цена: 89968 руб.
Подробнее
ПСЛ 24-2б-1,2-6 (СТ 02-31)
Панели стеновые Серия СТ 02-31
  • Длина 5980 мм.
  • Ширина 240 мм.
  • Высота 1185 мм.
  • Вес 2500 кг.
  • Объем бетона 1,7 м3
  • Геометрический объем 1,7007 м3
Цена: 57715 руб.
Подробнее
ПСЛ 24-2б-1,2-6,25 (СТ 02-31)
Панели стеновые Серия СТ 02-31
  • Длина 6230 мм.
  • Ширина 240 мм.
  • Высота 1185 мм.
  • Вес 2600 кг.
  • Объем бетона 1,78 м3
  • Геометрический объем 1,7718 м3
Цена: 60431 руб.
Подробнее
ПСЛ 24-2а-1,2-6 (СТ 02-31)
Панели стеновые Серия СТ 02-31
  • Длина 5980 мм.
  • Ширина 240 мм.
  • Высота 1185 мм.
  • Вес 2500 кг.
  • Объем бетона 1,7 м3
  • Геометрический объем 1,7007 м3
Цена: 57715 руб.
Подробнее
ПСЛ 24-2г-1,8-6 (СТ 02-31)
Панели стеновые Серия СТ 02-31
  • Длина 5980 мм.
  • Ширина 240 мм.
  • Высота 1785 мм.
  • Вес 2500 кг.
  • Объем бетона 1,71 м3
  • Геометрический объем 2,5618 м3
Цена: 58055 руб.
Подробнее
ПСЛ 24-2г-1,8-6,25 (СТ 02-31)
Панели стеновые Серия СТ 02-31
  • Длина 6230 мм.
  • Ширина 240 мм.
  • Высота 1785 мм.
  • Вес 2600 кг.
  • Объем бетона 1,78 м3
  • Геометрический объем 2,6689 м3
Цена: 60431 руб.
Подробнее
ПСЛ 24-3-1,2-6 (СТ 02-31)
Панели стеновые Серия СТ 02-31
  • Длина 5980 мм.
  • Ширина 240 мм.
  • Высота 1185 мм.
  • Вес 2500 кг.
  • Объем бетона 1,7 м3
  • Геометрический объем 1,7007 м3
Цена: 57715 руб.
Подробнее
ПСЛ 24-2д-1,8-6 (СТ 02-31)
Панели стеновые Серия СТ 02-31
  • Длина 5980 мм.
  • Ширина 240 мм.
  • Высота 1785 мм.
  • Вес 2500 кг.
  • Объем бетона 1,71 м3
  • Геометрический объем 2,5618 м3
Цена: 58055 руб.
Подробнее
ПСЛ 24-2д-1,8-6,25 (СТ 02-31)
Панели стеновые Серия СТ 02-31
  • Длина 6230 мм.
  • Ширина 240 мм.
  • Высота 1785 мм.
  • Вес 2600 кг.
  • Объем бетона 1,78 м3
  • Геометрический объем 2,6689 м3
Цена: 60431 руб.
Подробнее
ПСЛ 24-3-1,8-6 (СТ 02-31)
Панели стеновые Серия СТ 02-31
  • Длина 5980 мм.
  • Ширина 240 мм.
  • Высота 1785 мм.
  • Вес 3700 кг.
  • Объем бетона 2,56 м3
  • Геометрический объем 2,5618 м3
Цена: 86912 руб.
Подробнее
ПСЛ 24-3-1,2-6,25 (СТ 02-31)
Панели стеновые Серия СТ 02-31
  • Длина 6230 мм.
  • Ширина 240 мм.
  • Высота 1185 мм.
  • Вес 2600 кг.
  • Объем бетона 1,78 м3
  • Геометрический объем 1,7718 м3
Цена: 60431 руб.
Подробнее
ПСЛ 24-3-1,8-6,25 (СТ 02-31)
Панели стеновые Серия СТ 02-31
  • Длина 6230 мм.
  • Ширина 240 мм.
  • Высота 1785 мм.
  • Вес 3900 кг.
  • Объем бетона 2,65 м3
  • Геометрический объем 2,6689 м3
Цена: 89968 руб.
Подробнее
ПСЛ 30-1,2-0,5 (СТ 02-31)
Панели стеновые Серия СТ 02-31
  • Длина 460 мм.
  • Ширина 300 мм.
  • Высота 1185 мм.
  • Вес 250 кг.
  • Объем бетона 0,18 м3
  • Геометрический объем 0,1635 м3
Цена: 6111 руб.
Подробнее
ПСЛ 30-1,8-1,0 (СТ 02-31)
Панели стеновые Серия СТ 02-31
  • Длина 960 мм.
  • Ширина 300 мм.
  • Высота 1785 мм.
  • Вес 730 кг.
  • Объем бетона 0,54 м3
  • Геометрический объем 0,5141 м3
Цена: 18333 руб.
Подробнее
ПСЛ 30-1,8-0,5 (СТ 02-31)
Панели стеновые Серия СТ 02-31
  • Длина 460 мм.
  • Ширина 300 мм.
  • Высота 1785 мм.
  • Вес 390 кг.
  • Объем бетона 0,27 м3
  • Геометрический объем 0,2463 м3
Цена: 9167 руб.
Подробнее
ПСЛ 30-2-1,2-0,75 (СТ 02-31)
Панели стеновые Серия СТ 02-31
  • Длина 730 мм.
  • Ширина 300 мм.
  • Высота 1185 мм.
  • Вес 400 кг.
  • Объем бетона 0,27 м3
  • Геометрический объем 0,2595 м3
Цена: 9167 руб.
Подробнее
ПСЛ 30-2-1,2-1,0 (СТ 02-31)
Панели стеновые Серия СТ 02-31
  • Длина 960 мм.
  • Ширина 300 мм.
  • Высота 1185 мм.
  • Вес 500 кг.
  • Объем бетона 0,36 м3
  • Геометрический объем 0,3413 м3
Цена: 12222 руб.
Подробнее
ПСЛ 30-1,2-1,0 (СТ 02-31)
Панели стеновые Серия СТ 02-31
  • Длина 960 мм.
  • Ширина 300 мм.
  • Высота 1185 мм.
  • Вес 510 кг.
  • Объем бетона 0,36 м3
  • Геометрический объем 0,3413 м3
Цена: 12222 руб.
Подробнее
ПСЛ 30-2-1,2-1,5 (СТ 02-31)
Панели стеновые Серия СТ 02-31
  • Длина 1480 мм.
  • Ширина 300 мм.
  • Высота 1185 мм.
  • Вес 900 кг.
  • Объем бетона 0,54 м3
  • Геометрический объем 0,5261 м3
Цена: 18333 руб.
Подробнее
ПСЛ 30-2-1,2-1,75 (СТ 02-31)
Панели стеновые Серия СТ 02-31
  • Длина 1730 мм.
  • Ширина 300 мм.
  • Высота 1185 мм.
  • Вес 1000 кг.
  • Объем бетона 0,62 м3
  • Геометрический объем 0,615 м3
Цена: 21049 руб.
Подробнее
ПСЛ 30-2-1,2-3,0 (СТ 02-31)
Панели стеновые Серия СТ 02-31
  • Длина 2980 мм.
  • Ширина 300 мм.
  • Высота 1185 мм.
  • Вес 1600 кг.
  • Объем бетона 1,08 м3
  • Геометрический объем 1,0594 м3
Цена: 36666 руб.
Подробнее
ПСЛ 30-2-1,2-6 (СТ 02-31)
Панели стеновые Серия СТ 02-31
  • Длина 5980 мм.
  • Ширина 300 мм.
  • Высота 1185 мм.
  • Вес 3100 кг.
  • Объем бетона 2,13 м3
  • Геометрический объем 2,1259 м3
Цена: 72314 руб.
Подробнее
ПСЛ 30-2-1,2-6,25 (СТ 02-31)
Панели стеновые Серия СТ 02-31
  • Длина 6230 мм.
  • Ширина 300 мм.
  • Высота 1185 мм.
  • Вес 3200 кг.
  • Объем бетона 2,22 м3
  • Геометрический объем 2,2148 м3
Цена: 75369 руб.
Подробнее
ПСЛ 30-2-1,8-0,75 (СТ 02-31)
Панели стеновые Серия СТ 02-31
  • Длина 730 мм.
  • Ширина 300 мм.
  • Высота 1785 мм.
  • Вес 600 кг.
  • Объем бетона 0,4 м3
  • Геометрический объем 0,3909 м3
Цена: 13580 руб.
Подробнее
ПСЛ 30-2-1,8-1,0 (СТ 02-31)
Панели стеновые Серия СТ 02-31
  • Длина 960 мм.
  • Ширина 300 мм.
  • Высота 1785 мм.
  • Вес 800 кг.
  • Объем бетона 0,54 м3
  • Геометрический объем 0,5141 м3
Цена: 18333 руб.
Подробнее
ПСЛ 30-2-1,8-1,5 (СТ 02-31)
Панели стеновые Серия СТ 02-31
  • Длина 1480 мм.
  • Ширина 300 мм.
  • Высота 1785 мм.
  • Вес 1200 кг.
  • Объем бетона 0,81 м3
  • Геометрический объем 0,7925 м3
Цена: 27500 руб.
Подробнее
ПСЛ 30-2-1,8-1,75 (СТ 02-31)
Панели стеновые Серия СТ 02-31
  • Длина 1730 мм.
  • Ширина 300 мм.
  • Высота 1785 мм.
  • Вес 1300 кг.
  • Объем бетона 0,95 м3
  • Геометрический объем 0,9264 м3
Цена: 32253 руб.
Подробнее
ПСЛ 30-2-1,8-3,0 (СТ 02-31)
Панели стеновые Серия СТ 02-31
  • Длина 2980 мм.
  • Ширина 300 мм.
  • Высота 1785 мм.
  • Вес 2300 кг.
  • Объем бетона 1,59 м3
  • Геометрический объем 1,5958 м3
Цена: 53981 руб.
Подробнее
ПСЛ 30-2-1,8-6,25 (СТ 02-31)
Панели стеновые Серия СТ 02-31
  • Длина 6230 мм.
  • Ширина 300 мм.
  • Высота 1785 мм.
  • Вес 4900 кг.
  • Объем бетона 3,32 м3
  • Геометрический объем 3,3362 м3
Цена: 112714 руб.
Подробнее
ПСЛ 30-2-1,8-6 (СТ 02-31)
Панели стеновые Серия СТ 02-31
  • Длина 5980 мм.
  • Ширина 300 мм.
  • Высота 1785 мм.
  • Вес 4600 кг.
  • Объем бетона 3,21 м3
  • Геометрический объем 3,2023 м3
Цена: 108980 руб.
Подробнее
ПСЛ 30-2а-1,2-6,25 (СТ 02-31)
Панели стеновые Серия СТ 02-31
  • Длина 6230 мм.
  • Ширина 300 мм.
  • Высота 1185 мм.
  • Вес 3200 кг.
  • Объем бетона 2,22 м3
  • Геометрический объем 2,2148 м3
Цена: 75369 руб.
Подробнее
ПСЛ 30-2а-1,2-6 (СТ 02-31)
Панели стеновые Серия СТ 02-31
  • Длина 5980 мм.
  • Ширина 300 мм.
  • Высота 1185 мм.
  • Вес 3100 кг.
  • Объем бетона 2,13 м3
  • Геометрический объем 2,1259 м3
Цена: 72314 руб.
Подробнее
ПСЛ 30-2б-1,2-1,0 (СТ 02-31)
Панели стеновые Серия СТ 02-31
  • Длина 960 мм.
  • Ширина 300 мм.
  • Высота 1185 мм.
  • Вес 500 кг.
  • Объем бетона 0,36 м3
  • Геометрический объем 0,3413 м3
Цена: 12222 руб.
Подробнее
ПСЛ 30-2б-1,2-6,25 (СТ 02-31)
Панели стеновые Серия СТ 02-31
  • Длина 6230 мм.
  • Ширина 300 мм.
  • Высота 1185 мм.
  • Вес 3200 кг.
  • Объем бетона 2,22 м3
  • Геометрический объем 2,2148 м3
Цена: 75369 руб.
Подробнее
ПСЛ 30-2б-1,2-1,75 (СТ 02-31)
Панели стеновые Серия СТ 02-31
  • Длина 1730 мм.
  • Ширина 300 мм.
  • Высота 1185 мм.
  • Вес 1000 кг.
  • Объем бетона 0,62 м3
  • Геометрический объем 0,615 м3
Цена: 21049 руб.
Подробнее
ПСЛ 30-2б-1,2-1,5 (СТ 02-31)
Панели стеновые Серия СТ 02-31
  • Длина 1480 мм.
  • Ширина 300 мм.
  • Высота 1185 мм.
  • Вес 900 кг.
  • Объем бетона 0,54 м3
  • Геометрический объем 0,5261 м3
Цена: 18333 руб.
Подробнее
ПСЛ 30-2б-1,2-6 (СТ 02-31)
Панели стеновые Серия СТ 02-31
  • Длина 5980 мм.
  • Ширина 300 мм.
  • Высота 1185 мм.
  • Вес 3100 кг.
  • Объем бетона 2,13 м3
  • Геометрический объем 2,1259 м3
Цена: 72314 руб.
Подробнее
ПСЛ 30-2б-1,8-1,5 (СТ 02-31)
Панели стеновые Серия СТ 02-31
  • Длина 1480 мм.
  • Ширина 300 мм.
  • Высота 1785 мм.
  • Вес 1200 кг.
  • Объем бетона 0,81 м3
  • Геометрический объем 0,7925 м3
Цена: 27500 руб.
Подробнее
ПСЛ 30-2б-1,8-1,0 (СТ 02-31)
Панели стеновые Серия СТ 02-31
  • Длина 960 мм.
  • Ширина 300 мм.
  • Высота 1785 мм.
  • Вес 800 кг.
  • Объем бетона 0,54 м3
  • Геометрический объем 0,5141 м3
Цена: 18333 руб.
Подробнее
ПСЛ 30-2б-1,8-1,75 (СТ 02-31)
Панели стеновые Серия СТ 02-31
  • Длина 1730 мм.
  • Ширина 300 мм.
  • Высота 1785 мм.
  • Вес 1300 кг.
  • Объем бетона 0,95 м3
  • Геометрический объем 0,9264 м3
Цена: 32253 руб.
Подробнее
ПСЛ 30-2г-1,8-6 (СТ 02-31)
Панели стеновые Серия СТ 02-31
  • Длина 5980 мм.
  • Ширина 300 мм.
  • Высота 1785 мм.
  • Вес 3100 кг.
  • Объем бетона 2,13 м3
  • Геометрический объем 3,2023 м3
Цена: 72314 руб.
Подробнее
ПСЛ 30-2г-1,8-6,25 (СТ 02-31)
Панели стеновые Серия СТ 02-31
  • Длина 6230 мм.
  • Ширина 300 мм.
  • Высота 1785 мм.
  • Вес 3200 кг.
  • Объем бетона 2,22 м3
  • Геометрический объем 3,3362 м3
Цена: 75369 руб.
Подробнее
ПСЛ 30-2д-1,8-6,25 (СТ 02-31)
Панели стеновые Серия СТ 02-31
  • Длина 6230 мм.
  • Ширина 300 мм.
  • Высота 1785 мм.
  • Вес 3200 кг.
  • Объем бетона 2,22 м3
  • Геометрический объем 3,3362 м3
Цена: 75369 руб.
Подробнее
ПСЛ 30-2д-1,8-6 (СТ 02-31)
Панели стеновые Серия СТ 02-31
  • Длина 5980 мм.
  • Ширина 300 мм.
  • Высота 1785 мм.
  • Вес 3100 кг.
  • Объем бетона 2,13 м3
  • Геометрический объем 3,2023 м3
Цена: 72314 руб.
Подробнее
ПСЛ 30-3-1,2-6 (СТ 02-31)
Панели стеновые Серия СТ 02-31
  • Длина 5980 мм.
  • Ширина 300 мм.
  • Высота 1185 мм.
  • Вес 3100 кг.
  • Объем бетона 2,13 м3
  • Геометрический объем 2,1259 м3
Цена: 72314 руб.
Подробнее
ПСЛ 30-3-1,2-6,25 (СТ 02-31)
Панели стеновые Серия СТ 02-31
  • Длина 6230 мм.
  • Ширина 300 мм.
  • Высота 1185 мм.
  • Вес 3200 кг.
  • Объем бетона 2,22 м3
  • Геометрический объем 2,2148 м3
Цена: 75369 руб.
Подробнее
ПСЛ 30-3-1,8-6 (СТ 02-31)
Панели стеновые Серия СТ 02-31
  • Длина 5980 мм.
  • Ширина 300 мм.
  • Высота 1785 мм.
  • Вес 4600 кг.
  • Объем бетона 3,21 м3
  • Геометрический объем 3,2023 м3
Цена: 108980 руб.
Подробнее
ПСЛ 30-3-1,8-6,25 (СТ 02-31)
Панели стеновые Серия СТ 02-31
  • Длина 6230 мм.
  • Ширина 300 мм.
  • Высота 1785 мм.
  • Вес 4900 кг.
  • Объем бетона 3,32 м3
  • Геометрический объем 3,3362 м3
Цена: 112714 руб.
Подробнее
ПСЛ 30-3в-1,2-6 (СТ 02-31)
Панели стеновые Серия СТ 02-31
  • Длина 5980 мм.
  • Ширина 300 мм.
  • Высота 1185 мм.
  • Вес 3100 кг.
  • Объем бетона 2,13 м3
  • Геометрический объем 2,1259 м3
Цена: 72314 руб.
Подробнее
ПСЛ 30-3в-1,8-6 (СТ 02-31)
Панели стеновые Серия СТ 02-31
  • Длина 5980 мм.
  • Ширина 300 мм.
  • Высота 1785 мм.
  • Вес 4600 кг.
  • Объем бетона 3,21 м3
  • Геометрический объем 3,2023 м3
Цена: 108980 руб.
Подробнее
ПСЛ 30-3в-1,2-6,25 (СТ 02-31)
Панели стеновые Серия СТ 02-31
  • Длина 6230 мм.
  • Ширина 300 мм.
  • Высота 1185 мм.
  • Вес 3200 кг.
  • Объем бетона 2,22 м3
  • Геометрический объем 2,2148 м3
Цена: 75369 руб.
Подробнее
ПСЛ 30-3в-1,8-6,25 (СТ 02-31)
Панели стеновые Серия СТ 02-31
  • Длина 6230 мм.
  • Ширина 300 мм.
  • Высота 1785 мм.
  • Вес 4900 кг.
  • Объем бетона 3,32 м3
  • Геометрический объем 3,3362 м3
Цена: 112714 руб.
Подробнее
ПСЛ 40-1,2-0,5 (СТ 02-31)
Панели стеновые Серия СТ 02-31
  • Длина 460 мм.
  • Ширина 400 мм.
  • Высота 1185 мм.
  • Вес 330 кг.
  • Объем бетона 0,24 м3
  • Геометрический объем 0,218 м3
Цена: 8148 руб.
Подробнее
ПСЛ 40-1,2-1,0 (СТ 02-31)
Панели стеновые Серия СТ 02-31
  • Длина 960 мм.
  • Ширина 400 мм.
  • Высота 1185 мм.
  • Вес 680 кг.
  • Объем бетона 0,48 м3
  • Геометрический объем 0,455 м3
Цена: 16296 руб.
Подробнее
ПСЛ 40-1,8-0,5 (СТ 02-31)
Панели стеновые Серия СТ 02-31
  • Длина 460 мм.
  • Ширина 400 мм.
  • Высота 1785 мм.
  • Вес 510 кг.
  • Объем бетона 0,36 м3
  • Геометрический объем 0,3284 м3
Цена: 12222 руб.
Подробнее
ПСЛ 40-1,8-1,0 (СТ 02-31)
Панели стеновые Серия СТ 02-31
  • Длина 960 мм.
  • Ширина 400 мм.
  • Высота 1785 мм.
  • Вес 1020 кг.
  • Объем бетона 0,72 м3
  • Геометрический объем 0,6854 м3
Цена: 24444 руб.
Подробнее
ПСЛ 40-2-1,2-0,75 (СТ 02-31)
Панели стеновые Серия СТ 02-31
  • Длина 730 мм.
  • Ширина 400 мм.
  • Высота 1185 мм.
  • Вес 500 кг.
  • Объем бетона 0,36 м3
  • Геометрический объем 0,346 м3
Цена: 12222 руб.
Подробнее

Уведомление о файлах cookie

Мы используем файлы cookie для улучшения вашего опыта просмотра и анализа трафика. Нажимая "Принять все", вы соглашаетесь с нашей политикой конфиденциальности и политикой обработки файлов cookie.

MAX Дзен Телеграм Вконтакте vk