mobile_sound +7 (930) 655-55-90

Типовые конструкции и железобетонные изделия. Рабочие чертежи (Серия КЭ 01-52)

Поделиться:
Поделиться:

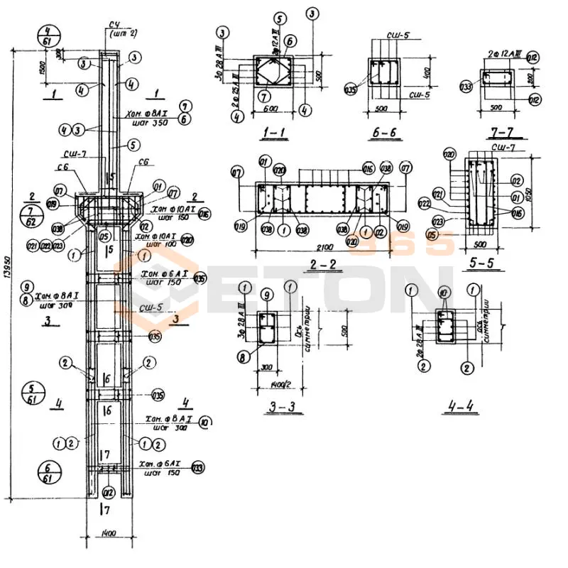
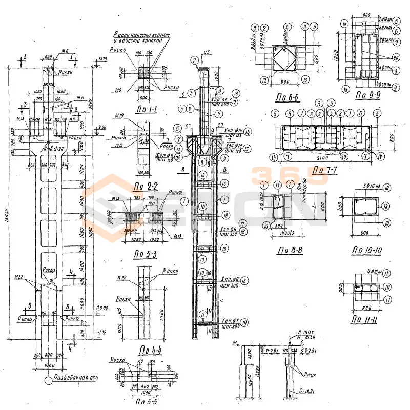
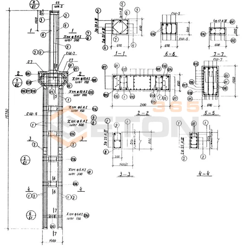
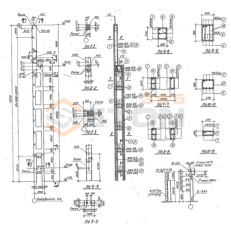
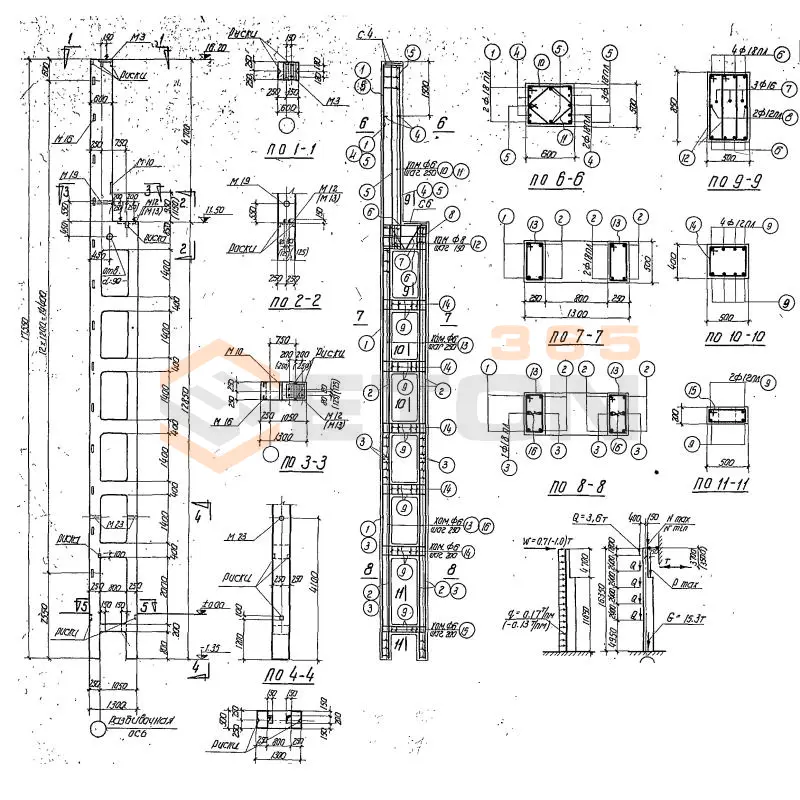
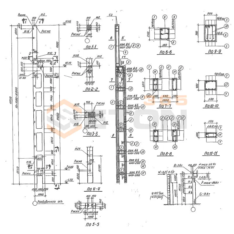
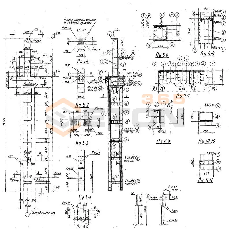
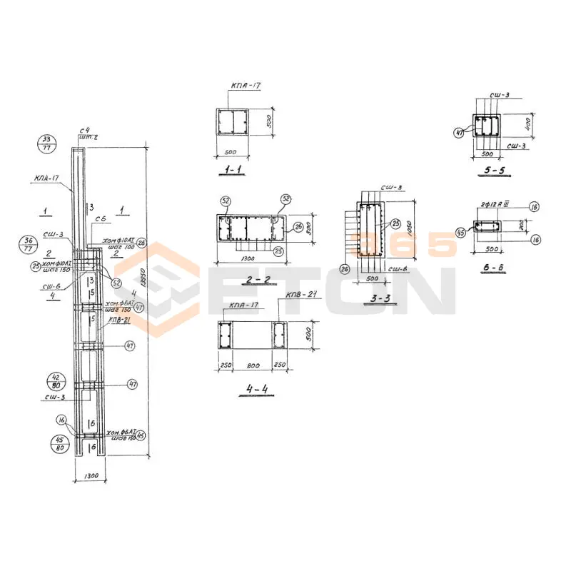
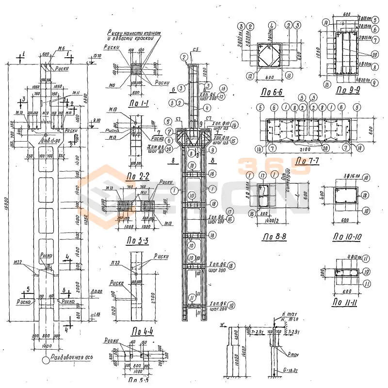
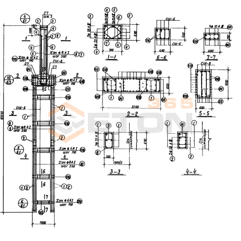
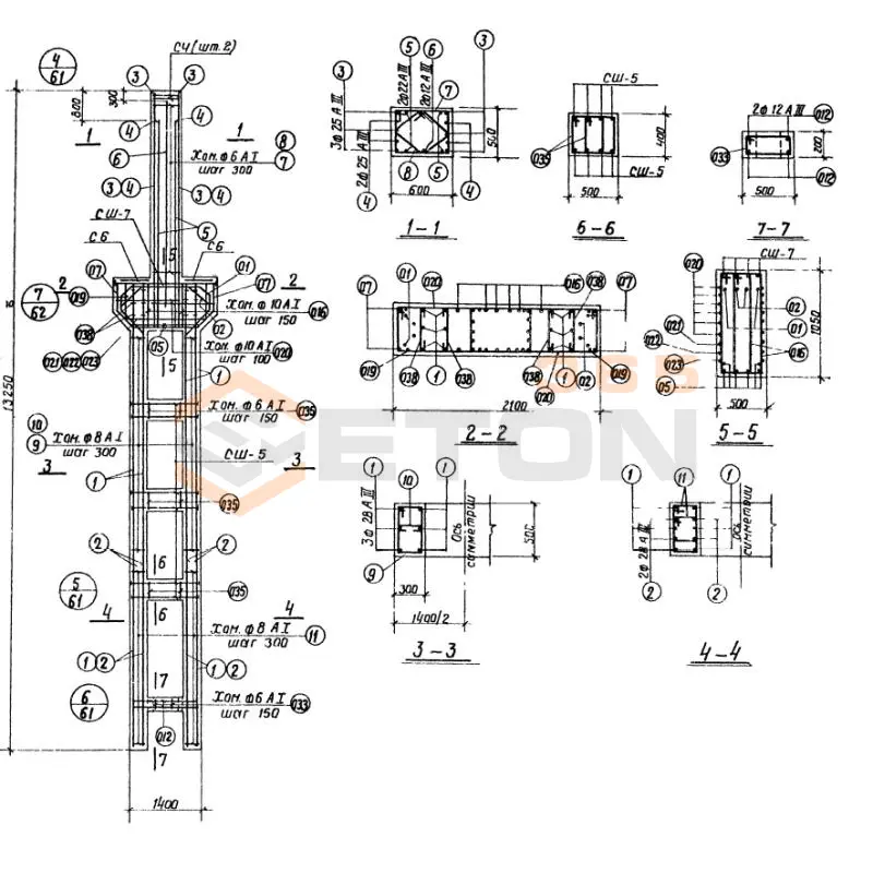
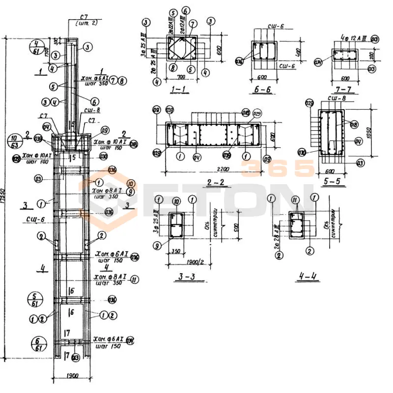
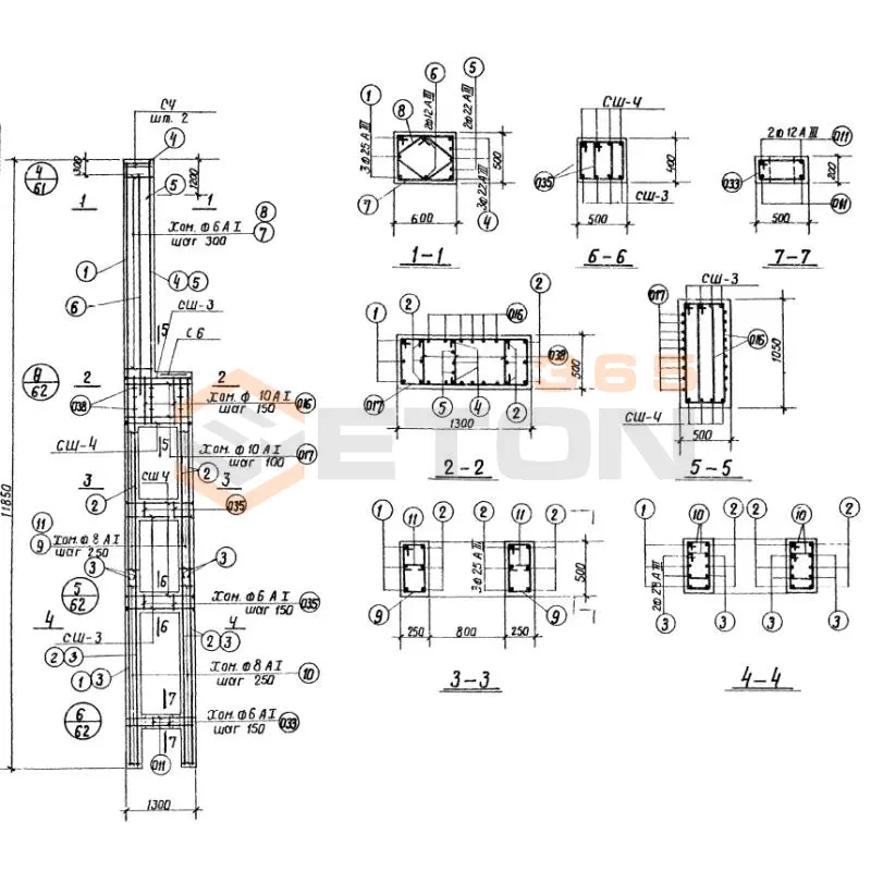
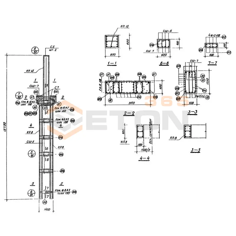
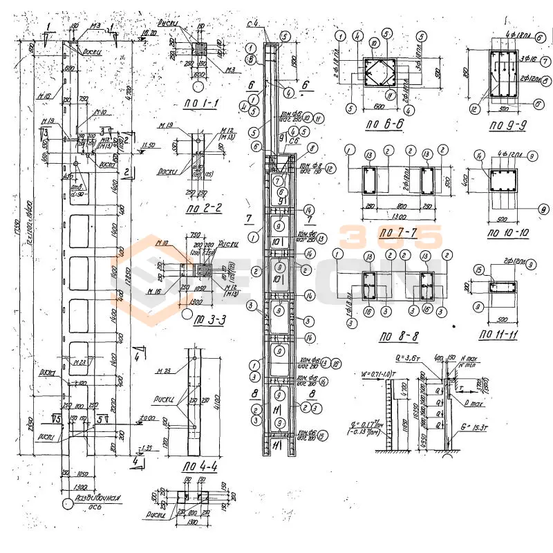
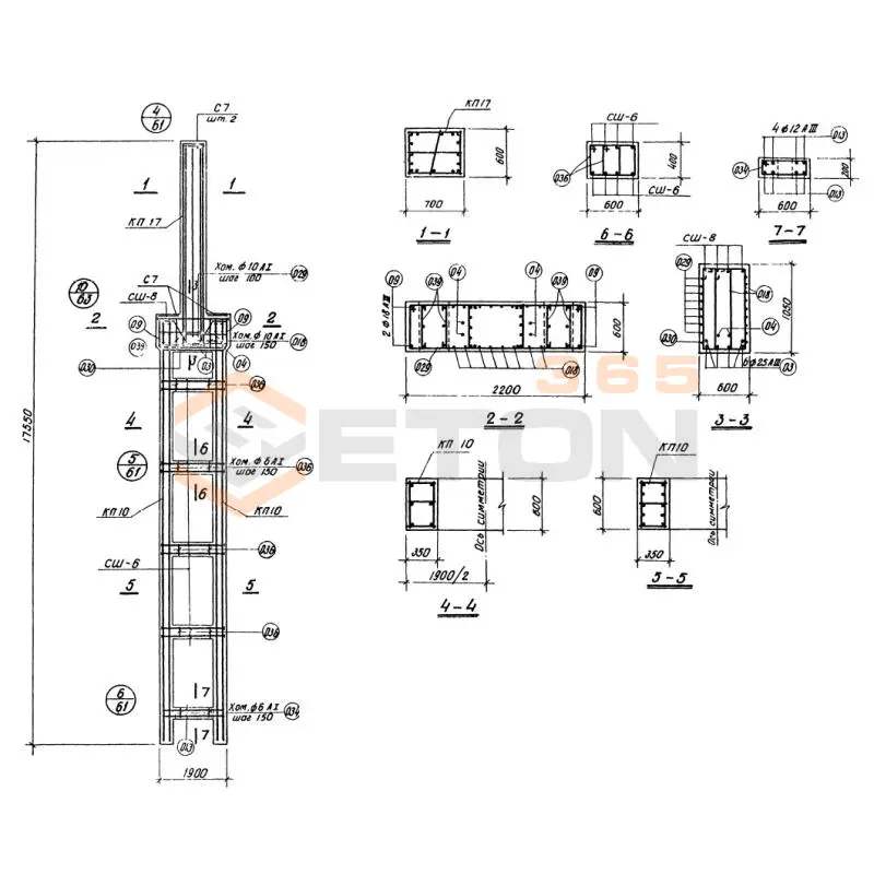
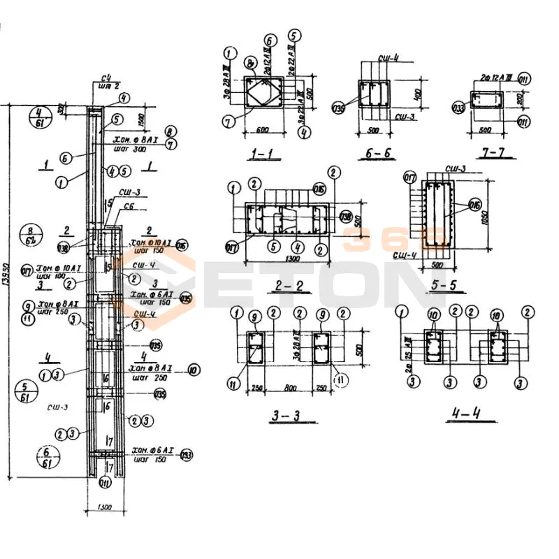
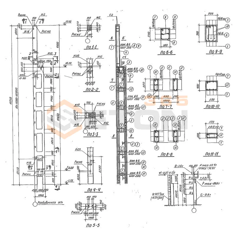
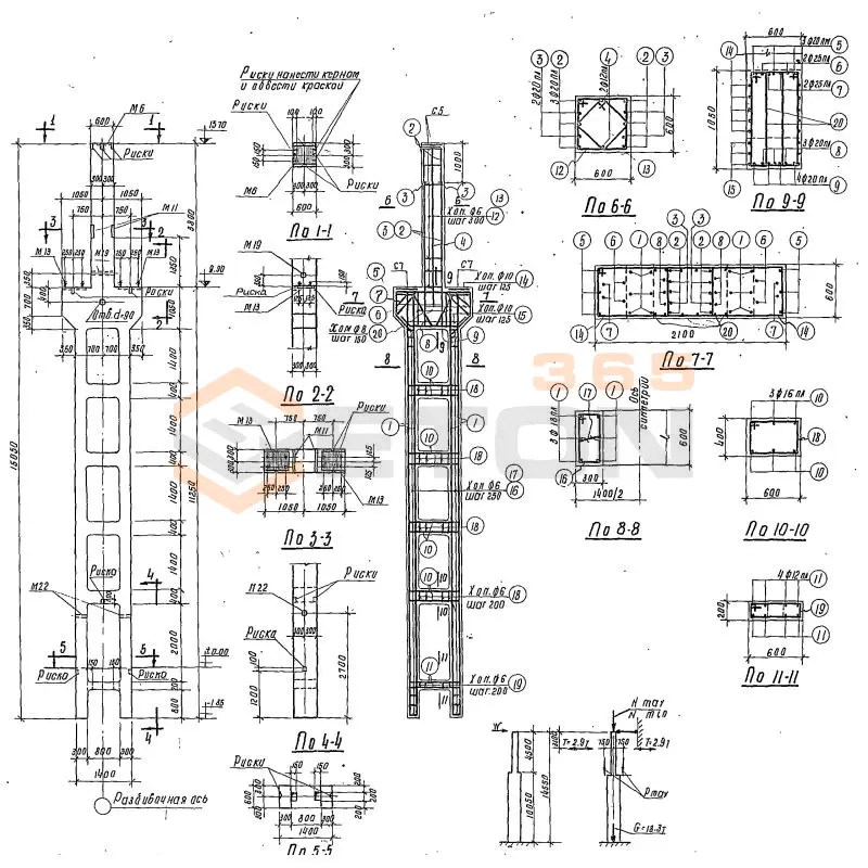
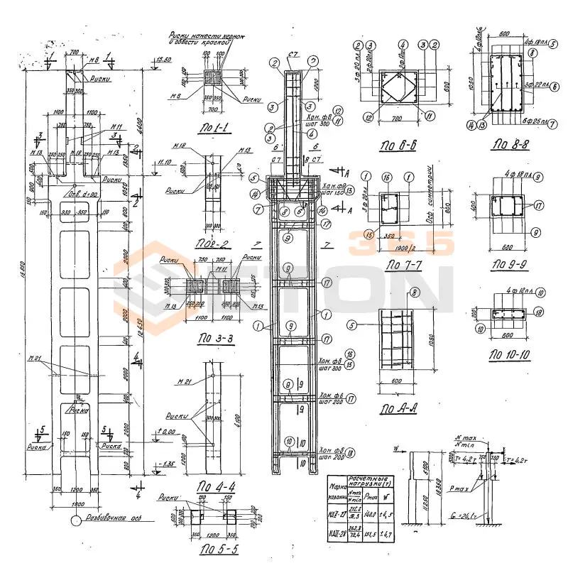
Документ Серия КЭ 01-52 описывает область применения, номенклатуру и ключевые требования, опираясь на действующие нормы и практику проектирования. В составе Серии КЭ 01-52 присутствует большое количество выпусков, содержащих полезные сведения, необходимые для производства двухветвевых колонн из железобетона. Сборные конструкции широко применяются при строительстве одноэтажных производственных сооружений, которые могут иметь пролеты 18, 24 и 30 метров и оборудоваться кранами внушительной грузоподъемности и нескольких режимов работы. изделия и конструкции проектировались по унифицированным габаритным схемам и для облегчения выбора нужных элементов под конкретные условия типового проекта отражены в специальных таблицах, содержащих ключи подбора колонн.

Файлы для скачивания:
picture_as_pdf

4378.pdf

32,054.4 KB

скачать
picture_as_pdf

4386.pdf

42,714.1 KB

скачать
picture_as_pdf

4387.pdf

18,495.8 KB

скачать
picture_as_pdf

4385.pdf

44,816.1 KB

скачать
picture_as_pdf

4380.pdf

10,797.1 KB

скачать
picture_as_pdf

4379.pdf

32,607.8 KB

скачать
picture_as_pdf

4381.pdf

4,694.7 KB

скачать
picture_as_pdf

4383.pdf

14,804.4 KB

скачать
picture_as_pdf

4382.pdf

33,721.3 KB

скачать
picture_as_pdf

4384.pdf

21,992.5 KB

скачать
Товары Серия КЭ 01-52 (60)
КД 10-82
Колонны Серия КЭ 01-52
  • Длина 13950 мм.
  • Ширина 1300 мм.
  • Высота 500 мм.
  • Вес 11700 кг.
  • Объем бетона 4,69 м3
  • Геометрический объем 9,0675 м3
Цена: 95535 руб.
Подробнее
КД 10-86
Колонны Серия КЭ 01-52
  • Длина 13950 мм.
  • Ширина 1300 мм.
  • Высота 500 мм.
  • Вес 11700 кг.
  • Объем бетона 4,69 м3
  • Геометрический объем 9,0675 м3
Цена: 95535 руб.
Подробнее
КД 10-87
Колонны Серия КЭ 01-52
  • Длина 13950 мм.
  • Ширина 1300 мм.
  • Высота 500 мм.
  • Вес 11700 кг.
  • Объем бетона 4,69 м3
  • Геометрический объем 9,0675 м3
Цена: 95535 руб.
Подробнее
КД 10-83
Колонны Серия КЭ 01-52
  • Длина 13950 мм.
  • Ширина 1300 мм.
  • Высота 500 мм.
  • Вес 11700 кг.
  • Объем бетона 4,69 м3
  • Геометрический объем 9,0675 м3
Цена: 95535 руб.
Подробнее
КД 10-85
Колонны Серия КЭ 01-52
  • Длина 13950 мм.
  • Ширина 1300 мм.
  • Высота 500 мм.
  • Вес 11700 кг.
  • Объем бетона 4,69 м3
  • Геометрический объем 9,0675 м3
Цена: 95535 руб.
Подробнее
КД 10-88
Колонны Серия КЭ 01-52
  • Длина 13950 мм.
  • Ширина 1300 мм.
  • Высота 500 мм.
  • Вес 11700 кг.
  • Объем бетона 4,69 м3
  • Геометрический объем 9,0675 м3
Цена: 95535 руб.
Подробнее
КД 10-91
Колонны Серия КЭ 01-52
  • Длина 13950 мм.
  • Ширина 1400 мм.
  • Высота 500 мм.
  • Вес 13700 кг.
  • Объем бетона 5,47 м3
  • Геометрический объем 9,765 м3
Цена: 111424 руб.
Подробнее
КД 10-9
Колонны Серия КЭ 01-52
  • Длина 11150 мм.
  • Ширина 1400 мм.
  • Высота 500 мм.
  • Вес 11200 кг.
  • Объем бетона 4,47 м3
  • Геометрический объем 7,805 м3
Цена: 91054 руб.
Подробнее
КД 10-90
Колонны Серия КЭ 01-52
  • Длина 13950 мм.
  • Ширина 1400 мм.
  • Высота 500 мм.
  • Вес 13700 кг.
  • Объем бетона 5,47 м3
  • Геометрический объем 9,765 м3
Цена: 111424 руб.
Подробнее
КД 10-92
Колонны Серия КЭ 01-52
  • Длина 13950 мм.
  • Ширина 1400 мм.
  • Высота 500 мм.
  • Вес 13700 кг.
  • Объем бетона 5,47 м3
  • Геометрический объем 9,765 м3
Цена: 111424 руб.
Подробнее
КД 10-89
Колонны Серия КЭ 01-52
  • Длина 13950 мм.
  • Ширина 1400 мм.
  • Высота 500 мм.
  • Вес 13700 кг.
  • Объем бетона 5,47 м3
  • Геометрический объем 9,765 м3
Цена: 111424 руб.
Подробнее
КД 10-95
Колонны Серия КЭ 01-52
  • Длина 13950 мм.
  • Ширина 1400 мм.
  • Высота 500 мм.
  • Вес 13700 кг.
  • Объем бетона 5,47 м3
  • Геометрический объем 9,765 м3
Цена: 111424 руб.
Подробнее
КД 10-93
Колонны Серия КЭ 01-52
  • Длина 13950 мм.
  • Ширина 1400 мм.
  • Высота 500 мм.
  • Вес 13700 кг.
  • Объем бетона 5,47 м3
  • Геометрический объем 9,765 м3
Цена: 111424 руб.
Подробнее
КД 10-94
Колонны Серия КЭ 01-52
  • Длина 13950 мм.
  • Ширина 1400 мм.
  • Высота 500 мм.
  • Вес 13700 кг.
  • Объем бетона 5,47 м3
  • Геометрический объем 9,765 м3
Цена: 111424 руб.
Подробнее
КД 10-97
Колонны Серия КЭ 01-52
  • Длина 15750 мм.
  • Ширина 1400 мм.
  • Высота 500 мм.
  • Вес 14700 кг.
  • Объем бетона 5,87 м3
  • Геометрический объем 11,025 м3
Цена: 119572 руб.
Подробнее
КД 10-96
Колонны Серия КЭ 01-52
  • Длина 15750 мм.
  • Ширина 1400 мм.
  • Высота 500 мм.
  • Вес 14700 кг.
  • Объем бетона 5,87 м3
  • Геометрический объем 11,025 м3
Цена: 119572 руб.
Подробнее
КД 10-98
Колонны Серия КЭ 01-52
  • Длина 15750 мм.
  • Ширина 1400 мм.
  • Высота 500 мм.
  • Вес 14700 кг.
  • Объем бетона 5,87 м3
  • Геометрический объем 11,025 м3
Цена: 119572 руб.
Подробнее
КД 10-99
Колонны Серия КЭ 01-52
  • Длина 15750 мм.
  • Ширина 1400 мм.
  • Высота 500 мм.
  • Вес 14700 кг.
  • Объем бетона 5,87 м3
  • Геометрический объем 11,025 м3
Цена: 119572 руб.
Подробнее
КД 12-11
Колонны Серия КЭ 01-52
  • Длина 19350 мм.
  • Ширина 1900 мм.
  • Высота 600 мм.
  • Вес 26600 кг.
  • Объем бетона 10,64 м3
  • Геометрический объем 22,059 м3
Цена: 216737 руб.
Подробнее
КД 12-2
Колонны Серия КЭ 01-52
  • Длина 11850 мм.
  • Ширина 1300 мм.
  • Высота 500 мм.
  • Вес 10000 кг.
  • Объем бетона 3,99 м3
  • Геометрический объем 7,7025 м3
Цена: 81276 руб.
Подробнее
КД 12-10
Колонны Серия КЭ 01-52
  • Длина 18650 мм.
  • Ширина 1900 мм.
  • Высота 600 мм.
  • Вес 25900 кг.
  • Объем бетона 10,35 м3
  • Геометрический объем 21,261 м3
Цена: 210830 руб.
Подробнее
КД 12-1
Колонны Серия КЭ 01-52
  • Длина 11850 мм.
  • Ширина 1000 мм.
  • Высота 400 мм.
  • Вес 5700 кг.
  • Объем бетона 2,27 м3
  • Геометрический объем 4,74 м3
Цена: 46240 руб.
Подробнее
КД 12-3
Колонны Серия КЭ 01-52
  • Длина 13950 мм.
  • Ширина 1300 мм.
  • Высота 500 мм.
  • Вес 11700 кг.
  • Объем бетона 4,69 м3
  • Геометрический объем 9,0675 м3
Цена: 95535 руб.
Подробнее
КД 12-5
Колонны Серия КЭ 01-52
  • Длина 13950 мм.
  • Ширина 1400 мм.
  • Высота 500 мм.
  • Вес 13700 кг.
  • Объем бетона 5,47 м3
  • Геометрический объем 9,765 м3
Цена: 111424 руб.
Подробнее
КД 12-4
Колонны Серия КЭ 01-52
  • Длина 13950 мм.
  • Ширина 1400 мм.
  • Высота 500 мм.
  • Вес 13700 кг.
  • Объем бетона 5,47 м3
  • Геометрический объем 9,765 м3
Цена: 111424 руб.
Подробнее
КД 12-9
Колонны Серия КЭ 01-52
  • Длина 17550 мм.
  • Ширина 1900 мм.
  • Высота 600 мм.
  • Вес 24000 кг.
  • Объем бетона 9,6 м3
  • Геометрический объем 20,007 м3
Цена: 195552 руб.
Подробнее
КД 12-6
Колонны Серия КЭ 01-52
  • Длина 15050 мм.
  • Ширина 1400 мм.
  • Высота 600 мм.
  • Вес 17900 кг.
  • Объем бетона 7,15 м3
  • Геометрический объем 12,642 м3
Цена: 145646 руб.
Подробнее
КД 12-8
Колонны Серия КЭ 01-52
  • Длина 16850 мм.
  • Ширина 1900 мм.
  • Высота 600 мм.
  • Вес 23300 кг.
  • Объем бетона 9,3 м3
  • Геометрический объем 19,209 м3
Цена: 189441 руб.
Подробнее
КД 12-7
Колонны Серия КЭ 01-52
  • Длина 15750 мм.
  • Ширина 1400 мм.
  • Высота 600 мм.
  • Вес 18500 кг.
  • Объем бетона 7,41 м3
  • Геометрический объем 13,23 м3
Цена: 150942 руб.
Подробнее
КД 12к-1
Колонны Серия КЭ 01-52
  • Длина 11850 мм.
  • Ширина 1000 мм.
  • Высота 400 мм.
  • Вес 5700 кг.
  • Объем бетона 2,27 м3
  • Геометрический объем 4,74 м3
Цена: 46240 руб.
Подробнее
КД 12к-10
Колонны Серия КЭ 01-52
  • Длина 18650 мм.
  • Ширина 1900 мм.
  • Высота 600 мм.
  • Вес 25900 кг.
  • Объем бетона 10,35 м3
  • Геометрический объем 21,261 м3
Цена: 210830 руб.
Подробнее
КД 12к-11
Колонны Серия КЭ 01-52
  • Длина 19350 мм.
  • Ширина 1900 мм.
  • Высота 600 мм.
  • Вес 26600 кг.
  • Объем бетона 10,64 м3
  • Геометрический объем 22,059 м3
Цена: 216737 руб.
Подробнее
КД 12к-4
Колонны Серия КЭ 01-52
  • Длина 13950 мм.
  • Ширина 1400 мм.
  • Высота 500 мм.
  • Вес 13700 кг.
  • Объем бетона 5,47 м3
  • Геометрический объем 9,765 м3
Цена: 111424 руб.
Подробнее
КД 12к-2
Колонны Серия КЭ 01-52
  • Длина 11850 мм.
  • Ширина 1300 мм.
  • Высота 500 мм.
  • Вес 10000 кг.
  • Объем бетона 3,99 м3
  • Геометрический объем 7,7025 м3
Цена: 81276 руб.
Подробнее
КД 12к-3
Колонны Серия КЭ 01-52
  • Длина 13950 мм.
  • Ширина 1300 мм.
  • Высота 500 мм.
  • Вес 11700 кг.
  • Объем бетона 4,69 м3
  • Геометрический объем 9,0675 м3
Цена: 95535 руб.
Подробнее
КД 12к-5
Колонны Серия КЭ 01-52
  • Длина 13950 мм.
  • Ширина 1400 мм.
  • Высота 500 мм.
  • Вес 13700 кг.
  • Объем бетона 5,47 м3
  • Геометрический объем 9,765 м3
Цена: 111424 руб.
Подробнее
КД 12к-6
Колонны Серия КЭ 01-52
  • Длина 15050 мм.
  • Ширина 1400 мм.
  • Высота 600 мм.
  • Вес 17900 кг.
  • Объем бетона 7,15 м3
  • Геометрический объем 12,642 м3
Цена: 145646 руб.
Подробнее
КД 12к-8
Колонны Серия КЭ 01-52
  • Длина 16850 мм.
  • Ширина 1900 мм.
  • Высота 600 мм.
  • Вес 23300 кг.
  • Объем бетона 9,3 м3
  • Геометрический объем 19,209 м3
Цена: 189441 руб.
Подробнее
КД 12к-7
Колонны Серия КЭ 01-52
  • Длина 15750 мм.
  • Ширина 1400 мм.
  • Высота 600 мм.
  • Вес 18500 кг.
  • Объем бетона 7,41 м3
  • Геометрический объем 13,23 м3
Цена: 150942 руб.
Подробнее
КД 2-1
Колонны Серия КЭ 01-52
  • Длина 11850 мм.
  • Ширина 1000 мм.
  • Высота 400 мм.
  • Вес 5700 кг.
  • Объем бетона 2,27 м3
  • Геометрический объем 4,74 м3
Цена: 46240 руб.
Подробнее
КД 12к-9
Колонны Серия КЭ 01-52
  • Длина 17550 мм.
  • Ширина 1900 мм.
  • Высота 600 мм.
  • Вес 24000 кг.
  • Объем бетона 9,6 м3
  • Геометрический объем 20,007 м3
Цена: 195552 руб.
Подробнее
КД 2-10
Колонны Серия КЭ 01-52
  • Длина 13250 мм.
  • Ширина 1400 мм.
  • Высота 500 мм.
  • Вес 13200 кг.
  • Объем бетона 5,26 м3
  • Геометрический объем 9,275 м3
Цена: 107146 руб.
Подробнее
КД 2-11
Колонны Серия КЭ 01-52
  • Длина 13250 мм.
  • Ширина 1400 мм.
  • Высота 500 мм.
  • Вес 13200 кг.
  • Объем бетона 5,26 м3
  • Геометрический объем 9,275 м3
Цена: 107146 руб.
Подробнее
КД 2-12
Колонны Серия КЭ 01-52
  • Длина 13250 мм.
  • Ширина 1400 мм.
  • Высота 500 мм.
  • Вес 13200 кг.
  • Объем бетона 5,26 м3
  • Геометрический объем 9,275 м3
Цена: 107146 руб.
Подробнее
КД 2-13
Колонны Серия КЭ 01-52
  • Длина 13250 мм.
  • Ширина 1400 мм.
  • Высота 500 мм.
  • Вес 13200 кг.
  • Объем бетона 5,26 м3
  • Геометрический объем 9,275 м3
Цена: 107146 руб.
Подробнее
КД 2-15
Колонны Серия КЭ 01-52
  • Длина 15750 мм.
  • Ширина 1000 мм.
  • Высота 500 мм.
  • Вес 9700 кг.
  • Объем бетона 3,86 м3
  • Геометрический объем 7,875 м3
Цена: 78628 руб.
Подробнее
КД 2-14
Колонны Серия КЭ 01-52
  • Длина 13250 мм.
  • Ширина 1400 мм.
  • Высота 500 мм.
  • Вес 13200 кг.
  • Объем бетона 5,26 м3
  • Геометрический объем 9,275 м3
Цена: 107146 руб.
Подробнее
КД 2-16
Колонны Серия КЭ 01-52
  • Длина 15750 мм.
  • Ширина 1000 мм.
  • Высота 500 мм.
  • Вес 9700 кг.
  • Объем бетона 3,86 м3
  • Геометрический объем 7,875 м3
Цена: 78628 руб.
Подробнее
КД 2-17
Колонны Серия КЭ 01-52
  • Длина 15750 мм.
  • Ширина 1000 мм.
  • Высота 500 мм.
  • Вес 9700 кг.
  • Объем бетона 3,86 м3
  • Геометрический объем 7,875 м3
Цена: 78628 руб.
Подробнее
КД 2-19
Колонны Серия КЭ 01-52
  • Длина 15050 мм.
  • Ширина 1400 мм.
  • Высота 600 мм.
  • Вес 17900 кг.
  • Объем бетона 7,15 м3
  • Геометрический объем 12,642 м3
Цена: 145646 руб.
Подробнее
КД 2-18
Колонны Серия КЭ 01-52
  • Длина 15750 мм.
  • Ширина 1000 мм.
  • Высота 500 мм.
  • Вес 9700 кг.
  • Объем бетона 3,86 м3
  • Геометрический объем 7,875 м3
Цена: 78628 руб.
Подробнее
КД 2-2
Колонны Серия КЭ 01-52
  • Длина 11850 мм.
  • Ширина 1000 мм.
  • Высота 400 мм.
  • Вес 5700 кг.
  • Объем бетона 2,27 м3
  • Геометрический объем 4,74 м3
Цена: 46240 руб.
Подробнее
КД 2-20
Колонны Серия КЭ 01-52
  • Длина 15050 мм.
  • Ширина 1400 мм.
  • Высота 600 мм.
  • Вес 17900 кг.
  • Объем бетона 7,15 м3
  • Геометрический объем 12,642 м3
Цена: 145646 руб.
Подробнее
КД 2-22
Колонны Серия КЭ 01-52
  • Длина 15050 мм.
  • Ширина 1400 мм.
  • Высота 600 мм.
  • Вес 17900 кг.
  • Объем бетона 7,15 м3
  • Геометрический объем 12,642 м3
Цена: 145646 руб.
Подробнее
КД 2-24
Колонны Серия КЭ 01-52
  • Длина 17750 мм.
  • Ширина 1300 мм.
  • Высота 500 мм.
  • Вес 14800 кг.
  • Объем бетона 5,92 м3
  • Геометрический объем 11,5375 м3
Цена: 120590 руб.
Подробнее
КД 2-25
Колонны Серия КЭ 01-52
  • Длина 17750 мм.
  • Ширина 1300 мм.
  • Высота 500 мм.
  • Вес 14800 кг.
  • Объем бетона 5,92 м3
  • Геометрический объем 11,5375 м3
Цена: 120590 руб.
Подробнее
КД 2-21
Колонны Серия КЭ 01-52
  • Длина 15050 мм.
  • Ширина 1400 мм.
  • Высота 600 мм.
  • Вес 17900 кг.
  • Объем бетона 7,15 м3
  • Геометрический объем 12,642 м3
Цена: 145646 руб.
Подробнее
КД 2-23
Колонны Серия КЭ 01-52
  • Длина 17750 мм.
  • Ширина 1300 мм.
  • Высота 500 мм.
  • Вес 14800 кг.
  • Объем бетона 5,92 м3
  • Геометрический объем 11,5375 м3
Цена: 120590 руб.
Подробнее
КД 2-26
Колонны Серия КЭ 01-52
  • Длина 17750 мм.
  • Ширина 1300 мм.
  • Высота 500 мм.
  • Вес 14800 кг.
  • Объем бетона 5,92 м3
  • Геометрический объем 11,5375 м3
Цена: 120590 руб.
Подробнее
КД 2-27
Колонны Серия КЭ 01-52
  • Длина 16850 мм.
  • Ширина 1900 мм.
  • Высота 600 мм.
  • Вес 23300 кг.
  • Объем бетона 9,3 м3
  • Геометрический объем 19,209 м3
Цена: 189441 руб.
Подробнее

Уведомление о файлах cookie

Мы используем файлы cookie для улучшения вашего опыта просмотра и анализа трафика. Нажимая "Принять все", вы соглашаетесь с нашей политикой конфиденциальности и политикой обработки файлов cookie.

MAX Дзен Телеграм Вконтакте vk