mobile_sound +7 (930) 655-55-90

Типовые конструкции и железобетонные изделия. Рабочие чертежи (Серия КЭ 01-52)

Поделиться:
Поделиться:

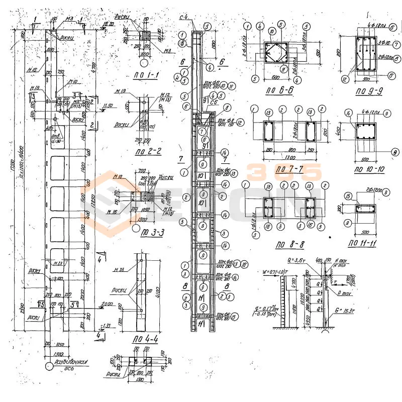
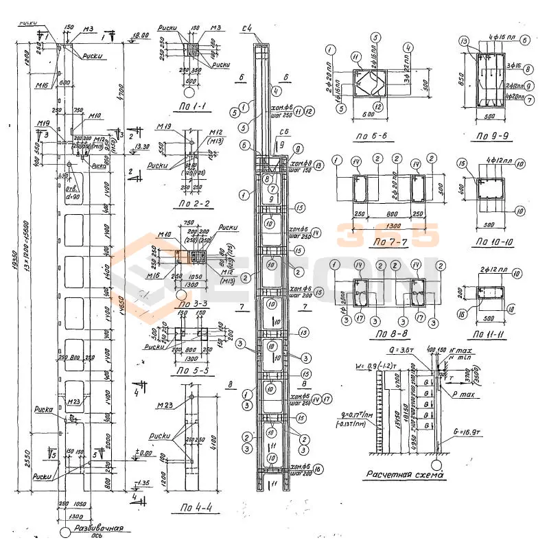
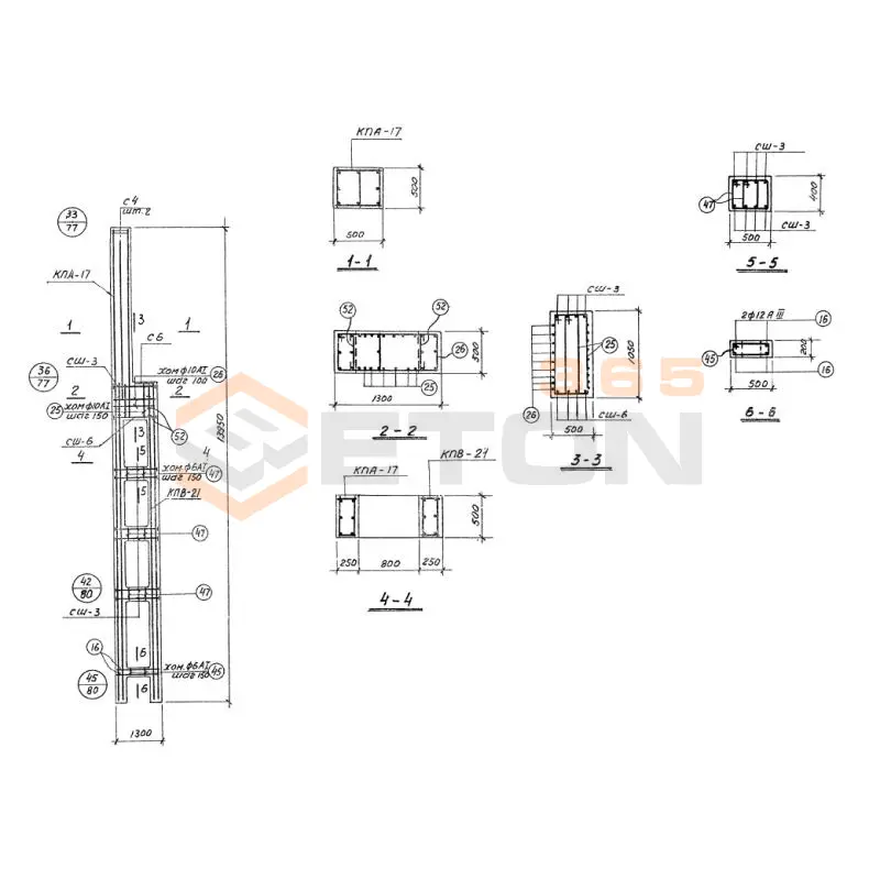
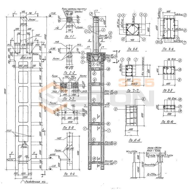
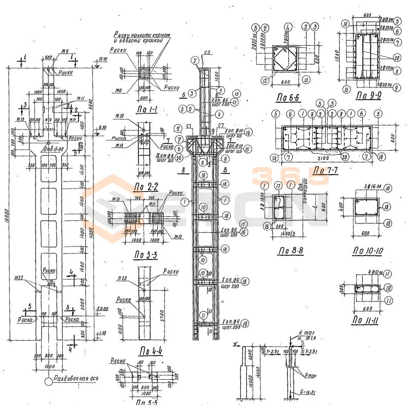
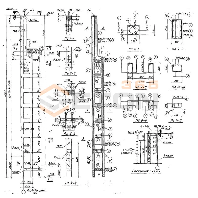
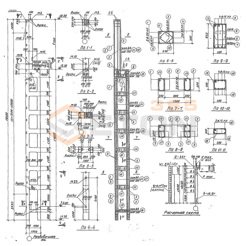
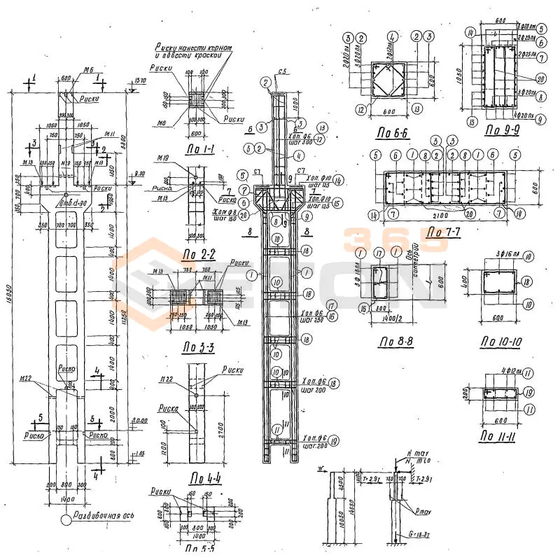
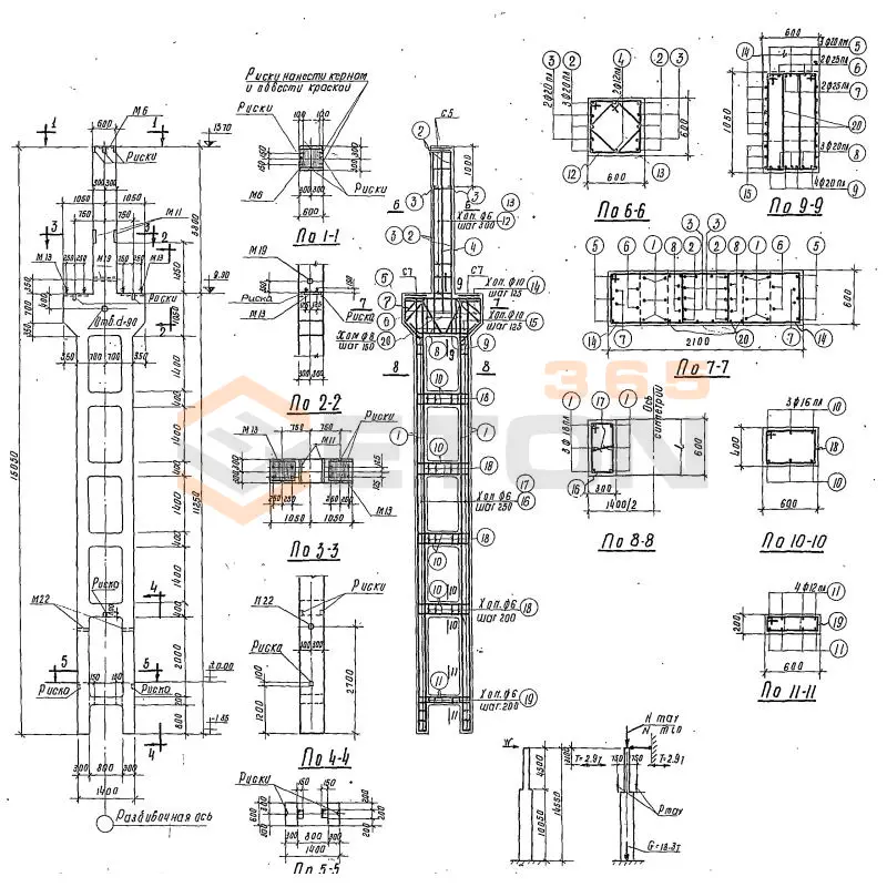
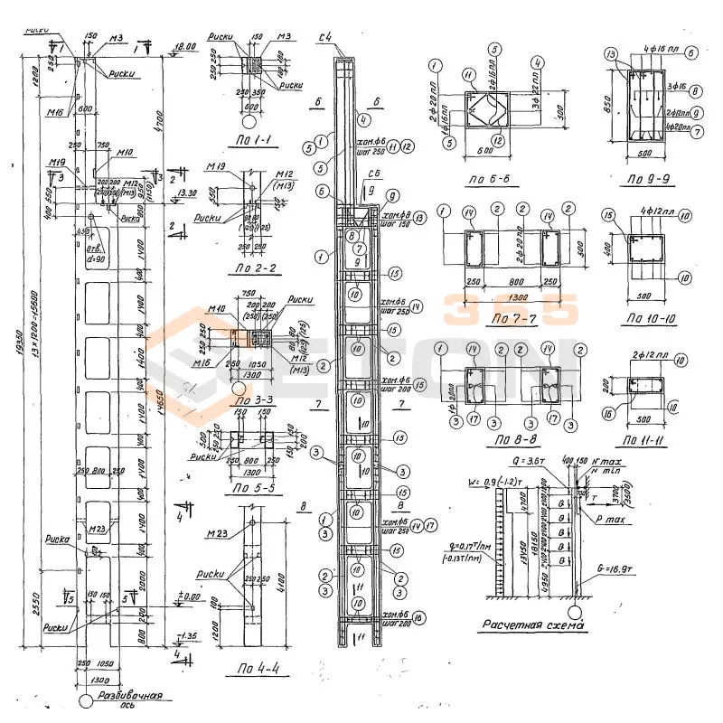
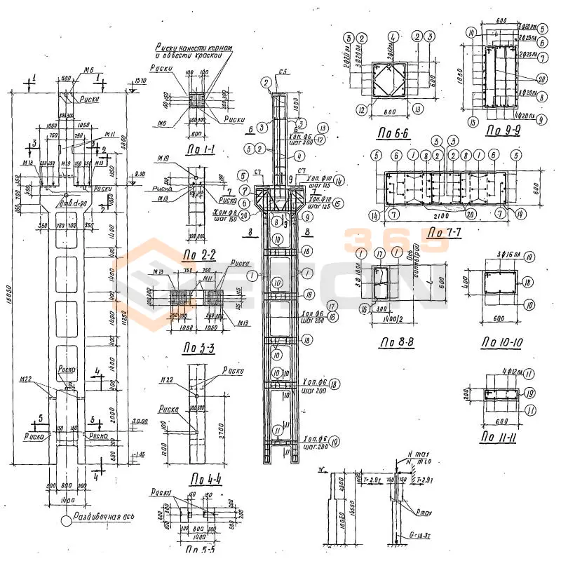
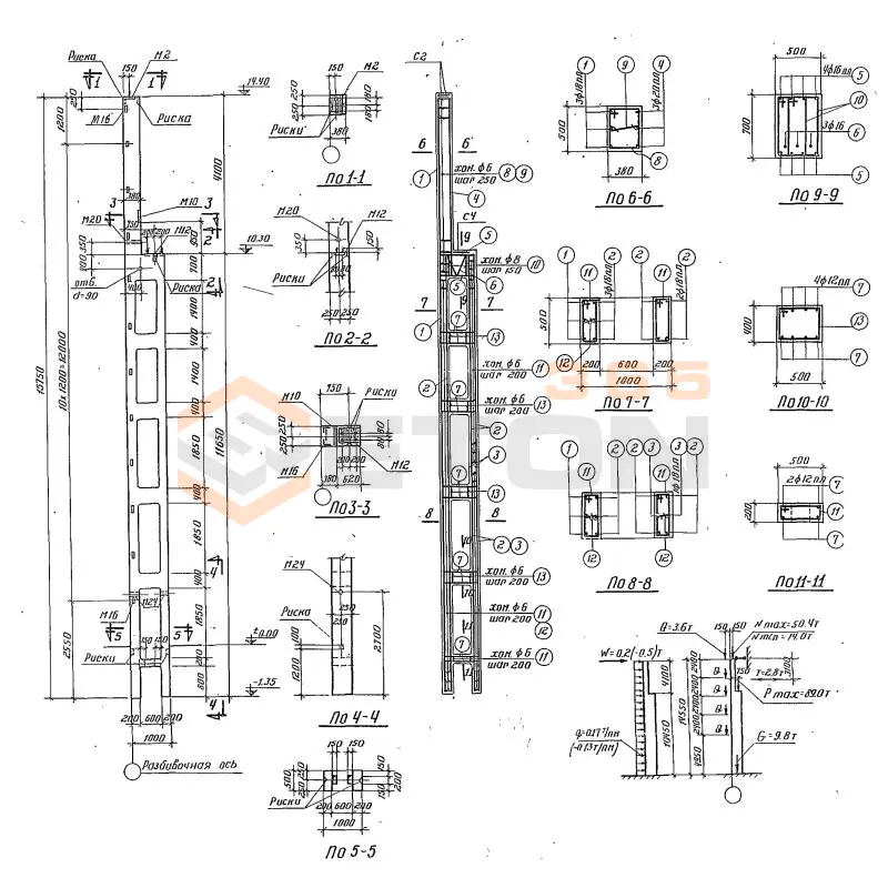
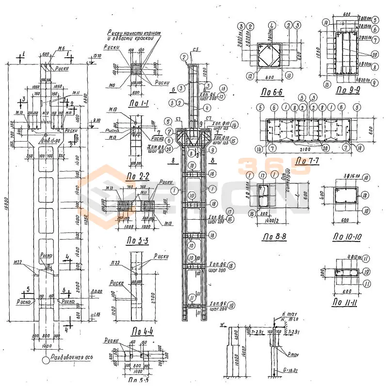
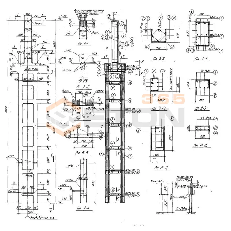
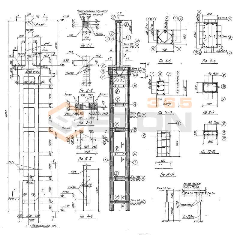
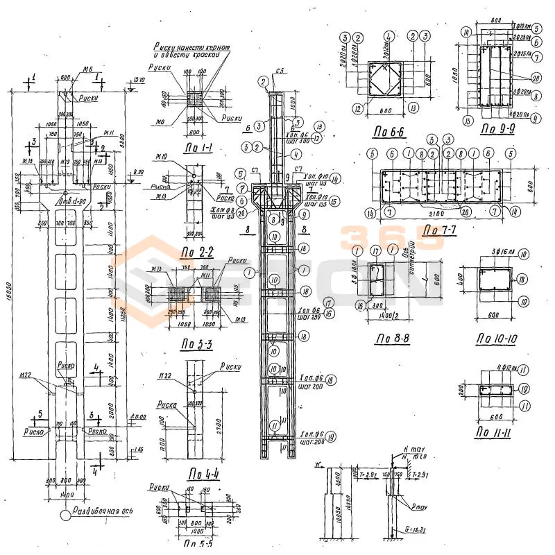
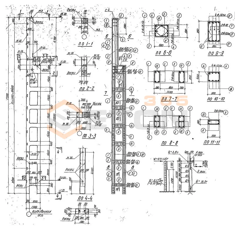
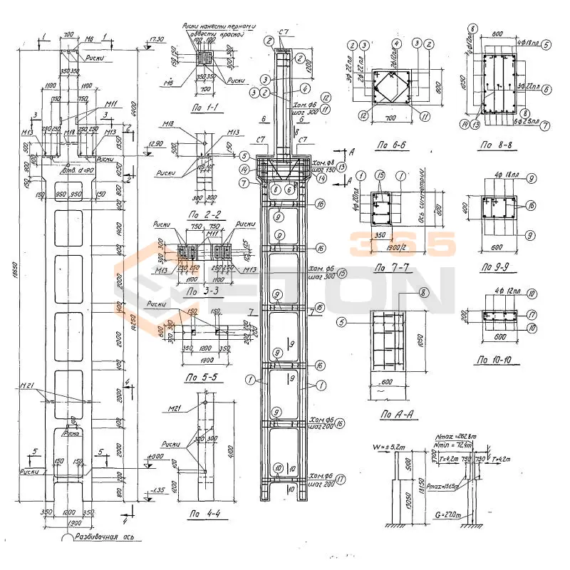
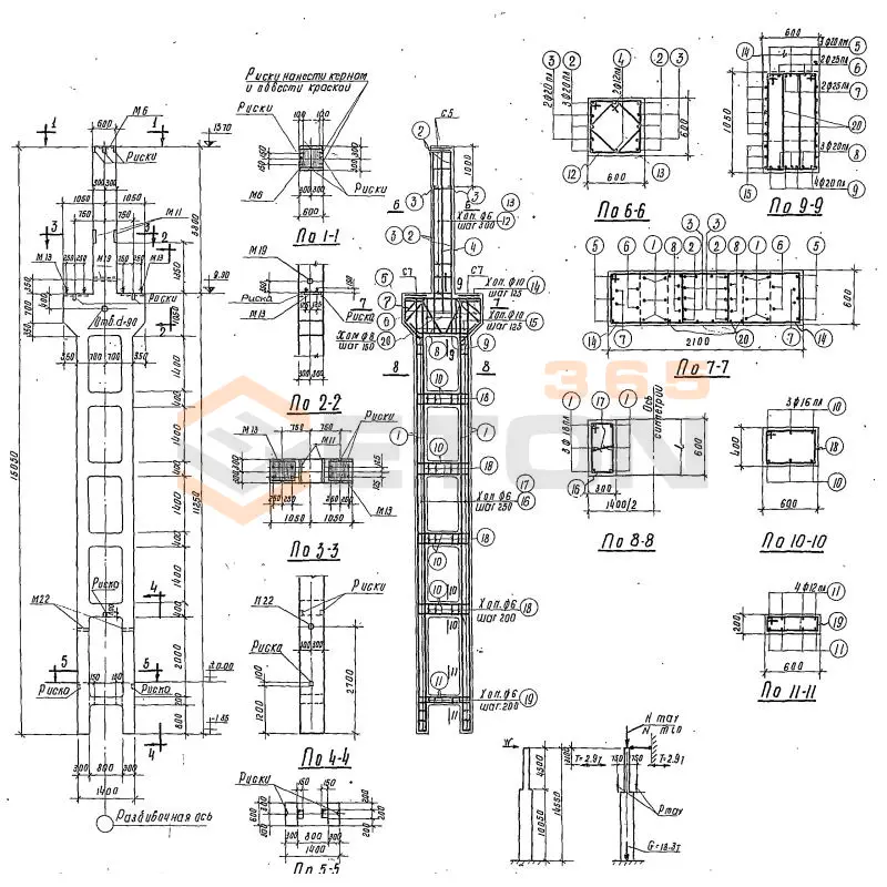
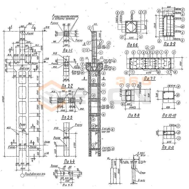
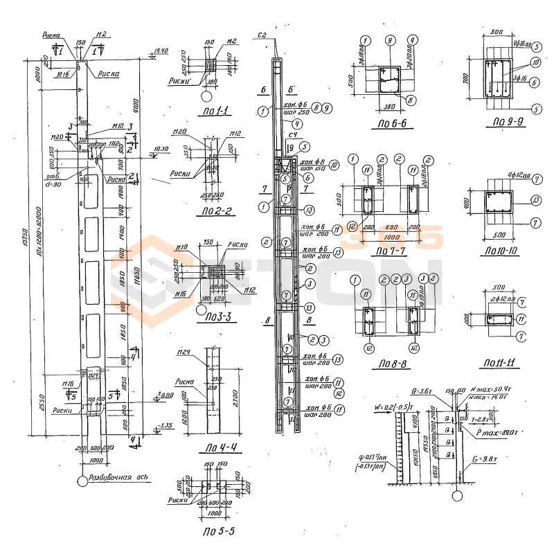
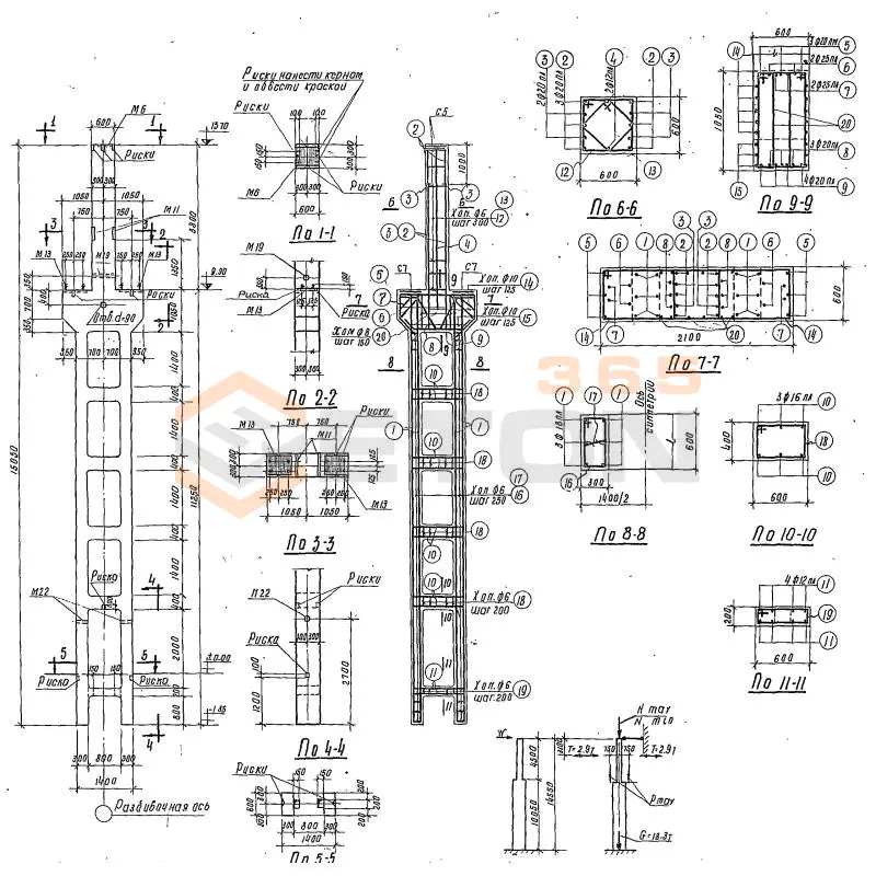
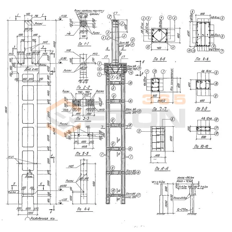
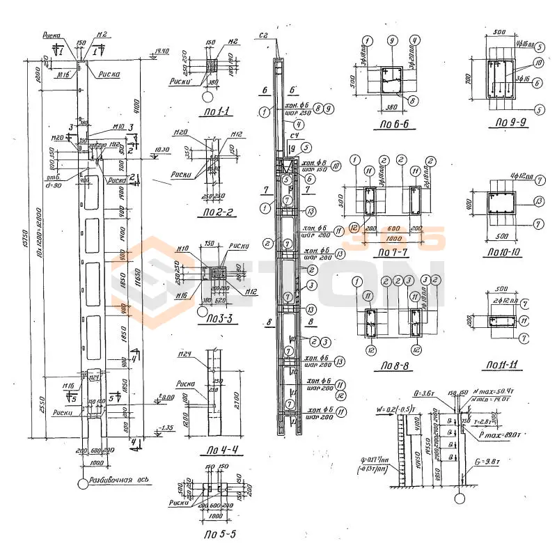
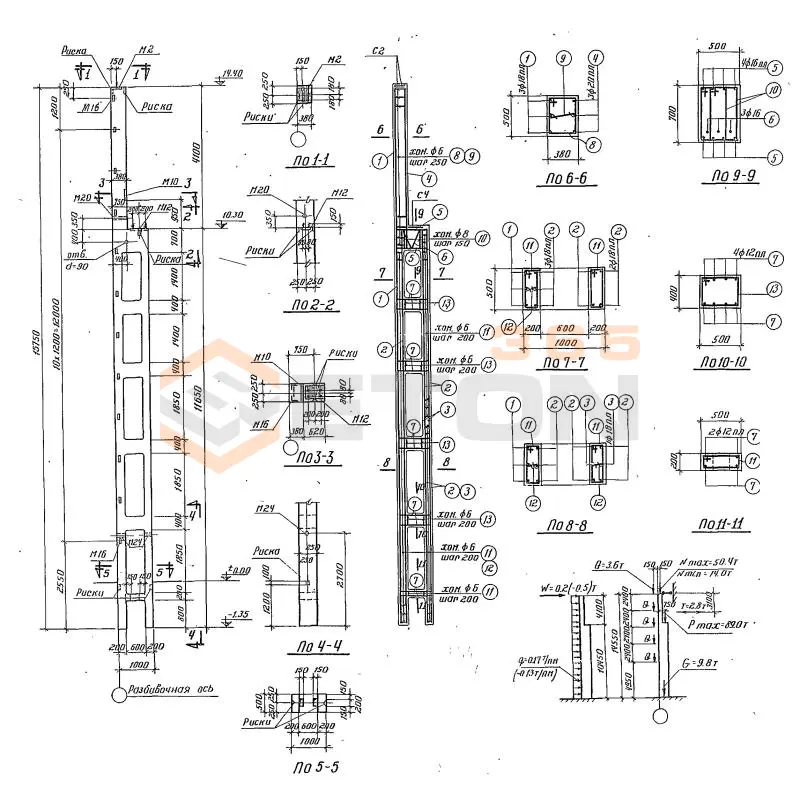
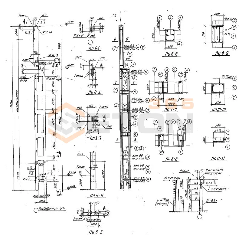
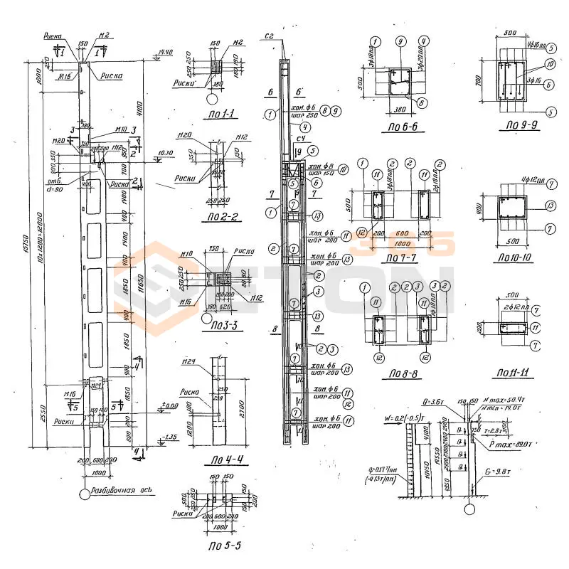
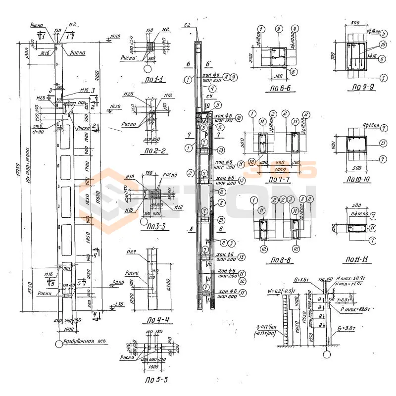
Документ Серия КЭ 01-52 описывает область применения, номенклатуру и ключевые требования, опираясь на действующие нормы и практику проектирования. В составе Серии КЭ 01-52 присутствует большое количество выпусков, содержащих полезные сведения, необходимые для производства двухветвевых колонн из железобетона. Сборные конструкции широко применяются при строительстве одноэтажных производственных сооружений, которые могут иметь пролеты 18, 24 и 30 метров и оборудоваться кранами внушительной грузоподъемности и нескольких режимов работы. изделия и конструкции проектировались по унифицированным габаритным схемам и для облегчения выбора нужных элементов под конкретные условия типового проекта отражены в специальных таблицах, содержащих ключи подбора колонн.

Файлы для скачивания:
picture_as_pdf

4378.pdf

32,054.4 KB

скачать
picture_as_pdf

4386.pdf

42,714.1 KB

скачать
picture_as_pdf

4387.pdf

18,495.8 KB

скачать
picture_as_pdf

4385.pdf

44,816.1 KB

скачать
picture_as_pdf

4380.pdf

10,797.1 KB

скачать
picture_as_pdf

4379.pdf

32,607.8 KB

скачать
picture_as_pdf

4381.pdf

4,694.7 KB

скачать
picture_as_pdf

4383.pdf

14,804.4 KB

скачать
picture_as_pdf

4382.pdf

33,721.3 KB

скачать
picture_as_pdf

4384.pdf

21,992.5 KB

скачать
Товары Серия КЭ 01-52 (60)
КД 10-3
Колонны Серия КЭ 01-52
  • Длина 11850 мм.
  • Ширина 1000 мм.
  • Высота 400 мм.
  • Вес 5700 кг.
  • Объем бетона 2,27 м3
  • Геометрический объем 4,74 м3
Цена: 46240 руб.
Подробнее
КД 10-31
Колонны Серия КЭ 01-52
  • Длина 13250 мм.
  • Ширина 1400 мм.
  • Высота 500 мм.
  • Вес 13200 кг.
  • Объем бетона 5,26 м3
  • Геометрический объем 9,275 м3
Цена: 107146 руб.
Подробнее
КД 10-30
Колонны Серия КЭ 01-52
  • Длина 13250 мм.
  • Ширина 1400 мм.
  • Высота 500 мм.
  • Вес 13200 кг.
  • Объем бетона 5,26 м3
  • Геометрический объем 9,275 м3
Цена: 107146 руб.
Подробнее
КД 10-29
Колонны Серия КЭ 01-52
  • Длина 13250 мм.
  • Ширина 1400 мм.
  • Высота 500 мм.
  • Вес 13200 кг.
  • Объем бетона 5,26 м3
  • Геометрический объем 9,275 м3
Цена: 107146 руб.
Подробнее
КД 10-32
Колонны Серия КЭ 01-52
  • Длина 13250 мм.
  • Ширина 1400 мм.
  • Высота 500 мм.
  • Вес 13200 кг.
  • Объем бетона 5,26 м3
  • Геометрический объем 9,275 м3
Цена: 107146 руб.
Подробнее
КД 10-33
Колонны Серия КЭ 01-52
  • Длина 15750 мм.
  • Ширина 1000 мм.
  • Высота 500 мм.
  • Вес 9700 кг.
  • Объем бетона 3,86 м3
  • Геометрический объем 7,875 м3
Цена: 78628 руб.
Подробнее
КД 10-34
Колонны Серия КЭ 01-52
  • Длина 15750 мм.
  • Ширина 1000 мм.
  • Высота 500 мм.
  • Вес 9700 кг.
  • Объем бетона 3,86 м3
  • Геометрический объем 7,875 м3
Цена: 78628 руб.
Подробнее
КД 10-36
Колонны Серия КЭ 01-52
  • Длина 15750 мм.
  • Ширина 1000 мм.
  • Высота 500 мм.
  • Вес 9700 кг.
  • Объем бетона 3,86 м3
  • Геометрический объем 7,875 м3
Цена: 78628 руб.
Подробнее
КД 10-37
Колонны Серия КЭ 01-52
  • Длина 15750 мм.
  • Ширина 1000 мм.
  • Высота 500 мм.
  • Вес 9700 кг.
  • Объем бетона 3,86 м3
  • Геометрический объем 7,875 м3
Цена: 78628 руб.
Подробнее
КД 10-38
Колонны Серия КЭ 01-52
  • Длина 15750 мм.
  • Ширина 1000 мм.
  • Высота 500 мм.
  • Вес 9700 кг.
  • Объем бетона 3,86 м3
  • Геометрический объем 7,875 м3
Цена: 78628 руб.
Подробнее
КД 10-35
Колонны Серия КЭ 01-52
  • Длина 15750 мм.
  • Ширина 1000 мм.
  • Высота 500 мм.
  • Вес 9700 кг.
  • Объем бетона 3,86 м3
  • Геометрический объем 7,875 м3
Цена: 78628 руб.
Подробнее
КД 10-39
Колонны Серия КЭ 01-52
  • Длина 15750 мм.
  • Ширина 1000 мм.
  • Высота 500 мм.
  • Вес 9700 кг.
  • Объем бетона 3,86 м3
  • Геометрический объем 7,875 м3
Цена: 78628 руб.
Подробнее
КД 10-4
Колонны Серия КЭ 01-52
  • Длина 11850 мм.
  • Ширина 1000 мм.
  • Высота 400 мм.
  • Вес 5700 кг.
  • Объем бетона 2,27 м3
  • Геометрический объем 4,74 м3
Цена: 46240 руб.
Подробнее
КД 10-41
Колонны Серия КЭ 01-52
  • Длина 15050 мм.
  • Ширина 1400 мм.
  • Высота 600 мм.
  • Вес 17900 кг.
  • Объем бетона 7,15 м3
  • Геометрический объем 12,642 м3
Цена: 145646 руб.
Подробнее
КД 10-43
Колонны Серия КЭ 01-52
  • Длина 15050 мм.
  • Ширина 1400 мм.
  • Высота 600 мм.
  • Вес 17900 кг.
  • Объем бетона 7,15 м3
  • Геометрический объем 12,642 м3
Цена: 145646 руб.
Подробнее
КД 10-42
Колонны Серия КЭ 01-52
  • Длина 15050 мм.
  • Ширина 1400 мм.
  • Высота 600 мм.
  • Вес 17900 кг.
  • Объем бетона 7,15 м3
  • Геометрический объем 12,642 м3
Цена: 145646 руб.
Подробнее
КД 10-40
Колонны Серия КЭ 01-52
  • Длина 15050 мм.
  • Ширина 1400 мм.
  • Высота 600 мм.
  • Вес 17900 кг.
  • Объем бетона 7,15 м3
  • Геометрический объем 12,642 м3
Цена: 145646 руб.
Подробнее
КД 10-45
Колонны Серия КЭ 01-52
  • Длина 15050 мм.
  • Ширина 1400 мм.
  • Высота 600 мм.
  • Вес 17900 кг.
  • Объем бетона 7,15 м3
  • Геометрический объем 12,642 м3
Цена: 145646 руб.
Подробнее
КД 10-44
Колонны Серия КЭ 01-52
  • Длина 15050 мм.
  • Ширина 1400 мм.
  • Высота 600 мм.
  • Вес 17900 кг.
  • Объем бетона 7,15 м3
  • Геометрический объем 12,642 м3
Цена: 145646 руб.
Подробнее
КД 10-46
Колонны Серия КЭ 01-52
  • Длина 15050 мм.
  • Ширина 1400 мм.
  • Высота 600 мм.
  • Вес 17900 кг.
  • Объем бетона 7,15 м3
  • Геометрический объем 12,642 м3
Цена: 145646 руб.
Подробнее
КД 10-47
Колонны Серия КЭ 01-52
  • Длина 15050 мм.
  • Ширина 1400 мм.
  • Высота 600 мм.
  • Вес 17900 кг.
  • Объем бетона 7,15 м3
  • Геометрический объем 12,642 м3
Цена: 145646 руб.
Подробнее
КД 10-48
Колонны Серия КЭ 01-52
  • Длина 15050 мм.
  • Ширина 1400 мм.
  • Высота 600 мм.
  • Вес 17900 кг.
  • Объем бетона 7,15 м3
  • Геометрический объем 12,642 м3
Цена: 145646 руб.
Подробнее
КД 10-49
Колонны Серия КЭ 01-52
  • Длина 17750 мм.
  • Ширина 1300 мм.
  • Высота 500 мм.
  • Вес 14800 кг.
  • Объем бетона 5,92 м3
  • Геометрический объем 11,5375 м3
Цена: 120590 руб.
Подробнее
КД 10-5
Колонны Серия КЭ 01-52
  • Длина 11150 мм.
  • Ширина 1400 мм.
  • Высота 500 мм.
  • Вес 11200 кг.
  • Объем бетона 4,47 м3
  • Геометрический объем 7,805 м3
Цена: 91054 руб.
Подробнее
КД 10-50
Колонны Серия КЭ 01-52
  • Длина 17750 мм.
  • Ширина 1300 мм.
  • Высота 500 мм.
  • Вес 14800 кг.
  • Объем бетона 5,92 м3
  • Геометрический объем 11,5375 м3
Цена: 120590 руб.
Подробнее
КД 10-51
Колонны Серия КЭ 01-52
  • Длина 17750 мм.
  • Ширина 1300 мм.
  • Высота 500 мм.
  • Вес 14800 кг.
  • Объем бетона 5,92 м3
  • Геометрический объем 11,5375 м3
Цена: 120590 руб.
Подробнее
КД 10-53
Колонны Серия КЭ 01-52
  • Длина 16850 мм.
  • Ширина 1500 мм.
  • Высота 600 мм.
  • Вес 23300 кг.
  • Объем бетона 9,3 м3
  • Геометрический объем 15,165 м3
Цена: 189441 руб.
Подробнее
КД 10-52
Колонны Серия КЭ 01-52
  • Длина 16850 мм.
  • Ширина 1500 мм.
  • Высота 600 мм.
  • Вес 23300 кг.
  • Объем бетона 9,3 м3
  • Геометрический объем 15,165 м3
Цена: 189441 руб.
Подробнее
КД 10-54
Колонны Серия КЭ 01-52
  • Длина 16850 мм.
  • Ширина 1500 мм.
  • Высота 600 мм.
  • Вес 23300 кг.
  • Объем бетона 9,3 м3
  • Геометрический объем 15,165 м3
Цена: 189441 руб.
Подробнее
КД 10-56
Колонны Серия КЭ 01-52
  • Длина 16850 мм.
  • Ширина 1500 мм.
  • Высота 600 мм.
  • Вес 23300 кг.
  • Объем бетона 9,3 м3
  • Геометрический объем 15,165 м3
Цена: 189441 руб.
Подробнее
КД 10-55
Колонны Серия КЭ 01-52
  • Длина 16850 мм.
  • Ширина 1500 мм.
  • Высота 600 мм.
  • Вес 23300 кг.
  • Объем бетона 9,3 м3
  • Геометрический объем 15,165 м3
Цена: 189441 руб.
Подробнее
КД 10-57
Колонны Серия КЭ 01-52
  • Длина 16850 мм.
  • Ширина 1500 мм.
  • Высота 600 мм.
  • Вес 23300 кг.
  • Объем бетона 9,3 м3
  • Геометрический объем 15,165 м3
Цена: 189441 руб.
Подробнее
КД 10-6
Колонны Серия КЭ 01-52
  • Длина 11150 мм.
  • Ширина 1400 мм.
  • Высота 500 мм.
  • Вес 11200 кг.
  • Объем бетона 4,47 м3
  • Геометрический объем 7,805 м3
Цена: 91054 руб.
Подробнее
КД 10-58
Колонны Серия КЭ 01-52
  • Длина 19350 мм.
  • Ширина 1300 мм.
  • Высота 500 мм.
  • Вес 16300 кг.
  • Объем бетона 6,53 м3
  • Геометрический объем 12,5775 м3
Цена: 133016 руб.
Подробнее
КД 10-59
Колонны Серия КЭ 01-52
  • Длина 19350 мм.
  • Ширина 1300 мм.
  • Высота 500 мм.
  • Вес 16300 кг.
  • Объем бетона 6,53 м3
  • Геометрический объем 12,5775 м3
Цена: 133016 руб.
Подробнее
КД 10-61
Колонны Серия КЭ 01-52
  • Длина 19350 мм.
  • Ширина 1300 мм.
  • Высота 500 мм.
  • Вес 16300 кг.
  • Объем бетона 6,53 м3
  • Геометрический объем 12,5775 м3
Цена: 133016 руб.
Подробнее
КД 10-60
Колонны Серия КЭ 01-52
  • Длина 19350 мм.
  • Ширина 1300 мм.
  • Высота 500 мм.
  • Вес 16300 кг.
  • Объем бетона 6,53 м3
  • Геометрический объем 12,5775 м3
Цена: 133016 руб.
Подробнее
КД 10-62
Колонны Серия КЭ 01-52
  • Длина 18650 мм.
  • Ширина 1900 мм.
  • Высота 600 мм.
  • Вес 25900 кг.
  • Объем бетона 10,35 м3
  • Геометрический объем 21,261 м3
Цена: 210830 руб.
Подробнее
КД 10-63
Колонны Серия КЭ 01-52
  • Длина 18650 мм.
  • Ширина 1900 мм.
  • Высота 600 мм.
  • Вес 25900 кг.
  • Объем бетона 10,35 м3
  • Геометрический объем 21,261 м3
Цена: 210830 руб.
Подробнее
КД 10-65
Колонны Серия КЭ 01-52
  • Длина 18650 мм.
  • Ширина 1900 мм.
  • Высота 600 мм.
  • Вес 25900 кг.
  • Объем бетона 10,35 м3
  • Геометрический объем 21,261 м3
Цена: 210830 руб.
Подробнее
КД 10-64
Колонны Серия КЭ 01-52
  • Длина 18650 мм.
  • Ширина 1900 мм.
  • Высота 600 мм.
  • Вес 25900 кг.
  • Объем бетона 10,35 м3
  • Геометрический объем 21,261 м3
Цена: 210830 руб.
Подробнее
КД 10-66
Колонны Серия КЭ 01-52
  • Длина 18650 мм.
  • Ширина 1900 мм.
  • Высота 600 мм.
  • Вес 25900 кг.
  • Объем бетона 10,35 м3
  • Геометрический объем 21,261 м3
Цена: 210830 руб.
Подробнее
КД 10-68
Колонны Серия КЭ 01-52
  • Длина 11850 мм.
  • Ширина 1300 мм.
  • Высота 500 мм.
  • Вес 10000 кг.
  • Объем бетона 3,99 м3
  • Геометрический объем 7,7025 м3
Цена: 81276 руб.
Подробнее
КД 10-67
Колонны Серия КЭ 01-52
  • Длина 18650 мм.
  • Ширина 1900 мм.
  • Высота 600 мм.
  • Вес 25900 кг.
  • Объем бетона 10,35 м3
  • Геометрический объем 21,261 м3
Цена: 210830 руб.
Подробнее
КД 10-69
Колонны Серия КЭ 01-52
  • Длина 11850 мм.
  • Ширина 1300 мм.
  • Высота 500 мм.
  • Вес 10000 кг.
  • Объем бетона 3,99 м3
  • Геометрический объем 7,7025 м3
Цена: 81276 руб.
Подробнее
КД 10-7
Колонны Серия КЭ 01-52
  • Длина 11150 мм.
  • Ширина 1400 мм.
  • Высота 500 мм.
  • Вес 11200 кг.
  • Объем бетона 4,47 м3
  • Геометрический объем 7,805 м3
Цена: 91054 руб.
Подробнее
КД 10-70
Колонны Серия КЭ 01-52
  • Длина 11850 мм.
  • Ширина 1300 мм.
  • Высота 500 мм.
  • Вес 10000 кг.
  • Объем бетона 3,99 м3
  • Геометрический объем 7,7025 м3
Цена: 81276 руб.
Подробнее
КД 10-71
Колонны Серия КЭ 01-52
  • Длина 11850 мм.
  • Ширина 1300 мм.
  • Высота 500 мм.
  • Вес 10000 кг.
  • Объем бетона 3,99 м3
  • Геометрический объем 7,7025 м3
Цена: 81276 руб.
Подробнее
КД 10-72
Колонны Серия КЭ 01-52
  • Длина 11850 мм.
  • Ширина 1300 мм.
  • Высота 500 мм.
  • Вес 10000 кг.
  • Объем бетона 3,99 м3
  • Геометрический объем 7,7025 м3
Цена: 81276 руб.
Подробнее
КД 10-74
Колонны Серия КЭ 01-52
  • Длина 11850 мм.
  • Ширина 1400 мм.
  • Высота 500 мм.
  • Вес 11700 кг.
  • Объем бетона 4,68 м3
  • Геометрический объем 8,295 м3
Цена: 95332 руб.
Подробнее
КД 10-75
Колонны Серия КЭ 01-52
  • Длина 11850 мм.
  • Ширина 1400 мм.
  • Высота 500 мм.
  • Вес 11700 кг.
  • Объем бетона 4,68 м3
  • Геометрический объем 8,295 м3
Цена: 95332 руб.
Подробнее
КД 10-76
Колонны Серия КЭ 01-52
  • Длина 11850 мм.
  • Ширина 1400 мм.
  • Высота 500 мм.
  • Вес 11700 кг.
  • Объем бетона 4,68 м3
  • Геометрический объем 8,295 м3
Цена: 95332 руб.
Подробнее
КД 10-73
Колонны Серия КЭ 01-52
  • Длина 11850 мм.
  • Ширина 1300 мм.
  • Высота 500 мм.
  • Вес 10000 кг.
  • Объем бетона 3,99 м3
  • Геометрический объем 7,7025 м3
Цена: 81276 руб.
Подробнее
КД 10-77
Колонны Серия КЭ 01-52
  • Длина 11850 мм.
  • Ширина 1400 мм.
  • Высота 500 мм.
  • Вес 11700 кг.
  • Объем бетона 4,68 м3
  • Геометрический объем 8,295 м3
Цена: 95332 руб.
Подробнее
КД 10-78
Колонны Серия КЭ 01-52
  • Длина 11850 мм.
  • Ширина 1400 мм.
  • Высота 500 мм.
  • Вес 11700 кг.
  • Объем бетона 4,68 м3
  • Геометрический объем 8,295 м3
Цена: 95332 руб.
Подробнее
КД 10-8
Колонны Серия КЭ 01-52
  • Длина 11150 мм.
  • Ширина 1400 мм.
  • Высота 500 мм.
  • Вес 11200 кг.
  • Объем бетона 4,47 м3
  • Геометрический объем 7,805 м3
Цена: 91054 руб.
Подробнее
КД 10-79
Колонны Серия КЭ 01-52
  • Длина 11850 мм.
  • Ширина 1400 мм.
  • Высота 500 мм.
  • Вес 11700 кг.
  • Объем бетона 4,68 м3
  • Геометрический объем 8,295 м3
Цена: 95332 руб.
Подробнее
КД 10-80
Колонны Серия КЭ 01-52
  • Длина 11850 мм.
  • Ширина 1400 мм.
  • Высота 500 мм.
  • Вес 11700 кг.
  • Объем бетона 4,68 м3
  • Геометрический объем 8,295 м3
Цена: 95332 руб.
Подробнее
КД 10-81
Колонны Серия КЭ 01-52
  • Длина 13950 мм.
  • Ширина 1300 мм.
  • Высота 500 мм.
  • Вес 11700 кг.
  • Объем бетона 4,69 м3
  • Геометрический объем 9,0675 м3
Цена: 95535 руб.
Подробнее
КД 10-84
Колонны Серия КЭ 01-52
  • Длина 13950 мм.
  • Ширина 1300 мм.
  • Высота 500 мм.
  • Вес 11700 кг.
  • Объем бетона 4,69 м3
  • Геометрический объем 9,0675 м3
Цена: 95535 руб.
Подробнее

Уведомление о файлах cookie

Мы используем файлы cookie для улучшения вашего опыта просмотра и анализа трафика. Нажимая "Принять все", вы соглашаетесь с нашей политикой конфиденциальности и политикой обработки файлов cookie.

MAX Дзен Телеграм Вконтакте vk