mobile_sound +7 (930) 655-55-90

Типовые конструкции и железобетонные изделия. Рабочие чертежи (Серия КЭ 01-49)

Поделиться:
Поделиться:

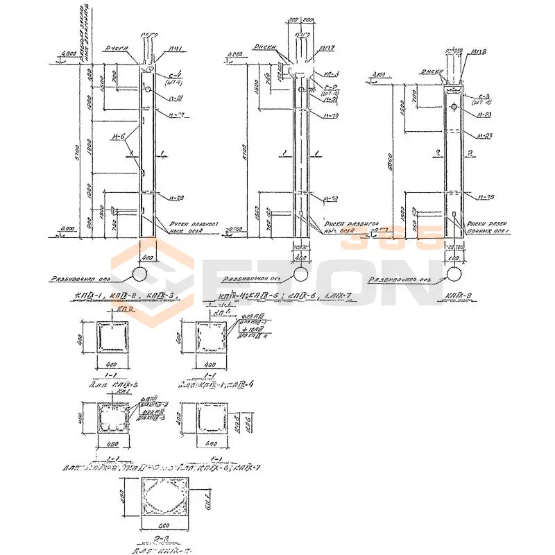
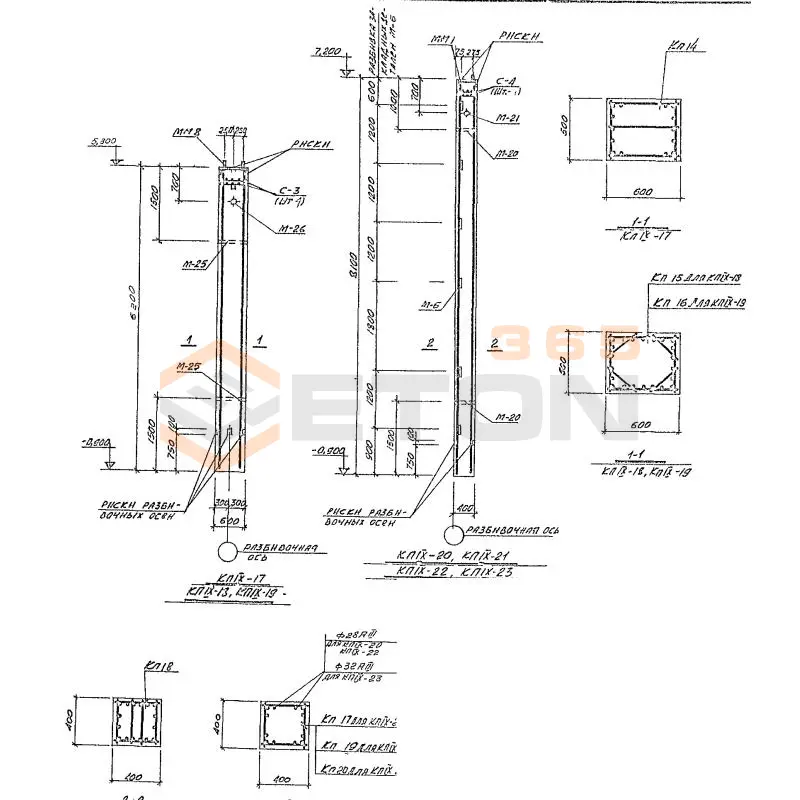
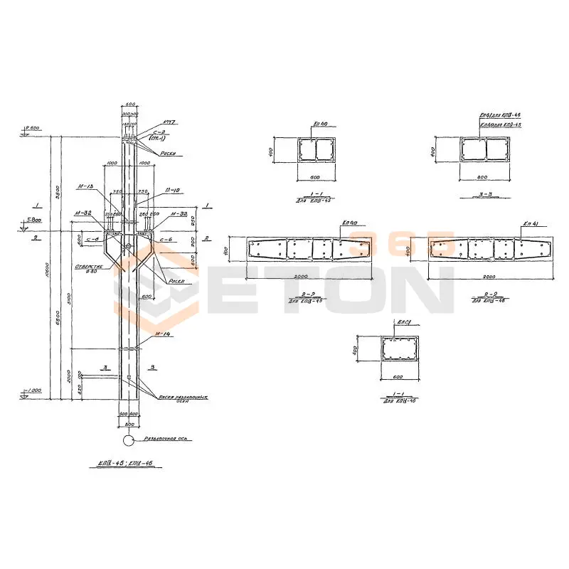
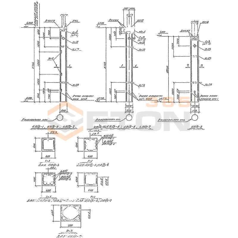
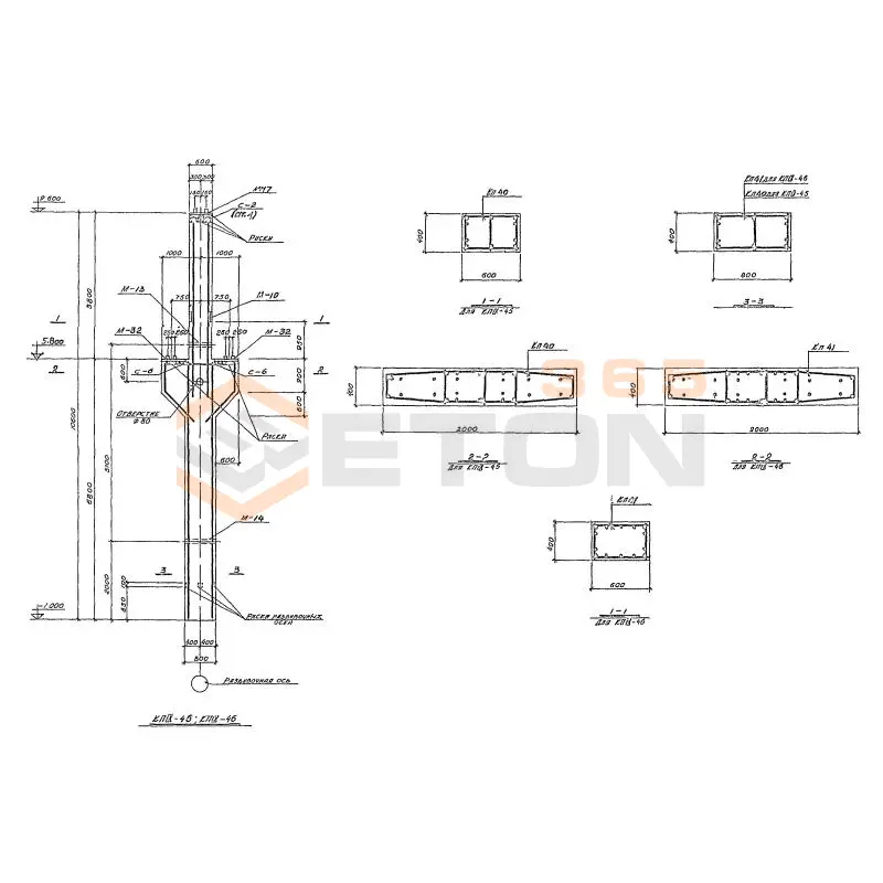
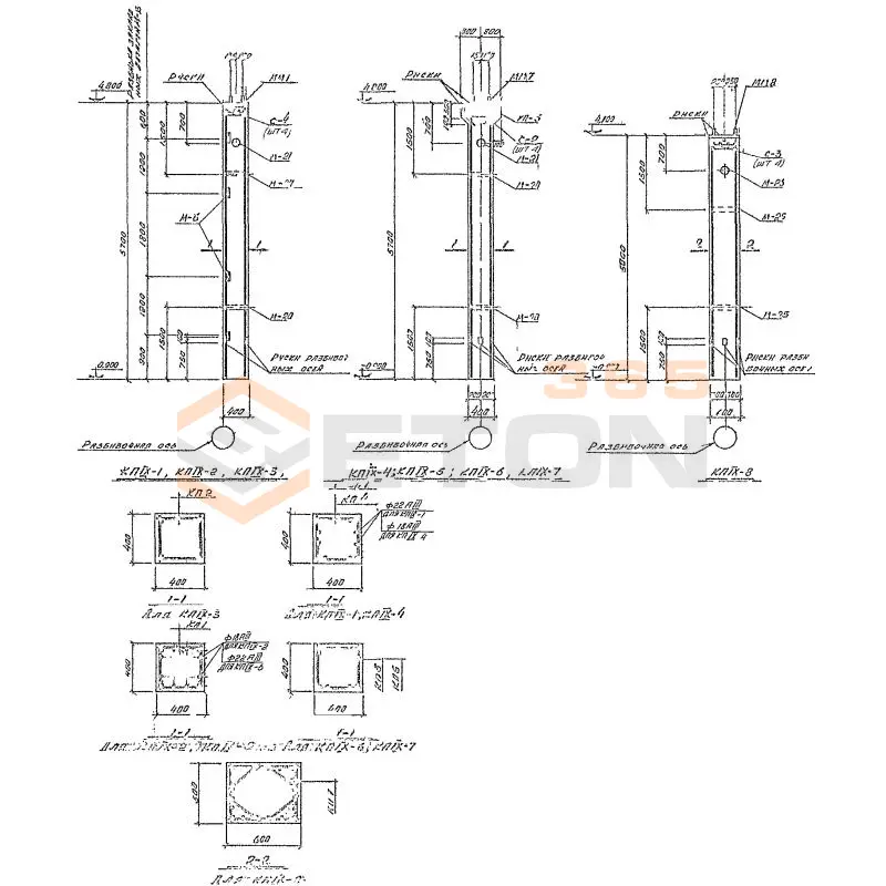
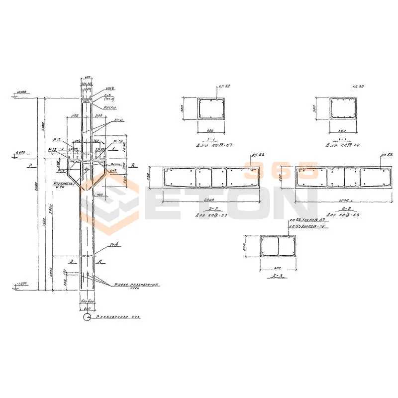
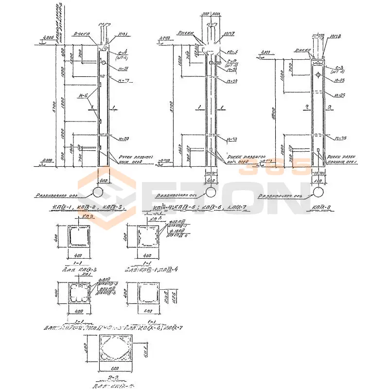
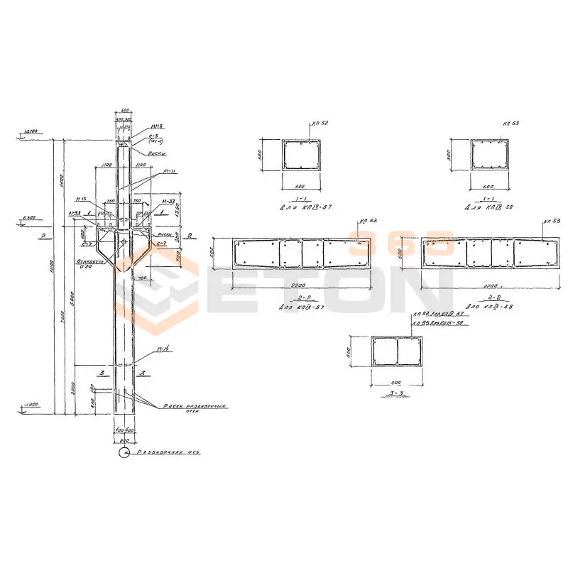
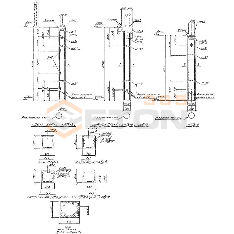
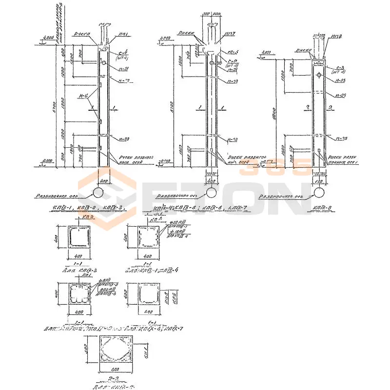
Документ Серия КЭ 01-49 описывает область применения, номенклатуру и ключевые требования, опираясь на действующие нормы и практику проектирования. Серия КЭ 01-49 состоит из нескольких выпусков, детально описывающих специфику производства колонн из железобетона. Представленные в нормативном документе изделия и конструкции могут применяться при строительстве производственных сооружений, оснащенных крановым оборудованием, которое может иметь грузоподъемность 10 и 20 тонн. Элементы также подходят для зданий без кранов, при этом пролеты возводимых объектов могут быть 12, 18 и 24 метра.

Файлы для скачивания:
picture_as_pdf

3048.pdf

30,685.9 KB

скачать
picture_as_pdf

3049.pdf

10,844.5 KB

скачать
picture_as_pdf

3050.pdf

16,377.2 KB

скачать
picture_as_pdf

3051.pdf

10,533.3 KB

скачать
picture_as_pdf

3052.pdf

5,279.3 KB

скачать
picture_as_pdf

3053.pdf

22,335.7 KB

скачать
picture_as_pdf

3054.pdf

3,869.0 KB

скачать
picture_as_pdf

3055.pdf

14,674.0 KB

скачать
Товары Серия КЭ 01-49 (42)
КП 9-20
Колонны Серия КЭ 01-49
  • Длина 8100 мм.
  • Ширина 400 мм.
  • Высота 400 мм.
  • Вес 3200 кг.
  • Объем бетона 1,3 м3
  • Геометрический объем 1,296 м3
Цена: 26481 руб.
Подробнее
КП 9-22
Колонны Серия КЭ 01-49
  • Длина 8100 мм.
  • Ширина 400 мм.
  • Высота 400 мм.
  • Вес 3200 кг.
  • Объем бетона 1,3 м3
  • Геометрический объем 1,296 м3
Цена: 26481 руб.
Подробнее
КП 9-2
Колонны Серия КЭ 01-49
  • Длина 5700 мм.
  • Ширина 400 мм.
  • Высота 400 мм.
  • Вес 2300 кг.
  • Объем бетона 0,91 м3
  • Геометрический объем 0,912 м3
Цена: 18537 руб.
Подробнее
КП 9-23
Колонны Серия КЭ 01-49
  • Длина 8100 мм.
  • Ширина 400 мм.
  • Высота 400 мм.
  • Вес 3200 кг.
  • Объем бетона 1,3 м3
  • Геометрический объем 1,296 м3
Цена: 26481 руб.
Подробнее
КП 9-24
Колонны Серия КЭ 01-49
  • Длина 7400 мм.
  • Ширина 600 мм.
  • Высота 500 мм.
  • Вес 5500 кг.
  • Объем бетона 2,2 м3
  • Геометрический объем 2,22 м3
Цена: 44814 руб.
Подробнее
КП 9-25
Колонны Серия КЭ 01-49
  • Длина 7400 мм.
  • Ширина 600 мм.
  • Высота 500 мм.
  • Вес 5500 кг.
  • Объем бетона 2,2 м3
  • Геометрический объем 2,22 м3
Цена: 44814 руб.
Подробнее
КП 9-26
Колонны Серия КЭ 01-49
  • Длина 7400 мм.
  • Ширина 600 мм.
  • Высота 500 мм.
  • Вес 5500 кг.
  • Объем бетона 2,2 м3
  • Геометрический объем 2,22 м3
Цена: 44814 руб.
Подробнее
КП 9-27
Колонны Серия КЭ 01-49
  • Длина 9300 мм.
  • Ширина 500 мм.
  • Высота 500 мм.
  • Вес 5800 кг.
  • Объем бетона 2,3 м3
  • Геометрический объем 2,325 м3
Цена: 46851 руб.
Подробнее
КП 9-28
Колонны Серия КЭ 01-49
  • Длина 9300 мм.
  • Ширина 500 мм.
  • Высота 500 мм.
  • Вес 5800 кг.
  • Объем бетона 2,3 м3
  • Геометрический объем 2,325 м3
Цена: 46851 руб.
Подробнее
КП 9-30
Колонны Серия КЭ 01-49
  • Длина 9300 мм.
  • Ширина 500 мм.
  • Высота 500 мм.
  • Вес 5800 кг.
  • Объем бетона 2,3 м3
  • Геометрический объем 2,325 м3
Цена: 46851 руб.
Подробнее
КП 9-3
Колонны Серия КЭ 01-49
  • Длина 5700 мм.
  • Ширина 400 мм.
  • Высота 400 мм.
  • Вес 2300 кг.
  • Объем бетона 0,91 м3
  • Геометрический объем 0,912 м3
Цена: 18537 руб.
Подробнее
КП 9-31
Колонны Серия КЭ 01-49
  • Длина 8600 мм.
  • Ширина 600 мм.
  • Высота 500 мм.
  • Вес 7500 кг.
  • Объем бетона 2,6 м3
  • Геометрический объем 2,58 м3
Цена: 52962 руб.
Подробнее
КП 9-32
Колонны Серия КЭ 01-49
  • Длина 8600 мм.
  • Ширина 600 мм.
  • Высота 500 мм.
  • Вес 7500 кг.
  • Объем бетона 2,6 м3
  • Геометрический объем 2,58 м3
Цена: 52962 руб.
Подробнее
КП 9-34
Колонны Серия КЭ 01-49
  • Длина 9400 мм.
  • Ширина 600 мм.
  • Высота 400 мм.
  • Вес 5300 кг.
  • Объем бетона 2,1 м3
  • Геометрический объем 2,256 м3
Цена: 42777 руб.
Подробнее
КП 9-33
Колонны Серия КЭ 01-49
  • Длина 10500 мм.
  • Ширина 600 мм.
  • Высота 500 мм.
  • Вес 7800 кг.
  • Объем бетона 2,9 м3
  • Геометрический объем 3,15 м3
Цена: 59073 руб.
Подробнее
КП 9-36
Колонны Серия КЭ 01-49
  • Длина 9400 мм.
  • Ширина 600 мм.
  • Высота 400 мм.
  • Вес 7100 кг.
  • Объем бетона 2,79 м3
  • Геометрический объем 2,256 м3
Цена: 56832 руб.
Подробнее
КП 9-35
Колонны Серия КЭ 01-49
  • Длина 9400 мм.
  • Ширина 600 мм.
  • Высота 400 мм.
  • Вес 5300 кг.
  • Объем бетона 2,1 м3
  • Геометрический объем 2,256 м3
Цена: 42777 руб.
Подробнее
КП 9-37
Колонны Серия КЭ 01-49
  • Длина 9400 мм.
  • Ширина 600 мм.
  • Высота 400 мм.
  • Вес 7500 кг.
  • Объем бетона 2,79 м3
  • Геометрический объем 2,256 м3
Цена: 56832 руб.
Подробнее
КП 9-39
Колонны Серия КЭ 01-49
  • Длина 9400 мм.
  • Ширина 600 мм.
  • Высота 400 мм.
  • Вес 7000 кг.
  • Объем бетона 2,79 м3
  • Геометрический объем 2,256 м3
Цена: 56832 руб.
Подробнее
КП 9-38
Колонны Серия КЭ 01-49
  • Длина 9400 мм.
  • Ширина 600 мм.
  • Высота 400 мм.
  • Вес 7000 кг.
  • Объем бетона 2,79 м3
  • Геометрический объем 2,256 м3
Цена: 56832 руб.
Подробнее
КП 9-4
Колонны Серия КЭ 01-49
  • Длина 5700 мм.
  • Ширина 400 мм.
  • Высота 400 мм.
  • Вес 2300 кг.
  • Объем бетона 0,91 м3
  • Геометрический объем 0,912 м3
Цена: 18537 руб.
Подробнее
КП 9-43
Колонны Серия КЭ 01-49
  • Длина 10500 мм.
  • Ширина 300 мм.
  • Высота 400 мм.
  • Вес 7100 кг.
  • Объем бетона 2,83 м3
  • Геометрический объем 1,26 м3
Цена: 57647 руб.
Подробнее
КП 9-44
Колонны Серия КЭ 01-49
  • Длина 10500 мм.
  • Ширина 300 мм.
  • Высота 400 мм.
  • Вес 7100 кг.
  • Объем бетона 2,83 м3
  • Геометрический объем 1,26 м3
Цена: 57647 руб.
Подробнее
КП 9-45
Колонны Серия КЭ 01-49
  • Длина 10600 мм.
  • Ширина 600 мм.
  • Высота 400 мм.
  • Вес 9200 кг.
  • Объем бетона 3,67 м3
  • Геометрический объем 2,544 м3
Цена: 74758 руб.
Подробнее
КП 9-46
Колонны Серия КЭ 01-49
  • Длина 10600 мм.
  • Ширина 600 мм.
  • Высота 400 мм.
  • Вес 9200 кг.
  • Объем бетона 3,67 м3
  • Геометрический объем 2,544 м3
Цена: 74758 руб.
Подробнее
КП 9-47
Колонны Серия КЭ 01-49
  • Длина 10600 мм.
  • Ширина 600 мм.
  • Высота 400 мм.
  • Вес 9200 кг.
  • Объем бетона 3,67 м3
  • Геометрический объем 2,544 м3
Цена: 74758 руб.
Подробнее
КП 9-48
Колонны Серия КЭ 01-49
  • Длина 10600 мм.
  • Ширина 600 мм.
  • Высота 400 мм.
  • Вес 9200 кг.
  • Объем бетона 3,67 м3
  • Геометрический объем 2,544 м3
Цена: 74758 руб.
Подробнее
КП 9-49
Колонны Серия КЭ 01-49
  • Длина 9900 мм.
  • Ширина 600 мм.
  • Высота 500 мм.
  • Вес 11200 кг.
  • Объем бетона 4,49 м3
  • Геометрический объем 2,97 м3
Цена: 91461 руб.
Подробнее
КП 9-5
Колонны Серия КЭ 01-49
  • Длина 5700 мм.
  • Ширина 400 мм.
  • Высота 400 мм.
  • Вес 2300 кг.
  • Объем бетона 0,91 м3
  • Геометрический объем 0,912 м3
Цена: 18537 руб.
Подробнее
КП 9-50
Колонны Серия КЭ 01-49
  • Длина 9900 мм.
  • Ширина 600 мм.
  • Высота 500 мм.
  • Вес 11200 кг.
  • Объем бетона 4,49 м3
  • Геометрический объем 2,97 м3
Цена: 91461 руб.
Подробнее
КП 9-51
Колонны Серия КЭ 01-49
  • Длина 11800 мм.
  • Ширина 800 мм.
  • Высота 400 мм.
  • Вес 8000 кг.
  • Объем бетона 3,22 м3
  • Геометрический объем 3,776 м3
Цена: 65591 руб.
Подробнее
КП 9-52
Колонны Серия КЭ 01-49
  • Длина 11800 мм.
  • Ширина 800 мм.
  • Высота 400 мм.
  • Вес 8000 кг.
  • Объем бетона 3,22 м3
  • Геометрический объем 3,776 м3
Цена: 65591 руб.
Подробнее
КП 9-53
Колонны Серия КЭ 01-49
  • Длина 11000 мм.
  • Ширина 600 мм.
  • Высота 400 мм.
  • Вес 10100 кг.
  • Объем бетона 4,05 м3
  • Геометрический объем 2,64 м3
Цена: 82499 руб.
Подробнее
КП 9-54
Колонны Серия КЭ 01-49
  • Длина 11000 мм.
  • Ширина 600 мм.
  • Высота 400 мм.
  • Вес 10100 кг.
  • Объем бетона 4,05 м3
  • Геометрический объем 2,64 м3
Цена: 82499 руб.
Подробнее
КП 9-55
Колонны Серия КЭ 01-49
  • Длина 11800 мм.
  • Ширина 600 мм.
  • Высота 400 мм.
  • Вес 10100 кг.
  • Объем бетона 4,05 м3
  • Геометрический объем 2,832 м3
Цена: 82499 руб.
Подробнее
КП 9-57
Колонны Серия КЭ 01-49
  • Длина 11100 мм.
  • Ширина 600 мм.
  • Высота 500 мм.
  • Вес 12400 кг.
  • Объем бетона 4,97 м3
  • Геометрический объем 3,33 м3
Цена: 101239 руб.
Подробнее
КП 9-56
Колонны Серия КЭ 01-49
  • Длина 11800 мм.
  • Ширина 600 мм.
  • Высота 400 мм.
  • Вес 10100 кг.
  • Объем бетона 4,05 м3
  • Геометрический объем 2,832 м3
Цена: 82499 руб.
Подробнее
КП 9-58
Колонны Серия КЭ 01-49
  • Длина 11100 мм.
  • Ширина 600 мм.
  • Высота 500 мм.
  • Вес 12400 кг.
  • Объем бетона 4,97 м3
  • Геометрический объем 3,33 м3
Цена: 101239 руб.
Подробнее
КП 9-6
Колонны Серия КЭ 01-49
  • Длина 5700 мм.
  • Ширина 400 мм.
  • Высота 400 мм.
  • Вес 2300 кг.
  • Объем бетона 0,91 м3
  • Геометрический объем 0,912 м3
Цена: 18537 руб.
Подробнее
КП 9-7
Колонны Серия КЭ 01-49
  • Длина 5700 мм.
  • Ширина 400 мм.
  • Высота 400 мм.
  • Вес 2500 кг.
  • Объем бетона 0,91 м3
  • Геометрический объем 0,912 м3
Цена: 18537 руб.
Подробнее
КП 9-8
Колонны Серия КЭ 01-49
  • Длина 5000 мм.
  • Ширина 600 мм.
  • Высота 500 мм.
  • Вес 3800 кг.
  • Объем бетона 1,5 м3
  • Геометрический объем 1,5 м3
Цена: 30555 руб.
Подробнее
КП 9-9
Колонны Серия КЭ 01-49
  • Длина 6900 мм.
  • Ширина 400 мм.
  • Высота 400 мм.
  • Вес 2800 кг.
  • Объем бетона 1,1 м3
  • Геометрический объем 1,104 м3
Цена: 22407 руб.
Подробнее

Уведомление о файлах cookie

Мы используем файлы cookie для улучшения вашего опыта просмотра и анализа трафика. Нажимая "Принять все", вы соглашаетесь с нашей политикой конфиденциальности и политикой обработки файлов cookie.

MAX Дзен Телеграм Вконтакте vk