mobile_sound +7 (930) 655-55-90

Типовые конструкции и железобетонные изделия. Рабочие чертежи (Серия КЭ 01-49)

Поделиться:
Поделиться:

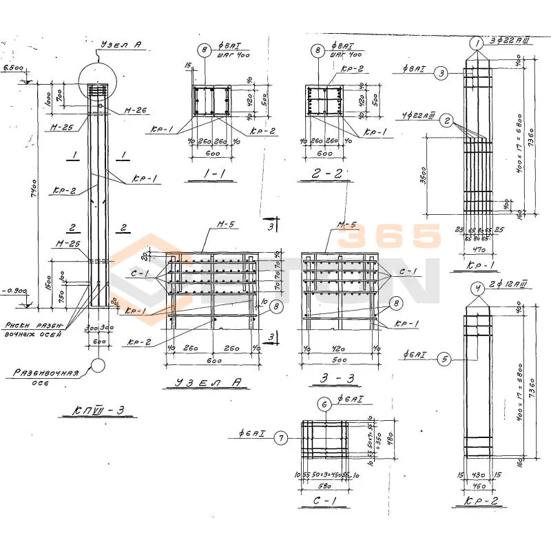
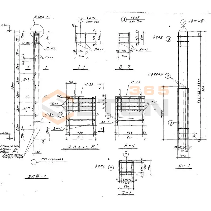
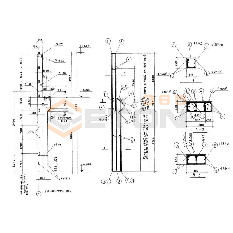
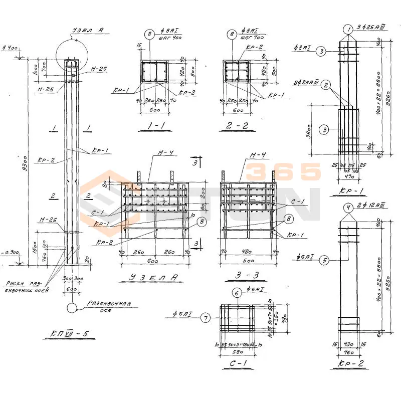
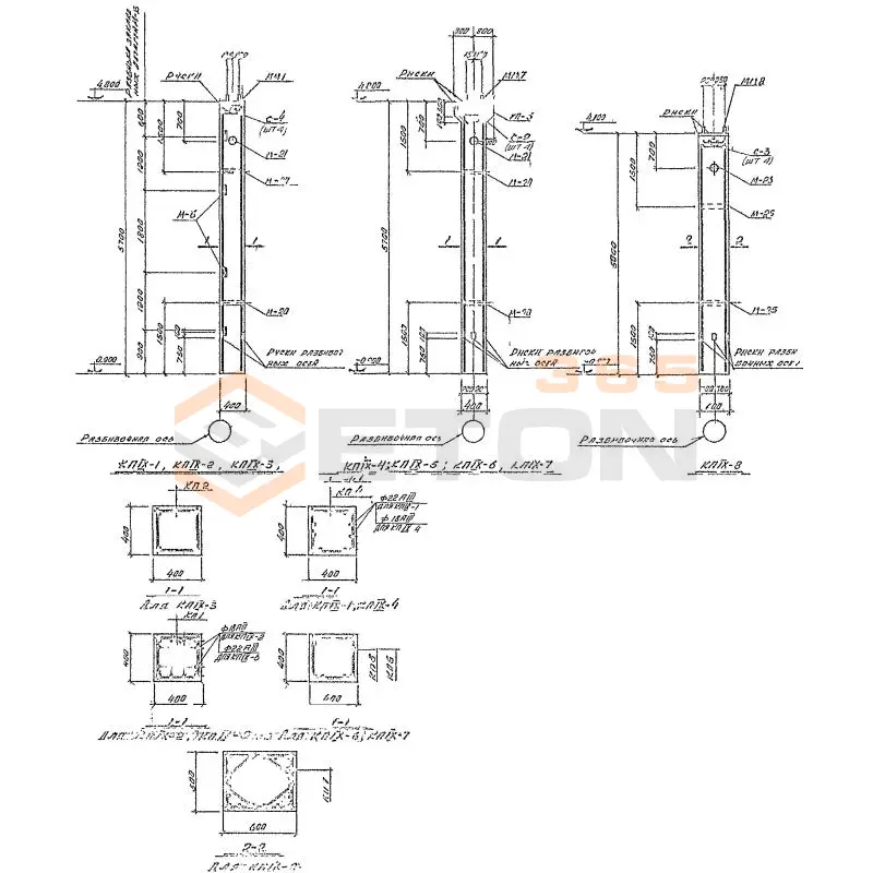
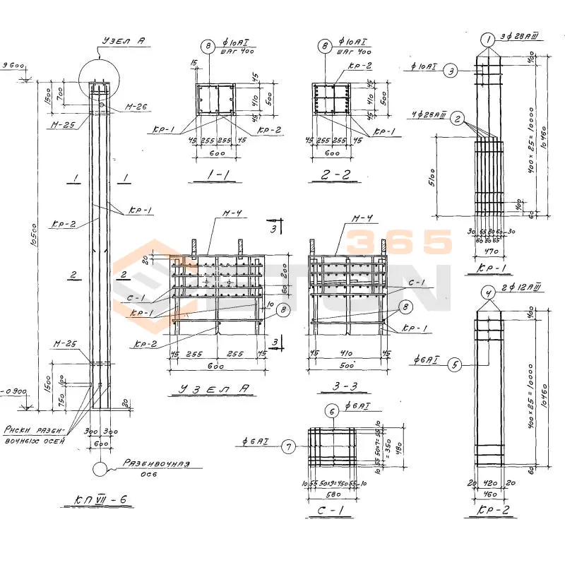
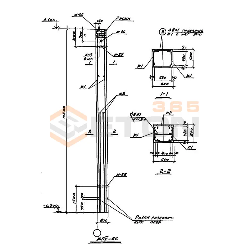
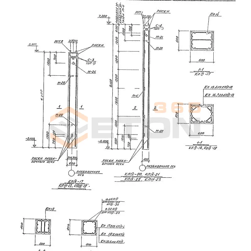
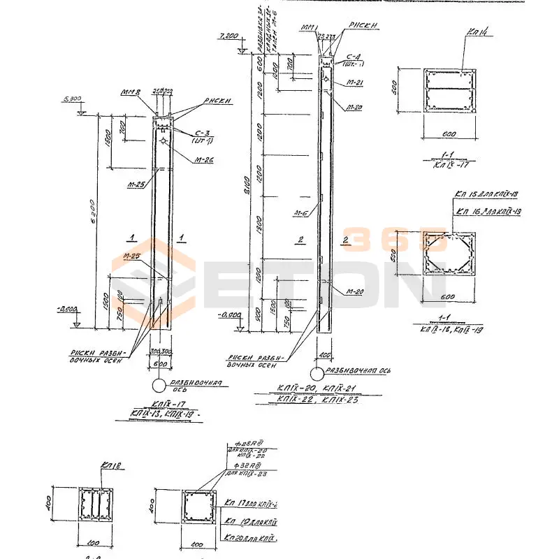
Документ Серия КЭ 01-49 описывает область применения, номенклатуру и ключевые требования, опираясь на действующие нормы и практику проектирования. Серия КЭ 01-49 состоит из нескольких выпусков, детально описывающих специфику производства колонн из железобетона. Представленные в нормативном документе изделия и конструкции могут применяться при строительстве производственных сооружений, оснащенных крановым оборудованием, которое может иметь грузоподъемность 10 и 20 тонн. Элементы также подходят для зданий без кранов, при этом пролеты возводимых объектов могут быть 12, 18 и 24 метра.

Файлы для скачивания:
picture_as_pdf

3048.pdf

30,685.9 KB

скачать
picture_as_pdf

3049.pdf

10,844.5 KB

скачать
picture_as_pdf

3050.pdf

16,377.2 KB

скачать
picture_as_pdf

3051.pdf

10,533.3 KB

скачать
picture_as_pdf

3052.pdf

5,279.3 KB

скачать
picture_as_pdf

3053.pdf

22,335.7 KB

скачать
picture_as_pdf

3054.pdf

3,869.0 KB

скачать
picture_as_pdf

3055.pdf

14,674.0 KB

скачать
Товары Серия КЭ 01-49 (60)
КП 3-7
Колонны Серия КЭ 01-49
  • Длина 5700 мм.
  • Ширина 600 мм.
  • Высота 500 мм.
  • Вес 4300 кг.
  • Объем бетона 1,71 м3
  • Геометрический объем 1,71 м3
Цена: 34833 руб.
Подробнее
КП 3-8
Колонны Серия КЭ 01-49
  • Длина 6200 мм.
  • Ширина 600 мм.
  • Высота 500 мм.
  • Вес 4700 кг.
  • Объем бетона 1,86 м3
  • Геометрический объем 1,86 м3
Цена: 37888 руб.
Подробнее
КП 3-9
Колонны Серия КЭ 01-49
  • Длина 6200 мм.
  • Ширина 600 мм.
  • Высота 500 мм.
  • Вес 4700 кг.
  • Объем бетона 1,86 м3
  • Геометрический объем 1,86 м3
Цена: 37888 руб.
Подробнее
КП 5-26
Колонны Серия КЭ 01-49
  • Длина 6900 мм.
  • Ширина 400 мм.
  • Высота 400 мм.
  • Вес 2800 кг.
  • Объем бетона 1,1 м3
  • Геометрический объем 1,104 м3
Цена: 22407 руб.
Подробнее
КП 5-42
Колонны Серия КЭ 01-49
  • Длина 9400 мм.
  • Ширина 600 мм.
  • Высота 400 мм.
  • Вес 7000 кг.
  • Объем бетона 2,79 м3
  • Геометрический объем 2,256 м3
Цена: 56832 руб.
Подробнее
КП 5-28
Колонны Серия КЭ 01-49
  • Длина 6900 мм.
  • Ширина 400 мм.
  • Высота 400 мм.
  • Вес 3000 кг.
  • Объем бетона 1,2 м3
  • Геометрический объем 1,104 м3
Цена: 24444 руб.
Подробнее
КП 5-27
Колонны Серия КЭ 01-49
  • Длина 8100 мм.
  • Ширина 400 мм.
  • Высота 400 мм.
  • Вес 3200 кг.
  • Объем бетона 1,3 м3
  • Геометрический объем 1,296 м3
Цена: 26481 руб.
Подробнее
КП 5-43
Колонны Серия КЭ 01-49
  • Длина 10600 мм.
  • Ширина 800 мм.
  • Высота 400 мм.
  • Вес 7100 кг.
  • Объем бетона 2,84 м3
  • Геометрический объем 3,392 м3
Цена: 57851 руб.
Подробнее
КП 5-44
Колонны Серия КЭ 01-49
  • Длина 11800 мм.
  • Ширина 800 мм.
  • Высота 400 мм.
  • Вес 8000 кг.
  • Объем бетона 3,22 м3
  • Геометрический объем 3,776 м3
Цена: 65591 руб.
Подробнее
КП 5-45
Колонны Серия КЭ 01-49
  • Длина 11800 мм.
  • Ширина 800 мм.
  • Высота 400 мм.
  • Вес 10100 кг.
  • Объем бетона 4,05 м3
  • Геометрический объем 3,776 м3
Цена: 82499 руб.
Подробнее
КП 5-48
Колонны Серия КЭ 01-49
  • Длина 11800 мм.
  • Ширина 800 мм.
  • Высота 500 мм.
  • Вес 13000 кг.
  • Объем бетона 5,18 м3
  • Геометрический объем 4,72 м3
Цена: 105517 руб.
Подробнее
КП 5-58
Колонны Серия КЭ 01-49
  • Длина 6900 мм.
  • Ширина 500 мм.
  • Высота 500 мм.
  • Вес 4300 кг.
  • Объем бетона 1,7 м3
  • Геометрический объем 1,725 м3
Цена: 34629 руб.
Подробнее
КП 5-59
Колонны Серия КЭ 01-49
  • Длина 8100 мм.
  • Ширина 500 мм.
  • Высота 500 мм.
  • Вес 5000 кг.
  • Объем бетона 2 м3
  • Геометрический объем 2,025 м3
Цена: 40740 руб.
Подробнее
КП 5-47
Колонны Серия КЭ 01-49
  • Длина 11800 мм.
  • Ширина 800 мм.
  • Высота 500 мм.
  • Вес 11600 кг.
  • Объем бетона 4,62 м3
  • Геометрический объем 4,72 м3
Цена: 94109 руб.
Подробнее
КП 5-46
Колонны Серия КЭ 01-49
  • Длина 11100 мм.
  • Ширина 800 мм.
  • Высота 500 мм.
  • Вес 12400 кг.
  • Объем бетона 4,97 м3
  • Геометрический объем 4,44 м3
Цена: 101239 руб.
Подробнее
КП 5-61
Колонны Серия КЭ 01-49
  • Длина 9300 мм.
  • Ширина 500 мм.
  • Высота 500 мм.
  • Вес 5800 кг.
  • Объем бетона 2,3 м3
  • Геометрический объем 2,325 м3
Цена: 46851 руб.
Подробнее
КП 5-60
Колонны Серия КЭ 01-49
  • Длина 9300 мм.
  • Ширина 500 мм.
  • Высота 500 мм.
  • Вес 5800 кг.
  • Объем бетона 2,3 м3
  • Геометрический объем 2,325 м3
Цена: 46851 руб.
Подробнее
КП 5-63
Колонны Серия КЭ 01-49
  • Длина 9300 мм.
  • Ширина 500 мм.
  • Высота 600 мм.
  • Вес 7000 кг.
  • Объем бетона 2,8 м3
  • Геометрический объем 2,79 м3
Цена: 57036 руб.
Подробнее
КП 5-65
Колонны Серия КЭ 01-49
  • Длина 10500 мм.
  • Ширина 500 мм.
  • Высота 500 мм.
  • Вес 6500 кг.
  • Объем бетона 2,6 м3
  • Геометрический объем 2,625 м3
Цена: 52962 руб.
Подробнее
КП 5-64
Колонны Серия КЭ 01-49
  • Длина 10500 мм.
  • Ширина 500 мм.
  • Высота 500 мм.
  • Вес 6500 кг.
  • Объем бетона 2,6 м3
  • Геометрический объем 2,625 м3
Цена: 52962 руб.
Подробнее
КП 5-62
Колонны Серия КЭ 01-49
  • Длина 9300 мм.
  • Ширина 500 мм.
  • Высота 600 мм.
  • Вес 7000 кг.
  • Объем бетона 2,8 м3
  • Геометрический объем 2,79 м3
Цена: 57036 руб.
Подробнее
КП 5-67
Колонны Серия КЭ 01-49
  • Длина 9800 мм.
  • Ширина 500 мм.
  • Высота 600 мм.
  • Вес 7350 кг.
  • Объем бетона 2,94 м3
  • Геометрический объем 2,94 м3
Цена: 59888 руб.
Подробнее
КП 5-69
Колонны Серия КЭ 01-49
  • Длина 7400 мм.
  • Ширина 500 мм.
  • Высота 600 мм.
  • Вес 5500 кг.
  • Объем бетона 2,22 м3
  • Геометрический объем 2,22 м3
Цена: 45221 руб.
Подробнее
КП 5-68
Колонны Серия КЭ 01-49
  • Длина 10500 мм.
  • Ширина 500 мм.
  • Высота 600 мм.
  • Вес 7900 кг.
  • Объем бетона 2,22 м3
  • Геометрический объем 3,15 м3
Цена: 45221 руб.
Подробнее
КП 5-66
Колонны Серия КЭ 01-49
  • Длина 10900 мм.
  • Ширина 500 мм.
  • Высота 600 мм.
  • Вес 7900 кг.
  • Объем бетона 3,15 м3
  • Геометрический объем 3,27 м3
Цена: 64166 руб.
Подробнее
КП 5-70
Колонны Серия КЭ 01-49
  • Длина 7400 мм.
  • Ширина 500 мм.
  • Высота 600 мм.
  • Вес 5500 кг.
  • Объем бетона 2,22 м3
  • Геометрический объем 2,22 м3
Цена: 45221 руб.
Подробнее
КП 5-71
Колонны Серия КЭ 01-49
  • Длина 8100 мм.
  • Ширина 500 мм.
  • Высота 600 мм.
  • Вес 6100 кг.
  • Объем бетона 2,43 м3
  • Геометрический объем 2,43 м3
Цена: 49499 руб.
Подробнее
КП 5-73
Колонны Серия КЭ 01-49
  • Длина 8100 мм.
  • Ширина 500 мм.
  • Высота 600 мм.
  • Вес 6100 кг.
  • Объем бетона 2,43 м3
  • Геометрический объем 2,43 м3
Цена: 49499 руб.
Подробнее
КП 5-72
Колонны Серия КЭ 01-49
  • Длина 8100 мм.
  • Ширина 500 мм.
  • Высота 600 мм.
  • Вес 6100 кг.
  • Объем бетона 2,43 м3
  • Геометрический объем 2,43 м3
Цена: 49499 руб.
Подробнее
КП 5-74
Колонны Серия КЭ 01-49
  • Длина 9300 мм.
  • Ширина 500 мм.
  • Высота 500 мм.
  • Вес 5800 кг.
  • Объем бетона 2,33 м3
  • Геометрический объем 2,325 м3
Цена: 47462 руб.
Подробнее
КП 5-77
Колонны Серия КЭ 01-49
  • Длина 8100 мм.
  • Ширина 500 мм.
  • Высота 500 мм.
  • Вес 500 кг.
  • Объем бетона 2 м3
  • Геометрический объем 2,025 м3
Цена: 40740 руб.
Подробнее
КП 5-76
Колонны Серия КЭ 01-49
  • Длина 9300 мм.
  • Ширина 500 мм.
  • Высота 600 мм.
  • Вес 7000 кг.
  • Объем бетона 2,8 м3
  • Геометрический объем 2,79 м3
Цена: 57036 руб.
Подробнее
КП 5-75
Колонны Серия КЭ 01-49
  • Длина 8600 мм.
  • Ширина 500 мм.
  • Высота 600 мм.
  • Вес 6500 кг.
  • Объем бетона 2,6 м3
  • Геометрический объем 2,58 м3
Цена: 52962 руб.
Подробнее
КП 6-135
Колонны Серия КЭ 01-49
  • Длина 9400 мм.
  • Ширина 600 мм.
  • Высота 400 мм.
  • Вес 5300 кг.
  • Объем бетона 2,1 м3
  • Геометрический объем 2,256 м3
Цена: 42777 руб.
Подробнее
КП 6-136
Колонны Серия КЭ 01-49
  • Длина 10600 мм.
  • Ширина 800 мм.
  • Высота 400 мм.
  • Вес 7100 кг.
  • Объем бетона 2,83 м3
  • Геометрический объем 3,392 м3
Цена: 57647 руб.
Подробнее
КП 6-137
Колонны Серия КЭ 01-49
  • Длина 10600 мм.
  • Ширина 800 мм.
  • Высота 400 мм.
  • Вес 9200 кг.
  • Объем бетона 3,67 м3
  • Геометрический объем 3,392 м3
Цена: 74758 руб.
Подробнее
КП 6-138
Колонны Серия КЭ 01-49
  • Длина 11800 мм.
  • Ширина 800 мм.
  • Высота 400 мм.
  • Вес 8000 кг.
  • Объем бетона 3,22 м3
  • Геометрический объем 3,776 м3
Цена: 65591 руб.
Подробнее
КП 6-140
Колонны Серия КЭ 01-49
  • Длина 11800 мм.
  • Ширина 800 мм.
  • Высота 400 мм.
  • Вес 10100 кг.
  • Объем бетона 4,05 м3
  • Геометрический объем 3,776 м3
Цена: 82499 руб.
Подробнее
КП 6-139
Колонны Серия КЭ 01-49
  • Длина 11800 мм.
  • Ширина 800 мм.
  • Высота 400 мм.
  • Вес 10100 кг.
  • Объем бетона 4,05 м3
  • Геометрический объем 3,776 м3
Цена: 82499 руб.
Подробнее
КП 6-141
Колонны Серия КЭ 01-49
  • Длина 8700 мм.
  • Ширина 800 мм.
  • Высота 500 мм.
  • Вес 10100 кг.
  • Объем бетона 4,05 м3
  • Геометрический объем 3,48 м3
Цена: 82499 руб.
Подробнее
КП 6-142
Колонны Серия КЭ 01-49
  • Длина 9400 мм.
  • Ширина 800 мм.
  • Высота 500 мм.
  • Вес 10700 кг.
  • Объем бетона 4,3 м3
  • Геометрический объем 3,76 м3
Цена: 87591 руб.
Подробнее
КП 7-1
Колонны Серия КЭ 01-49
  • Длина 6900 мм.
  • Ширина 500 мм.
  • Высота 500 мм.
  • Вес 4300 кг.
  • Объем бетона 1,7 м3
  • Геометрический объем 1,725 м3
Цена: 34629 руб.
Подробнее
КП 6-143
Колонны Серия КЭ 01-49
  • Длина 10600 мм.
  • Ширина 800 мм.
  • Высота 500 мм.
  • Вес 11800 кг.
  • Объем бетона 4,7 м3
  • Геометрический объем 4,24 м3
Цена: 95739 руб.
Подробнее
КП 7-2
Колонны Серия КЭ 01-49
  • Длина 6200 мм.
  • Ширина 600 мм.
  • Высота 500 мм.
  • Вес 4700 кг.
  • Объем бетона 1,86 м3
  • Геометрический объем 1,86 м3
Цена: 37888 руб.
Подробнее
КП 7-3
Колонны Серия КЭ 01-49
  • Длина 7400 мм.
  • Ширина 600 мм.
  • Высота 500 мм.
  • Вес 5600 кг.
  • Объем бетона 2,22 м3
  • Геометрический объем 2,22 м3
Цена: 45221 руб.
Подробнее
КП 7-4
Колонны Серия КЭ 01-49
  • Длина 9300 мм.
  • Ширина 500 мм.
  • Высота 500 мм.
  • Вес 5800 кг.
  • Объем бетона 2,32 м3
  • Геометрический объем 2,325 м3
Цена: 47258 руб.
Подробнее
КП 7-5
Колонны Серия КЭ 01-49
  • Длина 9300 мм.
  • Ширина 600 мм.
  • Высота 500 мм.
  • Вес 7000 кг.
  • Объем бетона 2,8 м3
  • Геометрический объем 2,79 м3
Цена: 57036 руб.
Подробнее
КП 7-6
Колонны Серия КЭ 01-49
  • Длина 10500 мм.
  • Ширина 600 мм.
  • Высота 500 мм.
  • Вес 7900 кг.
  • Объем бетона 3,2 м3
  • Геометрический объем 3,15 м3
Цена: 65184 руб.
Подробнее
КП 9-10
Колонны Серия КЭ 01-49
  • Длина 6900 мм.
  • Ширина 400 мм.
  • Высота 400 мм.
  • Вес 2800 кг.
  • Объем бетона 1,1 м3
  • Геометрический объем 1,104 м3
Цена: 22407 руб.
Подробнее
КП 9-1
Колонны Серия КЭ 01-49
  • Длина 5700 мм.
  • Ширина 400 мм.
  • Высота 400 мм.
  • Вес 2300 кг.
  • Объем бетона 0,91 м3
  • Геометрический объем 0,912 м3
Цена: 18537 руб.
Подробнее
КП 9-11
Колонны Серия КЭ 01-49
  • Длина 6900 мм.
  • Ширина 400 мм.
  • Высота 400 мм.
  • Вес 2800 кг.
  • Объем бетона 1,1 м3
  • Геометрический объем 1,104 м3
Цена: 22407 руб.
Подробнее
КП 9-12
Колонны Серия КЭ 01-49
  • Длина 6900 мм.
  • Ширина 400 мм.
  • Высота 400 мм.
  • Вес 3000 кг.
  • Объем бетона 1,1 м3
  • Геометрический объем 1,104 м3
Цена: 22407 руб.
Подробнее
КП 9-13
Колонны Серия КЭ 01-49
  • Длина 6900 мм.
  • Ширина 400 мм.
  • Высота 400 мм.
  • Вес 3000 кг.
  • Объем бетона 1,1 м3
  • Геометрический объем 1,104 м3
Цена: 22407 руб.
Подробнее
КП 9-17
Колонны Серия КЭ 01-49
  • Длина 6300 мм.
  • Ширина 600 мм.
  • Высота 500 мм.
  • Вес 5000 кг.
  • Объем бетона 1,9 м3
  • Геометрический объем 1,89 м3
Цена: 38703 руб.
Подробнее
КП 9-16
Колонны Серия КЭ 01-49
  • Длина 6900 мм.
  • Ширина 400 мм.
  • Высота 400 мм.
  • Вес 3200 кг.
  • Объем бетона 1,12 м3
  • Геометрический объем 1,104 м3
Цена: 22814 руб.
Подробнее
КП 9-15
Колонны Серия КЭ 01-49
  • Длина 6900 мм.
  • Ширина 400 мм.
  • Высота 400 мм.
  • Вес 3100 кг.
  • Объем бетона 1,12 м3
  • Геометрический объем 1,104 м3
Цена: 22814 руб.
Подробнее
КП 9-14
Колонны Серия КЭ 01-49
  • Длина 6900 мм.
  • Ширина 400 мм.
  • Высота 400 мм.
  • Вес 2900 кг.
  • Объем бетона 1,12 м3
  • Геометрический объем 1,104 м3
Цена: 22814 руб.
Подробнее
КП 9-18
Колонны Серия КЭ 01-49
  • Длина 6300 мм.
  • Ширина 600 мм.
  • Высота 500 мм.
  • Вес 5000 кг.
  • Объем бетона 1,9 м3
  • Геометрический объем 1,89 м3
Цена: 38703 руб.
Подробнее
КП 9-19
Колонны Серия КЭ 01-49
  • Длина 6300 мм.
  • Ширина 600 мм.
  • Высота 500 мм.
  • Вес 5000 кг.
  • Объем бетона 1,9 м3
  • Геометрический объем 1,89 м3
Цена: 38703 руб.
Подробнее
КП 9-21
Колонны Серия КЭ 01-49
  • Длина 8100 мм.
  • Ширина 400 мм.
  • Высота 400 мм.
  • Вес 3200 кг.
  • Объем бетона 1,3 м3
  • Геометрический объем 1,296 м3
Цена: 26481 руб.
Подробнее

Уведомление о файлах cookie

Мы используем файлы cookie для улучшения вашего опыта просмотра и анализа трафика. Нажимая "Принять все", вы соглашаетесь с нашей политикой конфиденциальности и политикой обработки файлов cookie.

MAX Дзен Телеграм Вконтакте vk