mobile_sound +7 (930) 655-55-90

Типовые конструкции и железобетонные изделия. Рабочие чертежи (Серия КЭ 01-06)

Поделиться:
Поделиться:

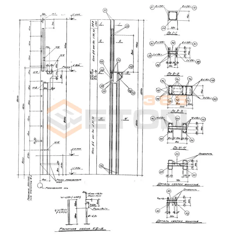
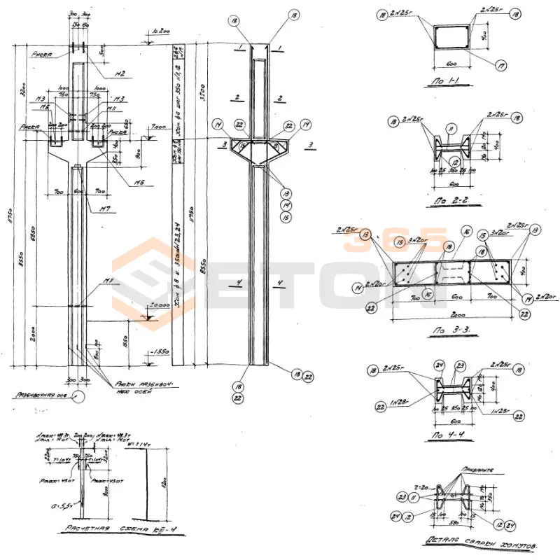
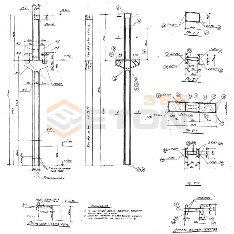
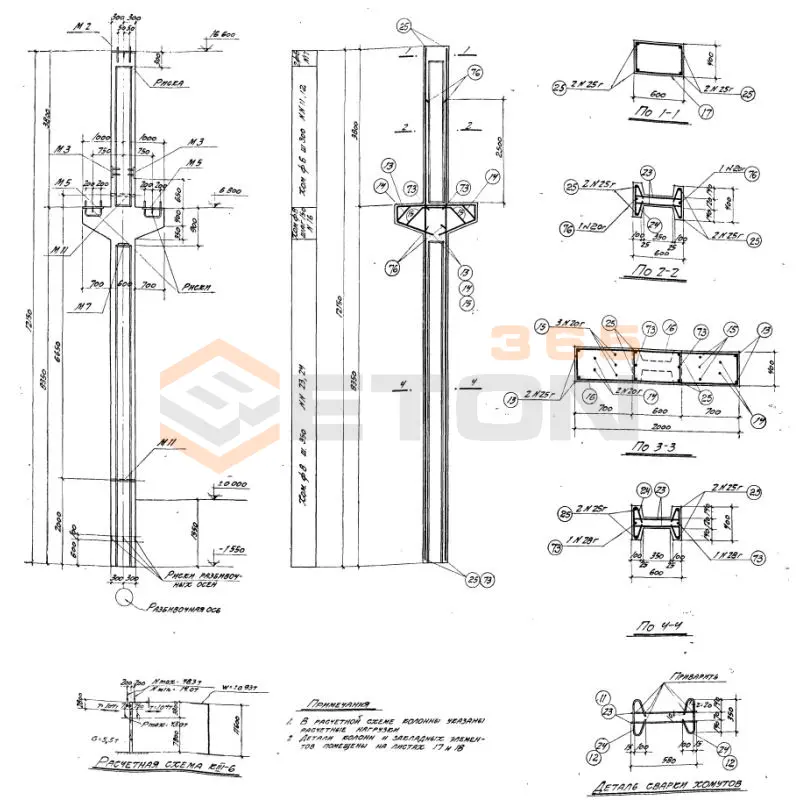
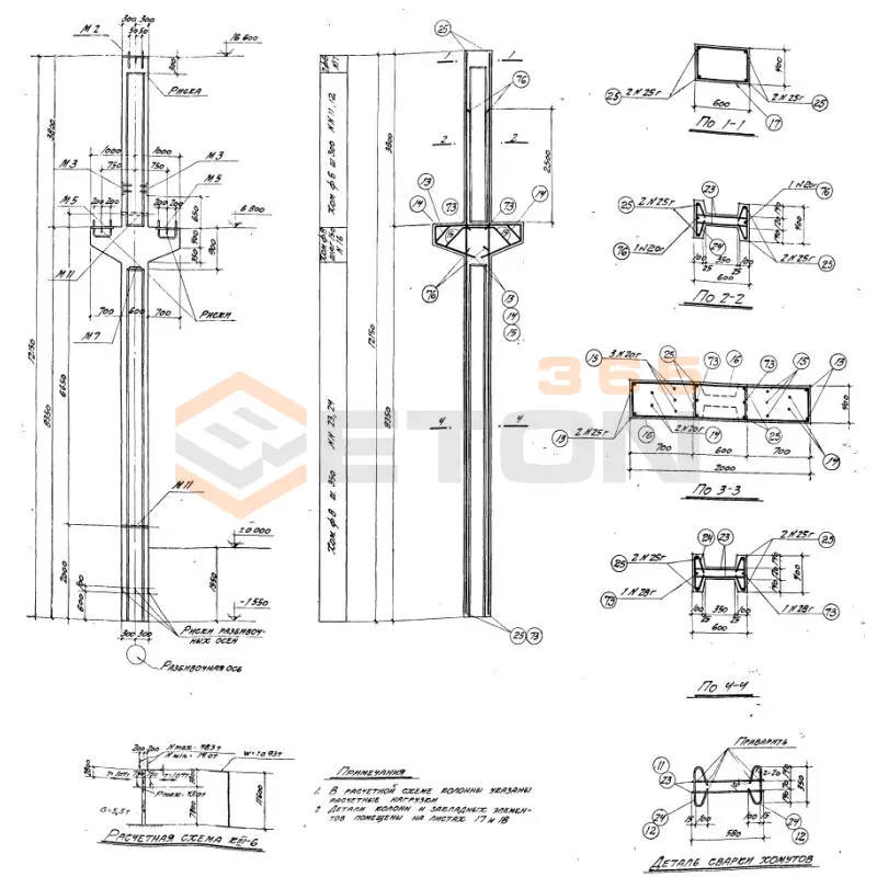
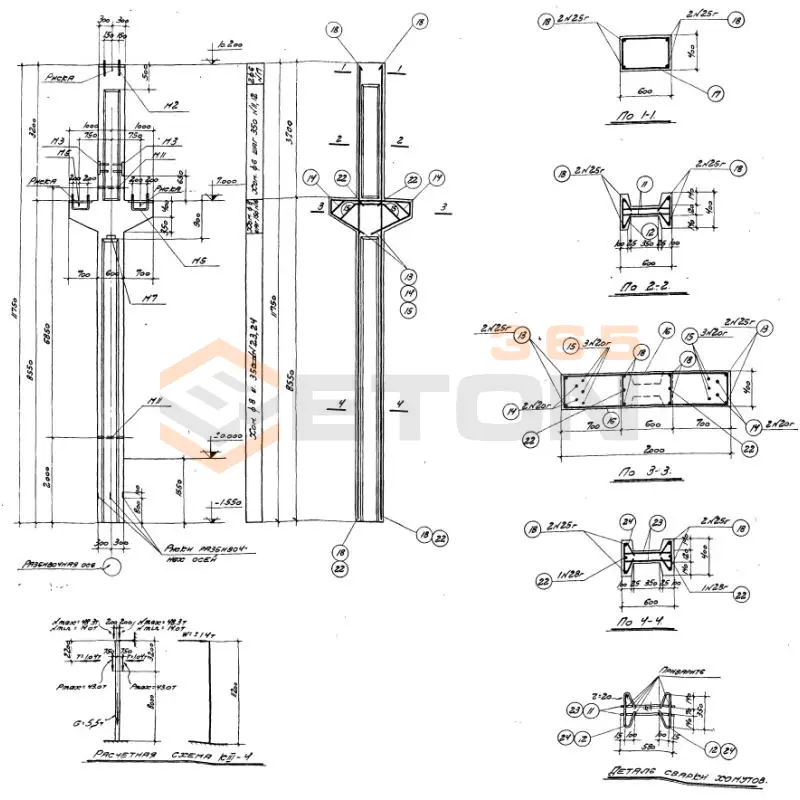
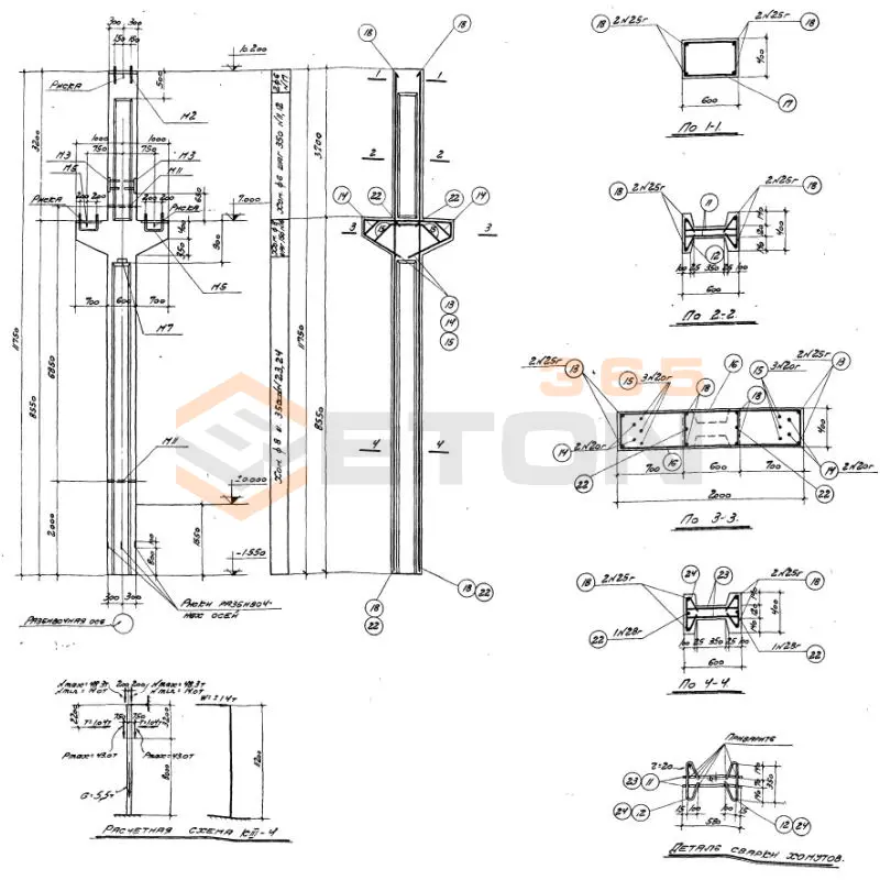
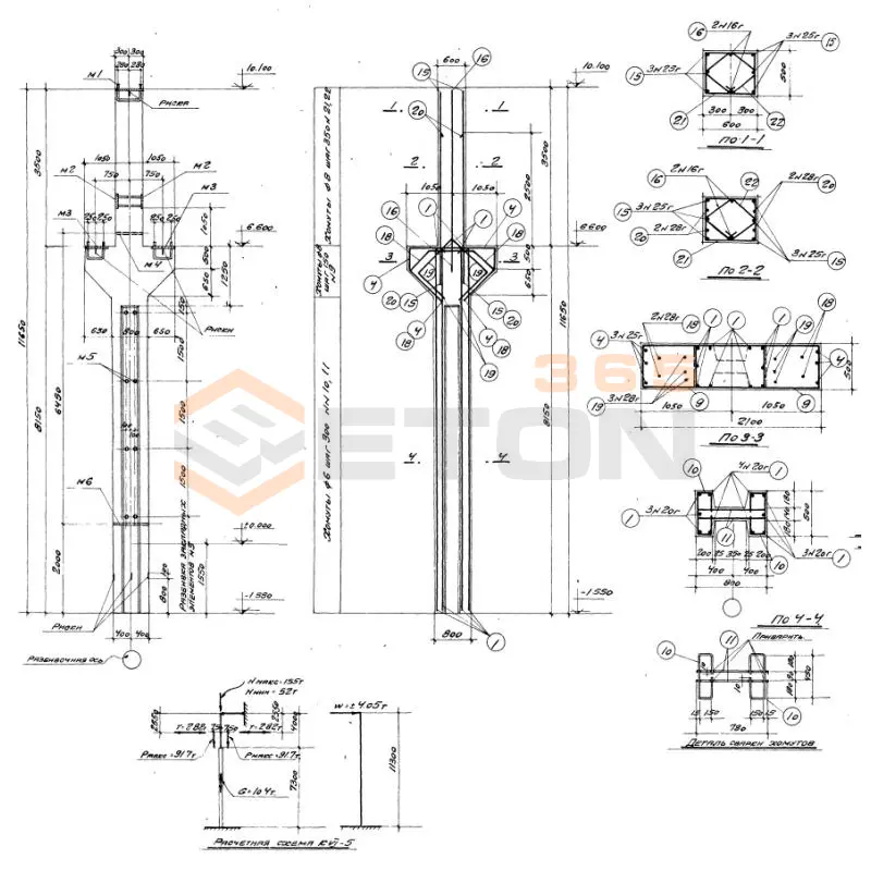
Документ Серия КЭ 01-06 описывает область применения, номенклатуру и ключевые требования, опираясь на действующие нормы и практику проектирования. Для возведения одноэтажных производственных зданий используются унифицированные колонны из железобетона, опалубочные и арматурные чертежи которых приведены на страницах Серии КЭ 01-06. Для выбора необходимых под условия типового проекта изделия и конструкции в регламенте детально описаны ключи подбора конструкций с основными геометрическими характеристиками и вариантами несущих способностей. изделия и конструкции рассчитаны на здания с пролетами от 6 до 24 метров, в которых шаг колонн составляет 6 метров.

Файлы для скачивания:
picture_as_pdf

5837.pdf

4,072.7 KB

скачать
picture_as_pdf

5838.pdf

4,545.1 KB

скачать
picture_as_pdf

5839.pdf

3,779.2 KB

скачать
picture_as_pdf

5840.pdf

1,109.8 KB

скачать
picture_as_pdf

5841.pdf

1,993.8 KB

скачать
Товары Серия КЭ 01-06 (42)
К III-13 б (КЭ 01-06)
Колонны Серия КЭ 01-06
  • Длина 12550 мм.
  • Ширина 1000 мм.
  • Высота 400 мм.
  • Вес 6000 кг.
  • Объем бетона 2,4 м3
  • Геометрический объем 5,02 м3
Цена: 48888 руб.
Подробнее
К III-14 а (КЭ 01-06)
Колонны Серия КЭ 01-06
  • Длина 12550 мм.
  • Ширина 2000 мм.
  • Высота 400 мм.
  • Вес 7300 кг.
  • Объем бетона 2,92 м3
  • Геометрический объем 10,04 м3
Цена: 59480 руб.
Подробнее
К III-15 б (КЭ 01-06)
Колонны Серия КЭ 01-06
  • Длина 14550 мм.
  • Ширина 1000 мм.
  • Высота 400 мм.
  • Вес 7000 кг.
  • Объем бетона 2,82 м3
  • Геометрический объем 5,82 м3
Цена: 57443 руб.
Подробнее
К III-15 (КЭ 01-06)
Колонны Серия КЭ 01-06
  • Длина 14550 мм.
  • Ширина 1000 мм.
  • Высота 400 мм.
  • Вес 7000 кг.
  • Объем бетона 2,82 м3
  • Геометрический объем 5,82 м3
Цена: 57443 руб.
Подробнее
К III-16 (КЭ 01-06)
Колонны Серия КЭ 01-06
  • Длина 14550 мм.
  • Ширина 2000 мм.
  • Высота 400 мм.
  • Вес 8400 кг.
  • Объем бетона 3,36 м3
  • Геометрический объем 11,64 м3
Цена: 68443 руб.
Подробнее
К III-14 б (КЭ 01-06)
Колонны Серия КЭ 01-06
  • Длина 12550 мм.
  • Ширина 2000 мм.
  • Высота 400 мм.
  • Вес 7300 кг.
  • Объем бетона 2,92 м3
  • Геометрический объем 10,04 м3
Цена: 59480 руб.
Подробнее
К III-16 а (КЭ 01-06)
Колонны Серия КЭ 01-06
  • Длина 14550 мм.
  • Ширина 2000 мм.
  • Высота 400 мм.
  • Вес 8400 кг.
  • Объем бетона 3,36 м3
  • Геометрический объем 11,64 м3
Цена: 68443 руб.
Подробнее
К III-16 б (КЭ 01-06)
Колонны Серия КЭ 01-06
  • Длина 14550 мм.
  • Ширина 2000 мм.
  • Высота 400 мм.
  • Вес 8400 кг.
  • Объем бетона 3,36 м3
  • Геометрический объем 11,64 м3
Цена: 68443 руб.
Подробнее
К III-2 (КЭ 01-06)
Колонны Серия КЭ 01-06
  • Длина 9550 мм.
  • Ширина 2000 мм.
  • Высота 400 мм.
  • Вес 4600 кг.
  • Объем бетона 1,84 м3
  • Геометрический объем 7,64 м3
Цена: 37481 руб.
Подробнее
К III-2 а (КЭ 01-06)
Колонны Серия КЭ 01-06
  • Длина 9550 мм.
  • Ширина 2000 мм.
  • Высота 400 мм.
  • Вес 4600 кг.
  • Объем бетона 1,84 м3
  • Геометрический объем 7,64 м3
Цена: 37481 руб.
Подробнее
К III-2 б (КЭ 01-06)
Колонны Серия КЭ 01-06
  • Длина 9550 мм.
  • Ширина 2000 мм.
  • Высота 400 мм.
  • Вес 4600 кг.
  • Объем бетона 1,84 м3
  • Геометрический объем 7,64 м3
Цена: 37481 руб.
Подробнее
К III-3 (КЭ 01-06)
Колонны Серия КЭ 01-06
  • Длина 11750 мм.
  • Ширина 1000 мм.
  • Высота 400 мм.
  • Вес 4300 кг.
  • Объем бетона 1,7 м3
  • Геометрический объем 4,7 м3
Цена: 34629 руб.
Подробнее
К III-4 (КЭ 01-06)
Колонны Серия КЭ 01-06
  • Длина 11750 мм.
  • Ширина 2000 мм.
  • Высота 400 мм.
  • Вес 5150 кг.
  • Объем бетона 2,06 м3
  • Геометрический объем 9,4 м3
Цена: 41962 руб.
Подробнее
К III-4 б (КЭ 01-06)
Колонны Серия КЭ 01-06
  • Длина 11750 мм.
  • Ширина 2000 мм.
  • Высота 400 мм.
  • Вес 5150 кг.
  • Объем бетона 2,06 м3
  • Геометрический объем 9,4 м3
Цена: 41962 руб.
Подробнее
К III-4 а (КЭ 01-06)
Колонны Серия КЭ 01-06
  • Длина 11750 мм.
  • Ширина 2000 мм.
  • Высота 400 мм.
  • Вес 5150 кг.
  • Объем бетона 2,06 м3
  • Геометрический объем 9,4 м3
Цена: 41962 руб.
Подробнее
К III-5 (КЭ 01-06)
Колонны Серия КЭ 01-06
  • Длина 12150 мм.
  • Ширина 1000 мм.
  • Высота 400 мм.
  • Вес 4300 кг.
  • Объем бетона 1,73 м3
  • Геометрический объем 4,86 м3
Цена: 35240 руб.
Подробнее
К III-5 б (КЭ 01-06)
Колонны Серия КЭ 01-06
  • Длина 12150 мм.
  • Ширина 1000 мм.
  • Высота 400 мм.
  • Вес 4300 кг.
  • Объем бетона 1,73 м3
  • Геометрический объем 4,86 м3
Цена: 35240 руб.
Подробнее
К III-6 а (КЭ 01-06)
Колонны Серия КЭ 01-06
  • Длина 12150 мм.
  • Ширина 2000 мм.
  • Высота 400 мм.
  • Вес 5150 кг.
  • Объем бетона 2,06 м3
  • Геометрический объем 9,72 м3
Цена: 41962 руб.
Подробнее
К III-6 (КЭ 01-06)
Колонны Серия КЭ 01-06
  • Длина 12150 мм.
  • Ширина 2000 мм.
  • Высота 400 мм.
  • Вес 5150 кг.
  • Объем бетона 2,06 м3
  • Геометрический объем 9,72 м3
Цена: 41962 руб.
Подробнее
К III-7 б (КЭ 01-06)
Колонны Серия КЭ 01-06
  • Длина 13750 мм.
  • Ширина 1000 мм.
  • Высота 400 мм.
  • Вес 7000 кг.
  • Объем бетона 2,6 м3
  • Геометрический объем 5,5 м3
Цена: 52962 руб.
Подробнее
К III-6 б (КЭ 01-06)
Колонны Серия КЭ 01-06
  • Длина 12150 мм.
  • Ширина 2000 мм.
  • Высота 400 мм.
  • Вес 5150 кг.
  • Объем бетона 2,06 м3
  • Геометрический объем 9,72 м3
Цена: 41962 руб.
Подробнее
К III-7 (КЭ 01-06)
Колонны Серия КЭ 01-06
  • Длина 13750 мм.
  • Ширина 1000 мм.
  • Высота 400 мм.
  • Вес 7000 кг.
  • Объем бетона 2,6 м3
  • Геометрический объем 5,5 м3
Цена: 52962 руб.
Подробнее
К III-8 (КЭ 01-06)
Колонны Серия КЭ 01-06
  • Длина 13750 мм.
  • Ширина 2000 мм.
  • Высота 400 мм.
  • Вес 7850 кг.
  • Объем бетона 3,13 м3
  • Геометрический объем 11 м3
Цена: 63758 руб.
Подробнее
К III-8 а (КЭ 01-06)
Колонны Серия КЭ 01-06
  • Длина 13750 мм.
  • Ширина 2000 мм.
  • Высота 400 мм.
  • Вес 7850 кг.
  • Объем бетона 3,13 м3
  • Геометрический объем 11 м3
Цена: 63758 руб.
Подробнее
К III-8 б (КЭ 01-06)
Колонны Серия КЭ 01-06
  • Длина 13750 мм.
  • Ширина 2000 мм.
  • Высота 400 мм.
  • Вес 7850 кг.
  • Объем бетона 3,13 м3
  • Геометрический объем 11 м3
Цена: 63758 руб.
Подробнее
К III-9 (КЭ 01-06)
Колонны Серия КЭ 01-06
  • Длина 12150 мм.
  • Ширина 1000 мм.
  • Высота 400 мм.
  • Вес 5900 кг.
  • Объем бетона 2,35 м3
  • Геометрический объем 4,86 м3
Цена: 47870 руб.
Подробнее
К III-9 б (КЭ 01-06)
Колонны Серия КЭ 01-06
  • Длина 12150 мм.
  • Ширина 1000 мм.
  • Высота 400 мм.
  • Вес 5900 кг.
  • Объем бетона 2,35 м3
  • Геометрический объем 4,86 м3
Цена: 47870 руб.
Подробнее
К III-3 б (КЭ 01-06)
Колонны Серия КЭ 01-06
  • Длина 11750 мм.
  • Ширина 1000 мм.
  • Высота 400 мм.
  • Вес 4300 кг.
  • Объем бетона 1,7 м3
  • Геометрический объем 4,7 м3
Цена: 34629 руб.
Подробнее
К V-1 (КЭ 01-06)
Колонны Серия КЭ 01-06
  • Длина 8550 мм.
  • Ширина 400 мм.
  • Высота 400 мм.
  • Вес 3420 кг.
  • Объем бетона 1,37 м3
  • Геометрический объем 1,368 м3
Цена: 27907 руб.
Подробнее
К V-2 (КЭ 01-06)
Колонны Серия КЭ 01-06
  • Длина 8550 мм.
  • Ширина 400 мм.
  • Высота 400 мм.
  • Вес 3420 кг.
  • Объем бетона 1,37 м3
  • Геометрический объем 1,368 м3
Цена: 27907 руб.
Подробнее
К V-3 (КЭ 01-06)
Колонны Серия КЭ 01-06
  • Длина 8550 мм.
  • Ширина 400 мм.
  • Высота 400 мм.
  • Вес 3420 кг.
  • Объем бетона 1,37 м3
  • Геометрический объем 1,368 м3
Цена: 27907 руб.
Подробнее
К V-4 (КЭ 01-06)
Колонны Серия КЭ 01-06
  • Длина 8550 мм.
  • Ширина 400 мм.
  • Высота 400 мм.
  • Вес 3420 кг.
  • Объем бетона 1,37 м3
  • Геометрический объем 1,368 м3
Цена: 27907 руб.
Подробнее
К V-5 (КЭ 01-06)
Колонны Серия КЭ 01-06
  • Длина 8050 мм.
  • Ширина 600 мм.
  • Высота 400 мм.
  • Вес 4830 кг.
  • Объем бетона 1,93 м3
  • Геометрический объем 1,932 м3
Цена: 39314 руб.
Подробнее
К V-6 (КЭ 01-06)
Колонны Серия КЭ 01-06
  • Длина 8050 мм.
  • Ширина 600 мм.
  • Высота 400 мм.
  • Вес 4830 кг.
  • Объем бетона 1,93 м3
  • Геометрический объем 1,932 м3
Цена: 39314 руб.
Подробнее
К V-7 (КЭ 01-06)
Колонны Серия КЭ 01-06
  • Длина 8050 мм.
  • Ширина 600 мм.
  • Высота 400 мм.
  • Вес 4830 кг.
  • Объем бетона 1,93 м3
  • Геометрический объем 1,932 м3
Цена: 39314 руб.
Подробнее
К V-8 (КЭ 01-06)
Колонны Серия КЭ 01-06
  • Длина 8050 мм.
  • Ширина 600 мм.
  • Высота 400 мм.
  • Вес 4830 кг.
  • Объем бетона 1,93 м3
  • Геометрический объем 1,932 м3
Цена: 39314 руб.
Подробнее
К V-9 (КЭ 01-06)
Колонны Серия КЭ 01-06
  • Длина 8050 мм.
  • Ширина 600 мм.
  • Высота 400 мм.
  • Вес 4830 кг.
  • Объем бетона 1,93 м3
  • Геометрический объем 1,932 м3
Цена: 39314 руб.
Подробнее
К VI-1 (КЭ 01-06)
Колонны Серия КЭ 01-06
  • Длина 11250 мм.
  • Ширина 2100 мм.
  • Высота 500 мм.
  • Вес 9350 кг.
  • Объем бетона 3,74 м3
  • Геометрический объем 11,8125 м3
Цена: 76184 руб.
Подробнее
К VI-2 (КЭ 01-06)
Колонны Серия КЭ 01-06
  • Длина 11250 мм.
  • Ширина 2100 мм.
  • Высота 500 мм.
  • Вес 9350 кг.
  • Объем бетона 3,74 м3
  • Геометрический объем 11,8125 м3
Цена: 76184 руб.
Подробнее
К VI-3 (КЭ 01-06)
Колонны Серия КЭ 01-06
  • Длина 11650 мм.
  • Ширина 2100 мм.
  • Высота 500 мм.
  • Вес 9650 кг.
  • Объем бетона 3,86 м3
  • Геометрический объем 12,2325 м3
Цена: 78628 руб.
Подробнее
К VI-4 (КЭ 01-06)
Колонны Серия КЭ 01-06
  • Длина 11650 мм.
  • Ширина 2100 мм.
  • Высота 500 мм.
  • Вес 9650 кг.
  • Объем бетона 3,86 м3
  • Геометрический объем 12,2325 м3
Цена: 78628 руб.
Подробнее
К VI-5 (КЭ 01-06)
Колонны Серия КЭ 01-06
  • Длина 11650 мм.
  • Ширина 2100 мм.
  • Высота 500 мм.
  • Вес 9650 кг.
  • Объем бетона 3,86 м3
  • Геометрический объем 12,2325 м3
Цена: 78628 руб.
Подробнее

Уведомление о файлах cookie

Мы используем файлы cookie для улучшения вашего опыта просмотра и анализа трафика. Нажимая "Принять все", вы соглашаетесь с нашей политикой конфиденциальности и политикой обработки файлов cookie.

MAX Дзен Телеграм Вконтакте vk