mobile_sound +7 (930) 655-55-90

Типовые конструкции и железобетонные изделия. Рабочие чертежи (Серия КЭ 01-06)

Поделиться:
Поделиться:

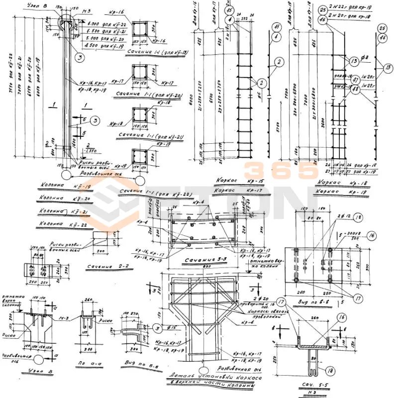
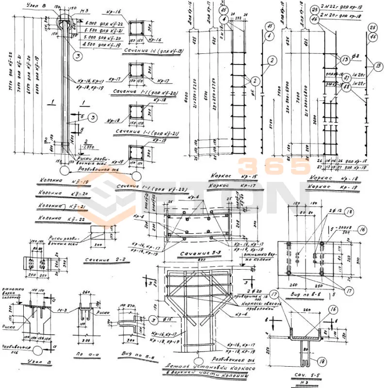
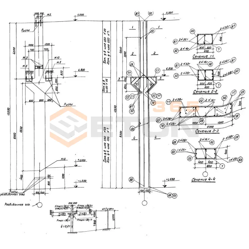
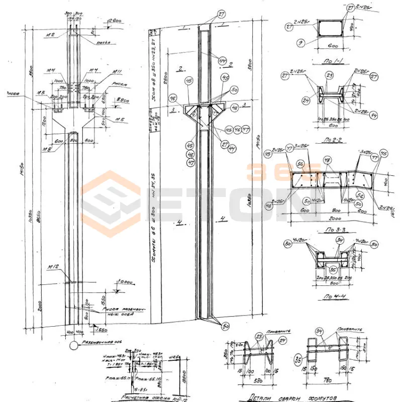
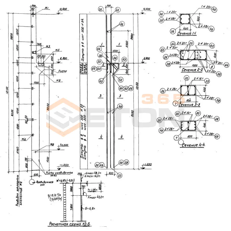
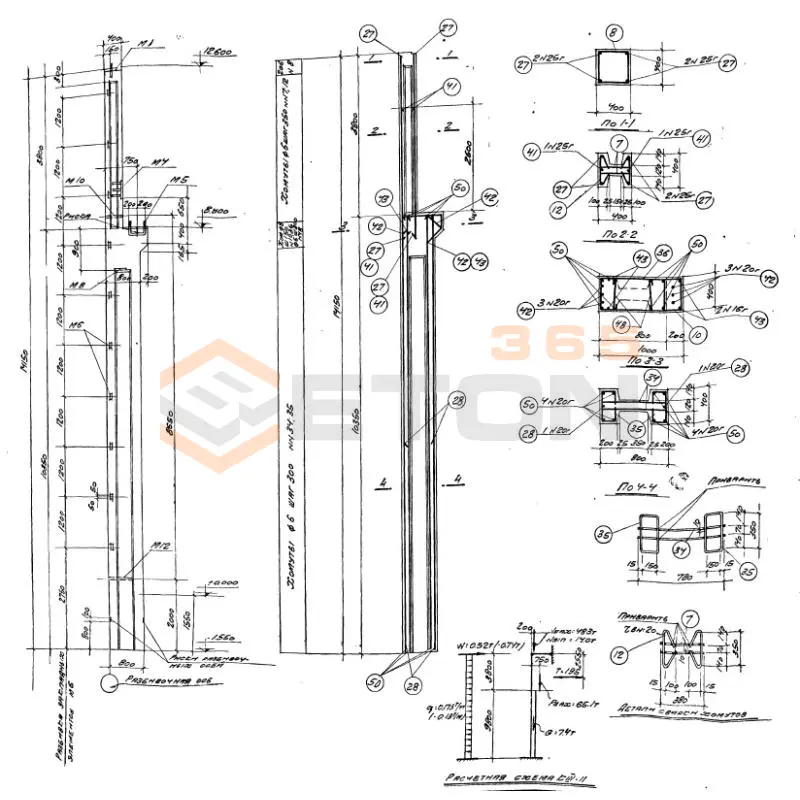
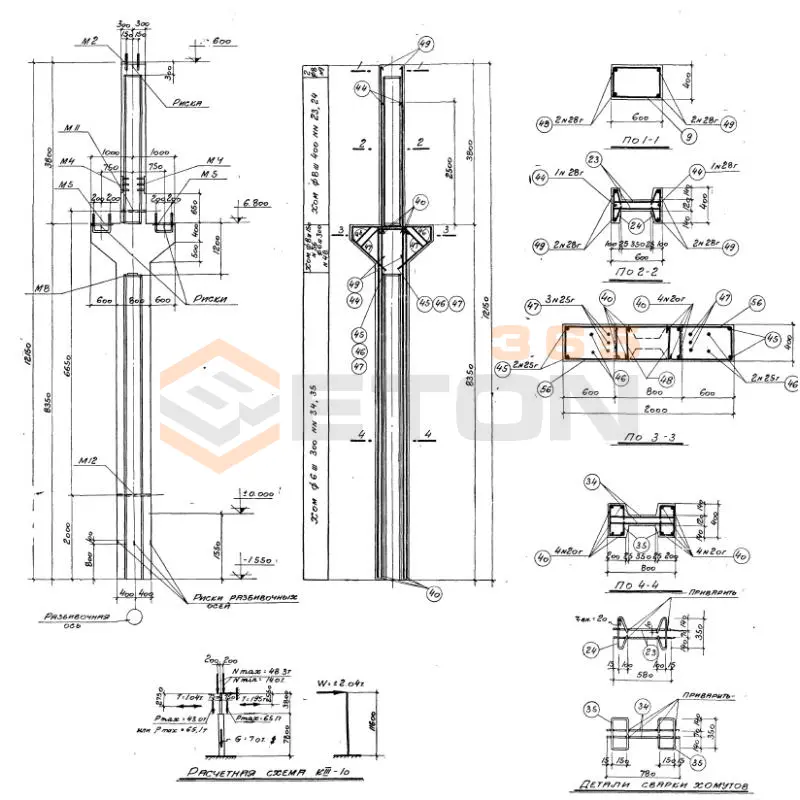
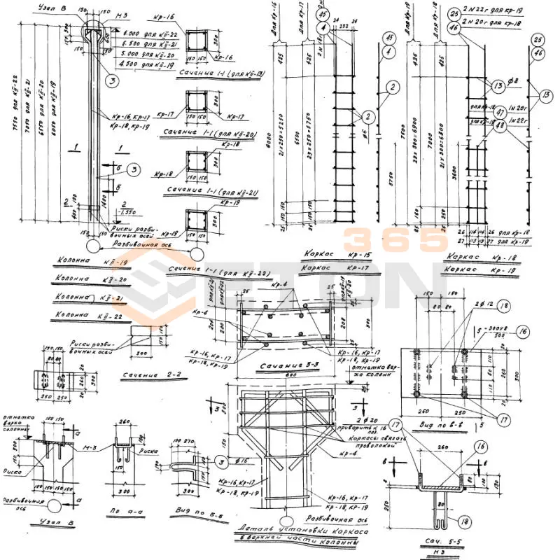
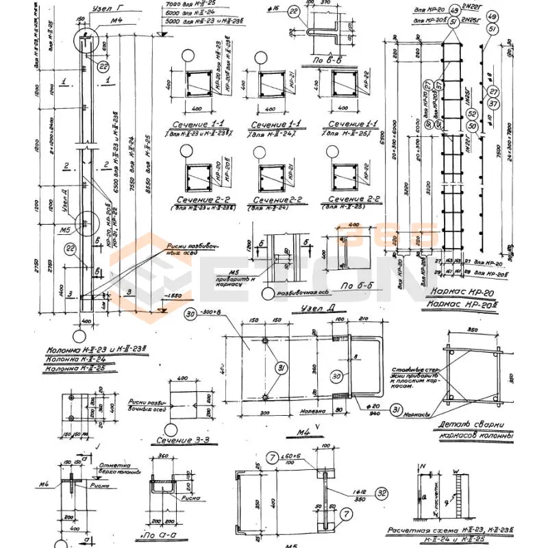
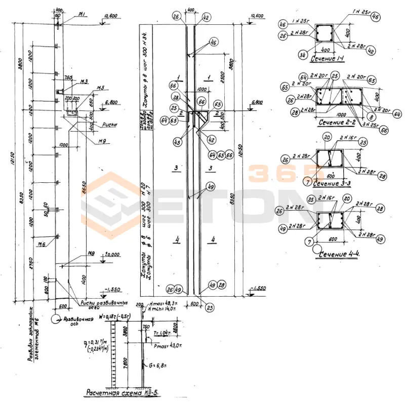
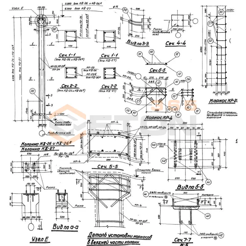
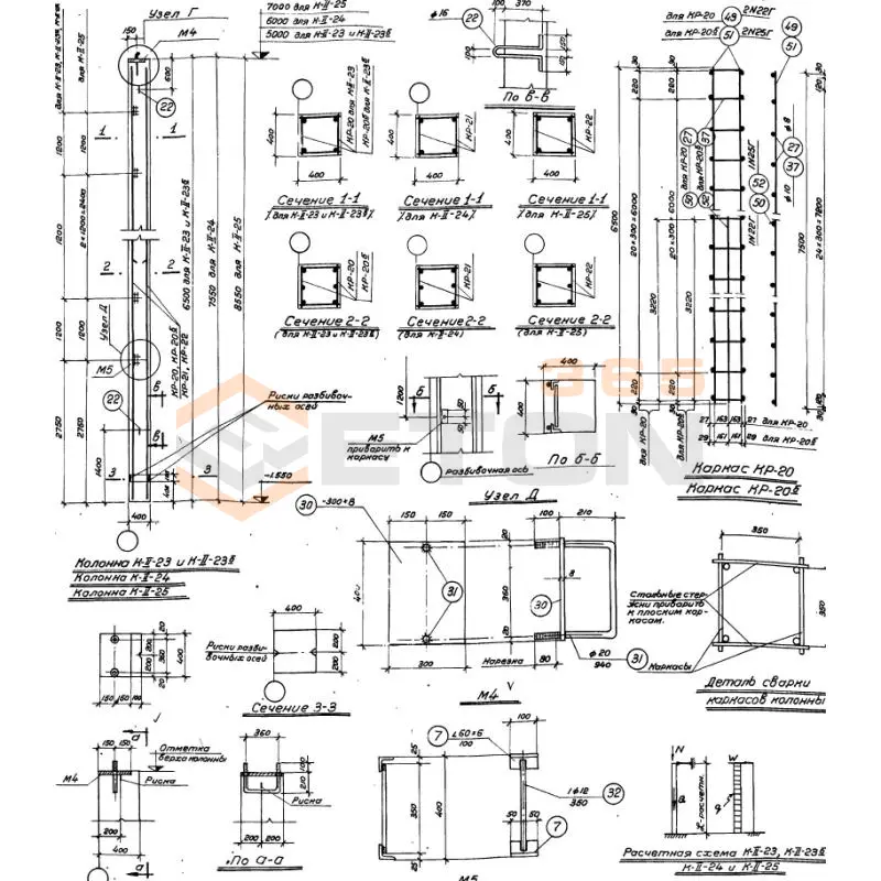
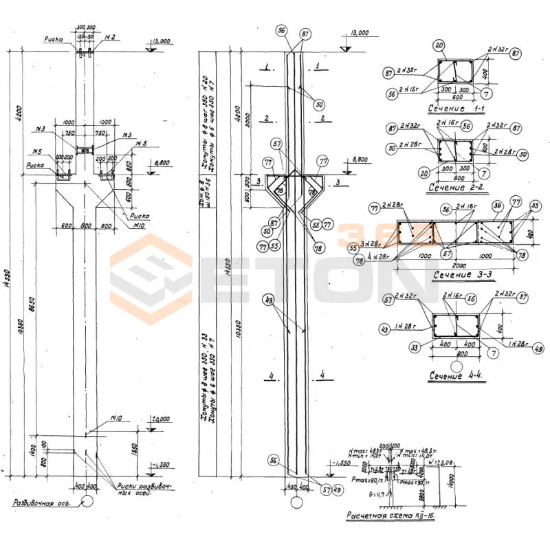
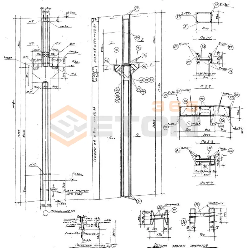
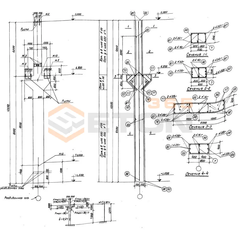
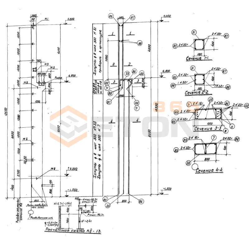
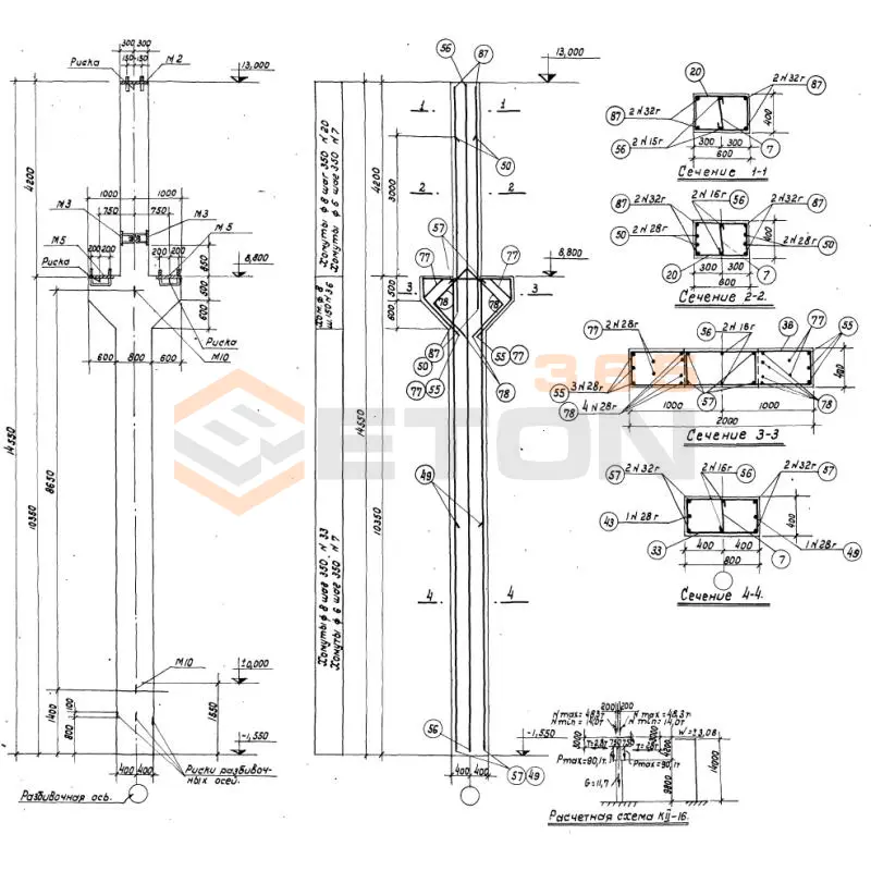
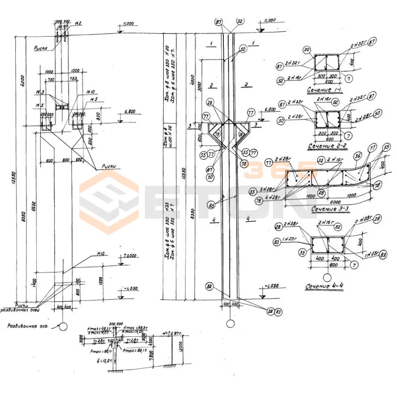
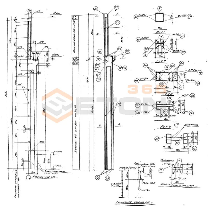
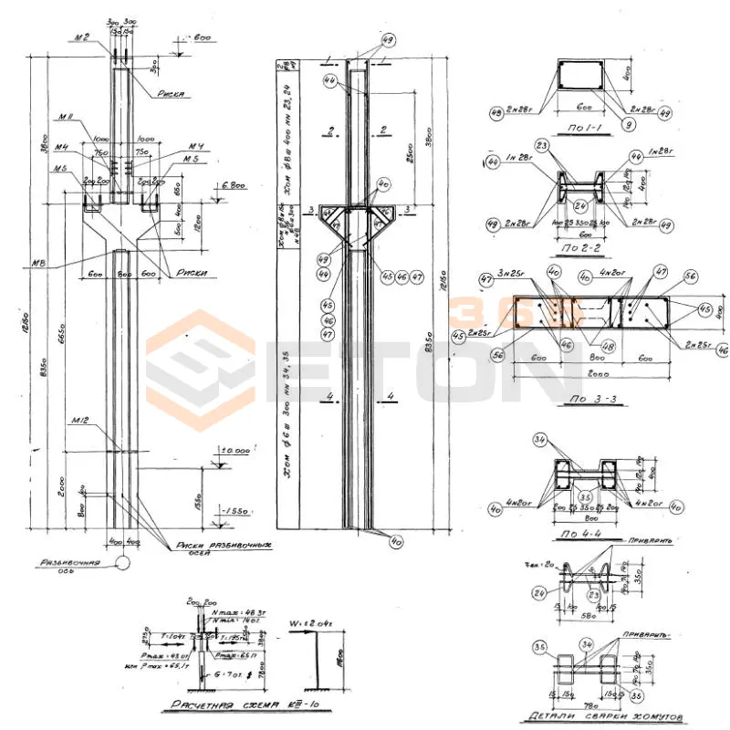
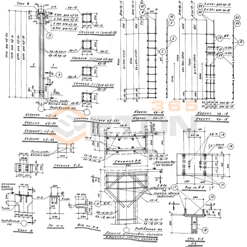
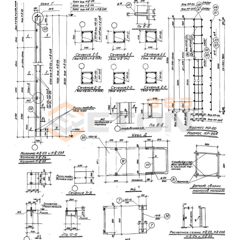
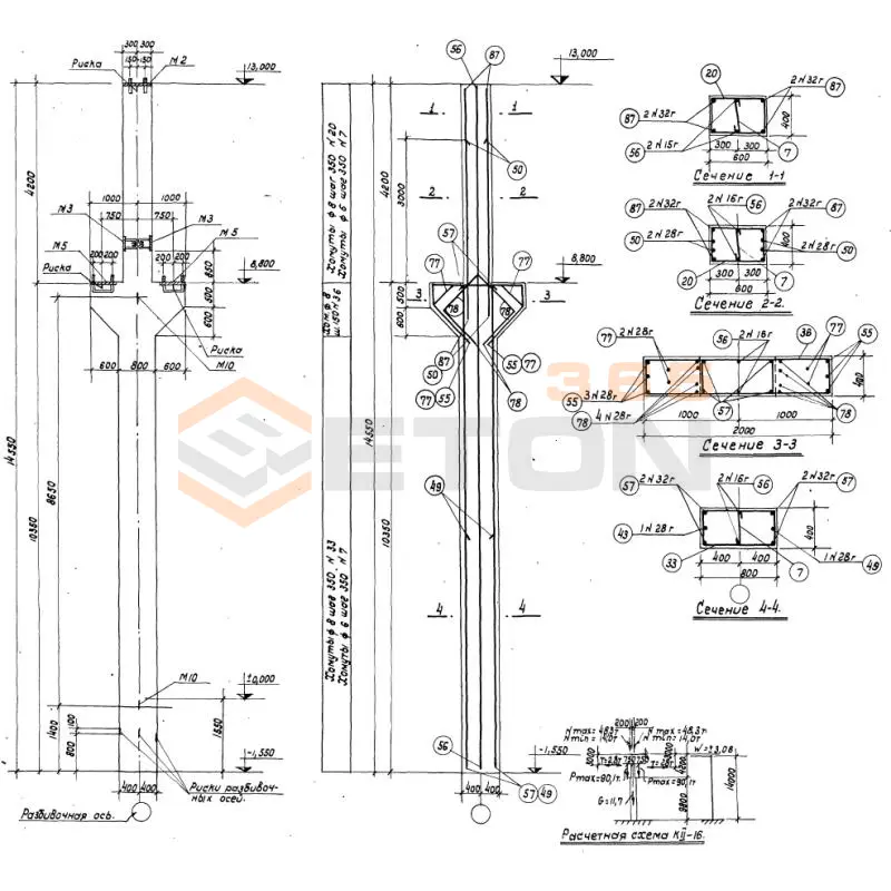
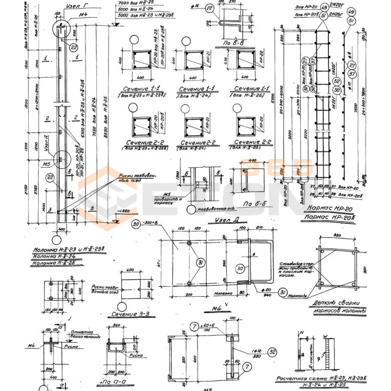
Документ Серия КЭ 01-06 описывает область применения, номенклатуру и ключевые требования, опираясь на действующие нормы и практику проектирования. Для возведения одноэтажных производственных зданий используются унифицированные колонны из железобетона, опалубочные и арматурные чертежи которых приведены на страницах Серии КЭ 01-06. Для выбора необходимых под условия типового проекта изделия и конструкции в регламенте детально описаны ключи подбора конструкций с основными геометрическими характеристиками и вариантами несущих способностей. изделия и конструкции рассчитаны на здания с пролетами от 6 до 24 метров, в которых шаг колонн составляет 6 метров.

Файлы для скачивания:
picture_as_pdf

5837.pdf

4,072.7 KB

скачать
picture_as_pdf

5838.pdf

4,545.1 KB

скачать
picture_as_pdf

5839.pdf

3,779.2 KB

скачать
picture_as_pdf

5840.pdf

1,109.8 KB

скачать
picture_as_pdf

5841.pdf

1,993.8 KB

скачать
Товары Серия КЭ 01-06 (60)
К II-10 б (КЭ 01-06)
Колонны Серия КЭ 01-06
  • Длина 12150 мм.
  • Ширина 2000 мм.
  • Высота 400 мм.
  • Вес 9900 кг.
  • Объем бетона 3,37 м3
  • Геометрический объем 9,72 м3
Цена: 68647 руб.
Подробнее
К II-12 а (КЭ 01-06)
Колонны Серия КЭ 01-06
  • Длина 14150 мм.
  • Ширина 2000 мм.
  • Высота 400 мм.
  • Вес 11500 кг.
  • Объем бетона 4,61 м3
  • Геометрический объем 11,32 м3
Цена: 93906 руб.
Подробнее
К II-11 б (КЭ 01-06)
Колонны Серия КЭ 01-06
  • Длина 14150 мм.
  • Ширина 1000 мм.
  • Высота 400 мм.
  • Вес 10000 кг.
  • Объем бетона 3,98 м3
  • Геометрический объем 5,66 м3
Цена: 81073 руб.
Подробнее
К II-12 (КЭ 01-06)
Колонны Серия КЭ 01-06
  • Длина 14150 мм.
  • Ширина 2000 мм.
  • Высота 400 мм.
  • Вес 11500 кг.
  • Объем бетона 4,61 м3
  • Геометрический объем 11,32 м3
Цена: 93906 руб.
Подробнее
К II-12 б (КЭ 01-06)
Колонны Серия КЭ 01-06
  • Длина 14150 мм.
  • Ширина 2000 мм.
  • Высота 400 мм.
  • Вес 11500 кг.
  • Объем бетона 4,61 м3
  • Геометрический объем 11,32 м3
Цена: 93906 руб.
Подробнее
К II-13 б (КЭ 01-06)
Колонны Серия КЭ 01-06
  • Длина 12550 мм.
  • Ширина 1000 мм.
  • Высота 400 мм.
  • Вес 8400 кг.
  • Объем бетона 3,35 м3
  • Геометрический объем 5,02 м3
Цена: 68240 руб.
Подробнее
К II-13 (КЭ 01-06)
Колонны Серия КЭ 01-06
  • Длина 12550 мм.
  • Ширина 1000 мм.
  • Высота 400 мм.
  • Вес 8400 кг.
  • Объем бетона 3,35 м3
  • Геометрический объем 5,02 м3
Цена: 68240 руб.
Подробнее
К II-14 (КЭ 01-06)
Колонны Серия КЭ 01-06
  • Длина 12550 мм.
  • Ширина 2000 мм.
  • Высота 400 мм.
  • Вес 10200 кг.
  • Объем бетона 4,07 м3
  • Геометрический объем 10,04 м3
Цена: 82906 руб.
Подробнее
К II-14 а (КЭ 01-06)
Колонны Серия КЭ 01-06
  • Длина 12550 мм.
  • Ширина 2000 мм.
  • Высота 400 мм.
  • Вес 10200 кг.
  • Объем бетона 4,07 м3
  • Геометрический объем 10,04 м3
Цена: 82906 руб.
Подробнее
К II-16 (КЭ 01-06)
Колонны Серия КЭ 01-06
  • Длина 14550 мм.
  • Ширина 2000 мм.
  • Высота 400 мм.
  • Вес 11700 кг.
  • Объем бетона 4,7 м3
  • Геометрический объем 11,64 м3
Цена: 95739 руб.
Подробнее
К II-15 (КЭ 01-06)
Колонны Серия КЭ 01-06
  • Длина 14550 мм.
  • Ширина 1000 мм.
  • Высота 400 мм.
  • Вес 10000 кг.
  • Объем бетона 4 м3
  • Геометрический объем 5,82 м3
Цена: 81480 руб.
Подробнее
К II-14 б (КЭ 01-06)
Колонны Серия КЭ 01-06
  • Длина 12550 мм.
  • Ширина 2000 мм.
  • Высота 400 мм.
  • Вес 10200 кг.
  • Объем бетона 4,07 м3
  • Геометрический объем 10,04 м3
Цена: 82906 руб.
Подробнее
К II-15 б (КЭ 01-06)
Колонны Серия КЭ 01-06
  • Длина 14550 мм.
  • Ширина 1000 мм.
  • Высота 400 мм.
  • Вес 10000 кг.
  • Объем бетона 4 м3
  • Геометрический объем 5,82 м3
Цена: 81480 руб.
Подробнее
К II-16 а (КЭ 01-06)
Колонны Серия КЭ 01-06
  • Длина 14550 мм.
  • Ширина 2000 мм.
  • Высота 400 мм.
  • Вес 11700 кг.
  • Объем бетона 4,7 м3
  • Геометрический объем 11,64 м3
Цена: 95739 руб.
Подробнее
К II-16 б (КЭ 01-06)
Колонны Серия КЭ 01-06
  • Длина 14550 мм.
  • Ширина 2000 мм.
  • Высота 400 мм.
  • Вес 11700 кг.
  • Объем бетона 4,7 м3
  • Геометрический объем 11,64 м3
Цена: 95739 руб.
Подробнее
К II-19 (КЭ 01-06)
Колонны Серия КЭ 01-06
  • Длина 6050 мм.
  • Ширина 300 мм.
  • Высота 300 мм.
  • Вес 1450 кг.
  • Объем бетона 0,58 м3
  • Геометрический объем 0,5445 м3
Цена: 11815 руб.
Подробнее
К II-17 (КЭ 01-06)
Колонны Серия КЭ 01-06
  • Длина 5550 мм.
  • Ширина 300 мм.
  • Высота 300 мм.
  • Вес 1250 кг.
  • Объем бетона 0,5 м3
  • Геометрический объем 0,4995 м3
Цена: 10185 руб.
Подробнее
К II-18 (КЭ 01-06)
Колонны Серия КЭ 01-06
  • Длина 6550 мм.
  • Ширина 300 мм.
  • Высота 300 мм.
  • Вес 1480 кг.
  • Объем бетона 0,59 м3
  • Геометрический объем 0,5895 м3
Цена: 12018 руб.
Подробнее
К II-2 (КЭ 01-06)
Колонны Серия КЭ 01-06
  • Длина 9550 мм.
  • Ширина 2000 мм.
  • Высота 400 мм.
  • Вес 6700 кг.
  • Объем бетона 2,69 м3
  • Геометрический объем 7,64 м3
Цена: 54795 руб.
Подробнее
К II-2 а (КЭ 01-06)
Колонны Серия КЭ 01-06
  • Длина 9550 мм.
  • Ширина 2000 мм.
  • Высота 400 мм.
  • Вес 6700 кг.
  • Объем бетона 2,69 м3
  • Геометрический объем 7,64 м3
Цена: 54795 руб.
Подробнее
К II-2 б (КЭ 01-06)
Колонны Серия КЭ 01-06
  • Длина 9550 мм.
  • Ширина 2000 мм.
  • Высота 400 мм.
  • Вес 6700 кг.
  • Объем бетона 2,69 м3
  • Геометрический объем 7,64 м3
Цена: 54795 руб.
Подробнее
К II-23 (КЭ 01-06)
Колонны Серия КЭ 01-06
  • Длина 6500 мм.
  • Ширина 400 мм.
  • Высота 400 мм.
  • Вес 2600 кг.
  • Объем бетона 1,05 м3
  • Геометрический объем 1,04 м3
Цена: 21389 руб.
Подробнее
К II-22 (КЭ 01-06)
Колонны Серия КЭ 01-06
  • Длина 7550 мм.
  • Ширина 300 мм.
  • Высота 300 мм.
  • Вес 1700 кг.
  • Объем бетона 0,71 м3
  • Геометрический объем 0,6795 м3
Цена: 14463 руб.
Подробнее
К II-20 (КЭ 01-06)
Колонны Серия КЭ 01-06
  • Длина 6550 мм.
  • Ширина 300 мм.
  • Высота 300 мм.
  • Вес 1550 кг.
  • Объем бетона 0,62 м3
  • Геометрический объем 0,5895 м3
Цена: 12629 руб.
Подробнее
К II-21 (КЭ 01-06)
Колонны Серия КЭ 01-06
  • Длина 7050 мм.
  • Ширина 300 мм.
  • Высота 300 мм.
  • Вес 1700 кг.
  • Объем бетона 0,68 м3
  • Геометрический объем 0,6345 м3
Цена: 13852 руб.
Подробнее
К II-23 б (КЭ 01-06)
Колонны Серия КЭ 01-06
  • Длина 6500 мм.
  • Ширина 400 мм.
  • Высота 400 мм.
  • Вес 2600 кг.
  • Объем бетона 1,05 м3
  • Геометрический объем 1,04 м3
Цена: 21389 руб.
Подробнее
К II-24 (КЭ 01-06)
Колонны Серия КЭ 01-06
  • Длина 7550 мм.
  • Ширина 400 мм.
  • Высота 400 мм.
  • Вес 3000 кг.
  • Объем бетона 1,21 м3
  • Геометрический объем 1,208 м3
Цена: 24648 руб.
Подробнее
К II-26 (КЭ 01-06)
Колонны Серия КЭ 01-06
  • Длина 6550 мм.
  • Ширина 400 мм.
  • Высота 400 мм.
  • Вес 2700 кг.
  • Объем бетона 1,08 м3
  • Геометрический объем 1,048 м3
Цена: 22000 руб.
Подробнее
К II-26 б (КЭ 01-06)
Колонны Серия КЭ 01-06
  • Длина 6550 мм.
  • Ширина 400 мм.
  • Высота 400 мм.
  • Вес 2700 кг.
  • Объем бетона 1,08 м3
  • Геометрический объем 1,048 м3
Цена: 22000 руб.
Подробнее
К II-25 (КЭ 01-06)
Колонны Серия КЭ 01-06
  • Длина 8550 мм.
  • Ширина 400 мм.
  • Высота 400 мм.
  • Вес 3400 кг.
  • Объем бетона 1,37 м3
  • Геометрический объем 1,368 м3
Цена: 27907 руб.
Подробнее
К II-27 (КЭ 01-06)
Колонны Серия КЭ 01-06
  • Длина 7550 мм.
  • Ширина 400 мм.
  • Высота 400 мм.
  • Вес 3100 кг.
  • Объем бетона 1,24 м3
  • Геометрический объем 1,208 м3
Цена: 25259 руб.
Подробнее
К II-3 б (КЭ 01-06)
Колонны Серия КЭ 01-06
  • Длина 11750 мм.
  • Ширина 1000 мм.
  • Высота 400 мм.
  • Вес 6700 кг.
  • Объем бетона 2,68 м3
  • Геометрический объем 4,7 м3
Цена: 54592 руб.
Подробнее
К II-3 (КЭ 01-06)
Колонны Серия КЭ 01-06
  • Длина 11750 мм.
  • Ширина 1000 мм.
  • Высота 400 мм.
  • Вес 6700 кг.
  • Объем бетона 2,68 м3
  • Геометрический объем 4,7 м3
Цена: 54592 руб.
Подробнее
К II-4 (КЭ 01-06)
Колонны Серия КЭ 01-06
  • Длина 11750 мм.
  • Ширина 2000 мм.
  • Высота 400 мм.
  • Вес 8300 кг.
  • Объем бетона 3,3 м3
  • Геометрический объем 9,4 м3
Цена: 67221 руб.
Подробнее
К II-4 а (КЭ 01-06)
Колонны Серия КЭ 01-06
  • Длина 11750 мм.
  • Ширина 2000 мм.
  • Высота 400 мм.
  • Вес 8300 кг.
  • Объем бетона 3,3 м3
  • Геометрический объем 9,4 м3
Цена: 67221 руб.
Подробнее
К II-5 (КЭ 01-06)
Колонны Серия КЭ 01-06
  • Длина 12150 мм.
  • Ширина 1000 мм.
  • Высота 400 мм.
  • Вес 6800 кг.
  • Объем бетона 2,72 м3
  • Геометрический объем 4,86 м3
Цена: 55406 руб.
Подробнее
К II-4 б (КЭ 01-06)
Колонны Серия КЭ 01-06
  • Длина 11750 мм.
  • Ширина 2000 мм.
  • Высота 400 мм.
  • Вес 8300 кг.
  • Объем бетона 3,3 м3
  • Геометрический объем 9,4 м3
Цена: 67221 руб.
Подробнее
К II-6 (КЭ 01-06)
Колонны Серия КЭ 01-06
  • Длина 12150 мм.
  • Ширина 2000 мм.
  • Высота 400 мм.
  • Вес 8500 кг.
  • Объем бетона 3,4 м3
  • Геометрический объем 9,72 м3
Цена: 69258 руб.
Подробнее
К II-5 б (КЭ 01-06)
Колонны Серия КЭ 01-06
  • Длина 12150 мм.
  • Ширина 1000 мм.
  • Высота 400 мм.
  • Вес 6800 кг.
  • Объем бетона 2,72 м3
  • Геометрический объем 4,86 м3
Цена: 55406 руб.
Подробнее
К II-6 б (КЭ 01-06)
Колонны Серия КЭ 01-06
  • Длина 12150 мм.
  • Ширина 2000 мм.
  • Высота 400 мм.
  • Вес 8500 кг.
  • Объем бетона 3,4 м3
  • Геометрический объем 9,72 м3
Цена: 69258 руб.
Подробнее
К II-6 а (КЭ 01-06)
Колонны Серия КЭ 01-06
  • Длина 12150 мм.
  • Ширина 2000 мм.
  • Высота 400 мм.
  • Вес 8500 кг.
  • Объем бетона 3,4 м3
  • Геометрический объем 9,72 м3
Цена: 69258 руб.
Подробнее
К II-7 б (КЭ 01-06)
Колонны Серия КЭ 01-06
  • Длина 13750 мм.
  • Ширина 1000 мм.
  • Высота 400 мм.
  • Вес 9900 кг.
  • Объем бетона 3,94 м3
  • Геометрический объем 5,5 м3
Цена: 80258 руб.
Подробнее
К II-7 (КЭ 01-06)
Колонны Серия КЭ 01-06
  • Длина 13750 мм.
  • Ширина 1000 мм.
  • Высота 400 мм.
  • Вес 9900 кг.
  • Объем бетона 3,94 м3
  • Геометрический объем 5,5 м3
Цена: 80258 руб.
Подробнее
К II-8 (КЭ 01-06)
Колонны Серия КЭ 01-06
  • Длина 13750 мм.
  • Ширина 2000 мм.
  • Высота 400 мм.
  • Вес 11300 кг.
  • Объем бетона 4,54 м3
  • Геометрический объем 11 м3
Цена: 92480 руб.
Подробнее
К II-8 а (КЭ 01-06)
Колонны Серия КЭ 01-06
  • Длина 13750 мм.
  • Ширина 2000 мм.
  • Высота 400 мм.
  • Вес 11300 кг.
  • Объем бетона 4,54 м3
  • Геометрический объем 11 м3
Цена: 92480 руб.
Подробнее
К II-9 (КЭ 01-06)
Колонны Серия КЭ 01-06
  • Длина 12150 мм.
  • Ширина 1000 мм.
  • Высота 400 мм.
  • Вес 8300 кг.
  • Объем бетона 3,33 м3
  • Геометрический объем 4,86 м3
Цена: 67832 руб.
Подробнее
К II-8 б (КЭ 01-06)
Колонны Серия КЭ 01-06
  • Длина 13750 мм.
  • Ширина 2000 мм.
  • Высота 400 мм.
  • Вес 11300 кг.
  • Объем бетона 4,54 м3
  • Геометрический объем 11 м3
Цена: 92480 руб.
Подробнее
К III-1 (КЭ 01-06)
Колонны Серия КЭ 01-06
  • Длина 9550 мм.
  • Ширина 1000 мм.
  • Высота 400 мм.
  • Вес 3500 кг.
  • Объем бетона 1,4 м3
  • Геометрический объем 3,82 м3
Цена: 28518 руб.
Подробнее
К II-9 б (КЭ 01-06)
Колонны Серия КЭ 01-06
  • Длина 12150 мм.
  • Ширина 1000 мм.
  • Высота 400 мм.
  • Вес 8300 кг.
  • Объем бетона 3,33 м3
  • Геометрический объем 4,86 м3
Цена: 67832 руб.
Подробнее
К III-1 б (КЭ 01-06)
Колонны Серия КЭ 01-06
  • Длина 9550 мм.
  • Ширина 1000 мм.
  • Высота 400 мм.
  • Вес 3500 кг.
  • Объем бетона 1,4 м3
  • Геометрический объем 3,82 м3
Цена: 28518 руб.
Подробнее
К III-10 (КЭ 01-06)
Колонны Серия КЭ 01-06
  • Длина 12150 мм.
  • Ширина 2000 мм.
  • Высота 400 мм.
  • Вес 6700 кг.
  • Объем бетона 2,68 м3
  • Геометрический объем 9,72 м3
Цена: 54592 руб.
Подробнее
К III-10 а (КЭ 01-06)
Колонны Серия КЭ 01-06
  • Длина 12150 мм.
  • Ширина 2000 мм.
  • Высота 400 мм.
  • Вес 6700 кг.
  • Объем бетона 2,68 м3
  • Геометрический объем 9,72 м3
Цена: 54592 руб.
Подробнее
К III-10 б (КЭ 01-06)
Колонны Серия КЭ 01-06
  • Длина 12150 мм.
  • Ширина 2000 мм.
  • Высота 400 мм.
  • Вес 6700 кг.
  • Объем бетона 2,68 м3
  • Геометрический объем 9,72 м3
Цена: 54592 руб.
Подробнее
К III-11 (КЭ 01-06)
Колонны Серия КЭ 01-06
  • Длина 14150 мм.
  • Ширина 1000 мм.
  • Высота 400 мм.
  • Вес 7000 кг.
  • Объем бетона 2,8 м3
  • Геометрический объем 5,66 м3
Цена: 57036 руб.
Подробнее
К III-11 б (КЭ 01-06)
Колонны Серия КЭ 01-06
  • Длина 14150 мм.
  • Ширина 1000 мм.
  • Высота 400 мм.
  • Вес 7000 кг.
  • Объем бетона 2,8 м3
  • Геометрический объем 5,66 м3
Цена: 57036 руб.
Подробнее
К III-12 а (КЭ 01-06)
Колонны Серия КЭ 01-06
  • Длина 14150 мм.
  • Ширина 2000 мм.
  • Высота 400 мм.
  • Вес 8000 кг.
  • Объем бетона 3,2 м3
  • Геометрический объем 11,32 м3
Цена: 65184 руб.
Подробнее
К III-12 б (КЭ 01-06)
Колонны Серия КЭ 01-06
  • Длина 14150 мм.
  • Ширина 2000 мм.
  • Высота 400 мм.
  • Вес 8000 кг.
  • Объем бетона 3,2 м3
  • Геометрический объем 11,32 м3
Цена: 65184 руб.
Подробнее
К III-13 (КЭ 01-06)
Колонны Серия КЭ 01-06
  • Длина 12550 мм.
  • Ширина 1000 мм.
  • Высота 400 мм.
  • Вес 6000 кг.
  • Объем бетона 2,4 м3
  • Геометрический объем 5,02 м3
Цена: 48888 руб.
Подробнее
К III-12 (КЭ 01-06)
Колонны Серия КЭ 01-06
  • Длина 14150 мм.
  • Ширина 2000 мм.
  • Высота 400 мм.
  • Вес 8000 кг.
  • Объем бетона 3,2 м3
  • Геометрический объем 11,32 м3
Цена: 65184 руб.
Подробнее
К III-14 (КЭ 01-06)
Колонны Серия КЭ 01-06
  • Длина 12550 мм.
  • Ширина 2000 мм.
  • Высота 400 мм.
  • Вес 7300 кг.
  • Объем бетона 2,92 м3
  • Геометрический объем 10,04 м3
Цена: 59480 руб.
Подробнее

Уведомление о файлах cookie

Мы используем файлы cookie для улучшения вашего опыта просмотра и анализа трафика. Нажимая "Принять все", вы соглашаетесь с нашей политикой конфиденциальности и политикой обработки файлов cookie.

MAX Дзен Телеграм Вконтакте vk