mobile_sound +7 (930) 655-55-90

Типовые конструкции и железобетонные изделия. Рабочие чертежи (Серия ИИ 04-2)

Поделиться:
Поделиться:

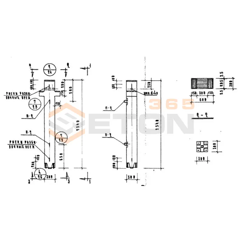
Документ Серия ИИ 04-2 описывает область применения, номенклатуру и ключевые требования, опираясь на действующие нормы и практику проектирования. Серия ИИ 04-2 является крупным нормативным документом в составе строительных каталогов, используемых при проектировании и возведении зданий гражданского назначения, а также административно-бытовых объектов и промышленных предприятий. В номенклатурном перечне регламента приведены колонны, имеющие поперечное сечение 300х300 и 400х400 мм, которые могут использоваться в сооружениях с различной высотой этажа: 2,4; 3,3; 3,6 и 4,2 метра. Для каждого типоразмера конструкций проработан детальный опалубочный и арматурный чертеж, точная передача параметров с которого при производстве возможна при помощи использования стальных опалубочных форм.

Файлы для скачивания:
picture_as_pdf

4687.pdf

44,267.6 KB

скачать
picture_as_pdf

4677.pdf

15,001.9 KB

скачать
picture_as_pdf

4676.pdf

4,986.4 KB

скачать
picture_as_pdf

4675.pdf

15,256.4 KB

скачать
picture_as_pdf

4674.pdf

15,425.5 KB

скачать
picture_as_pdf

4673.pdf

21,226.7 KB

скачать
picture_as_pdf

4672.pdf

17,473.2 KB

скачать
picture_as_pdf

4671.pdf

22,143.2 KB

скачать
picture_as_pdf

4670.pdf

27,258.8 KB

скачать
picture_as_pdf

4686.pdf

70,144.3 KB

скачать
picture_as_pdf

4669.pdf

23,898.0 KB

скачать
picture_as_pdf

4668.pdf

9,778.6 KB

скачать
picture_as_pdf

4667.pdf

27,856.9 KB

скачать
picture_as_pdf

4685.pdf

12,839.2 KB

скачать
picture_as_pdf

4684.pdf

16,124.5 KB

скачать
picture_as_pdf

4683.pdf

15,814.9 KB

скачать
picture_as_pdf

4682.pdf

16,838.7 KB

скачать
picture_as_pdf

4681.pdf

1,586.5 KB

скачать
picture_as_pdf

4680.pdf

7,915.2 KB

скачать
picture_as_pdf

4679.pdf

13,151.6 KB

скачать
picture_as_pdf

4678.pdf

11,494.5 KB

скачать
Товары Серия ИИ 04-2 (60)
КВК 372-14-3 у
Колонны сечением 300х300 Серия ИИ 04-2
  • Длина 6440 мм.
  • Ширина 300 мм.
  • Высота 300 мм.
  • Вес 1510 кг.
  • Объем бетона 0,59 м3
  • Геометрический объем 0,5796 м3
Цена: 12591 руб.
Подробнее
КВК 372-14-4
Колонны сечением 300х300 Серия ИИ 04-2
  • Длина 6440 мм.
  • Ширина 300 мм.
  • Высота 300 мм.
  • Вес 1510 кг.
  • Объем бетона 0,59 м3
  • Геометрический объем 0,5796 м3
Цена: 12591 руб.
Подробнее
КВР 333-14
Колонны сечением 300х300 Серия ИИ 04-2
  • Длина 2540 мм.
  • Ширина 300 мм.
  • Высота 300 мм.
  • Вес 580 кг.
  • Объем бетона 0,23 м3
  • Геометрический объем 0,2286 м3
Цена: 4908 руб.
Подробнее
КВК 372-14-4 у
Колонны сечением 300х300 Серия ИИ 04-2
  • Длина 6440 мм.
  • Ширина 300 мм.
  • Высота 300 мм.
  • Вес 1510 кг.
  • Объем бетона 0,59 м3
  • Геометрический объем 0,5796 м3
Цена: 12591 руб.
Подробнее
КВР 333-14-1
Колонны сечением 300х300 Серия ИИ 04-2
  • Длина 2540 мм.
  • Ширина 300 мм.
  • Высота 300 мм.
  • Вес 580 кг.
  • Объем бетона 0,23 м3
  • Геометрический объем 0,2286 м3
Цена: 4908 руб.
Подробнее
КВР 333-14-3
Колонны сечением 300х300 Серия ИИ 04-2
  • Длина 2540 мм.
  • Ширина 300 мм.
  • Высота 300 мм.
  • Вес 580 кг.
  • Объем бетона 0,23 м3
  • Геометрический объем 0,2286 м3
Цена: 4908 руб.
Подробнее
КВР 333-14-2
Колонны сечением 300х300 Серия ИИ 04-2
  • Длина 2540 мм.
  • Ширина 300 мм.
  • Высота 300 мм.
  • Вес 580 кг.
  • Объем бетона 0,23 м3
  • Геометрический объем 0,2286 м3
Цена: 4908 руб.
Подробнее
КВР 333-14-5
Колонны сечением 300х300 Серия ИИ 04-2
  • Длина 2540 мм.
  • Ширина 300 мм.
  • Высота 300 мм.
  • Вес 580 кг.
  • Объем бетона 0,23 м3
  • Геометрический объем 0,2286 м3
Цена: 4908 руб.
Подробнее
КВР 333-14-4
Колонны сечением 300х300 Серия ИИ 04-2
  • Длина 2540 мм.
  • Ширина 300 мм.
  • Высота 300 мм.
  • Вес 580 кг.
  • Объем бетона 0,23 м3
  • Геометрический объем 0,2286 м3
Цена: 4908 руб.
Подробнее
КВР 333-14-6
Колонны сечением 300х300 Серия ИИ 04-2
  • Длина 2540 мм.
  • Ширина 300 мм.
  • Высота 300 мм.
  • Вес 580 кг.
  • Объем бетона 0,23 м3
  • Геометрический объем 0,2286 м3
Цена: 4908 руб.
Подробнее
КВР 336-14
Колонны сечением 300х300 Серия ИИ 04-2
  • Длина 2840 мм.
  • Ширина 300 мм.
  • Высота 300 мм.
  • Вес 640 кг.
  • Объем бетона 0,256 м3
  • Геометрический объем 0,2556 м3
Цена: 5463 руб.
Подробнее
КВР 336-14-1
Колонны сечением 300х300 Серия ИИ 04-2
  • Длина 2840 мм.
  • Ширина 300 мм.
  • Высота 300 мм.
  • Вес 630 кг.
  • Объем бетона 0,26 м3
  • Геометрический объем 0,2556 м3
Цена: 5548 руб.
Подробнее
КВР 336-14-2
Колонны сечением 300х300 Серия ИИ 04-2
  • Длина 2840 мм.
  • Ширина 300 мм.
  • Высота 300 мм.
  • Вес 630 кг.
  • Объем бетона 0,26 м3
  • Геометрический объем 0,2556 м3
Цена: 5548 руб.
Подробнее
КВР 336-14-3
Колонны сечением 300х300 Серия ИИ 04-2
  • Длина 2840 мм.
  • Ширина 300 мм.
  • Высота 300 мм.
  • Вес 630 кг.
  • Объем бетона 0,26 м3
  • Геометрический объем 0,2556 м3
Цена: 5548 руб.
Подробнее
КВР 366-14
Колонны сечением 300х300 Серия ИИ 04-2
  • Длина 5840 мм.
  • Ширина 300 мм.
  • Высота 300 мм.
  • Вес 1350 кг.
  • Объем бетона 0,54 м3
  • Геометрический объем 0,5256 м3
Цена: 11524 руб.
Подробнее
КВР 342-14
Колонны сечением 300х300 Серия ИИ 04-2
  • Длина 3440 мм.
  • Ширина 300 мм.
  • Высота 300 мм.
  • Вес 780 кг.
  • Объем бетона 0,312 м3
  • Геометрический объем 0,3096 м3
Цена: 6658 руб.
Подробнее
КВР 366-14-3
Колонны сечением 300х300 Серия ИИ 04-2
  • Длина 5840 мм.
  • Ширина 300 мм.
  • Высота 300 мм.
  • Вес 1350 кг.
  • Объем бетона 0,54 м3
  • Геометрический объем 0,5256 м3
Цена: 11524 руб.
Подробнее
КВР 366-14-1
Колонны сечением 300х300 Серия ИИ 04-2
  • Длина 5840 мм.
  • Ширина 300 мм.
  • Высота 300 мм.
  • Вес 1350 кг.
  • Объем бетона 0,54 м3
  • Геометрический объем 0,5256 м3
Цена: 11524 руб.
Подробнее
КВР 366-14-5
Колонны сечением 300х300 Серия ИИ 04-2
  • Длина 5840 мм.
  • Ширина 300 мм.
  • Высота 300 мм.
  • Вес 1350 кг.
  • Объем бетона 0,54 м3
  • Геометрический объем 0,5256 м3
Цена: 11524 руб.
Подробнее
КВР 366-14-2
Колонны сечением 300х300 Серия ИИ 04-2
  • Длина 5840 мм.
  • Ширина 300 мм.
  • Высота 300 мм.
  • Вес 1350 кг.
  • Объем бетона 0,54 м3
  • Геометрический объем 0,5256 м3
Цена: 11524 руб.
Подробнее
КВР 366-14-6
Колонны сечением 300х300 Серия ИИ 04-2
  • Длина 5840 мм.
  • Ширина 300 мм.
  • Высота 300 мм.
  • Вес 1350 кг.
  • Объем бетона 0,54 м3
  • Геометрический объем 0,5256 м3
Цена: 11524 руб.
Подробнее
КВР 366-14-4
Колонны сечением 300х300 Серия ИИ 04-2
  • Длина 5840 мм.
  • Ширина 300 мм.
  • Высота 300 мм.
  • Вес 1350 кг.
  • Объем бетона 0,54 м3
  • Геометрический объем 0,5256 м3
Цена: 11524 руб.
Подробнее
КВР 372-14-2
Колонны сечением 300х300 Серия ИИ 04-2
  • Длина 6440 мм.
  • Ширина 300 мм.
  • Высота 300 мм.
  • Вес 1510 кг.
  • Объем бетона 0,59 м3
  • Геометрический объем 0,5796 м3
Цена: 12591 руб.
Подробнее
КВР 372-14-3
Колонны сечением 300х300 Серия ИИ 04-2
  • Длина 6440 мм.
  • Ширина 300 мм.
  • Высота 300 мм.
  • Вес 1510 кг.
  • Объем бетона 0,59 м3
  • Геометрический объем 0,5796 м3
Цена: 12591 руб.
Подробнее
КВР 372-14-1
Колонны сечением 300х300 Серия ИИ 04-2
  • Длина 6440 мм.
  • Ширина 300 мм.
  • Высота 300 мм.
  • Вес 1510 кг.
  • Объем бетона 0,59 м3
  • Геометрический объем 0,5796 м3
Цена: 12591 руб.
Подробнее
КВР 372-14
Колонны сечением 300х300 Серия ИИ 04-2
  • Длина 6440 мм.
  • Ширина 300 мм.
  • Высота 300 мм.
  • Вес 1550 кг.
  • Объем бетона 0,6 м3
  • Геометрический объем 0,5796 м3
Цена: 12804 руб.
Подробнее
КК 333-14
Колонны сечением 300х300 Серия ИИ 04-2
  • Длина 3990 мм.
  • Ширина 300 мм.
  • Высота 300 мм.
  • Вес 930 кг.
  • Объем бетона 0,37 м3
  • Геометрический объем 0,3591 м3
Цена: 7896 руб.
Подробнее
КВР 372-14-4
Колонны сечением 300х300 Серия ИИ 04-2
  • Длина 6440 мм.
  • Ширина 300 мм.
  • Высота 300 мм.
  • Вес 1510 кг.
  • Объем бетона 0,59 м3
  • Геометрический объем 0,5796 м3
Цена: 12591 руб.
Подробнее
КК 333-14-1
Колонны сечением 300х300 Серия ИИ 04-2
  • Длина 3990 мм.
  • Ширина 300 мм.
  • Высота 300 мм.
  • Вес 930 кг.
  • Объем бетона 0,93 м3
  • Геометрический объем 0,3591 м3
Цена: 19846 руб.
Подробнее
КК 333-14-1 у
Колонны сечением 300х300 Серия ИИ 04-2
  • Длина 3990 мм.
  • Ширина 300 мм.
  • Высота 300 мм.
  • Вес 930 кг.
  • Объем бетона 0,93 м3
  • Геометрический объем 0,3591 м3
Цена: 19846 руб.
Подробнее
КК 333-14-2
Колонны сечением 300х300 Серия ИИ 04-2
  • Длина 3990 мм.
  • Ширина 300 мм.
  • Высота 300 мм.
  • Вес 930 кг.
  • Объем бетона 0,93 м3
  • Геометрический объем 0,3591 м3
Цена: 19846 руб.
Подробнее
КК 333-14-2 у
Колонны сечением 300х300 Серия ИИ 04-2
  • Длина 3990 мм.
  • Ширина 300 мм.
  • Высота 300 мм.
  • Вес 930 кг.
  • Объем бетона 0,93 м3
  • Геометрический объем 0,3591 м3
Цена: 19846 руб.
Подробнее
КК 333-14-3
Колонны сечением 300х300 Серия ИИ 04-2
  • Длина 3990 мм.
  • Ширина 300 мм.
  • Высота 300 мм.
  • Вес 930 кг.
  • Объем бетона 0,93 м3
  • Геометрический объем 0,3591 м3
Цена: 19846 руб.
Подробнее
КК 333-14-3 у
Колонны сечением 300х300 Серия ИИ 04-2
  • Длина 3990 мм.
  • Ширина 300 мм.
  • Высота 300 мм.
  • Вес 930 кг.
  • Объем бетона 0,93 м3
  • Геометрический объем 0,3591 м3
Цена: 19846 руб.
Подробнее
КК 333-14-4
Колонны сечением 300х300 Серия ИИ 04-2
  • Длина 3990 мм.
  • Ширина 300 мм.
  • Высота 300 мм.
  • Вес 930 кг.
  • Объем бетона 0,93 м3
  • Геометрический объем 0,3591 м3
Цена: 19846 руб.
Подробнее
КК 333-14-5
Колонны сечением 300х300 Серия ИИ 04-2
  • Длина 3990 мм.
  • Ширина 300 мм.
  • Высота 300 мм.
  • Вес 930 кг.
  • Объем бетона 0,93 м3
  • Геометрический объем 0,3591 м3
Цена: 19846 руб.
Подробнее
КК 333-14-6
Колонны сечением 300х300 Серия ИИ 04-2
  • Длина 3990 мм.
  • Ширина 300 мм.
  • Высота 300 мм.
  • Вес 930 кг.
  • Объем бетона 0,93 м3
  • Геометрический объем 0,3591 м3
Цена: 19846 руб.
Подробнее
КК 333-14-4 у
Колонны сечением 300х300 Серия ИИ 04-2
  • Длина 3990 мм.
  • Ширина 300 мм.
  • Высота 300 мм.
  • Вес 930 кг.
  • Объем бетона 0,93 м3
  • Геометрический объем 0,3591 м3
Цена: 19846 руб.
Подробнее
КК 333-14-5 у
Колонны сечением 300х300 Серия ИИ 04-2
  • Длина 3990 мм.
  • Ширина 300 мм.
  • Высота 300 мм.
  • Вес 930 кг.
  • Объем бетона 0,93 м3
  • Геометрический объем 0,3591 м3
Цена: 19846 руб.
Подробнее
КК 333-14-6
Колонны сечением 300х300 Серия ИИ 04-2
  • Длина 3990 мм.
  • Ширина 300 мм.
  • Высота 300 мм.
  • Вес 930 кг.
  • Объем бетона 0,93 м3
  • Геометрический объем 0,3591 м3
Цена: 19846 руб.
Подробнее
КК 336-14
Колонны сечением 300х300 Серия ИИ 04-2
  • Длина 4290 мм.
  • Ширина 300 мм.
  • Высота 300 мм.
  • Вес 980 кг.
  • Объем бетона 0,39 м3
  • Геометрический объем 0,3861 м3
Цена: 8323 руб.
Подробнее
КК 333-14-6 у
Колонны сечением 300х300 Серия ИИ 04-2
  • Длина 3990 мм.
  • Ширина 300 мм.
  • Высота 300 мм.
  • Вес 930 кг.
  • Объем бетона 0,93 м3
  • Геометрический объем 0,3591 м3
Цена: 19846 руб.
Подробнее
КК 336-14-1
Колонны сечением 300х300 Серия ИИ 04-2
  • Длина 4290 мм.
  • Ширина 300 мм.
  • Высота 300 мм.
  • Вес 980 кг.
  • Объем бетона 0,39 м3
  • Геометрический объем 0,3861 м3
Цена: 8323 руб.
Подробнее
КК 336-14-2
Колонны сечением 300х300 Серия ИИ 04-2
  • Длина 4290 мм.
  • Ширина 300 мм.
  • Высота 300 мм.
  • Вес 980 кг.
  • Объем бетона 0,39 м3
  • Геометрический объем 0,3861 м3
Цена: 8323 руб.
Подробнее
КК 336-14-1 у
Колонны сечением 300х300 Серия ИИ 04-2
  • Длина 4290 мм.
  • Ширина 300 мм.
  • Высота 300 мм.
  • Вес 980 кг.
  • Объем бетона 0,39 м3
  • Геометрический объем 0,3861 м3
Цена: 8323 руб.
Подробнее
КК 336-14-2 у
Колонны сечением 300х300 Серия ИИ 04-2
  • Длина 4290 мм.
  • Ширина 300 мм.
  • Высота 300 мм.
  • Вес 980 кг.
  • Объем бетона 0,39 м3
  • Геометрический объем 0,3861 м3
Цена: 8323 руб.
Подробнее
КК 336-14-3
Колонны сечением 300х300 Серия ИИ 04-2
  • Длина 4290 мм.
  • Ширина 300 мм.
  • Высота 300 мм.
  • Вес 980 кг.
  • Объем бетона 0,39 м3
  • Геометрический объем 0,3861 м3
Цена: 8323 руб.
Подробнее
КК 336-14-4 у
Колонны сечением 300х300 Серия ИИ 04-2
  • Длина 4290 мм.
  • Ширина 300 мм.
  • Высота 300 мм.
  • Вес 980 кг.
  • Объем бетона 0,39 м3
  • Геометрический объем 0,3861 м3
Цена: 8323 руб.
Подробнее
КК 336-14-4
Колонны сечением 300х300 Серия ИИ 04-2
  • Длина 4290 мм.
  • Ширина 300 мм.
  • Высота 300 мм.
  • Вес 980 кг.
  • Объем бетона 0,39 м3
  • Геометрический объем 0,3861 м3
Цена: 8323 руб.
Подробнее
КК 336-14-3 у
Колонны сечением 300х300 Серия ИИ 04-2
  • Длина 4290 мм.
  • Ширина 300 мм.
  • Высота 300 мм.
  • Вес 980 кг.
  • Объем бетона 0,39 м3
  • Геометрический объем 0,3861 м3
Цена: 8323 руб.
Подробнее
КК 342-14
Колонны сечением 300х300 Серия ИИ 04-2
  • Длина 4890 мм.
  • Ширина 300 мм.
  • Высота 300 мм.
  • Вес 1130 кг.
  • Объем бетона 0,452 м3
  • Геометрический объем 0,4401 м3
Цена: 9646 руб.
Подробнее
КК 366-11
Колонны сечением 300х300 Серия ИИ 04-2
  • Длина 7290 мм.
  • Ширина 300 мм.
  • Высота 300 мм.
  • Вес 1680 кг.
  • Объем бетона 0,67 м3
  • Геометрический объем 0,6561 м3
Цена: 14298 руб.
Подробнее
КК 366-11-1
Колонны сечением 300х300 Серия ИИ 04-2
  • Длина 7290 мм.
  • Ширина 300 мм.
  • Высота 300 мм.
  • Вес 1680 кг.
  • Объем бетона 0,67 м3
  • Геометрический объем 0,6561 м3
Цена: 14298 руб.
Подробнее
КК 366-11-2
Колонны сечением 300х300 Серия ИИ 04-2
  • Длина 7290 мм.
  • Ширина 300 мм.
  • Высота 300 мм.
  • Вес 1680 кг.
  • Объем бетона 0,67 м3
  • Геометрический объем 0,6561 м3
Цена: 14298 руб.
Подробнее
КК 366-11-1 у
Колонны сечением 300х300 Серия ИИ 04-2
  • Длина 7290 мм.
  • Ширина 300 мм.
  • Высота 300 мм.
  • Вес 1680 кг.
  • Объем бетона 0,67 м3
  • Геометрический объем 0,6561 м3
Цена: 14298 руб.
Подробнее
КК 366-11-3
Колонны сечением 300х300 Серия ИИ 04-2
  • Длина 7290 мм.
  • Ширина 300 мм.
  • Высота 300 мм.
  • Вес 1680 кг.
  • Объем бетона 0,67 м3
  • Геометрический объем 0,6561 м3
Цена: 14298 руб.
Подробнее
КК 366-11-2 у
Колонны сечением 300х300 Серия ИИ 04-2
  • Длина 7290 мм.
  • Ширина 300 мм.
  • Высота 300 мм.
  • Вес 1680 кг.
  • Объем бетона 0,67 м3
  • Геометрический объем 0,6561 м3
Цена: 14298 руб.
Подробнее
КК 366-11-3 у
Колонны сечением 300х300 Серия ИИ 04-2
  • Длина 7290 мм.
  • Ширина 300 мм.
  • Высота 300 мм.
  • Вес 1680 кг.
  • Объем бетона 0,67 м3
  • Геометрический объем 0,6561 м3
Цена: 14298 руб.
Подробнее
КК 366-11-4
Колонны сечением 300х300 Серия ИИ 04-2
  • Длина 7290 мм.
  • Ширина 300 мм.
  • Высота 300 мм.
  • Вес 1680 кг.
  • Объем бетона 0,67 м3
  • Геометрический объем 0,6561 м3
Цена: 14298 руб.
Подробнее
КК 366-11-4 у
Колонны сечением 300х300 Серия ИИ 04-2
  • Длина 7290 мм.
  • Ширина 300 мм.
  • Высота 300 мм.
  • Вес 1680 кг.
  • Объем бетона 0,67 м3
  • Геометрический объем 0,6561 м3
Цена: 14298 руб.
Подробнее

Уведомление о файлах cookie

Мы используем файлы cookie для улучшения вашего опыта просмотра и анализа трафика. Нажимая "Принять все", вы соглашаетесь с нашей политикой конфиденциальности и политикой обработки файлов cookie.

MAX Дзен Телеграм Вконтакте vk