mobile_sound +7 (930) 655-55-90

Типовые конструкции и железобетонные изделия. Рабочие чертежи (Серия Б1.041.1-3.08)

Поделиться:
Поделиться:

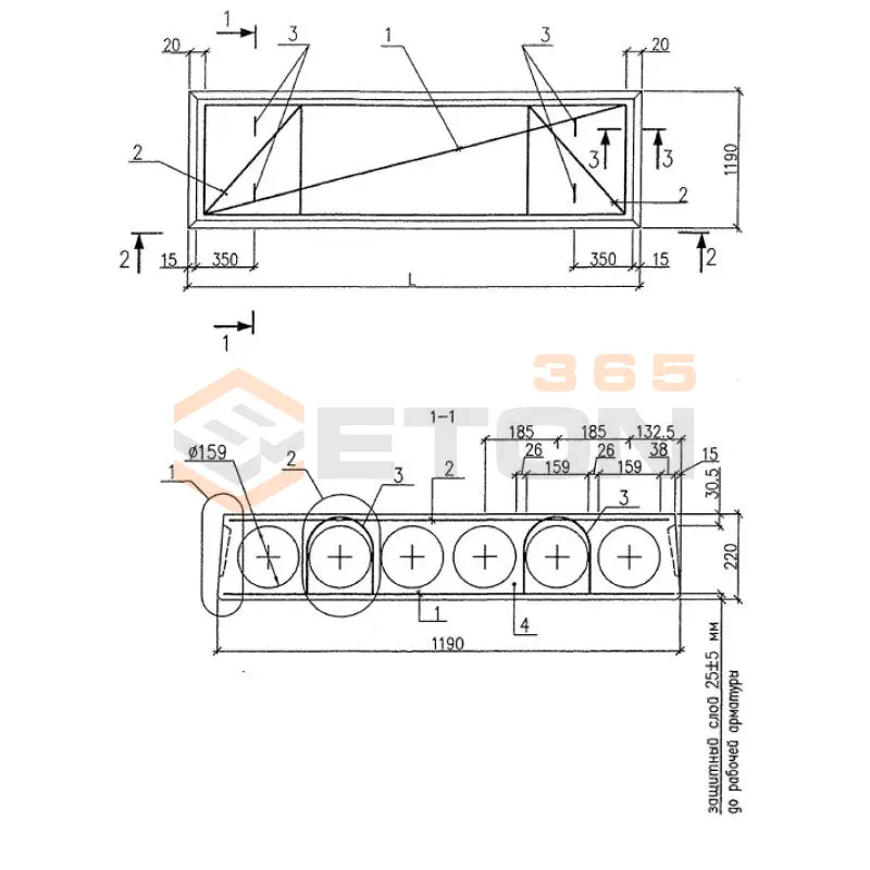
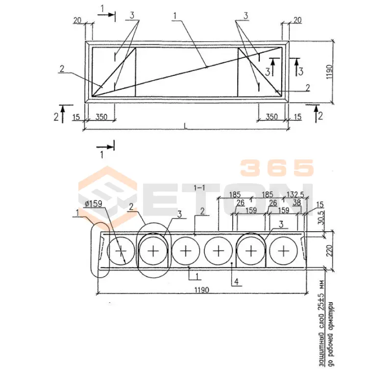
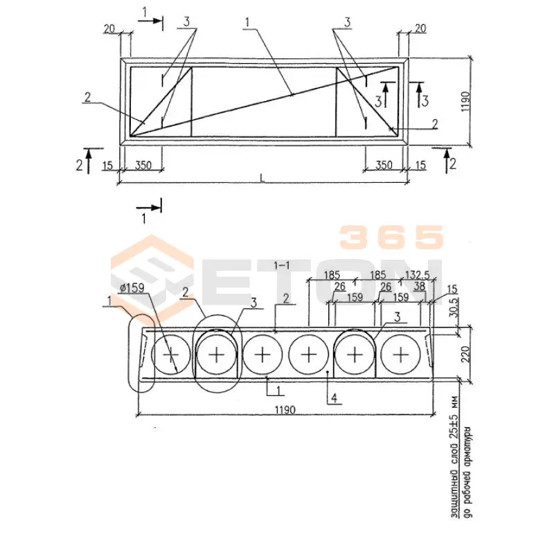
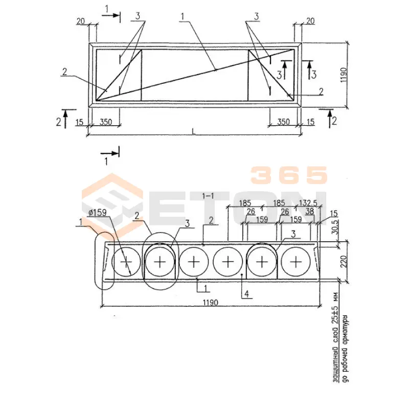
Документ Серия Б1.041.1-3.08 описывает область применения, номенклатуру и ключевые требования, опираясь на действующие нормы и практику проектирования. С номенклатурном перечнем Серии Б1.041.1-3.08 приведены опалубочные и арматурные чертежи многопустотных плит перекрытий. Главным разработчиком нормативного документа является организация СТРОЙТЕХНОРМ, введение в действие состоялось с сентября 2008 года. В составе регламента четыре выпуска, содержащих не только материалы для проектирования и чертежи конструкций в широком диапазоне длин, но и рекомендации по монтажу, правила хранения и транспортировки, последовательность производственного процесса, контроля, приемки и паспортизации.

Файлы для скачивания:
picture_as_pdf

4495.pdf

4,887.3 KB

скачать
picture_as_pdf

4496.pdf

3,823.8 KB

скачать
picture_as_pdf

4497.pdf

1,554.1 KB

скачать
picture_as_pdf

4498.pdf

1,490.2 KB

скачать
picture_as_pdf

4499.pdf

2,538.7 KB

скачать
Товары Серия Б1.041.1-3.08 (60)
ПТМ 24-12-22-10,0 S500
Плиты перекрытий многопустотные Серия Б1.041.1-3.08
  • Длина 2380 мм.
  • Ширина 1190 мм.
  • Высота 220 мм.
  • Вес 905 кг.
  • Объем бетона 0,36 м3
  • Геометрический объем 0,6231 м3
Цена: 7682 руб.
Подробнее
ПТМ 24-12-22-5,0 S500
Плиты перекрытий многопустотные Серия Б1.041.1-3.08
  • Длина 2380 мм.
  • Ширина 1190 мм.
  • Высота 220 мм.
  • Вес 905 кг.
  • Объем бетона 0,36 м3
  • Геометрический объем 0,6231 м3
Цена: 7682 руб.
Подробнее
ПТМ 24-12-22-13,0 S500
Плиты перекрытий многопустотные Серия Б1.041.1-3.08
  • Длина 2380 мм.
  • Ширина 1190 мм.
  • Высота 220 мм.
  • Вес 905 кг.
  • Объем бетона 0,36 м3
  • Геометрический объем 0,6231 м3
Цена: 7682 руб.
Подробнее
ПТМ 24-12-22-9,0 S500
Плиты перекрытий многопустотные Серия Б1.041.1-3.08
  • Длина 2380 мм.
  • Ширина 1190 мм.
  • Высота 220 мм.
  • Вес 905 кг.
  • Объем бетона 0,36 м3
  • Геометрический объем 0,6231 м3
Цена: 7682 руб.
Подробнее
ПТМ 24-12-22-7,0 S500
Плиты перекрытий многопустотные Серия Б1.041.1-3.08
  • Длина 2380 мм.
  • Ширина 1190 мм.
  • Высота 220 мм.
  • Вес 905 кг.
  • Объем бетона 0,36 м3
  • Геометрический объем 0,6231 м3
Цена: 7682 руб.
Подробнее
ПТМ 24-15-22-12,0 S500
Плиты перекрытий многопустотные Серия Б1.041.1-3.08
  • Длина 2380 мм.
  • Ширина 1490 мм.
  • Высота 220 мм.
  • Вес 1190 кг.
  • Объем бетона 0,48 м3
  • Геометрический объем 0,7802 м3
Цена: 10243 руб.
Подробнее
ПТМ 24-15-22-10,0 S500
Плиты перекрытий многопустотные Серия Б1.041.1-3.08
  • Длина 2380 мм.
  • Ширина 1490 мм.
  • Высота 220 мм.
  • Вес 1190 кг.
  • Объем бетона 0,48 м3
  • Геометрический объем 0,7802 м3
Цена: 10243 руб.
Подробнее
ПТМ 24-15-22-13,0 S500
Плиты перекрытий многопустотные Серия Б1.041.1-3.08
  • Длина 2380 мм.
  • Ширина 1490 мм.
  • Высота 220 мм.
  • Вес 1190 кг.
  • Объем бетона 0,48 м3
  • Геометрический объем 0,7802 м3
Цена: 10243 руб.
Подробнее
ПТМ 24-15-22-4,0 S500
Плиты перекрытий многопустотные Серия Б1.041.1-3.08
  • Длина 2380 мм.
  • Ширина 1490 мм.
  • Высота 220 мм.
  • Вес 1190 кг.
  • Объем бетона 0,48 м3
  • Геометрический объем 0,7802 м3
Цена: 10243 руб.
Подробнее
ПТМ 24-15-22-5,0 S500
Плиты перекрытий многопустотные Серия Б1.041.1-3.08
  • Длина 2380 мм.
  • Ширина 1490 мм.
  • Высота 220 мм.
  • Вес 1190 кг.
  • Объем бетона 0,48 м3
  • Геометрический объем 0,7802 м3
Цена: 10243 руб.
Подробнее
ПТМ 24-15-22-7,0 S500
Плиты перекрытий многопустотные Серия Б1.041.1-3.08
  • Длина 2380 мм.
  • Ширина 1490 мм.
  • Высота 220 мм.
  • Вес 1190 кг.
  • Объем бетона 0,48 м3
  • Геометрический объем 0,7802 м3
Цена: 10243 руб.
Подробнее
ПТМ 27-12-22-10,0 S500
Плиты перекрытий многопустотные Серия Б1.041.1-3.08
  • Длина 2680 мм.
  • Ширина 1190 мм.
  • Высота 220 мм.
  • Вес 1010 кг.
  • Объем бетона 0,4 м3
  • Геометрический объем 0,7016 м3
Цена: 8536 руб.
Подробнее
ПТМ 27-12-22-13,0 S500
Плиты перекрытий многопустотные Серия Б1.041.1-3.08
  • Длина 2680 мм.
  • Ширина 1190 мм.
  • Высота 220 мм.
  • Вес 1010 кг.
  • Объем бетона 0,4 м3
  • Геометрический объем 0,7016 м3
Цена: 8536 руб.
Подробнее
ПТМ 24-15-22-8,0 S500
Плиты перекрытий многопустотные Серия Б1.041.1-3.08
  • Длина 2380 мм.
  • Ширина 1490 мм.
  • Высота 220 мм.
  • Вес 1190 кг.
  • Объем бетона 0,48 м3
  • Геометрический объем 0,7802 м3
Цена: 10243 руб.
Подробнее
ПТМ 27-12-22-11,0 S500
Плиты перекрытий многопустотные Серия Б1.041.1-3.08
  • Длина 2680 мм.
  • Ширина 1190 мм.
  • Высота 220 мм.
  • Вес 1010 кг.
  • Объем бетона 0,4 м3
  • Геометрический объем 0,7016 м3
Цена: 8536 руб.
Подробнее
ПТМ 27-12-22-4,0 S500
Плиты перекрытий многопустотные Серия Б1.041.1-3.08
  • Длина 2680 мм.
  • Ширина 1190 мм.
  • Высота 220 мм.
  • Вес 1010 кг.
  • Объем бетона 0,4 м3
  • Геометрический объем 0,7016 м3
Цена: 8536 руб.
Подробнее
ПТМ 27-12-22-6,0 S500
Плиты перекрытий многопустотные Серия Б1.041.1-3.08
  • Длина 2680 мм.
  • Ширина 1190 мм.
  • Высота 220 мм.
  • Вес 1010 кг.
  • Объем бетона 0,4 м3
  • Геометрический объем 0,7016 м3
Цена: 8536 руб.
Подробнее
ПТМ 27-12-22-8,0 S500
Плиты перекрытий многопустотные Серия Б1.041.1-3.08
  • Длина 2680 мм.
  • Ширина 1190 мм.
  • Высота 220 мм.
  • Вес 1010 кг.
  • Объем бетона 0,4 м3
  • Геометрический объем 0,7016 м3
Цена: 8536 руб.
Подробнее
ПТМ 27-15-22-6,0 S500
Плиты перекрытий многопустотные Серия Б1.041.1-3.08
  • Длина 2680 мм.
  • Ширина 1490 мм.
  • Высота 220 мм.
  • Вес 1335 кг.
  • Объем бетона 0,53 м3
  • Геометрический объем 0,8785 м3
Цена: 11310 руб.
Подробнее
ПТМ 27-15-22-4,0 S500
Плиты перекрытий многопустотные Серия Б1.041.1-3.08
  • Длина 2680 мм.
  • Ширина 1490 мм.
  • Высота 220 мм.
  • Вес 1335 кг.
  • Объем бетона 0,53 м3
  • Геометрический объем 0,8785 м3
Цена: 11310 руб.
Подробнее
ПТМ 27-15-22-8,0 S500
Плиты перекрытий многопустотные Серия Б1.041.1-3.08
  • Длина 2680 мм.
  • Ширина 1490 мм.
  • Высота 220 мм.
  • Вес 1335 кг.
  • Объем бетона 0,53 м3
  • Геометрический объем 0,8785 м3
Цена: 11310 руб.
Подробнее
ПТМ 27-15-22-13,0 S500
Плиты перекрытий многопустотные Серия Б1.041.1-3.08
  • Длина 2680 мм.
  • Ширина 1490 мм.
  • Высота 220 мм.
  • Вес 1335 кг.
  • Объем бетона 0,53 м3
  • Геометрический объем 0,8785 м3
Цена: 11310 руб.
Подробнее
ПТМ 27-15-22-11,0 S500
Плиты перекрытий многопустотные Серия Б1.041.1-3.08
  • Длина 2680 мм.
  • Ширина 1490 мм.
  • Высота 220 мм.
  • Вес 1335 кг.
  • Объем бетона 0,53 м3
  • Геометрический объем 0,8785 м3
Цена: 11310 руб.
Подробнее
ПТМ 27-15-22-9,0 S500
Плиты перекрытий многопустотные Серия Б1.041.1-3.08
  • Длина 2680 мм.
  • Ширина 1490 мм.
  • Высота 220 мм.
  • Вес 1335 кг.
  • Объем бетона 0,53 м3
  • Геометрический объем 0,8785 м3
Цена: 11310 руб.
Подробнее
ПТМ 28-12-22-10,0 S500
Плиты перекрытий многопустотные Серия Б1.041.1-3.08
  • Длина 2780 мм.
  • Ширина 1190 мм.
  • Высота 220 мм.
  • Вес 1045 кг.
  • Объем бетона 0,42 м3
  • Геометрический объем 0,7278 м3
Цена: 8963 руб.
Подробнее
ПТМ 28-12-22-11,0 S500
Плиты перекрытий многопустотные Серия Б1.041.1-3.08
  • Длина 2780 мм.
  • Ширина 1190 мм.
  • Высота 220 мм.
  • Вес 1045 кг.
  • Объем бетона 0,42 м3
  • Геометрический объем 0,7278 м3
Цена: 8963 руб.
Подробнее
ПТМ 28-12-22-6,0 S500
Плиты перекрытий многопустотные Серия Б1.041.1-3.08
  • Длина 2780 мм.
  • Ширина 1190 мм.
  • Высота 220 мм.
  • Вес 1045 кг.
  • Объем бетона 0,42 м3
  • Геометрический объем 0,7278 м3
Цена: 8963 руб.
Подробнее
ПТМ 28-12-22-13,0 S500
Плиты перекрытий многопустотные Серия Б1.041.1-3.08
  • Длина 2780 мм.
  • Ширина 1190 мм.
  • Высота 220 мм.
  • Вес 1045 кг.
  • Объем бетона 0,42 м3
  • Геометрический объем 0,7278 м3
Цена: 8963 руб.
Подробнее
ПТМ 28-15-22-11,0 S500
Плиты перекрытий многопустотные Серия Б1.041.1-3.08
  • Длина 2780 мм.
  • Ширина 1490 мм.
  • Высота 220 мм.
  • Вес 1375 кг.
  • Объем бетона 0,55 м3
  • Геометрический объем 0,9113 м3
Цена: 11737 руб.
Подробнее
ПТМ 28-12-22-4,0 S500
Плиты перекрытий многопустотные Серия Б1.041.1-3.08
  • Длина 2780 мм.
  • Ширина 1190 мм.
  • Высота 220 мм.
  • Вес 1045 кг.
  • Объем бетона 0,42 м3
  • Геометрический объем 0,7278 м3
Цена: 8963 руб.
Подробнее
ПТМ 28-12-22-8,0 S500
Плиты перекрытий многопустотные Серия Б1.041.1-3.08
  • Длина 2780 мм.
  • Ширина 1190 мм.
  • Высота 220 мм.
  • Вес 1045 кг.
  • Объем бетона 0,42 м3
  • Геометрический объем 0,7278 м3
Цена: 8963 руб.
Подробнее
ПТМ 28-15-22-13,0 S500
Плиты перекрытий многопустотные Серия Б1.041.1-3.08
  • Длина 2780 мм.
  • Ширина 1490 мм.
  • Высота 220 мм.
  • Вес 1375 кг.
  • Объем бетона 0,55 м3
  • Геометрический объем 0,9113 м3
Цена: 11737 руб.
Подробнее
ПТМ 28-15-22-6,0 S500
Плиты перекрытий многопустотные Серия Б1.041.1-3.08
  • Длина 2780 мм.
  • Ширина 1490 мм.
  • Высота 220 мм.
  • Вес 1375 кг.
  • Объем бетона 0,55 м3
  • Геометрический объем 0,9113 м3
Цена: 11737 руб.
Подробнее
ПТМ 30-12-22-12,0 S500
Плиты перекрытий многопустотные Серия Б1.041.1-3.08
  • Длина 2980 мм.
  • Ширина 1190 мм.
  • Высота 220 мм.
  • Вес 1110 кг.
  • Объем бетона 0,45 м3
  • Геометрический объем 0,7802 м3
Цена: 9603 руб.
Подробнее
ПТМ 30-12-22-13,0 S500
Плиты перекрытий многопустотные Серия Б1.041.1-3.08
  • Длина 2980 мм.
  • Ширина 1190 мм.
  • Высота 220 мм.
  • Вес 1110 кг.
  • Объем бетона 0,45 м3
  • Геометрический объем 0,7802 м3
Цена: 9603 руб.
Подробнее
ПТМ 28-15-22-9,0 S500
Плиты перекрытий многопустотные Серия Б1.041.1-3.08
  • Длина 2780 мм.
  • Ширина 1490 мм.
  • Высота 220 мм.
  • Вес 1375 кг.
  • Объем бетона 0,55 м3
  • Геометрический объем 0,9113 м3
Цена: 11737 руб.
Подробнее
ПТМ 28-15-22-8,0 S500
Плиты перекрытий многопустотные Серия Б1.041.1-3.08
  • Длина 2780 мм.
  • Ширина 1490 мм.
  • Высота 220 мм.
  • Вес 1375 кг.
  • Объем бетона 0,55 м3
  • Геометрический объем 0,9113 м3
Цена: 11737 руб.
Подробнее
ПТМ 28-15-22-4,0 S500
Плиты перекрытий многопустотные Серия Б1.041.1-3.08
  • Длина 2780 мм.
  • Ширина 1490 мм.
  • Высота 220 мм.
  • Вес 1375 кг.
  • Объем бетона 0,55 м3
  • Геометрический объем 0,9113 м3
Цена: 11737 руб.
Подробнее
ПТМ 30-12-22-4,0 S500
Плиты перекрытий многопустотные Серия Б1.041.1-3.08
  • Длина 2980 мм.
  • Ширина 1190 мм.
  • Высота 220 мм.
  • Вес 1110 кг.
  • Объем бетона 0,45 м3
  • Геометрический объем 0,7802 м3
Цена: 9603 руб.
Подробнее
ПТМ 30-12-22-5,0 S500
Плиты перекрытий многопустотные Серия Б1.041.1-3.08
  • Длина 2980 мм.
  • Ширина 1190 мм.
  • Высота 220 мм.
  • Вес 1110 кг.
  • Объем бетона 0,45 м3
  • Геометрический объем 0,7802 м3
Цена: 9603 руб.
Подробнее
ПТМ 30-12-22-7,0 S500
Плиты перекрытий многопустотные Серия Б1.041.1-3.08
  • Длина 2980 мм.
  • Ширина 1190 мм.
  • Высота 220 мм.
  • Вес 1110 кг.
  • Объем бетона 0,45 м3
  • Геометрический объем 0,7802 м3
Цена: 9603 руб.
Подробнее
ПТМ 30-12-22-9,0 S500
Плиты перекрытий многопустотные Серия Б1.041.1-3.08
  • Длина 2980 мм.
  • Ширина 1190 мм.
  • Высота 220 мм.
  • Вес 1110 кг.
  • Объем бетона 0,45 м3
  • Геометрический объем 0,7802 м3
Цена: 9603 руб.
Подробнее
ПТМ 30-12-22-8,0 S500
Плиты перекрытий многопустотные Серия Б1.041.1-3.08
  • Длина 2980 мм.
  • Ширина 1190 мм.
  • Высота 220 мм.
  • Вес 1110 кг.
  • Объем бетона 0,45 м3
  • Геометрический объем 0,7802 м3
Цена: 9603 руб.
Подробнее
ПТМ 30-15-22-11,0 S500
Плиты перекрытий многопустотные Серия Б1.041.1-3.08
  • Длина 2980 мм.
  • Ширина 1490 мм.
  • Высота 220 мм.
  • Вес 1470 кг.
  • Объем бетона 0,59 м3
  • Геометрический объем 0,9768 м3
Цена: 12591 руб.
Подробнее
ПТМ 30-15-22-13,0 S500
Плиты перекрытий многопустотные Серия Б1.041.1-3.08
  • Длина 2980 мм.
  • Ширина 1490 мм.
  • Высота 220 мм.
  • Вес 1470 кг.
  • Объем бетона 0,59 м3
  • Геометрический объем 0,9768 м3
Цена: 12591 руб.
Подробнее
ПТМ 30-15-22-4,0 S500
Плиты перекрытий многопустотные Серия Б1.041.1-3.08
  • Длина 2980 мм.
  • Ширина 1490 мм.
  • Высота 220 мм.
  • Вес 1470 кг.
  • Объем бетона 0,59 м3
  • Геометрический объем 0,9768 м3
Цена: 12591 руб.
Подробнее
ПТМ 30-15-22-9,0 S500
Плиты перекрытий многопустотные Серия Б1.041.1-3.08
  • Длина 2980 мм.
  • Ширина 1490 мм.
  • Высота 220 мм.
  • Вес 1470 кг.
  • Объем бетона 0,59 м3
  • Геометрический объем 0,9768 м3
Цена: 12591 руб.
Подробнее
ПТМ 30-15-22-6,0 S500
Плиты перекрытий многопустотные Серия Б1.041.1-3.08
  • Длина 2980 мм.
  • Ширина 1490 мм.
  • Высота 220 мм.
  • Вес 1470 кг.
  • Объем бетона 0,59 м3
  • Геометрический объем 0,9768 м3
Цена: 12591 руб.
Подробнее
ПТМ 33-12-22-12,0 S500
Плиты перекрытий многопустотные Серия Б1.041.1-3.08
  • Длина 3280 мм.
  • Ширина 1190 мм.
  • Высота 220 мм.
  • Вес 1250 кг.
  • Объем бетона 0,47 м3
  • Геометрический объем 0,8587 м3
Цена: 10030 руб.
Подробнее
ПТМ 30-15-22-7,0 S500
Плиты перекрытий многопустотные Серия Б1.041.1-3.08
  • Длина 2980 мм.
  • Ширина 1490 мм.
  • Высота 220 мм.
  • Вес 1470 кг.
  • Объем бетона 0,59 м3
  • Геометрический объем 0,9768 м3
Цена: 12591 руб.
Подробнее
ПТМ 33-12-22-11,0 S500
Плиты перекрытий многопустотные Серия Б1.041.1-3.08
  • Длина 3280 мм.
  • Ширина 1190 мм.
  • Высота 220 мм.
  • Вес 1250 кг.
  • Объем бетона 0,47 м3
  • Геометрический объем 0,8587 м3
Цена: 10030 руб.
Подробнее
ПТМ 33-12-22-13,0 S500
Плиты перекрытий многопустотные Серия Б1.041.1-3.08
  • Длина 3280 мм.
  • Ширина 1190 мм.
  • Высота 220 мм.
  • Вес 1250 кг.
  • Объем бетона 0,47 м3
  • Геометрический объем 0,8587 м3
Цена: 10030 руб.
Подробнее
ПТМ 33-12-22-5,0 S500
Плиты перекрытий многопустотные Серия Б1.041.1-3.08
  • Длина 3280 мм.
  • Ширина 1190 мм.
  • Высота 220 мм.
  • Вес 1250 кг.
  • Объем бетона 0,47 м3
  • Геометрический объем 0,8587 м3
Цена: 10030 руб.
Подробнее
ПТМ 33-12-22-6,0 S500
Плиты перекрытий многопустотные Серия Б1.041.1-3.08
  • Длина 3280 мм.
  • Ширина 1190 мм.
  • Высота 220 мм.
  • Вес 1250 кг.
  • Объем бетона 0,47 м3
  • Геометрический объем 0,8587 м3
Цена: 10030 руб.
Подробнее
ПТМ 33-12-22-9,0 S500
Плиты перекрытий многопустотные Серия Б1.041.1-3.08
  • Длина 3280 мм.
  • Ширина 1190 мм.
  • Высота 220 мм.
  • Вес 1250 кг.
  • Объем бетона 0,47 м3
  • Геометрический объем 0,8587 м3
Цена: 10030 руб.
Подробнее
ПТМ 33-15-22-12,0 S500
Плиты перекрытий многопустотные Серия Б1.041.1-3.08
  • Длина 3280 мм.
  • Ширина 1490 мм.
  • Высота 220 мм.
  • Вес 1625 кг.
  • Объем бетона 0,62 м3
  • Геометрический объем 1,0752 м3
Цена: 13231 руб.
Подробнее
ПТМ 33-15-22-10,0 S500
Плиты перекрытий многопустотные Серия Б1.041.1-3.08
  • Длина 3280 мм.
  • Ширина 1490 мм.
  • Высота 220 мм.
  • Вес 1625 кг.
  • Объем бетона 0,62 м3
  • Геометрический объем 1,0752 м3
Цена: 13231 руб.
Подробнее
ПТМ 33-15-22-4,0 S500
Плиты перекрытий многопустотные Серия Б1.041.1-3.08
  • Длина 3280 мм.
  • Ширина 1490 мм.
  • Высота 220 мм.
  • Вес 1625 кг.
  • Объем бетона 0,62 м3
  • Геометрический объем 1,0752 м3
Цена: 13231 руб.
Подробнее
ПТМ 33-15-22-13,0 S500
Плиты перекрытий многопустотные Серия Б1.041.1-3.08
  • Длина 3280 мм.
  • Ширина 1490 мм.
  • Высота 220 мм.
  • Вес 1625 кг.
  • Объем бетона 0,62 м3
  • Геометрический объем 1,0752 м3
Цена: 13231 руб.
Подробнее
ПТМ 33-15-22-5,0 S500
Плиты перекрытий многопустотные Серия Б1.041.1-3.08
  • Длина 3280 мм.
  • Ширина 1490 мм.
  • Высота 220 мм.
  • Вес 1625 кг.
  • Объем бетона 0,62 м3
  • Геометрический объем 1,0752 м3
Цена: 13231 руб.
Подробнее

Уведомление о файлах cookie

Мы используем файлы cookie для улучшения вашего опыта просмотра и анализа трафика. Нажимая "Принять все", вы соглашаетесь с нашей политикой конфиденциальности и политикой обработки файлов cookie.

Дзен Телеграм Вконтакте vk