mobile_sound +7 (930) 655-55-90

Типовые конструкции и железобетонные изделия. Рабочие чертежи (Серия Б1.041.1-3.08)

Поделиться:
Поделиться:

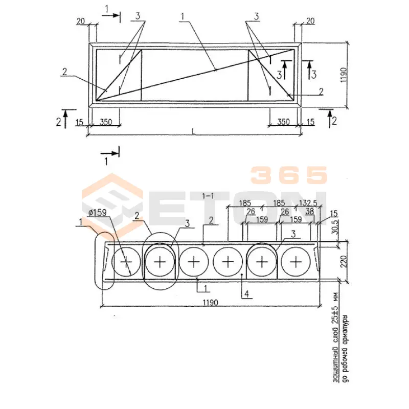
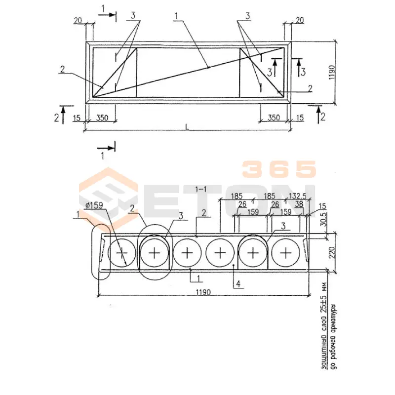
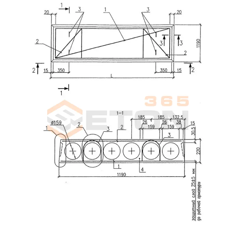
Документ Серия Б1.041.1-3.08 описывает область применения, номенклатуру и ключевые требования, опираясь на действующие нормы и практику проектирования. С номенклатурном перечнем Серии Б1.041.1-3.08 приведены опалубочные и арматурные чертежи многопустотных плит перекрытий. Главным разработчиком нормативного документа является организация СТРОЙТЕХНОРМ, введение в действие состоялось с сентября 2008 года. В составе регламента четыре выпуска, содержащих не только материалы для проектирования и чертежи конструкций в широком диапазоне длин, но и рекомендации по монтажу, правила хранения и транспортировки, последовательность производственного процесса, контроля, приемки и паспортизации.

Файлы для скачивания:
picture_as_pdf

4495.pdf

4,887.3 KB

скачать
picture_as_pdf

4496.pdf

3,823.8 KB

скачать
picture_as_pdf

4497.pdf

1,554.1 KB

скачать
picture_as_pdf

4498.pdf

1,490.2 KB

скачать
picture_as_pdf

4499.pdf

2,538.7 KB

скачать
Товары Серия Б1.041.1-3.08 (60)
ПТМ 33-15-22-6,0 S500
Плиты перекрытий многопустотные Серия Б1.041.1-3.08
  • Длина 3280 мм.
  • Ширина 1490 мм.
  • Высота 220 мм.
  • Вес 1625 кг.
  • Объем бетона 0,62 м3
  • Геометрический объем 1,0752 м3
Цена: 13231 руб.
Подробнее
ПТМ 36-12-22-7,0 S500
Плиты перекрытий многопустотные Серия Б1.041.1-3.08
  • Длина 3580 мм.
  • Ширина 1190 мм.
  • Высота 220 мм.
  • Вес 1320 кг.
  • Объем бетона 0,53 м3
  • Геометрический объем 0,9372 м3
Цена: 11310 руб.
Подробнее
ПТМ 36-12-22-11,0 S500
Плиты перекрытий многопустотные Серия Б1.041.1-3.08
  • Длина 3580 мм.
  • Ширина 1190 мм.
  • Высота 220 мм.
  • Вес 1320 кг.
  • Объем бетона 0,53 м3
  • Геометрический объем 0,9372 м3
Цена: 11310 руб.
Подробнее
ПТМ 36-12-22-4,0 S500
Плиты перекрытий многопустотные Серия Б1.041.1-3.08
  • Длина 3580 мм.
  • Ширина 1190 мм.
  • Высота 220 мм.
  • Вес 1320 кг.
  • Объем бетона 0,53 м3
  • Геометрический объем 0,9372 м3
Цена: 11310 руб.
Подробнее
ПТМ 33-15-22-8,0 S500
Плиты перекрытий многопустотные Серия Б1.041.1-3.08
  • Длина 3280 мм.
  • Ширина 1490 мм.
  • Высота 220 мм.
  • Вес 1625 кг.
  • Объем бетона 0,62 м3
  • Геометрический объем 1,0752 м3
Цена: 13231 руб.
Подробнее
ПТМ 36-12-22-13,0 S500
Плиты перекрытий многопустотные Серия Б1.041.1-3.08
  • Длина 3580 мм.
  • Ширина 1190 мм.
  • Высота 220 мм.
  • Вес 1320 кг.
  • Объем бетона 0,53 м3
  • Геометрический объем 0,9372 м3
Цена: 11310 руб.
Подробнее
ПТМ 36-12-22-9,0 S500-1
Плиты перекрытий многопустотные Серия Б1.041.1-3.08
  • Длина 3580 мм.
  • Ширина 1190 мм.
  • Высота 220 мм.
  • Вес 1320 кг.
  • Объем бетона 0,53 м3
  • Геометрический объем 0,9372 м3
Цена: 11310 руб.
Подробнее
ПТМ 36-12-22-9,0 S500
Плиты перекрытий многопустотные Серия Б1.041.1-3.08
  • Длина 3580 мм.
  • Ширина 1190 мм.
  • Высота 220 мм.
  • Вес 1320 кг.
  • Объем бетона 0,53 м3
  • Геометрический объем 0,9372 м3
Цена: 11310 руб.
Подробнее
ПТМ 36-15-22-10,0 S500
Плиты перекрытий многопустотные Серия Б1.041.1-3.08
  • Длина 3580 мм.
  • Ширина 1490 мм.
  • Высота 220 мм.
  • Вес 1745 кг.
  • Объем бетона 0,7 м3
  • Геометрический объем 1,1735 м3
Цена: 14938 руб.
Подробнее
ПТМ 36-15-22-13,0 S500
Плиты перекрытий многопустотные Серия Б1.041.1-3.08
  • Длина 3580 мм.
  • Ширина 1490 мм.
  • Высота 220 мм.
  • Вес 1745 кг.
  • Объем бетона 0,7 м3
  • Геометрический объем 1,1735 м3
Цена: 14938 руб.
Подробнее
ПТМ 36-15-22-4,0 S500
Плиты перекрытий многопустотные Серия Б1.041.1-3.08
  • Длина 3580 мм.
  • Ширина 1490 мм.
  • Высота 220 мм.
  • Вес 1745 кг.
  • Объем бетона 0,7 м3
  • Геометрический объем 1,1735 м3
Цена: 14938 руб.
Подробнее
ПТМ 36-15-22-12,0 S500
Плиты перекрытий многопустотные Серия Б1.041.1-3.08
  • Длина 3580 мм.
  • Ширина 1490 мм.
  • Высота 220 мм.
  • Вес 1745 кг.
  • Объем бетона 0,7 м3
  • Геометрический объем 1,1735 м3
Цена: 14938 руб.
Подробнее
ПТМ 36-15-22-5,0 S500
Плиты перекрытий многопустотные Серия Б1.041.1-3.08
  • Длина 3580 мм.
  • Ширина 1490 мм.
  • Высота 220 мм.
  • Вес 1745 кг.
  • Объем бетона 0,7 м3
  • Геометрический объем 1,1735 м3
Цена: 14938 руб.
Подробнее
ПТМ 36-15-22-6,0 S500
Плиты перекрытий многопустотные Серия Б1.041.1-3.08
  • Длина 3580 мм.
  • Ширина 1490 мм.
  • Высота 220 мм.
  • Вес 1745 кг.
  • Объем бетона 0,7 м3
  • Геометрический объем 1,1735 м3
Цена: 14938 руб.
Подробнее
ПТМ 36-15-22-8,0 S500
Плиты перекрытий многопустотные Серия Б1.041.1-3.08
  • Длина 3580 мм.
  • Ширина 1490 мм.
  • Высота 220 мм.
  • Вес 1745 кг.
  • Объем бетона 0,7 м3
  • Геометрический объем 1,1735 м3
Цена: 14938 руб.
Подробнее
ПТМ 36-15-22-9,0 S500
Плиты перекрытий многопустотные Серия Б1.041.1-3.08
  • Длина 3580 мм.
  • Ширина 1490 мм.
  • Высота 220 мм.
  • Вес 1745 кг.
  • Объем бетона 0,7 м3
  • Геометрический объем 1,1735 м3
Цена: 14938 руб.
Подробнее
ПТМ 42-12-22-10,0 S500
Плиты перекрытий многопустотные Серия Б1.041.1-3.08
  • Длина 4180 мм.
  • Ширина 1190 мм.
  • Высота 220 мм.
  • Вес 1525 кг.
  • Объем бетона 0,61 м3
  • Геометрический объем 1,0943 м3
Цена: 13017 руб.
Подробнее
ПТМ 42-12-22-11,0 S500
Плиты перекрытий многопустотные Серия Б1.041.1-3.08
  • Длина 4180 мм.
  • Ширина 1190 мм.
  • Высота 220 мм.
  • Вес 1525 кг.
  • Объем бетона 0,61 м3
  • Геометрический объем 1,0943 м3
Цена: 13017 руб.
Подробнее
ПТМ 42-12-22-12,0 S800
Плиты перекрытий многопустотные Серия Б1.041.1-3.08
  • Длина 4180 мм.
  • Ширина 1190 мм.
  • Высота 220 мм.
  • Вес 1525 кг.
  • Объем бетона 0,61 м3
  • Геометрический объем 1,0943 м3
Цена: 13017 руб.
Подробнее
ПТМ 42-12-22-13,0 S500
Плиты перекрытий многопустотные Серия Б1.041.1-3.08
  • Длина 4180 мм.
  • Ширина 1190 мм.
  • Высота 220 мм.
  • Вес 1525 кг.
  • Объем бетона 0,61 м3
  • Геометрический объем 1,0943 м3
Цена: 13017 руб.
Подробнее
ПТМ 42-12-22-13,0 S800
Плиты перекрытий многопустотные Серия Б1.041.1-3.08
  • Длина 4180 мм.
  • Ширина 1190 мм.
  • Высота 220 мм.
  • Вес 1525 кг.
  • Объем бетона 0,61 м3
  • Геометрический объем 1,0943 м3
Цена: 13017 руб.
Подробнее
ПТМ 42-12-22-5,0 S500
Плиты перекрытий многопустотные Серия Б1.041.1-3.08
  • Длина 4180 мм.
  • Ширина 1190 мм.
  • Высота 220 мм.
  • Вес 1525 кг.
  • Объем бетона 0,61 м3
  • Геометрический объем 1,0943 м3
Цена: 13017 руб.
Подробнее
ПТМ 42-12-22-4,0 S500
Плиты перекрытий многопустотные Серия Б1.041.1-3.08
  • Длина 4180 мм.
  • Ширина 1190 мм.
  • Высота 220 мм.
  • Вес 1525 кг.
  • Объем бетона 0,61 м3
  • Геометрический объем 1,0943 м3
Цена: 13017 руб.
Подробнее
ПТМ 42-12-22-8,0 S800
Плиты перекрытий многопустотные Серия Б1.041.1-3.08
  • Длина 4180 мм.
  • Ширина 1190 мм.
  • Высота 220 мм.
  • Вес 1525 кг.
  • Объем бетона 0,61 м3
  • Геометрический объем 1,0943 м3
Цена: 13017 руб.
Подробнее
ПТМ 42-12-22-7,0 S500
Плиты перекрытий многопустотные Серия Б1.041.1-3.08
  • Длина 4180 мм.
  • Ширина 1190 мм.
  • Высота 220 мм.
  • Вес 1525 кг.
  • Объем бетона 0,61 м3
  • Геометрический объем 1,0943 м3
Цена: 13017 руб.
Подробнее
ПТМ 42-12-22-9,0 S500
Плиты перекрытий многопустотные Серия Б1.041.1-3.08
  • Длина 4180 мм.
  • Ширина 1190 мм.
  • Высота 220 мм.
  • Вес 1525 кг.
  • Объем бетона 0,61 м3
  • Геометрический объем 1,0943 м3
Цена: 13017 руб.
Подробнее
ПТМ 42-15-22-10,0 S500
Плиты перекрытий многопустотные Серия Б1.041.1-3.08
  • Длина 4180 мм.
  • Ширина 1490 мм.
  • Высота 220 мм.
  • Вес 2020 кг.
  • Объем бетона 0,81 м3
  • Геометрический объем 1,3702 м3
Цена: 17285 руб.
Подробнее
ПТМ 42-15-22-12,0 S500
Плиты перекрытий многопустотные Серия Б1.041.1-3.08
  • Длина 4180 мм.
  • Ширина 1490 мм.
  • Высота 220 мм.
  • Вес 2020 кг.
  • Объем бетона 0,81 м3
  • Геометрический объем 1,3702 м3
Цена: 17285 руб.
Подробнее
ПТМ 42-15-22-12,0 S800
Плиты перекрытий многопустотные Серия Б1.041.1-3.08
  • Длина 4180 мм.
  • Ширина 1490 мм.
  • Высота 220 мм.
  • Вес 2020 кг.
  • Объем бетона 0,81 м3
  • Геометрический объем 1,3702 м3
Цена: 17285 руб.
Подробнее
ПТМ 42-15-22-13,0 S500
Плиты перекрытий многопустотные Серия Б1.041.1-3.08
  • Длина 4180 мм.
  • Ширина 1490 мм.
  • Высота 220 мм.
  • Вес 2020 кг.
  • Объем бетона 0,81 м3
  • Геометрический объем 1,3702 м3
Цена: 17285 руб.
Подробнее
ПТМ 42-15-22-13,0 S800
Плиты перекрытий многопустотные Серия Б1.041.1-3.08
  • Длина 4180 мм.
  • Ширина 1490 мм.
  • Высота 220 мм.
  • Вес 2020 кг.
  • Объем бетона 0,81 м3
  • Геометрический объем 1,3702 м3
Цена: 17285 руб.
Подробнее
ПТМ 42-15-22-5,0 S500
Плиты перекрытий многопустотные Серия Б1.041.1-3.08
  • Длина 4180 мм.
  • Ширина 1490 мм.
  • Высота 220 мм.
  • Вес 2020 кг.
  • Объем бетона 0,81 м3
  • Геометрический объем 1,3702 м3
Цена: 17285 руб.
Подробнее
ПТМ 42-15-22-6,0 S500
Плиты перекрытий многопустотные Серия Б1.041.1-3.08
  • Длина 4180 мм.
  • Ширина 1490 мм.
  • Высота 220 мм.
  • Вес 2020 кг.
  • Объем бетона 0,81 м3
  • Геометрический объем 1,3702 м3
Цена: 17285 руб.
Подробнее
ПТМ 42-15-22-7,0 S500
Плиты перекрытий многопустотные Серия Б1.041.1-3.08
  • Длина 4180 мм.
  • Ширина 1490 мм.
  • Высота 220 мм.
  • Вес 2020 кг.
  • Объем бетона 0,81 м3
  • Геометрический объем 1,3702 м3
Цена: 17285 руб.
Подробнее
ПТМ 48-12-22-10,0 S500
Плиты перекрытий многопустотные Серия Б1.041.1-3.08
  • Длина 4780 мм.
  • Ширина 1190 мм.
  • Высота 220 мм.
  • Вес 1700 кг.
  • Объем бетона 0,68 м3
  • Геометрический объем 1,2514 м3
Цена: 14511 руб.
Подробнее
ПТМ 42-15-22-9,0 S500
Плиты перекрытий многопустотные Серия Б1.041.1-3.08
  • Длина 4180 мм.
  • Ширина 1490 мм.
  • Высота 220 мм.
  • Вес 2020 кг.
  • Объем бетона 0,81 м3
  • Геометрический объем 1,3702 м3
Цена: 17285 руб.
Подробнее
ПТМ 42-15-22-9,0 S800
Плиты перекрытий многопустотные Серия Б1.041.1-3.08
  • Длина 4180 мм.
  • Ширина 1490 мм.
  • Высота 220 мм.
  • Вес 2020 кг.
  • Объем бетона 0,81 м3
  • Геометрический объем 1,3702 м3
Цена: 17285 руб.
Подробнее
ПТМ 48-12-22-5,0 S500
Плиты перекрытий многопустотные Серия Б1.041.1-3.08
  • Длина 4780 мм.
  • Ширина 1190 мм.
  • Высота 220 мм.
  • Вес 1700 кг.
  • Объем бетона 0,68 м3
  • Геометрический объем 1,2514 м3
Цена: 14511 руб.
Подробнее
ПТМ 48-12-22-4,0 S500
Плиты перекрытий многопустотные Серия Б1.041.1-3.08
  • Длина 4780 мм.
  • Ширина 1190 мм.
  • Высота 220 мм.
  • Вес 1700 кг.
  • Объем бетона 0,68 м3
  • Геометрический объем 1,2514 м3
Цена: 14511 руб.
Подробнее
ПТМ 48-12-22-13,0 S800
Плиты перекрытий многопустотные Серия Б1.041.1-3.08
  • Длина 4780 мм.
  • Ширина 1190 мм.
  • Высота 220 мм.
  • Вес 1730 кг.
  • Объем бетона 0,69 м3
  • Геометрический объем 1,2514 м3
Цена: 14725 руб.
Подробнее
ПТМ 48-12-22-11,0 S800
Плиты перекрытий многопустотные Серия Б1.041.1-3.08
  • Длина 4780 мм.
  • Ширина 1190 мм.
  • Высота 220 мм.
  • Вес 1730 кг.
  • Объем бетона 0,69 м3
  • Геометрический объем 1,2514 м3
Цена: 14725 руб.
Подробнее
ПТМ 48-12-22-5,0 S800
Плиты перекрытий многопустотные Серия Б1.041.1-3.08
  • Длина 4780 мм.
  • Ширина 1190 мм.
  • Высота 220 мм.
  • Вес 1730 кг.
  • Объем бетона 0,69 м3
  • Геометрический объем 1,2514 м3
Цена: 14725 руб.
Подробнее
ПТМ 48-12-22-6,0 S500
Плиты перекрытий многопустотные Серия Б1.041.1-3.08
  • Длина 4780 мм.
  • Ширина 1190 мм.
  • Высота 220 мм.
  • Вес 1700 кг.
  • Объем бетона 0,68 м3
  • Геометрический объем 1,2514 м3
Цена: 14511 руб.
Подробнее
ПТМ 48-12-22-8,0 S800
Плиты перекрытий многопустотные Серия Б1.041.1-3.08
  • Длина 4780 мм.
  • Ширина 1190 мм.
  • Высота 220 мм.
  • Вес 1730 кг.
  • Объем бетона 0,69 м3
  • Геометрический объем 1,2514 м3
Цена: 14725 руб.
Подробнее
ПТМ 48-12-22-9,0 S800
Плиты перекрытий многопустотные Серия Б1.041.1-3.08
  • Длина 4780 мм.
  • Ширина 1190 мм.
  • Высота 220 мм.
  • Вес 1730 кг.
  • Объем бетона 0,69 м3
  • Геометрический объем 1,2514 м3
Цена: 14725 руб.
Подробнее
ПТМ 48-12-22-7,0 S500
Плиты перекрытий многопустотные Серия Б1.041.1-3.08
  • Длина 4780 мм.
  • Ширина 1190 мм.
  • Высота 220 мм.
  • Вес 1700 кг.
  • Объем бетона 0,68 м3
  • Геометрический объем 1,2514 м3
Цена: 14511 руб.
Подробнее
ПТМ 48-15-22-10,0 S500
Плиты перекрытий многопустотные Серия Б1.041.1-3.08
  • Длина 4780 мм.
  • Ширина 1490 мм.
  • Высота 220 мм.
  • Вес 2250 кг.
  • Объем бетона 0,9 м3
  • Геометрический объем 1,5669 м3
Цена: 19206 руб.
Подробнее
ПТМ 48-12-22-8,0 S500
Плиты перекрытий многопустотные Серия Б1.041.1-3.08
  • Длина 4780 мм.
  • Ширина 1190 мм.
  • Высота 220 мм.
  • Вес 1700 кг.
  • Объем бетона 0,68 м3
  • Геометрический объем 1,2514 м3
Цена: 14511 руб.
Подробнее
ПТМ 48-15-22-10,0 S800
Плиты перекрытий многопустотные Серия Б1.041.1-3.08
  • Длина 4780 мм.
  • Ширина 1490 мм.
  • Высота 220 мм.
  • Вес 2250 кг.
  • Объем бетона 0,9 м3
  • Геометрический объем 1,5669 м3
Цена: 19206 руб.
Подробнее
ПТМ 48-15-22-12,0 S800
Плиты перекрытий многопустотные Серия Б1.041.1-3.08
  • Длина 4780 мм.
  • Ширина 1490 мм.
  • Высота 220 мм.
  • Вес 2250 кг.
  • Объем бетона 0,9 м3
  • Геометрический объем 1,5669 м3
Цена: 19206 руб.
Подробнее
ПТМ 48-15-22-13,0 S800
Плиты перекрытий многопустотные Серия Б1.041.1-3.08
  • Длина 4780 мм.
  • Ширина 1490 мм.
  • Высота 220 мм.
  • Вес 2250 кг.
  • Объем бетона 0,9 м3
  • Геометрический объем 1,5669 м3
Цена: 19206 руб.
Подробнее
ПТМ 48-15-22-5,0 S800
Плиты перекрытий многопустотные Серия Б1.041.1-3.08
  • Длина 4780 мм.
  • Ширина 1490 мм.
  • Высота 220 мм.
  • Вес 2250 кг.
  • Объем бетона 0,9 м3
  • Геометрический объем 1,5669 м3
Цена: 19206 руб.
Подробнее
ПТМ 48-15-22-5,0 S500
Плиты перекрытий многопустотные Серия Б1.041.1-3.08
  • Длина 4780 мм.
  • Ширина 1490 мм.
  • Высота 220 мм.
  • Вес 2250 кг.
  • Объем бетона 0,9 м3
  • Геометрический объем 1,5669 м3
Цена: 19206 руб.
Подробнее
ПТМ 48-15-22-4,0 S500
Плиты перекрытий многопустотные Серия Б1.041.1-3.08
  • Длина 4780 мм.
  • Ширина 1490 мм.
  • Высота 220 мм.
  • Вес 2250 кг.
  • Объем бетона 0,9 м3
  • Геометрический объем 1,5669 м3
Цена: 19206 руб.
Подробнее
ПТМ 48-15-22-6,0 S500
Плиты перекрытий многопустотные Серия Б1.041.1-3.08
  • Длина 4780 мм.
  • Ширина 1490 мм.
  • Высота 220 мм.
  • Вес 2250 кг.
  • Объем бетона 0,9 м3
  • Геометрический объем 1,5669 м3
Цена: 19206 руб.
Подробнее
ПТМ 48-15-22-8,0 S800
Плиты перекрытий многопустотные Серия Б1.041.1-3.08
  • Длина 4780 мм.
  • Ширина 1490 мм.
  • Высота 220 мм.
  • Вес 2250 кг.
  • Объем бетона 0,9 м3
  • Геометрический объем 1,5669 м3
Цена: 19206 руб.
Подробнее
ПТМ 48-15-22-8,0 S500
Плиты перекрытий многопустотные Серия Б1.041.1-3.08
  • Длина 4780 мм.
  • Ширина 1490 мм.
  • Высота 220 мм.
  • Вес 2250 кг.
  • Объем бетона 0,9 м3
  • Геометрический объем 1,5669 м3
Цена: 19206 руб.
Подробнее
ПТМ 51-12-22-11,0 S800
Плиты перекрытий многопустотные Серия Б1.041.1-3.08
  • Длина 5080 мм.
  • Ширина 1190 мм.
  • Высота 220 мм.
  • Вес 1800 кг.
  • Объем бетона 0,72 м3
  • Геометрический объем 1,3299 м3
Цена: 15365 руб.
Подробнее
ПТМ 51-12-22-12,0 S800
Плиты перекрытий многопустотные Серия Б1.041.1-3.08
  • Длина 5080 мм.
  • Ширина 1190 мм.
  • Высота 220 мм.
  • Вес 1800 кг.
  • Объем бетона 0,72 м3
  • Геометрический объем 1,3299 м3
Цена: 15365 руб.
Подробнее
ПТМ 51-12-22-13,0 S800
Плиты перекрытий многопустотные Серия Б1.041.1-3.08
  • Длина 5080 мм.
  • Ширина 1190 мм.
  • Высота 220 мм.
  • Вес 1800 кг.
  • Объем бетона 0,72 м3
  • Геометрический объем 1,3299 м3
Цена: 15365 руб.
Подробнее

Уведомление о файлах cookie

Мы используем файлы cookie для улучшения вашего опыта просмотра и анализа трафика. Нажимая "Принять все", вы соглашаетесь с нашей политикой конфиденциальности и политикой обработки файлов cookie.

MAX Дзен Телеграм Вконтакте vk