mobile_sound +7 (930) 655-55-90

Унифицированные железобетонные изделия подстанций 35–500 кВ. Указания по применению и рабочие чертежи (Серия 3.407.1-157)

Поделиться:
Поделиться:

Документ Серия 3.407.1-157 описывает область применения, номенклатуру и ключевые требования, опираясь на действующие нормы и практику проектирования. В Серии 3.407.1-157 максимально детально описываются все тонкости и нюансы производства унифицированных элементов подстанций, рассчитанных под напряжение от 35 до 500 КВ. В разработке нормативного документа принимал участие проектный институт ЭНЕРГОСЕТЬПРОЕКТ при поддержке Минэнерго СССР, после утверждения регламента введение в действие состоялось, начиная с марта 1988 года. Номенклатурный перечень железобетонных конструкций включает в себя следующие наименования: фундаменты под опоры различных типов, балки, дырчатые блоки, бруски, лежни, плиты, сваи, стойки, траверсы, шпалы и другие элементы.

Файлы для скачивания:
picture_as_pdf

1597.pdf

9,077.2 KB

скачать
Товары Серия 3.407.1-157 (48)
Б 10
Бруски кабельных каналов серия 3.407.1-157 ( серия 3.407-102, 3.407-40/70 )
  • Длина 1000 мм.
  • Ширина 150 мм.
  • Высота 100 мм.
  • Вес 40 кг.
  • Объем бетона 0,02 м3
  • Геометрический объем 0,015 м3
Цена: 466 руб.
Подробнее
Б 5
Бруски кабельных каналов серия 3.407.1-157 ( серия 3.407-102, 3.407-40/70 )
  • Длина 500 мм.
  • Ширина 150 мм.
  • Высота 100 мм.
  • Вес 20 кг.
  • Объем бетона 0,008 м3
  • Геометрический объем 0,0075 м3
Цена: 272 руб.
Подробнее
БК 11 а
Бруски кабельных каналов серия 3.407.1-157 ( серия 3.407-102, 3.407-40/70 )
  • Длина 500 мм.
  • Ширина 150 мм.
  • Высота 100 мм.
  • Вес 20 кг.
  • Объем бетона 0,01 м3
  • Геометрический объем 0,0075 м3
Цена: 427 руб.
Подробнее
БК 11 а (3.407-40/70)
Бруски кабельных каналов серия 3.407.1-157 ( серия 3.407-102, 3.407-40/70 )
  • Длина 500 мм.
  • Ширина 150 мм.
  • Высота 100 мм.
  • Вес 20 кг.
  • Объем бетона 0,0075 м3
  • Геометрический объем 0,0075 м3
Цена: 320 руб.
Подробнее
БК 12 а
Бруски кабельных каналов серия 3.407.1-157 ( серия 3.407-102, 3.407-40/70 )
  • Длина 1000 мм.
  • Ширина 150 мм.
  • Высота 100 мм.
  • Вес 40 кг.
  • Объем бетона 0,02 м3
  • Геометрический объем 0,015 м3
Цена: 582 руб.
Подробнее
БК 12 а (3.407-40/70)
Бруски кабельных каналов серия 3.407.1-157 ( серия 3.407-102, 3.407-40/70 )
  • Длина 1000 мм.
  • Ширина 150 мм.
  • Высота 100 мм.
  • Вес 40 кг.
  • Объем бетона 0,015 м3
  • Геометрический объем 0,015 м3
Цена: 437 руб.
Подробнее
УБК 9 а
Бруски кабельных каналов серия 3.407.1-157 ( серия 3.407-102, 3.407-40/70 )
  • Длина 3950 мм.
  • Ширина 560 мм.
  • Высота 250 мм.
  • Вес 1000 кг.
  • Объем бетона 0,4 м3
  • Геометрический объем 0,553 м3
Цена: 12804 руб.
Подробнее
УБК 9 а (3.407-40/70)
Бруски кабельных каналов серия 3.407.1-157 ( серия 3.407-102, 3.407-40/70 )
  • Длина 3950 мм.
  • Ширина 540 мм.
  • Высота 250 мм.
  • Вес 1000 кг.
  • Объем бетона 0,4 м3
  • Геометрический объем 0,5333 м3
Цена: 12804 руб.
Подробнее
Л 20-10
Мотки кабельных каналов серия 3.407.1-157 ( серия 3.407-102, 3.407-40/70 )
  • Длина 1990 мм.
  • Ширина 1000 мм.
  • Высота 160 мм.
  • Вес 275 кг.
  • Объем бетона 0,11 м3
  • Геометрический объем 0,3184 м3
Цена: 2988 руб.
Подробнее
Л 20-10-1
Мотки кабельных каналов серия 3.407.1-157 ( серия 3.407-102, 3.407-40/70 )
  • Длина 1990 мм.
  • Ширина 1000 мм.
  • Высота 160 мм.
  • Вес 340 кг.
  • Объем бетона 0,14 м3
  • Геометрический объем 0,3184 м3
Цена: 3802 руб.
Подробнее
Л 20-5
Мотки кабельных каналов серия 3.407.1-157 ( серия 3.407-102, 3.407-40/70 )
  • Длина 1990 мм.
  • Ширина 500 мм.
  • Высота 160 мм.
  • Вес 175 кг.
  • Объем бетона 0,07 м3
  • Геометрический объем 0,1592 м3
Цена: 1901 руб.
Подробнее
Л 20-5-1
Мотки кабельных каналов серия 3.407.1-157 ( серия 3.407-102, 3.407-40/70 )
  • Длина 1990 мм.
  • Ширина 500 мм.
  • Высота 160 мм.
  • Вес 240 кг.
  • Объем бетона 0,1 м3
  • Геометрический объем 0,1592 м3
Цена: 2716 руб.
Подробнее
ЛК 20-10
Мотки кабельных каналов серия 3.407.1-157 ( серия 3.407-102, 3.407-40/70 )
  • Длина 1990 мм.
  • Ширина 1000 мм.
  • Высота 160 мм.
  • Вес 275 кг.
  • Объем бетона 0,11 м3
  • Геометрический объем 0,3184 м3
Цена: 2988 руб.
Подробнее
ЛК 20-5
Мотки кабельных каналов серия 3.407.1-157 ( серия 3.407-102, 3.407-40/70 )
  • Длина 1990 мм.
  • Ширина 500 мм.
  • Высота 160 мм.
  • Вес 175 кг.
  • Объем бетона 0,07 м3
  • Геометрический объем 0,1592 м3
Цена: 1901 руб.
Подробнее
УБК 1
Мотки кабельных каналов серия 3.407.1-157 ( серия 3.407-102, 3.407-40/70 )
  • Длина 1990 мм.
  • Ширина 1000 мм.
  • Высота 160 мм.
  • Вес 275 кг.
  • Объем бетона 0,11 м3
  • Геометрический объем 0,3184 м3
Цена: 2988 руб.
Подробнее
УБК 1 а
Мотки кабельных каналов серия 3.407.1-157 ( серия 3.407-102, 3.407-40/70 )
  • Длина 1990 мм.
  • Ширина 1000 мм.
  • Высота 160 мм.
  • Вес 275 кг.
  • Объем бетона 0,11 м3
  • Геометрический объем 0,3184 м3
Цена: 2988 руб.
Подробнее
УБК 1 а
Мотки кабельных каналов серия 3.407.1-157 ( серия 3.407-102, 3.407-40/70 )
  • Длина 1190 мм.
  • Ширина 1000 мм.
  • Высота 160 мм.
  • Вес 275 кг.
  • Объем бетона 0,11 м3
  • Геометрический объем 0,1904 м3
Цена: 2988 руб.
Подробнее
УБК 2
Мотки кабельных каналов серия 3.407.1-157 ( серия 3.407-102, 3.407-40/70 )
  • Длина 1990 мм.
  • Ширина 500 мм.
  • Высота 160 мм.
  • Вес 175 кг.
  • Объем бетона 0,07 м3
  • Геометрический объем 0,1592 м3
Цена: 1901 руб.
Подробнее
УБК 2 а
Мотки кабельных каналов серия 3.407.1-157 ( серия 3.407-102, 3.407-40/70 )
  • Длина 1990 мм.
  • Ширина 500 мм.
  • Высота 160 мм.
  • Вес 175 кг.
  • Объем бетона 0,07 м3
  • Геометрический объем 0,1592 м3
Цена: 1901 руб.
Подробнее
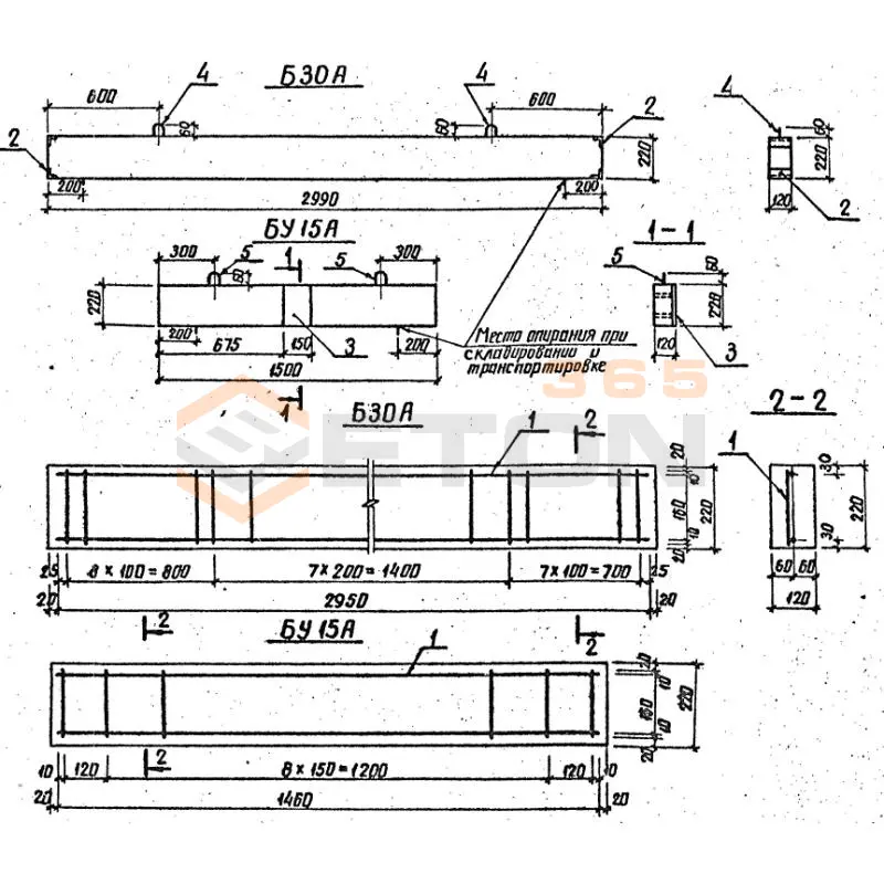
БУ 15 А
Балки Серия 3.407.1-157 ( серия 3.407-102, 3.407-40/70 )
  • Длина 1500 мм.
  • Ширина 220 мм.
  • Высота 120 мм.
  • Вес 100 кг.
  • Объем бетона 0,04 м3
  • Геометрический объем 0,0396 м3
Цена: 2716 руб.
Подробнее
Б 30 А
Балки Серия 3.407.1-157 ( серия 3.407-102, 3.407-40/70 )
  • Длина 2990 мм.
  • Ширина 220 мм.
  • Высота 120 мм.
  • Вес 200 кг.
  • Объем бетона 0,08 м3
  • Геометрический объем 0,0789 м3
Цена: 5432 руб.
Подробнее
БДЛ 40-6
Блоки дырчатые лотков кабельных каналов Серия 3.407.1-157 ( серия 3.407-102, 3.407-40/70 )
  • Длина 3950 мм.
  • Ширина 550 мм.
  • Высота 250 мм.
  • Вес 1000 кг.
  • Объем бетона 0,4 м3
  • Геометрический объем 0,5431 м3
Цена: 12804 руб.
Подробнее
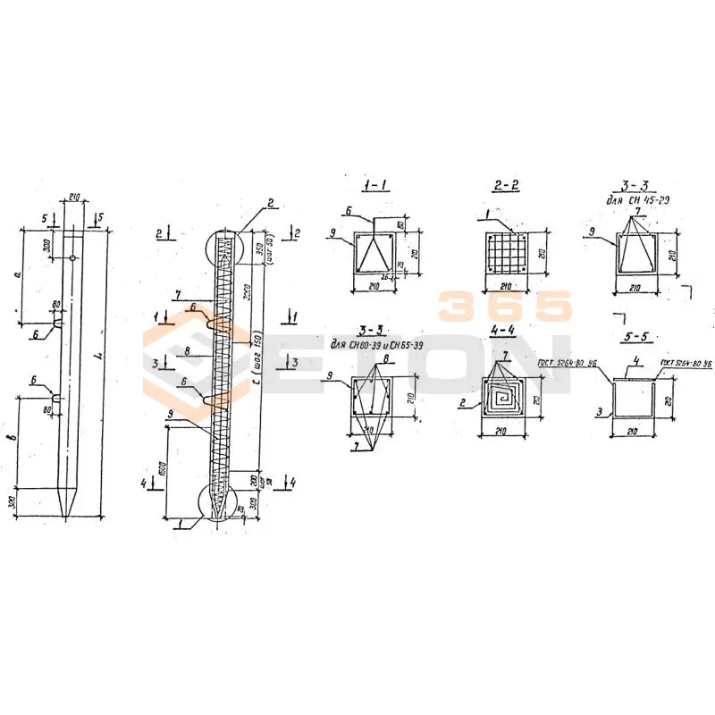
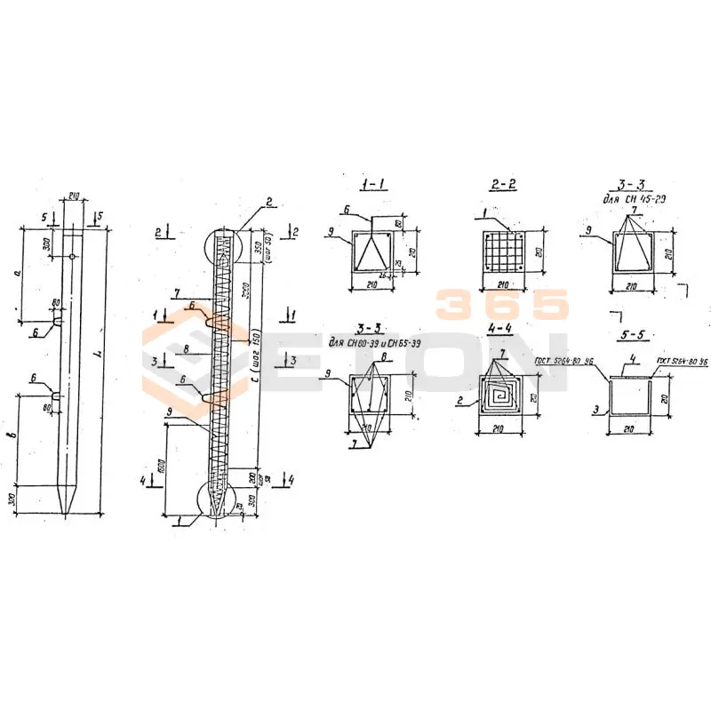
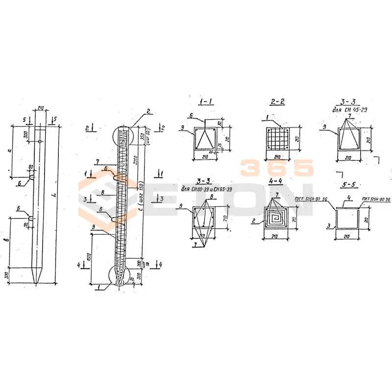
СН 45-29
Сваи предварительно напряженные СН серия 3.407.1-157 ( серия 3.407-102, 3.407-40/70 )
  • Длина 4500 мм.
  • Ширина 210 мм.
  • Высота 210 мм.
  • Вес 500 кг.
  • Объем бетона 0,2 м3
  • Геометрический объем 0,1984 м3
Цена: 4850 руб.
Подробнее
УСВ 3 а
Сваи предварительно напряженные СН серия 3.407.1-157 ( серия 3.407-102, 3.407-40/70 )
  • Длина 5500 мм.
  • Ширина 250 мм.
  • Высота 250 мм.
  • Вес 825 кг.
  • Объем бетона 0,33 м3
  • Геометрический объем 0,3438 м3
Цена: 8003 руб.
Подробнее
СН 65-39
Сваи предварительно напряженные СН серия 3.407.1-157 ( серия 3.407-102, 3.407-40/70 )
  • Длина 6500 мм.
  • Ширина 210 мм.
  • Высота 210 мм.
  • Вес 750 кг.
  • Объем бетона 0,3 м3
  • Геометрический объем 0,2867 м3
Цена: 7275 руб.
Подробнее
УСВ 3
Сваи предварительно напряженные СН серия 3.407.1-157 ( серия 3.407-102, 3.407-40/70 )
  • Длина 5500 мм.
  • Ширина 250 мм.
  • Высота 250 мм.
  • Вес 825 кг.
  • Объем бетона 0,33 м3
  • Геометрический объем 0,3438 м3
Цена: 8003 руб.
Подробнее
СН 80-39
Сваи предварительно напряженные СН серия 3.407.1-157 ( серия 3.407-102, 3.407-40/70 )
  • Длина 8000 мм.
  • Ширина 210 мм.
  • Высота 210 мм.
  • Вес 890 кг.
  • Объем бетона 0,36 м3
  • Геометрический объем 0,3528 м3
Цена: 8730 руб.
Подробнее
УСВ 4
Сваи предварительно напряженные СН серия 3.407.1-157 ( серия 3.407-102, 3.407-40/70 )
  • Длина 4500 мм.
  • Ширина 250 мм.
  • Высота 250 мм.
  • Вес 680 кг.
  • Объем бетона 0,27 м3
  • Геометрический объем 0,2812 м3
Цена: 6548 руб.
Подробнее
УСВ 4 а
Сваи предварительно напряженные СН серия 3.407.1-157 ( серия 3.407-102, 3.407-40/70 )
  • Длина 4500 мм.
  • Ширина 250 мм.
  • Высота 250 мм.
  • Вес 680 кг.
  • Объем бетона 0,27 м3
  • Геометрический объем 0,2812 м3
Цена: 6548 руб.
Подробнее
УСВ 5 а
Сваи предварительно напряженные СН серия 3.407.1-157 ( серия 3.407-102, 3.407-40/70 )
  • Длина 6500 мм.
  • Ширина 250 мм.
  • Высота 250 мм.
  • Вес 1000 кг.
  • Объем бетона 0,4 м3
  • Геометрический объем 0,4062 м3
Цена: 9700 руб.
Подробнее
УСВ 5
Сваи предварительно напряженные СН серия 3.407.1-157 ( серия 3.407-102, 3.407-40/70 )
  • Длина 6500 мм.
  • Ширина 250 мм.
  • Высота 250 мм.
  • Вес 1000 кг.
  • Объем бетона 0,4 м3
  • Геометрический объем 0,4062 м3
Цена: 9700 руб.
Подробнее
СОН 22-29-1
Стойки опор предварительно напряженные Серия 3.407.1-157
  • Длина 2200 мм.
  • Ширина 210 мм.
  • Высота 210 мм.
  • Вес 240 кг.
  • Объем бетона 0,1 м3
  • Геометрический объем 0,097 м3
Цена: 3977 руб.
Подробнее
СОН 22-29
Стойки опор предварительно напряженные Серия 3.407.1-157
  • Длина 2200 мм.
  • Ширина 210 мм.
  • Высота 210 мм.
  • Вес 240 кг.
  • Объем бетона 0,1 м3
  • Геометрический объем 0,097 м3
Цена: 3977 руб.
Подробнее
СОН 30-29
Стойки опор предварительно напряженные Серия 3.407.1-157
  • Длина 3000 мм.
  • Ширина 210 мм.
  • Высота 210 мм.
  • Вес 330 кг.
  • Объем бетона 0,13 м3
  • Геометрический объем 0,1323 м3
Цена: 5170 руб.
Подробнее
СОН 44-29
Стойки опор предварительно напряженные Серия 3.407.1-157
  • Длина 4400 мм.
  • Ширина 210 мм.
  • Высота 210 мм.
  • Вес 480 кг.
  • Объем бетона 0,19 м3
  • Геометрический объем 0,194 м3
Цена: 7556 руб.
Подробнее
СОН 30-29-1
Стойки опор предварительно напряженные Серия 3.407.1-157
  • Длина 3000 мм.
  • Ширина 210 мм.
  • Высота 210 мм.
  • Вес 330 кг.
  • Объем бетона 0,13 м3
  • Геометрический объем 0,1323 м3
Цена: 5170 руб.
Подробнее
СОН 52-39-1
Стойки опор предварительно напряженные Серия 3.407.1-157
  • Длина 5200 мм.
  • Ширина 210 мм.
  • Высота 210 мм.
  • Вес 580 кг.
  • Объем бетона 0,23 м3
  • Геометрический объем 0,2293 м3
Цена: 9147 руб.
Подробнее
СОН 52-39
Стойки опор предварительно напряженные Серия 3.407.1-157
  • Длина 5200 мм.
  • Ширина 210 мм.
  • Высота 210 мм.
  • Вес 580 кг.
  • Объем бетона 0,23 м3
  • Геометрический объем 0,2293 м3
Цена: 9147 руб.
Подробнее
СОН 76-39
Стойки опор предварительно напряженные Серия 3.407.1-157
  • Длина 7600 мм.
  • Ширина 210 мм.
  • Высота 210 мм.
  • Вес 850 кг.
  • Объем бетона 0,34 м3
  • Геометрический объем 0,3352 м3
Цена: 13522 руб.
Подробнее
СОН 44-29-1
Стойки опор предварительно напряженные Серия 3.407.1-157
  • Длина 4400 мм.
  • Ширина 210 мм.
  • Высота 210 мм.
  • Вес 480 кг.
  • Объем бетона 0,19 м3
  • Геометрический объем 0,194 м3
Цена: 7556 руб.
Подробнее
СОН 76-39-1
Стойки опор предварительно напряженные Серия 3.407.1-157
  • Длина 7600 мм.
  • Ширина 210 мм.
  • Высота 210 мм.
  • Вес 850 кг.
  • Объем бетона 0,34 м3
  • Геометрический объем 0,3352 м3
Цена: 13522 руб.
Подробнее
ТЖ 60-32-1
Траверсы ТЖ серия 3.407.1-157 ( серия 3.407-102, 3.407-40/70 )
  • Длина 5990 мм.
  • Ширина 300 мм.
  • Высота 350 мм.
  • Вес 1450 кг.
  • Объем бетона 0,58 м3
  • Геометрический объем 0,629 м3
Цена: 28130 руб.
Подробнее
ТЖ 60-32
Траверсы ТЖ серия 3.407.1-157 ( серия 3.407-102, 3.407-40/70 )
  • Длина 5990 мм.
  • Ширина 300 мм.
  • Высота 350 мм.
  • Вес 1450 кг.
  • Объем бетона 0,58 м3
  • Геометрический объем 0,629 м3
Цена: 28130 руб.
Подробнее
ТЖ 90-107
Траверсы ТЖ серия 3.407.1-157 ( серия 3.407-102, 3.407-40/70 )
  • Длина 8990 мм.
  • Ширина 300 мм.
  • Высота 350 мм.
  • Вес 2180 кг.
  • Объем бетона 0,86 м3
  • Геометрический объем 0,9439 м3
Цена: 41710 руб.
Подробнее
ФТ 34-102
Фундаменты цилиндрические серия 3.407.1-157 ( серия 3.407-102, 3.407-40/70 )
  • Длина 3400 мм.
  • Ширина 620 мм.
  • Высота 620 мм.
  • Вес 1640 кг.
  • Объем бетона 0,65 м3
  • Геометрический объем 1,307 м3
Цена: 17024 руб.
Подробнее
ФТ 34-250
Фундаменты цилиндрические серия 3.407.1-157 ( серия 3.407-102, 3.407-40/70 )
  • Длина 3400 мм.
  • Ширина 620 мм.
  • Высота 620 мм.
  • Вес 1200 кг.
  • Объем бетона 0,48 м3
  • Геометрический объем 1,307 м3
Цена: 12571 руб.
Подробнее
ФЦТ 1
Фундаменты цилиндрические серия 3.407.1-157 ( серия 3.407-102, 3.407-40/70 )
  • Длина 3300 мм.
  • Ширина 560 мм.
  • Высота 560 мм.
  • Вес 1240 кг.
  • Объем бетона 0,49 м3
  • Геометрический объем 1,0349 м3
Цена: 12833 руб.
Подробнее
ФЦТ 2
Фундаменты цилиндрические серия 3.407.1-157 ( серия 3.407-102, 3.407-40/70 )
  • Длина 3500 мм.
  • Ширина 560 мм.
  • Высота 560 мм.
  • Вес 1080 кг.
  • Объем бетона 0,43 м3
  • Геометрический объем 1,0976 м3
Цена: 11262 руб.
Подробнее

Уведомление о файлах cookie

Мы используем файлы cookie для улучшения вашего опыта просмотра и анализа трафика. Нажимая "Принять все", вы соглашаетесь с нашей политикой конфиденциальности и политикой обработки файлов cookie.

MAX Дзен Телеграм Вконтакте vk