mobile_sound +7 (930) 655-55-90

Унифицированные железобетонные изделия подстанций (Серия 3.407-102)

Поделиться:
Поделиться:

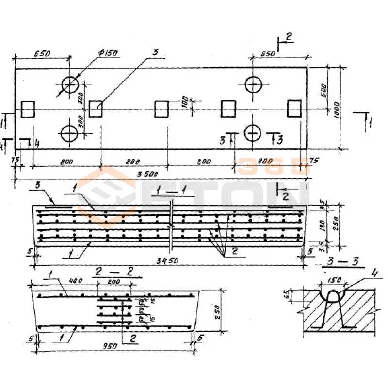
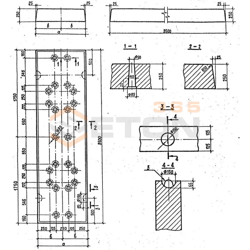
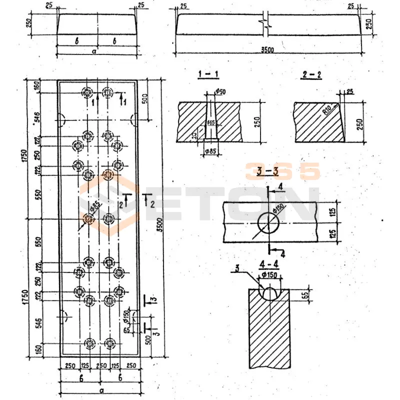
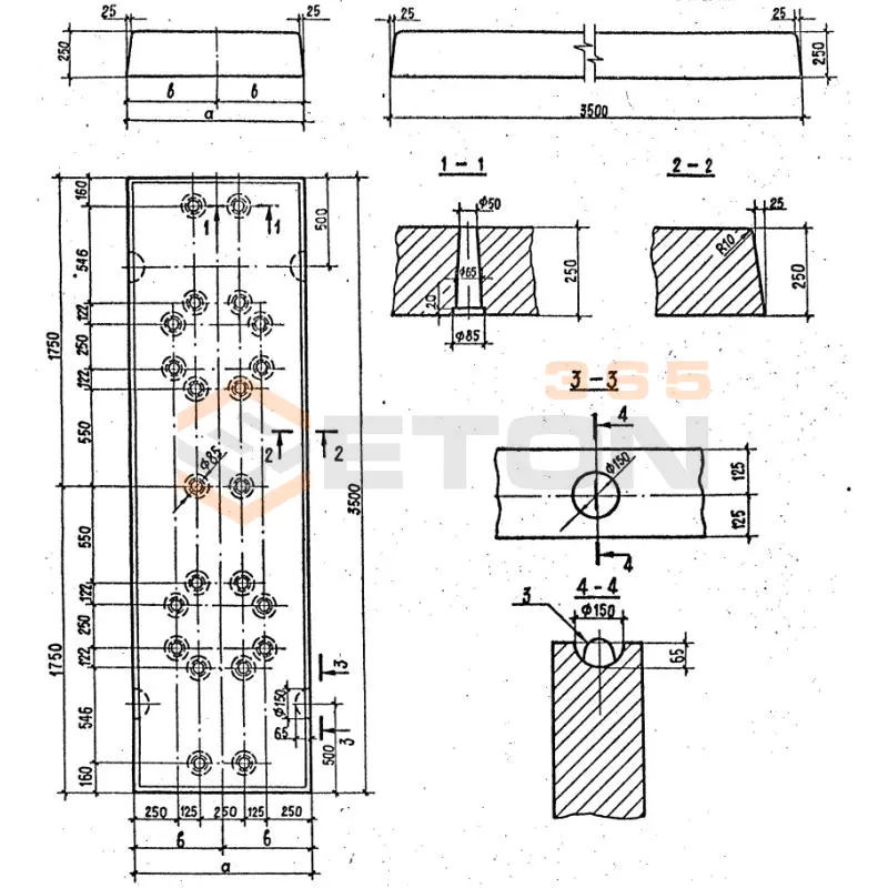
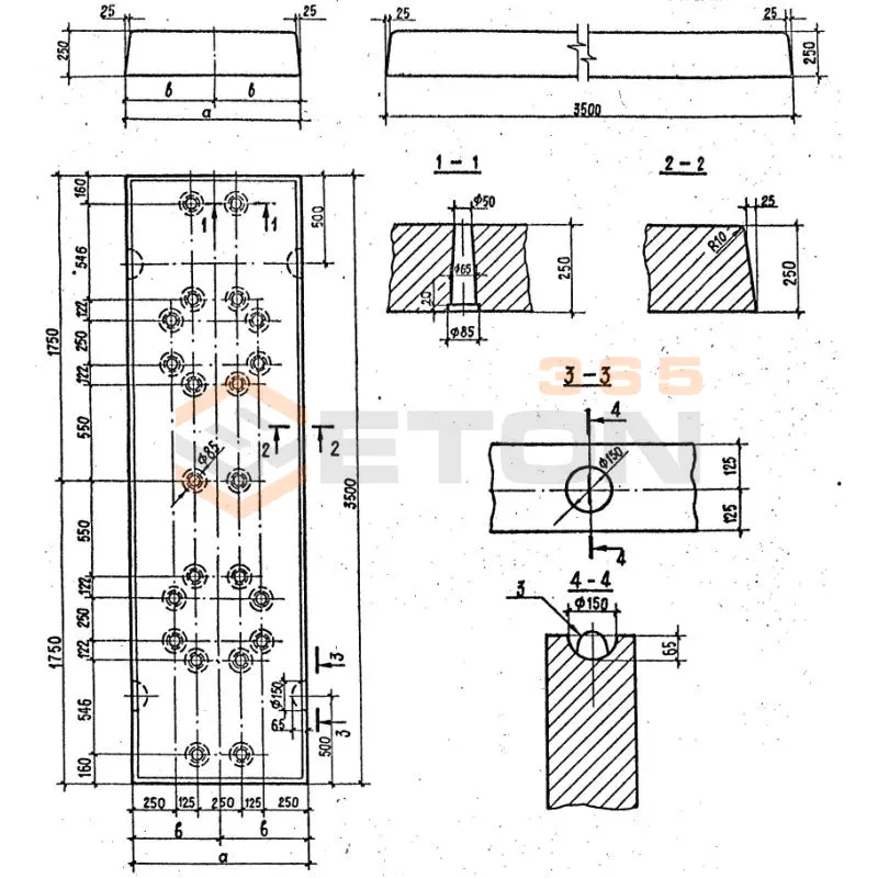
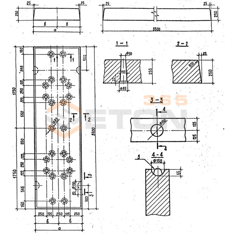
Документ Серия 3.407-102 описывает область применения, номенклатуру и ключевые требования, опираясь на действующие нормы и практику проектирования. Серия 3.407-102 определяет и регламентирует рабочие чертежи унифицированных железобетонных конструкций, которые интенсивно используются при возведении подстанций 35-500 кВ. В регламенте перечислены фундаменты, анкерные плиты, бруски, карнизные плиты, колонны, лотки, сваи, стойки и другие конструкции с подробным описанием производственного процесса. К каждой марке прилагаются спецификации, отражающие расход входящего в состав сырья для подсчетов материалоемкости.

Файлы для скачивания:
picture_as_pdf

1550.pdf

20,209.2 KB

скачать
Товары Серия 3.407-102 (60)
УСО 1 а
Стойки УСО
  • Длина 5200 мм.
  • Ширина 250 мм.
  • Высота 250 мм.
  • Вес 800 кг.
  • Объем бетона 0,32 м3
  • Геометрический объем 0,325 м3
Цена: 12416 руб.
Подробнее
УСО 2 а
Стойки УСО
  • Длина 4400 мм.
  • Ширина 250 мм.
  • Высота 250 мм.
  • Вес 700 кг.
  • Объем бетона 0,27 м3
  • Геометрический объем 0,275 м3
Цена: 10476 руб.
Подробнее
УСО 3 а
Стойки УСО
  • Длина 3600 мм.
  • Ширина 250 мм.
  • Высота 250 мм.
  • Вес 600 кг.
  • Объем бетона 0,22 м3
  • Геометрический объем 0,225 м3
Цена: 8536 руб.
Подробнее
УСО 4 а
Стойки УСО
  • Длина 3000 мм.
  • Ширина 250 мм.
  • Высота 250 мм.
  • Вес 500 кг.
  • Объем бетона 0,19 м3
  • Геометрический объем 0,1875 м3
Цена: 7372 руб.
Подробнее
УСО 5 а
Стойки УСО
  • Длина 2200 мм.
  • Ширина 250 мм.
  • Высота 250 мм.
  • Вес 400 кг.
  • Объем бетона 0,14 м3
  • Геометрический объем 0,1375 м3
Цена: 5432 руб.
Подробнее
УСО 5 а-1
Стойки УСО
  • Длина 2200 мм.
  • Ширина 210 мм.
  • Высота 210 мм.
  • Вес 400 кг.
  • Объем бетона 0,14 м3
  • Геометрический объем 0,097 м3
Цена: 5432 руб.
Подробнее
К 1-1
Колонны серия 3.407.1-157 ( серия 3.407-102, 3.407-40/70 )
  • Длина 13020 мм.
  • Ширина 400 мм.
  • Высота 400 мм.
  • Вес 5950 кг.
  • Объем бетона 2,39 м3
  • Геометрический объем 2,0832 м3
Цена: 48684 руб.
Подробнее
К 3-1
Колонны серия 3.407.1-157 ( серия 3.407-102, 3.407-40/70 )
  • Длина 14220 мм.
  • Ширина 400 мм.
  • Высота 400 мм.
  • Вес 6450 кг.
  • Объем бетона 2,58 м3
  • Геометрический объем 2,2752 м3
Цена: 52555 руб.
Подробнее
К 2-1
Колонны серия 3.407.1-157 ( серия 3.407-102, 3.407-40/70 )
  • Длина 13020 мм.
  • Ширина 400 мм.
  • Высота 400 мм.
  • Вес 6800 кг.
  • Объем бетона 2,72 м3
  • Геометрический объем 2,0832 м3
Цена: 55406 руб.
Подробнее
К 4-1
Колонны серия 3.407.1-157 ( серия 3.407-102, 3.407-40/70 )
  • Длина 14220 мм.
  • Ширина 400 мм.
  • Высота 400 мм.
  • Вес 7270 кг.
  • Объем бетона 2,91 м3
  • Геометрический объем 2,2752 м3
Цена: 59277 руб.
Подробнее
ТК 13-1
Колонны серия 3.407.1-157 ( серия 3.407-102, 3.407-40/70 )
  • Длина 11230 мм.
  • Ширина 400 мм.
  • Высота 400 мм.
  • Вес 4800 кг.
  • Объем бетона 1,93 м3
  • Геометрический объем 1,7968 м3
Цена: 39314 руб.
Подробнее
ТК 36-1
Колонны серия 3.407.1-157 ( серия 3.407-102, 3.407-40/70 )
  • Длина 10170 мм.
  • Ширина 400 мм.
  • Высота 400 мм.
  • Вес 4700 кг.
  • Объем бетона 1,9 м3
  • Геометрический объем 1,6272 м3
Цена: 38703 руб.
Подробнее
ПЛ 1
Ступени Серия 3.407-102
  • Длина 1200 мм.
  • Ширина 350 мм.
  • Высота 80 мм.
  • Вес 85 кг.
  • Объем бетона 0,034 м3
  • Геометрический объем 0,0336 м3
Цена: 825 руб.
Подробнее
ПЛ 2
Ступени Серия 3.407-102
  • Длина 1200 мм.
  • Ширина 300 мм.
  • Высота 80 мм.
  • Вес 72 кг.
  • Объем бетона 0,029 м3
  • Геометрический объем 0,0288 м3
Цена: 703 руб.
Подробнее
НСП 1
Плиты НСП и ПФ и ФП серия 3.407.1-157 ( серия 3.407-102, 3.407-40/70 )
  • Длина 3500 мм.
  • Ширина 1000 мм.
  • Высота 250 мм.
  • Вес 2190 кг.
  • Объем бетона 0,88 м3
  • Геометрический объем 0,875 м3
Цена: 46094 руб.
Подробнее
НСП 1 б
Плиты НСП и ПФ и ФП серия 3.407.1-157 ( серия 3.407-102, 3.407-40/70 )
  • Длина 3500 мм.
  • Ширина 1000 мм.
  • Высота 250 мм.
  • Вес 2190 кг.
  • Объем бетона 0,88 м3
  • Геометрический объем 0,875 м3
Цена: 46094 руб.
Подробнее
НСП 12 а
Плиты НСП и ПФ и ФП серия 3.407.1-157 ( серия 3.407-102, 3.407-40/70 )
  • Длина 3500 мм.
  • Ширина 1000 мм.
  • Высота 250 мм.
  • Вес 2190 кг.
  • Объем бетона 0,88 м3
  • Геометрический объем 0,875 м3
Цена: 46094 руб.
Подробнее
НСП 1
Плиты НСП и ПФ и ФП серия 3.407.1-157 ( серия 3.407-102, 3.407-40/70 )
  • Длина 3500 мм.
  • Ширина 1000 мм.
  • Высота 250 мм.
  • Вес 2190 кг.
  • Объем бетона 0,88 м3
  • Геометрический объем 0,875 м3
Цена: 46094 руб.
Подробнее
НСП 3
Плиты НСП и ПФ и ФП серия 3.407.1-157 ( серия 3.407-102, 3.407-40/70 )
  • Длина 3500 мм.
  • Ширина 1500 мм.
  • Высота 250 мм.
  • Вес 3280 кг.
  • Объем бетона 1,31 м3
  • Геометрический объем 1,3125 м3
Цена: 68618 руб.
Подробнее
НСП 35-10
Плиты НСП и ПФ и ФП серия 3.407.1-157 ( серия 3.407-102, 3.407-40/70 )
  • Длина 3500 мм.
  • Ширина 1000 мм.
  • Высота 250 мм.
  • Вес 2190 кг.
  • Объем бетона 0,88 м3
  • Геометрический объем 0,875 м3
Цена: 46094 руб.
Подробнее
НСП 3 а
Плиты НСП и ПФ и ФП серия 3.407.1-157 ( серия 3.407-102, 3.407-40/70 )
  • Длина 3500 мм.
  • Ширина 1500 мм.
  • Высота 250 мм.
  • Вес 3280 кг.
  • Объем бетона 1,31 м3
  • Геометрический объем 1,3125 м3
Цена: 68618 руб.
Подробнее
НСП 3
Плиты НСП и ПФ и ФП серия 3.407.1-157 ( серия 3.407-102, 3.407-40/70 )
  • Длина 3500 мм.
  • Ширина 1500 мм.
  • Высота 250 мм.
  • Вес 3280 кг.
  • Объем бетона 1,31 м3
  • Геометрический объем 1,3125 м3
Цена: 68618 руб.
Подробнее
ПФ 35-15
Плиты НСП и ПФ и ФП серия 3.407.1-157 ( серия 3.407-102, 3.407-40/70 )
  • Длина 3500 мм.
  • Ширина 1500 мм.
  • Высота 250 мм.
  • Вес 3280 кг.
  • Объем бетона 1,31 м3
  • Геометрический объем 1,3125 м3
Цена: 68618 руб.
Подробнее
НСП 5
Плиты НСП и ПФ и ФП серия 3.407.1-157 ( серия 3.407-102, 3.407-40/70 )
  • Длина 1000 мм.
  • Ширина 1000 мм.
  • Высота 250 мм.
  • Вес 625 кг.
  • Объем бетона 0,25 м3
  • Геометрический объем 0,25 м3
Цена: 13095 руб.
Подробнее
НСП 35-15
Плиты НСП и ПФ и ФП серия 3.407.1-157 ( серия 3.407-102, 3.407-40/70 )
  • Длина 3500 мм.
  • Ширина 1500 мм.
  • Высота 250 мм.
  • Вес 3280 кг.
  • Объем бетона 1,31 м3
  • Геометрический объем 1,3125 м3
Цена: 68618 руб.
Подробнее
ПФ 35-10
Плиты НСП и ПФ и ФП серия 3.407.1-157 ( серия 3.407-102, 3.407-40/70 )
  • Длина 3500 мм.
  • Ширина 1000 мм.
  • Высота 250 мм.
  • Вес 2190 кг.
  • Объем бетона 0,88 м3
  • Геометрический объем 0,875 м3
Цена: 46094 руб.
Подробнее
ФП 2
Плиты НСП и ПФ и ФП серия 3.407.1-157 ( серия 3.407-102, 3.407-40/70 )
  • Длина 3500 мм.
  • Ширина 500 мм.
  • Высота 500 мм.
  • Вес 850 кг.
  • Объем бетона 0,34 м3
  • Геометрический объем 0,875 м3
Цена: 17809 руб.
Подробнее
ФП 3
Плиты НСП и ПФ и ФП серия 3.407.1-157 ( серия 3.407-102, 3.407-40/70 )
  • Длина 2300 мм.
  • Ширина 500 мм.
  • Высота 500 мм.
  • Вес 625 кг.
  • Объем бетона 0,25 м3
  • Геометрический объем 0,575 м3
Цена: 13095 руб.
Подробнее
ФП 3
Плиты НСП и ПФ и ФП серия 3.407.1-157 ( серия 3.407-102, 3.407-40/70 )
  • Длина 2300 мм.
  • Ширина 500 мм.
  • Высота 500 мм.
  • Вес 625 кг.
  • Объем бетона 0,25 м3
  • Геометрический объем 0,575 м3
Цена: 13095 руб.
Подробнее
ФП 2
Плиты НСП и ПФ и ФП серия 3.407.1-157 ( серия 3.407-102, 3.407-40/70 )
  • Длина 3500 мм.
  • Ширина 500 мм.
  • Высота 500 мм.
  • Вес 850 кг.
  • Объем бетона 0,34 м3
  • Геометрический объем 0,875 м3
Цена: 17809 руб.
Подробнее
АП 5
Анкерные плиты серия 3.407-102 (3.407-40/70)
  • Длина 4300 мм.
  • Ширина 2700 мм.
  • Высота 600 мм.
  • Вес 7250 кг.
  • Объем бетона 2,9 м3
  • Геометрический объем 6,966 м3
Цена: 40789 руб.
Подробнее
УП 1
Плиты УП серия 3.407.1-157 ( серия 3.407-102, 3.407-40/70 )
  • Длина 900 мм.
  • Ширина 900 мм.
  • Высота 120 мм.
  • Вес 240 кг.
  • Объем бетона 0,096 м3
  • Геометрический объем 0,0972 м3
Цена: 3259 руб.
Подробнее
СЦП 1
Стойки порталов цилиндрические центрифугированные СЦП серия 3.407.1-157 ( серия 3.407-102, 3.407-40/70 )
  • Длина 22200 мм.
  • Ширина 560 мм.
  • Высота 560 мм.
  • Вес 4850 кг.
  • Объем бетона 1,94 м3
  • Геометрический объем 6,9619 м3
Цена: 75272 руб.
Подробнее
СЦП 170-290
Стойки порталов цилиндрические центрифугированные СЦП серия 3.407.1-157 ( серия 3.407-102, 3.407-40/70 )
  • Длина 17000 мм.
  • Ширина 560 мм.
  • Высота 560 мм.
  • Вес 3700 кг.
  • Объем бетона 1,48 м3
  • Геометрический объем 5,3312 м3
Цена: 57424 руб.
Подробнее
СЦП 195-310
Стойки порталов цилиндрические центрифугированные СЦП серия 3.407.1-157 ( серия 3.407-102, 3.407-40/70 )
  • Длина 19450 мм.
  • Ширина 560 мм.
  • Высота 560 мм.
  • Вес 4250 кг.
  • Объем бетона 1,7 м3
  • Геометрический объем 6,0995 м3
Цена: 65960 руб.
Подробнее
СЦП 120-200
Стойки порталов цилиндрические центрифугированные СЦП серия 3.407.1-157 ( серия 3.407-102, 3.407-40/70 )
  • Длина 12000 мм.
  • Ширина 560 мм.
  • Высота 560 мм.
  • Вес 2600 кг.
  • Объем бетона 1,05 м3
  • Геометрический объем 3,7632 м3
Цена: 40740 руб.
Подробнее
СЦП 140-280
Стойки порталов цилиндрические центрифугированные СЦП серия 3.407.1-157 ( серия 3.407-102, 3.407-40/70 )
  • Длина 14000 мм.
  • Ширина 560 мм.
  • Высота 560 мм.
  • Вес 3050 кг.
  • Объем бетона 1,22 м3
  • Геометрический объем 4,3904 м3
Цена: 47336 руб.
Подробнее
СЦП 2
Стойки порталов цилиндрические центрифугированные СЦП серия 3.407.1-157 ( серия 3.407-102, 3.407-40/70 )
  • Длина 19450 мм.
  • Ширина 560 мм.
  • Высота 560 мм.
  • Вес 4250 кг.
  • Объем бетона 1,7 м3
  • Геометрический объем 6,0995 м3
Цена: 65960 руб.
Подробнее
СЦП 220-350
Стойки порталов цилиндрические центрифугированные СЦП серия 3.407.1-157 ( серия 3.407-102, 3.407-40/70 )
  • Длина 22200 мм.
  • Ширина 560 мм.
  • Высота 560 мм.
  • Вес 4850 кг.
  • Объем бетона 1,94 м3
  • Геометрический объем 6,9619 м3
Цена: 75272 руб.
Подробнее
СЦП 3
Стойки порталов цилиндрические центрифугированные СЦП серия 3.407.1-157 ( серия 3.407-102, 3.407-40/70 )
  • Длина 15250 мм.
  • Ширина 560 мм.
  • Высота 560 мм.
  • Вес 3390 кг.
  • Объем бетона 1,36 м3
  • Геометрический объем 4,7824 м3
Цена: 52768 руб.
Подробнее
СЦП 4
Стойки порталов цилиндрические центрифугированные СЦП серия 3.407.1-157 ( серия 3.407-102, 3.407-40/70 )
  • Длина 14000 мм.
  • Ширина 560 мм.
  • Высота 560 мм.
  • Вес 3050 кг.
  • Объем бетона 1,22 м3
  • Геометрический объем 4,3904 м3
Цена: 47336 руб.
Подробнее
ВС 1
Стойки прямоугольные вибропресованные ВС серия 3.407.1-157 ( серия 3.407-102, 3.407-40/70 )
  • Длина 9000 мм.
  • Ширина 417 мм.
  • Высота 407 мм.
  • Вес 2880 кг.
  • Объем бетона 1,15 м3
  • Геометрический объем 1,5275 м3
Цена: 44620 руб.
Подробнее
ВС 105-167
Стойки прямоугольные вибропресованные ВС серия 3.407.1-157 ( серия 3.407-102, 3.407-40/70 )
  • Длина 10500 мм.
  • Ширина 417 мм.
  • Высота 407 мм.
  • Вес 3250 кг.
  • Объем бетона 1,3 м3
  • Геометрический объем 1,782 м3
Цена: 50440 руб.
Подробнее
ВС 105-167-1
Стойки прямоугольные вибропресованные ВС серия 3.407.1-157 ( серия 3.407-102, 3.407-40/70 )
  • Длина 10500 мм.
  • Ширина 417 мм.
  • Высота 407 мм.
  • Вес 3250 кг.
  • Объем бетона 1,3 м3
  • Геометрический объем 1,782 м3
Цена: 50440 руб.
Подробнее
ВС 140-257
Стойки прямоугольные вибропресованные ВС серия 3.407.1-157 ( серия 3.407-102, 3.407-40/70 )
  • Длина 14000 мм.
  • Ширина 510 мм.
  • Высота 500 мм.
  • Вес 5150 кг.
  • Объем бетона 2,06 м3
  • Геометрический объем 3,57 м3
Цена: 79928 руб.
Подробнее
ВС 140-257-1
Стойки прямоугольные вибропресованные ВС серия 3.407.1-157 ( серия 3.407-102, 3.407-40/70 )
  • Длина 14000 мм.
  • Ширина 510 мм.
  • Высота 500 мм.
  • Вес 5150 кг.
  • Объем бетона 2,06 м3
  • Геометрический объем 3,57 м3
Цена: 79928 руб.
Подробнее
ВС 3
Стойки прямоугольные вибропресованные ВС серия 3.407.1-157 ( серия 3.407-102, 3.407-40/70 )
  • Длина 14000 мм.
  • Ширина 510 мм.
  • Высота 500 мм.
  • Вес 5150 кг.
  • Объем бетона 2,06 м3
  • Геометрический объем 3,57 м3
Цена: 79928 руб.
Подробнее
ВС 2
Стойки прямоугольные вибропресованные ВС серия 3.407.1-157 ( серия 3.407-102, 3.407-40/70 )
  • Длина 10500 мм.
  • Ширина 427 мм.
  • Высота 240 мм.
  • Вес 3250 кг.
  • Объем бетона 1,3 м3
  • Геометрический объем 1,076 м3
Цена: 50440 руб.
Подробнее
ВС 90-112
Стойки прямоугольные вибропресованные ВС серия 3.407.1-157 ( серия 3.407-102, 3.407-40/70 )
  • Длина 9000 мм.
  • Ширина 417 мм.
  • Высота 407 мм.
  • Вес 2880 кг.
  • Объем бетона 1,15 м3
  • Геометрический объем 1,5275 м3
Цена: 44620 руб.
Подробнее
ВС 90-112-1
Стойки прямоугольные вибропресованные ВС серия 3.407.1-157 ( серия 3.407-102, 3.407-40/70 )
  • Длина 9000 мм.
  • Ширина 417 мм.
  • Высота 407 мм.
  • Вес 2880 кг.
  • Объем бетона 1,15 м3
  • Геометрический объем 1,5275 м3
Цена: 44620 руб.
Подробнее
ВСЛ 1
Стойки прямоугольные вибропресованные ВС серия 3.407.1-157 ( серия 3.407-102, 3.407-40/70 )
  • Длина 9000 мм.
  • Ширина 380 мм.
  • Высота 380 мм.
  • Вес 2450 кг.
  • Объем бетона 0,98 м3
  • Геометрический объем 1,2996 м3
Цена: 38024 руб.
Подробнее
ВСЛ 2
Стойки прямоугольные вибропресованные ВС серия 3.407.1-157 ( серия 3.407-102, 3.407-40/70 )
  • Длина 10500 мм.
  • Ширина 380 мм.
  • Высота 380 мм.
  • Вес 2750 кг.
  • Объем бетона 1,1 м3
  • Геометрический объем 1,5162 м3
Цена: 42680 руб.
Подробнее
ВСЛ 3
Стойки прямоугольные вибропресованные ВС серия 3.407.1-157 ( серия 3.407-102, 3.407-40/70 )
  • Длина 12500 мм.
  • Ширина 380 мм.
  • Высота 380 мм.
  • Вес 3200 кг.
  • Объем бетона 1,28 м3
  • Геометрический объем 1,805 м3
Цена: 49664 руб.
Подробнее
ПФ 1
Фундаменты (подножники) серия 3.407.1-157 ( серия 3.407-102, 3.407-40/70 )
  • Длина 1500 мм.
  • Ширина 1500 мм.
  • Высота 2700 мм.
  • Вес 3300 кг.
  • Объем бетона 1,32 м3
  • Геометрический объем 6,075 м3
Цена: 34571 руб.
Подробнее
Ф 2 п
Фундаменты (подножники) серия 3.407.1-157 ( серия 3.407-102, 3.407-40/70 )
  • Длина 1500 мм.
  • Ширина 1500 мм.
  • Высота 2700 мм.
  • Вес 2400 кг.
  • Объем бетона 0,96 м3
  • Геометрический объем 6,075 м3
Цена: 25142 руб.
Подробнее
УБ 1
Фундаменты (подножники) серия 3.407.1-157 ( серия 3.407-102, 3.407-40/70 )
  • Длина 800 мм.
  • Ширина 800 мм.
  • Высота 400 мм.
  • Вес 300 кг.
  • Объем бетона 0,12 м3
  • Геометрический объем 0,256 м3
Цена: 3143 руб.
Подробнее
ФЖ 3-2
Фундаменты (подножники) серия 3.407.1-157 ( серия 3.407-102, 3.407-40/70 )
  • Длина 1500 мм.
  • Ширина 1500 мм.
  • Высота 650 мм.
  • Вес 2180 кг.
  • Объем бетона 0,872 м3
  • Геометрический объем 1,4625 м3
Цена: 22838 руб.
Подробнее
Ф 8-8
Фундаменты (подножники) серия 3.407.1-157 ( серия 3.407-102, 3.407-40/70 )
  • Длина 800 мм.
  • Ширина 800 мм.
  • Высота 350 мм.
  • Вес 300 кг.
  • Объем бетона 0,12 м3
  • Геометрический объем 0,224 м3
Цена: 3143 руб.
Подробнее
ФЖ 4-2
Фундаменты (подножники) серия 3.407.1-157 ( серия 3.407-102, 3.407-40/70 )
  • Длина 2100 мм.
  • Ширина 2100 мм.
  • Высота 850 мм.
  • Вес 5650 кг.
  • Объем бетона 2,26 м3
  • Геометрический объем 3,7485 м3
Цена: 59189 руб.
Подробнее
ЖБ 270-1
Шпалы и полушпалы серия 3.407.1-157 ( серия 3.407-102, 3.407-40/70 )
  • Длина 2700 мм.
  • Ширина 300 мм.
  • Высота 250 мм.
  • Вес 510 кг.
  • Объем бетона 0,2 м3
  • Геометрический объем 0,2025 м3
Цена: 6014 руб.
Подробнее

Уведомление о файлах cookie

Мы используем файлы cookie для улучшения вашего опыта просмотра и анализа трафика. Нажимая "Принять все", вы соглашаетесь с нашей политикой конфиденциальности и политикой обработки файлов cookie.

Дзен Телеграм Вконтакте vk