mobile_sound +7 (930) 655-55-90

Железобетонные опоры линий электропередачи. Рабочие чертежи (Серия 3.015-3/82)

Поделиться:
Поделиться:

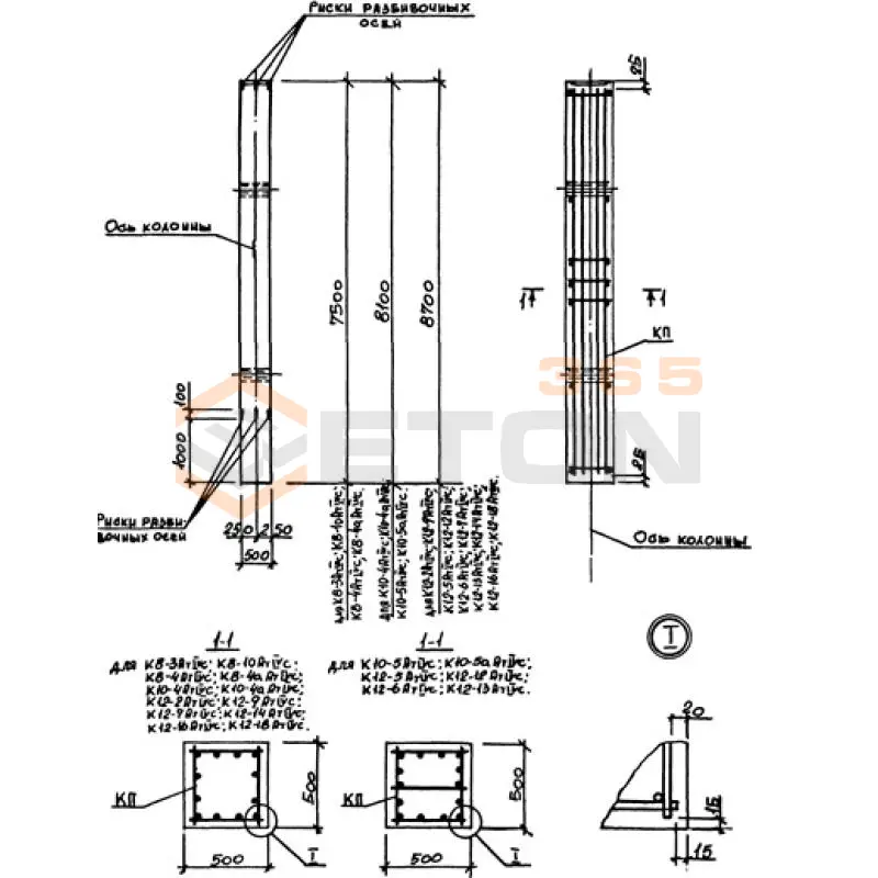
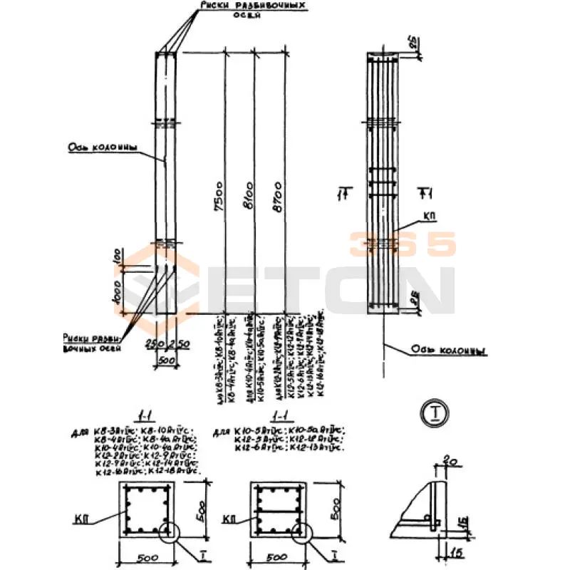
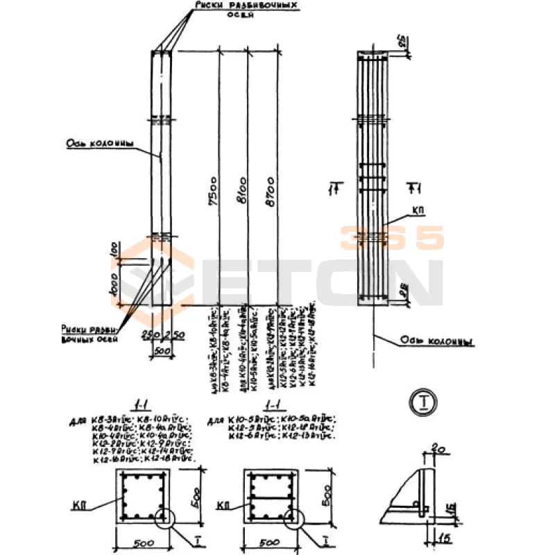
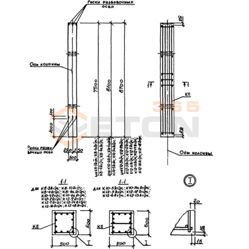
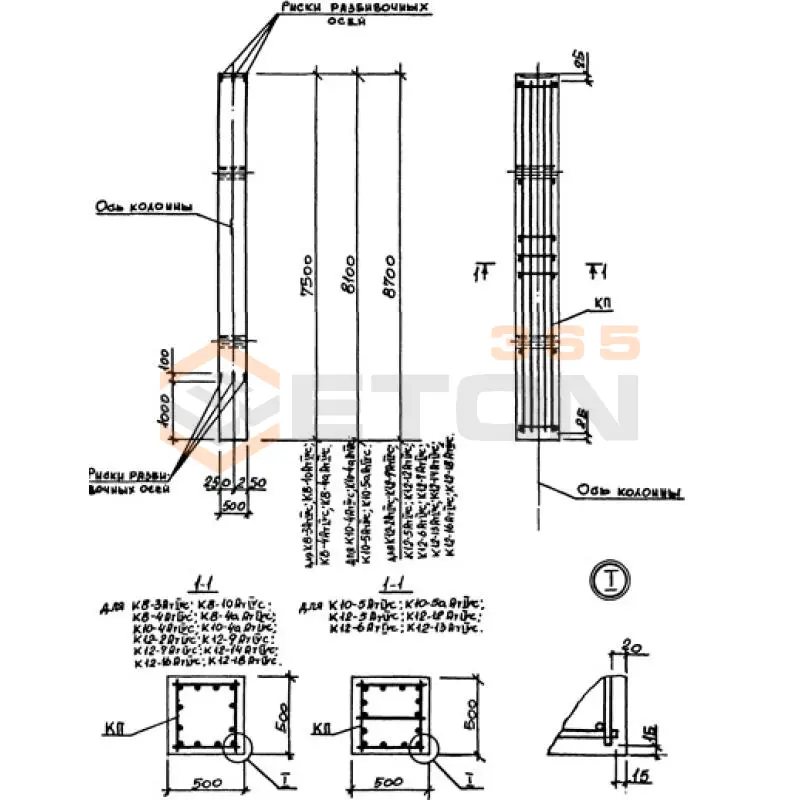
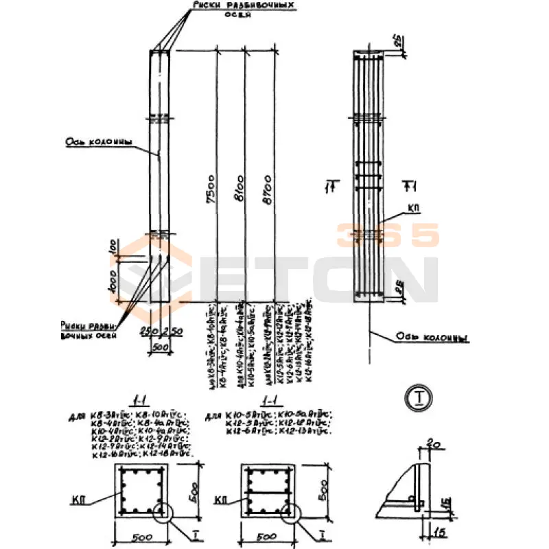
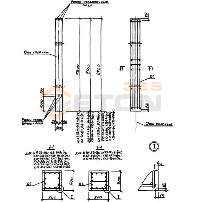
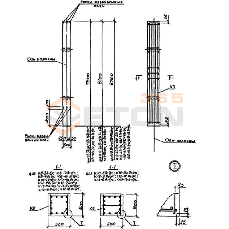
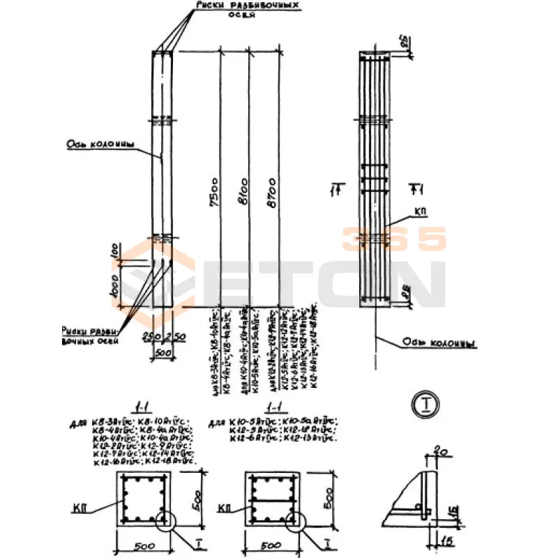
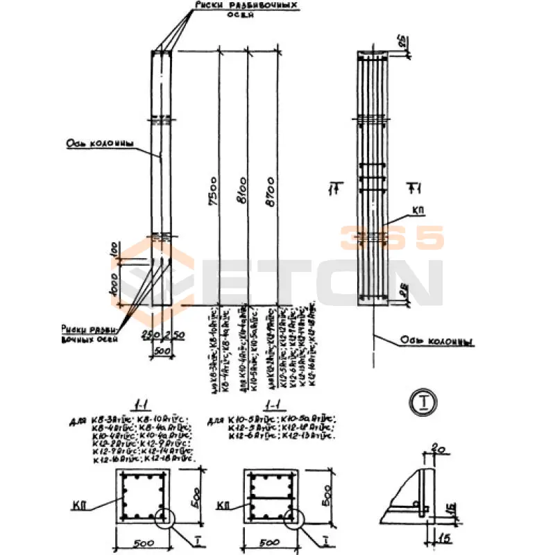
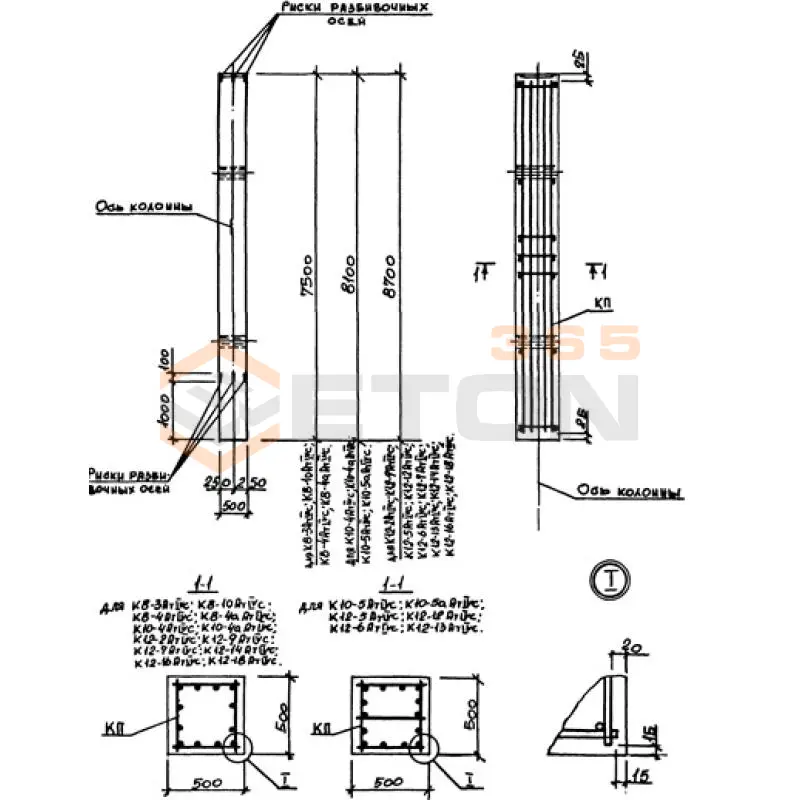
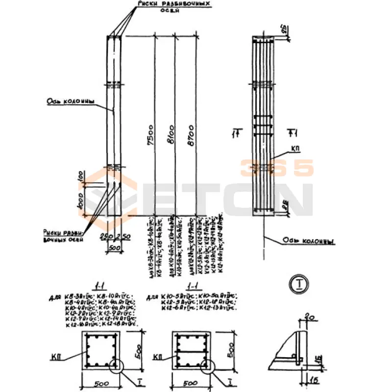
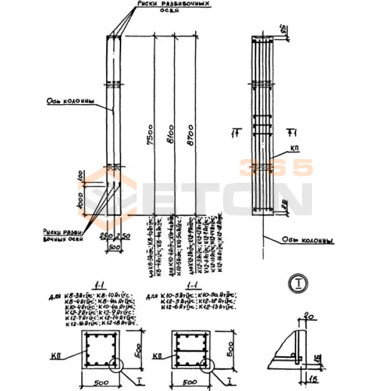
Документ Серия 3.015-3/82 описывает область применения, номенклатуру и ключевые требования, опираясь на действующие нормы и практику проектирования. Харьковским институтом ПРОМСТРОЙНИИПРОЕКТ была разработана Серия 3.015-3/82, введенная в действие с июля 1989 года по приказу Госстроя СССР. Нормативный документ заменяет собой ранее изданные аналогичные регламенты и распространяется на отражение специфики производства унифицированных изделия и конструкции под двухъярусные эстакады. Конструкции распространены в различных областях строительства при прокладке инженерных коммуникаций и технологических трубопроводах.

Файлы для скачивания:
picture_as_pdf

2370.pdf

14,626.9 KB

скачать
picture_as_pdf

2371.pdf

19,659.3 KB

скачать
picture_as_pdf

2372.pdf

16,992.8 KB

скачать
picture_as_pdf

2373.pdf

7,641.7 KB

скачать
picture_as_pdf

2374.pdf

7,046.1 KB

скачать
Товары Серия 3.015-3/82 (60)
К 1-1 АтIVс
Колонны Серия 3.015-3/82
  • Длина 5700 мм.
  • Ширина 400 мм.
  • Высота 400 мм.
  • Вес 2300 кг.
  • Объем бетона 0,91 м3
  • Геометрический объем 0,912 м3
Цена: 19419 руб.
Подробнее
К 1-11 АтIVс
Колонны Серия 3.015-3/82
  • Длина 5700 мм.
  • Ширина 400 мм.
  • Высота 400 мм.
  • Вес 2300 кг.
  • Объем бетона 0,91 м3
  • Геометрический объем 0,912 м3
Цена: 19419 руб.
Подробнее
К 1-10 АтIVс
Колонны Серия 3.015-3/82
  • Длина 5700 мм.
  • Ширина 400 мм.
  • Высота 400 мм.
  • Вес 2300 кг.
  • Объем бетона 0,91 м3
  • Геометрический объем 0,912 м3
Цена: 19419 руб.
Подробнее
К 1-12 АтIVс
Колонны Серия 3.015-3/82
  • Длина 5700 мм.
  • Ширина 400 мм.
  • Высота 400 мм.
  • Вес 2300 кг.
  • Объем бетона 0,91 м3
  • Геометрический объем 0,912 м3
Цена: 19419 руб.
Подробнее
К 1-14 АтIVс
Колонны Серия 3.015-3/82
  • Длина 5700 мм.
  • Ширина 400 мм.
  • Высота 400 мм.
  • Вес 2300 кг.
  • Объем бетона 0,91 м3
  • Геометрический объем 0,912 м3
Цена: 19419 руб.
Подробнее
К 1-13 АтIVс
Колонны Серия 3.015-3/82
  • Длина 5700 мм.
  • Ширина 400 мм.
  • Высота 400 мм.
  • Вес 2300 кг.
  • Объем бетона 0,91 м3
  • Геометрический объем 0,912 м3
Цена: 19419 руб.
Подробнее
К 1-15 АтIVс
Колонны Серия 3.015-3/82
  • Длина 5700 мм.
  • Ширина 400 мм.
  • Высота 400 мм.
  • Вес 2300 кг.
  • Объем бетона 0,91 м3
  • Геометрический объем 0,912 м3
Цена: 19419 руб.
Подробнее
К 1-17 АтIVс
Колонны Серия 3.015-3/82
  • Длина 5700 мм.
  • Ширина 400 мм.
  • Высота 400 мм.
  • Вес 2300 кг.
  • Объем бетона 0,91 м3
  • Геометрический объем 0,912 м3
Цена: 19419 руб.
Подробнее
К 1-18 АтIVс
Колонны Серия 3.015-3/82
  • Длина 5700 мм.
  • Ширина 400 мм.
  • Высота 400 мм.
  • Вес 2300 кг.
  • Объем бетона 0,91 м3
  • Геометрический объем 0,912 м3
Цена: 19419 руб.
Подробнее
К 1-16 АтIVс
Колонны Серия 3.015-3/82
  • Длина 5700 мм.
  • Ширина 400 мм.
  • Высота 400 мм.
  • Вес 2300 кг.
  • Объем бетона 0,91 м3
  • Геометрический объем 0,912 м3
Цена: 19419 руб.
Подробнее
К 1-19 АтIVс
Колонны Серия 3.015-3/82
  • Длина 5700 мм.
  • Ширина 400 мм.
  • Высота 400 мм.
  • Вес 2300 кг.
  • Объем бетона 0,91 м3
  • Геометрический объем 0,912 м3
Цена: 19419 руб.
Подробнее
К 1-2 АтIVс
Колонны Серия 3.015-3/82
  • Длина 5700 мм.
  • Ширина 400 мм.
  • Высота 400 мм.
  • Вес 2300 кг.
  • Объем бетона 0,91 м3
  • Геометрический объем 0,912 м3
Цена: 19419 руб.
Подробнее
К 1-3 АтIVс
Колонны Серия 3.015-3/82
  • Длина 5700 мм.
  • Ширина 400 мм.
  • Высота 400 мм.
  • Вес 2300 кг.
  • Объем бетона 0,91 м3
  • Геометрический объем 0,912 м3
Цена: 19419 руб.
Подробнее
К 1-6 АтIVс
Колонны Серия 3.015-3/82
  • Длина 5700 мм.
  • Ширина 400 мм.
  • Высота 400 мм.
  • Вес 2300 кг.
  • Объем бетона 0,91 м3
  • Геометрический объем 0,912 м3
Цена: 19419 руб.
Подробнее
К 1-4 АтIVс
Колонны Серия 3.015-3/82
  • Длина 5700 мм.
  • Ширина 400 мм.
  • Высота 400 мм.
  • Вес 2300 кг.
  • Объем бетона 0,91 м3
  • Геометрический объем 0,912 м3
Цена: 19419 руб.
Подробнее
К 1-5 АтIVс
Колонны Серия 3.015-3/82
  • Длина 5700 мм.
  • Ширина 400 мм.
  • Высота 400 мм.
  • Вес 2300 кг.
  • Объем бетона 0,91 м3
  • Геометрический объем 0,912 м3
Цена: 19419 руб.
Подробнее
К 1-7 АтIVс
Колонны Серия 3.015-3/82
  • Длина 5700 мм.
  • Ширина 400 мм.
  • Высота 400 мм.
  • Вес 2300 кг.
  • Объем бетона 0,91 м3
  • Геометрический объем 0,912 м3
Цена: 19419 руб.
Подробнее
К 1-4а АтIVс
Колонны Серия 3.015-3/82
  • Длина 5700 мм.
  • Ширина 400 мм.
  • Высота 400 мм.
  • Вес 2300 кг.
  • Объем бетона 0,91 м3
  • Геометрический объем 0,912 м3
Цена: 19419 руб.
Подробнее
К 1-8 АтIVс
Колонны Серия 3.015-3/82
  • Длина 5700 мм.
  • Ширина 400 мм.
  • Высота 400 мм.
  • Вес 2300 кг.
  • Объем бетона 0,91 м3
  • Геометрический объем 0,912 м3
Цена: 19419 руб.
Подробнее
К 10-2 АтIVс
Колонны Серия 3.015-3/82
  • Длина 8100 мм.
  • Ширина 500 мм.
  • Высота 500 мм.
  • Вес 5100 кг.
  • Объем бетона 2,03 м3
  • Геометрический объем 2,025 м3
Цена: 43320 руб.
Подробнее
К 1-9 АтIVс
Колонны Серия 3.015-3/82
  • Длина 5700 мм.
  • Ширина 400 мм.
  • Высота 400 мм.
  • Вес 2300 кг.
  • Объем бетона 0,91 м3
  • Геометрический объем 0,912 м3
Цена: 19419 руб.
Подробнее
К 10-1 АтIVс
Колонны Серия 3.015-3/82
  • Длина 8100 мм.
  • Ширина 500 мм.
  • Высота 500 мм.
  • Вес 5100 кг.
  • Объем бетона 2,03 м3
  • Геометрический объем 2,025 м3
Цена: 43320 руб.
Подробнее
К 10-1а АтIVс
Колонны Серия 3.015-3/82
  • Длина 8100 мм.
  • Ширина 500 мм.
  • Высота 500 мм.
  • Вес 5100 кг.
  • Объем бетона 2,03 м3
  • Геометрический объем 2,025 м3
Цена: 43320 руб.
Подробнее
К 10-2а АтIVс
Колонны Серия 3.015-3/82
  • Длина 8100 мм.
  • Ширина 500 мм.
  • Высота 500 мм.
  • Вес 5100 кг.
  • Объем бетона 2,03 м3
  • Геометрический объем 2,025 м3
Цена: 43320 руб.
Подробнее
К 10-3 АтIVс
Колонны Серия 3.015-3/82
  • Длина 8100 мм.
  • Ширина 500 мм.
  • Высота 500 мм.
  • Вес 5100 кг.
  • Объем бетона 2,03 м3
  • Геометрический объем 2,025 м3
Цена: 43320 руб.
Подробнее
К 10-5а АтIVс
Колонны Серия 3.015-3/82
  • Длина 8100 мм.
  • Ширина 500 мм.
  • Высота 500 мм.
  • Вес 5100 кг.
  • Объем бетона 2,03 м3
  • Геометрический объем 2,025 м3
Цена: 43320 руб.
Подробнее
К 10-5 АтIVс
Колонны Серия 3.015-3/82
  • Длина 8100 мм.
  • Ширина 500 мм.
  • Высота 500 мм.
  • Вес 5100 кг.
  • Объем бетона 2,03 м3
  • Геометрический объем 2,025 м3
Цена: 43320 руб.
Подробнее
К 10-4а АтIVс
Колонны Серия 3.015-3/82
  • Длина 8100 мм.
  • Ширина 500 мм.
  • Высота 500 мм.
  • Вес 5100 кг.
  • Объем бетона 2,03 м3
  • Геометрический объем 2,025 м3
Цена: 43320 руб.
Подробнее
К 10-3а АтIVс
Колонны Серия 3.015-3/82
  • Длина 8100 мм.
  • Ширина 500 мм.
  • Высота 500 мм.
  • Вес 5100 кг.
  • Объем бетона 2,03 м3
  • Геометрический объем 2,025 м3
Цена: 43320 руб.
Подробнее
К 10-6 АтIVс
Колонны Серия 3.015-3/82
  • Длина 8100 мм.
  • Ширина 500 мм.
  • Высота 500 мм.
  • Вес 5100 кг.
  • Объем бетона 2,03 м3
  • Геометрический объем 2,025 м3
Цена: 43320 руб.
Подробнее
К 10-4 АтIVс
Колонны Серия 3.015-3/82
  • Длина 8100 мм.
  • Ширина 500 мм.
  • Высота 500 мм.
  • Вес 5100 кг.
  • Объем бетона 2,03 м3
  • Геометрический объем 2,025 м3
Цена: 43320 руб.
Подробнее
К 11-1 АтIVс
Колонны Серия 3.015-3/82
  • Длина 8700 мм.
  • Ширина 500 мм.
  • Высота 400 мм.
  • Вес 4400 кг.
  • Объем бетона 1,74 м3
  • Геометрический объем 1,74 м3
Цена: 37132 руб.
Подробнее
К 10-6а АтIVс
Колонны Серия 3.015-3/82
  • Длина 8100 мм.
  • Ширина 500 мм.
  • Высота 500 мм.
  • Вес 5100 кг.
  • Объем бетона 2,03 м3
  • Геометрический объем 2,025 м3
Цена: 43320 руб.
Подробнее
К 11-2 АтIVс
Колонны Серия 3.015-3/82
  • Длина 8700 мм.
  • Ширина 500 мм.
  • Высота 400 мм.
  • Вес 4400 кг.
  • Объем бетона 1,74 м3
  • Геометрический объем 1,74 м3
Цена: 37132 руб.
Подробнее
К 11-3 АтIVс
Колонны Серия 3.015-3/82
  • Длина 8700 мм.
  • Ширина 500 мм.
  • Высота 400 мм.
  • Вес 4400 кг.
  • Объем бетона 1,74 м3
  • Геометрический объем 1,74 м3
Цена: 37132 руб.
Подробнее
К 11-4 АтIVс
Колонны Серия 3.015-3/82
  • Длина 8700 мм.
  • Ширина 500 мм.
  • Высота 400 мм.
  • Вес 4400 кг.
  • Объем бетона 1,74 м3
  • Геометрический объем 1,74 м3
Цена: 37132 руб.
Подробнее
К 11-5 АтIVс
Колонны Серия 3.015-3/82
  • Длина 8700 мм.
  • Ширина 500 мм.
  • Высота 400 мм.
  • Вес 4400 кг.
  • Объем бетона 1,74 м3
  • Геометрический объем 1,74 м3
Цена: 37132 руб.
Подробнее
К 11-7 АтIVс
Колонны Серия 3.015-3/82
  • Длина 8700 мм.
  • Ширина 500 мм.
  • Высота 400 мм.
  • Вес 4400 кг.
  • Объем бетона 1,74 м3
  • Геометрический объем 1,74 м3
Цена: 37132 руб.
Подробнее
К 11-6 АтIVс
Колонны Серия 3.015-3/82
  • Длина 8700 мм.
  • Ширина 500 мм.
  • Высота 400 мм.
  • Вес 4400 кг.
  • Объем бетона 1,74 м3
  • Геометрический объем 1,74 м3
Цена: 37132 руб.
Подробнее
К 11-8 АтIVс
Колонны Серия 3.015-3/82
  • Длина 8700 мм.
  • Ширина 500 мм.
  • Высота 400 мм.
  • Вес 4400 кг.
  • Объем бетона 1,74 м3
  • Геометрический объем 1,74 м3
Цена: 37132 руб.
Подробнее
К 12-1 АтIVс
Колонны Серия 3.015-3/82
  • Длина 8700 мм.
  • Ширина 500 мм.
  • Высота 500 мм.
  • Вес 5500 кг.
  • Объем бетона 2,18 м3
  • Геометрический объем 2,175 м3
Цена: 46521 руб.
Подробнее
К 12-10 АтIVс
Колонны Серия 3.015-3/82
  • Длина 8700 мм.
  • Ширина 500 мм.
  • Высота 500 мм.
  • Вес 5500 кг.
  • Объем бетона 2,18 м3
  • Геометрический объем 2,175 м3
Цена: 46521 руб.
Подробнее
К 12-11 АтIVс
Колонны Серия 3.015-3/82
  • Длина 8700 мм.
  • Ширина 500 мм.
  • Высота 500 мм.
  • Вес 5500 кг.
  • Объем бетона 2,18 м3
  • Геометрический объем 2,175 м3
Цена: 46521 руб.
Подробнее
К 12-12 АтIVс
Колонны Серия 3.015-3/82
  • Длина 8700 мм.
  • Ширина 500 мм.
  • Высота 500 мм.
  • Вес 5500 кг.
  • Объем бетона 2,18 м3
  • Геометрический объем 2,175 м3
Цена: 46521 руб.
Подробнее
К 12-14 АтIVс
Колонны Серия 3.015-3/82
  • Длина 8700 мм.
  • Ширина 500 мм.
  • Высота 500 мм.
  • Вес 5500 кг.
  • Объем бетона 2,18 м3
  • Геометрический объем 2,175 м3
Цена: 46521 руб.
Подробнее
К 12-13 АтIVс
Колонны Серия 3.015-3/82
  • Длина 8700 мм.
  • Ширина 500 мм.
  • Высота 500 мм.
  • Вес 5500 кг.
  • Объем бетона 2,18 м3
  • Геометрический объем 2,175 м3
Цена: 46521 руб.
Подробнее
К 12-15 АтIVс
Колонны Серия 3.015-3/82
  • Длина 8700 мм.
  • Ширина 500 мм.
  • Высота 500 мм.
  • Вес 5500 кг.
  • Объем бетона 2,18 м3
  • Геометрический объем 2,175 м3
Цена: 46521 руб.
Подробнее
К 12-16 АтIVс
Колонны Серия 3.015-3/82
  • Длина 8700 мм.
  • Ширина 500 мм.
  • Высота 500 мм.
  • Вес 5500 кг.
  • Объем бетона 2,18 м3
  • Геометрический объем 2,175 м3
Цена: 46521 руб.
Подробнее
К 12-17 АтIVс
Колонны Серия 3.015-3/82
  • Длина 8700 мм.
  • Ширина 500 мм.
  • Высота 500 мм.
  • Вес 5500 кг.
  • Объем бетона 2,18 м3
  • Геометрический объем 2,175 м3
Цена: 46521 руб.
Подробнее
К 12-18 АтIVс
Колонны Серия 3.015-3/82
  • Длина 8700 мм.
  • Ширина 500 мм.
  • Высота 500 мм.
  • Вес 5500 кг.
  • Объем бетона 2,18 м3
  • Геометрический объем 2,175 м3
Цена: 46521 руб.
Подробнее
К 12-4 АтIVс
Колонны Серия 3.015-3/82
  • Длина 8700 мм.
  • Ширина 500 мм.
  • Высота 500 мм.
  • Вес 5500 кг.
  • Объем бетона 2,18 м3
  • Геометрический объем 2,175 м3
Цена: 46521 руб.
Подробнее
К 12-2 АтIVс
Колонны Серия 3.015-3/82
  • Длина 8700 мм.
  • Ширина 500 мм.
  • Высота 500 мм.
  • Вес 5500 кг.
  • Объем бетона 2,18 м3
  • Геометрический объем 2,175 м3
Цена: 46521 руб.
Подробнее
К 12-3 АтIVс
Колонны Серия 3.015-3/82
  • Длина 8700 мм.
  • Ширина 500 мм.
  • Высота 500 мм.
  • Вес 5500 кг.
  • Объем бетона 2,18 м3
  • Геометрический объем 2,175 м3
Цена: 46521 руб.
Подробнее
К 12-5 АтIVс
Колонны Серия 3.015-3/82
  • Длина 8700 мм.
  • Ширина 500 мм.
  • Высота 500 мм.
  • Вес 5500 кг.
  • Объем бетона 2,18 м3
  • Геометрический объем 2,175 м3
Цена: 46521 руб.
Подробнее
К 12-6 АтIVс
Колонны Серия 3.015-3/82
  • Длина 8700 мм.
  • Ширина 500 мм.
  • Высота 500 мм.
  • Вес 5500 кг.
  • Объем бетона 2,18 м3
  • Геометрический объем 2,175 м3
Цена: 46521 руб.
Подробнее
К 12-7 АтIVс
Колонны Серия 3.015-3/82
  • Длина 8700 мм.
  • Ширина 500 мм.
  • Высота 500 мм.
  • Вес 5500 кг.
  • Объем бетона 2,18 м3
  • Геометрический объем 2,175 м3
Цена: 46521 руб.
Подробнее
К 12-9 АтIVс
Колонны Серия 3.015-3/82
  • Длина 8700 мм.
  • Ширина 500 мм.
  • Высота 500 мм.
  • Вес 5500 кг.
  • Объем бетона 2,18 м3
  • Геометрический объем 2,175 м3
Цена: 46521 руб.
Подробнее
К 12-8 АтIVс
Колонны Серия 3.015-3/82
  • Длина 8700 мм.
  • Ширина 500 мм.
  • Высота 500 мм.
  • Вес 5500 кг.
  • Объем бетона 2,18 м3
  • Геометрический объем 2,175 м3
Цена: 46521 руб.
Подробнее
К 13-10 АтIVс
Колонны Серия 3.015-3/82
  • Длина 5700 мм.
  • Ширина 500 мм.
  • Высота 400 мм.
  • Вес 2900 кг.
  • Объем бетона 1,14 м3
  • Геометрический объем 1,14 м3
Цена: 24328 руб.
Подробнее
К 13-1 АтIVс
Колонны Серия 3.015-3/82
  • Длина 5700 мм.
  • Ширина 500 мм.
  • Высота 400 мм.
  • Вес 2900 кг.
  • Объем бетона 1,14 м3
  • Геометрический объем 1,14 м3
Цена: 24328 руб.
Подробнее

Уведомление о файлах cookie

Мы используем файлы cookie для улучшения вашего опыта просмотра и анализа трафика. Нажимая "Принять все", вы соглашаетесь с нашей политикой конфиденциальности и политикой обработки файлов cookie.

MAX Дзен Телеграм Вконтакте vk