mobile_sound +7 (930) 655-55-90

Железобетонные опоры линий электропередачи. Рабочие чертежи (Серия 3.015-1/82)

Поделиться:
Поделиться:

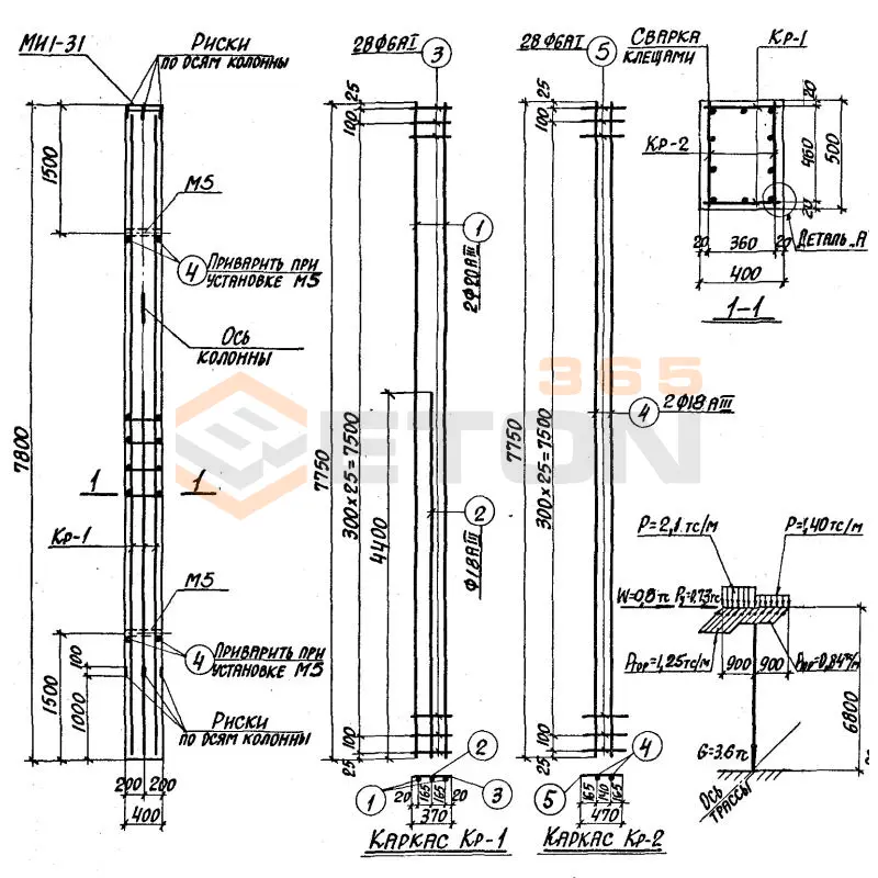
Документ Серия 3.015-1/82 описывает область применения, номенклатуру и ключевые требования, опираясь на действующие нормы и практику проектирования. Серия 3.015-1/82 является усовершенствованным и детально доработанным нормативом, в котором содержатся рабочие чертежи индустриальных отдельно стоящих опор, модернизированных в сравнении с ранее выпускаемыми изделиями. Конструкции применяются при возведении технологических трубопроводов и подразделяются на несколько типов, зависящих от величины несущей способности. Номенклатура регламента отражает большое количество вариантов геометрических пропорций строительных элементов, среди которых присутствуют колонны и траверсы, а также стальные конструкции.

Файлы для скачивания:
picture_as_pdf

1450.pdf

13,224.5 KB

скачать
picture_as_pdf

1451.pdf

17,734.4 KB

скачать
picture_as_pdf

1452.pdf

19,604.7 KB

скачать
picture_as_pdf

1453.pdf

15,452.9 KB

скачать
picture_as_pdf

1454.pdf

12,300.2 KB

скачать
picture_as_pdf

1455.pdf

11,964.1 KB

скачать
picture_as_pdf

1456.pdf

13,298.3 KB

скачать
picture_as_pdf

1457.pdf

18,519.4 KB

скачать
picture_as_pdf

1458.pdf

31,553.2 KB

скачать
picture_as_pdf

1459.pdf

3,167.7 KB

скачать
Товары Серия 3.015-1/82 (60)
К 1-2
Колонны Серия 3.015-1/82
  • Длина 6200 мм.
  • Ширина 300 мм.
  • Высота 300 мм.
  • Вес 1400 кг.
  • Объем бетона 0,56 м3
  • Геометрический объем 0,558 м3
Цена: 11950 руб.
Подробнее
К 1-1
Колонны Серия 3.015-1/82
  • Длина 6200 мм.
  • Ширина 300 мм.
  • Высота 300 мм.
  • Вес 1400 кг.
  • Объем бетона 0,56 м3
  • Геометрический объем 0,558 м3
Цена: 11950 руб.
Подробнее
К 1-4
Колонны Серия 3.015-1/82
  • Длина 6200 мм.
  • Ширина 300 мм.
  • Высота 300 мм.
  • Вес 1400 кг.
  • Объем бетона 0,56 м3
  • Геометрический объем 0,558 м3
Цена: 11950 руб.
Подробнее
К 1-3
Колонны Серия 3.015-1/82
  • Длина 6200 мм.
  • Ширина 300 мм.
  • Высота 300 мм.
  • Вес 1400 кг.
  • Объем бетона 0,56 м3
  • Геометрический объем 0,558 м3
Цена: 11950 руб.
Подробнее
К 1-5
Колонны Серия 3.015-1/82
  • Длина 6200 мм.
  • Ширина 300 мм.
  • Высота 300 мм.
  • Вес 1400 кг.
  • Объем бетона 0,56 м3
  • Геометрический объем 0,558 м3
Цена: 11950 руб.
Подробнее
К 1-6
Колонны Серия 3.015-1/82
  • Длина 6200 мм.
  • Ширина 300 мм.
  • Высота 300 мм.
  • Вес 1400 кг.
  • Объем бетона 0,56 м3
  • Геометрический объем 0,558 м3
Цена: 11950 руб.
Подробнее
К 10-2
Колонны Серия 3.015-1/82
  • Длина 6800 мм.
  • Ширина 400 мм.
  • Высота 400 мм.
  • Вес 3500 кг.
  • Объем бетона 1,4 м3
  • Геометрический объем 1,088 м3
Цена: 29876 руб.
Подробнее
К 10-1
Колонны Серия 3.015-1/82
  • Длина 6800 мм.
  • Ширина 400 мм.
  • Высота 400 мм.
  • Вес 3500 кг.
  • Объем бетона 1,4 м3
  • Геометрический объем 1,088 м3
Цена: 29876 руб.
Подробнее
К 10-4
Колонны Серия 3.015-1/82
  • Длина 6800 мм.
  • Ширина 400 мм.
  • Высота 400 мм.
  • Вес 3500 кг.
  • Объем бетона 1,4 м3
  • Геометрический объем 1,088 м3
Цена: 29876 руб.
Подробнее
К 10-3
Колонны Серия 3.015-1/82
  • Длина 6800 мм.
  • Ширина 400 мм.
  • Высота 400 мм.
  • Вес 3500 кг.
  • Объем бетона 1,4 м3
  • Геометрический объем 1,088 м3
Цена: 29876 руб.
Подробнее
К 11-1
Колонны Серия 3.015-1/82
  • Длина 6800 мм.
  • Ширина 400 мм.
  • Высота 400 мм.
  • Вес 3700 кг.
  • Объем бетона 1,48 м3
  • Геометрический объем 1,088 м3
Цена: 31583 руб.
Подробнее
К 13-3
Колонны Серия 3.015-1/82
  • Длина 7200 мм.
  • Ширина 400 мм.
  • Высота 400 мм.
  • Вес 2800 кг.
  • Объем бетона 1,15 м3
  • Геометрический объем 1,152 м3
Цена: 24541 руб.
Подробнее
К 12-1
Колонны Серия 3.015-1/82
  • Длина 6800 мм.
  • Ширина 500 мм.
  • Высота 400 мм.
  • Вес 4300 кг.
  • Объем бетона 1,72 м3
  • Геометрический объем 1,36 м3
Цена: 36705 руб.
Подробнее
К 11-2
Колонны Серия 3.015-1/82
  • Длина 6800 мм.
  • Ширина 400 мм.
  • Высота 400 мм.
  • Вес 3700 кг.
  • Объем бетона 1,48 м3
  • Геометрический объем 1,088 м3
Цена: 31583 руб.
Подробнее
К 13-1
Колонны Серия 3.015-1/82
  • Длина 7200 мм.
  • Ширина 400 мм.
  • Высота 400 мм.
  • Вес 2800 кг.
  • Объем бетона 1,15 м3
  • Геометрический объем 1,152 м3
Цена: 24541 руб.
Подробнее
К 13-2
Колонны Серия 3.015-1/82
  • Длина 7200 мм.
  • Ширина 400 мм.
  • Высота 400 мм.
  • Вес 2800 кг.
  • Объем бетона 1,15 м3
  • Геометрический объем 1,152 м3
Цена: 24541 руб.
Подробнее
К 13-7
Колонны Серия 3.015-1/82
  • Длина 7200 мм.
  • Ширина 400 мм.
  • Высота 400 мм.
  • Вес 2800 кг.
  • Объем бетона 1,15 м3
  • Геометрический объем 1,152 м3
Цена: 24541 руб.
Подробнее
К 13-8
Колонны Серия 3.015-1/82
  • Длина 7200 мм.
  • Ширина 400 мм.
  • Высота 400 мм.
  • Вес 2800 кг.
  • Объем бетона 1,15 м3
  • Геометрический объем 1,152 м3
Цена: 24541 руб.
Подробнее
К 13-6
Колонны Серия 3.015-1/82
  • Длина 7200 мм.
  • Ширина 400 мм.
  • Высота 400 мм.
  • Вес 2800 кг.
  • Объем бетона 1,15 м3
  • Геометрический объем 1,152 м3
Цена: 24541 руб.
Подробнее
К 13-5
Колонны Серия 3.015-1/82
  • Длина 7200 мм.
  • Ширина 400 мм.
  • Высота 400 мм.
  • Вес 2800 кг.
  • Объем бетона 1,15 м3
  • Геометрический объем 1,152 м3
Цена: 24541 руб.
Подробнее
К 13-4
Колонны Серия 3.015-1/82
  • Длина 7200 мм.
  • Ширина 400 мм.
  • Высота 400 мм.
  • Вес 2800 кг.
  • Объем бетона 1,15 м3
  • Геометрический объем 1,152 м3
Цена: 24541 руб.
Подробнее
К 14-1
Колонны Серия 3.015-1/82
  • Длина 7400 мм.
  • Ширина 400 мм.
  • Высота 400 мм.
  • Вес 3400 кг.
  • Объем бетона 1,37 м3
  • Геометрический объем 1,184 м3
Цена: 29236 руб.
Подробнее
К 15-1
Колонны Серия 3.015-1/82
  • Длина 7400 мм.
  • Ширина 500 мм.
  • Высота 400 мм.
  • Вес 4100 кг.
  • Объем бетона 1,65 м3
  • Геометрический объем 1,48 м3
Цена: 35211 руб.
Подробнее
К 16-1
Колонны Серия 3.015-1/82
  • Длина 7400 мм.
  • Ширина 400 мм.
  • Высота 400 мм.
  • Вес 3700 кг.
  • Объем бетона 1,49 м3
  • Геометрический объем 1,184 м3
Цена: 31797 руб.
Подробнее
К 16-2
Колонны Серия 3.015-1/82
  • Длина 7400 мм.
  • Ширина 400 мм.
  • Высота 400 мм.
  • Вес 3700 кг.
  • Объем бетона 1,49 м3
  • Геометрический объем 1,184 м3
Цена: 31797 руб.
Подробнее
К 17-1
Колонны Серия 3.015-1/82
  • Длина 7400 мм.
  • Ширина 500 мм.
  • Высота 400 мм.
  • Вес 4400 кг.
  • Объем бетона 1,76 м3
  • Геометрический объем 1,48 м3
Цена: 37558 руб.
Подробнее
К 18-1
Колонны Серия 3.015-1/82
  • Длина 7400 мм.
  • Ширина 400 мм.
  • Высота 400 мм.
  • Вес 4000 кг.
  • Объем бетона 1,59 м3
  • Геометрический объем 1,184 м3
Цена: 33931 руб.
Подробнее
К 18-2
Колонны Серия 3.015-1/82
  • Длина 7400 мм.
  • Ширина 400 мм.
  • Высота 400 мм.
  • Вес 4000 кг.
  • Объем бетона 1,59 м3
  • Геометрический объем 1,184 м3
Цена: 33931 руб.
Подробнее
К 19-1
Колонны Серия 3.015-1/82
  • Длина 7400 мм.
  • Ширина 500 мм.
  • Высота 400 мм.
  • Вес 4600 кг.
  • Объем бетона 1,84 м3
  • Геометрический объем 1,48 м3
Цена: 39266 руб.
Подробнее
К 2-1
Колонны Серия 3.015-1/82
  • Длина 6000 мм.
  • Ширина 400 мм.
  • Высота 400 мм.
  • Вес 2400 кг.
  • Объем бетона 0,96 м3
  • Геометрический объем 0,96 м3
Цена: 20486 руб.
Подробнее
К 2-3
Колонны Серия 3.015-1/82
  • Длина 6000 мм.
  • Ширина 400 мм.
  • Высота 400 мм.
  • Вес 2400 кг.
  • Объем бетона 0,96 м3
  • Геометрический объем 0,96 м3
Цена: 20486 руб.
Подробнее
К 2-4
Колонны Серия 3.015-1/82
  • Длина 6000 мм.
  • Ширина 400 мм.
  • Высота 400 мм.
  • Вес 2400 кг.
  • Объем бетона 0,96 м3
  • Геометрический объем 0,96 м3
Цена: 20486 руб.
Подробнее
К 2-2
Колонны Серия 3.015-1/82
  • Длина 6000 мм.
  • Ширина 400 мм.
  • Высота 400 мм.
  • Вес 2400 кг.
  • Объем бетона 0,96 м3
  • Геометрический объем 0,96 м3
Цена: 20486 руб.
Подробнее
К 20-1
Колонны Серия 3.015-1/82
  • Длина 7800 мм.
  • Ширина 400 мм.
  • Высота 400 мм.
  • Вес 3100 кг.
  • Объем бетона 1,25 м3
  • Геометрический объем 1,248 м3
Цена: 26675 руб.
Подробнее
К 20-3
Колонны Серия 3.015-1/82
  • Длина 7800 мм.
  • Ширина 400 мм.
  • Высота 400 мм.
  • Вес 3100 кг.
  • Объем бетона 1,25 м3
  • Геометрический объем 1,248 м3
Цена: 26675 руб.
Подробнее
К 20-2
Колонны Серия 3.015-1/82
  • Длина 7800 мм.
  • Ширина 400 мм.
  • Высота 400 мм.
  • Вес 3100 кг.
  • Объем бетона 1,25 м3
  • Геометрический объем 1,248 м3
Цена: 26675 руб.
Подробнее
К 20-6
Колонны Серия 3.015-1/82
  • Длина 7800 мм.
  • Ширина 400 мм.
  • Высота 400 мм.
  • Вес 3100 кг.
  • Объем бетона 1,25 м3
  • Геометрический объем 1,248 м3
Цена: 26675 руб.
Подробнее
К 20-5
Колонны Серия 3.015-1/82
  • Длина 7800 мм.
  • Ширина 400 мм.
  • Высота 400 мм.
  • Вес 3100 кг.
  • Объем бетона 1,25 м3
  • Геометрический объем 1,248 м3
Цена: 26675 руб.
Подробнее
К 20-7
Колонны Серия 3.015-1/82
  • Длина 7800 мм.
  • Ширина 400 мм.
  • Высота 400 мм.
  • Вес 3100 кг.
  • Объем бетона 1,25 м3
  • Геометрический объем 1,248 м3
Цена: 26675 руб.
Подробнее
К 20-4
Колонны Серия 3.015-1/82
  • Длина 7800 мм.
  • Ширина 400 мм.
  • Высота 400 мм.
  • Вес 3100 кг.
  • Объем бетона 1,25 м3
  • Геометрический объем 1,248 м3
Цена: 26675 руб.
Подробнее
К 20-8
Колонны Серия 3.015-1/82
  • Длина 7800 мм.
  • Ширина 400 мм.
  • Высота 400 мм.
  • Вес 3100 кг.
  • Объем бетона 1,25 м3
  • Геометрический объем 1,248 м3
Цена: 26675 руб.
Подробнее
К 21-1
Колонны Серия 3.015-1/82
  • Длина 7800 мм.
  • Ширина 400 мм.
  • Высота 500 мм.
  • Вес 3900 кг.
  • Объем бетона 1,56 м3
  • Геометрический объем 1,56 м3
Цена: 33290 руб.
Подробнее
К 21-2
Колонны Серия 3.015-1/82
  • Длина 7800 мм.
  • Ширина 400 мм.
  • Высота 500 мм.
  • Вес 3900 кг.
  • Объем бетона 1,56 м3
  • Геометрический объем 1,56 м3
Цена: 33290 руб.
Подробнее
К 22-2
Колонны Серия 3.015-1/82
  • Длина 8000 мм.
  • Ширина 500 мм.
  • Высота 400 мм.
  • Вес 4400 кг.
  • Объем бетона 1,75 м3
  • Геометрический объем 1,6 м3
Цена: 37345 руб.
Подробнее
К 22-1
Колонны Серия 3.015-1/82
  • Длина 8000 мм.
  • Ширина 500 мм.
  • Высота 400 мм.
  • Вес 4400 кг.
  • Объем бетона 1,75 м3
  • Геометрический объем 1,6 м3
Цена: 37345 руб.
Подробнее
К 21-3
Колонны Серия 3.015-1/82
  • Длина 7800 мм.
  • Ширина 400 мм.
  • Высота 500 мм.
  • Вес 3900 кг.
  • Объем бетона 1,56 м3
  • Геометрический объем 1,56 м3
Цена: 33290 руб.
Подробнее
К 23-2
Колонны Серия 3.015-1/82
  • Длина 8000 мм.
  • Ширина 500 мм.
  • Высота 400 мм.
  • Вес 4700 кг.
  • Объем бетона 1,88 м3
  • Геометрический объем 1,6 м3
Цена: 40119 руб.
Подробнее
К 23-3
Колонны Серия 3.015-1/82
  • Длина 8000 мм.
  • Ширина 500 мм.
  • Высота 400 мм.
  • Вес 4700 кг.
  • Объем бетона 1,88 м3
  • Геометрический объем 1,6 м3
Цена: 40119 руб.
Подробнее
К 23-1
Колонны Серия 3.015-1/82
  • Длина 8000 мм.
  • Ширина 500 мм.
  • Высота 400 мм.
  • Вес 4700 кг.
  • Объем бетона 1,88 м3
  • Геометрический объем 1,6 м3
Цена: 40119 руб.
Подробнее
К 24-1
Колонны Серия 3.015-1/82
  • Длина 8000 мм.
  • Ширина 400 мм.
  • Высота 400 мм.
  • Вес 4200 кг.
  • Объем бетона 1,67 м3
  • Геометрический объем 1,28 м3
Цена: 35638 руб.
Подробнее
К 24-3
Колонны Серия 3.015-1/82
  • Длина 8000 мм.
  • Ширина 400 мм.
  • Высота 400 мм.
  • Вес 4200 кг.
  • Объем бетона 1,67 м3
  • Геометрический объем 1,28 м3
Цена: 35638 руб.
Подробнее
К 24-2
Колонны Серия 3.015-1/82
  • Длина 8000 мм.
  • Ширина 400 мм.
  • Высота 400 мм.
  • Вес 4200 кг.
  • Объем бетона 1,67 м3
  • Геометрический объем 1,28 м3
Цена: 35638 руб.
Подробнее
К 25-4
Колонны Серия 3.015-1/82
  • Длина 8400 мм.
  • Ширина 400 мм.
  • Высота 400 мм.
  • Вес 3400 кг.
  • Объем бетона 1,35 м3
  • Геометрический объем 1,344 м3
Цена: 28809 руб.
Подробнее
К 25-3
Колонны Серия 3.015-1/82
  • Длина 8400 мм.
  • Ширина 400 мм.
  • Высота 400 мм.
  • Вес 3400 кг.
  • Объем бетона 1,35 м3
  • Геометрический объем 1,344 м3
Цена: 28809 руб.
Подробнее
К 25-2
Колонны Серия 3.015-1/82
  • Длина 8400 мм.
  • Ширина 400 мм.
  • Высота 400 мм.
  • Вес 3400 кг.
  • Объем бетона 1,35 м3
  • Геометрический объем 1,344 м3
Цена: 28809 руб.
Подробнее
К 25-1
Колонны Серия 3.015-1/82
  • Длина 8400 мм.
  • Ширина 400 мм.
  • Высота 400 мм.
  • Вес 3400 кг.
  • Объем бетона 1,35 м3
  • Геометрический объем 1,344 м3
Цена: 28809 руб.
Подробнее
К 25-6
Колонны Серия 3.015-1/82
  • Длина 8400 мм.
  • Ширина 400 мм.
  • Высота 400 мм.
  • Вес 3400 кг.
  • Объем бетона 1,35 м3
  • Геометрический объем 1,344 м3
Цена: 28809 руб.
Подробнее
К 25-5
Колонны Серия 3.015-1/82
  • Длина 8400 мм.
  • Ширина 400 мм.
  • Высота 400 мм.
  • Вес 3400 кг.
  • Объем бетона 1,35 м3
  • Геометрический объем 1,344 м3
Цена: 28809 руб.
Подробнее
К 26-1
Колонны Серия 3.015-1/82
  • Длина 8400 мм.
  • Ширина 400 мм.
  • Высота 500 мм.
  • Вес 4200 кг.
  • Объем бетона 1,68 м3
  • Геометрический объем 1,68 м3
Цена: 35851 руб.
Подробнее
К 26-3
Колонны Серия 3.015-1/82
  • Длина 8400 мм.
  • Ширина 400 мм.
  • Высота 500 мм.
  • Вес 4200 кг.
  • Объем бетона 1,68 м3
  • Геометрический объем 1,68 м3
Цена: 35851 руб.
Подробнее

Уведомление о файлах cookie

Мы используем файлы cookie для улучшения вашего опыта просмотра и анализа трафика. Нажимая "Принять все", вы соглашаетесь с нашей политикой конфиденциальности и политикой обработки файлов cookie.

MAX Дзен Телеграм Вконтакте vk