mobile_sound +7 (930) 655-55-90

Типовые конструкции и железобетонные изделия. Рабочие чертежи (Серия 1.832.1-9)

Поделиться:
Поделиться:

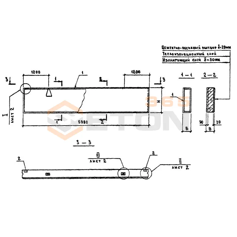
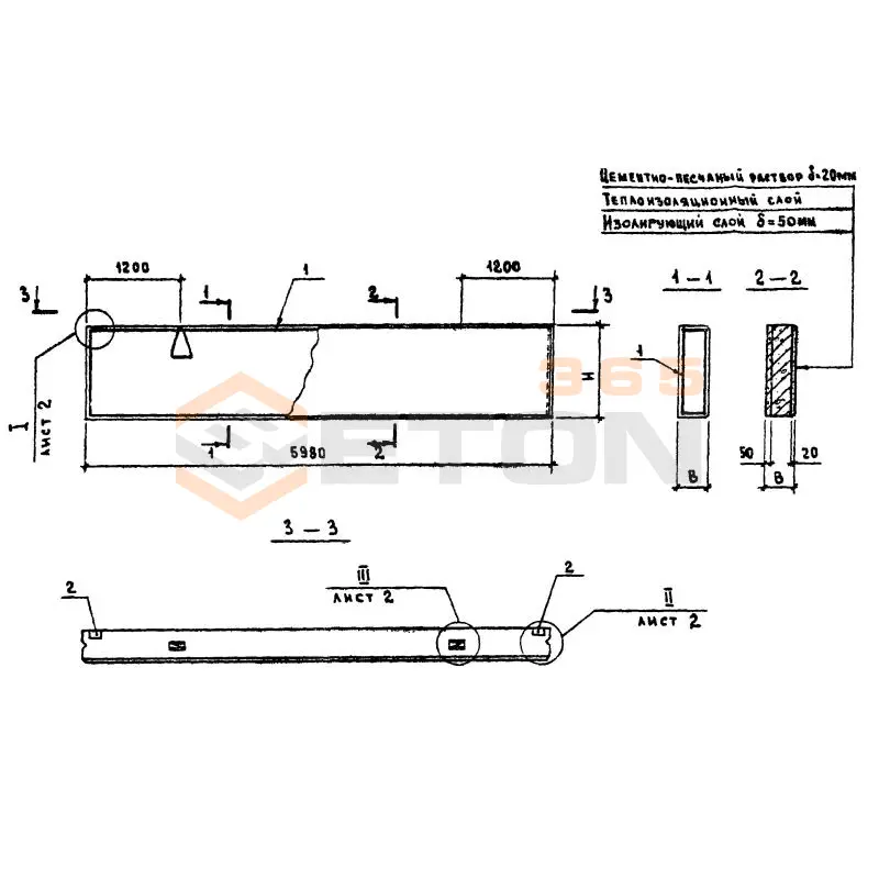
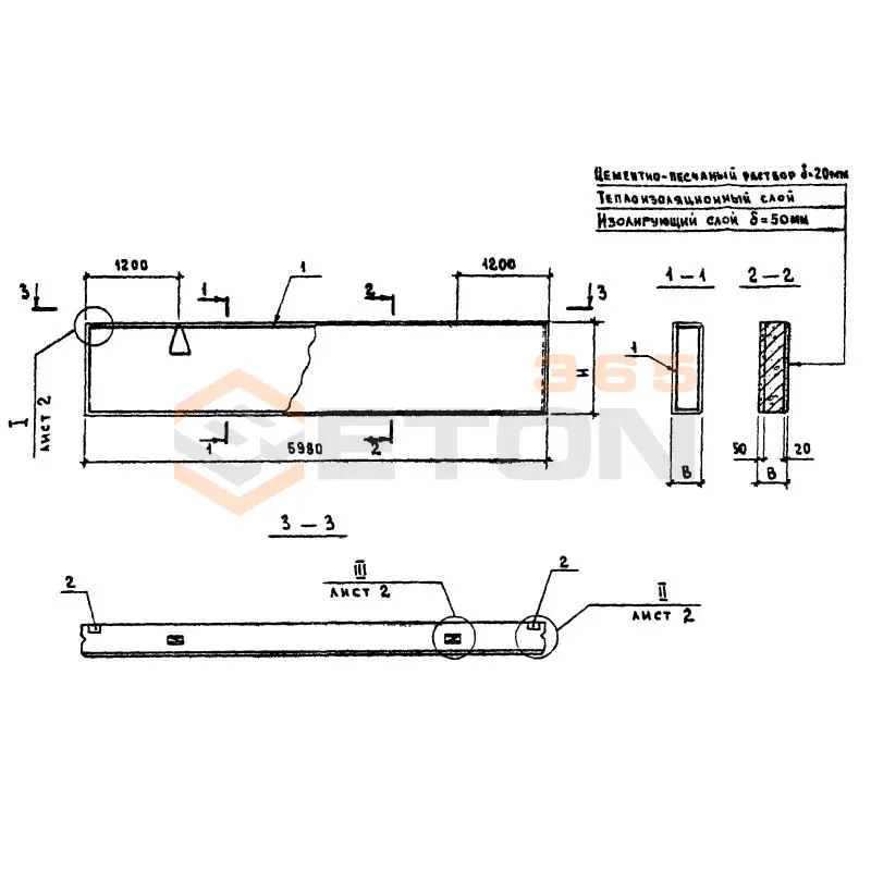
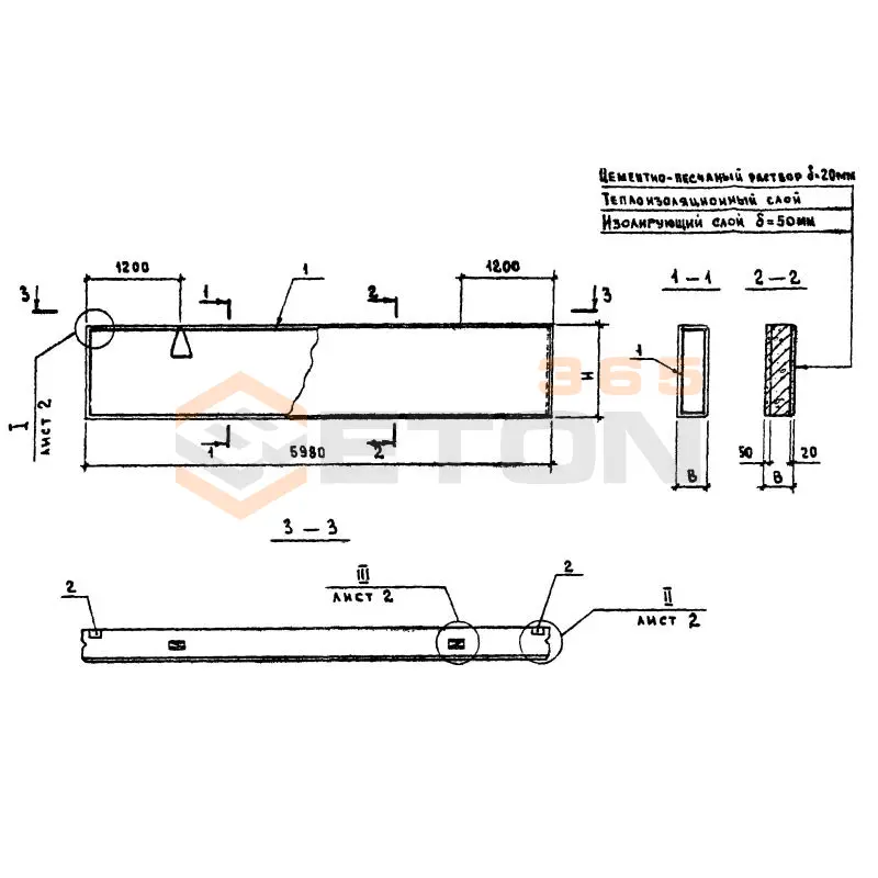
Документ Серия 1.832.1-9 описывает область применения, номенклатуру и ключевые требования, опираясь на действующие нормы и практику проектирования. Серия 1.832.1-9 состоит из трех выпусков, охватывающих рекомендации для составления проектов, чертежи опалубок, арматурные элементы и закладные детали, а также рекомендации по производству двухслойных стеновых панелей. Производство конструкций осуществляется из легкого бетона, что позволяет в значительной степени снизить общую массу готовых изделия и конструкции и упростить монтажные работы. Панели распространены в сфере сельского хозяйства и применяются в качестве элементов стен при строительстве зданий и сооружений.

Файлы для скачивания:
picture_as_pdf

1368.pdf

5,138.9 KB

скачать
picture_as_pdf

1369.pdf

8,967.1 KB

скачать
picture_as_pdf

1370.pdf

6,078.0 KB

скачать
Товары Серия 1.832.1-9 (43)
ПСД 60-18-25 у
Стеновые двухслойные панели Серия 1.832.1-9
  • Длина 6240 мм.
  • Ширина 250 мм.
  • Высота 1780 мм.
  • Вес 4300 кг.
  • Объем бетона 2,66 м3
  • Геометрический объем 2,7768 м3
Цена: 90307 руб.
Подробнее
ПСД 60-18-30
Стеновые двухслойные панели Серия 1.832.1-9
  • Длина 5980 мм.
  • Ширина 300 мм.
  • Высота 1780 мм.
  • Вес 6200 кг.
  • Объем бетона 3,19 м3
  • Геометрический объем 3,1933 м3
Цена: 108301 руб.
Подробнее
ПСД 60-18-30 у
Стеновые двухслойные панели Серия 1.832.1-9
  • Длина 6290 мм.
  • Ширина 300 мм.
  • Высота 1780 мм.
  • Вес 6200 кг.
  • Объем бетона 3,19 м3
  • Геометрический объем 3,3589 м3
Цена: 108301 руб.
Подробнее
ПСД 60-18-30 уп
Стеновые двухслойные панели Серия 1.832.1-9
  • Длина 6290 мм.
  • Ширина 300 мм.
  • Высота 1780 мм.
  • Вес 6200 кг.
  • Объем бетона 3,19 м3
  • Геометрический объем 3,3589 м3
Цена: 108301 руб.
Подробнее
ПСД 60-18-40
Стеновые двухслойные панели Серия 1.832.1-9
  • Длина 5980 мм.
  • Ширина 400 мм.
  • Высота 1780 мм.
  • Вес 8100 кг.
  • Объем бетона 4,25 м3
  • Геометрический объем 4,2578 м3
Цена: 144288 руб.
Подробнее
ПСД 60-18-40 у
Стеновые двухслойные панели Серия 1.832.1-9
  • Длина 6390 мм.
  • Ширина 400 мм.
  • Высота 1780 мм.
  • Вес 8100 кг.
  • Объем бетона 4,25 м3
  • Геометрический объем 4,5497 м3
Цена: 144288 руб.
Подробнее
ПСД 60-18-40 уп
Стеновые двухслойные панели Серия 1.832.1-9
  • Длина 6390 мм.
  • Ширина 400 мм.
  • Высота 1780 мм.
  • Вес 8100 кг.
  • Объем бетона 4,25 м3
  • Геометрический объем 4,5497 м3
Цена: 144288 руб.
Подробнее
ПСД 60-18-50
Стеновые двухслойные панели Серия 1.832.1-9
  • Длина 5980 мм.
  • Ширина 500 мм.
  • Высота 1780 мм.
  • Вес 10100 кг.
  • Объем бетона 5,32 м3
  • Геометрический объем 5,3222 м3
Цена: 180614 руб.
Подробнее
ПСД 60-18-50 у
Стеновые двухслойные панели Серия 1.832.1-9
  • Длина 6490 мм.
  • Ширина 500 мм.
  • Высота 1780 мм.
  • Вес 10100 кг.
  • Объем бетона 5,32 м3
  • Геометрический объем 5,7761 м3
Цена: 180614 руб.
Подробнее
ПСД 60-6-20
Стеновые двухслойные панели Серия 1.832.1-9
  • Длина 5980 мм.
  • Ширина 200 мм.
  • Высота 580 мм.
  • Вес 1200 кг.
  • Объем бетона 0,69 м3
  • Геометрический объем 0,6937 м3
Цена: 23426 руб.
Подробнее
ПСД 60-6-20 уп
Стеновые двухслойные панели Серия 1.832.1-9
  • Длина 6190 мм.
  • Ширина 200 мм.
  • Высота 580 мм.
  • Вес 1200 кг.
  • Объем бетона 0,69 м3
  • Геометрический объем 0,718 м3
Цена: 23426 руб.
Подробнее
ПСД 60-18-50 уп
Стеновые двухслойные панели Серия 1.832.1-9
  • Длина 6490 мм.
  • Ширина 500 мм.
  • Высота 1780 мм.
  • Вес 10100 кг.
  • Объем бетона 5,32 м3
  • Геометрический объем 5,7761 м3
Цена: 180614 руб.
Подробнее
ПСД 60-6-25 у
Стеновые двухслойные панели Серия 1.832.1-9
  • Длина 6240 мм.
  • Ширина 250 мм.
  • Высота 580 мм.
  • Вес 1400 кг.
  • Объем бетона 0,86 м3
  • Геометрический объем 0,9048 м3
Цена: 29197 руб.
Подробнее
ПСД 60-6-25
Стеновые двухслойные панели Серия 1.832.1-9
  • Длина 5980 мм.
  • Ширина 250 мм.
  • Высота 580 мм.
  • Вес 1400 кг.
  • Объем бетона 0,86 м3
  • Геометрический объем 0,8671 м3
Цена: 29197 руб.
Подробнее
ПСД 60-6-20 у
Стеновые двухслойные панели Серия 1.832.1-9
  • Длина 6190 мм.
  • Ширина 200 мм.
  • Высота 580 мм.
  • Вес 1200 кг.
  • Объем бетона 0,69 м3
  • Геометрический объем 0,718 м3
Цена: 23426 руб.
Подробнее
ПСД 60-6-30 у
Стеновые двухслойные панели Серия 1.832.1-9
  • Длина 6290 мм.
  • Ширина 300 мм.
  • Высота 580 мм.
  • Вес 2000 кг.
  • Объем бетона 1,04 м3
  • Геометрический объем 1,0945 м3
Цена: 35308 руб.
Подробнее
ПСД 60-6-30
Стеновые двухслойные панели Серия 1.832.1-9
  • Длина 5980 мм.
  • Ширина 300 мм.
  • Высота 580 мм.
  • Вес 2000 кг.
  • Объем бетона 1,04 м3
  • Геометрический объем 1,0405 м3
Цена: 35308 руб.
Подробнее
ПСД 60-6-25 уп
Стеновые двухслойные панели Серия 1.832.1-9
  • Длина 6240 мм.
  • Ширина 250 мм.
  • Высота 580 мм.
  • Вес 1400 кг.
  • Объем бетона 0,86 м3
  • Геометрический объем 0,9048 м3
Цена: 29197 руб.
Подробнее
ПСД 60-6-30 уп
Стеновые двухслойные панели Серия 1.832.1-9
  • Длина 6290 мм.
  • Ширина 300 мм.
  • Высота 580 мм.
  • Вес 2000 кг.
  • Объем бетона 1,04 м3
  • Геометрический объем 1,0945 м3
Цена: 35308 руб.
Подробнее
ПСД 60-6-40 у
Стеновые двухслойные панели Серия 1.832.1-9
  • Длина 6390 мм.
  • Ширина 400 мм.
  • Высота 580 мм.
  • Вес 2600 кг.
  • Объем бетона 1,38 м3
  • Геометрический объем 1,4825 м3
Цена: 46851 руб.
Подробнее
ПСД 60-6-40 уп
Стеновые двухслойные панели Серия 1.832.1-9
  • Длина 6390 мм.
  • Ширина 400 мм.
  • Высота 580 мм.
  • Вес 2600 кг.
  • Объем бетона 1,38 м3
  • Геометрический объем 1,4825 м3
Цена: 46851 руб.
Подробнее
ПСД 60-6-40
Стеновые двухслойные панели Серия 1.832.1-9
  • Длина 5980 мм.
  • Ширина 400 мм.
  • Высота 580 мм.
  • Вес 2600 кг.
  • Объем бетона 1,38 м3
  • Геометрический объем 1,3874 м3
Цена: 46851 руб.
Подробнее
ПСД 60-6-50 у
Стеновые двухслойные панели Серия 1.832.1-9
  • Длина 6490 мм.
  • Ширина 500 мм.
  • Высота 580 мм.
  • Вес 3300 кг.
  • Объем бетона 1,73 м3
  • Геометрический объем 1,8821 м3
Цена: 58734 руб.
Подробнее
ПСД 60-6-50
Стеновые двухслойные панели Серия 1.832.1-9
  • Длина 5980 мм.
  • Ширина 500 мм.
  • Высота 580 мм.
  • Вес 3300 кг.
  • Объем бетона 1,73 м3
  • Геометрический объем 1,7342 м3
Цена: 58734 руб.
Подробнее
ПСД 60-6-50 уп
Стеновые двухслойные панели Серия 1.832.1-9
  • Длина 6490 мм.
  • Ширина 500 мм.
  • Высота 580 мм.
  • Вес 3300 кг.
  • Объем бетона 1,73 м3
  • Геометрический объем 1,8821 м3
Цена: 58734 руб.
Подробнее
ПСД 60-9-25
Стеновые двухслойные панели Серия 1.832.1-9
  • Длина 5980 мм.
  • Ширина 250 мм.
  • Высота 880 мм.
  • Вес 2200 кг.
  • Объем бетона 1,31 м3
  • Геометрический объем 1,3156 м3
Цена: 44475 руб.
Подробнее
ПСД 60-9-20
Стеновые двухслойные панели Серия 1.832.1-9
  • Длина 5980 мм.
  • Ширина 200 мм.
  • Высота 880 мм.
  • Вес 1800 кг.
  • Объем бетона 1,05 м3
  • Геометрический объем 1,0525 м3
Цена: 35648 руб.
Подробнее
ПСД 60-9-20 у
Стеновые двухслойные панели Серия 1.832.1-9
  • Длина 6190 мм.
  • Ширина 200 мм.
  • Высота 880 мм.
  • Вес 1800 кг.
  • Объем бетона 1,05 м3
  • Геометрический объем 1,0894 м3
Цена: 35648 руб.
Подробнее
ПСД 60-9-20 уп
Стеновые двухслойные панели Серия 1.832.1-9
  • Длина 6190 мм.
  • Ширина 200 мм.
  • Высота 880 мм.
  • Вес 1800 кг.
  • Объем бетона 1,05 м3
  • Геометрический объем 1,0894 м3
Цена: 35648 руб.
Подробнее
ПСД 60-9-25 у
Стеновые двухслойные панели Серия 1.832.1-9
  • Длина 6240 мм.
  • Ширина 250 мм.
  • Высота 880 мм.
  • Вес 2200 кг.
  • Объем бетона 1,31 м3
  • Геометрический объем 1,3728 м3
Цена: 44475 руб.
Подробнее
ПСД 60-9-25 уп
Стеновые двухслойные панели Серия 1.832.1-9
  • Длина 6240 мм.
  • Ширина 250 мм.
  • Высота 880 мм.
  • Вес 2200 кг.
  • Объем бетона 1,31 м3
  • Геометрический объем 1,3728 м3
Цена: 44475 руб.
Подробнее
ПСД 60-9-30
Стеновые двухслойные панели Серия 1.832.1-9
  • Длина 5980 мм.
  • Ширина 300 мм.
  • Высота 880 мм.
  • Вес 3000 кг.
  • Объем бетона 1,57 м3
  • Геометрический объем 1,5787 м3
Цена: 53302 руб.
Подробнее
ПСД 60-9-30 у
Стеновые двухслойные панели Серия 1.832.1-9
  • Длина 6290 мм.
  • Ширина 300 мм.
  • Высота 880 мм.
  • Вес 3000 кг.
  • Объем бетона 1,57 м3
  • Геометрический объем 1,6606 м3
Цена: 53302 руб.
Подробнее
ПСД 60-9-40
Стеновые двухслойные панели Серия 1.832.1-9
  • Длина 5980 мм.
  • Ширина 400 мм.
  • Высота 880 мм.
  • Вес 4000 кг.
  • Объем бетона 2,1 м3
  • Геометрический объем 2,105 м3
Цена: 71295 руб.
Подробнее
ПСД 60-9-50
Стеновые двухслойные панели Серия 1.832.1-9
  • Длина 5980 мм.
  • Ширина 500 мм.
  • Высота 880 мм.
  • Вес 5000 кг.
  • Объем бетона 2,63 м3
  • Геометрический объем 2,6312 м3
Цена: 89289 руб.
Подробнее
ПСД 60-9-30 уп
Стеновые двухслойные панели Серия 1.832.1-9
  • Длина 6290 мм.
  • Ширина 300 мм.
  • Высота 880 мм.
  • Вес 3000 кг.
  • Объем бетона 1,57 м3
  • Геометрический объем 1,6606 м3
Цена: 53302 руб.
Подробнее
ПСД 60-9-50 уп
Стеновые двухслойные панели Серия 1.832.1-9
  • Длина 6490 мм.
  • Ширина 500 мм.
  • Высота 880 мм.
  • Вес 5000 кг.
  • Объем бетона 2,63 м3
  • Геометрический объем 2,8556 м3
Цена: 89289 руб.
Подробнее
ПСД 60-9-50 у
Стеновые двухслойные панели Серия 1.832.1-9
  • Длина 6490 мм.
  • Ширина 500 мм.
  • Высота 880 мм.
  • Вес 5000 кг.
  • Объем бетона 2,63 м3
  • Геометрический объем 2,8556 м3
Цена: 89289 руб.
Подробнее
ПСД 9-30-25
Стеновые двухслойные панели Серия 1.832.1-9
  • Длина 880 мм.
  • Ширина 250 мм.
  • Высота 2980 мм.
  • Вес 1100 кг.
  • Объем бетона 0,65 м3
  • Геометрический объем 0,6556 м3
Цена: 22068 руб.
Подробнее
ПСД 9-30-20
Стеновые двухслойные панели Серия 1.832.1-9
  • Длина 880 мм.
  • Ширина 200 мм.
  • Высота 2980 мм.
  • Вес 880 кг.
  • Объем бетона 0,52 м3
  • Геометрический объем 0,5245 м3
Цена: 17654 руб.
Подробнее
ПСД 9-30-30
Стеновые двухслойные панели Серия 1.832.1-9
  • Длина 880 мм.
  • Ширина 300 мм.
  • Высота 2980 мм.
  • Вес 1500 кг.
  • Объем бетона 0,78 м3
  • Геометрический объем 0,7867 м3
Цена: 26481 руб.
Подробнее
ПСД 9-30-40
Стеновые двухслойные панели Серия 1.832.1-9
  • Длина 880 мм.
  • Ширина 400 мм.
  • Высота 2980 мм.
  • Вес 2000 кг.
  • Объем бетона 1,04 м3
  • Геометрический объем 1,049 м3
Цена: 35308 руб.
Подробнее
ПСД 9-30-50
Стеновые двухслойные панели Серия 1.832.1-9
  • Длина 880 мм.
  • Ширина 500 мм.
  • Высота 2980 мм.
  • Вес 2500 кг.
  • Объем бетона 1,31 м3
  • Геометрический объем 1,3112 м3
Цена: 44475 руб.
Подробнее

Уведомление о файлах cookie

Мы используем файлы cookie для улучшения вашего опыта просмотра и анализа трафика. Нажимая "Принять все", вы соглашаетесь с нашей политикой конфиденциальности и политикой обработки файлов cookie.

MAX Дзен Телеграм Вконтакте vk