mobile_sound +7 (930) 655-55-90

Железобетонные опоры линий электропередачи. Рабочие чертежи (Серия 1.465.1-21.94)

Поделиться:
Поделиться:

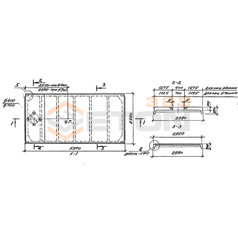
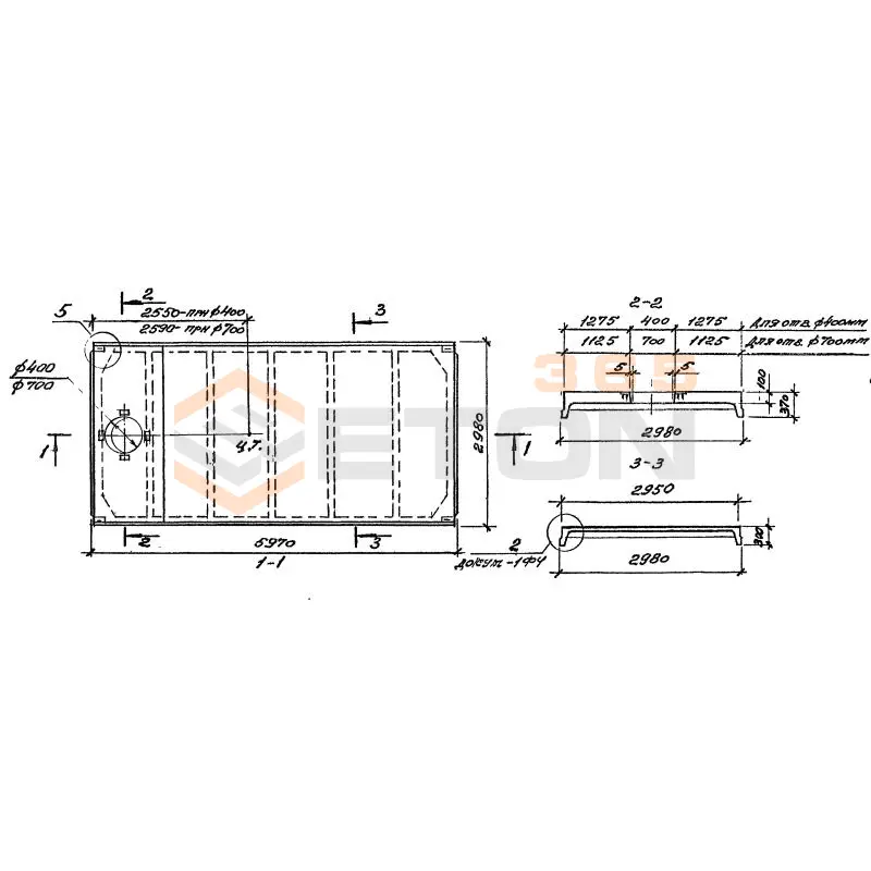
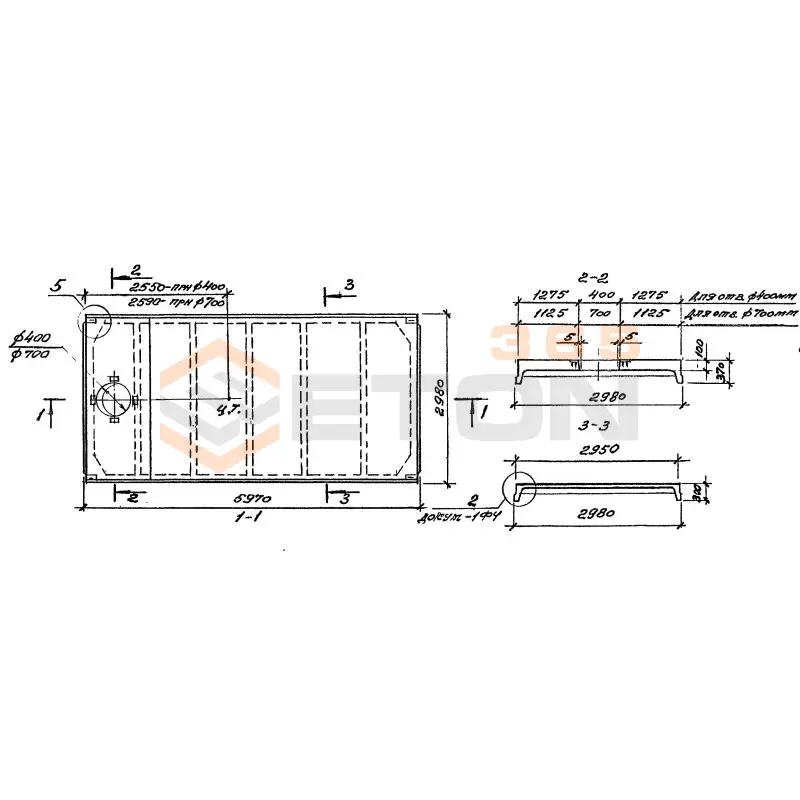
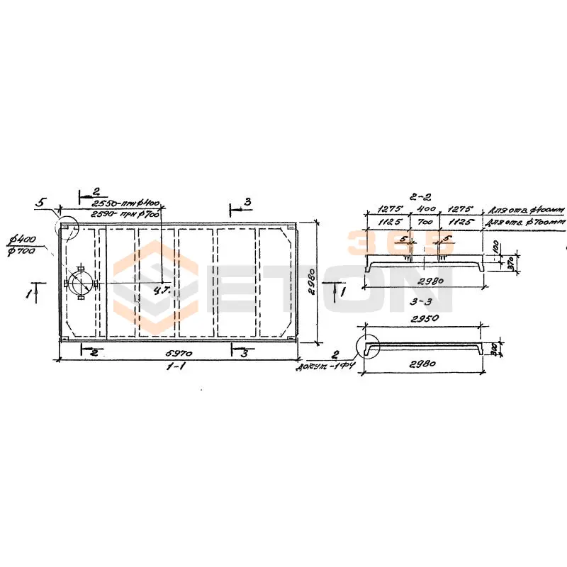
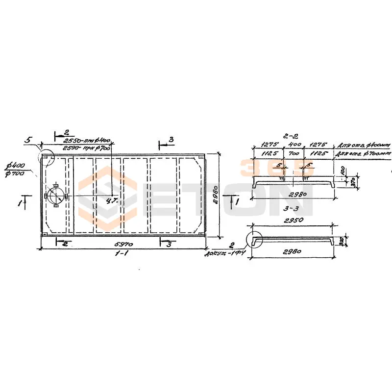
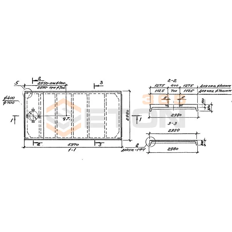
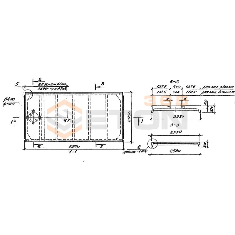
Документ Серия 1.465.1-21.94 описывает область применения, номенклатуру и ключевые требования, опираясь на действующие нормы и практику проектирования. Три выпуска Серии 1.465.1-21.94 были запроектированы институтом ЦНИИПРОМЗДАНИЙ и введены в действие, начиная с марта 1995 года. Основная задача документа отразить последовательность организации процесса производства железобетонных ребристых плит, имеющих размеры 3х6 метров. изделия и конструкции зарекомендовали себя как надежные строительные материалы, используемые при возведении одноэтажных производственных сооружений.

Файлы для скачивания:
picture_as_pdf

1319.pdf

10,098.4 KB

скачать
picture_as_pdf

1320.pdf

20,248.5 KB

скачать
picture_as_pdf

1321.pdf

5,030.2 KB

скачать
Товары Серия 1.465.1-21.94 (60)
3ПВ 6-3 АVI м-4
Плиты ребристые серия 1.465.1-21.94 ( 1.465.1-17 )
  • Длина 5970 мм.
  • Ширина 2980 мм.
  • Высота 300 мм.
  • Вес 3280 кг.
  • Объем бетона 1,31 м3
  • Геометрический объем 5,3372 м3
Цена: 40662 руб.
Подробнее
3ПВ 6-3 АVI м-10
Плиты ребристые серия 1.465.1-21.94 ( 1.465.1-17 )
  • Длина 5970 мм.
  • Ширина 2980 мм.
  • Высота 300 мм.
  • Вес 3630 кг.
  • Объем бетона 1,45 м3
  • Геометрический объем 5,3372 м3
Цена: 45008 руб.
Подробнее
3ПВ 6-3 АVI л-4
Плиты ребристые серия 1.465.1-21.94 ( 1.465.1-17 )
  • Длина 5970 мм.
  • Ширина 2980 мм.
  • Высота 300 мм.
  • Вес 2550 кг.
  • Объем бетона 1,31 м3
  • Геометрический объем 5,3372 м3
Цена: 40662 руб.
Подробнее
3ПВ 6-3 АVI-10
Плиты ребристые серия 1.465.1-21.94 ( 1.465.1-17 )
  • Длина 5970 мм.
  • Ширина 2980 мм.
  • Высота 300 мм.
  • Вес 3280 кг.
  • Объем бетона 1,31 м3
  • Геометрический объем 5,3372 м3
Цена: 40662 руб.
Подробнее
3ПВ 6-3 АVI-14
Плиты ребристые серия 1.465.1-21.94 ( 1.465.1-17 )
  • Длина 5970 мм.
  • Ширина 2980 мм.
  • Высота 300 мм.
  • Вес 3430 кг.
  • Объем бетона 1,37 м3
  • Геометрический объем 5,3372 м3
Цена: 42525 руб.
Подробнее
3ПВ 6-4 АIIIв л-14
Плиты ребристые серия 1.465.1-21.94 ( 1.465.1-17 )
  • Длина 5970 мм.
  • Ширина 2980 мм.
  • Высота 300 мм.
  • Вес 2670 кг.
  • Объем бетона 1,37 м3
  • Геометрический объем 5,3372 м3
Цена: 42525 руб.
Подробнее
3ПВ 6-3 АVI-4
Плиты ребристые серия 1.465.1-21.94 ( 1.465.1-17 )
  • Длина 5970 мм.
  • Ширина 2980 мм.
  • Высота 300 мм.
  • Вес 3280 кг.
  • Объем бетона 1,31 м3
  • Геометрический объем 5,3372 м3
Цена: 40662 руб.
Подробнее
3ПВ 6-4 АIIIв л-10
Плиты ребристые серия 1.465.1-21.94 ( 1.465.1-17 )
  • Длина 5970 мм.
  • Ширина 2980 мм.
  • Высота 300 мм.
  • Вес 2830 кг.
  • Объем бетона 1,45 м3
  • Геометрический объем 5,3372 м3
Цена: 45008 руб.
Подробнее
3ПВ 6-4 АIIIв л-14*
Плиты ребристые серия 1.465.1-21.94 ( 1.465.1-17 )
  • Длина 5970 мм.
  • Ширина 2980 мм.
  • Высота 300 мм.
  • Вес 3150 кг.
  • Объем бетона 1,37 м3
  • Геометрический объем 5,3372 м3
Цена: 42525 руб.
Подробнее
3ПВ 6-4 АIIIв л-10*
Плиты ребристые серия 1.465.1-21.94 ( 1.465.1-17 )
  • Длина 5970 мм.
  • Ширина 2980 мм.
  • Высота 300 мм.
  • Вес 3340 кг.
  • Объем бетона 1,45 м3
  • Геометрический объем 5,3372 м3
Цена: 45008 руб.
Подробнее
3ПВ 6-4 АIIIв л-4
Плиты ребристые серия 1.465.1-21.94 ( 1.465.1-17 )
  • Длина 5970 мм.
  • Ширина 2980 мм.
  • Высота 300 мм.
  • Вес 2550 кг.
  • Объем бетона 1,31 м3
  • Геометрический объем 5,3372 м3
Цена: 40662 руб.
Подробнее
3ПВ 6-4 АIIIв м-10
Плиты ребристые серия 1.465.1-21.94 ( 1.465.1-17 )
  • Длина 5970 мм.
  • Ширина 2980 мм.
  • Высота 300 мм.
  • Вес 3280 кг.
  • Объем бетона 1,31 м3
  • Геометрический объем 5,3372 м3
Цена: 40662 руб.
Подробнее
3ПВ 6-4 АIIIв-10
Плиты ребристые серия 1.465.1-21.94 ( 1.465.1-17 )
  • Длина 5970 мм.
  • Ширина 2980 мм.
  • Высота 300 мм.
  • Вес 3280 кг.
  • Объем бетона 1,31 м3
  • Геометрический объем 5,3372 м3
Цена: 40662 руб.
Подробнее
3ПВ 6-4 АIIIв м-14
Плиты ребристые серия 1.465.1-21.94 ( 1.465.1-17 )
  • Длина 5970 мм.
  • Ширина 2980 мм.
  • Высота 300 мм.
  • Вес 3430 кг.
  • Объем бетона 1,37 м3
  • Геометрический объем 5,3372 м3
Цена: 42525 руб.
Подробнее
3ПВ 6-4 АIIIв-10 н
Плиты ребристые серия 1.465.1-21.94 ( 1.465.1-17 )
  • Длина 5970 мм.
  • Ширина 2980 мм.
  • Высота 300 мм.
  • Вес 3280 кг.
  • Объем бетона 1,31 м3
  • Геометрический объем 5,3372 м3
Цена: 40662 руб.
Подробнее
3ПВ 6-4 АIIIв л-4*
Плиты ребристые серия 1.465.1-21.94 ( 1.465.1-17 )
  • Длина 5970 мм.
  • Ширина 2980 мм.
  • Высота 300 мм.
  • Вес 3010 кг.
  • Объем бетона 1,31 м3
  • Геометрический объем 5,3372 м3
Цена: 40662 руб.
Подробнее
3ПВ 6-4 АIIIв м-4
Плиты ребристые серия 1.465.1-21.94 ( 1.465.1-17 )
  • Длина 5970 мм.
  • Ширина 2980 мм.
  • Высота 300 мм.
  • Вес 3280 кг.
  • Объем бетона 1,31 м3
  • Геометрический объем 5,3372 м3
Цена: 40662 руб.
Подробнее
3ПВ 6-4 АIIIв-10 п
Плиты ребристые серия 1.465.1-21.94 ( 1.465.1-17 )
  • Длина 5970 мм.
  • Ширина 2980 мм.
  • Высота 300 мм.
  • Вес 3280 кг.
  • Объем бетона 1,31 м3
  • Геометрический объем 5,3372 м3
Цена: 40662 руб.
Подробнее
3ПВ 6-4 АIIIв-14
Плиты ребристые серия 1.465.1-21.94 ( 1.465.1-17 )
  • Длина 5970 мм.
  • Ширина 2980 мм.
  • Высота 300 мм.
  • Вес 3280 кг.
  • Объем бетона 1,31 м3
  • Геометрический объем 5,3372 м3
Цена: 40662 руб.
Подробнее
3ПВ 6-4 АIIIв-14 н
Плиты ребристые серия 1.465.1-21.94 ( 1.465.1-17 )
  • Длина 5970 мм.
  • Ширина 2980 мм.
  • Высота 300 мм.
  • Вес 3280 кг.
  • Объем бетона 1,31 м3
  • Геометрический объем 5,3372 м3
Цена: 40662 руб.
Подробнее
3ПВ 6-4 АIIIв-4 н
Плиты ребристые серия 1.465.1-21.94 ( 1.465.1-17 )
  • Длина 5970 мм.
  • Ширина 2980 мм.
  • Высота 300 мм.
  • Вес 3280 кг.
  • Объем бетона 1,31 м3
  • Геометрический объем 5,3372 м3
Цена: 40662 руб.
Подробнее
3ПВ 6-4 АIIIв-4 п
Плиты ребристые серия 1.465.1-21.94 ( 1.465.1-17 )
  • Длина 5970 мм.
  • Ширина 2980 мм.
  • Высота 300 мм.
  • Вес 3280 кг.
  • Объем бетона 1,31 м3
  • Геометрический объем 5,3372 м3
Цена: 40662 руб.
Подробнее
3ПВ 6-4 АIIIв-14 п
Плиты ребристые серия 1.465.1-21.94 ( 1.465.1-17 )
  • Длина 5970 мм.
  • Ширина 2980 мм.
  • Высота 300 мм.
  • Вес 3280 кг.
  • Объем бетона 1,31 м3
  • Геометрический объем 5,3372 м3
Цена: 40662 руб.
Подробнее
3ПВ 6-4 АIIIв-4
Плиты ребристые серия 1.465.1-21.94 ( 1.465.1-17 )
  • Длина 5970 мм.
  • Ширина 2980 мм.
  • Высота 300 мм.
  • Вес 3280 кг.
  • Объем бетона 1,31 м3
  • Геометрический объем 5,3372 м3
Цена: 40662 руб.
Подробнее
3ПВ 6-4 АIV л-10*
Плиты ребристые серия 1.465.1-21.94 ( 1.465.1-17 )
  • Длина 5970 мм.
  • Ширина 2980 мм.
  • Высота 300 мм.
  • Вес 3340 кг.
  • Объем бетона 1,45 м3
  • Геометрический объем 5,3372 м3
Цена: 45008 руб.
Подробнее
3ПВ 6-4 АIV л-10
Плиты ребристые серия 1.465.1-21.94 ( 1.465.1-17 )
  • Длина 5970 мм.
  • Ширина 2980 мм.
  • Высота 300 мм.
  • Вес 2830 кг.
  • Объем бетона 1,45 м3
  • Геометрический объем 5,3372 м3
Цена: 45008 руб.
Подробнее
3ПВ 6-4 АIV л-4*
Плиты ребристые серия 1.465.1-21.94 ( 1.465.1-17 )
  • Длина 5970 мм.
  • Ширина 2980 мм.
  • Высота 300 мм.
  • Вес 3010 кг.
  • Объем бетона 1,31 м3
  • Геометрический объем 5,3372 м3
Цена: 40662 руб.
Подробнее
3ПВ 6-4 АIV л-4
Плиты ребристые серия 1.465.1-21.94 ( 1.465.1-17 )
  • Длина 5970 мм.
  • Ширина 2980 мм.
  • Высота 300 мм.
  • Вес 2550 кг.
  • Объем бетона 1,31 м3
  • Геометрический объем 5,3372 м3
Цена: 40662 руб.
Подробнее
3ПВ 6-4 АIV м-10
Плиты ребристые серия 1.465.1-21.94 ( 1.465.1-17 )
  • Длина 5970 мм.
  • Ширина 2980 мм.
  • Высота 300 мм.
  • Вес 3630 кг.
  • Объем бетона 1,45 м3
  • Геометрический объем 5,3372 м3
Цена: 45008 руб.
Подробнее
3ПВ 6-4 АIV л-14*
Плиты ребристые серия 1.465.1-21.94 ( 1.465.1-17 )
  • Длина 5970 мм.
  • Ширина 2980 мм.
  • Высота 300 мм.
  • Вес 3150 кг.
  • Объем бетона 1,37 м3
  • Геометрический объем 5,3372 м3
Цена: 42525 руб.
Подробнее
3ПВ 6-4 АIV л-14
Плиты ребристые серия 1.465.1-21.94 ( 1.465.1-17 )
  • Длина 5970 мм.
  • Ширина 2980 мм.
  • Высота 300 мм.
  • Вес 2670 кг.
  • Объем бетона 1,37 м3
  • Геометрический объем 5,3372 м3
Цена: 42525 руб.
Подробнее
3ПВ 6-4 АIV м-14
Плиты ребристые серия 1.465.1-21.94 ( 1.465.1-17 )
  • Длина 5970 мм.
  • Ширина 2980 мм.
  • Высота 300 мм.
  • Вес 3430 кг.
  • Объем бетона 1,37 м3
  • Геометрический объем 5,3372 м3
Цена: 42525 руб.
Подробнее
3ПВ 6-4 АIV-10 п
Плиты ребристые серия 1.465.1-21.94 ( 1.465.1-17 )
  • Длина 5970 мм.
  • Ширина 2980 мм.
  • Высота 300 мм.
  • Вес 3630 кг.
  • Объем бетона 1,45 м3
  • Геометрический объем 5,3372 м3
Цена: 45008 руб.
Подробнее
3ПВ 6-4 АIV м-4
Плиты ребристые серия 1.465.1-21.94 ( 1.465.1-17 )
  • Длина 5970 мм.
  • Ширина 2980 мм.
  • Высота 300 мм.
  • Вес 3280 кг.
  • Объем бетона 1,31 м3
  • Геометрический объем 5,3372 м3
Цена: 40662 руб.
Подробнее
3ПВ 6-4 АIV-10
Плиты ребристые серия 1.465.1-21.94 ( 1.465.1-17 )
  • Длина 5970 мм.
  • Ширина 2980 мм.
  • Высота 300 мм.
  • Вес 3280 кг.
  • Объем бетона 1,31 м3
  • Геометрический объем 5,3372 м3
Цена: 40662 руб.
Подробнее
3ПВ 6-4 АIV-14 н
Плиты ребристые серия 1.465.1-21.94 ( 1.465.1-17 )
  • Длина 5970 мм.
  • Ширина 2980 мм.
  • Высота 300 мм.
  • Вес 3430 кг.
  • Объем бетона 1,37 м3
  • Геометрический объем 5,3372 м3
Цена: 42525 руб.
Подробнее
3ПВ 6-4 АIV-10 н
Плиты ребристые серия 1.465.1-21.94 ( 1.465.1-17 )
  • Длина 5970 мм.
  • Ширина 2980 мм.
  • Высота 300 мм.
  • Вес 3630 кг.
  • Объем бетона 1,45 м3
  • Геометрический объем 5,3372 м3
Цена: 45008 руб.
Подробнее
3ПВ 6-4 АIV-14
Плиты ребристые серия 1.465.1-21.94 ( 1.465.1-17 )
  • Длина 5970 мм.
  • Ширина 2980 мм.
  • Высота 300 мм.
  • Вес 3430 кг.
  • Объем бетона 1,37 м3
  • Геометрический объем 5,3372 м3
Цена: 42525 руб.
Подробнее
3ПВ 6-4 АIV-4 н
Плиты ребристые серия 1.465.1-21.94 ( 1.465.1-17 )
  • Длина 5970 мм.
  • Ширина 2980 мм.
  • Высота 300 мм.
  • Вес 3280 кг.
  • Объем бетона 1,31 м3
  • Геометрический объем 5,3372 м3
Цена: 40662 руб.
Подробнее
3ПВ 6-4 АIV-14 п
Плиты ребристые серия 1.465.1-21.94 ( 1.465.1-17 )
  • Длина 5970 мм.
  • Ширина 2980 мм.
  • Высота 300 мм.
  • Вес 3430 кг.
  • Объем бетона 1,37 м3
  • Геометрический объем 5,3372 м3
Цена: 42525 руб.
Подробнее
3ПВ 6-4 АIV-4
Плиты ребристые серия 1.465.1-21.94 ( 1.465.1-17 )
  • Длина 5970 мм.
  • Ширина 2980 мм.
  • Высота 300 мм.
  • Вес 3280 кг.
  • Объем бетона 1,31 м3
  • Геометрический объем 5,3372 м3
Цена: 40662 руб.
Подробнее
3ПВ 6-4 АIV-4 п
Плиты ребристые серия 1.465.1-21.94 ( 1.465.1-17 )
  • Длина 5970 мм.
  • Ширина 2980 мм.
  • Высота 300 мм.
  • Вес 3280 кг.
  • Объем бетона 1,31 м3
  • Геометрический объем 5,3372 м3
Цена: 40662 руб.
Подробнее
3ПВ 6-4 АV л-10*
Плиты ребристые серия 1.465.1-21.94 ( 1.465.1-17 )
  • Длина 5970 мм.
  • Ширина 2980 мм.
  • Высота 300 мм.
  • Вес 3340 кг.
  • Объем бетона 1,45 м3
  • Геометрический объем 5,3372 м3
Цена: 45008 руб.
Подробнее
3ПВ 6-4 АV л-10
Плиты ребристые серия 1.465.1-21.94 ( 1.465.1-17 )
  • Длина 5970 мм.
  • Ширина 2980 мм.
  • Высота 300 мм.
  • Вес 2830 кг.
  • Объем бетона 1,45 м3
  • Геометрический объем 5,3372 м3
Цена: 45008 руб.
Подробнее
3ПВ 6-4 АV л-14
Плиты ребристые серия 1.465.1-21.94 ( 1.465.1-17 )
  • Длина 5970 мм.
  • Ширина 2980 мм.
  • Высота 300 мм.
  • Вес 2670 кг.
  • Объем бетона 1,37 м3
  • Геометрический объем 5,3372 м3
Цена: 42525 руб.
Подробнее
3ПВ 6-4 АV л-14*
Плиты ребристые серия 1.465.1-21.94 ( 1.465.1-17 )
  • Длина 5970 мм.
  • Ширина 2980 мм.
  • Высота 300 мм.
  • Вес 3150 кг.
  • Объем бетона 1,37 м3
  • Геометрический объем 5,3372 м3
Цена: 42525 руб.
Подробнее
3ПВ 6-4 АV л-4
Плиты ребристые серия 1.465.1-21.94 ( 1.465.1-17 )
  • Длина 5970 мм.
  • Ширина 2980 мм.
  • Высота 300 мм.
  • Вес 2550 кг.
  • Объем бетона 1,31 м3
  • Геометрический объем 5,3372 м3
Цена: 40662 руб.
Подробнее
3ПВ 6-4 АV м-10
Плиты ребристые серия 1.465.1-21.94 ( 1.465.1-17 )
  • Длина 5970 мм.
  • Ширина 2980 мм.
  • Высота 300 мм.
  • Вес 3630 кг.
  • Объем бетона 1,45 м3
  • Геометрический объем 5,3372 м3
Цена: 45008 руб.
Подробнее
3ПВ 6-4 АV л-4*
Плиты ребристые серия 1.465.1-21.94 ( 1.465.1-17 )
  • Длина 5970 мм.
  • Ширина 2980 мм.
  • Высота 300 мм.
  • Вес 3010 кг.
  • Объем бетона 1,31 м3
  • Геометрический объем 5,3372 м3
Цена: 40662 руб.
Подробнее
3ПВ 6-4 АV-10
Плиты ребристые серия 1.465.1-21.94 ( 1.465.1-17 )
  • Длина 5970 мм.
  • Ширина 2980 мм.
  • Высота 300 мм.
  • Вес 3280 кг.
  • Объем бетона 1,31 м3
  • Геометрический объем 5,3372 м3
Цена: 40662 руб.
Подробнее
3ПВ 6-4 АV м-14
Плиты ребристые серия 1.465.1-21.94 ( 1.465.1-17 )
  • Длина 5970 мм.
  • Ширина 2980 мм.
  • Высота 300 мм.
  • Вес 3430 кг.
  • Объем бетона 1,37 м3
  • Геометрический объем 5,3372 м3
Цена: 42525 руб.
Подробнее
3ПВ 6-4 АV м-4
Плиты ребристые серия 1.465.1-21.94 ( 1.465.1-17 )
  • Длина 5970 мм.
  • Ширина 2980 мм.
  • Высота 300 мм.
  • Вес 3280 кг.
  • Объем бетона 1,31 м3
  • Геометрический объем 5,3372 м3
Цена: 40662 руб.
Подробнее
3ПВ 6-4 АVI м-10
Плиты ребристые серия 1.465.1-21.94 ( 1.465.1-17 )
  • Длина 5970 мм.
  • Ширина 2980 мм.
  • Высота 300 мм.
  • Вес 3630 кг.
  • Объем бетона 1,45 м3
  • Геометрический объем 5,3372 м3
Цена: 45008 руб.
Подробнее
3ПВ 6-4 АV-4
Плиты ребристые серия 1.465.1-21.94 ( 1.465.1-17 )
  • Длина 5970 мм.
  • Ширина 2980 мм.
  • Высота 300 мм.
  • Вес 3280 кг.
  • Объем бетона 1,31 м3
  • Геометрический объем 5,3372 м3
Цена: 40662 руб.
Подробнее
3ПВ 6-4 АVI м-14
Плиты ребристые серия 1.465.1-21.94 ( 1.465.1-17 )
  • Длина 5970 мм.
  • Ширина 2980 мм.
  • Высота 300 мм.
  • Вес 3430 кг.
  • Объем бетона 1,37 м3
  • Геометрический объем 5,3372 м3
Цена: 42525 руб.
Подробнее
3ПВ 6-4 АV-14
Плиты ребристые серия 1.465.1-21.94 ( 1.465.1-17 )
  • Длина 5970 мм.
  • Ширина 2980 мм.
  • Высота 300 мм.
  • Вес 3430 кг.
  • Объем бетона 1,37 м3
  • Геометрический объем 5,3372 м3
Цена: 42525 руб.
Подробнее
3ПВ 6-4 АVI-10
Плиты ребристые серия 1.465.1-21.94 ( 1.465.1-17 )
  • Длина 5970 мм.
  • Ширина 2980 мм.
  • Высота 300 мм.
  • Вес 3280 кг.
  • Объем бетона 1,31 м3
  • Геометрический объем 5,3372 м3
Цена: 40662 руб.
Подробнее
3ПВ 6-4 АVI м-4
Плиты ребристые серия 1.465.1-21.94 ( 1.465.1-17 )
  • Длина 5970 мм.
  • Ширина 2980 мм.
  • Высота 300 мм.
  • Вес 3280 кг.
  • Объем бетона 1,31 м3
  • Геометрический объем 5,3372 м3
Цена: 40662 руб.
Подробнее
3ПВ 6-4 АVI-14
Плиты ребристые серия 1.465.1-21.94 ( 1.465.1-17 )
  • Длина 5970 мм.
  • Ширина 2980 мм.
  • Высота 300 мм.
  • Вес 3430 кг.
  • Объем бетона 1,37 м3
  • Геометрический объем 5,3372 м3
Цена: 42525 руб.
Подробнее
3ПВ 6-4 АVI-4
Плиты ребристые серия 1.465.1-21.94 ( 1.465.1-17 )
  • Длина 5970 мм.
  • Ширина 2980 мм.
  • Высота 300 мм.
  • Вес 3280 кг.
  • Объем бетона 1,31 м3
  • Геометрический объем 5,3372 м3
Цена: 40662 руб.
Подробнее

Уведомление о файлах cookie

Мы используем файлы cookie для улучшения вашего опыта просмотра и анализа трафика. Нажимая "Принять все", вы соглашаетесь с нашей политикой конфиденциальности и политикой обработки файлов cookie.

MAX Дзен Телеграм Вконтакте vk