mobile_sound +7 (930) 655-55-90

Железобетонные опоры линий электропередачи. Рабочие чертежи (Серия 1.465.1-21.94)

Поделиться:
Поделиться:

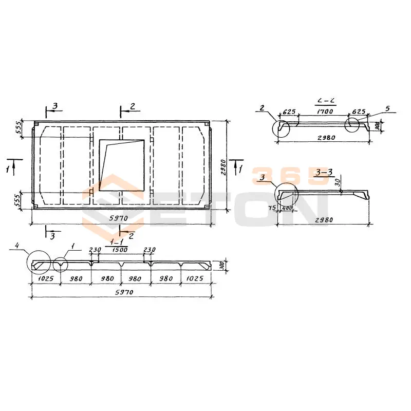
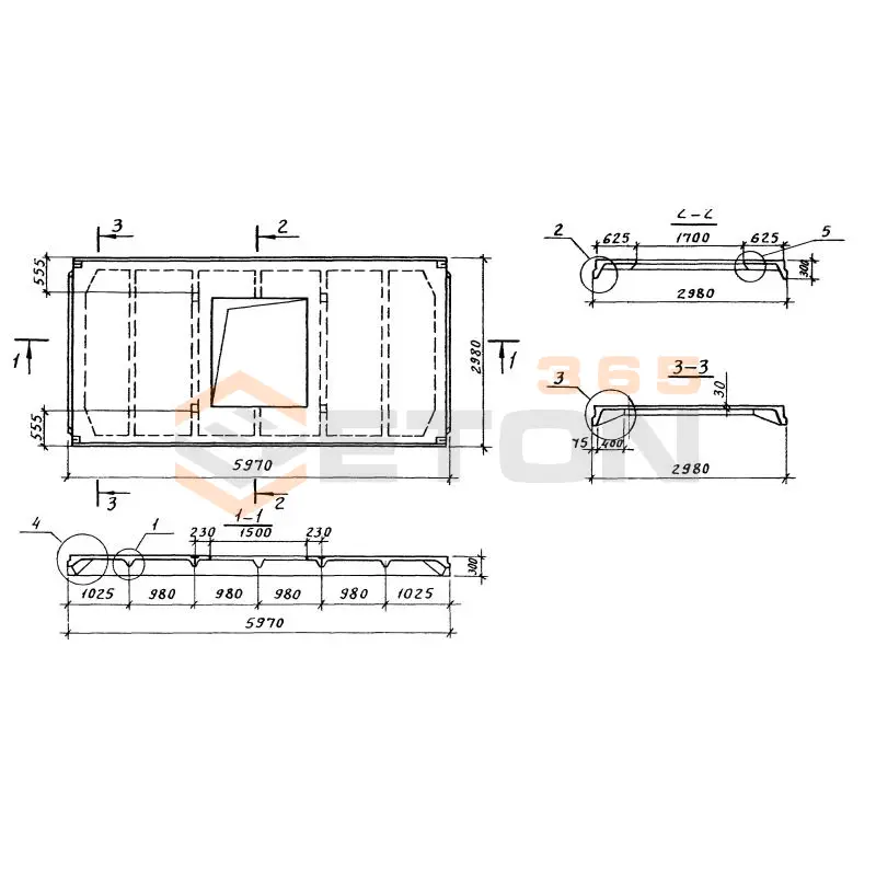
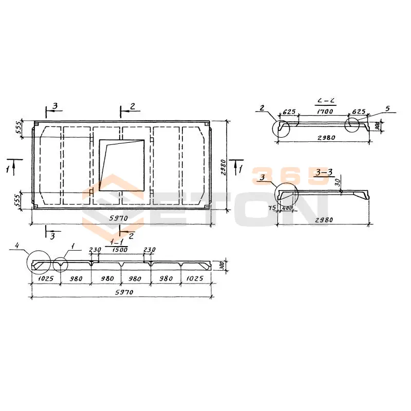
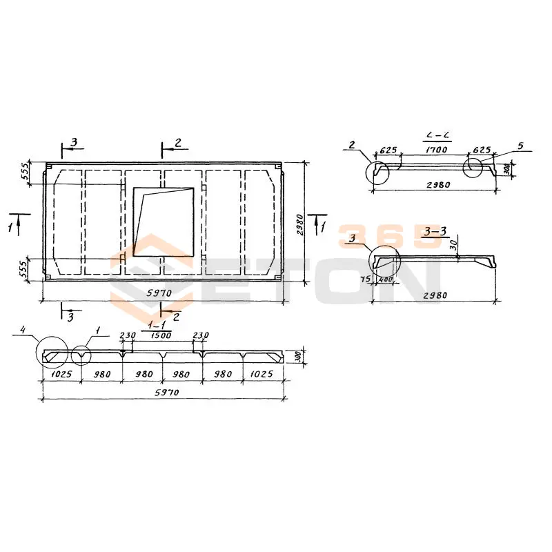
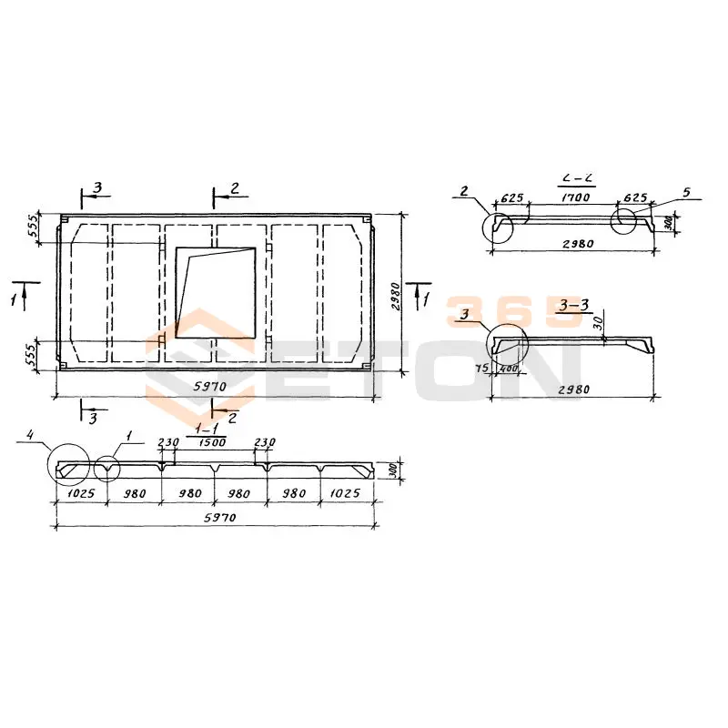
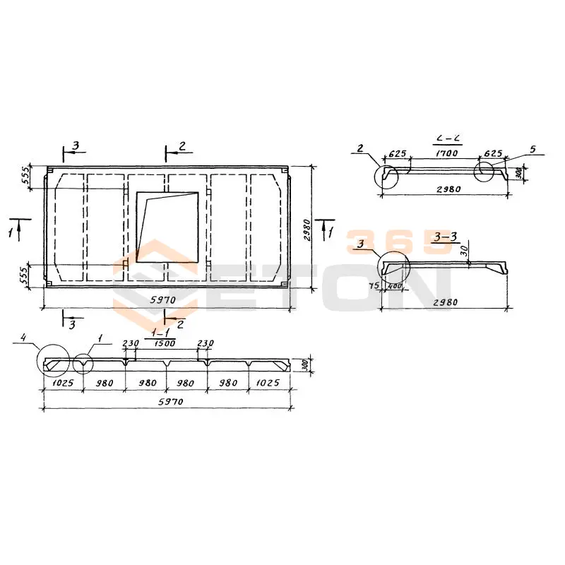
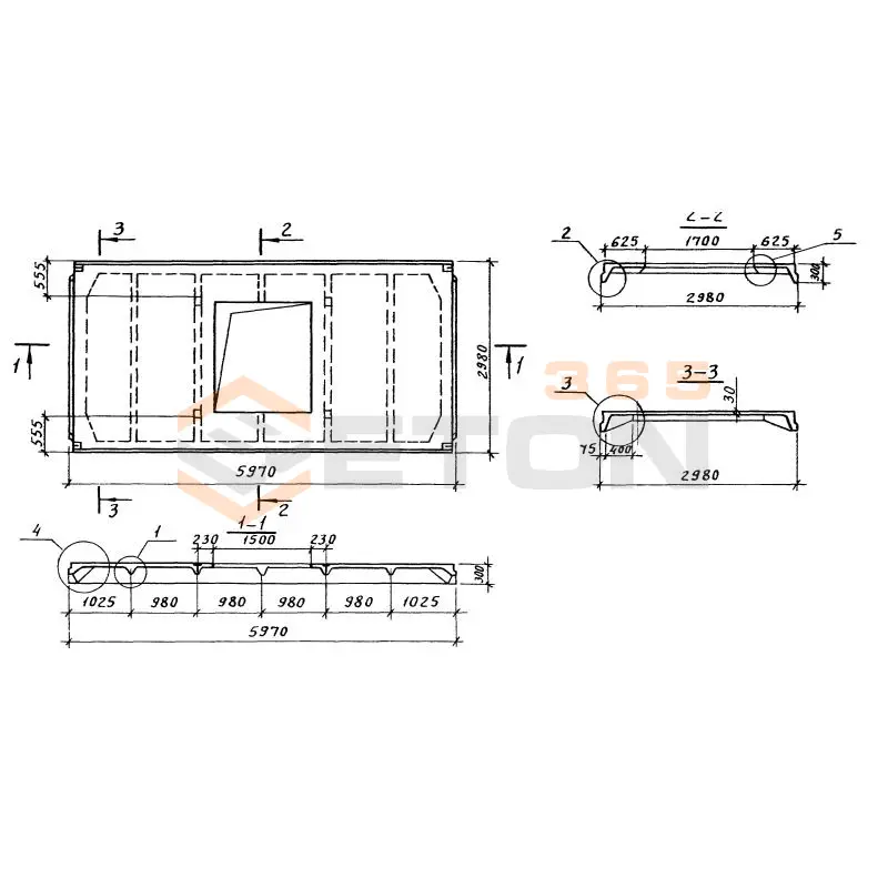
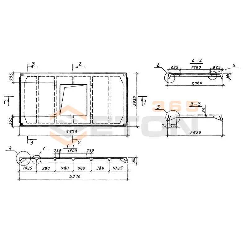
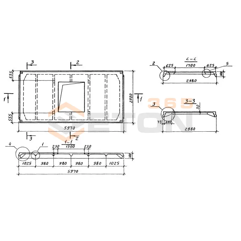
Документ Серия 1.465.1-21.94 описывает область применения, номенклатуру и ключевые требования, опираясь на действующие нормы и практику проектирования. Три выпуска Серии 1.465.1-21.94 были запроектированы институтом ЦНИИПРОМЗДАНИЙ и введены в действие, начиная с марта 1995 года. Основная задача документа отразить последовательность организации процесса производства железобетонных ребристых плит, имеющих размеры 3х6 метров. изделия и конструкции зарекомендовали себя как надежные строительные материалы, используемые при возведении одноэтажных производственных сооружений.

Файлы для скачивания:
picture_as_pdf

1319.pdf

10,098.4 KB

скачать
picture_as_pdf

1320.pdf

20,248.5 KB

скачать
picture_as_pdf

1321.pdf

5,030.2 KB

скачать
Товары Серия 1.465.1-21.94 (36)
3ПФ 6-4 АIIIв-1 п
Плиты ребристые серия 1.465.1-21.94 ( 1.465.1-17 )
  • Длина 5970 мм.
  • Ширина 2980 мм.
  • Высота 300 мм.
  • Вес 2450 кг.
  • Объем бетона 0,96 м3
  • Геометрический объем 5,3372 м3
Цена: 29798 руб.
Подробнее
3ПФ 6-4 АIIIв-2 п
Плиты ребристые серия 1.465.1-21.94 ( 1.465.1-17 )
  • Длина 5970 мм.
  • Ширина 2980 мм.
  • Высота 300 мм.
  • Вес 2230 кг.
  • Объем бетона 0,89 м3
  • Геометрический объем 5,3372 м3
Цена: 27626 руб.
Подробнее
3ПФ 6-4 АIIIв-4
Плиты ребристые серия 1.465.1-21.94 ( 1.465.1-17 )
  • Длина 5970 мм.
  • Ширина 2980 мм.
  • Высота 300 мм.
  • Вес 2280 кг.
  • Объем бетона 0,91 м3
  • Геометрический объем 5,3372 м3
Цена: 28246 руб.
Подробнее
3ПФ 6-4 АIIIв-4 н
Плиты ребристые серия 1.465.1-21.94 ( 1.465.1-17 )
  • Длина 5970 мм.
  • Ширина 2980 мм.
  • Высота 300 мм.
  • Вес 2280 кг.
  • Объем бетона 0,91 м3
  • Геометрический объем 5,3372 м3
Цена: 28246 руб.
Подробнее
3ПФ 6-4 АIIIв-2 н
Плиты ребристые серия 1.465.1-21.94 ( 1.465.1-17 )
  • Длина 5970 мм.
  • Ширина 2980 мм.
  • Высота 300 мм.
  • Вес 2230 кг.
  • Объем бетона 0,89 м3
  • Геометрический объем 5,3372 м3
Цена: 27626 руб.
Подробнее
3ПФ 6-4 АIIIв-4 п
Плиты ребристые серия 1.465.1-21.94 ( 1.465.1-17 )
  • Длина 5970 мм.
  • Ширина 2980 мм.
  • Высота 300 мм.
  • Вес 2280 кг.
  • Объем бетона 0,91 м3
  • Геометрический объем 5,3372 м3
Цена: 28246 руб.
Подробнее
3ПФ 6-4 АIV л-1
Плиты ребристые серия 1.465.1-21.94 ( 1.465.1-17 )
  • Длина 5970 мм.
  • Ширина 2980 мм.
  • Высота 300 мм.
  • Вес 1910 кг.
  • Объем бетона 0,98 м3
  • Геометрический объем 5,3372 м3
Цена: 30419 руб.
Подробнее
3ПФ 6-4 АIV л-1*
Плиты ребристые серия 1.465.1-21.94 ( 1.465.1-17 )
  • Длина 5970 мм.
  • Ширина 2980 мм.
  • Высота 300 мм.
  • Вес 2250 кг.
  • Объем бетона 0,98 м3
  • Геометрический объем 5,3372 м3
Цена: 30419 руб.
Подробнее
3ПФ 6-4 АIV л-2
Плиты ребристые серия 1.465.1-21.94 ( 1.465.1-17 )
  • Длина 5970 мм.
  • Ширина 2980 мм.
  • Высота 300 мм.
  • Вес 1740 кг.
  • Объем бетона 0,89 м3
  • Геометрический объем 5,3372 м3
Цена: 27626 руб.
Подробнее
3ПФ 6-4 АIV л-4*
Плиты ребристые серия 1.465.1-21.94 ( 1.465.1-17 )
  • Длина 5970 мм.
  • Ширина 2980 мм.
  • Высота 300 мм.
  • Вес 2090 кг.
  • Объем бетона 0,91 м3
  • Геометрический объем 5,3372 м3
Цена: 28246 руб.
Подробнее
3ПФ 6-4 АIV л-2*
Плиты ребристые серия 1.465.1-21.94 ( 1.465.1-17 )
  • Длина 5970 мм.
  • Ширина 2980 мм.
  • Высота 300 мм.
  • Вес 2050 кг.
  • Объем бетона 0,89 м3
  • Геометрический объем 5,3372 м3
Цена: 27626 руб.
Подробнее
3ПФ 6-4 АIV л-4
Плиты ребристые серия 1.465.1-21.94 ( 1.465.1-17 )
  • Длина 5970 мм.
  • Ширина 2980 мм.
  • Высота 300 мм.
  • Вес 1770 кг.
  • Объем бетона 0,91 м3
  • Геометрический объем 5,3372 м3
Цена: 28246 руб.
Подробнее
3ПФ 6-4 АIV м-1
Плиты ребристые серия 1.465.1-21.94 ( 1.465.1-17 )
  • Длина 5970 мм.
  • Ширина 2980 мм.
  • Высота 300 мм.
  • Вес 2450 кг.
  • Объем бетона 0,96 м3
  • Геометрический объем 5,3372 м3
Цена: 29798 руб.
Подробнее
3ПФ 6-4 АIV м-2
Плиты ребристые серия 1.465.1-21.94 ( 1.465.1-17 )
  • Длина 5970 мм.
  • Ширина 2980 мм.
  • Высота 300 мм.
  • Вес 2230 кг.
  • Объем бетона 0,89 м3
  • Геометрический объем 5,3372 м3
Цена: 27626 руб.
Подробнее
3ПФ 6-4 АIV м-4
Плиты ребристые серия 1.465.1-21.94 ( 1.465.1-17 )
  • Длина 5970 мм.
  • Ширина 2980 мм.
  • Высота 300 мм.
  • Вес 2280 кг.
  • Объем бетона 0,91 м3
  • Геометрический объем 5,3372 м3
Цена: 28246 руб.
Подробнее
3ПФ 6-4 АIV-1 н
Плиты ребристые серия 1.465.1-21.94 ( 1.465.1-17 )
  • Длина 5970 мм.
  • Ширина 2980 мм.
  • Высота 300 мм.
  • Вес 2450 кг.
  • Объем бетона 0,96 м3
  • Геометрический объем 5,3372 м3
Цена: 29798 руб.
Подробнее
3ПФ 6-4 АIV-1
Плиты ребристые серия 1.465.1-21.94 ( 1.465.1-17 )
  • Длина 5970 мм.
  • Ширина 2980 мм.
  • Высота 300 мм.
  • Вес 2450 кг.
  • Объем бетона 0,96 м3
  • Геометрический объем 5,3372 м3
Цена: 29798 руб.
Подробнее
3ПФ 6-4 АIV-1 п
Плиты ребристые серия 1.465.1-21.94 ( 1.465.1-17 )
  • Длина 5970 мм.
  • Ширина 2980 мм.
  • Высота 300 мм.
  • Вес 2450 кг.
  • Объем бетона 0,96 м3
  • Геометрический объем 5,3372 м3
Цена: 29798 руб.
Подробнее
3ПФ 6-4 АIV-2 н
Плиты ребристые серия 1.465.1-21.94 ( 1.465.1-17 )
  • Длина 5970 мм.
  • Ширина 2980 мм.
  • Высота 300 мм.
  • Вес 2230 кг.
  • Объем бетона 0,89 м3
  • Геометрический объем 5,3372 м3
Цена: 27626 руб.
Подробнее
3ПФ 6-4 АIV-2
Плиты ребристые серия 1.465.1-21.94 ( 1.465.1-17 )
  • Длина 5970 мм.
  • Ширина 2980 мм.
  • Высота 300 мм.
  • Вес 2230 кг.
  • Объем бетона 0,89 м3
  • Геометрический объем 5,3372 м3
Цена: 27626 руб.
Подробнее
3ПФ 6-4 АIV-2 п
Плиты ребристые серия 1.465.1-21.94 ( 1.465.1-17 )
  • Длина 5970 мм.
  • Ширина 2980 мм.
  • Высота 300 мм.
  • Вес 2230 кг.
  • Объем бетона 0,89 м3
  • Геометрический объем 5,3372 м3
Цена: 27626 руб.
Подробнее
3ПФ 6-4 АIV-4
Плиты ребристые серия 1.465.1-21.94 ( 1.465.1-17 )
  • Длина 5970 мм.
  • Ширина 2980 мм.
  • Высота 300 мм.
  • Вес 2280 кг.
  • Объем бетона 0,91 м3
  • Геометрический объем 5,3372 м3
Цена: 28246 руб.
Подробнее
3ПФ 6-4 АV л-1
Плиты ребристые серия 1.465.1-21.94 ( 1.465.1-17 )
  • Длина 5970 мм.
  • Ширина 2980 мм.
  • Высота 300 мм.
  • Вес 1910 кг.
  • Объем бетона 0,98 м3
  • Геометрический объем 5,3372 м3
Цена: 30419 руб.
Подробнее
3ПФ 6-4 АV л-1*
Плиты ребристые серия 1.465.1-21.94 ( 1.465.1-17 )
  • Длина 5970 мм.
  • Ширина 2980 мм.
  • Высота 300 мм.
  • Вес 2250 кг.
  • Объем бетона 0,98 м3
  • Геометрический объем 5,3372 м3
Цена: 30419 руб.
Подробнее
3ПФ 6-4 АIV-4 п
Плиты ребристые серия 1.465.1-21.94 ( 1.465.1-17 )
  • Длина 5970 мм.
  • Ширина 2980 мм.
  • Высота 300 мм.
  • Вес 2280 кг.
  • Объем бетона 0,91 м3
  • Геометрический объем 5,3372 м3
Цена: 28246 руб.
Подробнее
3ПФ 6-4 АIV-4 н
Плиты ребристые серия 1.465.1-21.94 ( 1.465.1-17 )
  • Длина 5970 мм.
  • Ширина 2980 мм.
  • Высота 300 мм.
  • Вес 2280 кг.
  • Объем бетона 0,91 м3
  • Геометрический объем 5,3372 м3
Цена: 28246 руб.
Подробнее
3ПФ 6-4 АV л-2
Плиты ребристые серия 1.465.1-21.94 ( 1.465.1-17 )
  • Длина 5970 мм.
  • Ширина 2980 мм.
  • Высота 300 мм.
  • Вес 1740 кг.
  • Объем бетона 0,96 м3
  • Геометрический объем 5,3372 м3
Цена: 29798 руб.
Подробнее
3ПФ 6-4 АV л-2*
Плиты ребристые серия 1.465.1-21.94 ( 1.465.1-17 )
  • Длина 5970 мм.
  • Ширина 2980 мм.
  • Высота 300 мм.
  • Вес 2050 кг.
  • Объем бетона 0,96 м3
  • Геометрический объем 5,3372 м3
Цена: 29798 руб.
Подробнее
3ПФ 6-4 АV л-4
Плиты ребристые серия 1.465.1-21.94 ( 1.465.1-17 )
  • Длина 5970 мм.
  • Ширина 2980 мм.
  • Высота 300 мм.
  • Вес 1770 кг.
  • Объем бетона 0,91 м3
  • Геометрический объем 5,3372 м3
Цена: 28246 руб.
Подробнее
3ПФ 6-4 АV м-4
Плиты ребристые серия 1.465.1-21.94 ( 1.465.1-17 )
  • Длина 5970 мм.
  • Ширина 2980 мм.
  • Высота 300 мм.
  • Вес 2280 кг.
  • Объем бетона 0,91 м3
  • Геометрический объем 5,3372 м3
Цена: 28246 руб.
Подробнее
3ПФ 6-4 АV м-2
Плиты ребристые серия 1.465.1-21.94 ( 1.465.1-17 )
  • Длина 5970 мм.
  • Ширина 2980 мм.
  • Высота 300 мм.
  • Вес 2230 кг.
  • Объем бетона 0,89 м3
  • Геометрический объем 5,3372 м3
Цена: 27626 руб.
Подробнее
3ПФ 6-4 АV л-4*
Плиты ребристые серия 1.465.1-21.94 ( 1.465.1-17 )
  • Длина 5970 мм.
  • Ширина 2980 мм.
  • Высота 300 мм.
  • Вес 2090 кг.
  • Объем бетона 0,91 м3
  • Геометрический объем 5,3372 м3
Цена: 28246 руб.
Подробнее
3ПФ 6-4 АV м-1
Плиты ребристые серия 1.465.1-21.94 ( 1.465.1-17 )
  • Длина 5970 мм.
  • Ширина 2980 мм.
  • Высота 300 мм.
  • Вес 2450 кг.
  • Объем бетона 0,96 м3
  • Геометрический объем 5,3372 м3
Цена: 29798 руб.
Подробнее
3ПФ 6-4 АV-1
Плиты ребристые серия 1.465.1-21.94 ( 1.465.1-17 )
  • Длина 5970 мм.
  • Ширина 2980 мм.
  • Высота 300 мм.
  • Вес 2450 кг.
  • Объем бетона 0,96 м3
  • Геометрический объем 5,3372 м3
Цена: 29798 руб.
Подробнее
3ПФ 6-4 АV-4
Плиты ребристые серия 1.465.1-21.94 ( 1.465.1-17 )
  • Длина 5970 мм.
  • Ширина 2980 мм.
  • Высота 300 мм.
  • Вес 2280 кг.
  • Объем бетона 0,91 м3
  • Геометрический объем 5,3372 м3
Цена: 28246 руб.
Подробнее
3ПФ 6-4 АV-2
Плиты ребристые серия 1.465.1-21.94 ( 1.465.1-17 )
  • Длина 5970 мм.
  • Ширина 2980 мм.
  • Высота 300 мм.
  • Вес 2230 кг.
  • Объем бетона 0,89 м3
  • Геометрический объем 5,3372 м3
Цена: 27626 руб.
Подробнее

Уведомление о файлах cookie

Мы используем файлы cookie для улучшения вашего опыта просмотра и анализа трафика. Нажимая "Принять все", вы соглашаетесь с нашей политикой конфиденциальности и политикой обработки файлов cookie.

MAX Дзен Телеграм Вконтакте vk