mobile_sound +7 (930) 655-55-90

Железобетонные опоры линий электропередачи. Рабочие чертежи (Серия 1.432.1-34.94)

Поделиться:
Поделиться:

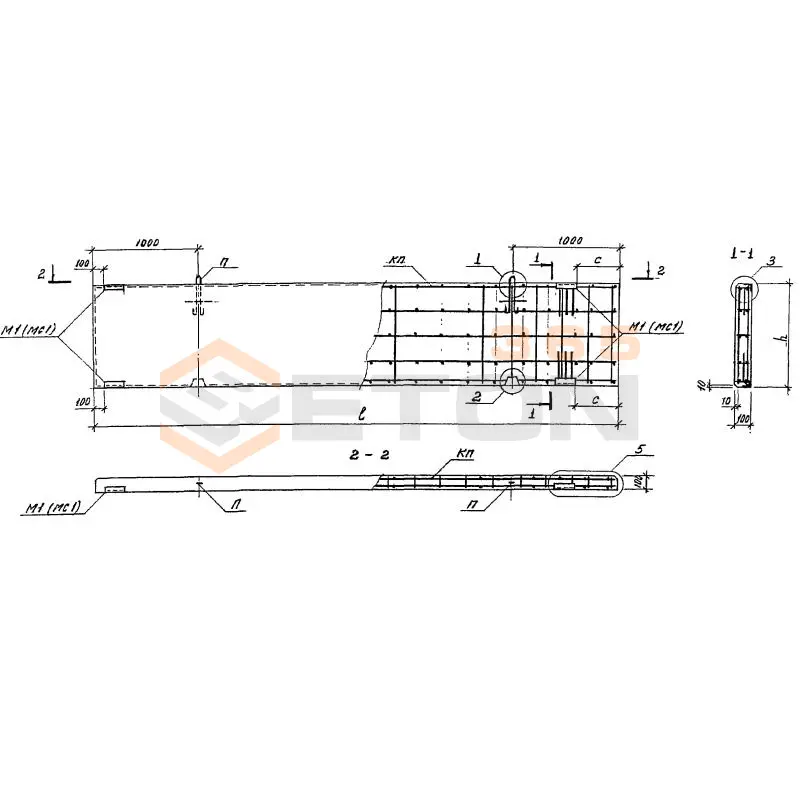
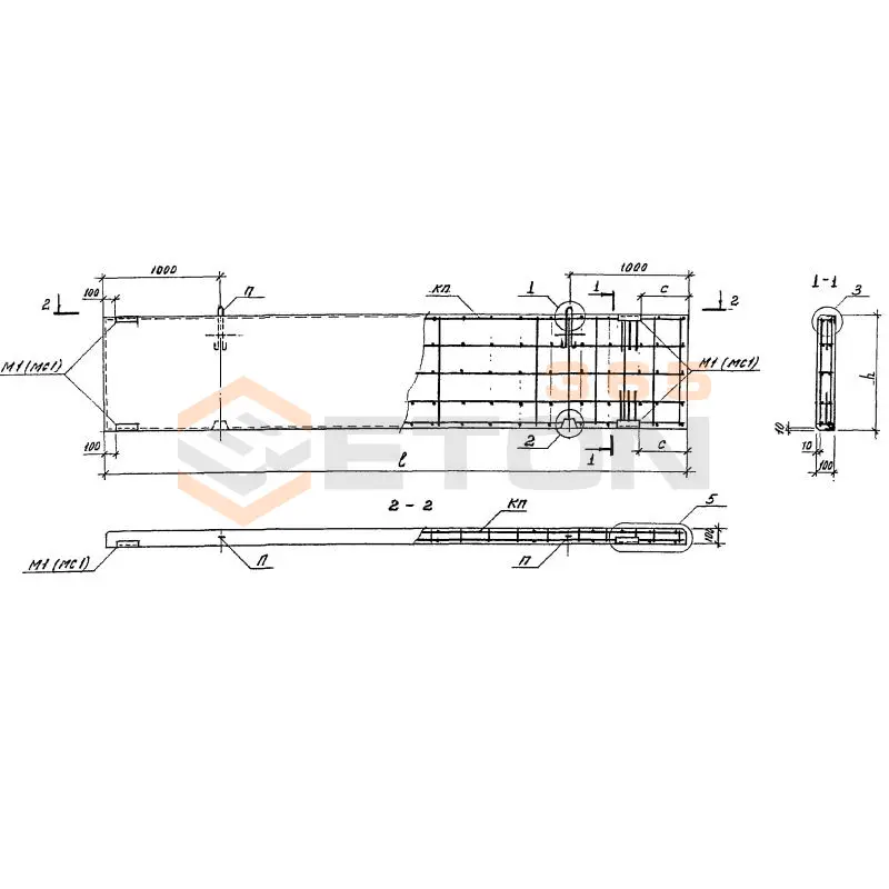
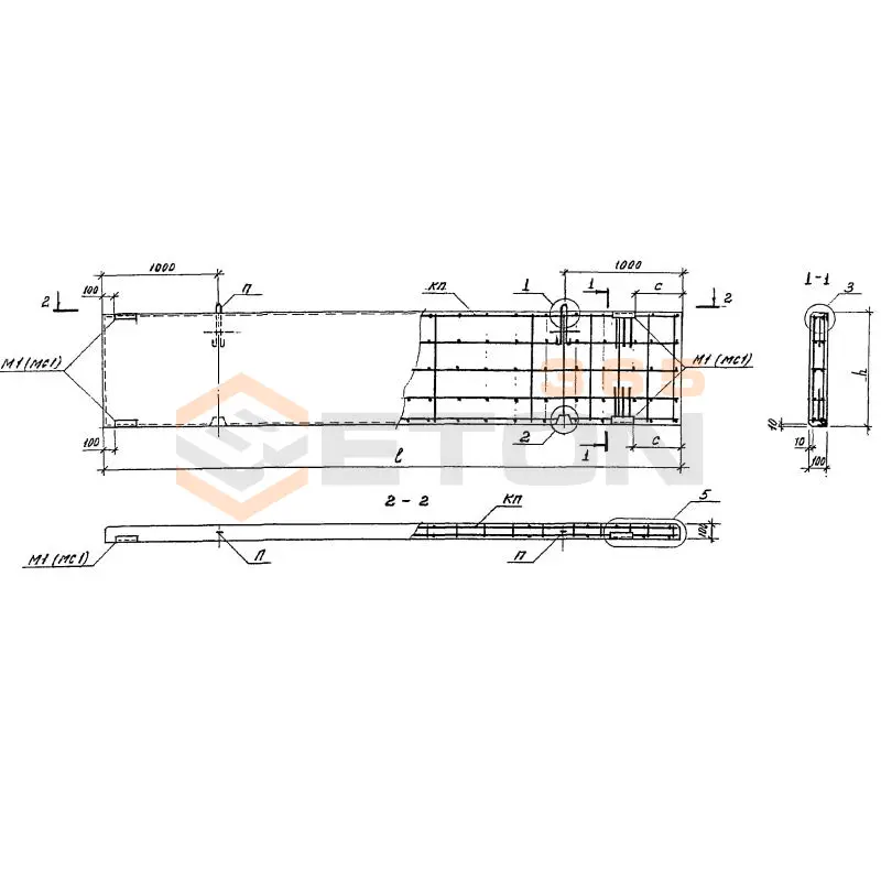
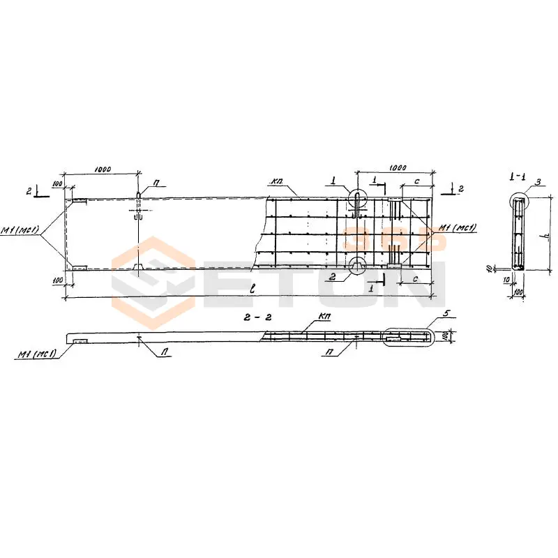
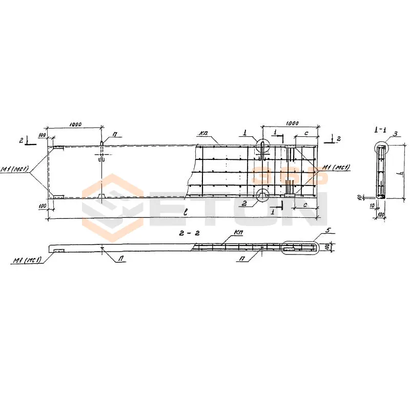
Документ Серия 1.432.1-34.94 описывает область применения, номенклатуру и ключевые требования, опираясь на действующие нормы и практику проектирования. В пяти выпусках Серии 1.432.1-34.94 приведены материалы для проектирования, опалубочные и арматурные чертежи, а также рекомендации по организации производства железобетонных стеновых панелей, применяемых при строительстве одноэтажных производственных сооружений без отопления. Регламент разрабатывался институтом ЦНИИПРОМЗДАНИЙ и был введён в действие в действие с января 1995 года. изделия и конструкции запроектированы длиной до 6 метров и могут применяться в регионах с расчетной температурой наружного воздуха до -70 градусов.

Файлы для скачивания:
picture_as_pdf

1220.pdf

4,611.8 KB

скачать
picture_as_pdf

1221.pdf

4,221.2 KB

скачать
picture_as_pdf

1222.pdf

2,380.9 KB

скачать
picture_as_pdf

1223.pdf

4,568.8 KB

скачать
picture_as_pdf

1224.pdf

1,978.7 KB

скачать
Товары Серия 1.432.1-34.94 (22)
ПС 64-12-1-2,11 м
Панели стеновые Серия 1.432.1-34.94
  • Длина 6370 мм.
  • Ширина 100 мм.
  • Высота 1185 мм.
  • Вес 1730 кг.
  • Объем бетона 0,75 м3
  • Геометрический объем 0,7548 м3
Цена: 32738 руб.
Подробнее
ПС 64-12-1-1,12
Панели стеновые Серия 1.432.1-34.94
  • Длина 6370 мм.
  • Ширина 100 мм.
  • Высота 1185 мм.
  • Вес 1880 кг.
  • Объем бетона 0,75 м3
  • Геометрический объем 0,7548 м3
Цена: 32738 руб.
Подробнее
ПС 64-12-1-2,11
Панели стеновые Серия 1.432.1-34.94
  • Длина 6370 мм.
  • Ширина 100 мм.
  • Высота 1185 мм.
  • Вес 1880 кг.
  • Объем бетона 0,75 м3
  • Геометрический объем 0,7548 м3
Цена: 32738 руб.
Подробнее
ПС 64-12-1-1,12 м
Панели стеновые Серия 1.432.1-34.94
  • Длина 6370 мм.
  • Ширина 100 мм.
  • Высота 1185 мм.
  • Вес 1730 кг.
  • Объем бетона 0,75 м3
  • Геометрический объем 0,7548 м3
Цена: 32738 руб.
Подробнее
ПС 64-12-1-2,12 м
Панели стеновые Серия 1.432.1-34.94
  • Длина 6370 мм.
  • Ширина 100 мм.
  • Высота 1185 мм.
  • Вес 1730 кг.
  • Объем бетона 0,75 м3
  • Геометрический объем 0,7548 м3
Цена: 32738 руб.
Подробнее
ПС 64-12-1-2,12
Панели стеновые Серия 1.432.1-34.94
  • Длина 6370 мм.
  • Ширина 100 мм.
  • Высота 1185 мм.
  • Вес 1880 кг.
  • Объем бетона 0,75 м3
  • Геометрический объем 0,7548 м3
Цена: 32738 руб.
Подробнее
ПС 64-18-1-1,12 м
Панели стеновые Серия 1.432.1-34.94
  • Длина 6370 мм.
  • Ширина 100 мм.
  • Высота 1785 мм.
  • Вес 2850 кг.
  • Объем бетона 1,14 м3
  • Геометрический объем 1,137 м3
Цена: 49761 руб.
Подробнее
ПС 64-18-1-1,11
Панели стеновые Серия 1.432.1-34.94
  • Длина 6370 мм.
  • Ширина 100 мм.
  • Высота 1785 мм.
  • Вес 2850 кг.
  • Объем бетона 1,14 м3
  • Геометрический объем 1,137 м3
Цена: 49761 руб.
Подробнее
ПС 64-18-1-1,12
Панели стеновые Серия 1.432.1-34.94
  • Длина 6370 мм.
  • Ширина 100 мм.
  • Высота 1785 мм.
  • Вес 2850 кг.
  • Объем бетона 1,14 м3
  • Геометрический объем 1,137 м3
Цена: 49761 руб.
Подробнее
ПС 64-18-1-1,11 м
Панели стеновые Серия 1.432.1-34.94
  • Длина 6370 мм.
  • Ширина 100 мм.
  • Высота 1785 мм.
  • Вес 2850 кг.
  • Объем бетона 1,14 м3
  • Геометрический объем 1,137 м3
Цена: 49761 руб.
Подробнее
ПС 64-18-1-2,12
Панели стеновые Серия 1.432.1-34.94
  • Длина 6370 мм.
  • Ширина 100 мм.
  • Высота 1785 мм.
  • Вес 2850 кг.
  • Объем бетона 1,14 м3
  • Геометрический объем 1,137 м3
Цена: 49761 руб.
Подробнее
ПС 64-18-1-2,11 м
Панели стеновые Серия 1.432.1-34.94
  • Длина 6370 мм.
  • Ширина 100 мм.
  • Высота 1785 мм.
  • Вес 2850 кг.
  • Объем бетона 1,14 м3
  • Геометрический объем 1,137 м3
Цена: 49761 руб.
Подробнее
ПС 64-18-1-2,11
Панели стеновые Серия 1.432.1-34.94
  • Длина 6370 мм.
  • Ширина 100 мм.
  • Высота 1785 мм.
  • Вес 2850 кг.
  • Объем бетона 1,14 м3
  • Геометрический объем 1,137 м3
Цена: 49761 руб.
Подробнее
ПС 64-18-1-2,12 м
Панели стеновые Серия 1.432.1-34.94
  • Длина 6370 мм.
  • Ширина 100 мм.
  • Высота 1785 мм.
  • Вес 2850 кг.
  • Объем бетона 1,14 м3
  • Геометрический объем 1,137 м3
Цена: 49761 руб.
Подробнее
ПС 64-9-1-1,11
Панели стеновые Серия 1.432.1-34.94
  • Длина 6370 мм.
  • Ширина 100 мм.
  • Высота 885 мм.
  • Вес 1400 кг.
  • Объем бетона 0,56 м3
  • Геометрический объем 0,5637 м3
Цена: 24444 руб.
Подробнее
ПС 64-9-1-1,11 м
Панели стеновые Серия 1.432.1-34.94
  • Длина 6370 мм.
  • Ширина 100 мм.
  • Высота 885 мм.
  • Вес 1290 кг.
  • Объем бетона 0,56 м3
  • Геометрический объем 0,5637 м3
Цена: 24444 руб.
Подробнее
ПС 64-9-1-1,12
Панели стеновые Серия 1.432.1-34.94
  • Длина 6370 мм.
  • Ширина 100 мм.
  • Высота 885 мм.
  • Вес 1400 кг.
  • Объем бетона 0,56 м3
  • Геометрический объем 0,5637 м3
Цена: 24444 руб.
Подробнее
ПС 64-9-1-1,12 м
Панели стеновые Серия 1.432.1-34.94
  • Длина 6370 мм.
  • Ширина 100 мм.
  • Высота 885 мм.
  • Вес 1290 кг.
  • Объем бетона 0,56 м3
  • Геометрический объем 0,5637 м3
Цена: 24444 руб.
Подробнее
ПС 64-9-1-2,11
Панели стеновые Серия 1.432.1-34.94
  • Длина 6370 мм.
  • Ширина 100 мм.
  • Высота 885 мм.
  • Вес 1400 кг.
  • Объем бетона 0,56 м3
  • Геометрический объем 0,5637 м3
Цена: 24444 руб.
Подробнее
ПС 64-9-1-2,11 м
Панели стеновые Серия 1.432.1-34.94
  • Длина 6370 мм.
  • Ширина 100 мм.
  • Высота 885 мм.
  • Вес 1290 кг.
  • Объем бетона 0,56 м3
  • Геометрический объем 0,5637 м3
Цена: 24444 руб.
Подробнее
ПС 64-9-1-2,12
Панели стеновые Серия 1.432.1-34.94
  • Длина 6370 мм.
  • Ширина 100 мм.
  • Высота 885 мм.
  • Вес 1400 кг.
  • Объем бетона 0,56 м3
  • Геометрический объем 0,5637 м3
Цена: 24444 руб.
Подробнее
ПС 64-9-1-2,12 м
Панели стеновые Серия 1.432.1-34.94
  • Длина 6370 мм.
  • Ширина 100 мм.
  • Высота 885 мм.
  • Вес 1290 кг.
  • Объем бетона 0,56 м3
  • Геометрический объем 0,5637 м3
Цена: 24444 руб.
Подробнее

Уведомление о файлах cookie

Мы используем файлы cookie для улучшения вашего опыта просмотра и анализа трафика. Нажимая "Принять все", вы соглашаетесь с нашей политикой конфиденциальности и политикой обработки файлов cookie.

Дзен Телеграм Вконтакте vk