mobile_sound +7 (930) 655-55-90

Железобетонные опоры линий электропередачи. Рабочие чертежи (Серия 1.432.1-34.94)

Поделиться:
Поделиться:

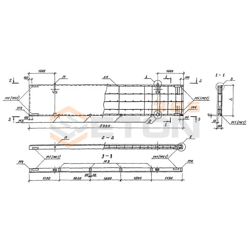
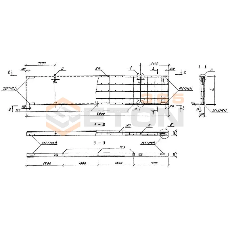
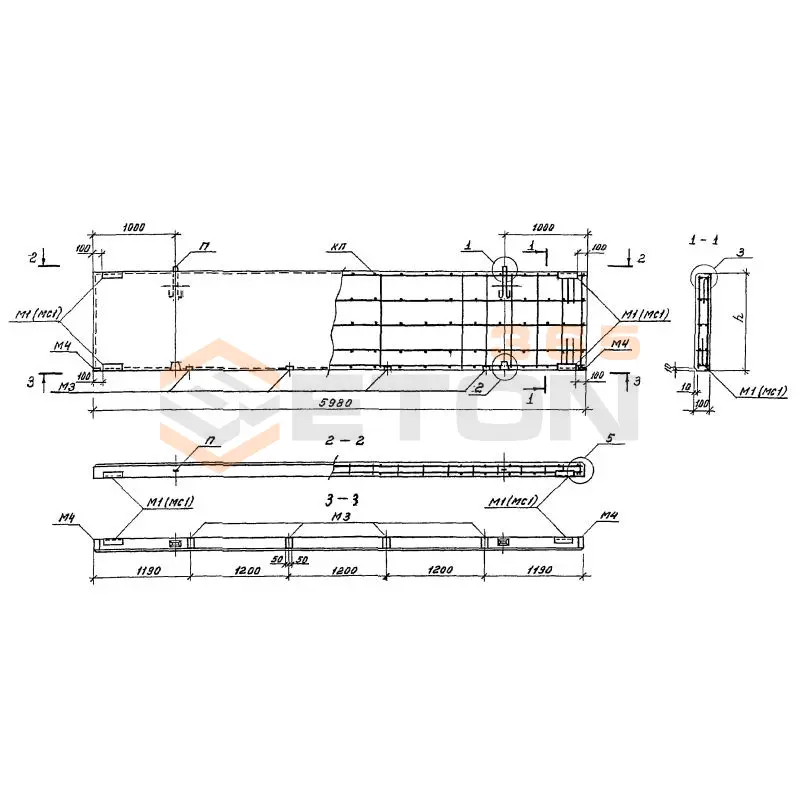
Документ Серия 1.432.1-34.94 описывает область применения, номенклатуру и ключевые требования, опираясь на действующие нормы и практику проектирования. В пяти выпусках Серии 1.432.1-34.94 приведены материалы для проектирования, опалубочные и арматурные чертежи, а также рекомендации по организации производства железобетонных стеновых панелей, применяемых при строительстве одноэтажных производственных сооружений без отопления. Регламент разрабатывался институтом ЦНИИПРОМЗДАНИЙ и был введён в действие в действие с января 1995 года. изделия и конструкции запроектированы длиной до 6 метров и могут применяться в регионах с расчетной температурой наружного воздуха до -70 градусов.

Файлы для скачивания:
picture_as_pdf

1220.pdf

4,611.8 KB

скачать
picture_as_pdf

1221.pdf

4,221.2 KB

скачать
picture_as_pdf

1222.pdf

2,380.9 KB

скачать
picture_as_pdf

1223.pdf

4,568.8 KB

скачать
picture_as_pdf

1224.pdf

1,978.7 KB

скачать
Товары Серия 1.432.1-34.94 (60)
ПС 60-12-1-2,64
Панели стеновые Серия 1.432.1-34.94
  • Длина 5980 мм.
  • Ширина 100 мм.
  • Высота 1185 мм.
  • Вес 1780 кг.
  • Объем бетона 0,71 м3
  • Геометрический объем 0,7086 м3
Цена: 30992 руб.
Подробнее
ПС 60-12-1-2,64 м
Панели стеновые Серия 1.432.1-34.94
  • Длина 5980 мм.
  • Ширина 100 мм.
  • Высота 1185 мм.
  • Вес 1630 кг.
  • Объем бетона 0,71 м3
  • Геометрический объем 0,7086 м3
Цена: 30992 руб.
Подробнее
ПС 60-12-1-2,62 м
Панели стеновые Серия 1.432.1-34.94
  • Длина 5980 мм.
  • Ширина 100 мм.
  • Высота 1185 мм.
  • Вес 1630 кг.
  • Объем бетона 0,71 м3
  • Геометрический объем 0,7086 м3
Цена: 30992 руб.
Подробнее
ПС 60-12-1-2,65
Панели стеновые Серия 1.432.1-34.94
  • Длина 5980 мм.
  • Ширина 100 мм.
  • Высота 1185 мм.
  • Вес 1780 кг.
  • Объем бетона 0,71 м3
  • Геометрический объем 0,7086 м3
Цена: 30992 руб.
Подробнее
ПС 60-12-1-2,63 м
Панели стеновые Серия 1.432.1-34.94
  • Длина 5980 мм.
  • Ширина 100 мм.
  • Высота 1185 мм.
  • Вес 1630 кг.
  • Объем бетона 0,71 м3
  • Геометрический объем 0,7086 м3
Цена: 30992 руб.
Подробнее
ПС 60-12-1-2,65 м
Панели стеновые Серия 1.432.1-34.94
  • Длина 5980 мм.
  • Ширина 100 мм.
  • Высота 1185 мм.
  • Вес 1630 кг.
  • Объем бетона 0,71 м3
  • Геометрический объем 0,7086 м3
Цена: 30992 руб.
Подробнее
ПС 60-15-1-2,62
Панели стеновые Серия 1.432.1-34.94
  • Длина 5980 мм.
  • Ширина 100 мм.
  • Высота 1485 мм.
  • Вес 2230 кг.
  • Объем бетона 0,89 м3
  • Геометрический объем 0,888 м3
Цена: 38849 руб.
Подробнее
ПС 60-15-1-2,60
Панели стеновые Серия 1.432.1-34.94
  • Длина 5980 мм.
  • Ширина 100 мм.
  • Высота 1485 мм.
  • Вес 2230 кг.
  • Объем бетона 0,89 м3
  • Геометрический объем 0,888 м3
Цена: 38849 руб.
Подробнее
ПС 60-15-1-2,60 м
Панели стеновые Серия 1.432.1-34.94
  • Длина 5980 мм.
  • Ширина 100 мм.
  • Высота 1485 мм.
  • Вес 2050 кг.
  • Объем бетона 0,89 м3
  • Геометрический объем 0,888 м3
Цена: 38849 руб.
Подробнее
ПС 60-15-1-2,63
Панели стеновые Серия 1.432.1-34.94
  • Длина 5980 мм.
  • Ширина 100 мм.
  • Высота 1485 мм.
  • Вес 2230 кг.
  • Объем бетона 0,89 м3
  • Геометрический объем 0,888 м3
Цена: 38849 руб.
Подробнее
ПС 60-15-1-2,62 м
Панели стеновые Серия 1.432.1-34.94
  • Длина 5980 мм.
  • Ширина 100 мм.
  • Высота 1485 мм.
  • Вес 2050 кг.
  • Объем бетона 0,89 м3
  • Геометрический объем 0,888 м3
Цена: 38849 руб.
Подробнее
ПС 60-15-1-2,63 м
Панели стеновые Серия 1.432.1-34.94
  • Длина 5980 мм.
  • Ширина 100 мм.
  • Высота 1485 мм.
  • Вес 2050 кг.
  • Объем бетона 0,89 м3
  • Геометрический объем 0,888 м3
Цена: 38849 руб.
Подробнее
ПС 60-15-1-2,64
Панели стеновые Серия 1.432.1-34.94
  • Длина 5980 мм.
  • Ширина 100 мм.
  • Высота 1485 мм.
  • Вес 2230 кг.
  • Объем бетона 0,89 м3
  • Геометрический объем 0,888 м3
Цена: 38849 руб.
Подробнее
ПС 60-15-1-2,65 м
Панели стеновые Серия 1.432.1-34.94
  • Длина 5980 мм.
  • Ширина 100 мм.
  • Высота 1485 мм.
  • Вес 2050 кг.
  • Объем бетона 0,89 м3
  • Геометрический объем 0,888 м3
Цена: 38849 руб.
Подробнее
ПС 60-18-1-1,10
Панели стеновые Серия 1.432.1-34.94
  • Длина 5980 мм.
  • Ширина 100 мм.
  • Высота 1785 мм.
  • Вес 2680 кг.
  • Объем бетона 1,07 м3
  • Геометрический объем 1,0674 м3
Цена: 46706 руб.
Подробнее
ПС 60-18-1-2,10 м
Панели стеновые Серия 1.432.1-34.94
  • Длина 5980 мм.
  • Ширина 100 мм.
  • Высота 1785 мм.
  • Вес 2460 кг.
  • Объем бетона 1,07 м3
  • Геометрический объем 1,0674 м3
Цена: 46706 руб.
Подробнее
ПС 60-18-1-1,10 м
Панели стеновые Серия 1.432.1-34.94
  • Длина 5980 мм.
  • Ширина 100 мм.
  • Высота 1785 мм.
  • Вес 2460 кг.
  • Объем бетона 1,07 м3
  • Геометрический объем 1,0674 м3
Цена: 46706 руб.
Подробнее
ПС 60-15-1-2,64 м
Панели стеновые Серия 1.432.1-34.94
  • Длина 5980 мм.
  • Ширина 100 мм.
  • Высота 1485 мм.
  • Вес 2050 кг.
  • Объем бетона 0,89 м3
  • Геометрический объем 0,888 м3
Цена: 38849 руб.
Подробнее
ПС 60-18-1-2,10
Панели стеновые Серия 1.432.1-34.94
  • Длина 5980 мм.
  • Ширина 100 мм.
  • Высота 1785 мм.
  • Вес 2680 кг.
  • Объем бетона 1,07 м3
  • Геометрический объем 1,0674 м3
Цена: 46706 руб.
Подробнее
ПС 60-15-1-2,65
Панели стеновые Серия 1.432.1-34.94
  • Длина 5980 мм.
  • Ширина 100 мм.
  • Высота 1485 мм.
  • Вес 2230 кг.
  • Объем бетона 0,89 м3
  • Геометрический объем 0,888 м3
Цена: 38849 руб.
Подробнее
ПС 60-18-1-2,22
Панели стеновые Серия 1.432.1-34.94
  • Длина 5980 мм.
  • Ширина 100 мм.
  • Высота 1785 мм.
  • Вес 2680 кг.
  • Объем бетона 1,07 м3
  • Геометрический объем 1,0674 м3
Цена: 46706 руб.
Подробнее
ПС 60-18-1-2,23 м
Панели стеновые Серия 1.432.1-34.94
  • Длина 5980 мм.
  • Ширина 100 мм.
  • Высота 1785 мм.
  • Вес 2460 кг.
  • Объем бетона 1,07 м3
  • Геометрический объем 1,0674 м3
Цена: 46706 руб.
Подробнее
ПС 60-18-1-2,24
Панели стеновые Серия 1.432.1-34.94
  • Длина 5980 мм.
  • Ширина 100 мм.
  • Высота 1785 мм.
  • Вес 2680 кг.
  • Объем бетона 1,07 м3
  • Геометрический объем 1,0674 м3
Цена: 46706 руб.
Подробнее
ПС 60-18-1-2,24 м
Панели стеновые Серия 1.432.1-34.94
  • Длина 5980 мм.
  • Ширина 100 мм.
  • Высота 1785 мм.
  • Вес 2460 кг.
  • Объем бетона 1,07 м3
  • Геометрический объем 1,0674 м3
Цена: 46706 руб.
Подробнее
ПС 60-18-1-2,22 м
Панели стеновые Серия 1.432.1-34.94
  • Длина 5980 мм.
  • Ширина 100 мм.
  • Высота 1785 мм.
  • Вес 2460 кг.
  • Объем бетона 1,07 м3
  • Геометрический объем 1,0674 м3
Цена: 46706 руб.
Подробнее
ПС 60-18-1-2,23
Панели стеновые Серия 1.432.1-34.94
  • Длина 5980 мм.
  • Ширина 100 мм.
  • Высота 1785 мм.
  • Вес 2680 кг.
  • Объем бетона 1,07 м3
  • Геометрический объем 1,0674 м3
Цена: 46706 руб.
Подробнее
ПС 60-18-1-2,25
Панели стеновые Серия 1.432.1-34.94
  • Длина 5980 мм.
  • Ширина 100 мм.
  • Высота 1785 мм.
  • Вес 2680 кг.
  • Объем бетона 1,07 м3
  • Геометрический объем 1,0674 м3
Цена: 46706 руб.
Подробнее
ПС 60-18-1-2,25 м
Панели стеновые Серия 1.432.1-34.94
  • Длина 5980 мм.
  • Ширина 100 мм.
  • Высота 1785 мм.
  • Вес 2460 кг.
  • Объем бетона 1,07 м3
  • Геометрический объем 1,0674 м3
Цена: 46706 руб.
Подробнее
ПС 60-18-1-2,32
Панели стеновые Серия 1.432.1-34.94
  • Длина 5980 мм.
  • Ширина 100 мм.
  • Высота 1785 мм.
  • Вес 2680 кг.
  • Объем бетона 1,07 м3
  • Геометрический объем 1,0674 м3
Цена: 46706 руб.
Подробнее
ПС 60-18-1-2,32 м
Панели стеновые Серия 1.432.1-34.94
  • Длина 5980 мм.
  • Ширина 100 мм.
  • Высота 1785 мм.
  • Вес 2460 кг.
  • Объем бетона 1,07 м3
  • Геометрический объем 1,0674 м3
Цена: 46706 руб.
Подробнее
ПС 60-18-1-2,33
Панели стеновые Серия 1.432.1-34.94
  • Длина 5980 мм.
  • Ширина 100 мм.
  • Высота 1785 мм.
  • Вес 2680 кг.
  • Объем бетона 1,07 м3
  • Геометрический объем 1,0674 м3
Цена: 46706 руб.
Подробнее
ПС 60-18-1-2,34 м
Панели стеновые Серия 1.432.1-34.94
  • Длина 5980 мм.
  • Ширина 100 мм.
  • Высота 1785 мм.
  • Вес 2460 кг.
  • Объем бетона 1,07 м3
  • Геометрический объем 1,0674 м3
Цена: 46706 руб.
Подробнее
ПС 60-18-1-2,33 м
Панели стеновые Серия 1.432.1-34.94
  • Длина 5980 мм.
  • Ширина 100 мм.
  • Высота 1785 мм.
  • Вес 2460 кг.
  • Объем бетона 1,07 м3
  • Геометрический объем 1,0674 м3
Цена: 46706 руб.
Подробнее
ПС 60-18-1-2,34
Панели стеновые Серия 1.432.1-34.94
  • Длина 5980 мм.
  • Ширина 100 мм.
  • Высота 1785 мм.
  • Вес 2680 кг.
  • Объем бетона 1,07 м3
  • Геометрический объем 1,0674 м3
Цена: 46706 руб.
Подробнее
ПС 60-18-1-2,35
Панели стеновые Серия 1.432.1-34.94
  • Длина 5980 мм.
  • Ширина 100 мм.
  • Высота 1785 мм.
  • Вес 2680 кг.
  • Объем бетона 1,07 м3
  • Геометрический объем 1,0674 м3
Цена: 46706 руб.
Подробнее
ПС 60-18-1-2,35 м
Панели стеновые Серия 1.432.1-34.94
  • Длина 5980 мм.
  • Ширина 100 мм.
  • Высота 1785 мм.
  • Вес 2460 кг.
  • Объем бетона 1,07 м3
  • Геометрический объем 1,0674 м3
Цена: 46706 руб.
Подробнее
ПС 60-18-1-2,42
Панели стеновые Серия 1.432.1-34.94
  • Длина 5980 мм.
  • Ширина 100 мм.
  • Высота 1785 мм.
  • Вес 2680 кг.
  • Объем бетона 1,07 м3
  • Геометрический объем 1,0674 м3
Цена: 46706 руб.
Подробнее
ПС 60-18-1-2,42 м
Панели стеновые Серия 1.432.1-34.94
  • Длина 5980 мм.
  • Ширина 100 мм.
  • Высота 1785 мм.
  • Вес 2460 кг.
  • Объем бетона 1,07 м3
  • Геометрический объем 1,0674 м3
Цена: 46706 руб.
Подробнее
ПС 60-18-1-2,43 м
Панели стеновые Серия 1.432.1-34.94
  • Длина 5980 мм.
  • Ширина 100 мм.
  • Высота 1785 мм.
  • Вес 2460 кг.
  • Объем бетона 1,07 м3
  • Геометрический объем 1,0674 м3
Цена: 46706 руб.
Подробнее
ПС 60-18-1-2,43
Панели стеновые Серия 1.432.1-34.94
  • Длина 5980 мм.
  • Ширина 100 мм.
  • Высота 1785 мм.
  • Вес 2680 кг.
  • Объем бетона 1,07 м3
  • Геометрический объем 1,0674 м3
Цена: 46706 руб.
Подробнее
ПС 60-18-1-2,44
Панели стеновые Серия 1.432.1-34.94
  • Длина 5980 мм.
  • Ширина 100 мм.
  • Высота 1785 мм.
  • Вес 2680 кг.
  • Объем бетона 1,07 м3
  • Геометрический объем 1,0674 м3
Цена: 46706 руб.
Подробнее
ПС 60-18-1-2,44 м
Панели стеновые Серия 1.432.1-34.94
  • Длина 5980 мм.
  • Ширина 100 мм.
  • Высота 1785 мм.
  • Вес 2460 кг.
  • Объем бетона 1,07 м3
  • Геометрический объем 1,0674 м3
Цена: 46706 руб.
Подробнее
ПС 60-18-1-2,45
Панели стеновые Серия 1.432.1-34.94
  • Длина 5980 мм.
  • Ширина 100 мм.
  • Высота 1785 мм.
  • Вес 2680 кг.
  • Объем бетона 1,07 м3
  • Геометрический объем 1,0674 м3
Цена: 46706 руб.
Подробнее
ПС 60-18-1-2,45 м
Панели стеновые Серия 1.432.1-34.94
  • Длина 5980 мм.
  • Ширина 100 мм.
  • Высота 1785 мм.
  • Вес 2460 кг.
  • Объем бетона 1,07 м3
  • Геометрический объем 1,0674 м3
Цена: 46706 руб.
Подробнее
ПС 60-18-1-2,60 м
Панели стеновые Серия 1.432.1-34.94
  • Длина 5980 мм.
  • Ширина 100 мм.
  • Высота 1785 мм.
  • Вес 2460 кг.
  • Объем бетона 1,07 м3
  • Геометрический объем 1,0674 м3
Цена: 46706 руб.
Подробнее
ПС 60-18-1-2,62 м
Панели стеновые Серия 1.432.1-34.94
  • Длина 5980 мм.
  • Ширина 100 мм.
  • Высота 1785 мм.
  • Вес 2460 кг.
  • Объем бетона 1,07 м3
  • Геометрический объем 1,0674 м3
Цена: 46706 руб.
Подробнее
ПС 60-18-1-2,60
Панели стеновые Серия 1.432.1-34.94
  • Длина 5980 мм.
  • Ширина 100 мм.
  • Высота 1785 мм.
  • Вес 2680 кг.
  • Объем бетона 1,07 м3
  • Геометрический объем 1,0674 м3
Цена: 46706 руб.
Подробнее
ПС 60-18-1-2,62
Панели стеновые Серия 1.432.1-34.94
  • Длина 5980 мм.
  • Ширина 100 мм.
  • Высота 1785 мм.
  • Вес 2680 кг.
  • Объем бетона 1,07 м3
  • Геометрический объем 1,0674 м3
Цена: 46706 руб.
Подробнее
ПС 60-18-1-2,63
Панели стеновые Серия 1.432.1-34.94
  • Длина 5980 мм.
  • Ширина 100 мм.
  • Высота 1785 мм.
  • Вес 2680 кг.
  • Объем бетона 1,07 м3
  • Геометрический объем 1,0674 м3
Цена: 46706 руб.
Подробнее
ПС 60-18-1-2,63 м
Панели стеновые Серия 1.432.1-34.94
  • Длина 5980 мм.
  • Ширина 100 мм.
  • Высота 1785 мм.
  • Вес 2460 кг.
  • Объем бетона 1,07 м3
  • Геометрический объем 1,0674 м3
Цена: 46706 руб.
Подробнее
ПС 60-18-1-2,64
Панели стеновые Серия 1.432.1-34.94
  • Длина 5980 мм.
  • Ширина 100 мм.
  • Высота 1785 мм.
  • Вес 2680 кг.
  • Объем бетона 1,07 м3
  • Геометрический объем 1,0674 м3
Цена: 46706 руб.
Подробнее
ПС 60-18-1-2,64 м
Панели стеновые Серия 1.432.1-34.94
  • Длина 5980 мм.
  • Ширина 100 мм.
  • Высота 1785 мм.
  • Вес 2460 кг.
  • Объем бетона 1,07 м3
  • Геометрический объем 1,0674 м3
Цена: 46706 руб.
Подробнее
ПС 60-18-1-2,65 м
Панели стеновые Серия 1.432.1-34.94
  • Длина 5980 мм.
  • Ширина 100 мм.
  • Высота 1785 мм.
  • Вес 2460 кг.
  • Объем бетона 1,07 м3
  • Геометрический объем 1,0674 м3
Цена: 46706 руб.
Подробнее
ПС 60-9-1-1,10
Панели стеновые Серия 1.432.1-34.94
  • Длина 5980 мм.
  • Ширина 100 мм.
  • Высота 885 мм.
  • Вес 1330 кг.
  • Объем бетона 0,53 м3
  • Геометрический объем 0,5292 м3
Цена: 23135 руб.
Подробнее
ПС 60-18-1-2,65
Панели стеновые Серия 1.432.1-34.94
  • Длина 5980 мм.
  • Ширина 100 мм.
  • Высота 1785 мм.
  • Вес 2680 кг.
  • Объем бетона 1,07 м3
  • Геометрический объем 1,0674 м3
Цена: 46706 руб.
Подробнее
ПС 60-9-1-1,10 м
Панели стеновые Серия 1.432.1-34.94
  • Длина 5980 мм.
  • Ширина 100 мм.
  • Высота 885 мм.
  • Вес 1220 кг.
  • Объем бетона 0,53 м3
  • Геометрический объем 0,5292 м3
Цена: 23135 руб.
Подробнее
ПС 60-9-1-1,50
Панели стеновые Серия 1.432.1-34.94
  • Длина 5980 мм.
  • Ширина 100 мм.
  • Высота 885 мм.
  • Вес 1330 кг.
  • Объем бетона 0,53 м3
  • Геометрический объем 0,5292 м3
Цена: 23135 руб.
Подробнее
ПС 60-9-1-1,50 м
Панели стеновые Серия 1.432.1-34.94
  • Длина 5980 мм.
  • Ширина 100 мм.
  • Высота 885 мм.
  • Вес 1220 кг.
  • Объем бетона 0,53 м3
  • Геометрический объем 0,5292 м3
Цена: 23135 руб.
Подробнее
ПС 60-9-1-2,22
Панели стеновые Серия 1.432.1-34.94
  • Длина 5980 мм.
  • Ширина 100 мм.
  • Высота 885 мм.
  • Вес 1330 кг.
  • Объем бетона 0,53 м3
  • Геометрический объем 0,5292 м3
Цена: 23135 руб.
Подробнее
ПС 60-9-1-2,22 м
Панели стеновые Серия 1.432.1-34.94
  • Длина 5980 мм.
  • Ширина 100 мм.
  • Высота 885 мм.
  • Вес 1220 кг.
  • Объем бетона 0,53 м3
  • Геометрический объем 0,5292 м3
Цена: 23135 руб.
Подробнее

Уведомление о файлах cookie

Мы используем файлы cookie для улучшения вашего опыта просмотра и анализа трафика. Нажимая "Принять все", вы соглашаетесь с нашей политикой конфиденциальности и политикой обработки файлов cookie.

Дзен Телеграм Вконтакте vk