mobile_sound +7 (930) 655-55-90

Типовые конструкции и железобетонные изделия. Рабочие чертежи (Серия 1.432.1-23с)

Поделиться:
Поделиться:

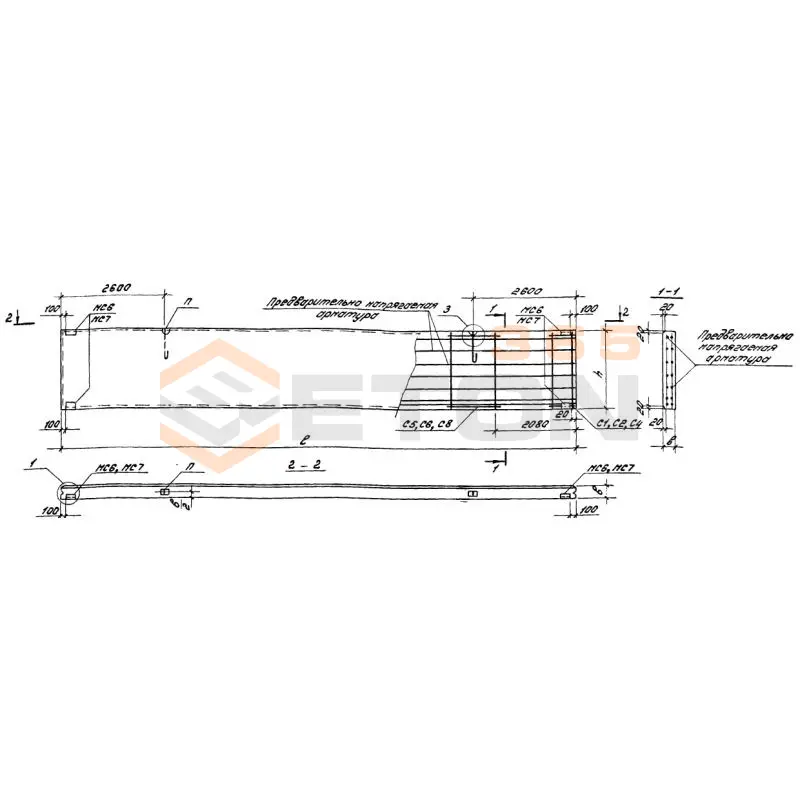
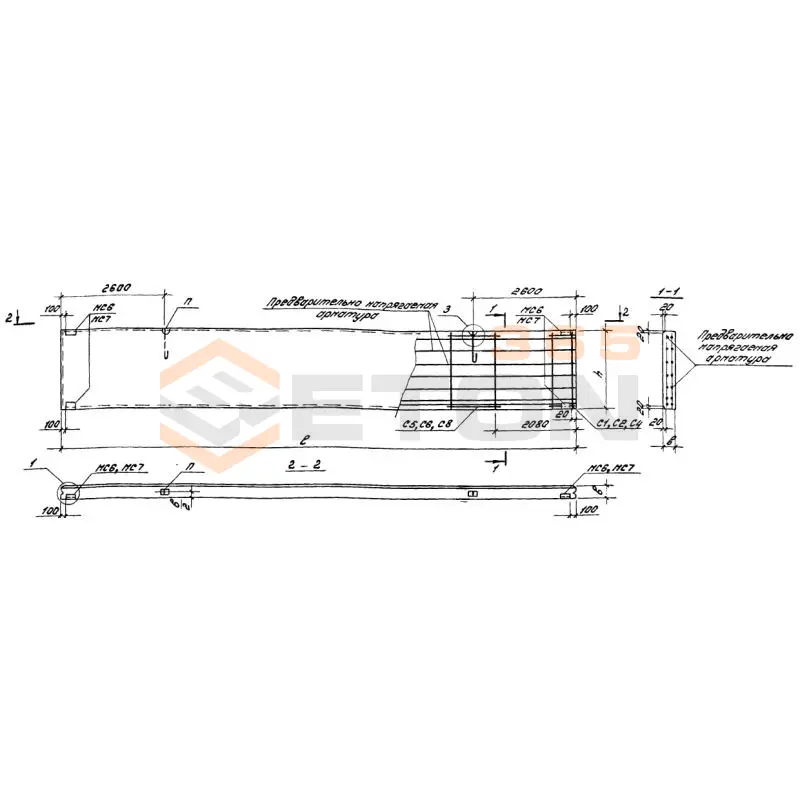
Документ Серия 1.432.1-23с описывает область применения, номенклатуру и ключевые требования, опираясь на действующие нормы и практику проектирования. Серия 1.432.1-23с состоит из пяти выпусков, детально описывающих разные части организации производственного процесса: материалы для проектирования, рабочие чертежи, соединительные стальные конструкции и монтажные узлы для обеспечения надежной фиксации смежных элементов в каркасе возводимого сооружения. Регламент был разработан проектным институтом ЦНИИПРОМЗДАНИЙ и введён в действие в действие с 1991 года приказом Госстроя СССР. Нормативный документ описывает изготовление однослойных стеновых панелей, имеющих длину 12 метров, применяемых в отапливаемых производственных сооружениях, высота которых не превышает одного этажа.

Файлы для скачивания:
picture_as_pdf

6025.pdf

3,044.5 KB

скачать
picture_as_pdf

6026.pdf

3,766.6 KB

скачать
picture_as_pdf

6027.pdf

925.1 KB

скачать
picture_as_pdf

6028.pdf

1,745.9 KB

скачать
picture_as_pdf

6029.pdf

986.8 KB

скачать
Товары Серия 1.432.1-23с (42)
ПС 120-18-25-3 л-31 с (1.432.1-23с)
Панели стеновые Серия 1.432.1-23с
  • Длина 11970 мм.
  • Ширина 250 мм.
  • Высота 1770 мм.
  • Вес 8100 кг.
  • Объем бетона 4,44 м3
  • Геометрический объем 5,2967 м3
Цена: 150738 руб.
Подробнее
ПС 120-18-25-4 АIIIвл-22 с (1.432.1-23с)
Панели стеновые Серия 1.432.1-23с
  • Длина 11970 мм.
  • Ширина 250 мм.
  • Высота 1770 мм.
  • Вес 7590 кг.
  • Объем бетона 5,3 м3
  • Геометрический объем 5,2967 м3
Цена: 179935 руб.
Подробнее
ПС 120-18-25-4 АIIIвл-31 с (1.432.1-23с)
Панели стеновые Серия 1.432.1-23с
  • Длина 11970 мм.
  • Ширина 250 мм.
  • Высота 1770 мм.
  • Вес 7590 кг.
  • Объем бетона 5,3 м3
  • Геометрический объем 5,2967 м3
Цена: 179935 руб.
Подробнее
ПС 120-18-25-4 АIIIвл-41 с (1.432.1-23с)
Панели стеновые Серия 1.432.1-23с
  • Длина 11970 мм.
  • Ширина 250 мм.
  • Высота 1770 мм.
  • Вес 7610 кг.
  • Объем бетона 5,3 м3
  • Геометрический объем 5,2967 м3
Цена: 179935 руб.
Подробнее
ПС 120-18-25-4 АIIIвл-32 с (1.432.1-23с)
Панели стеновые Серия 1.432.1-23с
  • Длина 11970 мм.
  • Ширина 250 мм.
  • Высота 1770 мм.
  • Вес 7590 кг.
  • Объем бетона 5,3 м3
  • Геометрический объем 5,2967 м3
Цена: 179935 руб.
Подробнее
ПС 120-9-20-1 АIIIвл-10 с (1.432.1-23с)
Панели стеновые Серия 1.432.1-23с
  • Длина 11970 мм.
  • Ширина 200 мм.
  • Высота 870 мм.
  • Вес 2970 кг.
  • Объем бетона 2,09 м3
  • Геометрический объем 2,0828 м3
Цена: 70956 руб.
Подробнее
ПС 120-18-25-4 АIIIвл-42 с (1.432.1-23с)
Панели стеновые Серия 1.432.1-23с
  • Длина 11970 мм.
  • Ширина 250 мм.
  • Высота 1770 мм.
  • Вес 7610 кг.
  • Объем бетона 5,3 м3
  • Геометрический объем 5,2967 м3
Цена: 179935 руб.
Подробнее
ПС 120-9-20-1 АIIIвл-111 с (1.432.1-23с)
Панели стеновые Серия 1.432.1-23с
  • Длина 11970 мм.
  • Ширина 200 мм.
  • Высота 870 мм.
  • Вес 2970 кг.
  • Объем бетона 2,09 м3
  • Геометрический объем 2,0828 м3
Цена: 70956 руб.
Подробнее
ПС 120-9-20-1 АIIIвл-112 с (1.432.1-23с)
Панели стеновые Серия 1.432.1-23с
  • Длина 11970 мм.
  • Ширина 200 мм.
  • Высота 870 мм.
  • Вес 2970 кг.
  • Объем бетона 2,09 м3
  • Геометрический объем 2,0828 м3
Цена: 70956 руб.
Подробнее
ПС 120-9-20-2 АIIIвл-10 с (1.432.1-23с)
Панели стеновые Серия 1.432.1-23с
  • Длина 11970 мм.
  • Ширина 200 мм.
  • Высота 870 мм.
  • Вес 2970 кг.
  • Объем бетона 2,09 м3
  • Геометрический объем 2,0828 м3
Цена: 70956 руб.
Подробнее
ПС 120-9-20-2 АIIIвл-111 с (1.432.1-23с)
Панели стеновые Серия 1.432.1-23с
  • Длина 11970 мм.
  • Ширина 200 мм.
  • Высота 870 мм.
  • Вес 2990 кг.
  • Объем бетона 2,09 м3
  • Геометрический объем 2,0828 м3
Цена: 70956 руб.
Подробнее
ПС 120-9-20-2 АIIIвл-112 с (1.432.1-23с)
Панели стеновые Серия 1.432.1-23с
  • Длина 11970 мм.
  • Ширина 200 мм.
  • Высота 870 мм.
  • Вес 2990 кг.
  • Объем бетона 2,09 м3
  • Геометрический объем 2,0828 м3
Цена: 70956 руб.
Подробнее
ПС 120-9-20-2 АIIIвл-22 с (1.432.1-23с)
Панели стеновые Серия 1.432.1-23с
  • Длина 11970 мм.
  • Ширина 200 мм.
  • Высота 870 мм.
  • Вес 3040 кг.
  • Объем бетона 2,09 м3
  • Геометрический объем 2,0828 м3
Цена: 70956 руб.
Подробнее
ПС 120-9-20-2 АIIIвл-21 с (1.432.1-23с)
Панели стеновые Серия 1.432.1-23с
  • Длина 11970 мм.
  • Ширина 200 мм.
  • Высота 870 мм.
  • Вес 3040 кг.
  • Объем бетона 2,09 м3
  • Геометрический объем 2,0828 м3
Цена: 70956 руб.
Подробнее
ПС 120-9-20-2 АIIIвл-32 с (1.432.1-23с)
Панели стеновые Серия 1.432.1-23с
  • Длина 11970 мм.
  • Ширина 200 мм.
  • Высота 870 мм.
  • Вес 3040 кг.
  • Объем бетона 2,09 м3
  • Геометрический объем 2,0828 м3
Цена: 70956 руб.
Подробнее
ПС 120-9-20-2 АIIIвл-31 с (1.432.1-23с)
Панели стеновые Серия 1.432.1-23с
  • Длина 11970 мм.
  • Ширина 200 мм.
  • Высота 870 мм.
  • Вес 3040 кг.
  • Объем бетона 2,09 м3
  • Геометрический объем 2,0828 м3
Цена: 70956 руб.
Подробнее
ПС 120-9-20-2 АIIIвл-41 с (1.432.1-23с)
Панели стеновые Серия 1.432.1-23с
  • Длина 11970 мм.
  • Ширина 200 мм.
  • Высота 870 мм.
  • Вес 3040 кг.
  • Объем бетона 2,09 м3
  • Геометрический объем 2,0828 м3
Цена: 70956 руб.
Подробнее
ПС 120-9-20-2 АIIIвл-42 с (1.432.1-23с)
Панели стеновые Серия 1.432.1-23с
  • Длина 11970 мм.
  • Ширина 200 мм.
  • Высота 870 мм.
  • Вес 3050 кг.
  • Объем бетона 2,09 м3
  • Геометрический объем 2,0828 м3
Цена: 70956 руб.
Подробнее
ПС 120-9-25-1 АIIIвл-10 с (1.432.1-23с)
Панели стеновые Серия 1.432.1-23с
  • Длина 11970 мм.
  • Ширина 250 мм.
  • Высота 870 мм.
  • Вес 3710 кг.
  • Объем бетона 2,6 м3
  • Геометрический объем 2,6035 м3
Цена: 88270 руб.
Подробнее
ПС 120-9-25-1 АIIIвл-111 с (1.432.1-23с)
Панели стеновые Серия 1.432.1-23с
  • Длина 11970 мм.
  • Ширина 250 мм.
  • Высота 870 мм.
  • Вес 3710 кг.
  • Объем бетона 2,6 м3
  • Геометрический объем 2,6035 м3
Цена: 88270 руб.
Подробнее
ПС 120-9-25-1 л-10 с (1.432.1-23с)
Панели стеновые Серия 1.432.1-23с
  • Длина 11970 мм.
  • Ширина 250 мм.
  • Высота 870 мм.
  • Вес 3890 кг.
  • Объем бетона 2,18 м3
  • Геометрический объем 2,6035 м3
Цена: 74011 руб.
Подробнее
ПС 120-9-25-1 АIIIвл-112 с (1.432.1-23с)
Панели стеновые Серия 1.432.1-23с
  • Длина 11970 мм.
  • Ширина 250 мм.
  • Высота 870 мм.
  • Вес 3710 кг.
  • Объем бетона 2,6 м3
  • Геометрический объем 2,6035 м3
Цена: 88270 руб.
Подробнее
ПС 120-9-25-1 л-111 с (1.432.1-23с)
Панели стеновые Серия 1.432.1-23с
  • Длина 11970 мм.
  • Ширина 250 мм.
  • Высота 870 мм.
  • Вес 3890 кг.
  • Объем бетона 2,18 м3
  • Геометрический объем 2,6035 м3
Цена: 74011 руб.
Подробнее
ПС 120-9-25-2 АIIIвл-111 с (1.432.1-23с)
Панели стеновые Серия 1.432.1-23с
  • Длина 11970 мм.
  • Ширина 250 мм.
  • Высота 870 мм.
  • Вес 3720 кг.
  • Объем бетона 2,6 м3
  • Геометрический объем 2,6035 м3
Цена: 88270 руб.
Подробнее
ПС 120-9-25-2 л-112 с (1.432.1-23с)
Панели стеновые Серия 1.432.1-23с
  • Длина 11970 мм.
  • Ширина 250 мм.
  • Высота 870 мм.
  • Вес 3890 кг.
  • Объем бетона 2,18 м3
  • Геометрический объем 2,6035 м3
Цена: 74011 руб.
Подробнее
ПС 120-9-25-2 АIIIвл-10 с (1.432.1-23с)
Панели стеновые Серия 1.432.1-23с
  • Длина 11970 мм.
  • Ширина 250 мм.
  • Высота 870 мм.
  • Вес 3720 кг.
  • Объем бетона 2,6 м3
  • Геометрический объем 2,6035 м3
Цена: 88270 руб.
Подробнее
ПС 120-9-25-2 л-10 с (1.432.1-23с)
Панели стеновые Серия 1.432.1-23с
  • Длина 11970 мм.
  • Ширина 250 мм.
  • Высота 870 мм.
  • Вес 3890 кг.
  • Объем бетона 2,18 м3
  • Геометрический объем 2,6035 м3
Цена: 74011 руб.
Подробнее
ПС 120-9-25-2 АIIIвл-112 с (1.432.1-23с)
Панели стеновые Серия 1.432.1-23с
  • Длина 11970 мм.
  • Ширина 250 мм.
  • Высота 870 мм.
  • Вес 3720 кг.
  • Объем бетона 2,6 м3
  • Геометрический объем 2,6035 м3
Цена: 88270 руб.
Подробнее
ПС 120-9-25-1 л-112 с (1.432.1-23с)
Панели стеновые Серия 1.432.1-23с
  • Длина 11970 мм.
  • Ширина 250 мм.
  • Высота 870 мм.
  • Вес 3890 кг.
  • Объем бетона 2,18 м3
  • Геометрический объем 2,6035 м3
Цена: 74011 руб.
Подробнее
ПС 120-9-25-2 л-111 с (1.432.1-23с)
Панели стеновые Серия 1.432.1-23с
  • Длина 11970 мм.
  • Ширина 250 мм.
  • Высота 870 мм.
  • Вес 3890 кг.
  • Объем бетона 2,18 м3
  • Геометрический объем 2,6035 м3
Цена: 74011 руб.
Подробнее
ПС 120-9-25-3 л-21 с (1.432.1-23с)
Панели стеновые Серия 1.432.1-23с
  • Длина 11970 мм.
  • Ширина 250 мм.
  • Высота 870 мм.
  • Вес 4020 кг.
  • Объем бетона 2,18 м3
  • Геометрический объем 2,6035 м3
Цена: 74011 руб.
Подробнее
ПС 120-9-25-3 л-22 с (1.432.1-23с)
Панели стеновые Серия 1.432.1-23с
  • Длина 11970 мм.
  • Ширина 250 мм.
  • Высота 870 мм.
  • Вес 4020 кг.
  • Объем бетона 2,18 м3
  • Геометрический объем 2,6035 м3
Цена: 74011 руб.
Подробнее
ПС 120-9-25-3 л-42 с (1.432.1-23с)
Панели стеновые Серия 1.432.1-23с
  • Длина 11970 мм.
  • Ширина 250 мм.
  • Высота 870 мм.
  • Вес 4040 кг.
  • Объем бетона 2,18 м3
  • Геометрический объем 2,6035 м3
Цена: 74011 руб.
Подробнее
ПС 120-9-25-3 л-31 с (1.432.1-23с)
Панели стеновые Серия 1.432.1-23с
  • Длина 11970 мм.
  • Ширина 250 мм.
  • Высота 870 мм.
  • Вес 4020 кг.
  • Объем бетона 2,18 м3
  • Геометрический объем 2,6035 м3
Цена: 74011 руб.
Подробнее
ПС 120-9-25-3 л-32 с (1.432.1-23с)
Панели стеновые Серия 1.432.1-23с
  • Длина 11970 мм.
  • Ширина 250 мм.
  • Высота 870 мм.
  • Вес 4020 кг.
  • Объем бетона 2,18 м3
  • Геометрический объем 2,6035 м3
Цена: 74011 руб.
Подробнее
ПС 120-9-25-3 л-41 с (1.432.1-23с)
Панели стеновые Серия 1.432.1-23с
  • Длина 11970 мм.
  • Ширина 250 мм.
  • Высота 870 мм.
  • Вес 4040 кг.
  • Объем бетона 2,18 м3
  • Геометрический объем 2,6035 м3
Цена: 74011 руб.
Подробнее
ПС 120-9-25-4 АIIIвл-21 с (1.432.1-23с)
Панели стеновые Серия 1.432.1-23с
  • Длина 11970 мм.
  • Ширина 250 мм.
  • Высота 870 мм.
  • Вес 3810 кг.
  • Объем бетона 2,6 м3
  • Геометрический объем 2,6035 м3
Цена: 88270 руб.
Подробнее
ПС 120-9-25-4 АIIIвл-22 с (1.432.1-23с)
Панели стеновые Серия 1.432.1-23с
  • Длина 11970 мм.
  • Ширина 250 мм.
  • Высота 870 мм.
  • Вес 3810 кг.
  • Объем бетона 2,6 м3
  • Геометрический объем 2,6035 м3
Цена: 88270 руб.
Подробнее
ПС 120-9-25-4 АIIIвл-32 с (1.432.1-23с)
Панели стеновые Серия 1.432.1-23с
  • Длина 11970 мм.
  • Ширина 250 мм.
  • Высота 870 мм.
  • Вес 3810 кг.
  • Объем бетона 2,6 м3
  • Геометрический объем 2,6035 м3
Цена: 88270 руб.
Подробнее
ПС 120-9-25-4 АIIIвл-31 с (1.432.1-23с)
Панели стеновые Серия 1.432.1-23с
  • Длина 11970 мм.
  • Ширина 250 мм.
  • Высота 870 мм.
  • Вес 3810 кг.
  • Объем бетона 2,6 м3
  • Геометрический объем 2,6035 м3
Цена: 88270 руб.
Подробнее
ПС 120-9-25-4 АIIIвл-41 с (1.432.1-23с)
Панели стеновые Серия 1.432.1-23с
  • Длина 11970 мм.
  • Ширина 250 мм.
  • Высота 870 мм.
  • Вес 3810 кг.
  • Объем бетона 2,6 м3
  • Геометрический объем 2,6035 м3
Цена: 88270 руб.
Подробнее
ПС 120-9-25-4 АIIIвл-42 с (1.432.1-23с)
Панели стеновые Серия 1.432.1-23с
  • Длина 11970 мм.
  • Ширина 250 мм.
  • Высота 870 мм.
  • Вес 3810 кг.
  • Объем бетона 2,6 м3
  • Геометрический объем 2,6035 м3
Цена: 88270 руб.
Подробнее

Уведомление о файлах cookie

Мы используем файлы cookie для улучшения вашего опыта просмотра и анализа трафика. Нажимая "Принять все", вы соглашаетесь с нашей политикой конфиденциальности и политикой обработки файлов cookie.

Дзен Телеграм Вконтакте vk