mobile_sound +7 (930) 655-55-90

Типовые конструкции и железобетонные изделия. Рабочие чертежи (Серия 1.432.1-23с)

Поделиться:
Поделиться:

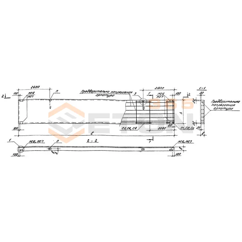
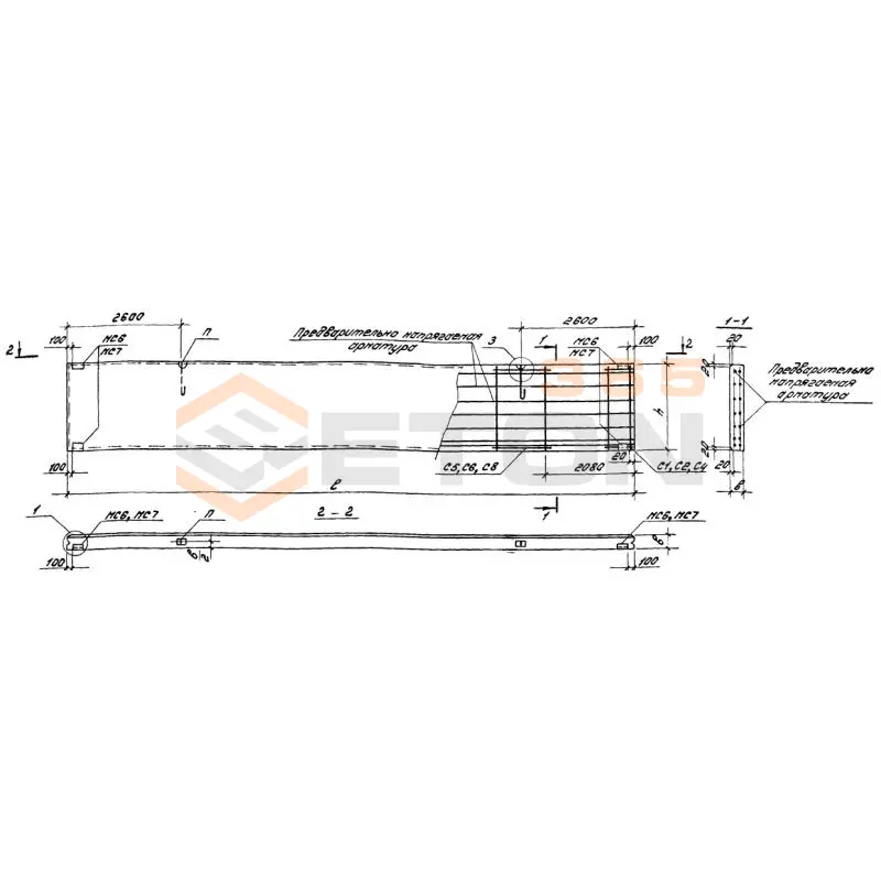
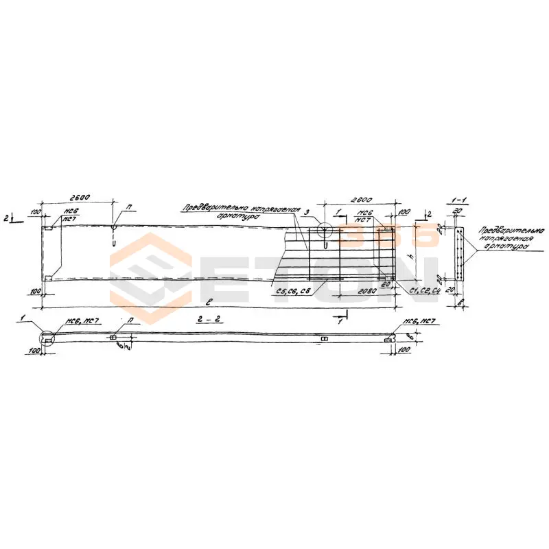
Документ Серия 1.432.1-23с описывает область применения, номенклатуру и ключевые требования, опираясь на действующие нормы и практику проектирования. Серия 1.432.1-23с состоит из пяти выпусков, детально описывающих разные части организации производственного процесса: материалы для проектирования, рабочие чертежи, соединительные стальные конструкции и монтажные узлы для обеспечения надежной фиксации смежных элементов в каркасе возводимого сооружения. Регламент был разработан проектным институтом ЦНИИПРОМЗДАНИЙ и введён в действие в действие с 1991 года приказом Госстроя СССР. Нормативный документ описывает изготовление однослойных стеновых панелей, имеющих длину 12 метров, применяемых в отапливаемых производственных сооружениях, высота которых не превышает одного этажа.

Файлы для скачивания:
picture_as_pdf

6025.pdf

3,044.5 KB

скачать
picture_as_pdf

6026.pdf

3,766.6 KB

скачать
picture_as_pdf

6027.pdf

925.1 KB

скачать
picture_as_pdf

6028.pdf

1,745.9 KB

скачать
picture_as_pdf

6029.pdf

986.8 KB

скачать
Товары Серия 1.432.1-23с (60)
ПС 120-12-25-3 л-61 с (1.432.1-23с)
Панели стеновые Серия 1.432.1-23с
  • Длина 11970 мм.
  • Ширина 250 мм.
  • Высота 1170 мм.
  • Вес 5380 кг.
  • Объем бетона 2,94 м3
  • Геометрический объем 3,5012 м3
Цена: 99813 руб.
Подробнее
ПС 120-12-25-3 л-51 с (1.432.1-23с)
Панели стеновые Серия 1.432.1-23с
  • Длина 11970 мм.
  • Ширина 250 мм.
  • Высота 1170 мм.
  • Вес 5380 кг.
  • Объем бетона 2,94 м3
  • Геометрический объем 3,5012 м3
Цена: 99813 руб.
Подробнее
ПС 120-12-25-3 л-41 с (1.432.1-23с)
Панели стеновые Серия 1.432.1-23с
  • Длина 11970 мм.
  • Ширина 250 мм.
  • Высота 1170 мм.
  • Вес 5370 кг.
  • Объем бетона 2,94 м3
  • Геометрический объем 3,5012 м3
Цена: 99813 руб.
Подробнее
ПС 120-12-25-3 л-42 с (1.432.1-23с)
Панели стеновые Серия 1.432.1-23с
  • Длина 11970 мм.
  • Ширина 250 мм.
  • Высота 1170 мм.
  • Вес 5370 кг.
  • Объем бетона 2,94 м3
  • Геометрический объем 3,5012 м3
Цена: 99813 руб.
Подробнее
ПС 120-12-25-3 л-52 с (1.432.1-23с)
Панели стеновые Серия 1.432.1-23с
  • Длина 11970 мм.
  • Ширина 250 мм.
  • Высота 1170 мм.
  • Вес 5380 кг.
  • Объем бетона 2,94 м3
  • Геометрический объем 3,5012 м3
Цена: 99813 руб.
Подробнее
ПС 120-12-25-4 АIIIвл-21 с (1.432.1-23с)
Панели стеновые Серия 1.432.1-23с
  • Длина 11970 мм.
  • Ширина 250 мм.
  • Высота 1170 мм.
  • Вес 5030 кг.
  • Объем бетона 3,5 м3
  • Геометрический объем 3,5012 м3
Цена: 118825 руб.
Подробнее
ПС 120-12-25-4 АIIIвл-22 с (1.432.1-23с)
Панели стеновые Серия 1.432.1-23с
  • Длина 11970 мм.
  • Ширина 250 мм.
  • Высота 1170 мм.
  • Вес 5030 кг.
  • Объем бетона 3,5 м3
  • Геометрический объем 3,5012 м3
Цена: 118825 руб.
Подробнее
ПС 120-12-25-4 АIIIвл-32 с (1.432.1-23с)
Панели стеновые Серия 1.432.1-23с
  • Длина 11970 мм.
  • Ширина 250 мм.
  • Высота 1170 мм.
  • Вес 5030 кг.
  • Объем бетона 3,5 м3
  • Геометрический объем 3,5012 м3
Цена: 118825 руб.
Подробнее
ПС 120-12-25-4 АIIIвл-41 с (1.432.1-23с)
Панели стеновые Серия 1.432.1-23с
  • Длина 11970 мм.
  • Ширина 250 мм.
  • Высота 1170 мм.
  • Вес 5050 кг.
  • Объем бетона 3,5 м3
  • Геометрический объем 3,5012 м3
Цена: 118825 руб.
Подробнее
ПС 120-12-25-4 АIIIвл-42 с (1.432.1-23с)
Панели стеновые Серия 1.432.1-23с
  • Длина 11970 мм.
  • Ширина 250 мм.
  • Высота 1170 мм.
  • Вес 5040 кг.
  • Объем бетона 3,5 м3
  • Геометрический объем 3,5012 м3
Цена: 118825 руб.
Подробнее
ПС 120-12-25-4 АIIIвл-31 с (1.432.1-23с)
Панели стеновые Серия 1.432.1-23с
  • Длина 11970 мм.
  • Ширина 250 мм.
  • Высота 1170 мм.
  • Вес 5030 кг.
  • Объем бетона 3,5 м3
  • Геометрический объем 3,5012 м3
Цена: 118825 руб.
Подробнее
ПС 120-12-25-4 АIIIвл-51 с (1.432.1-23с)
Панели стеновые Серия 1.432.1-23с
  • Длина 11970 мм.
  • Ширина 250 мм.
  • Высота 1170 мм.
  • Вес 5060 кг.
  • Объем бетона 3,5 м3
  • Геометрический объем 3,5012 м3
Цена: 118825 руб.
Подробнее
ПС 120-12-25-4 АIIIвл-52 с (1.432.1-23с)
Панели стеновые Серия 1.432.1-23с
  • Длина 11970 мм.
  • Ширина 250 мм.
  • Высота 1170 мм.
  • Вес 5060 кг.
  • Объем бетона 3,5 м3
  • Геометрический объем 3,5012 м3
Цена: 118825 руб.
Подробнее
ПС 120-15-20-2 АIIIвл-60 с (1.432.1-23с)
Панели стеновые Серия 1.432.1-23с
  • Длина 11970 мм.
  • Ширина 200 мм.
  • Высота 1470 мм.
  • Вес 5090 кг.
  • Объем бетона 3,52 м3
  • Геометрический объем 3,5192 м3
Цена: 119504 руб.
Подробнее
ПС 120-12-25-4 АIIIвл-62 с (1.432.1-23с)
Панели стеновые Серия 1.432.1-23с
  • Длина 11970 мм.
  • Ширина 250 мм.
  • Высота 1170 мм.
  • Вес 5050 кг.
  • Объем бетона 3,5 м3
  • Геометрический объем 3,5012 м3
Цена: 118825 руб.
Подробнее
ПС 120-15-20-2 АIIIвл-61 с (1.432.1-23с)
Панели стеновые Серия 1.432.1-23с
  • Длина 11970 мм.
  • Ширина 200 мм.
  • Высота 1470 мм.
  • Вес 5090 кг.
  • Объем бетона 3,52 м3
  • Геометрический объем 3,5192 м3
Цена: 119504 руб.
Подробнее
ПС 120-12-25-4 АIIIвл-61 с (1.432.1-23с)
Панели стеновые Серия 1.432.1-23с
  • Длина 11970 мм.
  • Ширина 250 мм.
  • Высота 1170 мм.
  • Вес 5000 кг.
  • Объем бетона 3,5 м3
  • Геометрический объем 3,5012 м3
Цена: 118825 руб.
Подробнее
ПС 120-15-20-2 АIIIвл-62 с (1.432.1-23с)
Панели стеновые Серия 1.432.1-23с
  • Длина 11970 мм.
  • Ширина 200 мм.
  • Высота 1470 мм.
  • Вес 5090 кг.
  • Объем бетона 3,52 м3
  • Геометрический объем 3,5192 м3
Цена: 119504 руб.
Подробнее
ПС 120-15-20-2 АIIIвл-651 с (1.432.1-23с)
Панели стеновые Серия 1.432.1-23с
  • Длина 11970 мм.
  • Ширина 200 мм.
  • Высота 1470 мм.
  • Вес 5090 кг.
  • Объем бетона 3,52 м3
  • Геометрический объем 3,5192 м3
Цена: 119504 руб.
Подробнее
ПС 120-15-25-2 АIIIвл-60 с (1.432.1-23с)
Панели стеновые Серия 1.432.1-23с
  • Длина 11970 мм.
  • Ширина 250 мм.
  • Высота 1470 мм.
  • Вес 6320 кг.
  • Объем бетона 4,4 м3
  • Геометрический объем 4,399 м3
Цена: 149380 руб.
Подробнее
ПС 120-15-25-2 АIIIвл-652 с (1.432.1-23с)
Панели стеновые Серия 1.432.1-23с
  • Длина 11970 мм.
  • Ширина 250 мм.
  • Высота 1470 мм.
  • Вес 6320 кг.
  • Объем бетона 4,4 м3
  • Геометрический объем 4,399 м3
Цена: 149380 руб.
Подробнее
ПС 120-15-25-2 л-651 с (1.432.1-23с)
Панели стеновые Серия 1.432.1-23с
  • Длина 11970 мм.
  • Ширина 250 мм.
  • Высота 1470 мм.
  • Вес 6760 кг.
  • Объем бетона 3,69 м3
  • Геометрический объем 4,399 м3
Цена: 125276 руб.
Подробнее
ПС 120-15-25-2 АIIIвл-651 с (1.432.1-23с)
Панели стеновые Серия 1.432.1-23с
  • Длина 11970 мм.
  • Ширина 250 мм.
  • Высота 1470 мм.
  • Вес 6320 кг.
  • Объем бетона 4,4 м3
  • Геометрический объем 4,399 м3
Цена: 149380 руб.
Подробнее
ПС 120-15-20-2 АIIIвл-652 с (1.432.1-23с)
Панели стеновые Серия 1.432.1-23с
  • Длина 11970 мм.
  • Ширина 200 мм.
  • Высота 1470 мм.
  • Вес 5090 кг.
  • Объем бетона 3,52 м3
  • Геометрический объем 3,5192 м3
Цена: 119504 руб.
Подробнее
ПС 120-15-25-2 л-60 с (1.432.1-23с)
Панели стеновые Серия 1.432.1-23с
  • Длина 11970 мм.
  • Ширина 250 мм.
  • Высота 1470 мм.
  • Вес 6760 кг.
  • Объем бетона 3,69 м3
  • Геометрический объем 4,399 м3
Цена: 125276 руб.
Подробнее
ПС 120-15-25-2 л-652 с (1.432.1-23с)
Панели стеновые Серия 1.432.1-23с
  • Длина 11970 мм.
  • Ширина 250 мм.
  • Высота 1470 мм.
  • Вес 6760 кг.
  • Объем бетона 3,69 м3
  • Геометрический объем 4,399 м3
Цена: 125276 руб.
Подробнее
ПС 120-15-25-4 АIIIвл-62 с (1.432.1-23с)
Панели стеновые Серия 1.432.1-23с
  • Длина 11970 мм.
  • Ширина 250 мм.
  • Высота 1470 мм.
  • Вес 6530 кг.
  • Объем бетона 4,4 м3
  • Геометрический объем 4,399 м3
Цена: 149380 руб.
Подробнее
ПС 120-15-25-3 л-61 с (1.432.1-23с)
Панели стеновые Серия 1.432.1-23с
  • Длина 11970 мм.
  • Ширина 250 мм.
  • Высота 1470 мм.
  • Вес 6770 кг.
  • Объем бетона 3,69 м3
  • Геометрический объем 4,399 м3
Цена: 125276 руб.
Подробнее
ПС 120-15-25-4 АIIIвл-61 с (1.432.1-23с)
Панели стеновые Серия 1.432.1-23с
  • Длина 11970 мм.
  • Ширина 250 мм.
  • Высота 1470 мм.
  • Вес 6330 кг.
  • Объем бетона 4,4 м3
  • Геометрический объем 4,399 м3
Цена: 149380 руб.
Подробнее
ПС 120-15-25-3 л-62 с (1.432.1-23с)
Панели стеновые Серия 1.432.1-23с
  • Длина 11970 мм.
  • Ширина 250 мм.
  • Высота 1470 мм.
  • Вес 6770 кг.
  • Объем бетона 3,69 м3
  • Геометрический объем 4,399 м3
Цена: 125276 руб.
Подробнее
ПС 120-18-20-1 АIIIвл-111 с (1.432.1-23с)
Панели стеновые Серия 1.432.1-23с
  • Длина 11970 мм.
  • Ширина 200 мм.
  • Высота 1770 мм.
  • Вес 6000 кг.
  • Объем бетона 4,24 м3
  • Геометрический объем 4,2374 м3
Цена: 143948 руб.
Подробнее
ПС 120-18-20-1 АIIIвл-10 с (1.432.1-23с)
Панели стеновые Серия 1.432.1-23с
  • Длина 11970 мм.
  • Ширина 200 мм.
  • Высота 1770 мм.
  • Вес 6000 кг.
  • Объем бетона 4,24 м3
  • Геометрический объем 4,2374 м3
Цена: 143948 руб.
Подробнее
ПС 120-18-20-1 АIIIвл-112 с (1.432.1-23с)
Панели стеновые Серия 1.432.1-23с
  • Длина 11970 мм.
  • Ширина 200 мм.
  • Высота 1770 мм.
  • Вес 6000 кг.
  • Объем бетона 4,24 м3
  • Геометрический объем 4,2374 м3
Цена: 143948 руб.
Подробнее
ПС 120-18-20-2 АIIIвл-10 с (1.432.1-23с)
Панели стеновые Серия 1.432.1-23с
  • Длина 11970 мм.
  • Ширина 200 мм.
  • Высота 1770 мм.
  • Вес 6050 кг.
  • Объем бетона 4,24 м3
  • Геометрический объем 4,2374 м3
Цена: 143948 руб.
Подробнее
ПС 120-18-20-2 АIIIвл-111 с (1.432.1-23с)
Панели стеновые Серия 1.432.1-23с
  • Длина 11970 мм.
  • Ширина 200 мм.
  • Высота 1770 мм.
  • Вес 6050 кг.
  • Объем бетона 4,24 м3
  • Геометрический объем 4,2374 м3
Цена: 143948 руб.
Подробнее
ПС 120-18-20-2 АIIIвл-31 с (1.432.1-23с)
Панели стеновые Серия 1.432.1-23с
  • Длина 11970 мм.
  • Ширина 200 мм.
  • Высота 1770 мм.
  • Вес 6120 кг.
  • Объем бетона 4,24 м3
  • Геометрический объем 4,2374 м3
Цена: 143948 руб.
Подробнее
ПС 120-18-20-2 АIIIвл-22 с (1.432.1-23с)
Панели стеновые Серия 1.432.1-23с
  • Длина 11970 мм.
  • Ширина 200 мм.
  • Высота 1770 мм.
  • Вес 6120 кг.
  • Объем бетона 4,24 м3
  • Геометрический объем 4,2374 м3
Цена: 143948 руб.
Подробнее
ПС 120-18-20-2 АIIIвл-32 с (1.432.1-23с)
Панели стеновые Серия 1.432.1-23с
  • Длина 11970 мм.
  • Ширина 200 мм.
  • Высота 1770 мм.
  • Вес 6120 кг.
  • Объем бетона 4,24 м3
  • Геометрический объем 4,2374 м3
Цена: 143948 руб.
Подробнее
ПС 120-18-20-2 АIIIвл-21 с (1.432.1-23с)
Панели стеновые Серия 1.432.1-23с
  • Длина 11970 мм.
  • Ширина 200 мм.
  • Высота 1770 мм.
  • Вес 6120 кг.
  • Объем бетона 4,24 м3
  • Геометрический объем 4,2374 м3
Цена: 143948 руб.
Подробнее
ПС 120-18-20-2 АIIIвл-112 с (1.432.1-23с)
Панели стеновые Серия 1.432.1-23с
  • Длина 11970 мм.
  • Ширина 200 мм.
  • Высота 1770 мм.
  • Вес 6050 кг.
  • Объем бетона 4,24 м3
  • Геометрический объем 4,2374 м3
Цена: 143948 руб.
Подробнее
ПС 120-18-20-2 АIIIвл-41 с (1.432.1-23с)
Панели стеновые Серия 1.432.1-23с
  • Длина 11970 мм.
  • Ширина 200 мм.
  • Высота 1770 мм.
  • Вес 6120 кг.
  • Объем бетона 4,24 м3
  • Геометрический объем 4,2374 м3
Цена: 143948 руб.
Подробнее
ПС 120-18-25-1 л-111 с (1.432.1-23с)
Панели стеновые Серия 1.432.1-23с
  • Длина 11970 мм.
  • Ширина 250 мм.
  • Высота 1770 мм.
  • Вес 7830 кг.
  • Объем бетона 4,44 м3
  • Геометрический объем 5,2967 м3
Цена: 150738 руб.
Подробнее
ПС 120-18-20-2 АIIIвл-42 с (1.432.1-23с)
Панели стеновые Серия 1.432.1-23с
  • Длина 11970 мм.
  • Ширина 200 мм.
  • Высота 1770 мм.
  • Вес 6120 кг.
  • Объем бетона 4,24 м3
  • Геометрический объем 4,2374 м3
Цена: 143948 руб.
Подробнее
ПС 120-18-25-1 АIIIвл-111 с (1.432.1-23с)
Панели стеновые Серия 1.432.1-23с
  • Длина 11970 мм.
  • Ширина 250 мм.
  • Высота 1770 мм.
  • Вес 7430 кг.
  • Объем бетона 5,3 м3
  • Геометрический объем 5,2967 м3
Цена: 179935 руб.
Подробнее
ПС 120-18-25-1 АIIIвл-112 с (1.432.1-23с)
Панели стеновые Серия 1.432.1-23с
  • Длина 11970 мм.
  • Ширина 250 мм.
  • Высота 1770 мм.
  • Вес 7430 кг.
  • Объем бетона 5,3 м3
  • Геометрический объем 5,2967 м3
Цена: 179935 руб.
Подробнее
ПС 120-18-25-1 л-10 с (1.432.1-23с)
Панели стеновые Серия 1.432.1-23с
  • Длина 11970 мм.
  • Ширина 250 мм.
  • Высота 1770 мм.
  • Вес 7830 кг.
  • Объем бетона 4,44 м3
  • Геометрический объем 5,2967 м3
Цена: 150738 руб.
Подробнее
ПС 120-18-25-1 АIIIвл-10 с (1.432.1-23с)
Панели стеновые Серия 1.432.1-23с
  • Длина 11970 мм.
  • Ширина 250 мм.
  • Высота 1770 мм.
  • Вес 7430 кг.
  • Объем бетона 5,3 м3
  • Геометрический объем 5,2967 м3
Цена: 179935 руб.
Подробнее
ПС 120-18-25-1 л-112 с (1.432.1-23с)
Панели стеновые Серия 1.432.1-23с
  • Длина 11970 мм.
  • Ширина 250 мм.
  • Высота 1770 мм.
  • Вес 7830 кг.
  • Объем бетона 4,44 м3
  • Геометрический объем 5,2967 м3
Цена: 150738 руб.
Подробнее
ПС 120-18-25-2 АIIIвл-111 с (1.432.1-23с)
Панели стеновые Серия 1.432.1-23с
  • Длина 11970 мм.
  • Ширина 250 мм.
  • Высота 1770 мм.
  • Вес 7470 кг.
  • Объем бетона 5,3 м3
  • Геометрический объем 5,2967 м3
Цена: 179935 руб.
Подробнее
ПС 120-18-25-2 л-111 с (1.432.1-23с)
Панели стеновые Серия 1.432.1-23с
  • Длина 11970 мм.
  • Ширина 250 мм.
  • Высота 1770 мм.
  • Вес 8000 кг.
  • Объем бетона 4,44 м3
  • Геометрический объем 5,2967 м3
Цена: 150738 руб.
Подробнее
ПС 120-18-25-2 АIIIвл-10 с (1.432.1-23с)
Панели стеновые Серия 1.432.1-23с
  • Длина 11970 мм.
  • Ширина 250 мм.
  • Высота 1770 мм.
  • Вес 7470 кг.
  • Объем бетона 5,3 м3
  • Геометрический объем 5,2967 м3
Цена: 179935 руб.
Подробнее
ПС 120-18-25-2 АIIIвл-112 с (1.432.1-23с)
Панели стеновые Серия 1.432.1-23с
  • Длина 11970 мм.
  • Ширина 250 мм.
  • Высота 1770 мм.
  • Вес 7470 кг.
  • Объем бетона 5,3 м3
  • Геометрический объем 5,2967 м3
Цена: 179935 руб.
Подробнее
ПС 120-18-25-2 л-10 с (1.432.1-23с)
Панели стеновые Серия 1.432.1-23с
  • Длина 11970 мм.
  • Ширина 250 мм.
  • Высота 1770 мм.
  • Вес 8000 кг.
  • Объем бетона 4,44 м3
  • Геометрический объем 5,2967 м3
Цена: 150738 руб.
Подробнее
ПС 120-18-25-2 л-112 с (1.432.1-23с)
Панели стеновые Серия 1.432.1-23с
  • Длина 11970 мм.
  • Ширина 250 мм.
  • Высота 1770 мм.
  • Вес 8000 кг.
  • Объем бетона 4,44 м3
  • Геометрический объем 5,2967 м3
Цена: 150738 руб.
Подробнее
ПС 120-18-25-3 л-21 с (1.432.1-23с)
Панели стеновые Серия 1.432.1-23с
  • Длина 11970 мм.
  • Ширина 250 мм.
  • Высота 1770 мм.
  • Вес 8100 кг.
  • Объем бетона 4,44 м3
  • Геометрический объем 5,2967 м3
Цена: 150738 руб.
Подробнее
ПС 120-18-25-3 л-22 с (1.432.1-23с)
Панели стеновые Серия 1.432.1-23с
  • Длина 11970 мм.
  • Ширина 250 мм.
  • Высота 1770 мм.
  • Вес 8100 кг.
  • Объем бетона 4,44 м3
  • Геометрический объем 5,2967 м3
Цена: 150738 руб.
Подробнее
ПС 120-18-25-4 АIIIвл-21 с (1.432.1-23с)
Панели стеновые Серия 1.432.1-23с
  • Длина 11970 мм.
  • Ширина 250 мм.
  • Высота 1770 мм.
  • Вес 7590 кг.
  • Объем бетона 5,3 м3
  • Геометрический объем 5,2967 м3
Цена: 179935 руб.
Подробнее
ПС 120-18-25-3 л-42 с (1.432.1-23с)
Панели стеновые Серия 1.432.1-23с
  • Длина 11970 мм.
  • Ширина 250 мм.
  • Высота 1770 мм.
  • Вес 8120 кг.
  • Объем бетона 4,44 м3
  • Геометрический объем 5,2967 м3
Цена: 150738 руб.
Подробнее
ПС 120-18-25-3 л-32 с (1.432.1-23с)
Панели стеновые Серия 1.432.1-23с
  • Длина 11970 мм.
  • Ширина 250 мм.
  • Высота 1770 мм.
  • Вес 8100 кг.
  • Объем бетона 4,44 м3
  • Геометрический объем 5,2967 м3
Цена: 150738 руб.
Подробнее
ПС 120-18-25-3 л-41 с (1.432.1-23с)
Панели стеновые Серия 1.432.1-23с
  • Длина 11970 мм.
  • Ширина 250 мм.
  • Высота 1770 мм.
  • Вес 8120 кг.
  • Объем бетона 4,44 м3
  • Геометрический объем 5,2967 м3
Цена: 150738 руб.
Подробнее

Уведомление о файлах cookie

Мы используем файлы cookie для улучшения вашего опыта просмотра и анализа трафика. Нажимая "Принять все", вы соглашаетесь с нашей политикой конфиденциальности и политикой обработки файлов cookie.

Дзен Телеграм Вконтакте vk