mobile_sound +7 (930) 655-55-90

Железобетонные опоры линий электропередачи. Рабочие чертежи (Серия 1.432.1-20)

Поделиться:
Поделиться:

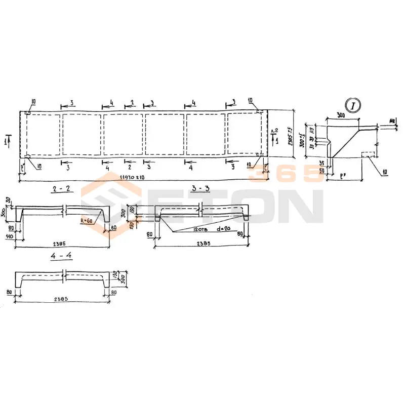
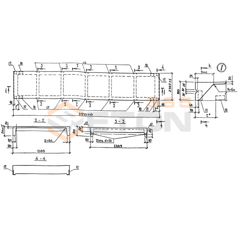
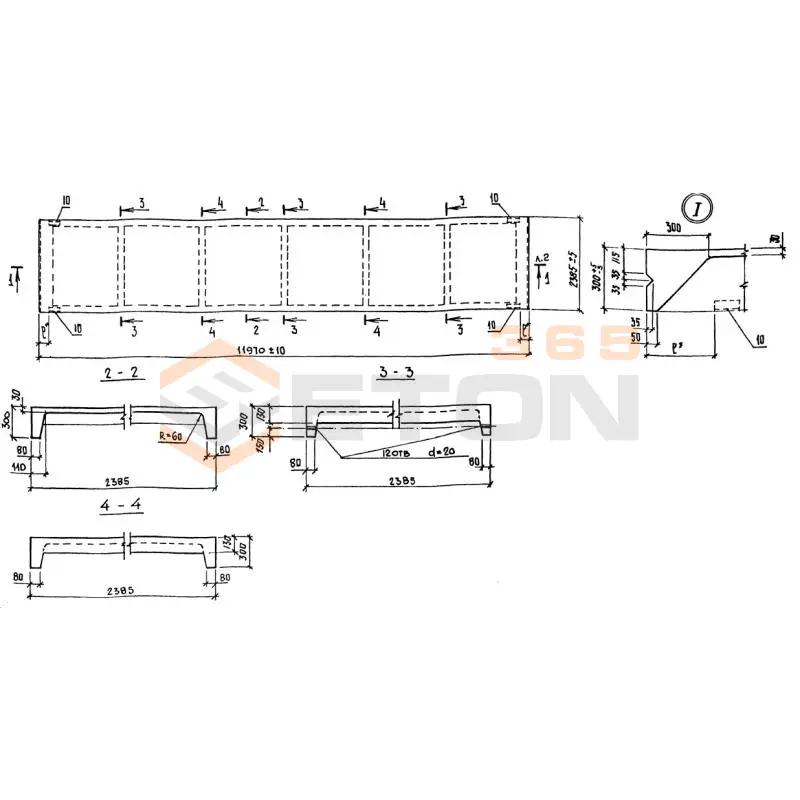
Документ Серия 1.432.1-20 описывает область применения, номенклатуру и ключевые требования, опираясь на действующие нормы и практику проектирования. Инструкции по применению, а также монтажные узлы, опалубочные чертежи и соединительные элементы, вместе с арматурными и закладными деталями изложены на страницах нормативного документа Серии 1.432.1-20 и относятся к стеновым предварительно напряженным панелям из железобетона. Данные конструкции применяются при строительстве не отапливаемых сооружений производственного назначения. Они запроектированы длиной 12 метров с высотой продольного ребра, равной 300 мм.

Файлы для скачивания:
picture_as_pdf

5214.pdf

2,758.4 KB

скачать
picture_as_pdf

5215.pdf

11,127.5 KB

скачать
picture_as_pdf

5216.pdf

2,541.3 KB

скачать
Товары Серия 1.432.1-20 (17)
ПСН 120-24-2 АтVт-2 (1.432.1-20)
Панели стеновые Серия 1.432.1-20
  • Длина 11970 мм.
  • Ширина 300 мм.
  • Высота 2385 мм.
  • Вес 4500 кг.
  • Объем бетона 1,79 м3
  • Геометрический объем 8,5645 м3
Цена: 60771 руб.
Подробнее
ПСН 120-24-2 АтVт-3 (1.432.1-20)
Панели стеновые Серия 1.432.1-20
  • Длина 11970 мм.
  • Ширина 300 мм.
  • Высота 2385 мм.
  • Вес 4500 кг.
  • Объем бетона 1,79 м3
  • Геометрический объем 8,5645 м3
Цена: 60771 руб.
Подробнее
ПСН 120-24-2 АтVт-4 (1.432.1-20)
Панели стеновые Серия 1.432.1-20
  • Длина 11970 мм.
  • Ширина 300 мм.
  • Высота 2385 мм.
  • Вес 4500 кг.
  • Объем бетона 1,79 м3
  • Геометрический объем 8,5645 м3
Цена: 60771 руб.
Подробнее
ПСН 120-24-2 АтVт-5 (1.432.1-20)
Панели стеновые Серия 1.432.1-20
  • Длина 11970 мм.
  • Ширина 300 мм.
  • Высота 2385 мм.
  • Вес 4500 кг.
  • Объем бетона 1,79 м3
  • Геометрический объем 8,5645 м3
Цена: 60771 руб.
Подробнее
ПСН 120-24-2 АтVт-6 (1.432.1-20)
Панели стеновые Серия 1.432.1-20
  • Длина 11970 мм.
  • Ширина 300 мм.
  • Высота 2385 мм.
  • Вес 4500 кг.
  • Объем бетона 1,79 м3
  • Геометрический объем 8,5645 м3
Цена: 60771 руб.
Подробнее
ПСН 120-24-2 ВрIIт-1 (1.432.1-20)
Панели стеновые Серия 1.432.1-20
  • Длина 11970 мм.
  • Ширина 300 мм.
  • Высота 2385 мм.
  • Вес 4500 кг.
  • Объем бетона 1,79 м3
  • Геометрический объем 8,5645 м3
Цена: 60771 руб.
Подробнее
ПСН 120-24-2 ВрIIт-2 (1.432.1-20)
Панели стеновые Серия 1.432.1-20
  • Длина 11970 мм.
  • Ширина 300 мм.
  • Высота 2385 мм.
  • Вес 4500 кг.
  • Объем бетона 1,79 м3
  • Геометрический объем 8,5645 м3
Цена: 60771 руб.
Подробнее
ПСН 120-24-2 ВрIIт-3 (1.432.1-20)
Панели стеновые Серия 1.432.1-20
  • Длина 11970 мм.
  • Ширина 300 мм.
  • Высота 2385 мм.
  • Вес 4500 кг.
  • Объем бетона 1,79 м3
  • Геометрический объем 8,5645 м3
Цена: 60771 руб.
Подробнее
ПСН 120-24-2 ВрIIт-4 (1.432.1-20)
Панели стеновые Серия 1.432.1-20
  • Длина 11970 мм.
  • Ширина 300 мм.
  • Высота 2385 мм.
  • Вес 4500 кг.
  • Объем бетона 1,79 м3
  • Геометрический объем 8,5645 м3
Цена: 60771 руб.
Подробнее
ПСН 120-24-2 ВрIIт-6 (1.432.1-20)
Панели стеновые Серия 1.432.1-20
  • Длина 11970 мм.
  • Ширина 300 мм.
  • Высота 2385 мм.
  • Вес 4500 кг.
  • Объем бетона 1,79 м3
  • Геометрический объем 8,5645 м3
Цена: 60771 руб.
Подробнее
ПСН 120-24-2 ВрIIт-5 (1.432.1-20)
Панели стеновые Серия 1.432.1-20
  • Длина 11970 мм.
  • Ширина 300 мм.
  • Высота 2385 мм.
  • Вес 4500 кг.
  • Объем бетона 1,79 м3
  • Геометрический объем 8,5645 м3
Цена: 60771 руб.
Подробнее
ПСН 120-24-2 к7т-2 (1.432.1-20)
Панели стеновые Серия 1.432.1-20
  • Длина 11970 мм.
  • Ширина 300 мм.
  • Высота 2385 мм.
  • Вес 4500 кг.
  • Объем бетона 1,79 м3
  • Геометрический объем 8,5645 м3
Цена: 60771 руб.
Подробнее
ПСН 120-24-2 к7т-1 (1.432.1-20)
Панели стеновые Серия 1.432.1-20
  • Длина 11970 мм.
  • Ширина 300 мм.
  • Высота 2385 мм.
  • Вес 4500 кг.
  • Объем бетона 1,79 м3
  • Геометрический объем 8,5645 м3
Цена: 60771 руб.
Подробнее
ПСН 120-24-2 к7т-3 (1.432.1-20)
Панели стеновые Серия 1.432.1-20
  • Длина 11970 мм.
  • Ширина 300 мм.
  • Высота 2385 мм.
  • Вес 4500 кг.
  • Объем бетона 1,79 м3
  • Геометрический объем 8,5645 м3
Цена: 60771 руб.
Подробнее
ПСН 120-24-2 к7т-4 (1.432.1-20)
Панели стеновые Серия 1.432.1-20
  • Длина 11970 мм.
  • Ширина 300 мм.
  • Высота 2385 мм.
  • Вес 4500 кг.
  • Объем бетона 1,79 м3
  • Геометрический объем 8,5645 м3
Цена: 60771 руб.
Подробнее
ПСН 120-24-2 к7т-5 (1.432.1-20)
Панели стеновые Серия 1.432.1-20
  • Длина 11970 мм.
  • Ширина 300 мм.
  • Высота 2385 мм.
  • Вес 4500 кг.
  • Объем бетона 1,79 м3
  • Геометрический объем 8,5645 м3
Цена: 60771 руб.
Подробнее
ПСН 120-24-2 к7т-6 (1.432.1-20)
Панели стеновые Серия 1.432.1-20
  • Длина 11970 мм.
  • Ширина 300 мм.
  • Высота 2385 мм.
  • Вес 4500 кг.
  • Объем бетона 1,79 м3
  • Геометрический объем 8,5645 м3
Цена: 60771 руб.
Подробнее

Уведомление о файлах cookie

Мы используем файлы cookie для улучшения вашего опыта просмотра и анализа трафика. Нажимая "Принять все", вы соглашаетесь с нашей политикой конфиденциальности и политикой обработки файлов cookie.

Дзен Телеграм Вконтакте vk