mobile_sound +7 (930) 655-55-90

Железобетонные опоры линий электропередачи. Рабочие чертежи (Серия 1.432.1-20)

Поделиться:
Поделиться:

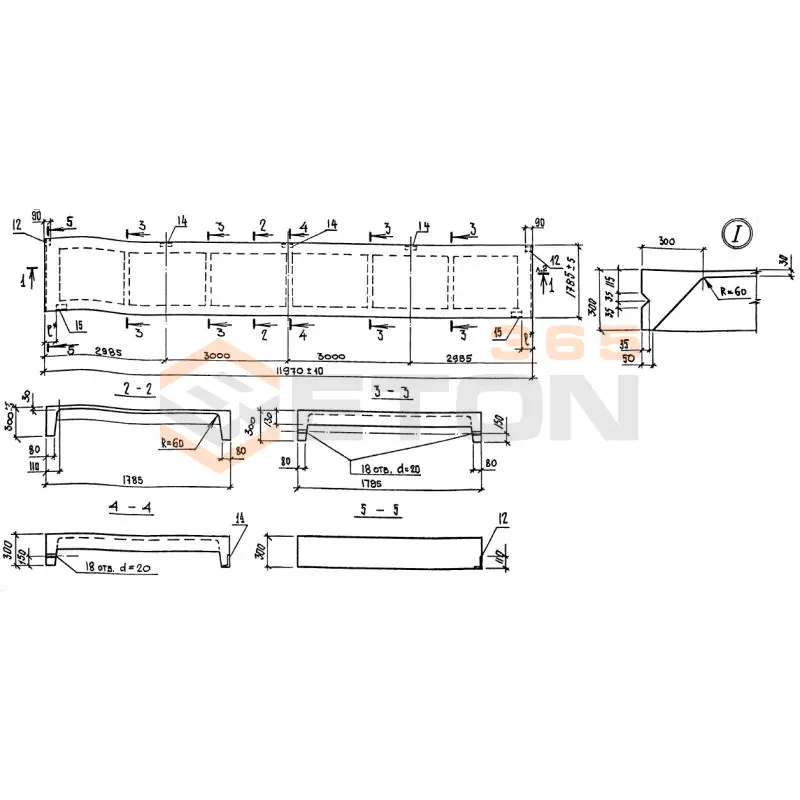
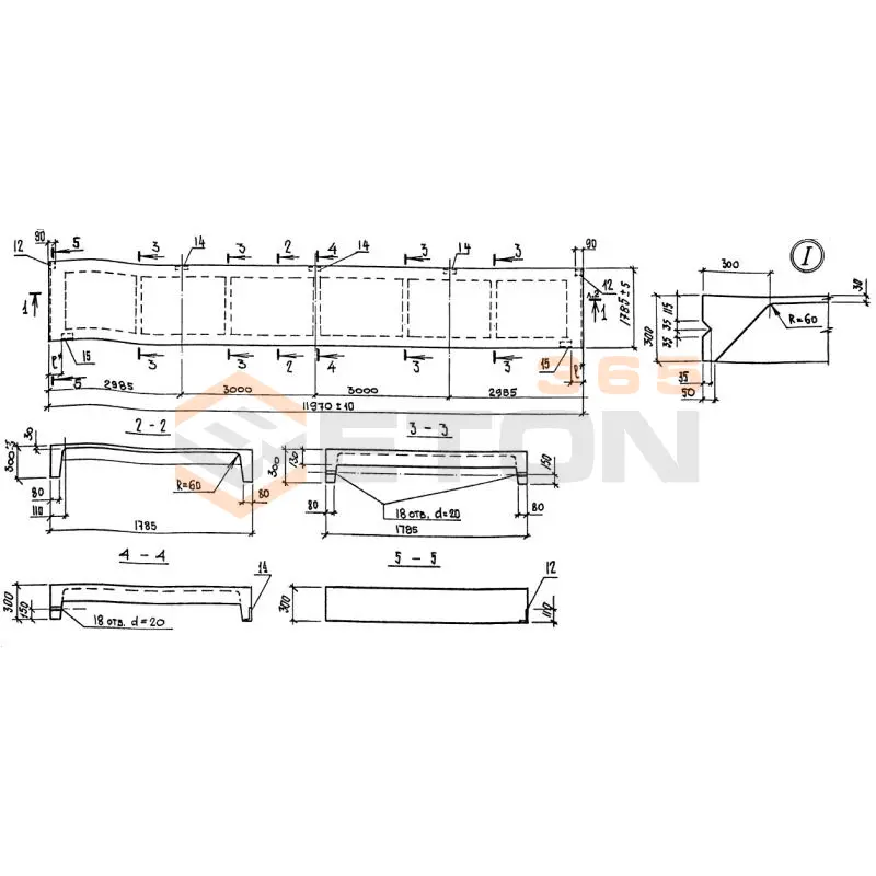
Документ Серия 1.432.1-20 описывает область применения, номенклатуру и ключевые требования, опираясь на действующие нормы и практику проектирования. Инструкции по применению, а также монтажные узлы, опалубочные чертежи и соединительные элементы, вместе с арматурными и закладными деталями изложены на страницах нормативного документа Серии 1.432.1-20 и относятся к стеновым предварительно напряженным панелям из железобетона. Данные конструкции применяются при строительстве не отапливаемых сооружений производственного назначения. Они запроектированы длиной 12 метров с высотой продольного ребра, равной 300 мм.

Файлы для скачивания:
picture_as_pdf

5214.pdf

2,758.4 KB

скачать
picture_as_pdf

5215.pdf

11,127.5 KB

скачать
picture_as_pdf

5216.pdf

2,541.3 KB

скачать
Товары Серия 1.432.1-20 (60)
ПСН 120-12-2 ВрIIIт-1 (1.432.1-20)
Панели стеновые Серия 1.432.1-20
  • Длина 11970 мм.
  • Ширина 300 мм.
  • Высота 1185 мм.
  • Вес 3000 кг.
  • Объем бетона 1,22 м3
  • Геометрический объем 4,2553 м3
Цена: 41419 руб.
Подробнее
ПСН 120-12-2 ВрIIт-5 (1.432.1-20)
Панели стеновые Серия 1.432.1-20
  • Длина 11970 мм.
  • Ширина 300 мм.
  • Высота 1185 мм.
  • Вес 3000 кг.
  • Объем бетона 1,22 м3
  • Геометрический объем 4,2553 м3
Цена: 41419 руб.
Подробнее
ПСН 120-12-2 к7т-3 (1.432.1-20)
Панели стеновые Серия 1.432.1-20
  • Длина 11970 мм.
  • Ширина 300 мм.
  • Высота 1185 мм.
  • Вес 3000 кг.
  • Объем бетона 1,22 м3
  • Геометрический объем 4,2553 м3
Цена: 41419 руб.
Подробнее
ПСН 120-12-2 ВрIIт-6 (1.432.1-20)
Панели стеновые Серия 1.432.1-20
  • Длина 11970 мм.
  • Ширина 300 мм.
  • Высота 1185 мм.
  • Вес 3000 кг.
  • Объем бетона 1,22 м3
  • Геометрический объем 4,2553 м3
Цена: 41419 руб.
Подробнее
ПСН 120-12-2 к7-1 (1.432.1-20)
Панели стеновые Серия 1.432.1-20
  • Длина 11970 мм.
  • Ширина 300 мм.
  • Высота 1185 мм.
  • Вес 3000 кг.
  • Объем бетона 1,22 м3
  • Геометрический объем 4,2553 м3
Цена: 41419 руб.
Подробнее
ПСН 120-12-2 к7т-4 (1.432.1-20)
Панели стеновые Серия 1.432.1-20
  • Длина 11970 мм.
  • Ширина 300 мм.
  • Высота 1185 мм.
  • Вес 3000 кг.
  • Объем бетона 1,22 м3
  • Геометрический объем 4,2553 м3
Цена: 41419 руб.
Подробнее
ПСН 120-12-2 к7т-2 (1.432.1-20)
Панели стеновые Серия 1.432.1-20
  • Длина 11970 мм.
  • Ширина 300 мм.
  • Высота 1185 мм.
  • Вес 3000 кг.
  • Объем бетона 1,22 м3
  • Геометрический объем 4,2553 м3
Цена: 41419 руб.
Подробнее
ПСН 120-12-2 к7т-5 (1.432.1-20)
Панели стеновые Серия 1.432.1-20
  • Длина 11970 мм.
  • Ширина 300 мм.
  • Высота 1185 мм.
  • Вес 3000 кг.
  • Объем бетона 1,22 м3
  • Геометрический объем 4,2553 м3
Цена: 41419 руб.
Подробнее
ПСН 120-12-2 к7т-6 (1.432.1-20)
Панели стеновые Серия 1.432.1-20
  • Длина 11970 мм.
  • Ширина 300 мм.
  • Высота 1185 мм.
  • Вес 3000 кг.
  • Объем бетона 1,22 м3
  • Геометрический объем 4,2553 м3
Цена: 41419 руб.
Подробнее
ПСН 120-18-1 АIIIвт-3 (1.432.1-20)
Панели стеновые Серия 1.432.1-20
  • Длина 11970 мм.
  • Ширина 300 мм.
  • Высота 1785 мм.
  • Вес 3700 кг.
  • Объем бетона 1,49 м3
  • Геометрический объем 6,4099 м3
Цена: 50586 руб.
Подробнее
ПСН 120-18-1 АIVт-1 (1.432.1-20)
Панели стеновые Серия 1.432.1-20
  • Длина 11970 мм.
  • Ширина 300 мм.
  • Высота 1785 мм.
  • Вес 3700 кг.
  • Объем бетона 1,49 м3
  • Геометрический объем 6,4099 м3
Цена: 50586 руб.
Подробнее
ПСН 120-18-1 АIIIвт-2 (1.432.1-20)
Панели стеновые Серия 1.432.1-20
  • Длина 11970 мм.
  • Ширина 300 мм.
  • Высота 1785 мм.
  • Вес 3700 кг.
  • Объем бетона 1,49 м3
  • Геометрический объем 6,4099 м3
Цена: 50586 руб.
Подробнее
ПСН 120-18-1 АIIIвт-1 (1.432.1-20)
Панели стеновые Серия 1.432.1-20
  • Длина 11970 мм.
  • Ширина 300 мм.
  • Высота 1785 мм.
  • Вес 3700 кг.
  • Объем бетона 1,49 м3
  • Геометрический объем 6,4099 м3
Цена: 50586 руб.
Подробнее
ПСН 120-18-1 АIVт-2 (1.432.1-20)
Панели стеновые Серия 1.432.1-20
  • Длина 11970 мм.
  • Ширина 300 мм.
  • Высота 1785 мм.
  • Вес 3700 кг.
  • Объем бетона 1,49 м3
  • Геометрический объем 6,4099 м3
Цена: 50586 руб.
Подробнее
ПСН 120-18-1 АIIIвт-5 (1.432.1-20)
Панели стеновые Серия 1.432.1-20
  • Длина 11970 мм.
  • Ширина 300 мм.
  • Высота 1785 мм.
  • Вес 3700 кг.
  • Объем бетона 1,49 м3
  • Геометрический объем 6,4099 м3
Цена: 50586 руб.
Подробнее
ПСН 120-18-1 АIVт-3 (1.432.1-20)
Панели стеновые Серия 1.432.1-20
  • Длина 11970 мм.
  • Ширина 300 мм.
  • Высота 1785 мм.
  • Вес 3700 кг.
  • Объем бетона 1,49 м3
  • Геометрический объем 6,4099 м3
Цена: 50586 руб.
Подробнее
ПСН 120-18-1 АIVт-5 (1.432.1-20)
Панели стеновые Серия 1.432.1-20
  • Длина 11970 мм.
  • Ширина 300 мм.
  • Высота 1785 мм.
  • Вес 3700 кг.
  • Объем бетона 1,49 м3
  • Геометрический объем 6,4099 м3
Цена: 50586 руб.
Подробнее
ПСН 120-18-1 АтVIт-1 (1.432.1-20)
Панели стеновые Серия 1.432.1-20
  • Длина 11970 мм.
  • Ширина 300 мм.
  • Высота 1785 мм.
  • Вес 3700 кг.
  • Объем бетона 1,49 м3
  • Геометрический объем 6,4099 м3
Цена: 50586 руб.
Подробнее
ПСН 120-18-1 АтVIт-2 (1.432.1-20)
Панели стеновые Серия 1.432.1-20
  • Длина 11970 мм.
  • Ширина 300 мм.
  • Высота 1785 мм.
  • Вес 3700 кг.
  • Объем бетона 1,49 м3
  • Геометрический объем 6,4099 м3
Цена: 50586 руб.
Подробнее
ПСН 120-18-1 АтVт-1 (1.432.1-20)
Панели стеновые Серия 1.432.1-20
  • Длина 11970 мм.
  • Ширина 300 мм.
  • Высота 1785 мм.
  • Вес 3700 кг.
  • Объем бетона 1,49 м3
  • Геометрический объем 6,4099 м3
Цена: 50586 руб.
Подробнее
ПСН 120-18-1 АтVIт-5 (1.432.1-20)
Панели стеновые Серия 1.432.1-20
  • Длина 11970 мм.
  • Ширина 300 мм.
  • Высота 1785 мм.
  • Вес 3700 кг.
  • Объем бетона 1,49 м3
  • Геометрический объем 6,4099 м3
Цена: 50586 руб.
Подробнее
ПСН 120-18-1 АтVIт-3 (1.432.1-20)
Панели стеновые Серия 1.432.1-20
  • Длина 11970 мм.
  • Ширина 300 мм.
  • Высота 1785 мм.
  • Вес 3700 кг.
  • Объем бетона 1,49 м3
  • Геометрический объем 6,4099 м3
Цена: 50586 руб.
Подробнее
ПСН 120-18-1 АтVт-2 (1.432.1-20)
Панели стеновые Серия 1.432.1-20
  • Длина 11970 мм.
  • Ширина 300 мм.
  • Высота 1785 мм.
  • Вес 3700 кг.
  • Объем бетона 1,49 м3
  • Геометрический объем 6,4099 м3
Цена: 50586 руб.
Подробнее
ПСН 120-18-1 АтVт-5 (1.432.1-20)
Панели стеновые Серия 1.432.1-20
  • Длина 11970 мм.
  • Ширина 300 мм.
  • Высота 1785 мм.
  • Вес 3700 кг.
  • Объем бетона 1,49 м3
  • Геометрический объем 6,4099 м3
Цена: 50586 руб.
Подробнее
ПСН 120-18-1 АтVт-3 (1.432.1-20)
Панели стеновые Серия 1.432.1-20
  • Длина 11970 мм.
  • Ширина 300 мм.
  • Высота 1785 мм.
  • Вес 3700 кг.
  • Объем бетона 1,49 м3
  • Геометрический объем 6,4099 м3
Цена: 50586 руб.
Подробнее
ПСН 120-18-1 ВрIIт-1 (1.432.1-20)
Панели стеновые Серия 1.432.1-20
  • Длина 11970 мм.
  • Ширина 300 мм.
  • Высота 1785 мм.
  • Вес 3700 кг.
  • Объем бетона 1,49 м3
  • Геометрический объем 6,4099 м3
Цена: 50586 руб.
Подробнее
ПСН 120-18-1 ВрIIт-2 (1.432.1-20)
Панели стеновые Серия 1.432.1-20
  • Длина 11970 мм.
  • Ширина 300 мм.
  • Высота 1785 мм.
  • Вес 3700 кг.
  • Объем бетона 1,49 м3
  • Геометрический объем 6,4099 м3
Цена: 50586 руб.
Подробнее
ПСН 120-18-1 ВрIIт-3 (1.432.1-20)
Панели стеновые Серия 1.432.1-20
  • Длина 11970 мм.
  • Ширина 300 мм.
  • Высота 1785 мм.
  • Вес 3700 кг.
  • Объем бетона 1,49 м3
  • Геометрический объем 6,4099 м3
Цена: 50586 руб.
Подробнее
ПСН 120-18-1 ВрIIт-5 (1.432.1-20)
Панели стеновые Серия 1.432.1-20
  • Длина 11970 мм.
  • Ширина 300 мм.
  • Высота 1785 мм.
  • Вес 3700 кг.
  • Объем бетона 1,49 м3
  • Геометрический объем 6,4099 м3
Цена: 50586 руб.
Подробнее
ПСН 120-18-2 AIIIвт-4 (1.432.1-20)
Панели стеновые Серия 1.432.1-20
  • Длина 11970 мм.
  • Ширина 300 мм.
  • Высота 1785 мм.
  • Вес 3700 кг.
  • Объем бетона 1,49 м3
  • Геометрический объем 6,4099 м3
Цена: 50586 руб.
Подробнее
ПСН 120-18-2 AIVт-4 (1.432.1-20)
Панели стеновые Серия 1.432.1-20
  • Длина 11970 мм.
  • Ширина 300 мм.
  • Высота 1785 мм.
  • Вес 3700 кг.
  • Объем бетона 1,49 м3
  • Геометрический объем 6,4099 м3
Цена: 50586 руб.
Подробнее
ПСН 120-18-2 АIIIвт-2 (1.432.1-20)
Панели стеновые Серия 1.432.1-20
  • Длина 11970 мм.
  • Ширина 300 мм.
  • Высота 1785 мм.
  • Вес 3700 кг.
  • Объем бетона 1,49 м3
  • Геометрический объем 6,4099 м3
Цена: 50586 руб.
Подробнее
ПСН 120-18-2 АIIIвт-3 (1.432.1-20)
Панели стеновые Серия 1.432.1-20
  • Длина 11970 мм.
  • Ширина 300 мм.
  • Высота 1785 мм.
  • Вес 3700 кг.
  • Объем бетона 1,49 м3
  • Геометрический объем 6,4099 м3
Цена: 50586 руб.
Подробнее
ПСН 120-18-2 АIIIвт-1 (1.432.1-20)
Панели стеновые Серия 1.432.1-20
  • Длина 11970 мм.
  • Ширина 300 мм.
  • Высота 1785 мм.
  • Вес 3700 кг.
  • Объем бетона 1,49 м3
  • Геометрический объем 6,4099 м3
Цена: 50586 руб.
Подробнее
ПСН 120-18-2 АIIIвт-5 (1.432.1-20)
Панели стеновые Серия 1.432.1-20
  • Длина 11970 мм.
  • Ширина 300 мм.
  • Высота 1785 мм.
  • Вес 3700 кг.
  • Объем бетона 1,49 м3
  • Геометрический объем 6,4099 м3
Цена: 50586 руб.
Подробнее
ПСН 120-18-2 АIIIвт-6 (1.432.1-20)
Панели стеновые Серия 1.432.1-20
  • Длина 11970 мм.
  • Ширина 300 мм.
  • Высота 1785 мм.
  • Вес 3700 кг.
  • Объем бетона 1,49 м3
  • Геометрический объем 6,4099 м3
Цена: 50586 руб.
Подробнее
ПСН 120-18-2 АIVт-2 (1.432.1-20)
Панели стеновые Серия 1.432.1-20
  • Длина 11970 мм.
  • Ширина 300 мм.
  • Высота 1785 мм.
  • Вес 3700 кг.
  • Объем бетона 1,49 м3
  • Геометрический объем 6,4099 м3
Цена: 50586 руб.
Подробнее
ПСН 120-18-2 АIVт-3 (1.432.1-20)
Панели стеновые Серия 1.432.1-20
  • Длина 11970 мм.
  • Ширина 300 мм.
  • Высота 1785 мм.
  • Вес 3700 кг.
  • Объем бетона 1,49 м3
  • Геометрический объем 6,4099 м3
Цена: 50586 руб.
Подробнее
ПСН 120-18-2 АIVт-1 (1.432.1-20)
Панели стеновые Серия 1.432.1-20
  • Длина 11970 мм.
  • Ширина 300 мм.
  • Высота 1785 мм.
  • Вес 3700 кг.
  • Объем бетона 1,49 м3
  • Геометрический объем 6,4099 м3
Цена: 50586 руб.
Подробнее
ПСН 120-18-2 АIVт-5 (1.432.1-20)
Панели стеновые Серия 1.432.1-20
  • Длина 11970 мм.
  • Ширина 300 мм.
  • Высота 1785 мм.
  • Вес 3700 кг.
  • Объем бетона 1,49 м3
  • Геометрический объем 6,4099 м3
Цена: 50586 руб.
Подробнее
ПСН 120-18-2 АIVт-6 (1.432.1-20)
Панели стеновые Серия 1.432.1-20
  • Длина 11970 мм.
  • Ширина 300 мм.
  • Высота 1785 мм.
  • Вес 3700 кг.
  • Объем бетона 1,49 м3
  • Геометрический объем 6,4099 м3
Цена: 50586 руб.
Подробнее
ПСН 120-18-2 АтVIт-1 (1.432.1-20)
Панели стеновые Серия 1.432.1-20
  • Длина 11970 мм.
  • Ширина 300 мм.
  • Высота 1785 мм.
  • Вес 3700 кг.
  • Объем бетона 1,49 м3
  • Геометрический объем 6,4099 м3
Цена: 50586 руб.
Подробнее
ПСН 120-18-2 АтVIт-2 (1.432.1-20)
Панели стеновые Серия 1.432.1-20
  • Длина 11970 мм.
  • Ширина 300 мм.
  • Высота 1785 мм.
  • Вес 3700 кг.
  • Объем бетона 1,49 м3
  • Геометрический объем 6,4099 м3
Цена: 50586 руб.
Подробнее
ПСН 120-18-2 АтVIт-3 (1.432.1-20)
Панели стеновые Серия 1.432.1-20
  • Длина 11970 мм.
  • Ширина 300 мм.
  • Высота 1785 мм.
  • Вес 3700 кг.
  • Объем бетона 1,49 м3
  • Геометрический объем 6,4099 м3
Цена: 50586 руб.
Подробнее
ПСН 120-18-2 АтVIт-4 (1.432.1-20)
Панели стеновые Серия 1.432.1-20
  • Длина 11970 мм.
  • Ширина 300 мм.
  • Высота 1785 мм.
  • Вес 3700 кг.
  • Объем бетона 1,49 м3
  • Геометрический объем 6,4099 м3
Цена: 50586 руб.
Подробнее
ПСН 120-18-2 АтVт-3 (1.432.1-20)
Панели стеновые Серия 1.432.1-20
  • Длина 11970 мм.
  • Ширина 300 мм.
  • Высота 1785 мм.
  • Вес 3700 кг.
  • Объем бетона 1,49 м3
  • Геометрический объем 6,4099 м3
Цена: 50586 руб.
Подробнее
ПСН 120-18-2 АтVIт-6 (1.432.1-20)
Панели стеновые Серия 1.432.1-20
  • Длина 11970 мм.
  • Ширина 300 мм.
  • Высота 1785 мм.
  • Вес 3700 кг.
  • Объем бетона 1,49 м3
  • Геометрический объем 6,4099 м3
Цена: 50586 руб.
Подробнее
ПСН 120-18-2 АтVIт-5 (1.432.1-20)
Панели стеновые Серия 1.432.1-20
  • Длина 11970 мм.
  • Ширина 300 мм.
  • Высота 1785 мм.
  • Вес 3700 кг.
  • Объем бетона 1,49 м3
  • Геометрический объем 6,4099 м3
Цена: 50586 руб.
Подробнее
ПСН 120-18-2 АтVт-1 (1.432.1-20)
Панели стеновые Серия 1.432.1-20
  • Длина 11970 мм.
  • Ширина 300 мм.
  • Высота 1785 мм.
  • Вес 3700 кг.
  • Объем бетона 1,49 м3
  • Геометрический объем 6,4099 м3
Цена: 50586 руб.
Подробнее
ПСН 120-18-2 АтVт-2 (1.432.1-20)
Панели стеновые Серия 1.432.1-20
  • Длина 11970 мм.
  • Ширина 300 мм.
  • Высота 1785 мм.
  • Вес 3700 кг.
  • Объем бетона 1,49 м3
  • Геометрический объем 6,4099 м3
Цена: 50586 руб.
Подробнее
ПСН 120-18-2 АтVт-4 (1.432.1-20)
Панели стеновые Серия 1.432.1-20
  • Длина 11970 мм.
  • Ширина 300 мм.
  • Высота 1785 мм.
  • Вес 3700 кг.
  • Объем бетона 1,49 м3
  • Геометрический объем 6,4099 м3
Цена: 50586 руб.
Подробнее
ПСН 120-18-2 АтVт-5 (1.432.1-20)
Панели стеновые Серия 1.432.1-20
  • Длина 11970 мм.
  • Ширина 300 мм.
  • Высота 1785 мм.
  • Вес 3700 кг.
  • Объем бетона 1,49 м3
  • Геометрический объем 6,4099 м3
Цена: 50586 руб.
Подробнее
ПСН 120-18-2 ВрIIт-3 (1.432.1-20)
Панели стеновые Серия 1.432.1-20
  • Длина 11970 мм.
  • Ширина 300 мм.
  • Высота 1785 мм.
  • Вес 3700 кг.
  • Объем бетона 1,49 м3
  • Геометрический объем 6,4099 м3
Цена: 50586 руб.
Подробнее
ПСН 120-18-2 АтVт-6 (1.432.1-20)
Панели стеновые Серия 1.432.1-20
  • Длина 11970 мм.
  • Ширина 300 мм.
  • Высота 1785 мм.
  • Вес 3700 кг.
  • Объем бетона 1,49 м3
  • Геометрический объем 6,4099 м3
Цена: 50586 руб.
Подробнее
ПСН 120-18-2 ВрIIт-2 (1.432.1-20)
Панели стеновые Серия 1.432.1-20
  • Длина 11970 мм.
  • Ширина 300 мм.
  • Высота 1785 мм.
  • Вес 3700 кг.
  • Объем бетона 1,49 м3
  • Геометрический объем 6,4099 м3
Цена: 50586 руб.
Подробнее
ПСН 120-18-2 ВрIIт-1 (1.432.1-20)
Панели стеновые Серия 1.432.1-20
  • Длина 11970 мм.
  • Ширина 300 мм.
  • Высота 1785 мм.
  • Вес 3700 кг.
  • Объем бетона 1,49 м3
  • Геометрический объем 6,4099 м3
Цена: 50586 руб.
Подробнее
ПСН 120-18-2 ВрIIт-4 (1.432.1-20)
Панели стеновые Серия 1.432.1-20
  • Длина 11970 мм.
  • Ширина 300 мм.
  • Высота 1785 мм.
  • Вес 3700 кг.
  • Объем бетона 1,49 м3
  • Геометрический объем 6,4099 м3
Цена: 50586 руб.
Подробнее
ПСН 120-18-2 ВрIIт-5 (1.432.1-20)
Панели стеновые Серия 1.432.1-20
  • Длина 11970 мм.
  • Ширина 300 мм.
  • Высота 1785 мм.
  • Вес 3700 кг.
  • Объем бетона 1,49 м3
  • Геометрический объем 6,4099 м3
Цена: 50586 руб.
Подробнее
ПСН 120-18-2 ВрIIт-6 (1.432.1-20)
Панели стеновые Серия 1.432.1-20
  • Длина 11970 мм.
  • Ширина 300 мм.
  • Высота 1785 мм.
  • Вес 3700 кг.
  • Объем бетона 1,49 м3
  • Геометрический объем 6,4099 м3
Цена: 50586 руб.
Подробнее
ПСН 120-18-2 к7т-1 (1.432.1-20)
Панели стеновые Серия 1.432.1-20
  • Длина 11970 мм.
  • Ширина 300 мм.
  • Высота 1785 мм.
  • Вес 3700 кг.
  • Объем бетона 1,49 м3
  • Геометрический объем 6,4099 м3
Цена: 50586 руб.
Подробнее

Уведомление о файлах cookie

Мы используем файлы cookie для улучшения вашего опыта просмотра и анализа трафика. Нажимая "Принять все", вы соглашаетесь с нашей политикой конфиденциальности и политикой обработки файлов cookie.

Дзен Телеграм Вконтакте vk