mobile_sound +7 (930) 655-55-90

Типовые конструкции и железобетонные изделия. Рабочие чертежи (Серия 1.232 КЛ-2)

Поделиться:
Поделиться:

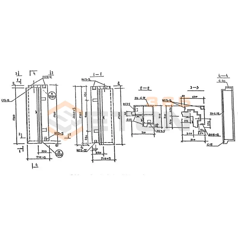
Документ Серия 1.232 КЛ-2 описывает область применения, номенклатуру и ключевые требования, опираясь на действующие нормы и практику проектирования. Общие материалы и технические условия для проектирования унифицированных панелей наружных стен прописаны в выпусках нормативного документа Серии 1.232 КЛ-2. Всего насчитывается шесть выпусков, разработанных институтом ЛЕННИИПРОЕКТ и введенных в действие с 1978 года. В них приведены опалубочные и арматурные чертежи, а также изложены условия производства и монтажа строительных конструкций.

Файлы для скачивания:
picture_as_pdf

4979.pdf

7,717.2 KB

скачать
picture_as_pdf

4980.pdf

12,133.5 KB

скачать
picture_as_pdf

4981.pdf

7,598.0 KB

скачать
picture_as_pdf

4982.pdf

3,534.2 KB

скачать
picture_as_pdf

4983.pdf

4,906.3 KB

скачать
picture_as_pdf

4984.pdf

8,236.6 KB

скачать
Товары Серия 1.232 КЛ-2 (12)
НР 5-57-9-35 (1.232 КЛ-2)
Панели наружных стен Серия 1.232 КЛ-2
  • Длина 5720 мм.
  • Ширина 350 мм.
  • Высота 960 мм.
  • Вес 2140 кг.
  • Объем бетона 1,78 м3
  • Геометрический объем 1,9219 м3
Цена: 60431 руб.
Подробнее
НРУ 6-12-35 (1.232 КЛ-2)
Панели наружных стен Серия 1.232 КЛ-2
  • Длина 610 мм.
  • Ширина 350 мм.
  • Высота 1260 мм.
  • Вес 410 кг.
  • Объем бетона 0,32 м3
  • Геометрический объем 0,269 м3
Цена: 10864 руб.
Подробнее
НРУ 6-15-35 (1.232 КЛ-2)
Панели наружных стен Серия 1.232 КЛ-2
  • Длина 610 мм.
  • Ширина 350 мм.
  • Высота 1560 мм.
  • Вес 500 кг.
  • Объем бетона 0,39 м3
  • Геометрический объем 0,3331 м3
Цена: 13241 руб.
Подробнее
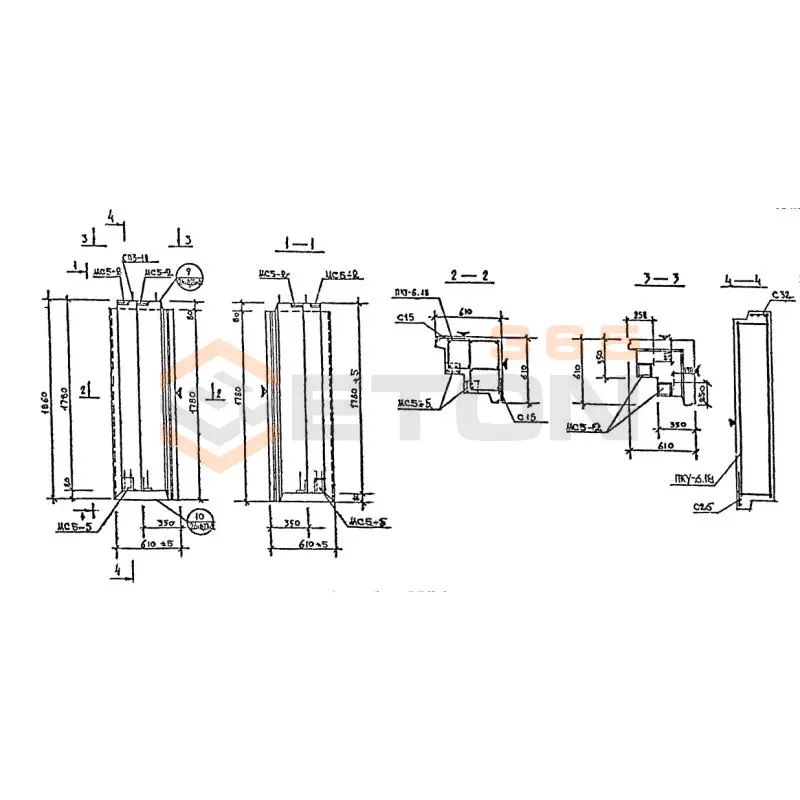
НРУ 6-18-35 (1.232 КЛ-2)
Панели наружных стен Серия 1.232 КЛ-2
  • Длина 610 мм.
  • Ширина 350 мм.
  • Высота 1860 мм.
  • Вес 600 кг.
  • Объем бетона 0,48 м3
  • Геометрический объем 0,3971 м3
Цена: 16296 руб.
Подробнее
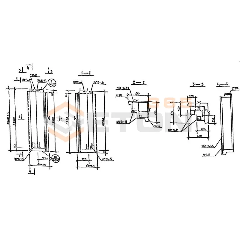
НРУ 6-33-35 (1.232 КЛ-2)
Панели наружных стен Серия 1.232 КЛ-2
  • Длина 610 мм.
  • Ширина 350 мм.
  • Высота 3360 мм.
  • Вес 1100 кг.
  • Объем бетона 890 м3
  • Геометрический объем 0,7174 м3
Цена: 30216 руб.
Подробнее
НРУ 6-42-35 (1.232 КЛ-2)
Панели наружных стен Серия 1.232 КЛ-2
  • Длина 610 мм.
  • Ширина 350 мм.
  • Высота 4260 мм.
  • Вес 1380 кг.
  • Объем бетона 1,12 м3
  • Геометрический объем 0,9095 м3
Цена: 38024 руб.
Подробнее
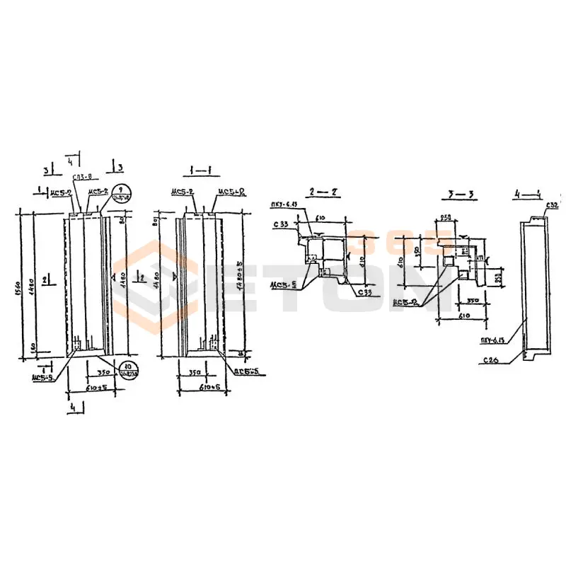
НРУ 6-36-35 (1.232 КЛ-2)
Панели наружных стен Серия 1.232 КЛ-2
  • Длина 610 мм.
  • Ширина 350 мм.
  • Высота 3660 мм.
  • Вес 1180 кг.
  • Объем бетона 0,96 м3
  • Геометрический объем 0,7814 м3
Цена: 32592 руб.
Подробнее
НРУ 6-6-35 (1.232 КЛ-2)
Панели наружных стен Серия 1.232 КЛ-2
  • Длина 610 мм.
  • Ширина 350 мм.
  • Высота 660 мм.
  • Вес 210 кг.
  • Объем бетона 0,15 м3
  • Геометрический объем 0,1409 м3
Цена: 5093 руб.
Подробнее
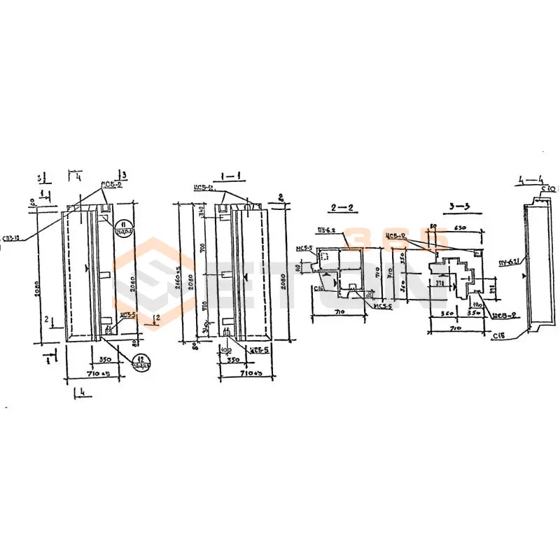
НУ 6-21-35 (1.232 КЛ-2)
Панели наружных стен Серия 1.232 КЛ-2
  • Длина 710 мм.
  • Ширина 350 мм.
  • Высота 2160 мм.
  • Вес 880 кг.
  • Объем бетона 710 м3
  • Геометрический объем 0,5368 м3
Цена: 24105 руб.
Подробнее
НУ 6-12-35 (1.232 КЛ-2)
Панели наружных стен Серия 1.232 КЛ-2
  • Длина 710 мм.
  • Ширина 350 мм.
  • Высота 1260 мм.
  • Вес 510 кг.
  • Объем бетона 0,4 м3
  • Геометрический объем 0,3131 м3
Цена: 13580 руб.
Подробнее
НУ 6-18-35 (1.232 КЛ-2)
Панели наружных стен Серия 1.232 КЛ-2
  • Длина 710 мм.
  • Ширина 350 мм.
  • Высота 1860 мм.
  • Вес 760 кг.
  • Объем бетона 0,6 м3
  • Геометрический объем 0,4622 м3
Цена: 20370 руб.
Подробнее
НУ 6-27-35 (1.232 КЛ-2)
Панели наружных стен Серия 1.232 КЛ-2
  • Длина 710 мм.
  • Ширина 350 мм.
  • Высота 2760 мм.
  • Вес 1110 кг.
  • Объем бетона 0,91 м3
  • Геометрический объем 0,6859 м3
Цена: 30895 руб.
Подробнее

Уведомление о файлах cookie

Мы используем файлы cookie для улучшения вашего опыта просмотра и анализа трафика. Нажимая "Принять все", вы соглашаетесь с нашей политикой конфиденциальности и политикой обработки файлов cookie.

Дзен Телеграм Вконтакте vk