mobile_sound +7 (930) 655-55-90

Типовые конструкции и железобетонные изделия. Рабочие чертежи (Серия 1.232 КЛ-2)

Поделиться:
Поделиться:

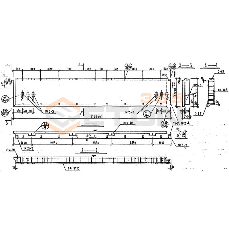
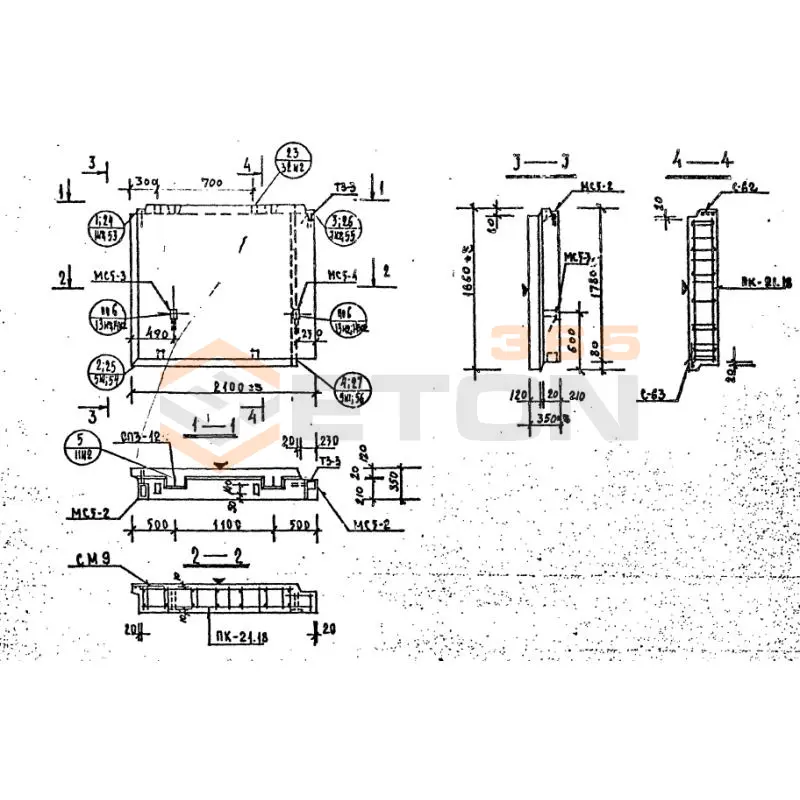
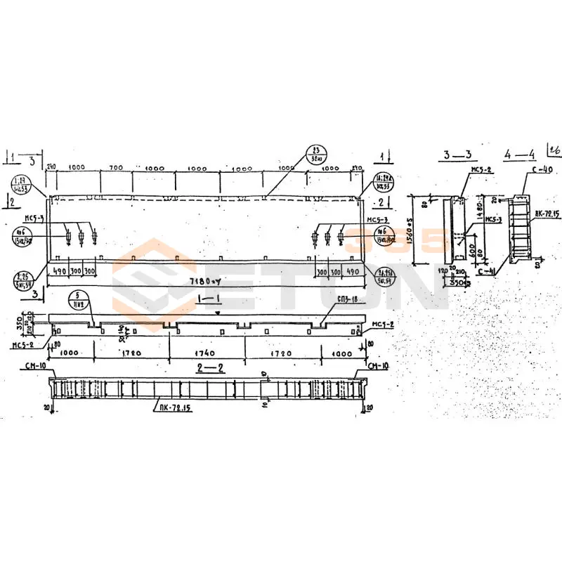
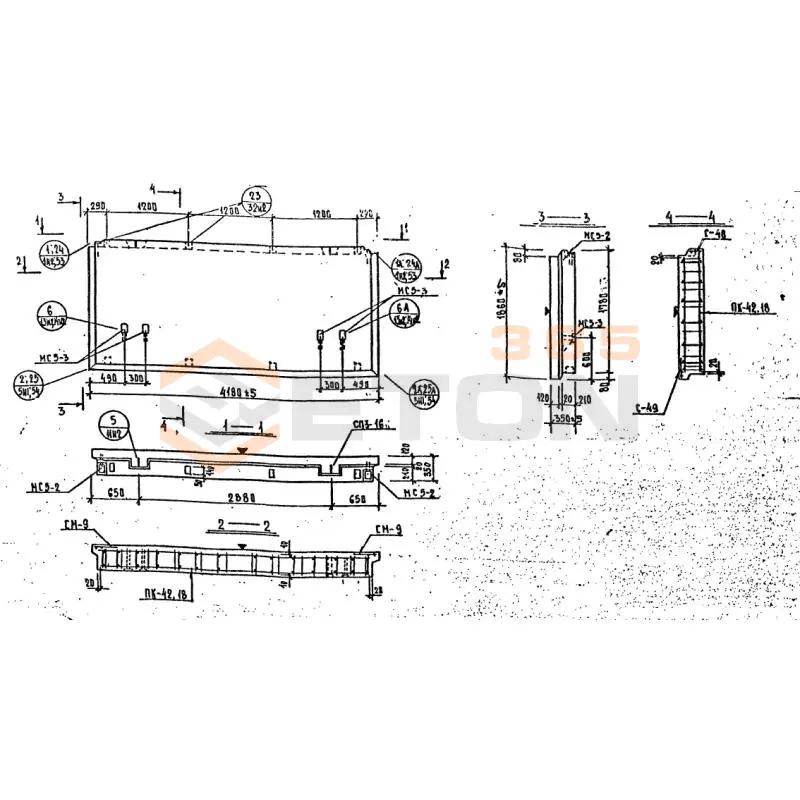
Документ Серия 1.232 КЛ-2 описывает область применения, номенклатуру и ключевые требования, опираясь на действующие нормы и практику проектирования. Общие материалы и технические условия для проектирования унифицированных панелей наружных стен прописаны в выпусках нормативного документа Серии 1.232 КЛ-2. Всего насчитывается шесть выпусков, разработанных институтом ЛЕННИИПРОЕКТ и введенных в действие с 1978 года. В них приведены опалубочные и арматурные чертежи, а также изложены условия производства и монтажа строительных конструкций.

Файлы для скачивания:
picture_as_pdf

4979.pdf

7,717.2 KB

скачать
picture_as_pdf

4980.pdf

12,133.5 KB

скачать
picture_as_pdf

4981.pdf

7,598.0 KB

скачать
picture_as_pdf

4982.pdf

3,534.2 KB

скачать
picture_as_pdf

4983.pdf

4,906.3 KB

скачать
picture_as_pdf

4984.pdf

8,236.6 KB

скачать
Товары Серия 1.232 КЛ-2 (60)
НР 1-30-12-35 (1.232 КЛ-2)
Панели наружных стен Серия 1.232 КЛ-2
  • Длина 2980 мм.
  • Ширина 350 мм.
  • Высота 1260 мм.
  • Вес 1510 кг.
  • Объем бетона 1,19 м3
  • Геометрический объем 1,3142 м3
Цена: 40401 руб.
Подробнее
НР 1-30-18-35 м (1.232 КЛ-2)
Панели наружных стен Серия 1.232 КЛ-2
  • Длина 2980 мм.
  • Ширина 350 мм.
  • Высота 1860 мм.
  • Вес 2150 кг.
  • Объем бетона 1,79 м3
  • Геометрический объем 1,94 м3
Цена: 60771 руб.
Подробнее
НР 1-30-15-35 (1.232 КЛ-2)
Панели наружных стен Серия 1.232 КЛ-2
  • Длина 2980 мм.
  • Ширина 350 мм.
  • Высота 1560 мм.
  • Вес 1860 кг.
  • Объем бетона 1,49 м3
  • Геометрический объем 1,6271 м3
Цена: 50586 руб.
Подробнее
НР 1-30-15-35 м (1.232 КЛ-2)
Панели наружных стен Серия 1.232 КЛ-2
  • Длина 2980 мм.
  • Ширина 350 мм.
  • Высота 1560 мм.
  • Вес 1770 кг.
  • Объем бетона 1,47 м3
  • Геометрический объем 1,6271 м3
Цена: 49907 руб.
Подробнее
НР 1-30-12-35 м (1.232 КЛ-2)
Панели наружных стен Серия 1.232 КЛ-2
  • Длина 2980 мм.
  • Ширина 350 мм.
  • Высота 1260 мм.
  • Вес 1450 кг.
  • Объем бетона 1,18 м3
  • Геометрический объем 1,3142 м3
Цена: 40061 руб.
Подробнее
НР 1-30-18-35 (1.232 КЛ-2)
Панели наружных стен Серия 1.232 КЛ-2
  • Длина 2980 мм.
  • Ширина 350 мм.
  • Высота 1860 мм.
  • Вес 2230 кг.
  • Объем бетона 1,8 м3
  • Геометрический объем 1,94 м3
Цена: 61110 руб.
Подробнее
НР 1-30-6-35 (1.232 КЛ-2)
Панели наружных стен Серия 1.232 КЛ-2
  • Длина 2980 мм.
  • Ширина 350 мм.
  • Высота 660 мм.
  • Вес 790 кг.
  • Объем бетона 0,59 м3
  • Геометрический объем 0,6884 м3
Цена: 20031 руб.
Подробнее
НР 1-30-6-35 м (1.232 КЛ-2)
Панели наружных стен Серия 1.232 КЛ-2
  • Длина 2980 мм.
  • Ширина 350 мм.
  • Высота 660 мм.
  • Вес 740 кг.
  • Объем бетона 0,59 м3
  • Геометрический объем 0,6884 м3
Цена: 20031 руб.
Подробнее
НР 1-36-12-35 (1.232 КЛ-2)
Панели наружных стен Серия 1.232 КЛ-2
  • Длина 3560 мм.
  • Ширина 350 мм.
  • Высота 1260 мм.
  • Вес 1800 кг.
  • Объем бетона 1,43 м3
  • Геометрический объем 1,57 м3
Цена: 48549 руб.
Подробнее
НР 1-36-15-35 (1.232 КЛ-2)
Панели наружных стен Серия 1.232 КЛ-2
  • Длина 3560 мм.
  • Ширина 350 мм.
  • Высота 1560 мм.
  • Вес 2220 кг.
  • Объем бетона 1,79 м3
  • Геометрический объем 1,9438 м3
Цена: 60771 руб.
Подробнее
НР 1-42 6-35 (1.232 КЛ-2)
Панели наружных стен Серия 1.232 КЛ-2
  • Длина 4180 мм.
  • Ширина 350 мм.
  • Высота 660 мм.
  • Вес 1140 кг.
  • Объем бетона 0,83 м3
  • Геометрический объем 0,9656 м3
Цена: 28179 руб.
Подробнее
НР 1-42-12-35 (1.232 КЛ-2)
Панели наружных стен Серия 1.232 КЛ-2
  • Длина 4180 мм.
  • Ширина 350 мм.
  • Высота 1260 мм.
  • Вес 2070 кг.
  • Объем бетона 1,69 м3
  • Геометрический объем 1,8434 м3
Цена: 57376 руб.
Подробнее
НР 1-36-6-35 (1.232 КЛ-2)
Панели наружных стен Серия 1.232 КЛ-2
  • Длина 3560 мм.
  • Ширина 350 мм.
  • Высота 660 мм.
  • Вес 940 кг.
  • Объем бетона 0,78 м3
  • Геометрический объем 0,8224 м3
Цена: 26481 руб.
Подробнее
НР 1-36-18-35 (1.232 КЛ-2)
Панели наружных стен Серия 1.232 КЛ-2
  • Длина 3560 мм.
  • Ширина 350 мм.
  • Высота 1860 мм.
  • Вес 2660 кг.
  • Объем бетона 2,16 м3
  • Геометрический объем 2,3176 м3
Цена: 73332 руб.
Подробнее
НР 1-42-15-35 (1.232 КЛ-2)
Панели наружных стен Серия 1.232 КЛ-2
  • Длина 4180 мм.
  • Ширина 350 мм.
  • Высота 1560 мм.
  • Вес 2680 кг.
  • Объем бетона 2,12 м3
  • Геометрический объем 2,2823 м3
Цена: 71974 руб.
Подробнее
НР 1-42-18-35 (1.232 КЛ-2)
Панели наружных стен Серия 1.232 КЛ-2
  • Длина 4180 мм.
  • Ширина 350 мм.
  • Высота 1860 мм.
  • Вес 3120 кг.
  • Объем бетона 2,54 м3
  • Геометрический объем 2,7212 м3
Цена: 86233 руб.
Подробнее
НР 1-54-15-35 (1.232 КЛ-2)
Панели наружных стен Серия 1.232 КЛ-2
  • Длина 5360 мм.
  • Ширина 350 мм.
  • Высота 1560 мм.
  • Вес 3380 кг.
  • Объем бетона 2,73 м3
  • Геометрический объем 2,9266 м3
Цена: 92684 руб.
Подробнее
НР 1-54-18-35 (1.232 КЛ-2)
Панели наружных стен Серия 1.232 КЛ-2
  • Длина 5360 мм.
  • Ширина 350 мм.
  • Высота 1860 мм.
  • Вес 3980 кг.
  • Объем бетона 3,28 м3
  • Геометрический объем 3,4894 м3
Цена: 111356 руб.
Подробнее
НР 1-54-12-35 м (1.232 КЛ-2)
Панели наружных стен Серия 1.232 КЛ-2
  • Длина 5360 мм.
  • Ширина 350 мм.
  • Высота 1260 мм.
  • Вес 2640 кг.
  • Объем бетона 2,16 м3
  • Геометрический объем 2,3638 м3
Цена: 73332 руб.
Подробнее
НР 1-54-15-35 м (1.232 КЛ-2)
Панели наружных стен Серия 1.232 КЛ-2
  • Длина 5360 мм.
  • Ширина 350 мм.
  • Высота 1560 мм.
  • Вес 3240 кг.
  • Объем бетона 2,68 м3
  • Геометрический объем 2,9266 м3
Цена: 90986 руб.
Подробнее
НР 1-54-12-35 (1.232 КЛ-2)
Панели наружных стен Серия 1.232 КЛ-2
  • Длина 5360 мм.
  • Ширина 350 мм.
  • Высота 1260 мм.
  • Вес 2740 кг.
  • Объем бетона 2,17 м3
  • Геометрический объем 2,3638 м3
Цена: 73672 руб.
Подробнее
НР 1-54-6-35 (1.232 КЛ-2)
Панели наружных стен Серия 1.232 КЛ-2
  • Длина 5360 мм.
  • Ширина 350 мм.
  • Высота 660 мм.
  • Вес 1440 кг.
  • Объем бетона 1,07 м3
  • Геометрический объем 1,2382 м3
Цена: 36327 руб.
Подробнее
НР 1-54-6-35 м (1.232 КЛ-2)
Панели наружных стен Серия 1.232 КЛ-2
  • Длина 5360 мм.
  • Ширина 350 мм.
  • Высота 660 мм.
  • Вес 1320 кг.
  • Объем бетона 1,05 м3
  • Геометрический объем 1,2382 м3
Цена: 35648 руб.
Подробнее
НР 1-54-18-35 м (1.232 КЛ-2)
Панели наружных стен Серия 1.232 КЛ-2
  • Длина 5360 мм.
  • Ширина 350 мм.
  • Высота 1860 мм.
  • Вес 3890 кг.
  • Объем бетона 3,26 м3
  • Геометрический объем 3,4894 м3
Цена: 110677 руб.
Подробнее
НР 1-60-15-35 (1.232 КЛ-2)
Панели наружных стен Серия 1.232 КЛ-2
  • Длина 5980 мм.
  • Ширина 350 мм.
  • Высота 1560 мм.
  • Вес 3760 кг.
  • Объем бетона 3,05 м3
  • Геометрический объем 3,2651 м3
Цена: 103548 руб.
Подробнее
НР 1-60-12-35 (1.232 КЛ-2)
Панели наружных стен Серия 1.232 КЛ-2
  • Длина 5980 мм.
  • Ширина 350 мм.
  • Высота 1260 мм.
  • Вес 3040 кг.
  • Объем бетона 2,43 м3
  • Геометрический объем 2,6372 м3
Цена: 82499 руб.
Подробнее
НР 1-60-15-35 м (1.232 КЛ-2)
Панели наружных стен Серия 1.232 КЛ-2
  • Длина 5980 мм.
  • Ширина 350 мм.
  • Высота 1560 мм.
  • Вес 3620 кг.
  • Объем бетона 3 м3
  • Геометрический объем 3,2651 м3
Цена: 101850 руб.
Подробнее
НР 1-60-12-35 м (1.232 КЛ-2)
Панели наружных стен Серия 1.232 КЛ-2
  • Длина 5980 мм.
  • Ширина 350 мм.
  • Высота 1260 мм.
  • Вес 2940 кг.
  • Объем бетона 2,41 м3
  • Геометрический объем 2,6372 м3
Цена: 81820 руб.
Подробнее
НР 1-60-18-35 (1.232 КЛ-2)
Панели наружных стен Серия 1.232 КЛ-2
  • Длина 5980 мм.
  • Ширина 350 мм.
  • Высота 1860 мм.
  • Вес 4470 кг.
  • Объем бетона 3,67 м3
  • Геометрический объем 3,893 м3
Цена: 124597 руб.
Подробнее
НР 1-60-18-35 м (1.232 КЛ-2)
Панели наружных стен Серия 1.232 КЛ-2
  • Длина 5980 мм.
  • Ширина 350 мм.
  • Высота 1860 мм.
  • Вес 4470 кг.
  • Объем бетона 3,65 м3
  • Геометрический объем 3,893 м3
Цена: 123918 руб.
Подробнее
НР 1-66-12-35 (1.232 КЛ-2)
Панели наружных стен Серия 1.232 КЛ-2
  • Длина 6560 мм.
  • Ширина 350 мм.
  • Высота 1260 мм.
  • Вес 3330 кг.
  • Объем бетона 2,67 м3
  • Геометрический объем 2,893 м3
Цена: 90647 руб.
Подробнее
НР 1-60-6-35 (1.232 КЛ-2)
Панели наружных стен Серия 1.232 КЛ-2
  • Длина 5980 мм.
  • Ширина 350 мм.
  • Высота 660 мм.
  • Вес 1600 кг.
  • Объем бетона 1,19 м3
  • Геометрический объем 1,3814 м3
Цена: 40401 руб.
Подробнее
НР 1-60-6-35 м (1.232 КЛ-2)
Панели наружных стен Серия 1.232 КЛ-2
  • Длина 5980 мм.
  • Ширина 350 мм.
  • Высота 660 мм.
  • Вес 1490 кг.
  • Объем бетона 1,18 м3
  • Геометрический объем 1,3814 м3
Цена: 40061 руб.
Подробнее
НР 1-66-18-35 (1.232 КЛ-2)
Панели наружных стен Серия 1.232 КЛ-2
  • Длина 6560 мм.
  • Ширина 350 мм.
  • Высота 1860 мм.
  • Вес 4930 кг.
  • Объем бетона 4,03 м3
  • Геометрический объем 4,2706 м3
Цена: 136819 руб.
Подробнее
НР 1-66-15-35 (1.232 КЛ-2)
Панели наружных стен Серия 1.232 КЛ-2
  • Длина 6560 мм.
  • Ширина 350 мм.
  • Высота 1560 мм.
  • Вес 4130 кг.
  • Объем бетона 3,35 м3
  • Геометрический объем 3,5818 м3
Цена: 113733 руб.
Подробнее
НР 1-72-12-35 (1.232 КЛ-2)
Панели наружных стен Серия 1.232 КЛ-2
  • Длина 7180 мм.
  • Ширина 350 мм.
  • Высота 1260 мм.
  • Вес 3660 кг.
  • Объем бетона 2,93 м3
  • Геометрический объем 3,1664 м3
Цена: 99474 руб.
Подробнее
НР 1-72-15-35 (1.232 КЛ-2)
Панели наружных стен Серия 1.232 КЛ-2
  • Длина 7180 мм.
  • Ширина 350 мм.
  • Высота 1560 мм.
  • Вес 4520 кг.
  • Объем бетона 3,63 м3
  • Геометрический объем 3,9203 м3
Цена: 123239 руб.
Подробнее
НР 1-72-18-35 (1.232 КЛ-2)
Панели наружных стен Серия 1.232 КЛ-2
  • Длина 7180 мм.
  • Ширина 350 мм.
  • Высота 1860 мм.
  • Вес 5390 кг.
  • Объем бетона 4,41 м3
  • Геометрический объем 4,6742 м3
Цена: 149720 руб.
Подробнее
НР 1-84-12-35 (1.232 КЛ-2)
Панели наружных стен Серия 1.232 КЛ-2
  • Длина 8360 мм.
  • Ширина 350 мм.
  • Высота 1260 мм.
  • Вес 4290 кг.
  • Объем бетона 3,42 м3
  • Геометрический объем 3,6868 м3
Цена: 116109 руб.
Подробнее
НР 1-84-15-35 (1.232 КЛ-2)
Панели наружных стен Серия 1.232 КЛ-2
  • Длина 8360 мм.
  • Ширина 350 мм.
  • Высота 1560 мм.
  • Вес 5320 кг.
  • Объем бетона 4,29 м3
  • Геометрический объем 4,5646 м3
Цена: 145646 руб.
Подробнее
НР 1-84-18-35 (1.232 КЛ-2)
Панели наружных стен Серия 1.232 КЛ-2
  • Длина 8360 мм.
  • Ширина 350 мм.
  • Высота 1860 мм.
  • Вес 6350 кг.
  • Объем бетона 5,16 м3
  • Геометрический объем 5,4424 м3
Цена: 175182 руб.
Подробнее
НР 1-90-12-35 (1.232 КЛ-2)
Панели наружных стен Серия 1.232 КЛ-2
  • Длина 8980 мм.
  • Ширина 350 мм.
  • Высота 1260 мм.
  • Вес 4600 кг.
  • Объем бетона 3,67 м3
  • Геометрический объем 3,9602 м3
Цена: 124597 руб.
Подробнее
НР 1-90-15-35 (1.232 КЛ-2)
Панели наружных стен Серия 1.232 КЛ-2
  • Длина 8980 мм.
  • Ширина 350 мм.
  • Высота 1560 мм.
  • Вес 5690 кг.
  • Объем бетона 4,6 м3
  • Геометрический объем 4,9031 м3
Цена: 156170 руб.
Подробнее
НР 1-90-18-35 (1.232 КЛ-2)
Панели наружных стен Серия 1.232 КЛ-2
  • Длина 8980 мм.
  • Ширина 350 мм.
  • Высота 1860 мм.
  • Вес 6800 кг.
  • Объем бетона 5,54 м3
  • Геометрический объем 5,846 м3
Цена: 188083 руб.
Подробнее
НР 2-21-12-35 м (1.232 КЛ-2)
Панели наружных стен Серия 1.232 КЛ-2
  • Длина 2100 мм.
  • Ширина 350 мм.
  • Высота 1260 мм.
  • Вес 1000 кг.
  • Объем бетона 0,8 м3
  • Геометрический объем 0,9261 м3
Цена: 27160 руб.
Подробнее
НР 2 -87-15-35 (1.232 КЛ-2)
Панели наружных стен Серия 1.232 КЛ-2
  • Длина 8720 мм.
  • Ширина 350 мм.
  • Высота 1560 мм.
  • Вес 5480 кг.
  • Объем бетона 4,44 м3
  • Геометрический объем 4,7611 м3
Цена: 150738 руб.
Подробнее
НР 2-21-12-35 (1.232 КЛ-2)
Панели наружных стен Серия 1.232 КЛ-2
  • Длина 2100 мм.
  • Ширина 350 мм.
  • Высота 1260 мм.
  • Вес 1060 кг.
  • Объем бетона 0,85 м3
  • Геометрический объем 0,9261 м3
Цена: 28858 руб.
Подробнее
НР 2-21-15-35 м (1.232 КЛ-2)
Панели наружных стен Серия 1.232 КЛ-2
  • Длина 2100 мм.
  • Ширина 350 мм.
  • Высота 1560 мм.
  • Вес 1230 кг.
  • Объем бетона 1 м3
  • Геометрический объем 1,1466 м3
Цена: 33950 руб.
Подробнее
НР 2-21-15-35 (1.232 КЛ-2)
Панели наружных стен Серия 1.232 КЛ-2
  • Длина 2100 мм.
  • Ширина 350 мм.
  • Высота 1560 мм.
  • Вес 1310 кг.
  • Объем бетона 1,06 м3
  • Геометрический объем 1,1466 м3
Цена: 35987 руб.
Подробнее
НР 2-21-18-35 м (1.232 КЛ-2)
Панели наружных стен Серия 1.232 КЛ-2
  • Длина 2100 мм.
  • Ширина 350 мм.
  • Высота 1860 мм.
  • Вес 1470 кг.
  • Объем бетона 1,21 м3
  • Геометрический объем 1,3671 м3
Цена: 41080 руб.
Подробнее
НР 2-21-18-35 (1.232 КЛ-2)
Панели наружных стен Серия 1.232 КЛ-2
  • Длина 2100 мм.
  • Ширина 350 мм.
  • Высота 1860 мм.
  • Вес 1570 кг.
  • Объем бетона 1,28 м3
  • Геометрический объем 1,3671 м3
Цена: 43456 руб.
Подробнее
НР 2-21-6-35 (1.232 КЛ-2)
Панели наружных стен Серия 1.232 КЛ-2
  • Длина 2100 мм.
  • Ширина 350 мм.
  • Высота 660 мм.
  • Вес 560 кг.
  • Объем бетона 0,42 м3
  • Геометрический объем 0,4851 м3
Цена: 14259 руб.
Подробнее
НР 2-27-12-35 (1.232 КЛ-2)
Панели наружных стен Серия 1.232 КЛ-2
  • Длина 2720 мм.
  • Ширина 350 мм.
  • Высота 1260 мм.
  • Вес 1340 кг.
  • Объем бетона 1,87 м3
  • Геометрический объем 1,1995 м3
Цена: 63487 руб.
Подробнее
НР 2-21-6-35 м (1.232 КЛ-2)
Панели наружных стен Серия 1.232 КЛ-2
  • Длина 2100 мм.
  • Ширина 350 мм.
  • Высота 660 мм.
  • Вес 500 кг.
  • Объем бетона 0,39 м3
  • Геометрический объем 0,4851 м3
Цена: 13241 руб.
Подробнее
НР 2-27-12-35 м (1.232 КЛ-2)
Панели наружных стен Серия 1.232 КЛ-2
  • Длина 2720 мм.
  • Ширина 350 мм.
  • Высота 1260 мм.
  • Вес 1300 кг.
  • Объем бетона 1,06 м3
  • Геометрический объем 1,1995 м3
Цена: 35987 руб.
Подробнее
НР 2-27-15-35 (1.232 КЛ-2)
Панели наружных стен Серия 1.232 КЛ-2
  • Длина 2720 мм.
  • Ширина 350 мм.
  • Высота 1560 мм.
  • Вес 1650 кг.
  • Объем бетона 1,34 м3
  • Геометрический объем 1,4851 м3
Цена: 45493 руб.
Подробнее
НР 2-27-18-35 (1.232 КЛ-2)
Панели наружных стен Серия 1.232 КЛ-2
  • Длина 2720 мм.
  • Ширина 350 мм.
  • Высота 1860 мм.
  • Вес 1970 кг.
  • Объем бетона 1,61 м3
  • Геометрический объем 1,7707 м3
Цена: 54660 руб.
Подробнее
НР 2-27-15-35 м (1.232 КЛ-2)
Панели наружных стен Серия 1.232 КЛ-2
  • Длина 2720 мм.
  • Ширина 350 мм.
  • Высота 1560 мм.
  • Вес 1610 кг.
  • Объем бетона 1,32 м3
  • Геометрический объем 1,4851 м3
Цена: 44814 руб.
Подробнее
НР 2-27-18-35 м (1.232 КЛ-2)
Панели наружных стен Серия 1.232 КЛ-2
  • Длина 2720 мм.
  • Ширина 350 мм.
  • Высота 1860 мм.
  • Вес 1920 кг.
  • Объем бетона 1,6 м3
  • Геометрический объем 1,7707 м3
Цена: 54320 руб.
Подробнее
НР 2-27-6-35 м (1.232 КЛ-2)
Панели наружных стен Серия 1.232 КЛ-2
  • Длина 2720 мм.
  • Ширина 350 мм.
  • Высота 660 мм.
  • Вес 660 кг.
  • Объем бетона 0,51 м3
  • Геометрический объем 0,6283 м3
Цена: 17315 руб.
Подробнее

Уведомление о файлах cookie

Мы используем файлы cookie для улучшения вашего опыта просмотра и анализа трафика. Нажимая "Принять все", вы соглашаетесь с нашей политикой конфиденциальности и политикой обработки файлов cookie.

Дзен Телеграм Вконтакте vk