mobile_sound +7 (930) 655-55-90

Железобетонные опоры линий электропередачи. Рабочие чертежи (Серия 1.141.1 КЛ-3)

Поделиться:
Поделиться:

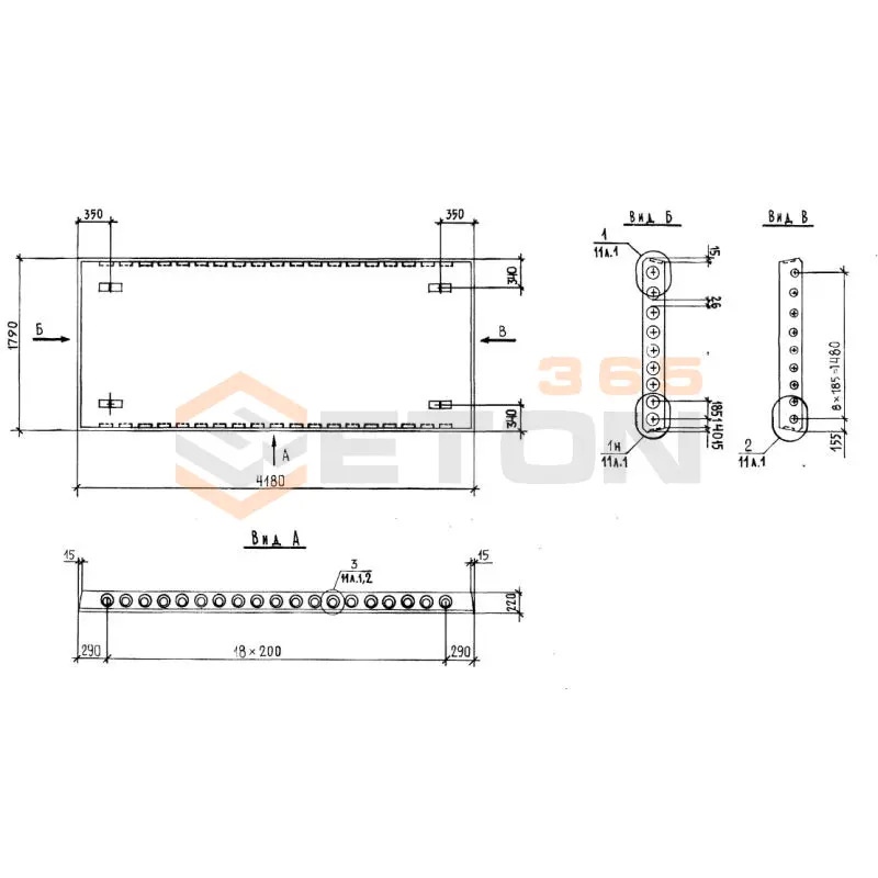
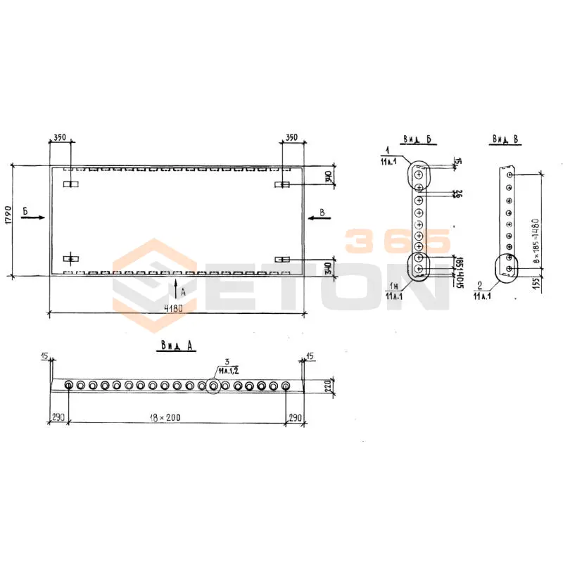
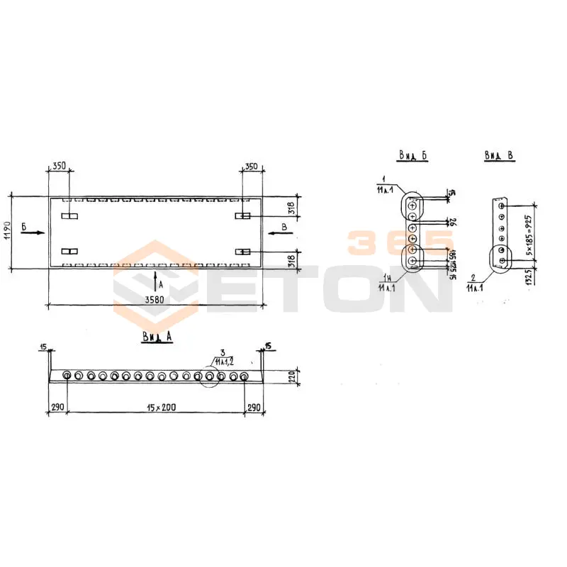
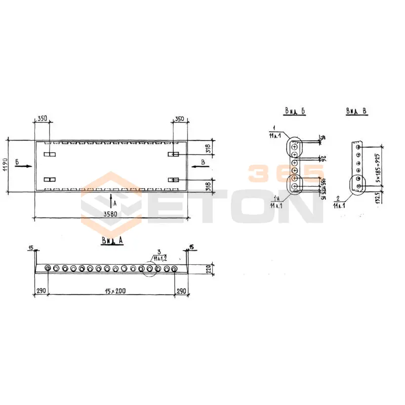
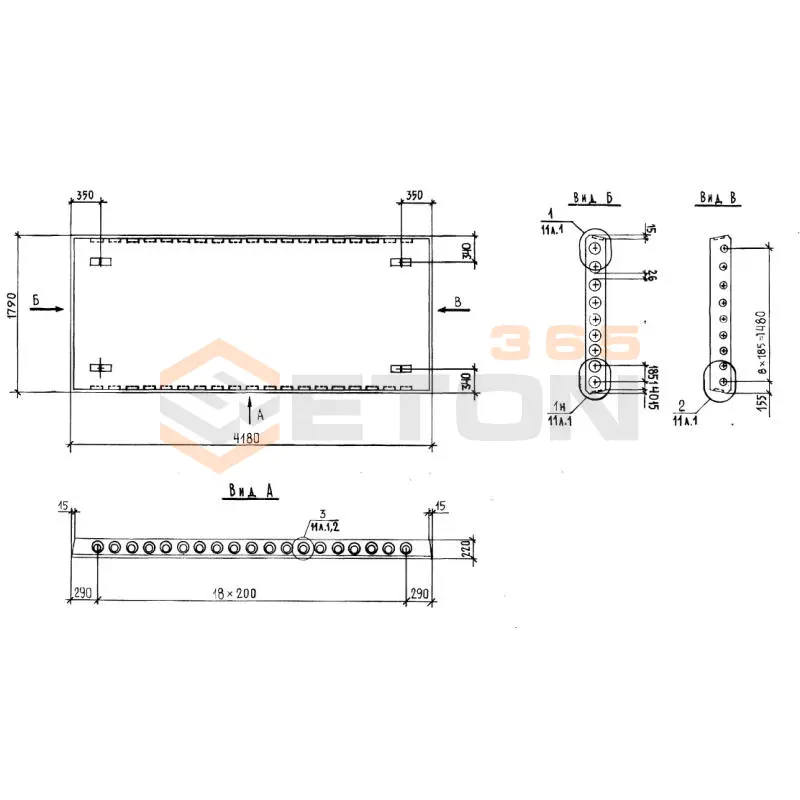
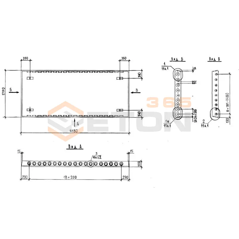
Документ Серия 1.141.1 КЛ-3 описывает область применения, номенклатуру и ключевые требования, опираясь на действующие нормы и практику проектирования. Институтом ЛЕННИИПРОЕКТ был разработан нормативный документ Серия 1.141.1 КЛ-3, введенный в действие после утверждения в 1988 году. На страницах регламента детально изложена информация о производстве железобетонных многопустотных плит перекрытий, которые интенсивно применяются при строительстве жилых домов и общественных зданий из кирпича в качестве межэтажных перекрытий. В документе проработано пять выпусков, расписывающих определенную группу изделия и конструкции, различных по геометрическим пропорциям и используемому в процессе производства армированию.

Файлы для скачивания:
picture_as_pdf

4769.pdf

10,598.7 KB

скачать
picture_as_pdf

4770.pdf

12,251.2 KB

скачать
picture_as_pdf

4771.pdf

10,473.6 KB

скачать
picture_as_pdf

4772.pdf

6,303.3 KB

скачать
picture_as_pdf

4773.pdf

2,659.3 KB

скачать
Товары Серия 1.141.1 КЛ-3 (60)
ПК 24-12-8 АIIIт
Плиты перекрытия многопустотные Серия 1.141.1 КЛ-3
  • Длина 2380 мм.
  • Ширина 1190 мм.
  • Высота 220 мм.
  • Вес 975 кг.
  • Объем бетона 0,39 м3
  • Геометрический объем 0,6231 м3
Цена: 6809 руб.
Подробнее
ПК 24-18-8 АIIIт
Плиты перекрытия многопустотные Серия 1.141.1 КЛ-3
  • Длина 2380 мм.
  • Ширина 1790 мм.
  • Высота 220 мм.
  • Вес 1425 кг.
  • Объем бетона 0,57 м3
  • Геометрический объем 0,9372 м3
Цена: 9952 руб.
Подробнее
ПК 24-18-5 АIIIт
Плиты перекрытия многопустотные Серия 1.141.1 КЛ-3
  • Длина 2380 мм.
  • Ширина 1790 мм.
  • Высота 220 мм.
  • Вес 1425 кг.
  • Объем бетона 0,57 м3
  • Геометрический объем 0,9372 м3
Цена: 9952 руб.
Подробнее
ПК 27-12-5 АIIIт
Плиты перекрытия многопустотные Серия 1.141.1 КЛ-3
  • Длина 2680 мм.
  • Ширина 1190 мм.
  • Высота 220 мм.
  • Вес 1075 кг.
  • Объем бетона 0,43 м3
  • Геометрический объем 0,7016 м3
Цена: 7508 руб.
Подробнее
ПК 27-12-8 АIIIт
Плиты перекрытия многопустотные Серия 1.141.1 КЛ-3
  • Длина 2680 мм.
  • Ширина 1190 мм.
  • Высота 220 мм.
  • Вес 1075 кг.
  • Объем бетона 0,43 м3
  • Геометрический объем 0,7016 м3
Цена: 7508 руб.
Подробнее
ПК 27-18-5 АIIIт
Плиты перекрытия многопустотные Серия 1.141.1 КЛ-3
  • Длина 2680 мм.
  • Ширина 1790 мм.
  • Высота 220 мм.
  • Вес 1575 кг.
  • Объем бетона 0,63 м3
  • Геометрический объем 1,0554 м3
Цена: 11000 руб.
Подробнее
ПК 30-12-8 АIIIт
Плиты перекрытия многопустотные Серия 1.141.1 КЛ-3
  • Длина 2980 мм.
  • Ширина 1190 мм.
  • Высота 220 мм.
  • Вес 1200 кг.
  • Объем бетона 0,48 м3
  • Геометрический объем 0,7802 м3
Цена: 8381 руб.
Подробнее
ПК 30-18-5 АIIIт
Плиты перекрытия многопустотные Серия 1.141.1 КЛ-3
  • Длина 2980 мм.
  • Ширина 1790 мм.
  • Высота 220 мм.
  • Вес 1725 кг.
  • Объем бетона 0,69 м3
  • Геометрический объем 1,1735 м3
Цена: 12047 руб.
Подробнее
ПК 30-12-5 АIIIт
Плиты перекрытия многопустотные Серия 1.141.1 КЛ-3
  • Длина 2980 мм.
  • Ширина 1190 мм.
  • Высота 220 мм.
  • Вес 1200 кг.
  • Объем бетона 0,48 м3
  • Геометрический объем 0,7802 м3
Цена: 8381 руб.
Подробнее
ПК 27-18-8 АIIIт
Плиты перекрытия многопустотные Серия 1.141.1 КЛ-3
  • Длина 2680 мм.
  • Ширина 1790 мм.
  • Высота 220 мм.
  • Вес 1575 кг.
  • Объем бетона 0,63 м3
  • Геометрический объем 1,0554 м3
Цена: 11000 руб.
Подробнее
ПК 30-18-8 АIIIт
Плиты перекрытия многопустотные Серия 1.141.1 КЛ-3
  • Длина 2980 мм.
  • Ширина 1790 мм.
  • Высота 220 мм.
  • Вес 1725 кг.
  • Объем бетона 0,69 м3
  • Геометрический объем 1,1735 м3
Цена: 12047 руб.
Подробнее
ПК 36-12-8 АIIIт
Плиты перекрытия многопустотные Серия 1.141.1 КЛ-3
  • Длина 3580 мм.
  • Ширина 1190 мм.
  • Высота 220 мм.
  • Вес 1400 кг.
  • Объем бетона 0,56 м3
  • Геометрический объем 0,9372 м3
Цена: 9778 руб.
Подробнее
ПК 36-12-5 АIIIт
Плиты перекрытия многопустотные Серия 1.141.1 КЛ-3
  • Длина 3580 мм.
  • Ширина 1190 мм.
  • Высота 220 мм.
  • Вес 1400 кг.
  • Объем бетона 0,56 м3
  • Геометрический объем 0,9372 м3
Цена: 9778 руб.
Подробнее
ПК 36-18-8 АIIIт
Плиты перекрытия многопустотные Серия 1.141.1 КЛ-3
  • Длина 3580 мм.
  • Ширина 1790 мм.
  • Высота 220 мм.
  • Вес 2050 кг.
  • Объем бетона 0,82 м3
  • Геометрический объем 1,4098 м3
Цена: 14317 руб.
Подробнее
ПК 36-18-5 АIIIт
Плиты перекрытия многопустотные Серия 1.141.1 КЛ-3
  • Длина 3580 мм.
  • Ширина 1790 мм.
  • Высота 220 мм.
  • Вес 2050 кг.
  • Объем бетона 0,82 м3
  • Геометрический объем 1,4098 м3
Цена: 14317 руб.
Подробнее
ПК 42-12-5 АIIIт
Плиты перекрытия многопустотные Серия 1.141.1 КЛ-3
  • Длина 4180 мм.
  • Ширина 1190 мм.
  • Высота 220 мм.
  • Вес 1600 кг.
  • Объем бетона 0,64 м3
  • Геометрический объем 1,0943 м3
Цена: 11174 руб.
Подробнее
ПК 42-12-8 АIIIт
Плиты перекрытия многопустотные Серия 1.141.1 КЛ-3
  • Длина 4180 мм.
  • Ширина 1190 мм.
  • Высота 220 мм.
  • Вес 1600 кг.
  • Объем бетона 0,64 м3
  • Геометрический объем 1,0943 м3
Цена: 11174 руб.
Подробнее
ПК 42-18-5 АIIIт
Плиты перекрытия многопустотные Серия 1.141.1 КЛ-3
  • Длина 4180 мм.
  • Ширина 1790 мм.
  • Высота 220 мм.
  • Вес 2375 кг.
  • Объем бетона 0,95 м3
  • Геометрический объем 1,6461 м3
Цена: 16587 руб.
Подробнее
ПК 42-18-8 АIIIт
Плиты перекрытия многопустотные Серия 1.141.1 КЛ-3
  • Длина 4180 мм.
  • Ширина 1790 мм.
  • Высота 220 мм.
  • Вес 2375 кг.
  • Объем бетона 0,95 м3
  • Геометрический объем 1,6461 м3
Цена: 16587 руб.
Подробнее
ПК 48-10-8 АIVт
Плиты перекрытия многопустотные Серия 1.141.1 КЛ-3
  • Длина 4780 мм.
  • Ширина 990 мм.
  • Высота 220 мм.
  • Вес 1500 кг.
  • Объем бетона 0,6 м3
  • Геометрический объем 1,0411 м3
Цена: 10476 руб.
Подробнее
ПК 48-12-6 АIVт
Плиты перекрытия многопустотные Серия 1.141.1 КЛ-3
  • Длина 4780 мм.
  • Ширина 1190 мм.
  • Высота 220 мм.
  • Вес 1800 кг.
  • Объем бетона 0,72 м3
  • Геометрический объем 1,2514 м3
Цена: 12571 руб.
Подробнее
ПК 48-12-8 АIVт
Плиты перекрытия многопустотные Серия 1.141.1 КЛ-3
  • Длина 4780 мм.
  • Ширина 1190 мм.
  • Высота 220 мм.
  • Вес 1800 кг.
  • Объем бетона 0,72 м3
  • Геометрический объем 1,2514 м3
Цена: 12571 руб.
Подробнее
ПК 48-12-8 АтVт
Плиты перекрытия многопустотные Серия 1.141.1 КЛ-3
  • Длина 4780 мм.
  • Ширина 1190 мм.
  • Высота 220 мм.
  • Вес 1800 кг.
  • Объем бетона 0,72 м3
  • Геометрический объем 1,2514 м3
Цена: 12571 руб.
Подробнее
ПК 48-10-8 АтVт
Плиты перекрытия многопустотные Серия 1.141.1 КЛ-3
  • Длина 4780 мм.
  • Ширина 990 мм.
  • Высота 220 мм.
  • Вес 1500 кг.
  • Объем бетона 0,6 м3
  • Геометрический объем 1,0411 м3
Цена: 10476 руб.
Подробнее
ПК 51-10-6 АIVт
Плиты перекрытия многопустотные Серия 1.141.1 КЛ-3
  • Длина 5080 мм.
  • Ширина 990 мм.
  • Высота 220 мм.
  • Вес 1600 кг.
  • Объем бетона 0,64 м3
  • Геометрический объем 1,1064 м3
Цена: 11174 руб.
Подробнее
ПК 51-10-8 АтVт
Плиты перекрытия многопустотные Серия 1.141.1 КЛ-3
  • Длина 5080 мм.
  • Ширина 990 мм.
  • Высота 220 мм.
  • Вес 1600 кг.
  • Объем бетона 0,64 м3
  • Геометрический объем 1,1064 м3
Цена: 11174 руб.
Подробнее
ПК 51-10-8 АIVт
Плиты перекрытия многопустотные Серия 1.141.1 КЛ-3
  • Длина 5080 мм.
  • Ширина 990 мм.
  • Высота 220 мм.
  • Вес 1600 кг.
  • Объем бетона 0,64 м3
  • Геометрический объем 1,1064 м3
Цена: 11174 руб.
Подробнее
ПК 51-12-6 АIVт
Плиты перекрытия многопустотные Серия 1.141.1 КЛ-3
  • Длина 5080 мм.
  • Ширина 1190 мм.
  • Высота 220 мм.
  • Вес 1900 кг.
  • Объем бетона 0,76 м3
  • Геометрический объем 1,3299 м3
Цена: 13270 руб.
Подробнее
ПК 51-12-8 АIVт
Плиты перекрытия многопустотные Серия 1.141.1 КЛ-3
  • Длина 5080 мм.
  • Ширина 1190 мм.
  • Высота 220 мм.
  • Вес 1900 кг.
  • Объем бетона 0,76 м3
  • Геометрический объем 1,3299 м3
Цена: 13270 руб.
Подробнее
ПК 54-10-6 АIVт
Плиты перекрытия многопустотные Серия 1.141.1 КЛ-3
  • Длина 5380 мм.
  • Ширина 990 мм.
  • Высота 220 мм.
  • Вес 1675 кг.
  • Объем бетона 0,67 м3
  • Геометрический объем 1,1718 м3
Цена: 11698 руб.
Подробнее
ПК 51-12-8 АтVт
Плиты перекрытия многопустотные Серия 1.141.1 КЛ-3
  • Длина 5080 мм.
  • Ширина 1190 мм.
  • Высота 220 мм.
  • Вес 1900 кг.
  • Объем бетона 0,76 м3
  • Геометрический объем 1,3299 м3
Цена: 13270 руб.
Подробнее
ПК 54-10-8 АIVт
Плиты перекрытия многопустотные Серия 1.141.1 КЛ-3
  • Длина 5380 мм.
  • Ширина 990 мм.
  • Высота 220 мм.
  • Вес 1675 кг.
  • Объем бетона 0,67 м3
  • Геометрический объем 1,1718 м3
Цена: 11698 руб.
Подробнее
ПК 54-10-8 АтVт
Плиты перекрытия многопустотные Серия 1.141.1 КЛ-3
  • Длина 5380 мм.
  • Ширина 990 мм.
  • Высота 220 мм.
  • Вес 1675 кг.
  • Объем бетона 0,67 м3
  • Геометрический объем 1,1718 м3
Цена: 11698 руб.
Подробнее
ПК 54-12-5 АIVт
Плиты перекрытия многопустотные Серия 1.141.1 КЛ-3
  • Длина 5380 мм.
  • Ширина 1190 мм.
  • Высота 220 мм.
  • Вес 2025 кг.
  • Объем бетона 0,81 м3
  • Геометрический объем 1,4085 м3
Цена: 14143 руб.
Подробнее
ПК 54-12-8 АIVт
Плиты перекрытия многопустотные Серия 1.141.1 КЛ-3
  • Длина 5380 мм.
  • Ширина 1190 мм.
  • Высота 220 мм.
  • Вес 2025 кг.
  • Объем бетона 0,81 м3
  • Геометрический объем 1,4085 м3
Цена: 14143 руб.
Подробнее
ПК 60-10-5 АIVт
Плиты перекрытия многопустотные Серия 1.141.1 КЛ-3
  • Длина 5980 мм.
  • Ширина 990 мм.
  • Высота 220 мм.
  • Вес 1850 кг.
  • Объем бетона 0,74 м3
  • Геометрический объем 1,3024 м3
Цена: 12920 руб.
Подробнее
ПК 54-12-8 АтVт
Плиты перекрытия многопустотные Серия 1.141.1 КЛ-3
  • Длина 5380 мм.
  • Ширина 1190 мм.
  • Высота 220 мм.
  • Вес 2025 кг.
  • Объем бетона 0,81 м3
  • Геометрический объем 1,4085 м3
Цена: 14143 руб.
Подробнее
ПК 60-10-6 АIVт
Плиты перекрытия многопустотные Серия 1.141.1 КЛ-3
  • Длина 5980 мм.
  • Ширина 990 мм.
  • Высота 220 мм.
  • Вес 1850 кг.
  • Объем бетона 0,74 м3
  • Геометрический объем 1,3024 м3
Цена: 12920 руб.
Подробнее
ПК 60-10-6 АтVт
Плиты перекрытия многопустотные Серия 1.141.1 КЛ-3
  • Длина 5980 мм.
  • Ширина 990 мм.
  • Высота 220 мм.
  • Вес 1850 кг.
  • Объем бетона 0,74 м3
  • Геометрический объем 1,3024 м3
Цена: 12920 руб.
Подробнее
ПК 60-10-8 АIVт
Плиты перекрытия многопустотные Серия 1.141.1 КЛ-3
  • Длина 5980 мм.
  • Ширина 990 мм.
  • Высота 220 мм.
  • Вес 1850 кг.
  • Объем бетона 0,74 м3
  • Геометрический объем 1,3024 м3
Цена: 12920 руб.
Подробнее
ПК 60-10-8 АтVт
Плиты перекрытия многопустотные Серия 1.141.1 КЛ-3
  • Длина 5980 мм.
  • Ширина 990 мм.
  • Высота 220 мм.
  • Вес 1850 кг.
  • Объем бетона 0,74 м3
  • Геометрический объем 1,3024 м3
Цена: 12920 руб.
Подробнее
ПК 60-12-6 АIVт
Плиты перекрытия многопустотные Серия 1.141.1 КЛ-3
  • Длина 5980 мм.
  • Ширина 1190 мм.
  • Высота 220 мм.
  • Вес 2225 кг.
  • Объем бетона 0,89 м3
  • Геометрический объем 1,5656 м3
Цена: 15539 руб.
Подробнее
ПК 60-12-5 АIVт
Плиты перекрытия многопустотные Серия 1.141.1 КЛ-3
  • Длина 5980 мм.
  • Ширина 1190 мм.
  • Высота 220 мм.
  • Вес 2225 кг.
  • Объем бетона 0,89 м3
  • Геометрический объем 1,5656 м3
Цена: 15539 руб.
Подробнее
ПК 60-12-8 АIVт
Плиты перекрытия многопустотные Серия 1.141.1 КЛ-3
  • Длина 5980 мм.
  • Ширина 1190 мм.
  • Высота 220 мм.
  • Вес 2225 кг.
  • Объем бетона 0,89 м3
  • Геометрический объем 1,5656 м3
Цена: 15539 руб.
Подробнее
ПК 60-12-6 АтVт
Плиты перекрытия многопустотные Серия 1.141.1 КЛ-3
  • Длина 5980 мм.
  • Ширина 1190 мм.
  • Высота 220 мм.
  • Вес 2225 кг.
  • Объем бетона 0,89 м3
  • Геометрический объем 1,5656 м3
Цена: 15539 руб.
Подробнее
ПК 60-12-8 АтVт
Плиты перекрытия многопустотные Серия 1.141.1 КЛ-3
  • Длина 5980 мм.
  • Ширина 1190 мм.
  • Высота 220 мм.
  • Вес 2225 кг.
  • Объем бетона 0,89 м3
  • Геометрический объем 1,5656 м3
Цена: 15539 руб.
Подробнее
ПК 60-18-6 АIVт
Плиты перекрытия многопустотные Серия 1.141.1 КЛ-3
  • Длина 5980 мм.
  • Ширина 1790 мм.
  • Высота 220 мм.
  • Вес 3350 кг.
  • Объем бетона 1,34 м3
  • Геометрический объем 2,3549 м3
Цена: 23396 руб.
Подробнее
ПК 60-18-8 АIVт
Плиты перекрытия многопустотные Серия 1.141.1 КЛ-3
  • Длина 5980 мм.
  • Ширина 1790 мм.
  • Высота 220 мм.
  • Вес 3350 кг.
  • Объем бетона 1,34 м3
  • Геометрический объем 2,3549 м3
Цена: 23396 руб.
Подробнее
ПК 60-24-6 АIV
Плиты перекрытия многопустотные Серия 1.141.1 КЛ-3
  • Длина 5980 мм.
  • Ширина 2380 мм.
  • Высота 220 мм.
  • Вес 4425 кг.
  • Объем бетона 1,77 м3
  • Геометрический объем 3,1311 м3
Цена: 30904 руб.
Подробнее
ПК 60-18-8 АтVт
Плиты перекрытия многопустотные Серия 1.141.1 КЛ-3
  • Длина 5980 мм.
  • Ширина 1790 мм.
  • Высота 220 мм.
  • Вес 3350 кг.
  • Объем бетона 1,34 м3
  • Геометрический объем 2,3549 м3
Цена: 23396 руб.
Подробнее
ПК 60-24-8 АIV
Плиты перекрытия многопустотные Серия 1.141.1 КЛ-3
  • Длина 5980 мм.
  • Ширина 2380 мм.
  • Высота 220 мм.
  • Вес 4425 кг.
  • Объем бетона 1,77 м3
  • Геометрический объем 3,1311 м3
Цена: 30904 руб.
Подробнее
ПК 63-10-5 АIVт
Плиты перекрытия многопустотные Серия 1.141.1 КЛ-3
  • Длина 6280 мм.
  • Ширина 990 мм.
  • Высота 220 мм.
  • Вес 1925 кг.
  • Объем бетона 0,77 м3
  • Геометрический объем 1,3678 м3
Цена: 13444 руб.
Подробнее
ПК 63-10-6 АIVт
Плиты перекрытия многопустотные Серия 1.141.1 КЛ-3
  • Длина 6280 мм.
  • Ширина 990 мм.
  • Высота 220 мм.
  • Вес 1925 кг.
  • Объем бетона 0,77 м3
  • Геометрический объем 1,3678 м3
Цена: 13444 руб.
Подробнее
ПК 63-10-6 АтVт
Плиты перекрытия многопустотные Серия 1.141.1 КЛ-3
  • Длина 6280 мм.
  • Ширина 990 мм.
  • Высота 220 мм.
  • Вес 1925 кг.
  • Объем бетона 0,77 м3
  • Геометрический объем 1,3678 м3
Цена: 13444 руб.
Подробнее
ПК 63-10-8 АIVт
Плиты перекрытия многопустотные Серия 1.141.1 КЛ-3
  • Длина 6280 мм.
  • Ширина 990 мм.
  • Высота 220 мм.
  • Вес 1925 кг.
  • Объем бетона 0,77 м3
  • Геометрический объем 1,3678 м3
Цена: 13444 руб.
Подробнее
ПК 63-10-8 АтVт
Плиты перекрытия многопустотные Серия 1.141.1 КЛ-3
  • Длина 6280 мм.
  • Ширина 990 мм.
  • Высота 220 мм.
  • Вес 1925 кг.
  • Объем бетона 0,77 м3
  • Геометрический объем 1,3678 м3
Цена: 13444 руб.
Подробнее
ПК 63-12-5 АтVт
Плиты перекрытия многопустотные Серия 1.141.1 КЛ-3
  • Длина 6280 мм.
  • Ширина 1190 мм.
  • Высота 220 мм.
  • Вес 2525 кг.
  • Объем бетона 0,93 м3
  • Геометрический объем 1,6441 м3
Цена: 16238 руб.
Подробнее
ПК 63-12-6 АIVт
Плиты перекрытия многопустотные Серия 1.141.1 КЛ-3
  • Длина 6280 мм.
  • Ширина 1190 мм.
  • Высота 220 мм.
  • Вес 2525 кг.
  • Объем бетона 0,93 м3
  • Геометрический объем 1,6441 м3
Цена: 16238 руб.
Подробнее
ПК 63-12-6 АтVт
Плиты перекрытия многопустотные Серия 1.141.1 КЛ-3
  • Длина 6280 мм.
  • Ширина 1190 мм.
  • Высота 220 мм.
  • Вес 2525 кг.
  • Объем бетона 0,93 м3
  • Геометрический объем 1,6441 м3
Цена: 16238 руб.
Подробнее
ПК 63-12-8 АIVт
Плиты перекрытия многопустотные Серия 1.141.1 КЛ-3
  • Длина 6280 мм.
  • Ширина 1190 мм.
  • Высота 220 мм.
  • Вес 2525 кг.
  • Объем бетона 0,93 м3
  • Геометрический объем 1,6441 м3
Цена: 16238 руб.
Подробнее

Уведомление о файлах cookie

Мы используем файлы cookie для улучшения вашего опыта просмотра и анализа трафика. Нажимая "Принять все", вы соглашаетесь с нашей политикой конфиденциальности и политикой обработки файлов cookie.

MAX Дзен Телеграм Вконтакте vk