mobile_sound +7 (930) 655-55-90

Типовые конструкции и железобетонные изделия. Рабочие чертежи (Серия 1.131.1-23)

Поделиться:
Поделиться:

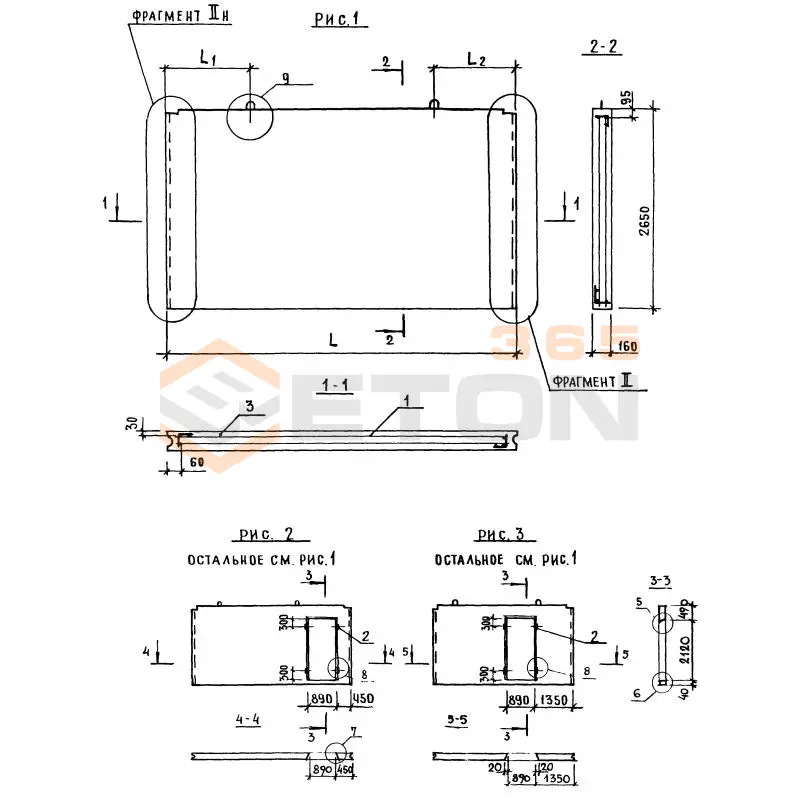
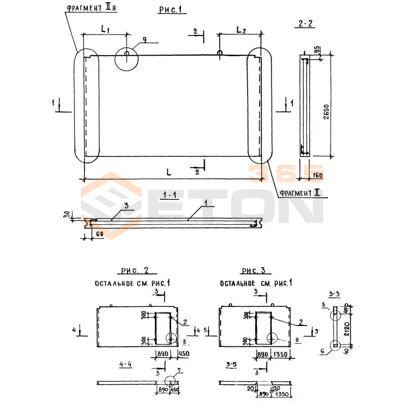
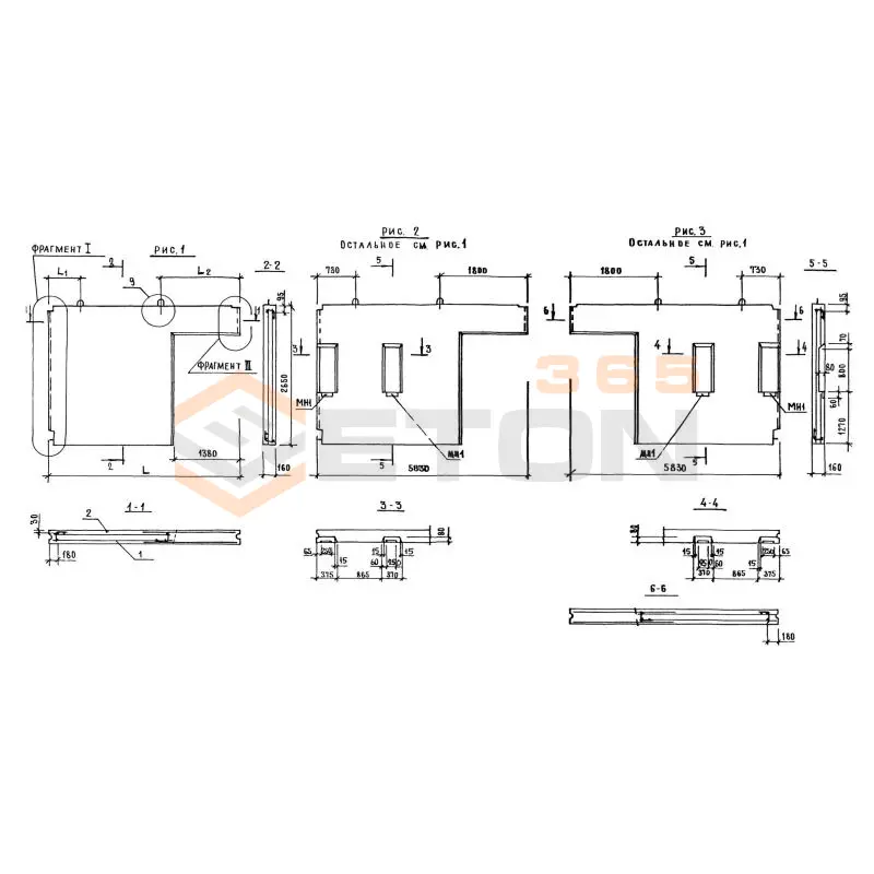
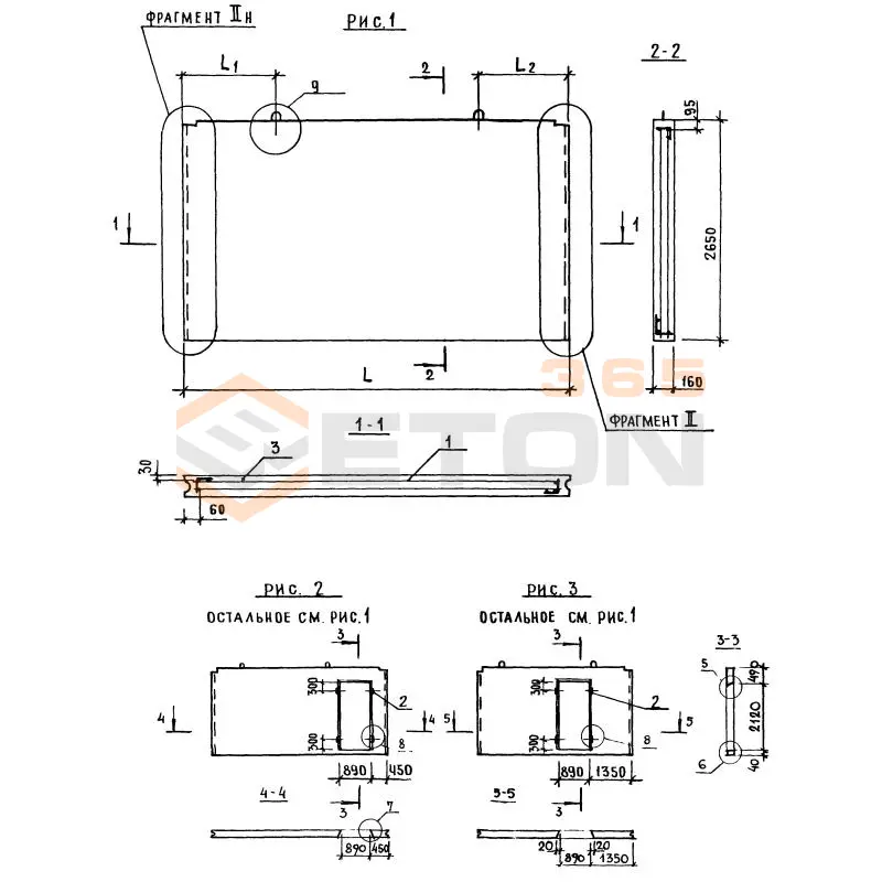
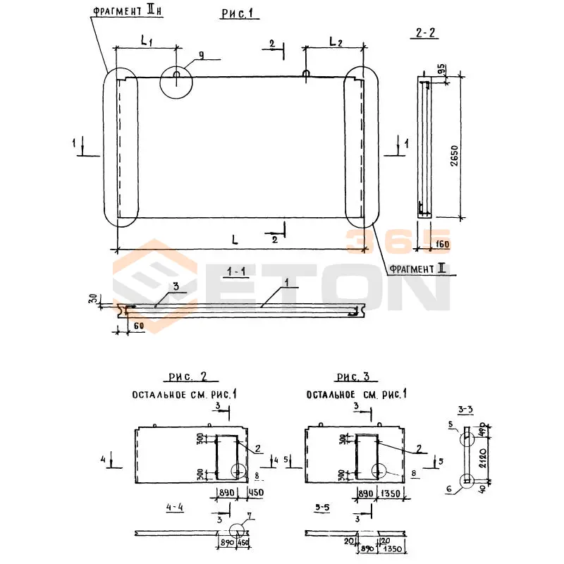
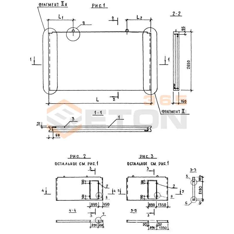
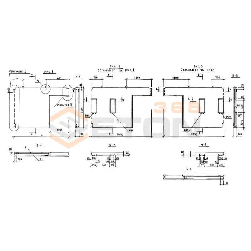
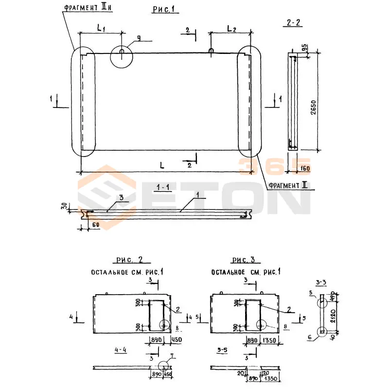
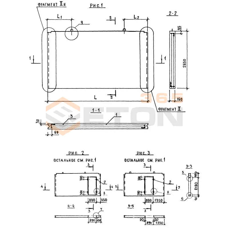
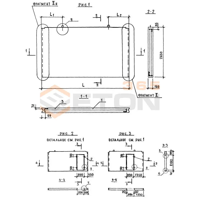
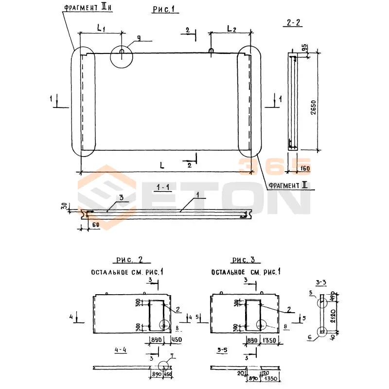
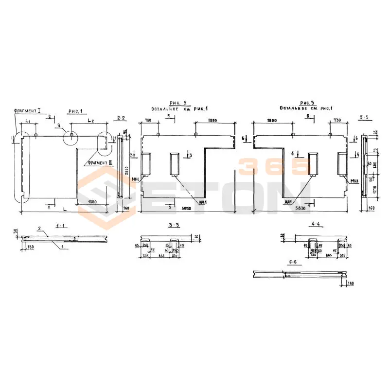
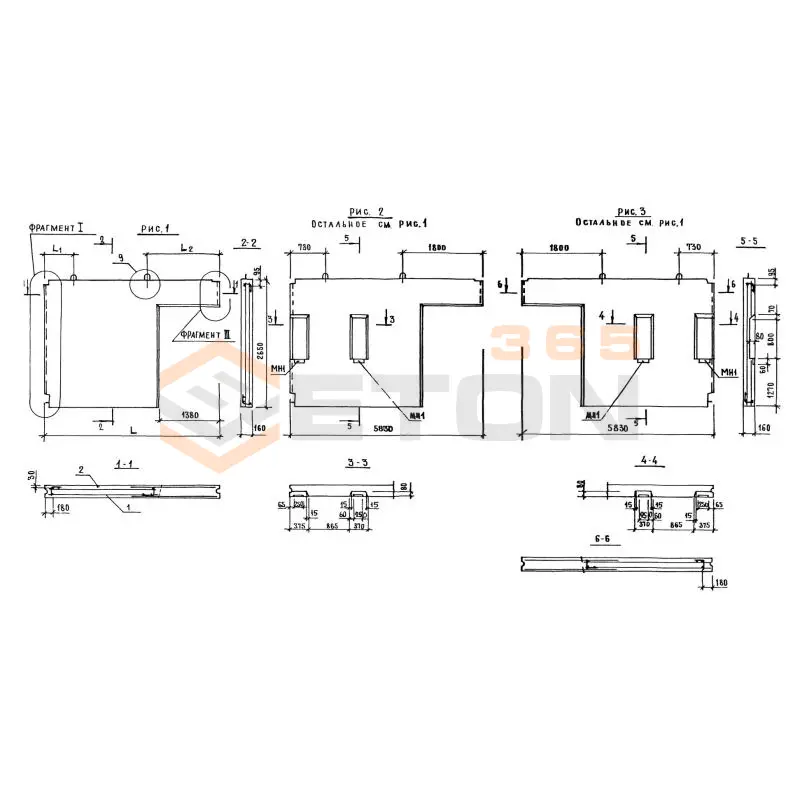
Документ Серия 1.131.1-23 описывает область применения, номенклатуру и ключевые требования, опираясь на действующие нормы и практику проектирования. Строительные каталоги типовых конструкций отличаются большим многообразием входящих в состав нормативных документов. Не осталась незамеченной Серия 1.131.1-23, разработанная институтом ЦНИИЭП жилища в 1986 году. Она определяет и регламентирует рабочие чертежи железобетонных панелей внутренних продольных и поперечных стен, которые часто используются при строительстве многоэтажных крупнопанельных жилых домов с шагом поперечных стен 3,0 и 3,6 метров, имеющих высоту этажа 2,8 метра.

Файлы для скачивания:
picture_as_pdf

2432.pdf

16,027.1 KB

скачать
Товары Серия 1.131.1-23 (60)
ПСВ 29-27-12-150 т-1,1
Панели стеновые Серия 1.131.1-23
  • Длина 2890 мм.
  • Ширина 120 мм.
  • Высота 2650 мм.
  • Вес 2280 кг.
  • Объем бетона 0,912 м3
  • Геометрический объем 0,919 м3
Цена: 35386 руб.
Подробнее
ПСВ 29-27-12-150 т-1,2-1,2
Панели стеновые Серия 1.131.1-23
  • Длина 2890 мм.
  • Ширина 120 мм.
  • Высота 2650 мм.
  • Вес 1730 кг.
  • Объем бетона 0,692 м3
  • Геометрический объем 0,919 м3
Цена: 26850 руб.
Подробнее
ПСВ 29-27-16-150 т-1,2-1,2
Панели стеновые Серия 1.131.1-23
  • Длина 2890 мм.
  • Ширина 160 мм.
  • Высота 2650 мм.
  • Вес 2280 кг.
  • Объем бетона 0,912 м3
  • Геометрический объем 1,2254 м3
Цена: 35386 руб.
Подробнее
ПСВ 29-27-16-150 т-1,2-1,4
Панели стеновые Серия 1.131.1-23
  • Длина 2890 мм.
  • Ширина 160 мм.
  • Высота 2650 мм.
  • Вес 2280 кг.
  • Объем бетона 0,912 м3
  • Геометрический объем 1,2254 м3
Цена: 35386 руб.
Подробнее
ПСВ 29-27-16-150 т-1,1
Панели стеновые Серия 1.131.1-23
  • Длина 2890 мм.
  • Ширина 160 мм.
  • Высота 2650 мм.
  • Вес 3020 кг.
  • Объем бетона 1,2 м3
  • Геометрический объем 1,2254 м3
Цена: 46560 руб.
Подробнее
ПСВ 30-27-12-150 т-2,2-1,2
Панели стеновые Серия 1.131.1-23
  • Длина 2920 мм.
  • Ширина 120 мм.
  • Высота 2650 мм.
  • Вес 1750 кг.
  • Объем бетона 0,7 м3
  • Геометрический объем 0,9286 м3
Цена: 27160 руб.
Подробнее
ПСВ 30-27-12-150 т-2,1
Панели стеновые Серия 1.131.1-23
  • Длина 2920 мм.
  • Ширина 120 мм.
  • Высота 2650 мм.
  • Вес 2300 кг.
  • Объем бетона 0,92 м3
  • Геометрический объем 0,9286 м3
Цена: 35696 руб.
Подробнее
ПСВ 30-27-16-150 т-2,1
Панели стеновые Серия 1.131.1-23
  • Длина 2920 мм.
  • Ширина 160 мм.
  • Высота 2650 мм.
  • Вес 3070 кг.
  • Объем бетона 1,22 м3
  • Геометрический объем 1,2381 м3
Цена: 47336 руб.
Подробнее
ПСВ 30-27-16-150 т-2,2-1,2
Панели стеновые Серия 1.131.1-23
  • Длина 2920 мм.
  • Ширина 160 мм.
  • Высота 2650 мм.
  • Вес 2320 кг.
  • Объем бетона 0,928 м3
  • Геометрический объем 1,2381 м3
Цена: 36006 руб.
Подробнее
ПСВ 35-27-12-150 т-1,1
Панели стеновые Серия 1.131.1-23
  • Длина 3490 мм.
  • Ширина 120 мм.
  • Высота 2650 мм.
  • Вес 2750 кг.
  • Объем бетона 1,1 м3
  • Геометрический объем 1,1098 м3
Цена: 42680 руб.
Подробнее
ПСВ 30-27-16-150 т-2,2-1,4
Панели стеновые Серия 1.131.1-23
  • Длина 2920 мм.
  • Ширина 160 мм.
  • Высота 2650 мм.
  • Вес 2320 кг.
  • Объем бетона 0,928 м3
  • Геометрический объем 1,2381 м3
Цена: 36006 руб.
Подробнее
ПСВ 35-27-12-150 т-1,2-1,2
Панели стеновые Серия 1.131.1-23
  • Длина 3490 мм.
  • Ширина 120 мм.
  • Высота 2650 мм.
  • Вес 2200 кг.
  • Объем бетона 0,88 м3
  • Геометрический объем 1,1098 м3
Цена: 34144 руб.
Подробнее
ПСВ 35-27-16-150 т-1,1
Панели стеновые Серия 1.131.1-23
  • Длина 3490 мм.
  • Ширина 160 мм.
  • Высота 2650 мм.
  • Вес 3650 кг.
  • Объем бетона 1,46 м3
  • Геометрический объем 1,4798 м3
Цена: 56648 руб.
Подробнее
ПСВ 35-27-16-150 т-1,2-1,4
Панели стеновые Серия 1.131.1-23
  • Длина 3490 мм.
  • Ширина 160 мм.
  • Высота 2650 мм.
  • Вес 2900 кг.
  • Объем бетона 1,16 м3
  • Геометрический объем 1,4798 м3
Цена: 45008 руб.
Подробнее
ПСВ 35-27-16-150 т-1,2-1,2
Панели стеновые Серия 1.131.1-23
  • Длина 3490 мм.
  • Ширина 160 мм.
  • Высота 2650 мм.
  • Вес 2900 кг.
  • Объем бетона 1,16 м3
  • Геометрический объем 1,4798 м3
Цена: 45008 руб.
Подробнее
ПСВ 36-27-12-150 т-2,2-1,2
Панели стеновые Серия 1.131.1-23
  • Длина 3520 мм.
  • Ширина 120 мм.
  • Высота 2650 мм.
  • Вес 2230 кг.
  • Объем бетона 0,892 м3
  • Геометрический объем 1,1194 м3
Цена: 34610 руб.
Подробнее
ПСВ 36-27-12-150 т-2,1
Панели стеновые Серия 1.131.1-23
  • Длина 3520 мм.
  • Ширина 120 мм.
  • Высота 2650 мм.
  • Вес 2780 кг.
  • Объем бетона 1,11 м3
  • Геометрический объем 1,1194 м3
Цена: 43068 руб.
Подробнее
ПСВ 36-27-16-150 т-2,1
Панели стеновые Серия 1.131.1-23
  • Длина 3520 мм.
  • Ширина 160 мм.
  • Высота 2650 мм.
  • Вес 3720 кг.
  • Объем бетона 1,48 м3
  • Геометрический объем 1,4925 м3
Цена: 57424 руб.
Подробнее
ПСВ 36-27-16-150 т-2,2-1,2
Панели стеновые Серия 1.131.1-23
  • Длина 3520 мм.
  • Ширина 160 мм.
  • Высота 2650 мм.
  • Вес 2980 кг.
  • Объем бетона 1,192 м3
  • Геометрический объем 1,4925 м3
Цена: 46250 руб.
Подробнее
ПСВ 36-27-16-150 т-2,2-1,4
Панели стеновые Серия 1.131.1-23
  • Длина 3520 мм.
  • Ширина 160 мм.
  • Высота 2650 мм.
  • Вес 2980 кг.
  • Объем бетона 1,192 м3
  • Геометрический объем 1,4925 м3
Цена: 46250 руб.
Подробнее
ПСВ 46-27-12-150 т-1,1
Панели стеновые Серия 1.131.1-23
  • Длина 4630 мм.
  • Ширина 120 мм.
  • Высота 2650 мм.
  • Вес 3650 кг.
  • Объем бетона 1,46 м3
  • Геометрический объем 1,4723 м3
Цена: 56648 руб.
Подробнее
ПСВ 46-27-12-150 т-1,2-1,1
Панели стеновые Серия 1.131.1-23
  • Длина 4630 мм.
  • Ширина 120 мм.
  • Высота 2650 мм.
  • Вес 3100 кг.
  • Объем бетона 1,24 м3
  • Геометрический объем 1,4723 м3
Цена: 48112 руб.
Подробнее
ПСВ 46-27-12-150 т-1,2-1,3
Панели стеновые Серия 1.131.1-23
  • Длина 4630 мм.
  • Ширина 120 мм.
  • Высота 2650 мм.
  • Вес 3100 кг.
  • Объем бетона 1,24 м3
  • Геометрический объем 1,4723 м3
Цена: 48112 руб.
Подробнее
ПСВ 52-27-12-150 т-1,1
Панели стеновые Серия 1.131.1-23
  • Длина 5230 мм.
  • Ширина 120 мм.
  • Высота 2650 мм.
  • Вес 4130 кг.
  • Объем бетона 1,65 м3
  • Геометрический объем 1,6631 м3
Цена: 64020 руб.
Подробнее
ПСВ 52-27-12-150 т-1,2-1,2
Панели стеновые Серия 1.131.1-23
  • Длина 5230 мм.
  • Ширина 120 мм.
  • Высота 2650 мм.
  • Вес 3580 кг.
  • Объем бетона 1,432 м3
  • Геометрический объем 1,6631 м3
Цена: 55562 руб.
Подробнее
ПСВ 52-27-12-150 т-1,2-1,3
Панели стеновые Серия 1.131.1-23
  • Длина 5230 мм.
  • Ширина 120 мм.
  • Высота 2650 мм.
  • Вес 3580 кг.
  • Объем бетона 1,43 м3
  • Геометрический объем 1,6631 м3
Цена: 55484 руб.
Подробнее
ПСВ 52-27-16-150 т-1,1
Панели стеновые Серия 1.131.1-23
  • Длина 5230 мм.
  • Ширина 160 мм.
  • Высота 2650 мм.
  • Вес 5520 кг.
  • Объем бетона 2,208 м3
  • Геометрический объем 2,2175 м3
Цена: 85670 руб.
Подробнее
ПСВ 52-27-16-150 т-1,3-2
Панели стеновые Серия 1.131.1-23
  • Длина 5230 мм.
  • Ширина 160 мм.
  • Высота 2650 мм.
  • Вес 4350 кг.
  • Объем бетона 1,74 м3
  • Геометрический объем 2,2175 м3
Цена: 67512 руб.
Подробнее
ПСВ 58-27-12-150 т-1,1
Панели стеновые Серия 1.131.1-23
  • Длина 5830 мм.
  • Ширина 120 мм.
  • Высота 2650 мм.
  • Вес 4600 кг.
  • Объем бетона 1,84 м3
  • Геометрический объем 1,8539 м3
Цена: 71392 руб.
Подробнее
ПСВ 58-27-12-150 т-1,2-1,1
Панели стеновые Серия 1.131.1-23
  • Длина 5830 мм.
  • Ширина 120 мм.
  • Высота 2650 мм.
  • Вес 4050 кг.
  • Объем бетона 1,62 м3
  • Геометрический объем 1,8539 м3
Цена: 62856 руб.
Подробнее
ПСВ 58-27-16-150 т-1,1
Панели стеновые Серия 1.131.1-23
  • Длина 5830 мм.
  • Ширина 160 мм.
  • Высота 2650 мм.
  • Вес 6150 кг.
  • Объем бетона 2,46 м3
  • Геометрический объем 2,4719 м3
Цена: 95448 руб.
Подробнее
ПСВ 58-27-16-150 т-1,3-2
Панели стеновые Серия 1.131.1-23
  • Длина 5830 мм.
  • Ширина 160 мм.
  • Высота 2650 мм.
  • Вес 4980 кг.
  • Объем бетона 1,77 м3
  • Геометрический объем 2,4719 м3
Цена: 68676 руб.
Подробнее
ПСВ 58-27-12-150 т-1,2-1,3
Панели стеновые Серия 1.131.1-23
  • Длина 5830 мм.
  • Ширина 120 мм.
  • Высота 2650 мм.
  • Вес 4050 кг.
  • Объем бетона 1,62 м3
  • Геометрический объем 1,8539 м3
Цена: 62856 руб.
Подробнее
ПСВ 58-27-16-150 т-1,4-2
Панели стеновые Серия 1.131.1-23
  • Длина 5830 мм.
  • Ширина 160 мм.
  • Высота 2650 мм.
  • Вес 4870 кг.
  • Объем бетона 1,948 м3
  • Геометрический объем 2,4719 м3
Цена: 75582 руб.
Подробнее
ПСВ 58-27-16-150 т-1,4-2 л
Панели стеновые Серия 1.131.1-23
  • Длина 5830 мм.
  • Ширина 160 мм.
  • Высота 2650 мм.
  • Вес 4870 кг.
  • Объем бетона 1,948 м3
  • Геометрический объем 2,4719 м3
Цена: 75582 руб.
Подробнее
ПСВ 59-27-16-150 т-1,2-1,2
Панели стеновые Серия 1.131.1-23
  • Длина 5890 мм.
  • Ширина 160 мм.
  • Высота 2650 мм.
  • Вес 5450 кг.
  • Объем бетона 2,18 м3
  • Геометрический объем 2,4974 м3
Цена: 84584 руб.
Подробнее
ПСВ 59-27-16-150 т-1,1
Панели стеновые Серия 1.131.1-23
  • Длина 5890 мм.
  • Ширина 160 мм.
  • Высота 2650 мм.
  • Вес 6200 кг.
  • Объем бетона 2,48 м3
  • Геометрический объем 2,4974 м3
Цена: 96224 руб.
Подробнее
ПСВ 59-27-12-150 т-1,1
Панели стеновые Серия 1.131.1-23
  • Длина 5890 мм.
  • Ширина 120 мм.
  • Высота 2650 мм.
  • Вес 4650 кг.
  • Объем бетона 1,86 м3
  • Геометрический объем 1,873 м3
Цена: 72168 руб.
Подробнее
ПСВ 60-27-12-150 т-2,1
Панели стеновые Серия 1.131.1-23
  • Длина 5920 мм.
  • Ширина 120 мм.
  • Высота 2650 мм.
  • Вес 4680 кг.
  • Объем бетона 1,87 м3
  • Геометрический объем 1,8826 м3
Цена: 72556 руб.
Подробнее
ПСВ 59-27-16-150 т-1,2-1,4
Панели стеновые Серия 1.131.1-23
  • Длина 5890 мм.
  • Ширина 160 мм.
  • Высота 2650 мм.
  • Вес 5450 кг.
  • Объем бетона 2,18 м3
  • Геометрический объем 2,4974 м3
Цена: 84584 руб.
Подробнее
ПСВ 59-27-12-150 т-1,2-1,2
Панели стеновые Серия 1.131.1-23
  • Длина 5890 мм.
  • Ширина 120 мм.
  • Высота 2650 мм.
  • Вес 4100 кг.
  • Объем бетона 1,64 м3
  • Геометрический объем 1,873 м3
Цена: 63632 руб.
Подробнее
ПСВ 60-27-12-150 т-2,2-1,2
Панели стеновые Серия 1.131.1-23
  • Длина 5920 мм.
  • Ширина 120 мм.
  • Высота 2650 мм.
  • Вес 4130 кг.
  • Объем бетона 1,652 м3
  • Геометрический объем 1,8826 м3
Цена: 64098 руб.
Подробнее
ПСВ 60-27-16-150 т-2,2-1,4
Панели стеновые Серия 1.131.1-23
  • Длина 5920 мм.
  • Ширина 160 мм.
  • Высота 2650 мм.
  • Вес 5500 кг.
  • Объем бетона 2,2 м3
  • Геометрический объем 2,5101 м3
Цена: 85360 руб.
Подробнее
ПСВ 60-27-16-150 т-2,1
Панели стеновые Серия 1.131.1-23
  • Длина 5920 мм.
  • Ширина 160 мм.
  • Высота 2650 мм.
  • Вес 6250 кг.
  • Объем бетона 2,5 м3
  • Геометрический объем 2,5101 м3
Цена: 97000 руб.
Подробнее
ПСВ 64-27-12-150 т-1,1
Панели стеновые Серия 1.131.1-23
  • Длина 6430 мм.
  • Ширина 120 мм.
  • Высота 2650 мм.
  • Вес 5080 кг.
  • Объем бетона 2,032 м3
  • Геометрический объем 2,0447 м3
Цена: 78842 руб.
Подробнее
ПСВ 60-27-16-150 т-2,2-1,2
Панели стеновые Серия 1.131.1-23
  • Длина 5920 мм.
  • Ширина 160 мм.
  • Высота 2650 мм.
  • Вес 5500 кг.
  • Объем бетона 2,2 м3
  • Геометрический объем 2,5101 м3
Цена: 85360 руб.
Подробнее
ПСВ 64-27-12-150 т-1,2-1,1
Панели стеновые Серия 1.131.1-23
  • Длина 6430 мм.
  • Ширина 120 мм.
  • Высота 2650 мм.
  • Вес 4520 кг.
  • Объем бетона 1,8 м3
  • Геометрический объем 2,0447 м3
Цена: 69840 руб.
Подробнее
ПСВ 64-27-12-150 т-1,2-1,3
Панели стеновые Серия 1.131.1-23
  • Длина 6430 мм.
  • Ширина 120 мм.
  • Высота 2650 мм.
  • Вес 4520 кг.
  • Объем бетона 1,8 м3
  • Геометрический объем 2,0447 м3
Цена: 69840 руб.
Подробнее
ПСВ 65-27-12-150 т-1,2-1,2
Панели стеновые Серия 1.131.1-23
  • Длина 6490 мм.
  • Ширина 120 мм.
  • Высота 2650 мм.
  • Вес 4580 кг.
  • Объем бетона 1,83 м3
  • Геометрический объем 2,0638 м3
Цена: 71004 руб.
Подробнее
ПСВ 65-27-12-150 т-1,1
Панели стеновые Серия 1.131.1-23
  • Длина 6490 мм.
  • Ширина 120 мм.
  • Высота 2650 мм.
  • Вес 5130 кг.
  • Объем бетона 2,05 м3
  • Геометрический объем 2,0638 м3
Цена: 79540 руб.
Подробнее
ПСВ 65-27-16-150 т-1,2-1,4
Панели стеновые Серия 1.131.1-23
  • Длина 6490 мм.
  • Ширина 160 мм.
  • Высота 2650 мм.
  • Вес 6100 кг.
  • Объем бетона 2,44 м3
  • Геометрический объем 2,7518 м3
Цена: 94672 руб.
Подробнее
ПСВ 65-27-16-150 т-1,2-1,2
Панели стеновые Серия 1.131.1-23
  • Длина 6490 мм.
  • Ширина 160 мм.
  • Высота 2650 мм.
  • Вес 6100 кг.
  • Объем бетона 2,44 м3
  • Геометрический объем 2,7518 м3
Цена: 94672 руб.
Подробнее
ПСВ 65-27-16-150 т-1,1
Панели стеновые Серия 1.131.1-23
  • Длина 6490 мм.
  • Ширина 160 мм.
  • Высота 2650 мм.
  • Вес 6840 кг.
  • Объем бетона 2,73 м3
  • Геометрический объем 2,7518 м3
Цена: 105924 руб.
Подробнее
ПСВ 64-27-16-150 т-1,1
Панели стеновые Серия 1.131.1-23
  • Длина 6430 мм.
  • Ширина 160 мм.
  • Высота 2650 мм.
  • Вес 6770 кг.
  • Объем бетона 2,7 м3
  • Геометрический объем 2,7263 м3
Цена: 104760 руб.
Подробнее
ПСВ 64-27-16-150 т-1,3-2
Панели стеновые Серия 1.131.1-23
  • Длина 6430 мм.
  • Ширина 160 мм.
  • Высота 2650 мм.
  • Вес 5600 кг.
  • Объем бетона 2,24 м3
  • Геометрический объем 2,7263 м3
Цена: 86912 руб.
Подробнее
ПСВ 66-27-12-150 т-2,2-1,2
Панели стеновые Серия 1.131.1-23
  • Длина 6520 мм.
  • Ширина 120 мм.
  • Высота 2650 мм.
  • Вес 4600 кг.
  • Объем бетона 1,84 м3
  • Геометрический объем 2,0734 м3
Цена: 71392 руб.
Подробнее
ПСВ 66-27-12-150 т-2,1
Панели стеновые Серия 1.131.1-23
  • Длина 6520 мм.
  • Ширина 120 мм.
  • Высота 2650 мм.
  • Вес 5150 кг.
  • Объем бетона 2,06 м3
  • Геометрический объем 2,0734 м3
Цена: 79928 руб.
Подробнее
ПСВ 66-27-16-150 т-2,2-1,2
Панели стеновые Серия 1.131.1-23
  • Длина 6520 мм.
  • Ширина 160 мм.
  • Высота 2650 мм.
  • Вес 6120 кг.
  • Объем бетона 2,448 м3
  • Геометрический объем 2,7645 м3
Цена: 94982 руб.
Подробнее
ПСВ 66-27-16-150 т-2,2-1,4
Панели стеновые Серия 1.131.1-23
  • Длина 6520 мм.
  • Ширина 160 мм.
  • Высота 2650 мм.
  • Вес 6120 кг.
  • Объем бетона 2,448 м3
  • Геометрический объем 2,7645 м3
Цена: 94982 руб.
Подробнее
ПСВ 71-27-12-150 т-1,2-1,2
Панели стеновые Серия 1.131.1-23
  • Длина 7090 мм.
  • Ширина 120 мм.
  • Высота 2650 мм.
  • Вес 5050 кг.
  • Объем бетона 2,02 м3
  • Геометрический объем 2,2546 м3
Цена: 78376 руб.
Подробнее

Уведомление о файлах cookie

Мы используем файлы cookie для улучшения вашего опыта просмотра и анализа трафика. Нажимая "Принять все", вы соглашаетесь с нашей политикой конфиденциальности и политикой обработки файлов cookie.

Дзен Телеграм Вконтакте vk