mobile_sound +7 (930) 655-55-90

Типовые конструкции и железобетонные изделия. Рабочие чертежи (Серия 1.030.9-2)

Поделиться:
Поделиться:

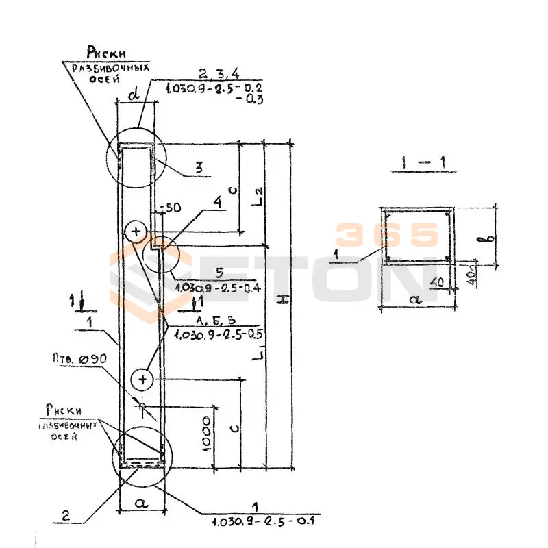
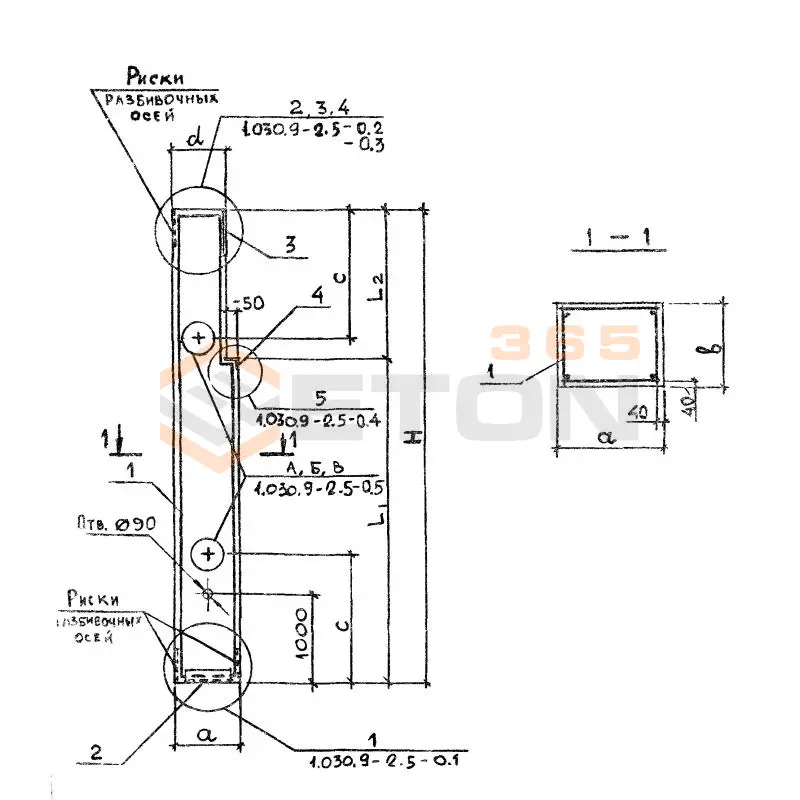
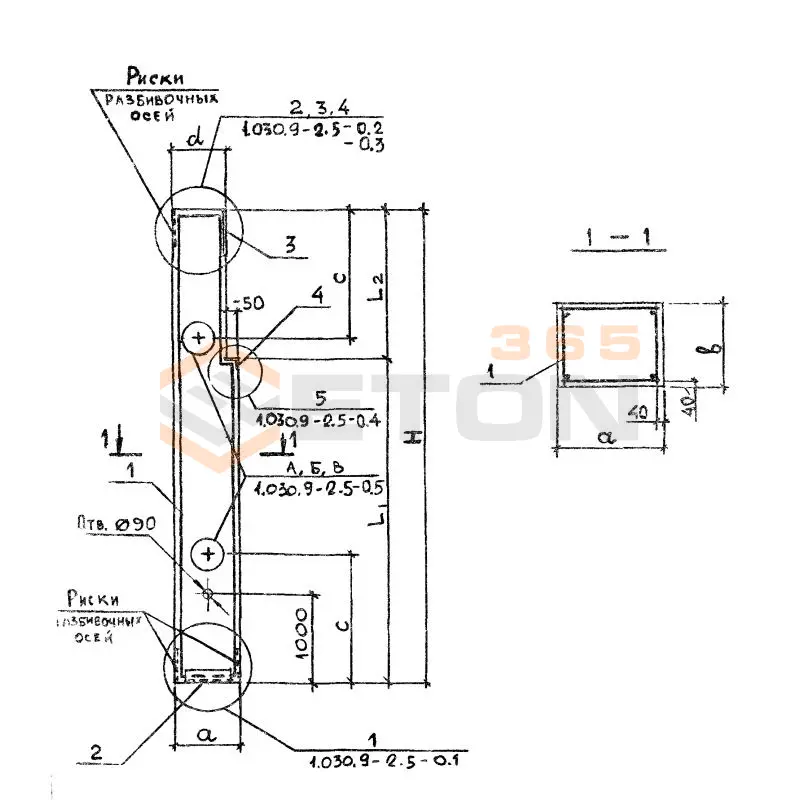
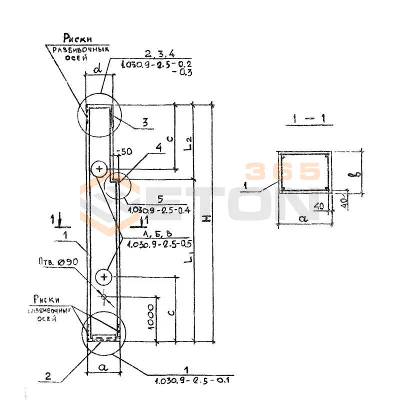
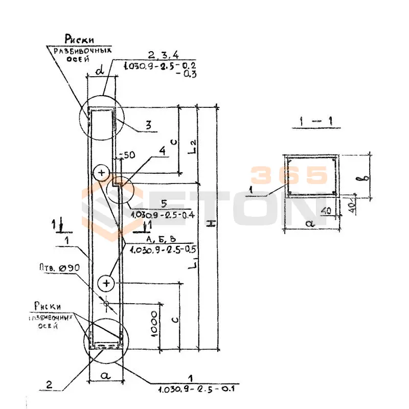
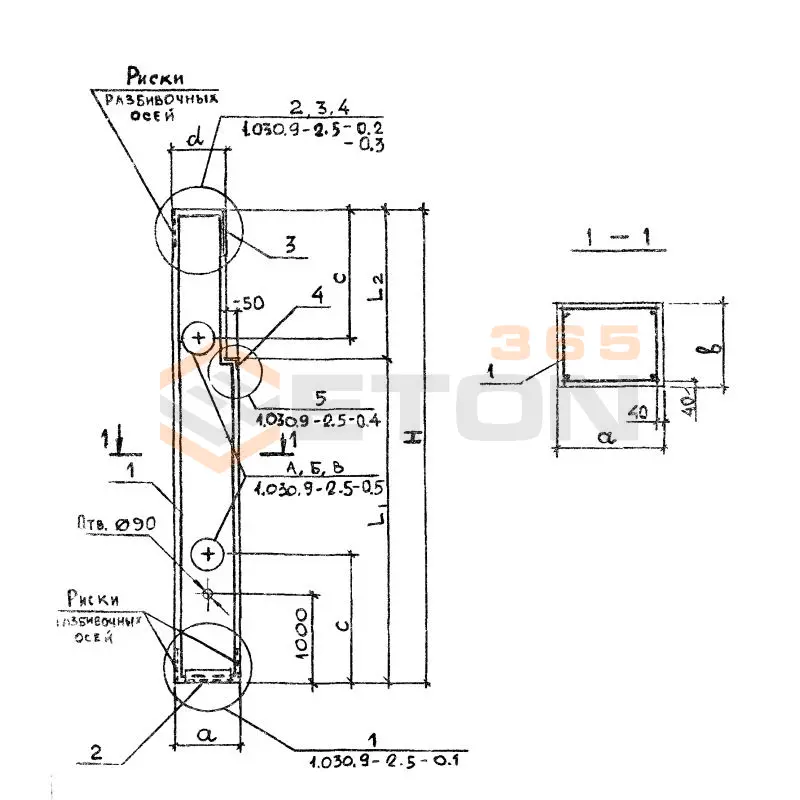
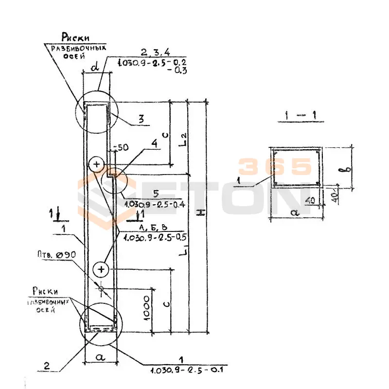
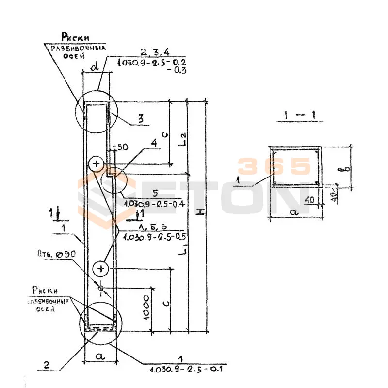
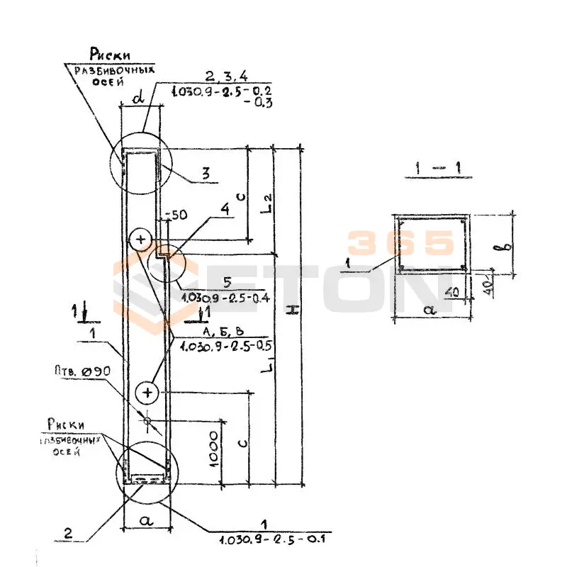
Документ Серия 1.030.9-2 описывает область применения, номенклатуру и ключевые требования, опираясь на действующие нормы и практику проектирования. Регламент Серия 1.030.9-2 детально описывает специфику производства панельных перегородок, используемых при строительстве сооружений промышленных и сельскохозяйственных предприятий. Введение документа в эксплуатацию осуществилось в 1985 году, разработка велась институтом ЦНИИПРОМСЗДАНИЙ совместно с Харьковским ПРОМСТРОЙНИИПРОЕКТом. Представленные в документе изделия и конструкции рассчитаны на применение в производственных зданиях высотой от 3 до 18 метров, с краном и без, возводимых по унифицированным габаритным схемам.

Файлы для скачивания:
picture_as_pdf

671.pdf

30,917.2 KB

скачать
picture_as_pdf

672.pdf

31,100.8 KB

скачать
picture_as_pdf

673.pdf

8,401.4 KB

скачать
picture_as_pdf

674.pdf

2,286.0 KB

скачать
picture_as_pdf

675.pdf

4,989.1 KB

скачать
picture_as_pdf

676.pdf

5,670.2 KB

скачать
picture_as_pdf

677.pdf

19,245.9 KB

скачать
picture_as_pdf

678.pdf

12,286.7 KB

скачать
picture_as_pdf

679.pdf

27,088.6 KB

скачать
Товары Серия 1.030.9-2 (60)
КБ 1
Колонны Серия 1.030.9-2
  • Длина 3000 мм.
  • Ширина 300 мм.
  • Высота 300 мм.
  • Вес 6800 кг.
  • Объем бетона 0,27 м3
  • Геометрический объем 0,27 м3
Цена: 6286 руб.
Подробнее
КБ 10
Колонны Серия 1.030.9-2
  • Длина 6850 мм.
  • Ширина 400 мм.
  • Высота 300 мм.
  • Вес 2060 кг.
  • Объем бетона 0,824 м3
  • Геометрический объем 0,822 м3
Цена: 19183 руб.
Подробнее
КБ 11-1
Колонны Серия 1.030.9-2
  • Длина 7200 мм.
  • Ширина 400 мм.
  • Высота 300 мм.
  • Вес 2160 кг.
  • Объем бетона 0,864 м3
  • Геометрический объем 0,864 м3
Цена: 20114 руб.
Подробнее
КБ 11-2
Колонны Серия 1.030.9-2
  • Длина 7200 мм.
  • Ширина 400 мм.
  • Высота 300 мм.
  • Вес 2160 кг.
  • Объем бетона 0,864 м3
  • Геометрический объем 0,864 м3
Цена: 20114 руб.
Подробнее
КБ 12
Колонны Серия 1.030.9-2
  • Длина 7800 мм.
  • Ширина 400 мм.
  • Высота 300 мм.
  • Вес 2340 кг.
  • Объем бетона 0,936 м3
  • Геометрический объем 0,936 м3
Цена: 21790 руб.
Подробнее
КБ 13
Колонны Серия 1.030.9-2
  • Длина 7800 мм.
  • Ширина 400 мм.
  • Высота 300 мм.
  • Вес 2220 кг.
  • Объем бетона 0,888 м3
  • Геометрический объем 0,936 м3
Цена: 20673 руб.
Подробнее
КБ 15
Колонны Серия 1.030.9-2
  • Длина 8050 мм.
  • Ширина 400 мм.
  • Высота 300 мм.
  • Вес 2420 кг.
  • Объем бетона 0,968 м3
  • Геометрический объем 0,966 м3
Цена: 22535 руб.
Подробнее
КБ 14
Колонны Серия 1.030.9-2
  • Длина 7800 мм.
  • Ширина 400 мм.
  • Высота 300 мм.
  • Вес 2240 кг.
  • Объем бетона 0,896 м3
  • Геометрический объем 0,936 м3
Цена: 20859 руб.
Подробнее
КБ 16-1
Колонны Серия 1.030.9-2
  • Длина 8050 мм.
  • Ширина 400 мм.
  • Высота 300 мм.
  • Вес 2290 кг.
  • Объем бетона 0,916 м3
  • Геометрический объем 0,966 м3
Цена: 21324 руб.
Подробнее
КБ 16-2
Колонны Серия 1.030.9-2
  • Длина 8050 мм.
  • Ширина 400 мм.
  • Высота 300 мм.
  • Вес 2290 кг.
  • Объем бетона 0,916 м3
  • Геометрический объем 0,966 м3
Цена: 21324 руб.
Подробнее
КБ 17-1
Колонны Серия 1.030.9-2
  • Длина 8050 мм.
  • Ширина 400 мм.
  • Высота 300 мм.
  • Вес 2310 кг.
  • Объем бетона 0,924 м3
  • Геометрический объем 0,966 м3
Цена: 21511 руб.
Подробнее
КБ 17-2
Колонны Серия 1.030.9-2
  • Длина 8050 мм.
  • Ширина 400 мм.
  • Высота 300 мм.
  • Вес 2310 кг.
  • Объем бетона 0,924 м3
  • Геометрический объем 0,966 м3
Цена: 21511 руб.
Подробнее
КБ 18-1
Колонны Серия 1.030.9-2
  • Длина 8400 мм.
  • Ширина 400 мм.
  • Высота 300 мм.
  • Вес 2520 кг.
  • Объем бетона 1,008 м3
  • Геометрический объем 1,008 м3
Цена: 23466 руб.
Подробнее
КБ 18-2
Колонны Серия 1.030.9-2
  • Длина 8400 мм.
  • Ширина 400 мм.
  • Высота 300 мм.
  • Вес 2520 кг.
  • Объем бетона 1,008 м3
  • Геометрический объем 1,008 м3
Цена: 23466 руб.
Подробнее
КБ 2
Колонны Серия 1.030.9-2
  • Длина 3600 мм.
  • Ширина 300 мм.
  • Высота 300 мм.
  • Вес 810 кг.
  • Объем бетона 0,324 м3
  • Геометрический объем 0,324 м3
Цена: 7543 руб.
Подробнее
КБ 19
Колонны Серия 1.030.9-2
  • Длина 9000 мм.
  • Ширина 400 мм.
  • Высота 300 мм.
  • Вес 2700 кг.
  • Объем бетона 1,08 м3
  • Геометрический объем 1,08 м3
Цена: 25142 руб.
Подробнее
КБ 22
Колонны Серия 1.030.9-2
  • Длина 9000 мм.
  • Ширина 400 мм.
  • Высота 300 мм.
  • Вес 2600 кг.
  • Объем бетона 1,04 м3
  • Геометрический объем 1,08 м3
Цена: 24211 руб.
Подробнее
КБ 21
Колонны Серия 1.030.9-2
  • Длина 9000 мм.
  • Ширина 400 мм.
  • Высота 300 мм.
  • Вес 2560 кг.
  • Объем бетона 1,024 м3
  • Геометрический объем 1,08 м3
Цена: 23839 руб.
Подробнее
КБ 20
Колонны Серия 1.030.9-2
  • Длина 9000 мм.
  • Ширина 400 мм.
  • Высота 300 мм.
  • Вес 2380 кг.
  • Объем бетона 0,952 м3
  • Геометрический объем 1,08 м3
Цена: 22163 руб.
Подробнее
КБ 23
Колонны Серия 1.030.9-2
  • Длина 9250 мм.
  • Ширина 400 мм.
  • Высота 400 мм.
  • Вес 3800 кг.
  • Объем бетона 1,5 м3
  • Геометрический объем 1,48 м3
Цена: 34920 руб.
Подробнее
КБ 24-2
Колонны Серия 1.030.9-2
  • Длина 9250 мм.
  • Ширина 400 мм.
  • Высота 400 мм.
  • Вес 3530 кг.
  • Объем бетона 1,412 м3
  • Геометрический объем 1,48 м3
Цена: 32871 руб.
Подробнее
КБ 25-2
Колонны Серия 1.030.9-2
  • Длина 9250 мм.
  • Ширина 400 мм.
  • Высота 400 мм.
  • Вес 3500 кг.
  • Объем бетона 1,4 м3
  • Геометрический объем 1,48 м3
Цена: 32592 руб.
Подробнее
КБ 25-1
Колонны Серия 1.030.9-2
  • Длина 9250 мм.
  • Ширина 400 мм.
  • Высота 400 мм.
  • Вес 3500 кг.
  • Объем бетона 1,4 м3
  • Геометрический объем 1,48 м3
Цена: 32592 руб.
Подробнее
КБ 24-1
Колонны Серия 1.030.9-2
  • Длина 9250 мм.
  • Ширина 400 мм.
  • Высота 400 мм.
  • Вес 3530 кг.
  • Объем бетона 1,412 м3
  • Геометрический объем 1,48 м3
Цена: 32871 руб.
Подробнее
КБ 26-1
Колонны Серия 1.030.9-2
  • Длина 9250 мм.
  • Ширина 400 мм.
  • Высота 400 мм.
  • Вес 3560 кг.
  • Объем бетона 1,424 м3
  • Геометрический объем 1,48 м3
Цена: 33151 руб.
Подробнее
КБ 26-2
Колонны Серия 1.030.9-2
  • Длина 9250 мм.
  • Ширина 400 мм.
  • Высота 400 мм.
  • Вес 3560 кг.
  • Объем бетона 1,424 м3
  • Геометрический объем 1,48 м3
Цена: 33151 руб.
Подробнее
КБ 27
Колонны Серия 1.030.9-2
  • Длина 9300 мм.
  • Ширина 400 мм.
  • Высота 400 мм.
  • Вес 3490 кг.
  • Объем бетона 1,396 м3
  • Геометрический объем 1,488 м3
Цена: 32499 руб.
Подробнее
КБ 28
Колонны Серия 1.030.9-2
  • Длина 9300 мм.
  • Ширина 400 мм.
  • Высота 400 мм.
  • Вес 3520 кг.
  • Объем бетона 1,408 м3
  • Геометрический объем 1,488 м3
Цена: 32778 руб.
Подробнее
КБ 29-1
Колонны Серия 1.030.9-2
  • Длина 9600 мм.
  • Ширина 400 мм.
  • Высота 400 мм.
  • Вес 3850 кг.
  • Объем бетона 1,54 м3
  • Геометрический объем 1,536 м3
Цена: 35851 руб.
Подробнее
КБ 3-1
Колонны Серия 1.030.9-2
  • Длина 4200 мм.
  • Ширина 300 мм.
  • Высота 300 мм.
  • Вес 950 кг.
  • Объем бетона 0,38 м3
  • Геометрический объем 0,378 м3
Цена: 8846 руб.
Подробнее
КБ 29-2
Колонны Серия 1.030.9-2
  • Длина 9600 мм.
  • Ширина 400 мм.
  • Высота 400 мм.
  • Вес 3850 кг.
  • Объем бетона 1,54 м3
  • Геометрический объем 1,536 м3
Цена: 35851 руб.
Подробнее
КБ 3-2
Колонны Серия 1.030.9-2
  • Длина 4200 мм.
  • Ширина 300 мм.
  • Высота 300 мм.
  • Вес 950 кг.
  • Объем бетона 0,38 м3
  • Геометрический объем 0,378 м3
Цена: 8846 руб.
Подробнее
КБ 30
Колонны Серия 1.030.9-2
  • Длина 10200 мм.
  • Ширина 400 мм.
  • Высота 400 мм.
  • Вес 4080 кг.
  • Объем бетона 1,63 м3
  • Геометрический объем 1,632 м3
Цена: 37946 руб.
Подробнее
КБ 31
Колонны Серия 1.030.9-2
  • Длина 10200 мм.
  • Ширина 400 мм.
  • Высота 400 мм.
  • Вес 3760 кг.
  • Объем бетона 1,504 м3
  • Геометрический объем 1,632 м3
Цена: 35013 руб.
Подробнее
КБ 32
Колонны Серия 1.030.9-2
  • Длина 10200 мм.
  • Ширина 400 мм.
  • Высота 400 мм.
  • Вес 3690 кг.
  • Объем бетона 1,476 м3
  • Геометрический объем 1,632 м3
Цена: 34361 руб.
Подробнее
КБ 35-1
Колонны Серия 1.030.9-2
  • Длина 10450 мм.
  • Ширина 500 мм.
  • Высота 400 мм.
  • Вес 4880 кг.
  • Объем бетона 1,952 м3
  • Геометрический объем 2,09 м3
Цена: 45443 руб.
Подробнее
КБ 34
Колонны Серия 1.030.9-2
  • Длина 10450 мм.
  • Ширина 500 мм.
  • Высота 400 мм.
  • Вес 5230 кг.
  • Объем бетона 2,09 м3
  • Геометрический объем 2,09 м3
Цена: 48655 руб.
Подробнее
КБ 33
Колонны Серия 1.030.9-2
  • Длина 10200 мм.
  • Ширина 400 мм.
  • Высота 400 мм.
  • Вес 3830 кг.
  • Объем бетона 1,532 м3
  • Геометрический объем 1,632 м3
Цена: 35665 руб.
Подробнее
КБ 35-2
Колонны Серия 1.030.9-2
  • Длина 10450 мм.
  • Ширина 500 мм.
  • Высота 400 мм.
  • Вес 4880 кг.
  • Объем бетона 1,952 м3
  • Геометрический объем 2,09 м3
Цена: 45443 руб.
Подробнее
КБ 36-2
Колонны Серия 1.030.9-2
  • Длина 10450 мм.
  • Ширина 500 мм.
  • Высота 400 мм.
  • Вес 4820 кг.
  • Объем бетона 1,928 м3
  • Геометрический объем 2,09 м3
Цена: 44884 руб.
Подробнее
КБ 36-1
Колонны Серия 1.030.9-2
  • Длина 10450 мм.
  • Ширина 500 мм.
  • Высота 400 мм.
  • Вес 4820 кг.
  • Объем бетона 1,928 м3
  • Геометрический объем 2,09 м3
Цена: 44884 руб.
Подробнее
КБ 37-2
Колонны Серия 1.030.9-2
  • Длина 10450 мм.
  • Ширина 500 мм.
  • Высота 400 мм.
  • Вес 4940 кг.
  • Объем бетона 1,976 м3
  • Геометрический объем 2,09 м3
Цена: 46001 руб.
Подробнее
КБ 37-1
Колонны Серия 1.030.9-2
  • Длина 10450 мм.
  • Ширина 500 мм.
  • Высота 400 мм.
  • Вес 4940 кг.
  • Объем бетона 1,976 м3
  • Геометрический объем 2,09 м3
Цена: 46001 руб.
Подробнее
КБ 38
Колонны Серия 1.030.9-2
  • Длина 10500 мм.
  • Ширина 500 мм.
  • Высота 400 мм.
  • Вес 5020 кг.
  • Объем бетона 2,008 м3
  • Геометрический объем 2,1 м3
Цена: 46746 руб.
Подробнее
КБ 4
Колонны Серия 1.030.9-2
  • Длина 4450 мм.
  • Ширина 300 мм.
  • Высота 300 мм.
  • Вес 1000 кг.
  • Объем бетона 0,4 м3
  • Геометрический объем 0,4005 м3
Цена: 9312 руб.
Подробнее
КБ 40
Колонны Серия 1.030.9-2
  • Длина 10500 мм.
  • Ширина 500 мм.
  • Высота 400 мм.
  • Вес 5050 кг.
  • Объем бетона 2,02 м3
  • Геометрический объем 2,1 м3
Цена: 47026 руб.
Подробнее
КБ 39
Колонны Серия 1.030.9-2
  • Длина 10500 мм.
  • Ширина 500 мм.
  • Высота 400 мм.
  • Вес 4990 кг.
  • Объем бетона 1,996 м3
  • Геометрический объем 2,1 м3
Цена: 46467 руб.
Подробнее
КБ 41-2
Колонны Серия 1.030.9-2
  • Длина 10800 мм.
  • Ширина 500 мм.
  • Высота 400 мм.
  • Вес 5400 кг.
  • Объем бетона 2,16 м3
  • Геометрический объем 2,16 м3
Цена: 50285 руб.
Подробнее
КБ 42
Колонны Серия 1.030.9-2
  • Длина 11100 мм.
  • Ширина 500 мм.
  • Высота 400 мм.
  • Вес 5230 кг.
  • Объем бетона 2,092 м3
  • Геометрический объем 2,22 м3
Цена: 48702 руб.
Подробнее
КБ 41-1
Колонны Серия 1.030.9-2
  • Длина 10800 мм.
  • Ширина 500 мм.
  • Высота 400 мм.
  • Вес 5400 кг.
  • Объем бетона 2,16 м3
  • Геометрический объем 2,16 м3
Цена: 50285 руб.
Подробнее
КБ 43
Колонны Серия 1.030.9-2
  • Длина 11100 мм.
  • Ширина 500 мм.
  • Высота 400 мм.
  • Вес 5250 кг.
  • Объем бетона 2,1 м3
  • Геометрический объем 2,22 м3
Цена: 48888 руб.
Подробнее
КБ 44
Колонны Серия 1.030.9-2
  • Длина 11400 мм.
  • Ширина 500 мм.
  • Высота 400 мм.
  • Вес 5700 кг.
  • Объем бетона 2,28 м3
  • Геометрический объем 2,28 м3
Цена: 53078 руб.
Подробнее
КБ 46
Колонны Серия 1.030.9-2
  • Длина 11400 мм.
  • Ширина 500 мм.
  • Высота 400 мм.
  • Вес 4940 кг.
  • Объем бетона 1,976 м3
  • Геометрический объем 2,28 м3
Цена: 46001 руб.
Подробнее
КБ 48
Колонны Серия 1.030.9-2
  • Длина 11650 мм.
  • Ширина 500 мм.
  • Высота 400 мм.
  • Вес 5830 кг.
  • Объем бетона 2,33 м3
  • Геометрический объем 2,33 м3
Цена: 54242 руб.
Подробнее
КБ 45
Колонны Серия 1.030.9-2
  • Длина 11400 мм.
  • Ширина 500 мм.
  • Высота 400 мм.
  • Вес 5380 кг.
  • Объем бетона 2,152 м3
  • Геометрический объем 2,28 м3
Цена: 50099 руб.
Подробнее
КБ 47
Колонны Серия 1.030.9-2
  • Длина 11400 мм.
  • Ширина 500 мм.
  • Высота 400 мм.
  • Вес 5130 кг.
  • Объем бетона 2,052 м3
  • Геометрический объем 2,28 м3
Цена: 47771 руб.
Подробнее
КБ 49-2
Колонны Серия 1.030.9-2
  • Длина 11650 мм.
  • Ширина 500 мм.
  • Высота 400 мм.
  • Вес 5500 кг.
  • Объем бетона 2,2 м3
  • Геометрический объем 2,33 м3
Цена: 51216 руб.
Подробнее
КБ 5-1
Колонны Серия 1.030.9-2
  • Длина 4800 мм.
  • Ширина 300 мм.
  • Высота 300 мм.
  • Вес 1080 кг.
  • Объем бетона 0,432 м3
  • Геометрический объем 0,432 м3
Цена: 10057 руб.
Подробнее
КБ 49-1
Колонны Серия 1.030.9-2
  • Длина 11650 мм.
  • Ширина 500 мм.
  • Высота 400 мм.
  • Вес 5500 кг.
  • Объем бетона 2,2 м3
  • Геометрический объем 2,33 м3
Цена: 51216 руб.
Подробнее
КБ 50-2
Колонны Серия 1.030.9-2
  • Длина 11650 мм.
  • Ширина 500 мм.
  • Высота 400 мм.
  • Вес 5400 кг.
  • Объем бетона 2,16 м3
  • Геометрический объем 2,33 м3
Цена: 50285 руб.
Подробнее

Уведомление о файлах cookie

Мы используем файлы cookie для улучшения вашего опыта просмотра и анализа трафика. Нажимая "Принять все", вы соглашаетесь с нашей политикой конфиденциальности и политикой обработки файлов cookie.

MAX Дзен Телеграм Вконтакте vk