mobile_sound +7 (930) 655-55-90

Типовые конструкции и железобетонные изделия. Рабочие чертежи (Серия 1.030.9-2)

Поделиться:
Поделиться:

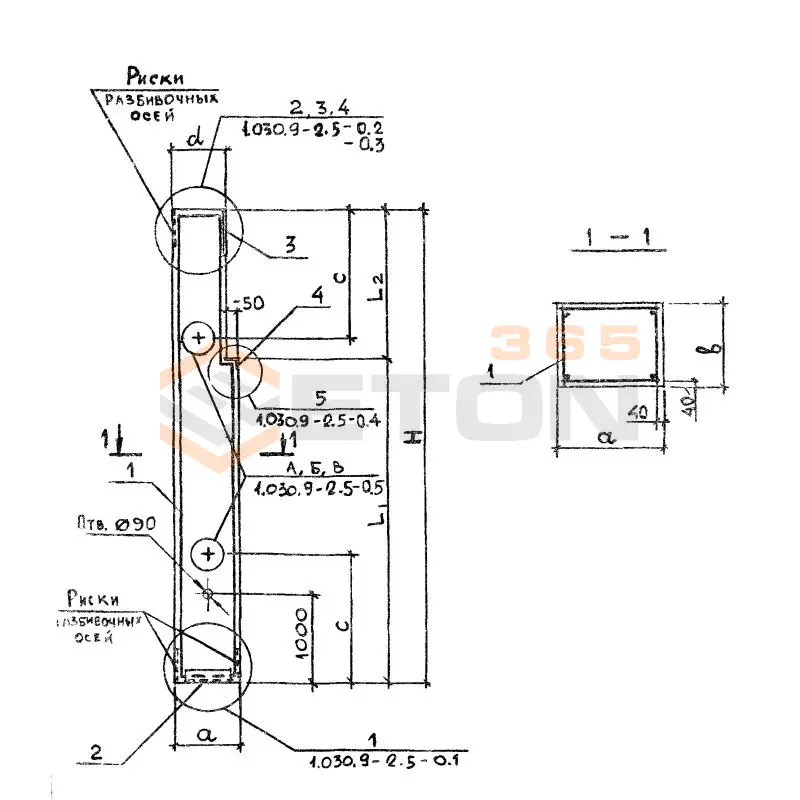
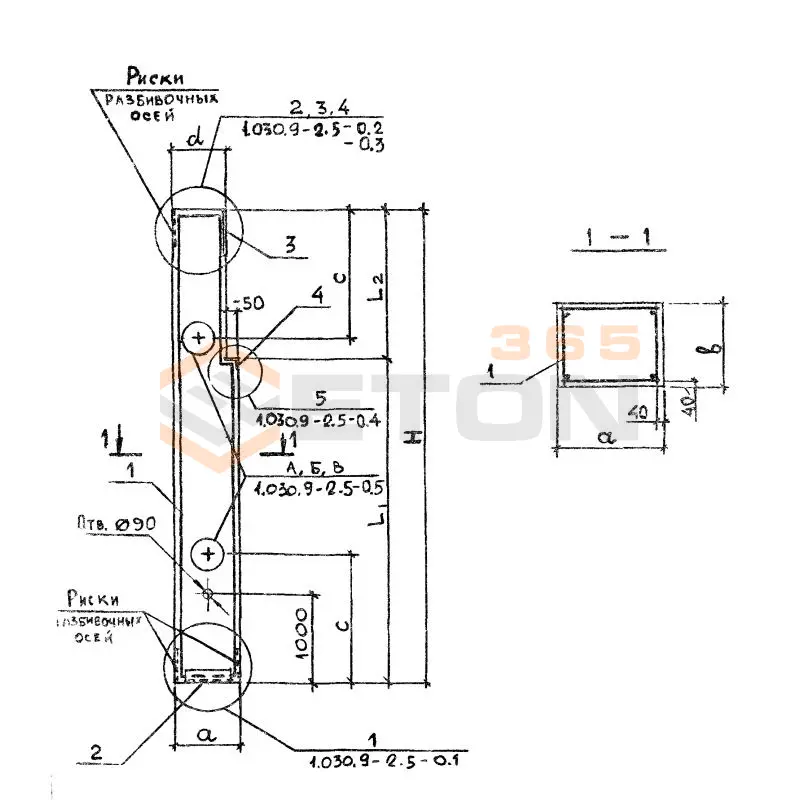
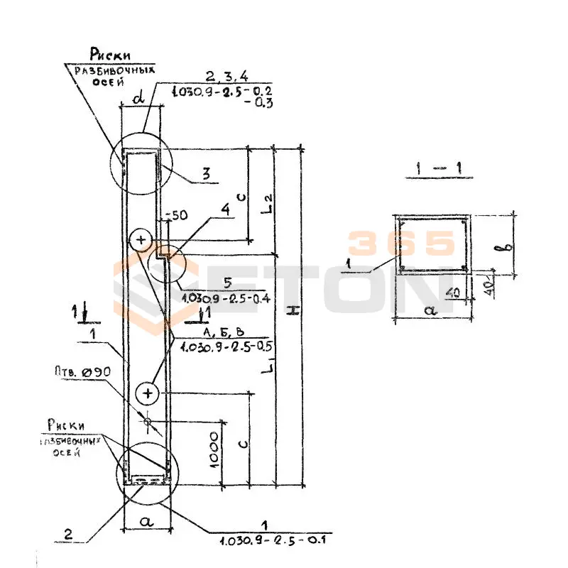
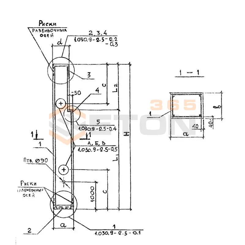
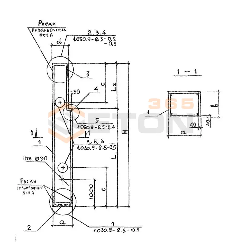
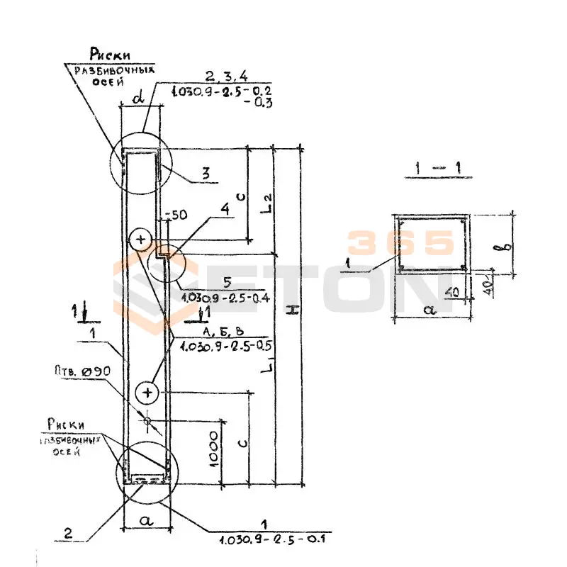
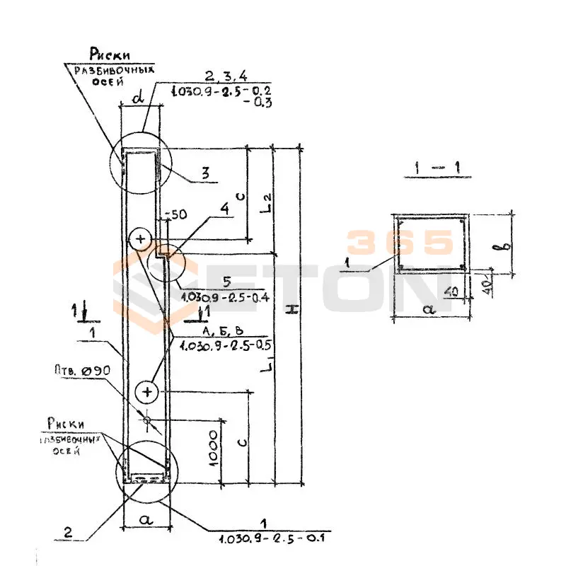
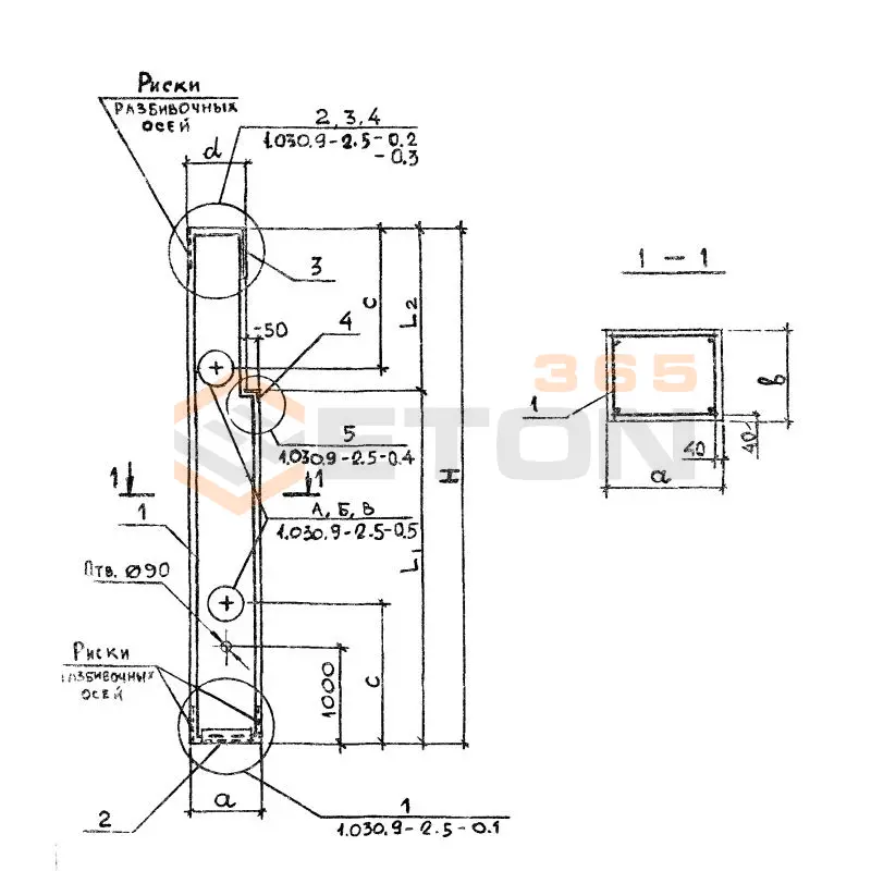
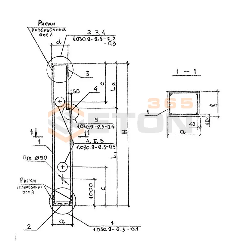
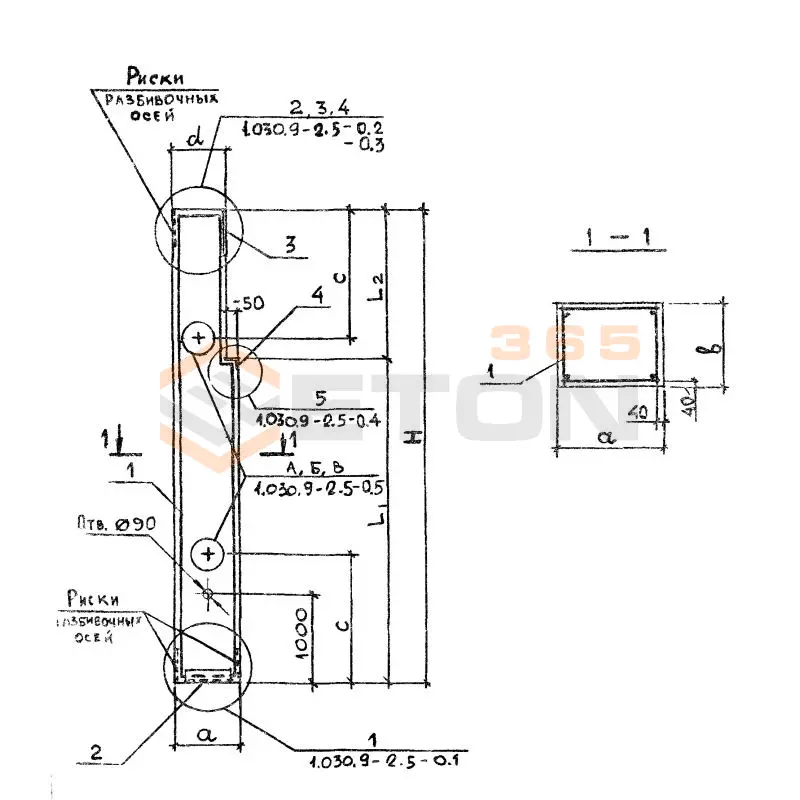
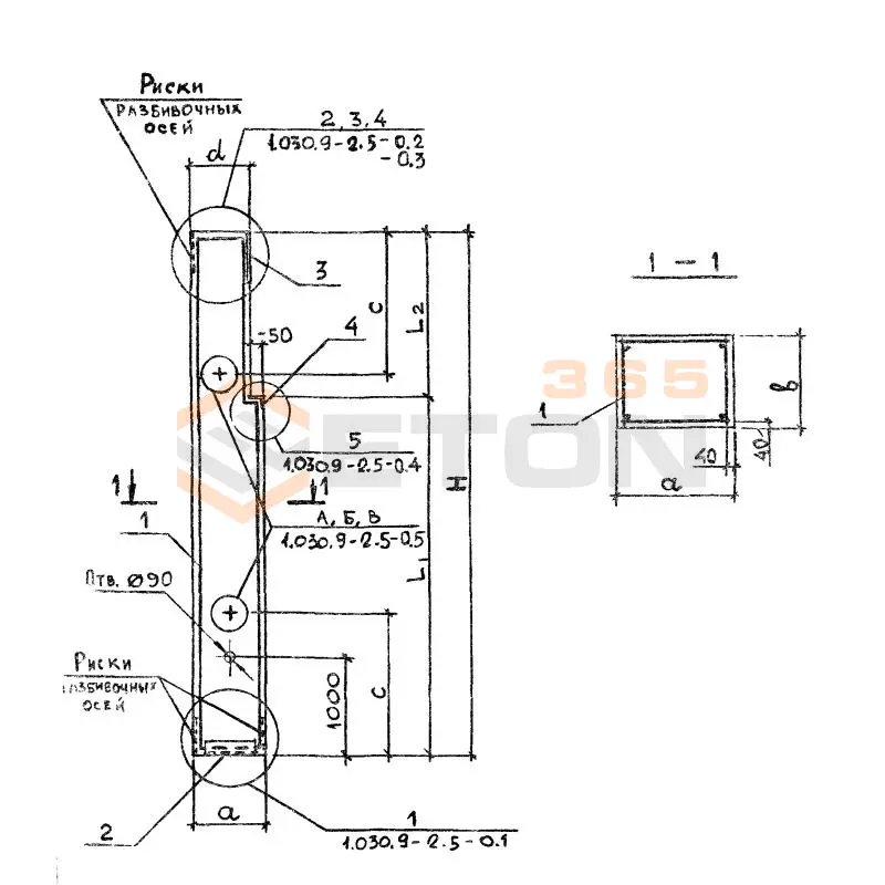
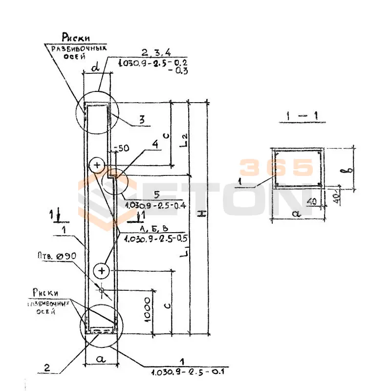
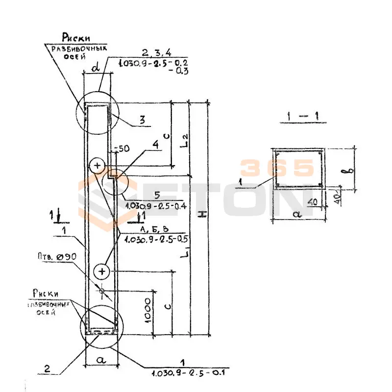
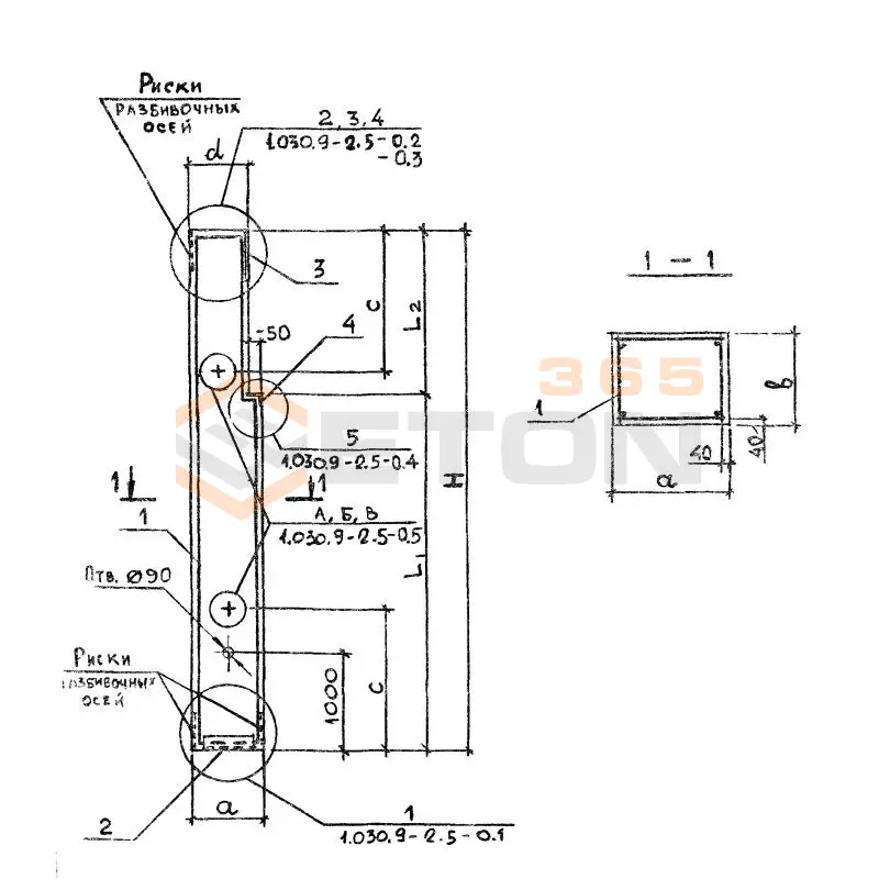
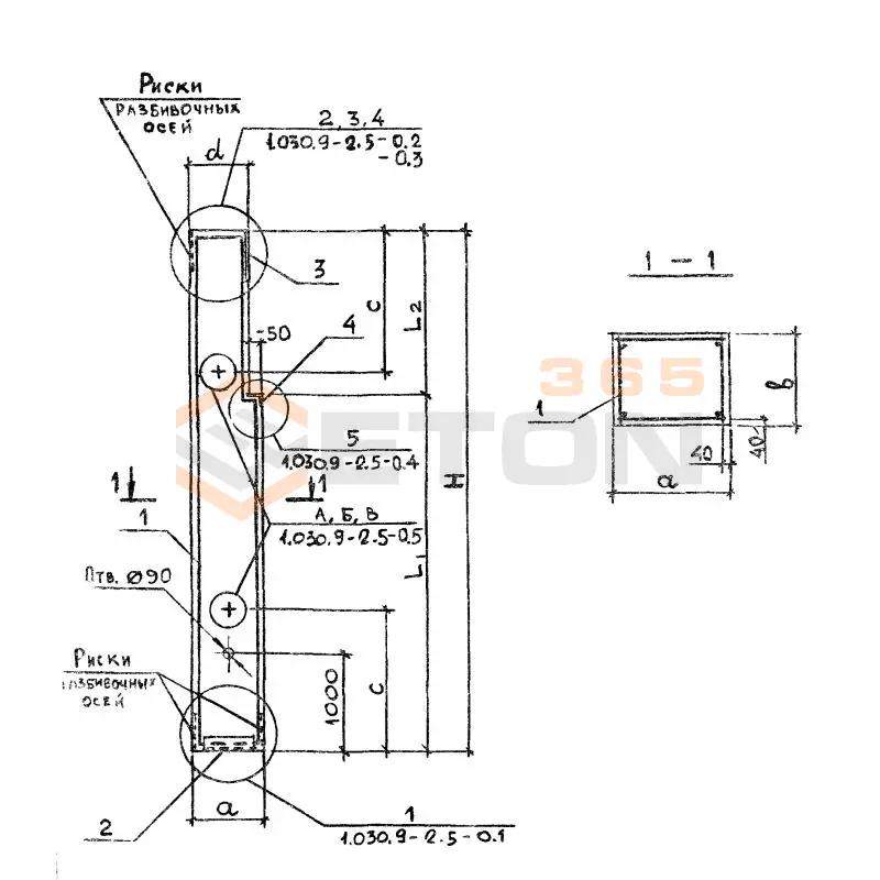
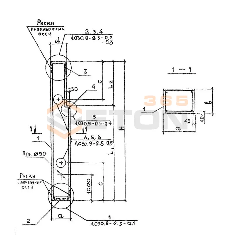
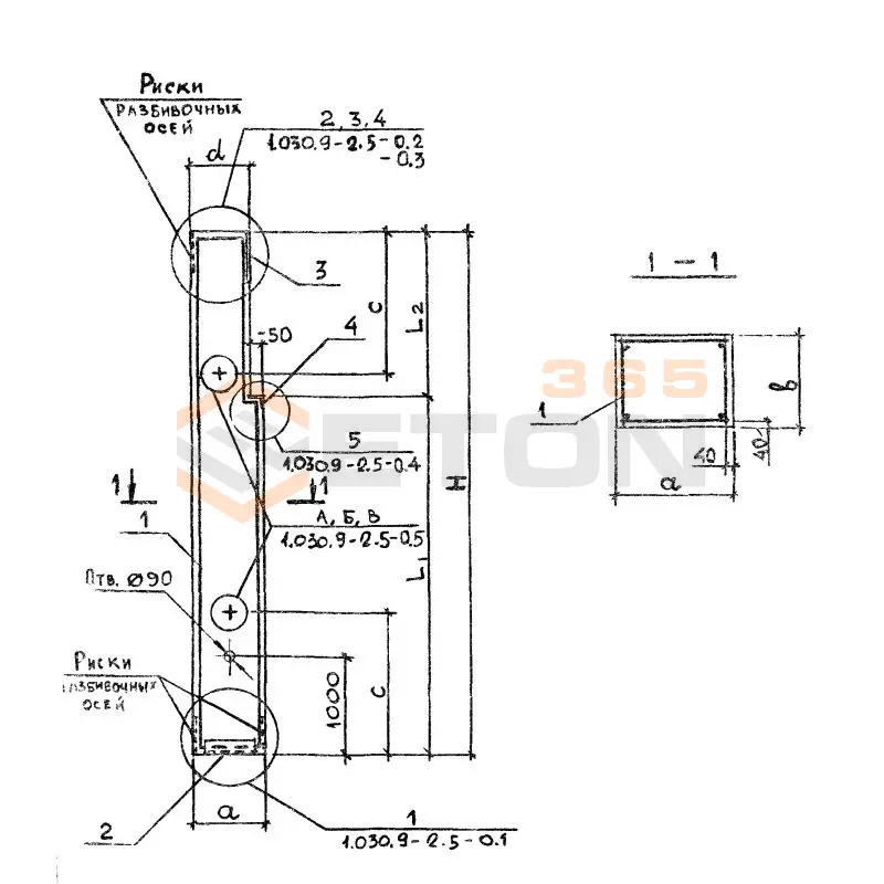
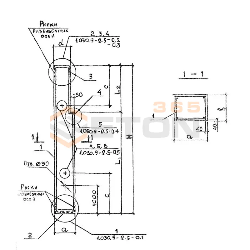
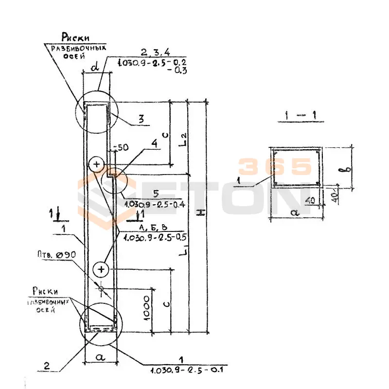
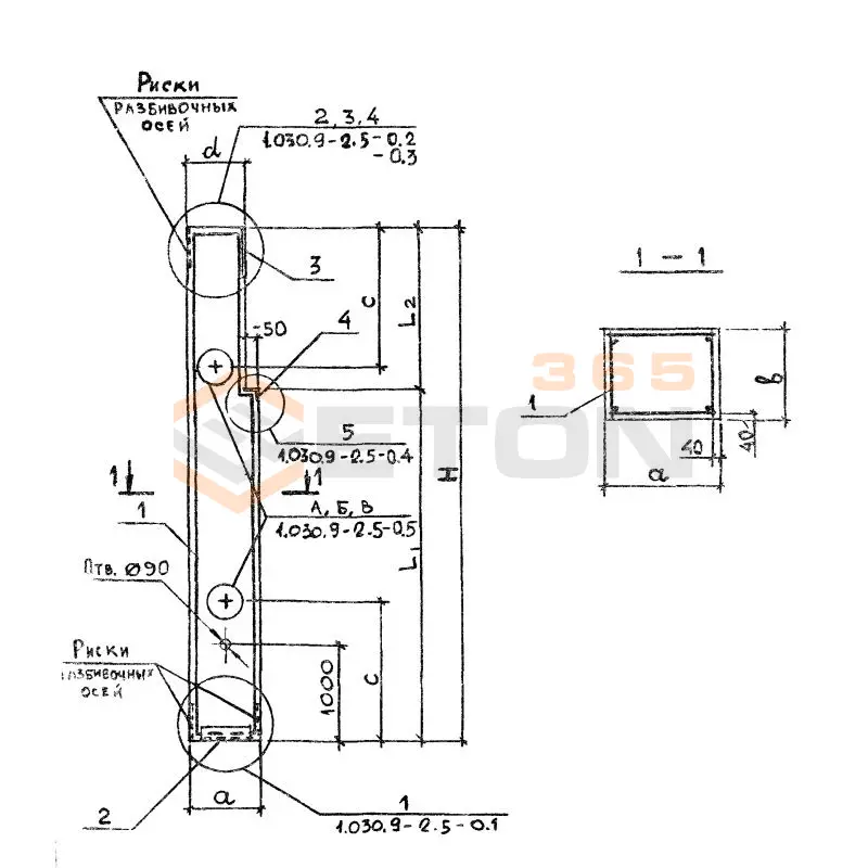
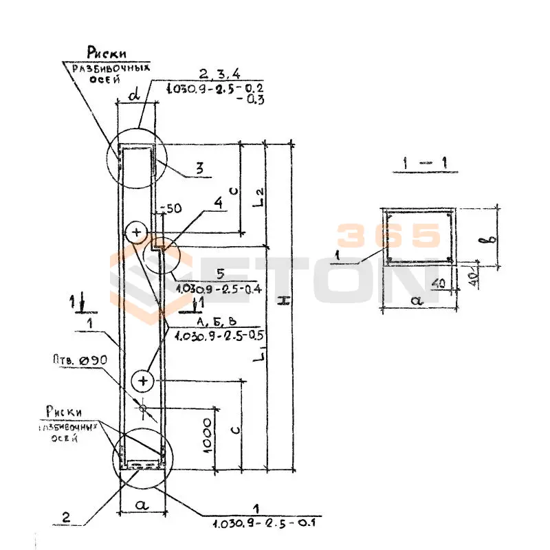
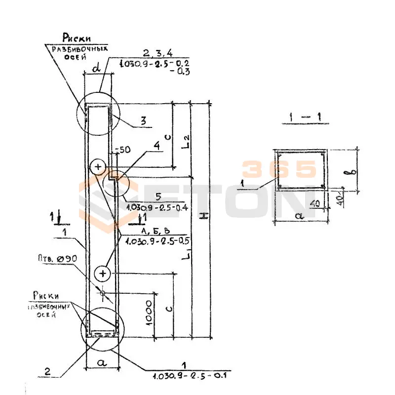
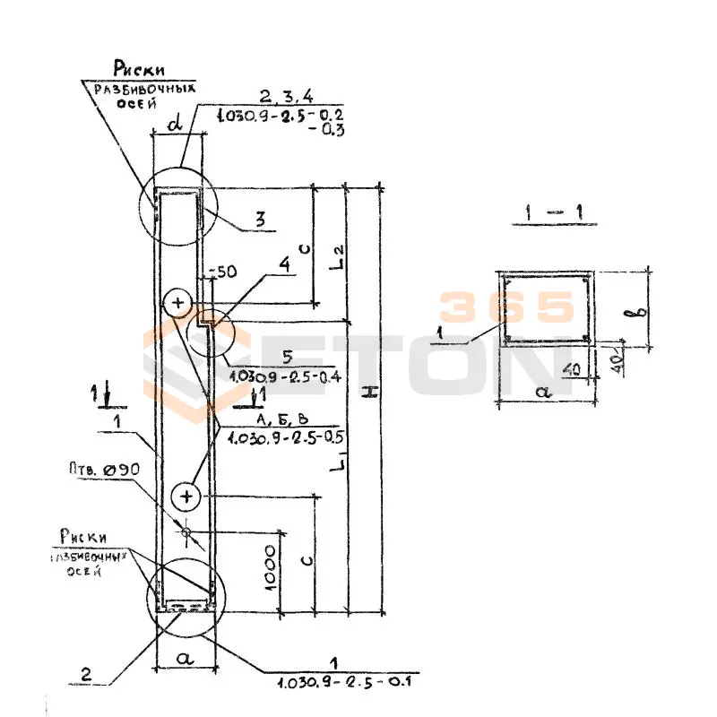
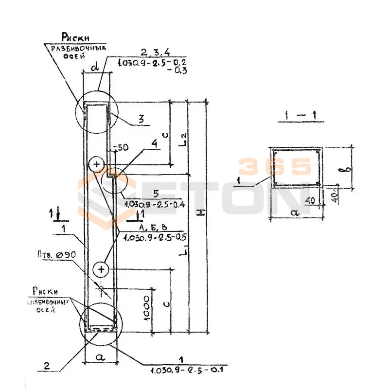
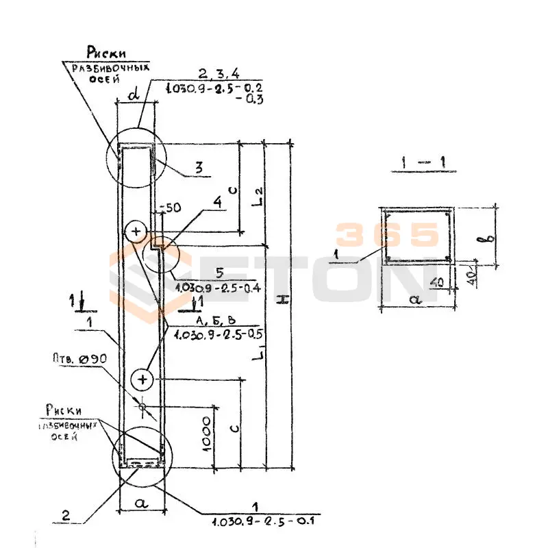
Документ Серия 1.030.9-2 описывает область применения, номенклатуру и ключевые требования, опираясь на действующие нормы и практику проектирования. Регламент Серия 1.030.9-2 детально описывает специфику производства панельных перегородок, используемых при строительстве сооружений промышленных и сельскохозяйственных предприятий. Введение документа в эксплуатацию осуществилось в 1985 году, разработка велась институтом ЦНИИПРОМСЗДАНИЙ совместно с Харьковским ПРОМСТРОЙНИИПРОЕКТом. Представленные в документе изделия и конструкции рассчитаны на применение в производственных зданиях высотой от 3 до 18 метров, с краном и без, возводимых по унифицированным габаритным схемам.

Файлы для скачивания:
picture_as_pdf

671.pdf

30,917.2 KB

скачать
picture_as_pdf

672.pdf

31,100.8 KB

скачать
picture_as_pdf

673.pdf

8,401.4 KB

скачать
picture_as_pdf

674.pdf

2,286.0 KB

скачать
picture_as_pdf

675.pdf

4,989.1 KB

скачать
picture_as_pdf

676.pdf

5,670.2 KB

скачать
picture_as_pdf

677.pdf

19,245.9 KB

скачать
picture_as_pdf

678.pdf

12,286.7 KB

скачать
picture_as_pdf

679.pdf

27,088.6 KB

скачать
Товары Серия 1.030.9-2 (60)
КБ 5-2
Колонны Серия 1.030.9-2
  • Длина 4800 мм.
  • Ширина 300 мм.
  • Высота 300 мм.
  • Вес 1080 кг.
  • Объем бетона 0,432 м3
  • Геометрический объем 0,432 м3
Цена: 10057 руб.
Подробнее
КБ 50-1
Колонны Серия 1.030.9-2
  • Длина 11650 мм.
  • Ширина 500 мм.
  • Высота 400 мм.
  • Вес 5400 кг.
  • Объем бетона 2,16 м3
  • Геометрический объем 2,33 м3
Цена: 50285 руб.
Подробнее
КБ 51-2
Колонны Серия 1.030.9-2
  • Длина 11650 мм.
  • Ширина 500 мм.
  • Высота 400 мм.
  • Вес 5230 кг.
  • Объем бетона 2,092 м3
  • Геометрический объем 2,33 м3
Цена: 48702 руб.
Подробнее
КБ 52
Колонны Серия 1.030.9-2
  • Длина 11700 мм.
  • Ширина 500 мм.
  • Высота 400 мм.
  • Вес 5380 кг.
  • Объем бетона 2,152 м3
  • Геометрический объем 2,34 м3
Цена: 50099 руб.
Подробнее
КБ 51-1
Колонны Серия 1.030.9-2
  • Длина 11650 мм.
  • Ширина 500 мм.
  • Высота 400 мм.
  • Вес 5230 кг.
  • Объем бетона 2,092 м3
  • Геометрический объем 2,33 м3
Цена: 48702 руб.
Подробнее
КБ 54
Колонны Серия 1.030.9-2
  • Длина 11700 мм.
  • Ширина 500 мм.
  • Высота 400 мм.
  • Вес 5440 кг.
  • Объем бетона 2,176 м3
  • Геометрический объем 2,34 м3
Цена: 50657 руб.
Подробнее
КБ 53
Колонны Серия 1.030.9-2
  • Длина 11700 мм.
  • Ширина 500 мм.
  • Высота 400 мм.
  • Вес 5320 кг.
  • Объем бетона 2,128 м3
  • Геометрический объем 2,34 м3
Цена: 49540 руб.
Подробнее
КБ 55-1
Колонны Серия 1.030.9-2
  • Длина 12000 мм.
  • Ширина 500 мм.
  • Высота 400 мм.
  • Вес 6000 кг.
  • Объем бетона 2,4 м3
  • Геометрический объем 2,4 м3
Цена: 55872 руб.
Подробнее
КБ 55-2
Колонны Серия 1.030.9-2
  • Длина 12000 мм.
  • Ширина 500 мм.
  • Высота 400 мм.
  • Вес 6000 кг.
  • Объем бетона 2,4 м3
  • Геометрический объем 2,4 м3
Цена: 55872 руб.
Подробнее
КБ 57
Колонны Серия 1.030.9-2
  • Длина 12300 мм.
  • Ширина 500 мм.
  • Высота 400 мм.
  • Вес 5800 кг.
  • Объем бетона 2,32 м3
  • Геометрический объем 2,46 м3
Цена: 54010 руб.
Подробнее
КБ 56
Колонны Серия 1.030.9-2
  • Длина 12300 мм.
  • Ширина 500 мм.
  • Высота 400 мм.
  • Вес 5830 кг.
  • Объем бетона 2,332 м3
  • Геометрический объем 2,46 м3
Цена: 54289 руб.
Подробнее
КБ 58
Колонны Серия 1.030.9-2
  • Длина 12300 мм.
  • Ширина 500 мм.
  • Высота 400 мм.
  • Вес 5850 кг.
  • Объем бетона 2,34 м3
  • Геометрический объем 2,46 м3
Цена: 54475 руб.
Подробнее
КБ 59
Колонны Серия 1.030.9-2
  • Длина 12600 мм.
  • Ширина 500 мм.
  • Высота 400 мм.
  • Вес 6300 кг.
  • Объем бетона 2,52 м3
  • Геометрический объем 2,52 м3
Цена: 58666 руб.
Подробнее
КБ 6-1
Колонны Серия 1.030.9-2
  • Длина 5400 мм.
  • Ширина 300 мм.
  • Высота 300 мм.
  • Вес 1220 кг.
  • Объем бетона 0,488 м3
  • Геометрический объем 0,486 м3
Цена: 11361 руб.
Подробнее
КБ 61
Колонны Серия 1.030.9-2
  • Длина 12600 мм.
  • Ширина 500 мм.
  • Высота 400 мм.
  • Вес 5730 кг.
  • Объем бетона 2,292 м3
  • Геометрический объем 2,52 м3
Цена: 53358 руб.
Подробнее
КБ 60
Колонны Серия 1.030.9-2
  • Длина 12600 мм.
  • Ширина 500 мм.
  • Высота 400 мм.
  • Вес 5890 кг.
  • Объем бетона 2,356 м3
  • Геометрический объем 2,52 м3
Цена: 54848 руб.
Подробнее
КБ 63-1
Колонны Серия 1.030.9-2
  • Длина 12850 мм.
  • Ширина 500 мм.
  • Высота 400 мм.
  • Вес 5820 кг.
  • Объем бетона 2,328 м3
  • Геометрический объем 2,57 м3
Цена: 54196 руб.
Подробнее
КБ 62-1
Колонны Серия 1.030.9-2
  • Длина 12850 мм.
  • Ширина 500 мм.
  • Высота 400 мм.
  • Вес 5910 кг.
  • Объем бетона 2,364 м3
  • Геометрический объем 2,57 м3
Цена: 55034 руб.
Подробнее
КБ 62-2
Колонны Серия 1.030.9-2
  • Длина 12850 мм.
  • Ширина 500 мм.
  • Высота 400 мм.
  • Вес 5910 кг.
  • Объем бетона 2,364 м3
  • Геометрический объем 2,57 м3
Цена: 55034 руб.
Подробнее
КБ 6-2
Колонны Серия 1.030.9-2
  • Длина 5400 мм.
  • Ширина 300 мм.
  • Высота 300 мм.
  • Вес 1220 кг.
  • Объем бетона 0,488 м3
  • Геометрический объем 0,486 м3
Цена: 11361 руб.
Подробнее
КБ 64
Колонны Серия 1.030.9-2
  • Длина 12850 мм.
  • Ширина 500 мм.
  • Высота 400 мм.
  • Вес 6430 кг.
  • Объем бетона 2,57 м3
  • Геометрический объем 2,57 м3
Цена: 59830 руб.
Подробнее
КБ 66
Колонны Серия 1.030.9-2
  • Длина 12900 мм.
  • Ширина 500 мм.
  • Высота 400 мм.
  • Вес 5900 кг.
  • Объем бетона 2,36 м3
  • Геометрический объем 2,58 м3
Цена: 54941 руб.
Подробнее
КБ 63-2
Колонны Серия 1.030.9-2
  • Длина 12850 мм.
  • Ширина 500 мм.
  • Высота 400 мм.
  • Вес 5820 кг.
  • Объем бетона 2,328 м3
  • Геометрический объем 2,57 м3
Цена: 54196 руб.
Подробнее
КБ 68-1
Колонны Серия 1.030.9-2
  • Длина 13200 мм.
  • Ширина 500 мм.
  • Высота 400 мм.
  • Вес 6600 кг.
  • Объем бетона 2,64 м3
  • Геометрический объем 2,64 м3
Цена: 61459 руб.
Подробнее
КБ 67
Колонны Серия 1.030.9-2
  • Длина 12900 мм.
  • Ширина 500 мм.
  • Высота 400 мм.
  • Вес 5700 кг.
  • Объем бетона 2,28 м3
  • Геометрический объем 2,58 м3
Цена: 53078 руб.
Подробнее
КБ 65
Колонны Серия 1.030.9-2
  • Длина 12900 мм.
  • Ширина 500 мм.
  • Высота 400 мм.
  • Вес 6000 кг.
  • Объем бетона 2,4 м3
  • Геометрический объем 2,58 м3
Цена: 55872 руб.
Подробнее
КБ 68-2
Колонны Серия 1.030.9-2
  • Длина 13200 мм.
  • Ширина 500 мм.
  • Высота 400 мм.
  • Вес 6600 кг.
  • Объем бетона 2,64 м3
  • Геометрический объем 2,64 м3
Цена: 61459 руб.
Подробнее
КБ 69
Колонны Серия 1.030.9-2
  • Длина 13500 мм.
  • Ширина 500 мм.
  • Высота 400 мм.
  • Вес 6100 кг.
  • Объем бетона 2,44 м3
  • Геометрический объем 2,7 м3
Цена: 56803 руб.
Подробнее
КБ 7
Колонны Серия 1.030.9-2
  • Длина 5650 мм.
  • Ширина 300 мм.
  • Высота 300 мм.
  • Вес 1260 кг.
  • Объем бетона 0,504 м3
  • Геометрический объем 0,5085 м3
Цена: 11733 руб.
Подробнее
КБ 70
Колонны Серия 1.030.9-2
  • Длина 13500 мм.
  • Ширина 500 мм.
  • Высота 400 мм.
  • Вес 6000 кг.
  • Объем бетона 2,4 м3
  • Геометрический объем 2,7 м3
Цена: 55872 руб.
Подробнее
КБ 72
Колонны Серия 1.030.9-2
  • Длина 13800 мм.
  • Ширина 500 мм.
  • Высота 400 мм.
  • Вес 6900 кг.
  • Объем бетона 2,76 м3
  • Геометрический объем 2,76 м3
Цена: 64253 руб.
Подробнее
КБ 71
Колонны Серия 1.030.9-2
  • Длина 13500 мм.
  • Ширина 500 мм.
  • Высота 400 мм.
  • Вес 6200 кг.
  • Объем бетона 2,48 м3
  • Геометрический объем 2,7 м3
Цена: 57734 руб.
Подробнее
КБ 73
Колонны Серия 1.030.9-2
  • Длина 13800 мм.
  • Ширина 500 мм.
  • Высота 400 мм.
  • Вес 6420 кг.
  • Объем бетона 2,568 м3
  • Геометрический объем 2,76 м3
Цена: 59783 руб.
Подробнее
КБ 75
Колонны Серия 1.030.9-2
  • Длина 14050 мм.
  • Ширина 600 мм.
  • Высота 400 мм.
  • Вес 8430 кг.
  • Объем бетона 3,37 м3
  • Геометрический объем 3,372 м3
Цена: 78454 руб.
Подробнее
КБ 74
Колонны Серия 1.030.9-2
  • Длина 13800 мм.
  • Ширина 500 мм.
  • Высота 400 мм.
  • Вес 6330 кг.
  • Объем бетона 2,52 м3
  • Геометрический объем 2,76 м3
Цена: 58666 руб.
Подробнее
КБ 76-1
Колонны Серия 1.030.9-2
  • Длина 14050 мм.
  • Ширина 600 мм.
  • Высота 400 мм.
  • Вес 7900 кг.
  • Объем бетона 3,16 м3
  • Геометрический объем 3,372 м3
Цена: 73565 руб.
Подробнее
КБ 76-2
Колонны Серия 1.030.9-2
  • Длина 14050 мм.
  • Ширина 600 мм.
  • Высота 400 мм.
  • Вес 7900 кг.
  • Объем бетона 3,16 м3
  • Геометрический объем 3,372 м3
Цена: 73565 руб.
Подробнее
КБ 77-1
Колонны Серия 1.030.9-2
  • Длина 14050 мм.
  • Ширина 600 мм.
  • Высота 400 мм.
  • Вес 7820 кг.
  • Объем бетона 3,128 м3
  • Геометрический объем 3,372 м3
Цена: 72820 руб.
Подробнее
КБ 77-2
Колонны Серия 1.030.9-2
  • Длина 14050 мм.
  • Ширина 600 мм.
  • Высота 400 мм.
  • Вес 7820 кг.
  • Объем бетона 3,128 м3
  • Геометрический объем 3,372 м3
Цена: 72820 руб.
Подробнее
КБ 78
Колонны Серия 1.030.9-2
  • Длина 14100 мм.
  • Ширина 600 мм.
  • Высота 400 мм.
  • Вес 7800 кг.
  • Объем бетона 3,12 м3
  • Геометрический объем 3,384 м3
Цена: 72634 руб.
Подробнее
КБ 79
Колонны Серия 1.030.9-2
  • Длина 14100 мм.
  • Ширина 600 мм.
  • Высота 400 мм.
  • Вес 7700 кг.
  • Объем бетона 3,08 м3
  • Геометрический объем 3,384 м3
Цена: 71702 руб.
Подробнее
КБ 8-1
Колонны Серия 1.030.9-2
  • Длина 6000 мм.
  • Ширина 300 мм.
  • Высота 300 мм.
  • Вес 1350 кг.
  • Объем бетона 0,54 м3
  • Геометрический объем 0,54 м3
Цена: 12571 руб.
Подробнее
КБ 80-1
Колонны Серия 1.030.9-2
  • Длина 14400 мм.
  • Ширина 600 мм.
  • Высота 400 мм.
  • Вес 8640 кг.
  • Объем бетона 3,46 м3
  • Геометрический объем 3,456 м3
Цена: 80549 руб.
Подробнее
КБ 8-2
Колонны Серия 1.030.9-2
  • Длина 6000 мм.
  • Ширина 300 мм.
  • Высота 300 мм.
  • Вес 1350 кг.
  • Объем бетона 0,54 м3
  • Геометрический объем 0,54 м3
Цена: 12571 руб.
Подробнее
КБ 80-2
Колонны Серия 1.030.9-2
  • Длина 14400 мм.
  • Ширина 600 мм.
  • Высота 400 мм.
  • Вес 8640 кг.
  • Объем бетона 3,46 м3
  • Геометрический объем 3,456 м3
Цена: 80549 руб.
Подробнее
КБ 81
Колонны Серия 1.030.9-2
  • Длина 14700 мм.
  • Ширина 600 мм.
  • Высота 400 мм.
  • Вес 8200 кг.
  • Объем бетона 3,28 м3
  • Геометрический объем 3,528 м3
Цена: 76358 руб.
Подробнее
КБ 83
Колонны Серия 1.030.9-2
  • Длина 14700 мм.
  • Ширина 600 мм.
  • Высота 400 мм.
  • Вес 7800 кг.
  • Объем бетона 3,12 м3
  • Геометрический объем 3,528 м3
Цена: 72634 руб.
Подробнее
КБ 82
Колонны Серия 1.030.9-2
  • Длина 14700 мм.
  • Ширина 600 мм.
  • Высота 400 мм.
  • Вес 8100 кг.
  • Объем бетона 3,24 м3
  • Геометрический объем 3,528 м3
Цена: 75427 руб.
Подробнее
КБ 84
Колонны Серия 1.030.9-2
  • Длина 15300 мм.
  • Ширина 600 мм.
  • Высота 400 мм.
  • Вес 8500 кг.
  • Объем бетона 3,4 м3
  • Геометрический объем 3,672 м3
Цена: 79152 руб.
Подробнее
КБ 85
Колонны Серия 1.030.9-2
  • Длина 15300 мм.
  • Ширина 600 мм.
  • Высота 400 мм.
  • Вес 8400 кг.
  • Объем бетона 3,36 м3
  • Геометрический объем 3,672 м3
Цена: 78221 руб.
Подробнее
КБ 86
Колонны Серия 1.030.9-2
  • Длина 15900 мм.
  • Ширина 600 мм.
  • Высота 400 мм.
  • Вес 8600 кг.
  • Объем бетона 3,44 м3
  • Геометрический объем 3,816 м3
Цена: 80083 руб.
Подробнее
КБ 87
Колонны Серия 1.030.9-2
  • Длина 15900 мм.
  • Ширина 600 мм.
  • Высота 400 мм.
  • Вес 8500 кг.
  • Объем бетона 3,4 м3
  • Геометрический объем 3,816 м3
Цена: 79152 руб.
Подробнее
КБ 89
Колонны Серия 1.030.9-2
  • Длина 17100 мм.
  • Ширина 600 мм.
  • Высота 400 мм.
  • Вес 9200 кг.
  • Объем бетона 3,68 м3
  • Геометрический объем 4,104 м3
Цена: 85670 руб.
Подробнее
КБ 88
Колонны Серия 1.030.9-2
  • Длина 17100 мм.
  • Ширина 600 мм.
  • Высота 400 мм.
  • Вес 9300 кг.
  • Объем бетона 3,72 м3
  • Геометрический объем 4,104 м3
Цена: 86602 руб.
Подробнее
КБ 9
Колонны Серия 1.030.9-2
  • Длина 6600 мм.
  • Ширина 300 мм.
  • Высота 300 мм.
  • Вес 1490 кг.
  • Объем бетона 0,596 м3
  • Геометрический объем 0,594 м3
Цена: 13875 руб.
Подробнее
ОП 1
Опорные подушки Серия 1.030.9-2
  • Длина 450 мм.
  • Ширина 300 мм.
  • Высота 80 мм.
  • Вес 27 кг.
  • Объем бетона 0,0108 м3
  • Геометрический объем 0,0108 м3
Цена: 471 руб.
Подробнее
ОП 2
Опорные подушки Серия 1.030.9-2
  • Длина 450 мм.
  • Ширина 300 мм.
  • Высота 80 мм.
  • Вес 27 кг.
  • Объем бетона 0,0108 м3
  • Геометрический объем 0,0108 м3
Цена: 471 руб.
Подробнее
ОП 3
Опорные подушки Серия 1.030.9-2
  • Длина 450 мм.
  • Ширина 300 мм.
  • Высота 80 мм.
  • Вес 27 кг.
  • Объем бетона 0,0108 м3
  • Геометрический объем 0,0108 м3
Цена: 471 руб.
Подробнее
ПГ 24-12-2 л
Панели перегородок железобетонные для зданий промышленных и сельскохозяйственных предприятий Серия 1.030.9-2
  • Длина 2385 мм.
  • Ширина 80 мм.
  • Высота 1185 мм.
  • Вес 340 кг.
  • Объем бетона 0,21 м3
  • Геометрический объем 0,2261 м3
Цена: 8148 руб.
Подробнее
ПГ 24-12
Панели перегородок железобетонные для зданий промышленных и сельскохозяйственных предприятий Серия 1.030.9-2
  • Длина 2385 мм.
  • Ширина 80 мм.
  • Высота 1185 мм.
  • Вес 562 кг.
  • Объем бетона 0,226 м3
  • Геометрический объем 0,2261 м3
Цена: 8769 руб.
Подробнее

Уведомление о файлах cookie

Мы используем файлы cookie для улучшения вашего опыта просмотра и анализа трафика. Нажимая "Принять все", вы соглашаетесь с нашей политикой конфиденциальности и политикой обработки файлов cookie.

MAX Дзен Телеграм Вконтакте vk