mobile_sound +7 (930) 655-55-90

Типовые конструкции и железобетонные изделия. Рабочие чертежи (Серия 1.030.1-1)

Поделиться:
Поделиться:

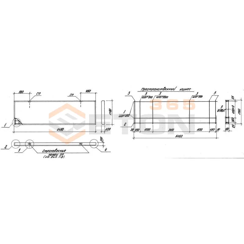
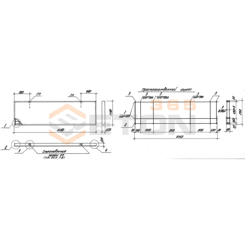
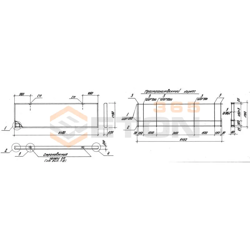
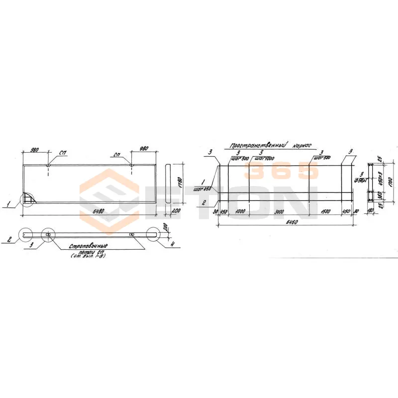
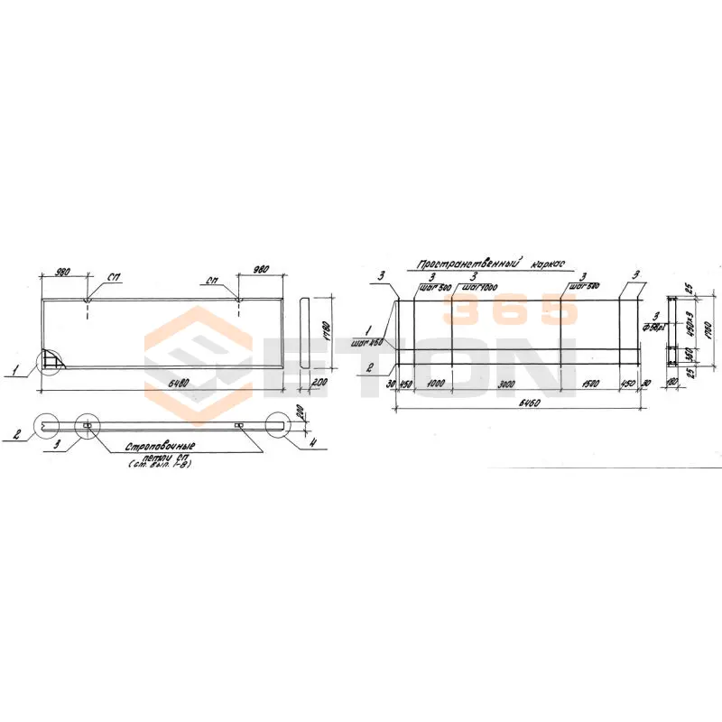
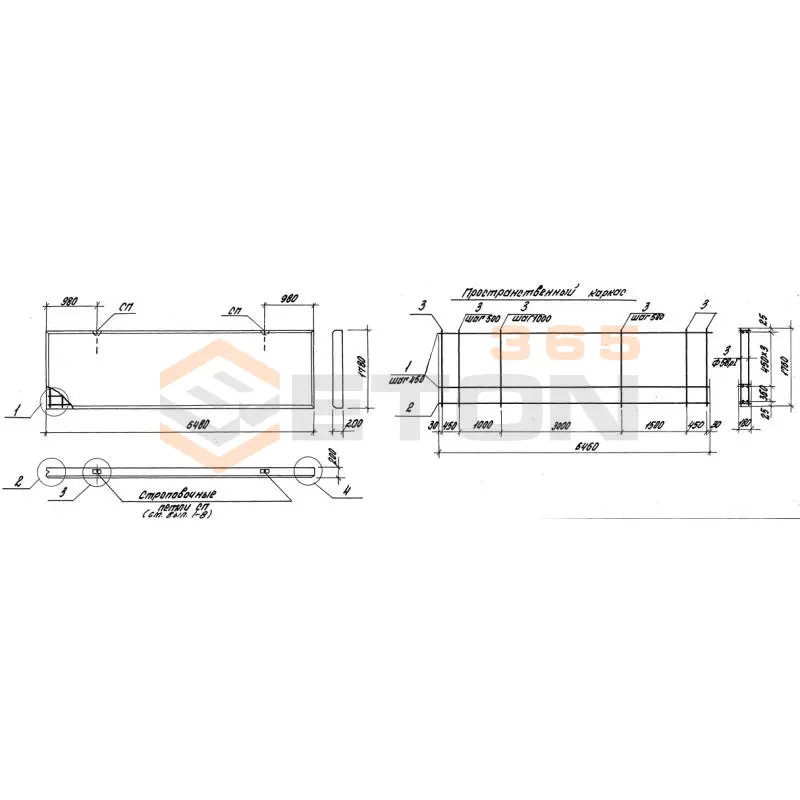
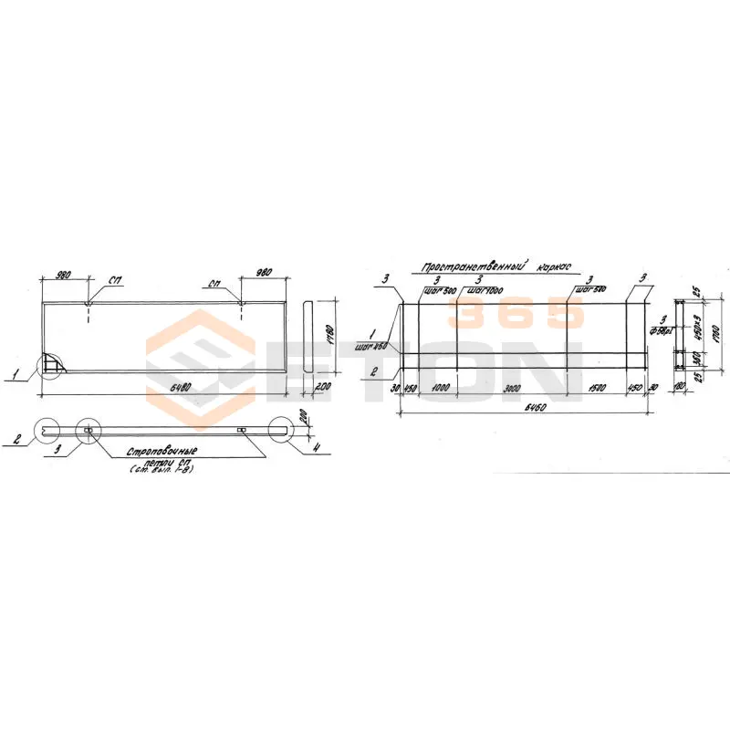
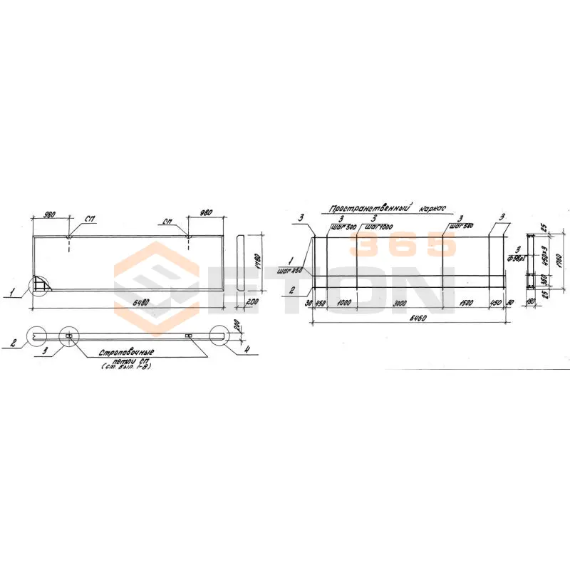
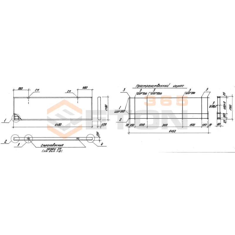
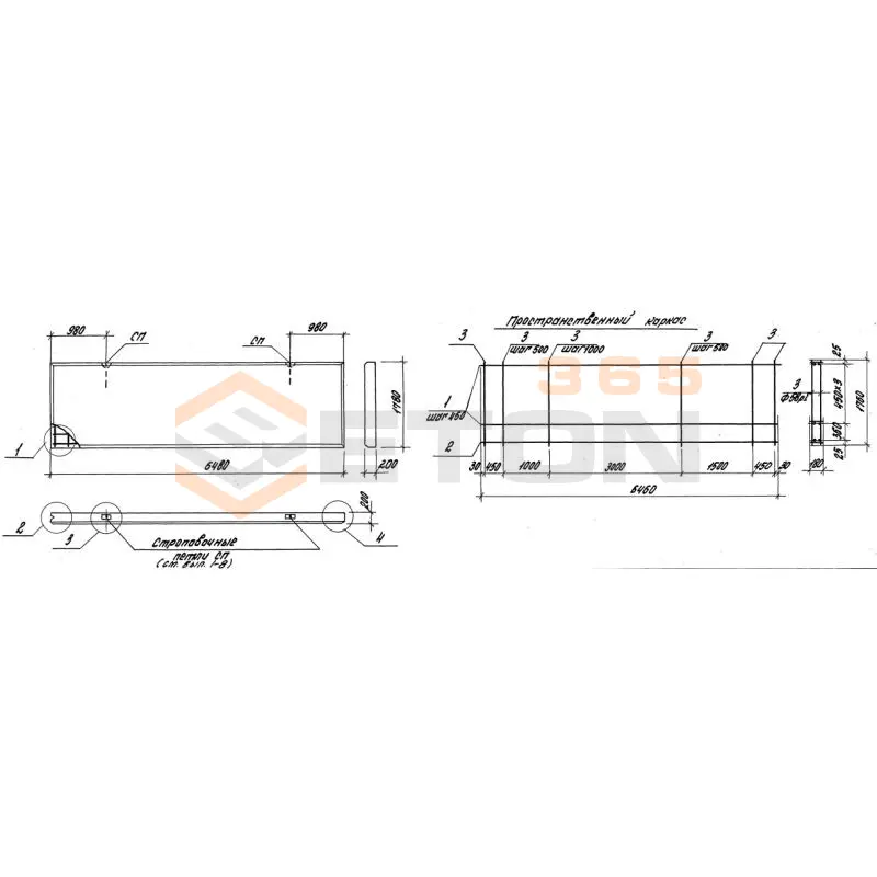
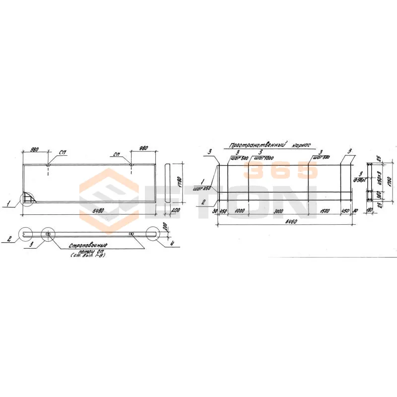
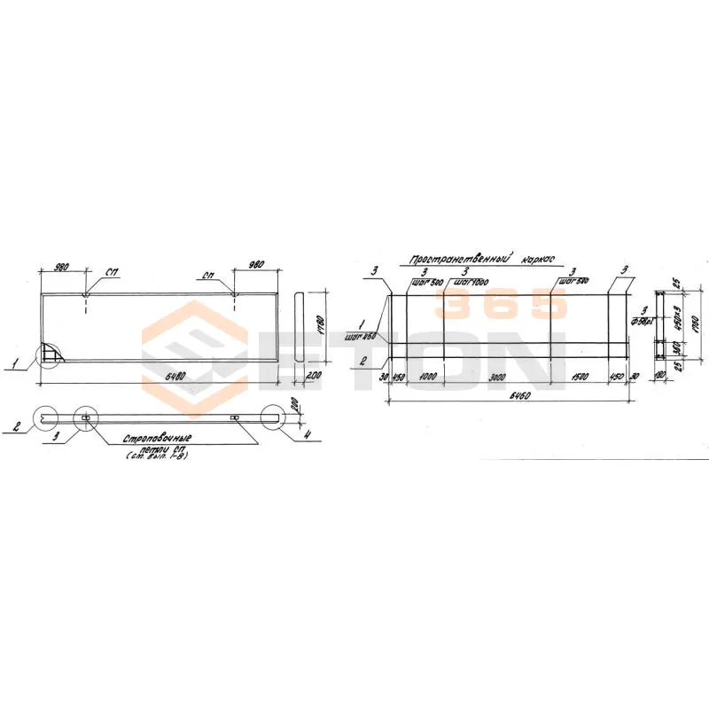
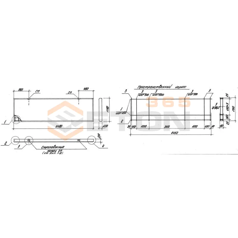
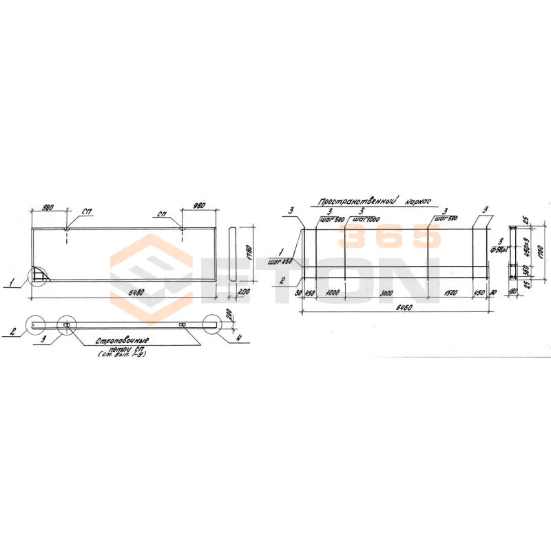
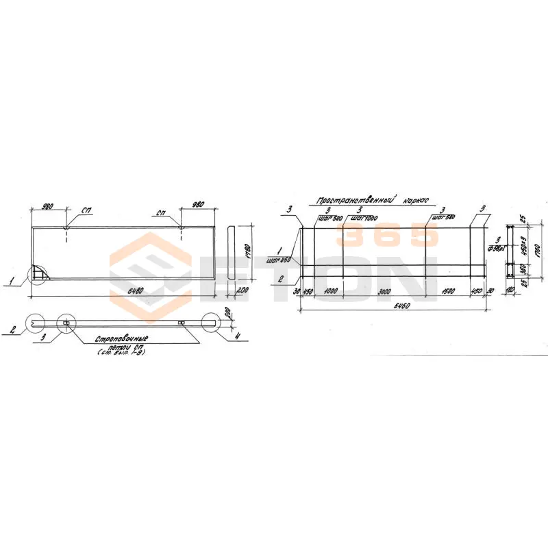
Документ Серия 1.030.1-1 описывает область применения, номенклатуру и ключевые требования, опираясь на действующие нормы и практику проектирования. Серия 1.030.1-1 была введён в действие в действии с 15.10.1984 года. Документ определяет и регламентирует информацию о наружных стенах из однослойных панелей, используемых в каркасных общественных и производственных зданиях. Номенклатурный перечень представлен рядом панелей, выполненных из ячеистого и легкого бетона, а также карнизных панелей.

Файлы для скачивания:
picture_as_pdf

2874.pdf

18,025.9 KB

скачать
picture_as_pdf

2875.pdf

14,545.4 KB

скачать
picture_as_pdf

2876.pdf

8,819.6 KB

скачать
picture_as_pdf

2877.pdf

12,245.9 KB

скачать
picture_as_pdf

2878.pdf

30,921.9 KB

скачать
picture_as_pdf

2879.pdf

24,358.2 KB

скачать
picture_as_pdf

2880.pdf

33,308.5 KB

скачать
picture_as_pdf

2881.pdf

46,474.1 KB

скачать
picture_as_pdf

2882.pdf

20,001.2 KB

скачать
picture_as_pdf

2883.pdf

54,892.4 KB

скачать
picture_as_pdf

2884.pdf

19,915.0 KB

скачать
picture_as_pdf

2885.pdf

20,325.6 KB

скачать
picture_as_pdf

2886.pdf

6,517.0 KB

скачать
picture_as_pdf

2887.pdf

11,617.4 KB

скачать
picture_as_pdf

2888.pdf

7,132.8 KB

скачать
picture_as_pdf

2889.pdf

8,186.4 KB

скачать
picture_as_pdf

2890.pdf

7,630.4 KB

скачать
picture_as_pdf

2891.pdf

2,767.1 KB

скачать
picture_as_pdf

2892.pdf

32,522.1 KB

скачать
Товары Серия 1.030.1-1 (60)
ПС 62,5-18-2,0-5 я-2
Панели стеновые толщиной 200 мм Серия 1.030.1-1
  • Длина 6230 мм.
  • Ширина 200 мм.
  • Высота 1785 мм.
  • Вес 3980 кг.
  • Объем бетона 1,774 м3
  • Геометрический объем 2,2241 м3
Цена: 68831 руб.
Подробнее
ПС 62,5-18-2,0-4 я-2
Панели стеновые толщиной 200 мм Серия 1.030.1-1
  • Длина 6230 мм.
  • Ширина 200 мм.
  • Высота 1785 мм.
  • Вес 3980 кг.
  • Объем бетона 1,774 м3
  • Геометрический объем 2,2241 м3
Цена: 68831 руб.
Подробнее
ПС 62,5-18-2,0-5 л-1
Панели стеновые толщиной 200 мм Серия 1.030.1-1
  • Длина 6230 мм.
  • Ширина 200 мм.
  • Высота 1785 мм.
  • Вес 3450 кг.
  • Объем бетона 1,774 м3
  • Геометрический объем 2,2241 м3
Цена: 68831 руб.
Подробнее
ПС 62,5-18-2,0-6 л-1
Панели стеновые толщиной 200 мм Серия 1.030.1-1
  • Длина 6230 мм.
  • Ширина 200 мм.
  • Высота 1785 мм.
  • Вес 3450 кг.
  • Объем бетона 1,774 м3
  • Геометрический объем 2,2241 м3
Цена: 68831 руб.
Подробнее
ПС 62,5-18-2,0-6 л-2
Панели стеновые толщиной 200 мм Серия 1.030.1-1
  • Длина 6230 мм.
  • Ширина 200 мм.
  • Высота 1785 мм.
  • Вес 3450 кг.
  • Объем бетона 1,774 м3
  • Геометрический объем 2,2241 м3
Цена: 68831 руб.
Подробнее
ПС 62,5-9-2,0-2 л-2
Панели стеновые толщиной 200 мм Серия 1.030.1-1
  • Длина 6230 мм.
  • Ширина 200 мм.
  • Высота 885 мм.
  • Вес 1710 кг.
  • Объем бетона 0,877 м3
  • Геометрический объем 1,1027 м3
Цена: 34028 руб.
Подробнее
ПС 62,5-18-2,0-6 я-1
Панели стеновые толщиной 200 мм Серия 1.030.1-1
  • Длина 6230 мм.
  • Ширина 200 мм.
  • Высота 1785 мм.
  • Вес 3980 кг.
  • Объем бетона 1,774 м3
  • Геометрический объем 2,2241 м3
Цена: 68831 руб.
Подробнее
ПС 62,5-9-2,0-2 л-1
Панели стеновые толщиной 200 мм Серия 1.030.1-1
  • Длина 6230 мм.
  • Ширина 200 мм.
  • Высота 885 мм.
  • Вес 1710 кг.
  • Объем бетона 0,877 м3
  • Геометрический объем 1,1027 м3
Цена: 34028 руб.
Подробнее
ПС 62,5-9-2,0-2 я-2
Панели стеновые толщиной 200 мм Серия 1.030.1-1
  • Длина 6230 мм.
  • Ширина 200 мм.
  • Высота 885 мм.
  • Вес 1990 кг.
  • Объем бетона 0,877 м3
  • Геометрический объем 1,1027 м3
Цена: 34028 руб.
Подробнее
ПС 62,5-18-2,0-6 я-2
Панели стеновые толщиной 200 мм Серия 1.030.1-1
  • Длина 6230 мм.
  • Ширина 200 мм.
  • Высота 1785 мм.
  • Вес 3980 кг.
  • Объем бетона 1,774 м3
  • Геометрический объем 2,2241 м3
Цена: 68831 руб.
Подробнее
ПС 62,5-9-2,0-2 я-1
Панели стеновые толщиной 200 мм Серия 1.030.1-1
  • Длина 6230 мм.
  • Ширина 200 мм.
  • Высота 885 мм.
  • Вес 1990 кг.
  • Объем бетона 0,877 м3
  • Геометрический объем 1,1027 м3
Цена: 34028 руб.
Подробнее
ПС 62,5-9-2,0-4 л-1
Панели стеновые толщиной 200 мм Серия 1.030.1-1
  • Длина 6230 мм.
  • Ширина 200 мм.
  • Высота 885 мм.
  • Вес 1710 кг.
  • Объем бетона 0,877 м3
  • Геометрический объем 1,1027 м3
Цена: 34028 руб.
Подробнее
ПС 62,5-9-2,0-4 я-2
Панели стеновые толщиной 200 мм Серия 1.030.1-1
  • Длина 6230 мм.
  • Ширина 200 мм.
  • Высота 885 мм.
  • Вес 1990 кг.
  • Объем бетона 0,877 м3
  • Геометрический объем 1,1027 м3
Цена: 34028 руб.
Подробнее
ПС 62,5-9-2,0-4 я-1
Панели стеновые толщиной 200 мм Серия 1.030.1-1
  • Длина 6230 мм.
  • Ширина 200 мм.
  • Высота 885 мм.
  • Вес 1990 кг.
  • Объем бетона 0,877 м3
  • Геометрический объем 1,1027 м3
Цена: 34028 руб.
Подробнее
ПС 62,5-9-2,0-4 л-2
Панели стеновые толщиной 200 мм Серия 1.030.1-1
  • Длина 6230 мм.
  • Ширина 200 мм.
  • Высота 885 мм.
  • Вес 1710 кг.
  • Объем бетона 0,877 м3
  • Геометрический объем 1,1027 м3
Цена: 34028 руб.
Подробнее
ПС 62,5-9-2,0-6 л-1
Панели стеновые толщиной 200 мм Серия 1.030.1-1
  • Длина 6230 мм.
  • Ширина 200 мм.
  • Высота 885 мм.
  • Вес 1710 кг.
  • Объем бетона 0,877 м3
  • Геометрический объем 1,1027 м3
Цена: 34028 руб.
Подробнее
ПС 62,5-9-2,0-6 л-2
Панели стеновые толщиной 200 мм Серия 1.030.1-1
  • Длина 6230 мм.
  • Ширина 200 мм.
  • Высота 885 мм.
  • Вес 1710 кг.
  • Объем бетона 0,877 м3
  • Геометрический объем 1,1027 м3
Цена: 34028 руб.
Подробнее
ПС 62,5-9-2,0-6 я-1
Панели стеновые толщиной 200 мм Серия 1.030.1-1
  • Длина 6230 мм.
  • Ширина 200 мм.
  • Высота 885 мм.
  • Вес 1990 кг.
  • Объем бетона 0,877 м3
  • Геометрический объем 1,1027 м3
Цена: 34028 руб.
Подробнее
ПС 62,5-9-2,0-6 я-2
Панели стеновые толщиной 200 мм Серия 1.030.1-1
  • Длина 6230 мм.
  • Ширина 200 мм.
  • Высота 885 мм.
  • Вес 1990 кг.
  • Объем бетона 0,877 м3
  • Геометрический объем 1,1027 м3
Цена: 34028 руб.
Подробнее
ПС 65-12-2,0-4 л-1
Панели стеновые толщиной 200 мм Серия 1.030.1-1
  • Длина 6480 мм.
  • Ширина 200 мм.
  • Высота 1185 мм.
  • Вес 2380 кг.
  • Объем бетона 1,223 м3
  • Геометрический объем 1,5358 м3
Цена: 47452 руб.
Подробнее
ПС 65-12-2,0-2 я-1
Панели стеновые толщиной 200 мм Серия 1.030.1-1
  • Длина 6480 мм.
  • Ширина 200 мм.
  • Высота 1185 мм.
  • Вес 1560 кг.
  • Объем бетона 1,223 м3
  • Геометрический объем 1,5358 м3
Цена: 47452 руб.
Подробнее
ПС 65-12-2,0-2 л-1
Панели стеновые толщиной 200 мм Серия 1.030.1-1
  • Длина 6480 мм.
  • Ширина 200 мм.
  • Высота 1185 мм.
  • Вес 2380 кг.
  • Объем бетона 1,223 м3
  • Геометрический объем 1,5358 м3
Цена: 47452 руб.
Подробнее
ПС 65-12-2,0-4 л-2
Панели стеновые толщиной 200 мм Серия 1.030.1-1
  • Длина 6480 мм.
  • Ширина 200 мм.
  • Высота 1185 мм.
  • Вес 2380 кг.
  • Объем бетона 1,223 м3
  • Геометрический объем 1,5358 м3
Цена: 47452 руб.
Подробнее
ПС 65-12-2,0-2 л-2
Панели стеновые толщиной 200 мм Серия 1.030.1-1
  • Длина 6480 мм.
  • Ширина 200 мм.
  • Высота 1185 мм.
  • Вес 2380 кг.
  • Объем бетона 1,223 м3
  • Геометрический объем 1,5358 м3
Цена: 47452 руб.
Подробнее
ПС 65-12-2,0-2 я-2
Панели стеновые толщиной 200 мм Серия 1.030.1-1
  • Длина 6480 мм.
  • Ширина 200 мм.
  • Высота 1185 мм.
  • Вес 1560 кг.
  • Объем бетона 1,223 м3
  • Геометрический объем 1,5358 м3
Цена: 47452 руб.
Подробнее
ПС 65-12-2,0-4 я-2
Панели стеновые толщиной 200 мм Серия 1.030.1-1
  • Длина 6480 мм.
  • Ширина 200 мм.
  • Высота 1185 мм.
  • Вес 1560 кг.
  • Объем бетона 1,223 м3
  • Геометрический объем 1,5358 м3
Цена: 47452 руб.
Подробнее
ПС 65-12-2,0-4 я-1
Панели стеновые толщиной 200 мм Серия 1.030.1-1
  • Длина 6480 мм.
  • Ширина 200 мм.
  • Высота 1185 мм.
  • Вес 1560 кг.
  • Объем бетона 1,223 м3
  • Геометрический объем 1,5358 м3
Цена: 47452 руб.
Подробнее
ПС 65-12-2,0-6 л-2
Панели стеновые толщиной 200 мм Серия 1.030.1-1
  • Длина 6480 мм.
  • Ширина 200 мм.
  • Высота 1185 мм.
  • Вес 2380 кг.
  • Объем бетона 1,223 м3
  • Геометрический объем 1,5358 м3
Цена: 47452 руб.
Подробнее
ПС 65-12-2,0-6 л-1
Панели стеновые толщиной 200 мм Серия 1.030.1-1
  • Длина 6480 мм.
  • Ширина 200 мм.
  • Высота 1185 мм.
  • Вес 2380 кг.
  • Объем бетона 1,223 м3
  • Геометрический объем 1,5358 м3
Цена: 47452 руб.
Подробнее
ПС 65-12-2,0-6 я-1
Панели стеновые толщиной 200 мм Серия 1.030.1-1
  • Длина 6480 мм.
  • Ширина 200 мм.
  • Высота 1185 мм.
  • Вес 1560 кг.
  • Объем бетона 1,223 м3
  • Геометрический объем 1,5358 м3
Цена: 47452 руб.
Подробнее
ПС 65-18-2,0-1 л-1
Панели стеновые толщиной 200 мм Серия 1.030.1-1
  • Длина 6480 мм.
  • Ширина 200 мм.
  • Высота 1780 мм.
  • Вес 3590 кг.
  • Объем бетона 1,846 м3
  • Геометрический объем 2,3069 м3
Цена: 71625 руб.
Подробнее
ПС 65-12-2,0-6 я-2
Панели стеновые толщиной 200 мм Серия 1.030.1-1
  • Длина 6480 мм.
  • Ширина 200 мм.
  • Высота 1185 мм.
  • Вес 1560 кг.
  • Объем бетона 1,223 м3
  • Геометрический объем 1,5358 м3
Цена: 47452 руб.
Подробнее
ПС 65-18-2,0-1 л-2
Панели стеновые толщиной 200 мм Серия 1.030.1-1
  • Длина 6480 мм.
  • Ширина 200 мм.
  • Высота 1785 мм.
  • Вес 3590 кг.
  • Объем бетона 1,846 м3
  • Геометрический объем 2,3134 м3
Цена: 71625 руб.
Подробнее
ПС 65-18-2,0-1 я-1
Панели стеновые толщиной 200 мм Серия 1.030.1-1
  • Длина 6480 мм.
  • Ширина 200 мм.
  • Высота 1785 мм.
  • Вес 2340 кг.
  • Объем бетона 1,846 м3
  • Геометрический объем 2,3134 м3
Цена: 71625 руб.
Подробнее
ПС 65-18-2,0-3 л-1
Панели стеновые толщиной 200 мм Серия 1.030.1-1
  • Длина 6480 мм.
  • Ширина 200 мм.
  • Высота 1780 мм.
  • Вес 3590 кг.
  • Объем бетона 1,846 м3
  • Геометрический объем 2,3069 м3
Цена: 71625 руб.
Подробнее
ПС 65-18-2,0-3 я-1
Панели стеновые толщиной 200 мм Серия 1.030.1-1
  • Длина 6480 мм.
  • Ширина 200 мм.
  • Высота 1785 мм.
  • Вес 2340 кг.
  • Объем бетона 1,846 м3
  • Геометрический объем 2,3134 м3
Цена: 71625 руб.
Подробнее
ПС 65-18-2,0-1 я-2
Панели стеновые толщиной 200 мм Серия 1.030.1-1
  • Длина 6480 мм.
  • Ширина 200 мм.
  • Высота 1785 мм.
  • Вес 2340 кг.
  • Объем бетона 1,846 м3
  • Геометрический объем 2,3134 м3
Цена: 71625 руб.
Подробнее
ПС 65-18-2,0-3 л-2
Панели стеновые толщиной 200 мм Серия 1.030.1-1
  • Длина 6480 мм.
  • Ширина 200 мм.
  • Высота 1785 мм.
  • Вес 3590 кг.
  • Объем бетона 1,846 м3
  • Геометрический объем 2,3134 м3
Цена: 71625 руб.
Подробнее
ПС 65-18-2,0-3 я-2
Панели стеновые толщиной 200 мм Серия 1.030.1-1
  • Длина 6480 мм.
  • Ширина 200 мм.
  • Высота 1785 мм.
  • Вес 2340 кг.
  • Объем бетона 1,846 м3
  • Геометрический объем 2,3134 м3
Цена: 71625 руб.
Подробнее
ПС 65-18-2,0-4 л-1
Панели стеновые толщиной 200 мм Серия 1.030.1-1
  • Длина 6480 мм.
  • Ширина 200 мм.
  • Высота 1780 мм.
  • Вес 3590 кг.
  • Объем бетона 1,846 м3
  • Геометрический объем 2,3069 м3
Цена: 71625 руб.
Подробнее
ПС 65-18-2,0-4 л-2
Панели стеновые толщиной 200 мм Серия 1.030.1-1
  • Длина 6480 мм.
  • Ширина 200 мм.
  • Высота 1785 мм.
  • Вес 3590 кг.
  • Объем бетона 1,846 м3
  • Геометрический объем 2,3134 м3
Цена: 71625 руб.
Подробнее
ПС 65-18-2,0-4 я-1
Панели стеновые толщиной 200 мм Серия 1.030.1-1
  • Длина 6480 мм.
  • Ширина 200 мм.
  • Высота 1785 мм.
  • Вес 2340 кг.
  • Объем бетона 1,846 м3
  • Геометрический объем 2,3134 м3
Цена: 71625 руб.
Подробнее
ПС 65-18-2,0-4 я-2
Панели стеновые толщиной 200 мм Серия 1.030.1-1
  • Длина 6480 мм.
  • Ширина 200 мм.
  • Высота 1785 мм.
  • Вес 2340 кг.
  • Объем бетона 1,846 м3
  • Геометрический объем 2,3134 м3
Цена: 71625 руб.
Подробнее
ПС 65-18-2,0-5 л-2
Панели стеновые толщиной 200 мм Серия 1.030.1-1
  • Длина 6480 мм.
  • Ширина 200 мм.
  • Высота 1785 мм.
  • Вес 3590 кг.
  • Объем бетона 1,846 м3
  • Геометрический объем 2,3134 м3
Цена: 71625 руб.
Подробнее
ПС 65-18-2,0-5 я-1
Панели стеновые толщиной 200 мм Серия 1.030.1-1
  • Длина 6480 мм.
  • Ширина 200 мм.
  • Высота 1785 мм.
  • Вес 2340 кг.
  • Объем бетона 1,846 м3
  • Геометрический объем 2,3134 м3
Цена: 71625 руб.
Подробнее
ПС 65-18-2,0-5 л-1
Панели стеновые толщиной 200 мм Серия 1.030.1-1
  • Длина 6480 мм.
  • Ширина 200 мм.
  • Высота 1780 мм.
  • Вес 3590 кг.
  • Объем бетона 1,846 м3
  • Геометрический объем 2,3069 м3
Цена: 71625 руб.
Подробнее
ПС 65-18-2,0-5 я-2
Панели стеновые толщиной 200 мм Серия 1.030.1-1
  • Длина 6480 мм.
  • Ширина 200 мм.
  • Высота 1785 мм.
  • Вес 2340 кг.
  • Объем бетона 1,846 м3
  • Геометрический объем 2,3134 м3
Цена: 71625 руб.
Подробнее
ПС 65-18-2,0-6 я-1
Панели стеновые толщиной 200 мм Серия 1.030.1-1
  • Длина 6480 мм.
  • Ширина 200 мм.
  • Высота 1785 мм.
  • Вес 2340 кг.
  • Объем бетона 1,846 м3
  • Геометрический объем 2,3134 м3
Цена: 71625 руб.
Подробнее
ПС 65-18-2,0-6 л-2
Панели стеновые толщиной 200 мм Серия 1.030.1-1
  • Длина 6480 мм.
  • Ширина 200 мм.
  • Высота 1785 мм.
  • Вес 3590 кг.
  • Объем бетона 1,846 м3
  • Геометрический объем 2,3134 м3
Цена: 71625 руб.
Подробнее
ПС 65-18-2,0-6 я-2
Панели стеновые толщиной 200 мм Серия 1.030.1-1
  • Длина 6480 мм.
  • Ширина 200 мм.
  • Высота 1785 мм.
  • Вес 2340 кг.
  • Объем бетона 1,846 м3
  • Геометрический объем 2,3134 м3
Цена: 71625 руб.
Подробнее
ПС 65-18-2,0-9 л-1
Панели стеновые толщиной 200 мм Серия 1.030.1-1
  • Длина 6480 мм.
  • Ширина 200 мм.
  • Высота 1780 мм.
  • Вес 3590 кг.
  • Объем бетона 1,846 м3
  • Геометрический объем 2,3069 м3
Цена: 71625 руб.
Подробнее
ПС 65-9-2,0-2 л-2
Панели стеновые толщиной 200 мм Серия 1.030.1-1
  • Длина 6480 мм.
  • Ширина 200 мм.
  • Высота 885 мм.
  • Вес 1790 кг.
  • Объем бетона 0,912 м3
  • Геометрический объем 1,147 м3
Цена: 35386 руб.
Подробнее
ПС 65-9-2,0-2 л-1
Панели стеновые толщиной 200 мм Серия 1.030.1-1
  • Длина 6480 мм.
  • Ширина 200 мм.
  • Высота 885 мм.
  • Вес 1790 кг.
  • Объем бетона 0,912 м3
  • Геометрический объем 1,147 м3
Цена: 35386 руб.
Подробнее
ПС 65-9-2,0-2 я-1
Панели стеновые толщиной 200 мм Серия 1.030.1-1
  • Длина 6480 мм.
  • Ширина 200 мм.
  • Высота 885 мм.
  • Вес 1170 кг.
  • Объем бетона 0,912 м3
  • Геометрический объем 1,147 м3
Цена: 35386 руб.
Подробнее
ПС 65-9-2,0-2 я-2
Панели стеновые толщиной 200 мм Серия 1.030.1-1
  • Длина 6480 мм.
  • Ширина 200 мм.
  • Высота 885 мм.
  • Вес 1170 кг.
  • Объем бетона 0,912 м3
  • Геометрический объем 1,147 м3
Цена: 35386 руб.
Подробнее
ПС 65-9-2,0-4 л-1
Панели стеновые толщиной 200 мм Серия 1.030.1-1
  • Длина 6480 мм.
  • Ширина 200 мм.
  • Высота 885 мм.
  • Вес 1790 кг.
  • Объем бетона 0,912 м3
  • Геометрический объем 1,147 м3
Цена: 35386 руб.
Подробнее
ПС 65-9-2,0-4 л-2
Панели стеновые толщиной 200 мм Серия 1.030.1-1
  • Длина 6480 мм.
  • Ширина 200 мм.
  • Высота 885 мм.
  • Вес 1790 кг.
  • Объем бетона 0,912 м3
  • Геометрический объем 1,147 м3
Цена: 35386 руб.
Подробнее
ПС 65-9-2,0-4 я-1
Панели стеновые толщиной 200 мм Серия 1.030.1-1
  • Длина 6480 мм.
  • Ширина 200 мм.
  • Высота 885 мм.
  • Вес 1170 кг.
  • Объем бетона 0,912 м3
  • Геометрический объем 1,147 м3
Цена: 35386 руб.
Подробнее
ПС 65-9-2,0-6 л-1
Панели стеновые толщиной 200 мм Серия 1.030.1-1
  • Длина 6480 мм.
  • Ширина 200 мм.
  • Высота 885 мм.
  • Вес 1790 кг.
  • Объем бетона 0,912 м3
  • Геометрический объем 1,147 м3
Цена: 35386 руб.
Подробнее
ПС 65-9-2,0-4 я-2
Панели стеновые толщиной 200 мм Серия 1.030.1-1
  • Длина 6480 мм.
  • Ширина 200 мм.
  • Высота 885 мм.
  • Вес 1170 кг.
  • Объем бетона 0,912 м3
  • Геометрический объем 1,147 м3
Цена: 35386 руб.
Подробнее

Уведомление о файлах cookie

Мы используем файлы cookie для улучшения вашего опыта просмотра и анализа трафика. Нажимая "Принять все", вы соглашаетесь с нашей политикой конфиденциальности и политикой обработки файлов cookie.

MAX Дзен Телеграм Вконтакте vk