mobile_sound +7 (930) 655-55-90

Типовые конструкции и железобетонные изделия. Рабочие чертежи (Серия 1.030.1-1)

Поделиться:
Поделиться:

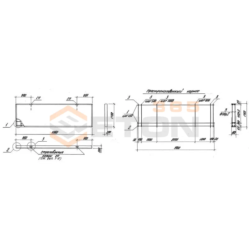
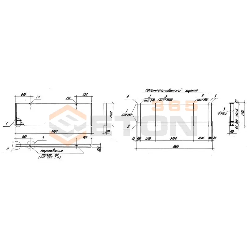
Документ Серия 1.030.1-1 описывает область применения, номенклатуру и ключевые требования, опираясь на действующие нормы и практику проектирования. Серия 1.030.1-1 была введён в действие в действии с 15.10.1984 года. Документ определяет и регламентирует информацию о наружных стенах из однослойных панелей, используемых в каркасных общественных и производственных зданиях. Номенклатурный перечень представлен рядом панелей, выполненных из ячеистого и легкого бетона, а также карнизных панелей.

Файлы для скачивания:
picture_as_pdf

2874.pdf

18,025.9 KB

скачать
picture_as_pdf

2875.pdf

14,545.4 KB

скачать
picture_as_pdf

2876.pdf

8,819.6 KB

скачать
picture_as_pdf

2877.pdf

12,245.9 KB

скачать
picture_as_pdf

2878.pdf

30,921.9 KB

скачать
picture_as_pdf

2879.pdf

24,358.2 KB

скачать
picture_as_pdf

2880.pdf

33,308.5 KB

скачать
picture_as_pdf

2881.pdf

46,474.1 KB

скачать
picture_as_pdf

2882.pdf

20,001.2 KB

скачать
picture_as_pdf

2883.pdf

54,892.4 KB

скачать
picture_as_pdf

2884.pdf

19,915.0 KB

скачать
picture_as_pdf

2885.pdf

20,325.6 KB

скачать
picture_as_pdf

2886.pdf

6,517.0 KB

скачать
picture_as_pdf

2887.pdf

11,617.4 KB

скачать
picture_as_pdf

2888.pdf

7,132.8 KB

скачать
picture_as_pdf

2889.pdf

8,186.4 KB

скачать
picture_as_pdf

2890.pdf

7,630.4 KB

скачать
picture_as_pdf

2891.pdf

2,767.1 KB

скачать
picture_as_pdf

2892.pdf

32,522.1 KB

скачать
Товары Серия 1.030.1-1 (60)
ПС 30-18-2,0-6 л
Панели стеновые толщиной 200 мм Серия 1.030.1-1
  • Длина 2980 мм.
  • Ширина 200 мм.
  • Высота 1785 мм.
  • Вес 1650 кг.
  • Объем бетона 0,848 м3
  • Геометрический объем 1,0639 м3
Цена: 32902 руб.
Подробнее
ПС 30-18-2,0-6 я
Панели стеновые толщиной 200 мм Серия 1.030.1-1
  • Длина 2980 мм.
  • Ширина 200 мм.
  • Высота 1785 мм.
  • Вес 1070 кг.
  • Объем бетона 0,848 м3
  • Геометрический объем 1,0639 м3
Цена: 32902 руб.
Подробнее
ПС 30-9-2,0-6 я
Панели стеновые толщиной 200 мм Серия 1.030.1-1
  • Длина 2980 мм.
  • Ширина 200 мм.
  • Высота 885 мм.
  • Вес 530 кг.
  • Объем бетона 0,42 м3
  • Геометрический объем 0,5275 м3
Цена: 16296 руб.
Подробнее
ПС 60-12-2,0-2 я
Панели стеновые толщиной 200 мм Серия 1.030.1-1
  • Длина 5980 мм.
  • Ширина 200 мм.
  • Высота 1185 мм.
  • Вес 1430 кг.
  • Объем бетона 1,129 м3
  • Геометрический объем 1,4173 м3
Цена: 43805 руб.
Подробнее
ПС 60-12-2,0-2 л
Панели стеновые толщиной 200 мм Серия 1.030.1-1
  • Длина 5980 мм.
  • Ширина 200 мм.
  • Высота 1185 мм.
  • Вес 2200 кг.
  • Объем бетона 1,129 м3
  • Геометрический объем 1,4173 м3
Цена: 43805 руб.
Подробнее
ПС 60-12-2,0-4 л
Панели стеновые толщиной 200 мм Серия 1.030.1-1
  • Длина 5980 мм.
  • Ширина 200 мм.
  • Высота 1185 мм.
  • Вес 2200 кг.
  • Объем бетона 1,129 м3
  • Геометрический объем 1,4173 м3
Цена: 43805 руб.
Подробнее
ПС 60-12-2,0-4 я
Панели стеновые толщиной 200 мм Серия 1.030.1-1
  • Длина 5980 мм.
  • Ширина 200 мм.
  • Высота 1185 мм.
  • Вес 1430 кг.
  • Объем бетона 1,129 м3
  • Геометрический объем 1,4173 м3
Цена: 43805 руб.
Подробнее
ПС 30-9-2,0-6 л
Панели стеновые толщиной 200 мм Серия 1.030.1-1
  • Длина 2980 мм.
  • Ширина 200 мм.
  • Высота 885 мм.
  • Вес 820 кг.
  • Объем бетона 0,42 м3
  • Геометрический объем 0,5275 м3
Цена: 16296 руб.
Подробнее
ПС 60-12-2,0-6 л
Панели стеновые толщиной 200 мм Серия 1.030.1-1
  • Длина 5980 мм.
  • Ширина 200 мм.
  • Высота 1185 мм.
  • Вес 2200 кг.
  • Объем бетона 1,129 м3
  • Геометрический объем 1,4173 м3
Цена: 43805 руб.
Подробнее
ПС 60-12-2,0-6 я
Панели стеновые толщиной 200 мм Серия 1.030.1-1
  • Длина 5980 мм.
  • Ширина 200 мм.
  • Высота 1185 мм.
  • Вес 1430 кг.
  • Объем бетона 1,129 м3
  • Геометрический объем 1,4173 м3
Цена: 43805 руб.
Подробнее
ПС 60-15-2,0-2 я
Панели стеновые толщиной 200 мм Серия 1.030.1-1
  • Длина 5980 мм.
  • Ширина 200 мм.
  • Высота 1485 мм.
  • Вес 1800 кг.
  • Объем бетона 1,416 м3
  • Геометрический объем 1,7761 м3
Цена: 54941 руб.
Подробнее
ПС 60-15-2,0-2 л
Панели стеновые толщиной 200 мм Серия 1.030.1-1
  • Длина 5980 мм.
  • Ширина 200 мм.
  • Высота 1485 мм.
  • Вес 2770 кг.
  • Объем бетона 1,416 м3
  • Геометрический объем 1,7761 м3
Цена: 54941 руб.
Подробнее
ПС 60-15-2,0-3 л
Панели стеновые толщиной 200 мм Серия 1.030.1-1
  • Длина 5980 мм.
  • Ширина 200 мм.
  • Высота 1485 мм.
  • Вес 2770 кг.
  • Объем бетона 1,416 м3
  • Геометрический объем 1,7761 м3
Цена: 54941 руб.
Подробнее
ПС 60-15-2,0-3 я
Панели стеновые толщиной 200 мм Серия 1.030.1-1
  • Длина 5980 мм.
  • Ширина 200 мм.
  • Высота 1485 мм.
  • Вес 1800 кг.
  • Объем бетона 1,416 м3
  • Геометрический объем 1,7761 м3
Цена: 54941 руб.
Подробнее
ПС 60-15-2,0-4 л
Панели стеновые толщиной 200 мм Серия 1.030.1-1
  • Длина 5980 мм.
  • Ширина 200 мм.
  • Высота 1485 мм.
  • Вес 2770 кг.
  • Объем бетона 1,416 м3
  • Геометрический объем 1,7761 м3
Цена: 54941 руб.
Подробнее
ПС 60-15-2,0-4 я
Панели стеновые толщиной 200 мм Серия 1.030.1-1
  • Длина 5980 мм.
  • Ширина 200 мм.
  • Высота 1485 мм.
  • Вес 1800 кг.
  • Объем бетона 1,416 м3
  • Геометрический объем 1,7761 м3
Цена: 54941 руб.
Подробнее
ПС 60-15-2,0-5 я
Панели стеновые толщиной 200 мм Серия 1.030.1-1
  • Длина 5980 мм.
  • Ширина 200 мм.
  • Высота 1485 мм.
  • Вес 1800 кг.
  • Объем бетона 1,416 м3
  • Геометрический объем 1,7761 м3
Цена: 54941 руб.
Подробнее
ПС 60-15-2,0-6 л
Панели стеновые толщиной 200 мм Серия 1.030.1-1
  • Длина 5980 мм.
  • Ширина 200 мм.
  • Высота 1485 мм.
  • Вес 2770 кг.
  • Объем бетона 1,416 м3
  • Геометрический объем 1,7761 м3
Цена: 54941 руб.
Подробнее
ПС 60-15-2,0-6 я
Панели стеновые толщиной 200 мм Серия 1.030.1-1
  • Длина 5980 мм.
  • Ширина 200 мм.
  • Высота 1485 мм.
  • Вес 1800 кг.
  • Объем бетона 1,416 м3
  • Геометрический объем 1,7761 м3
Цена: 54941 руб.
Подробнее
ПС 60-18-2,0-1 л
Панели стеновые толщиной 200 мм Серия 1.030.1-1
  • Длина 5980 мм.
  • Ширина 200 мм.
  • Высота 1785 мм.
  • Вес 3350 кг.
  • Объем бетона 1,703 м3
  • Геометрический объем 2,1349 м3
Цена: 66076 руб.
Подробнее
ПС 60-18-2,0-1 я
Панели стеновые толщиной 200 мм Серия 1.030.1-1
  • Длина 5980 мм.
  • Ширина 200 мм.
  • Высота 1785 мм.
  • Вес 2160 кг.
  • Объем бетона 1,703 м3
  • Геометрический объем 2,1349 м3
Цена: 66076 руб.
Подробнее
ПС 60-18-2,0-3 л
Панели стеновые толщиной 200 мм Серия 1.030.1-1
  • Длина 5980 мм.
  • Ширина 200 мм.
  • Высота 1785 мм.
  • Вес 3350 кг.
  • Объем бетона 1,703 м3
  • Геометрический объем 2,1349 м3
Цена: 66076 руб.
Подробнее
ПС 60-18-2,0-3 я
Панели стеновые толщиной 200 мм Серия 1.030.1-1
  • Длина 5980 мм.
  • Ширина 200 мм.
  • Высота 1785 мм.
  • Вес 2160 кг.
  • Объем бетона 1,703 м3
  • Геометрический объем 2,1349 м3
Цена: 66076 руб.
Подробнее
ПС 60-18-2,0-4 я
Панели стеновые толщиной 200 мм Серия 1.030.1-1
  • Длина 5980 мм.
  • Ширина 200 мм.
  • Высота 1785 мм.
  • Вес 2160 кг.
  • Объем бетона 1,703 м3
  • Геометрический объем 2,1349 м3
Цена: 66076 руб.
Подробнее
ПС 60-18-2,0-5 я
Панели стеновые толщиной 200 мм Серия 1.030.1-1
  • Длина 5980 мм.
  • Ширина 200 мм.
  • Высота 1785 мм.
  • Вес 2160 кг.
  • Объем бетона 1,703 м3
  • Геометрический объем 2,1349 м3
Цена: 66076 руб.
Подробнее
ПС 60-18-2,0-4 л
Панели стеновые толщиной 200 мм Серия 1.030.1-1
  • Длина 5980 мм.
  • Ширина 200 мм.
  • Высота 1785 мм.
  • Вес 3350 кг.
  • Объем бетона 1,703 м3
  • Геометрический объем 2,1349 м3
Цена: 66076 руб.
Подробнее
ПС 60-18-2,0-6 л
Панели стеновые толщиной 200 мм Серия 1.030.1-1
  • Длина 5980 мм.
  • Ширина 200 мм.
  • Высота 1785 мм.
  • Вес 3350 кг.
  • Объем бетона 1,703 м3
  • Геометрический объем 2,1349 м3
Цена: 66076 руб.
Подробнее
ПС 60-18-2,0-5 л
Панели стеновые толщиной 200 мм Серия 1.030.1-1
  • Длина 5980 мм.
  • Ширина 200 мм.
  • Высота 1785 мм.
  • Вес 3350 кг.
  • Объем бетона 1,703 м3
  • Геометрический объем 2,1349 м3
Цена: 66076 руб.
Подробнее
ПС 60-18-2,0-6 я
Панели стеновые толщиной 200 мм Серия 1.030.1-1
  • Длина 5980 мм.
  • Ширина 200 мм.
  • Высота 1785 мм.
  • Вес 2160 кг.
  • Объем бетона 1,703 м3
  • Геометрический объем 2,1349 м3
Цена: 66076 руб.
Подробнее
ПС 60-9-2,0-2 я
Панели стеновые толщиной 200 мм Серия 1.030.1-1
  • Длина 5980 мм.
  • Ширина 200 мм.
  • Высота 885 мм.
  • Вес 1080 кг.
  • Объем бетона 0,842 м3
  • Геометрический объем 1,0585 м3
Цена: 32670 руб.
Подробнее
ПС 60-9-2,0-2 л
Панели стеновые толщиной 200 мм Серия 1.030.1-1
  • Длина 5980 мм.
  • Ширина 200 мм.
  • Высота 880 мм.
  • Вес 1640 кг.
  • Объем бетона 0,842 м3
  • Геометрический объем 1,0525 м3
Цена: 32670 руб.
Подробнее
ПС 60-9-2,0-4 л
Панели стеновые толщиной 200 мм Серия 1.030.1-1
  • Длина 5980 мм.
  • Ширина 200 мм.
  • Высота 880 мм.
  • Вес 1640 кг.
  • Объем бетона 0,842 м3
  • Геометрический объем 1,0525 м3
Цена: 32670 руб.
Подробнее
ПС 60-9-2,0-6 л
Панели стеновые толщиной 200 мм Серия 1.030.1-1
  • Длина 5980 мм.
  • Ширина 200 мм.
  • Высота 880 мм.
  • Вес 1640 кг.
  • Объем бетона 0,842 м3
  • Геометрический объем 1,0525 м3
Цена: 32670 руб.
Подробнее
ПС 60-9-2,0-6 я
Панели стеновые толщиной 200 мм Серия 1.030.1-1
  • Длина 5980 мм.
  • Ширина 200 мм.
  • Высота 885 мм.
  • Вес 1080 кг.
  • Объем бетона 0,842 м3
  • Геометрический объем 1,0585 м3
Цена: 32670 руб.
Подробнее
ПС 60-9-2,0-4 я
Панели стеновые толщиной 200 мм Серия 1.030.1-1
  • Длина 5980 мм.
  • Ширина 200 мм.
  • Высота 885 мм.
  • Вес 1080 кг.
  • Объем бетона 0,842 м3
  • Геометрический объем 1,0585 м3
Цена: 32670 руб.
Подробнее
ПС 62,5-12-2,0-2 л-1
Панели стеновые толщиной 200 мм Серия 1.030.1-1
  • Длина 6230 мм.
  • Ширина 200 мм.
  • Высота 1185 мм.
  • Вес 2300 кг.
  • Объем бетона 1,176 м3
  • Геометрический объем 1,4765 м3
Цена: 45629 руб.
Подробнее
ПС 62,5-12-2,0-2 л-2
Панели стеновые толщиной 200 мм Серия 1.030.1-1
  • Длина 6230 мм.
  • Ширина 200 мм.
  • Высота 1185 мм.
  • Вес 2320 кг.
  • Объем бетона 1,176 м3
  • Геометрический объем 1,4765 м3
Цена: 45629 руб.
Подробнее
ПС 62,5-12-2,0-4 л-1
Панели стеновые толщиной 200 мм Серия 1.030.1-1
  • Длина 6230 мм.
  • Ширина 200 мм.
  • Высота 1185 мм.
  • Вес 2300 кг.
  • Объем бетона 1,176 м3
  • Геометрический объем 1,4765 м3
Цена: 45629 руб.
Подробнее
ПС 62,5-12-2,0-2 я-1
Панели стеновые толщиной 200 мм Серия 1.030.1-1
  • Длина 6230 мм.
  • Ширина 200 мм.
  • Высота 1185 мм.
  • Вес 2660 кг.
  • Объем бетона 1,176 м3
  • Геометрический объем 1,4765 м3
Цена: 45629 руб.
Подробнее
ПС 62,5-12-2,0-4 я-1
Панели стеновые толщиной 200 мм Серия 1.030.1-1
  • Длина 6230 мм.
  • Ширина 200 мм.
  • Высота 1185 мм.
  • Вес 2660 кг.
  • Объем бетона 1,176 м3
  • Геометрический объем 1,4765 м3
Цена: 45629 руб.
Подробнее
ПС 62,5-12-2,0-2 я-2
Панели стеновые толщиной 200 мм Серия 1.030.1-1
  • Длина 6230 мм.
  • Ширина 200 мм.
  • Высота 1185 мм.
  • Вес 2660 кг.
  • Объем бетона 1,176 м3
  • Геометрический объем 1,4765 м3
Цена: 45629 руб.
Подробнее
ПС 62,5-12-2,0-4 л-2
Панели стеновые толщиной 200 мм Серия 1.030.1-1
  • Длина 6230 мм.
  • Ширина 200 мм.
  • Высота 1185 мм.
  • Вес 2320 кг.
  • Объем бетона 1,176 м3
  • Геометрический объем 1,4765 м3
Цена: 45629 руб.
Подробнее
ПС 62,5-12-2,0-4 я-2
Панели стеновые толщиной 200 мм Серия 1.030.1-1
  • Длина 6230 мм.
  • Ширина 200 мм.
  • Высота 1185 мм.
  • Вес 2660 кг.
  • Объем бетона 1,176 м3
  • Геометрический объем 1,4765 м3
Цена: 45629 руб.
Подробнее
ПС 62,5-12-2,0-6 л-1
Панели стеновые толщиной 200 мм Серия 1.030.1-1
  • Длина 6230 мм.
  • Ширина 200 мм.
  • Высота 1185 мм.
  • Вес 2300 кг.
  • Объем бетона 1,176 м3
  • Геометрический объем 1,4765 м3
Цена: 45629 руб.
Подробнее
ПС 62,5-12-2,0-6 л-2
Панели стеновые толщиной 200 мм Серия 1.030.1-1
  • Длина 6230 мм.
  • Ширина 200 мм.
  • Высота 1185 мм.
  • Вес 2320 кг.
  • Объем бетона 1,176 м3
  • Геометрический объем 1,4765 м3
Цена: 45629 руб.
Подробнее
ПС 62,5-12-2,0-6 я-1
Панели стеновые толщиной 200 мм Серия 1.030.1-1
  • Длина 6230 мм.
  • Ширина 200 мм.
  • Высота 1185 мм.
  • Вес 2660 кг.
  • Объем бетона 1,176 м3
  • Геометрический объем 1,4765 м3
Цена: 45629 руб.
Подробнее
ПС 62,5-12-2,0-6 я-2
Панели стеновые толщиной 200 мм Серия 1.030.1-1
  • Длина 6230 мм.
  • Ширина 200 мм.
  • Высота 1185 мм.
  • Вес 2660 кг.
  • Объем бетона 1,176 м3
  • Геометрический объем 1,4765 м3
Цена: 45629 руб.
Подробнее
ПС 62,5-18-2,0-1 л-1
Панели стеновые толщиной 200 мм Серия 1.030.1-1
  • Длина 6230 мм.
  • Ширина 200 мм.
  • Высота 1785 мм.
  • Вес 3450 кг.
  • Объем бетона 1,774 м3
  • Геометрический объем 2,2241 м3
Цена: 68831 руб.
Подробнее
ПС 62,5-18-2,0-1 л-2
Панели стеновые толщиной 200 мм Серия 1.030.1-1
  • Длина 6230 мм.
  • Ширина 200 мм.
  • Высота 1785 мм.
  • Вес 3450 кг.
  • Объем бетона 1,774 м3
  • Геометрический объем 2,2241 м3
Цена: 68831 руб.
Подробнее
ПС 62,5-18-2,0-1 я-1
Панели стеновые толщиной 200 мм Серия 1.030.1-1
  • Длина 6230 мм.
  • Ширина 200 мм.
  • Высота 1785 мм.
  • Вес 3980 кг.
  • Объем бетона 1,774 м3
  • Геометрический объем 2,2241 м3
Цена: 68831 руб.
Подробнее
ПС 62,5-18-2,0-1 я-2
Панели стеновые толщиной 200 мм Серия 1.030.1-1
  • Длина 6230 мм.
  • Ширина 200 мм.
  • Высота 1785 мм.
  • Вес 3980 кг.
  • Объем бетона 1,774 м3
  • Геометрический объем 2,2241 м3
Цена: 68831 руб.
Подробнее
ПС 62,5-18-2,0-3 л-1
Панели стеновые толщиной 200 мм Серия 1.030.1-1
  • Длина 6230 мм.
  • Ширина 200 мм.
  • Высота 1785 мм.
  • Вес 3450 кг.
  • Объем бетона 1,774 м3
  • Геометрический объем 2,2241 м3
Цена: 68831 руб.
Подробнее
ПС 62,5-18-2,0-3 л-2
Панели стеновые толщиной 200 мм Серия 1.030.1-1
  • Длина 6230 мм.
  • Ширина 200 мм.
  • Высота 1785 мм.
  • Вес 3450 кг.
  • Объем бетона 1,774 м3
  • Геометрический объем 2,2241 м3
Цена: 68831 руб.
Подробнее
ПС 62,5-18-2,0-3 я-2
Панели стеновые толщиной 200 мм Серия 1.030.1-1
  • Длина 6230 мм.
  • Ширина 200 мм.
  • Высота 1785 мм.
  • Вес 3980 кг.
  • Объем бетона 1,774 м3
  • Геометрический объем 2,2241 м3
Цена: 68831 руб.
Подробнее
ПС 62,5-18-2,0-3 я-1
Панели стеновые толщиной 200 мм Серия 1.030.1-1
  • Длина 6230 мм.
  • Ширина 200 мм.
  • Высота 1785 мм.
  • Вес 3980 кг.
  • Объем бетона 1,774 м3
  • Геометрический объем 2,2241 м3
Цена: 68831 руб.
Подробнее
ПС 62,5-18-2,0-4 л-2
Панели стеновые толщиной 200 мм Серия 1.030.1-1
  • Длина 6230 мм.
  • Ширина 200 мм.
  • Высота 1785 мм.
  • Вес 3450 кг.
  • Объем бетона 1,774 м3
  • Геометрический объем 2,2241 м3
Цена: 68831 руб.
Подробнее
ПС 62,5-18-2,0-4 л-1
Панели стеновые толщиной 200 мм Серия 1.030.1-1
  • Длина 6230 мм.
  • Ширина 200 мм.
  • Высота 1785 мм.
  • Вес 3450 кг.
  • Объем бетона 1,774 м3
  • Геометрический объем 2,2241 м3
Цена: 68831 руб.
Подробнее
ПС 62,5-18-2,0-4 я-1
Панели стеновые толщиной 200 мм Серия 1.030.1-1
  • Длина 6230 мм.
  • Ширина 200 мм.
  • Высота 1785 мм.
  • Вес 3980 кг.
  • Объем бетона 1,774 м3
  • Геометрический объем 2,2241 м3
Цена: 68831 руб.
Подробнее
ПС 62,5-18-2,0-5 я-1
Панели стеновые толщиной 200 мм Серия 1.030.1-1
  • Длина 6230 мм.
  • Ширина 200 мм.
  • Высота 1785 мм.
  • Вес 3980 кг.
  • Объем бетона 1,774 м3
  • Геометрический объем 2,2241 м3
Цена: 68831 руб.
Подробнее
ПС 62,5-18-2,0-5 л-2
Панели стеновые толщиной 200 мм Серия 1.030.1-1
  • Длина 6230 мм.
  • Ширина 200 мм.
  • Высота 1785 мм.
  • Вес 3450 кг.
  • Объем бетона 1,774 м3
  • Геометрический объем 2,2241 м3
Цена: 68831 руб.
Подробнее

Уведомление о файлах cookie

Мы используем файлы cookie для улучшения вашего опыта просмотра и анализа трафика. Нажимая "Принять все", вы соглашаетесь с нашей политикой конфиденциальности и политикой обработки файлов cookie.

MAX Дзен Телеграм Вконтакте vk