mobile_sound +7 (930) 655-55-90

Типовые конструкции и железобетонные изделия. Рабочие чертежи (Серия 1.020-1)

Поделиться:
Поделиться:

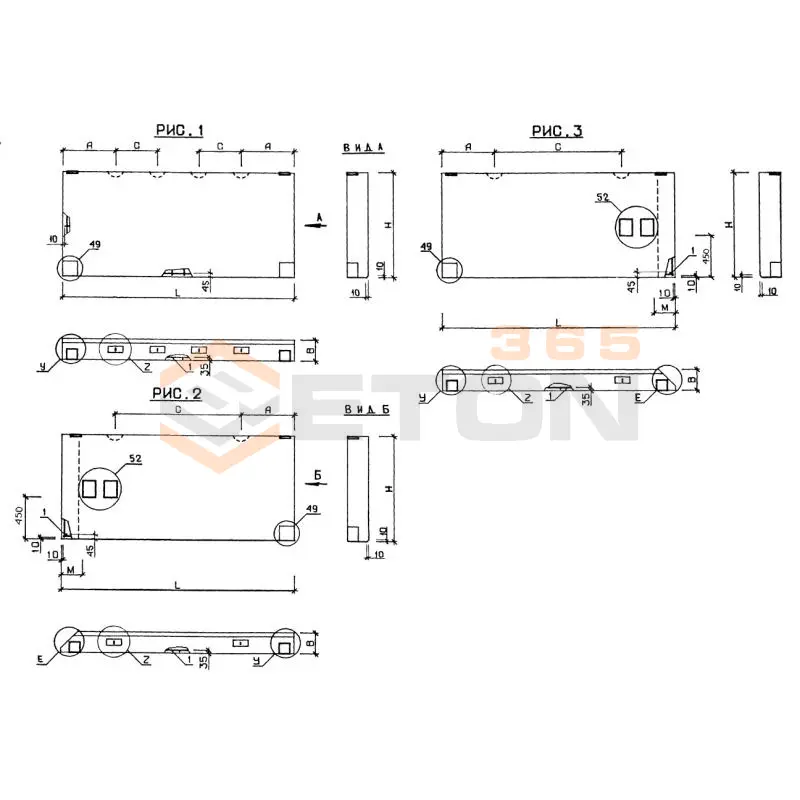
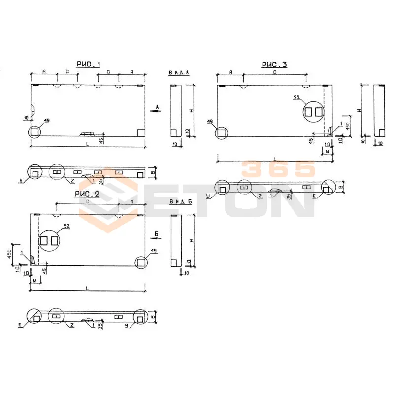
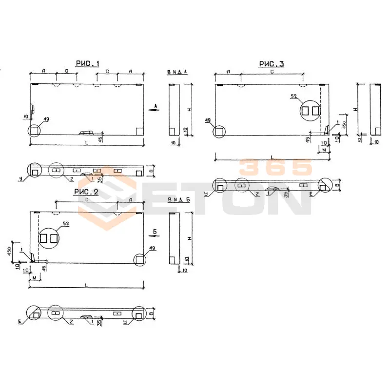
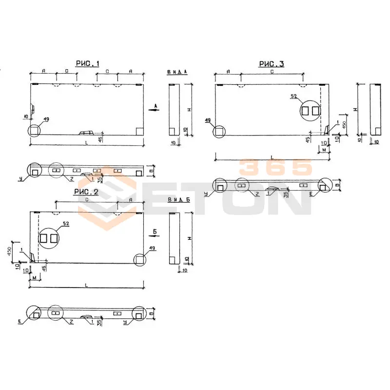
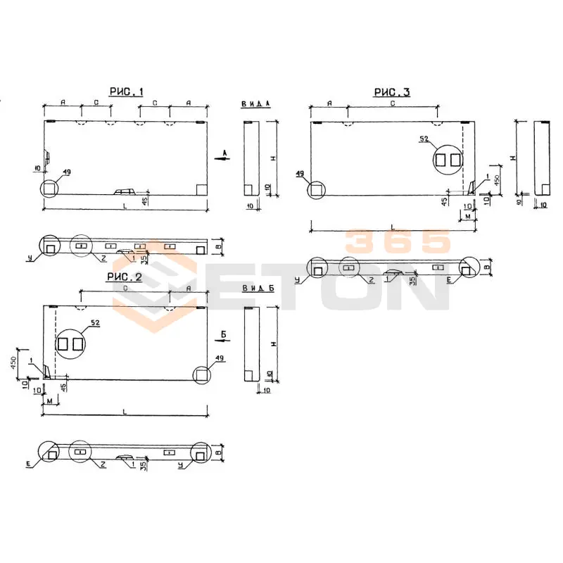
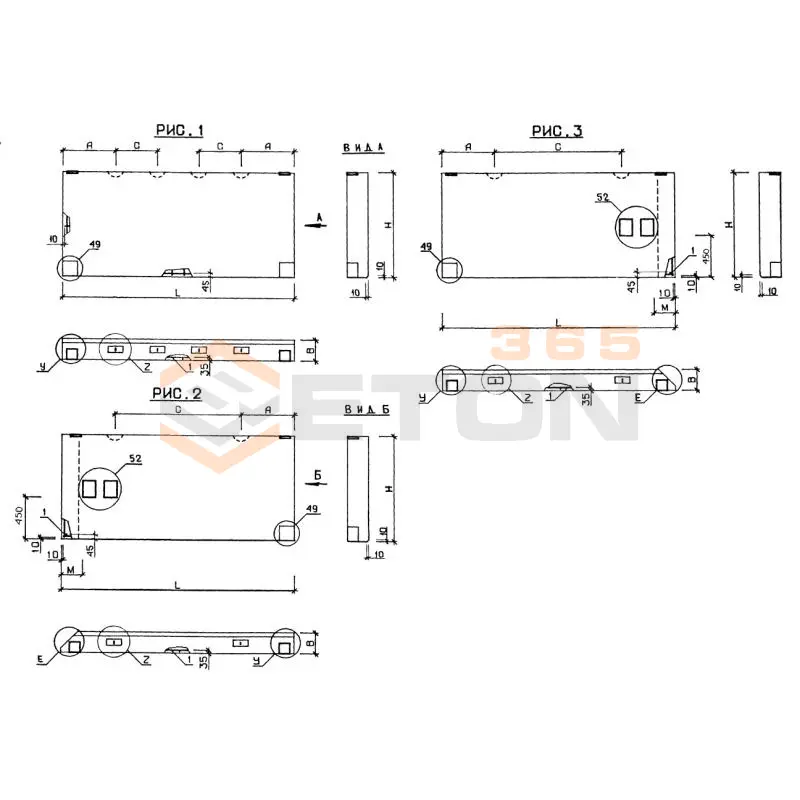
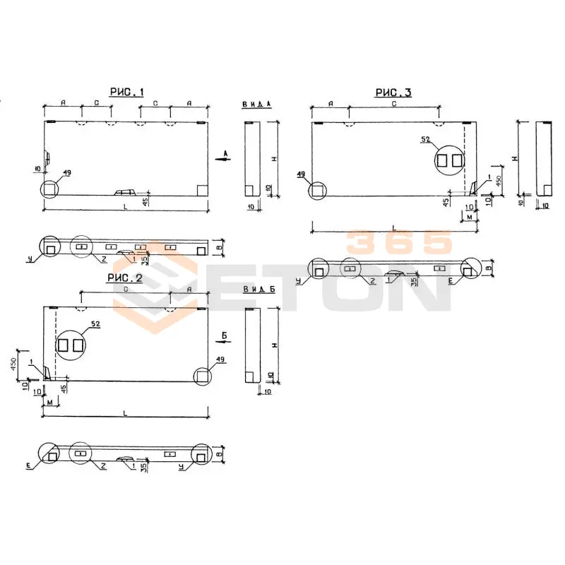
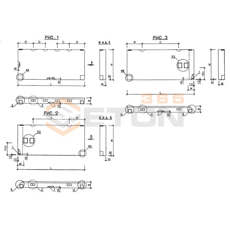
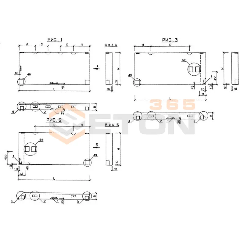
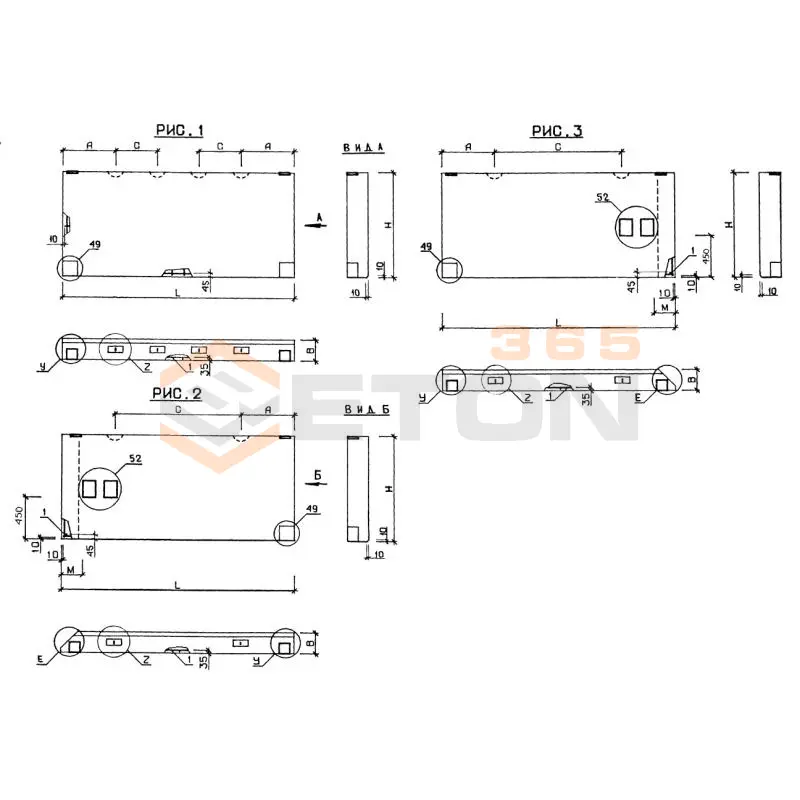
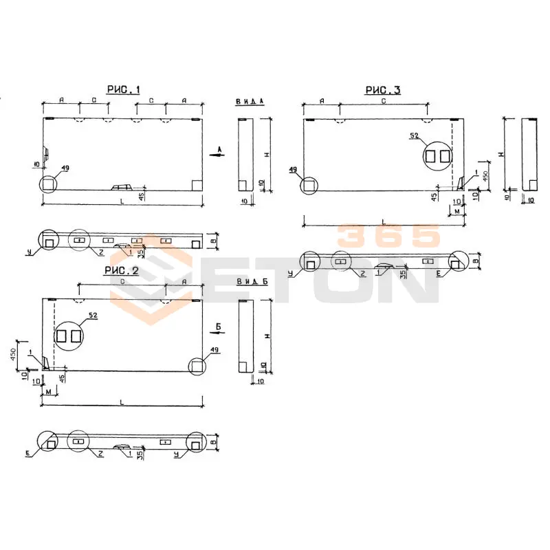
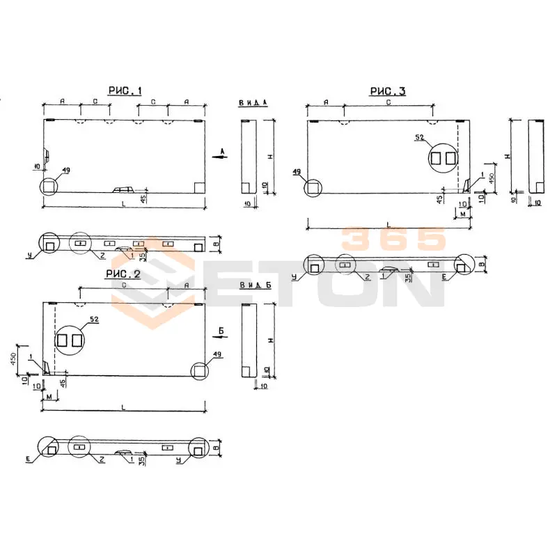
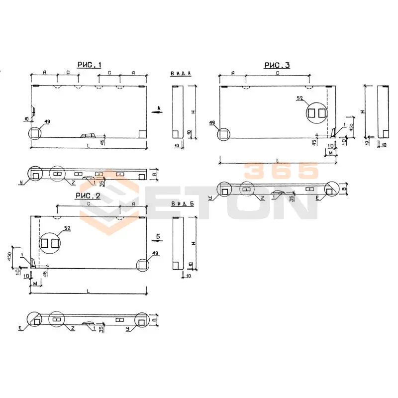
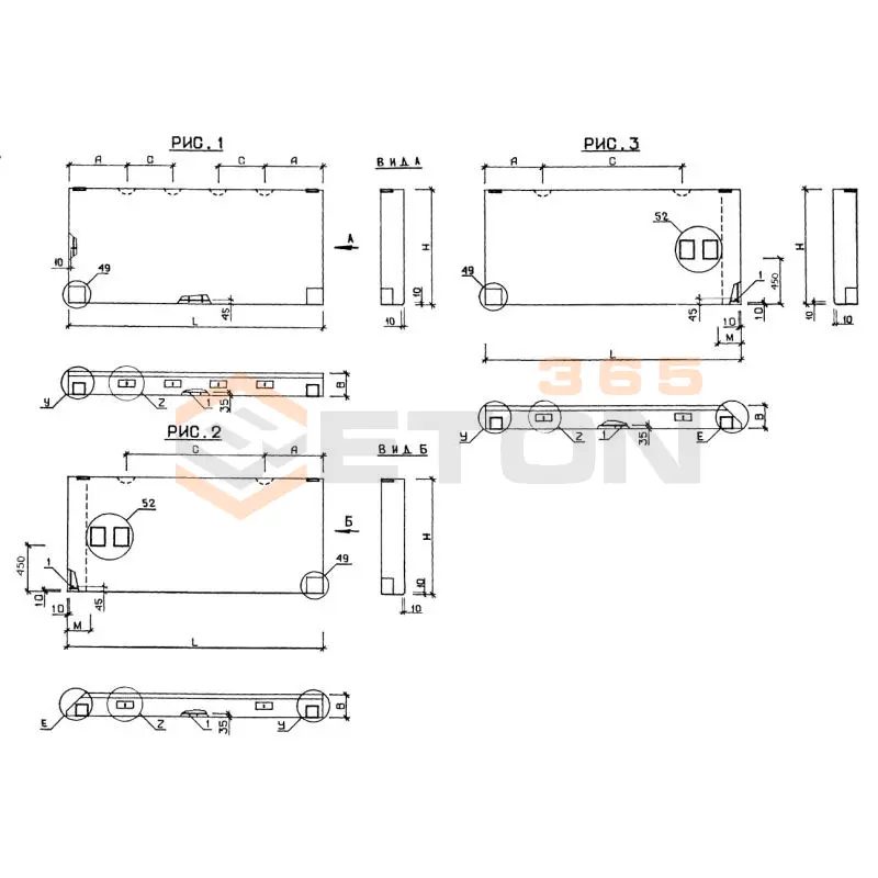
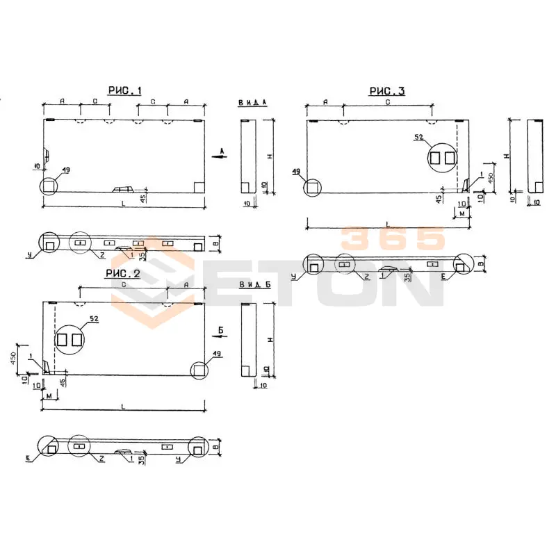
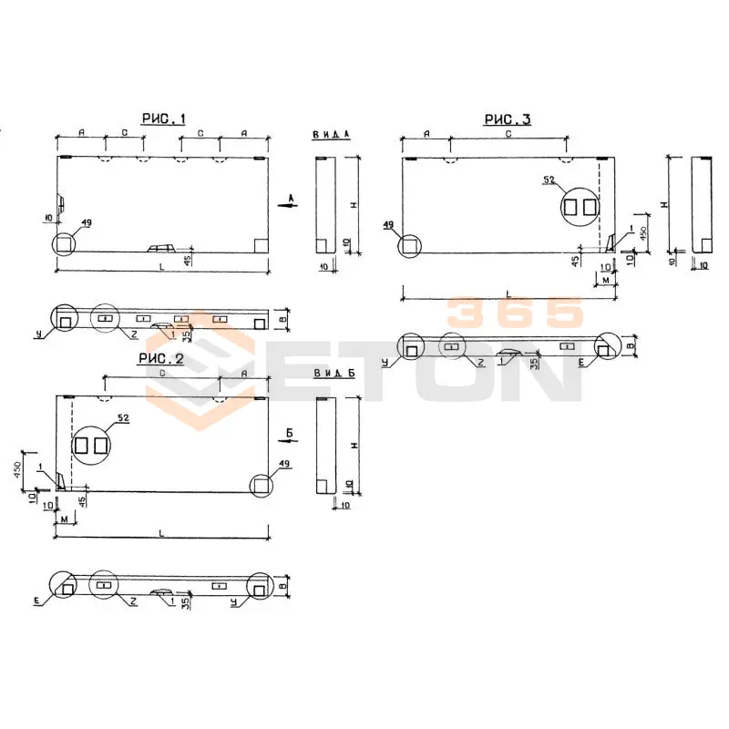
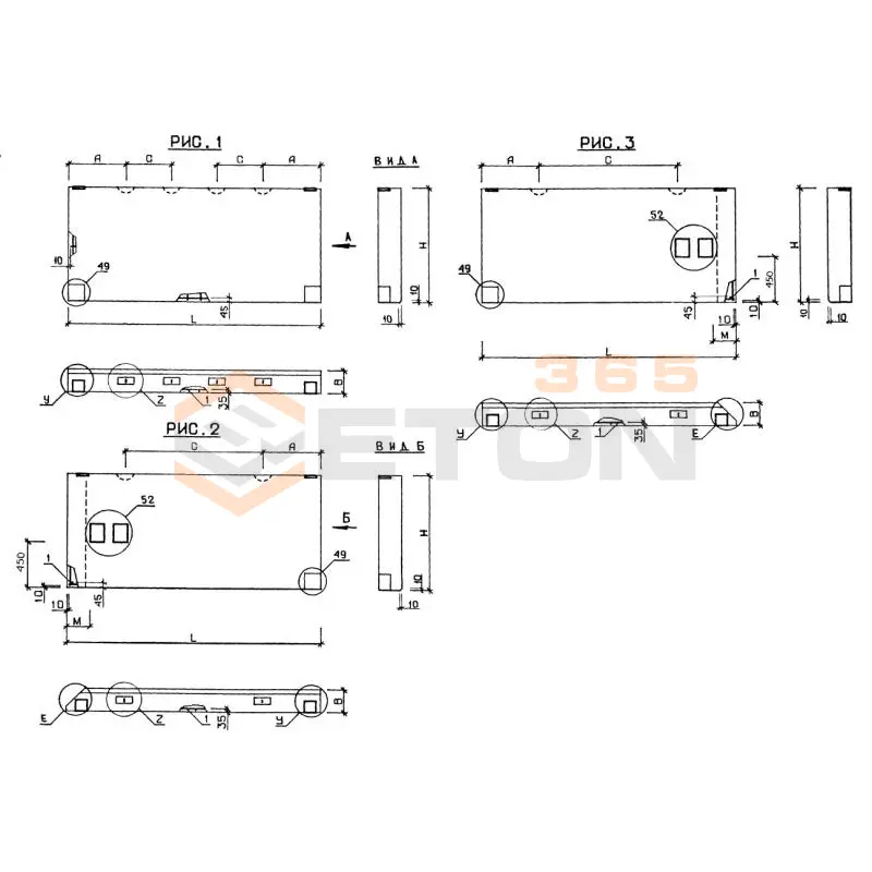
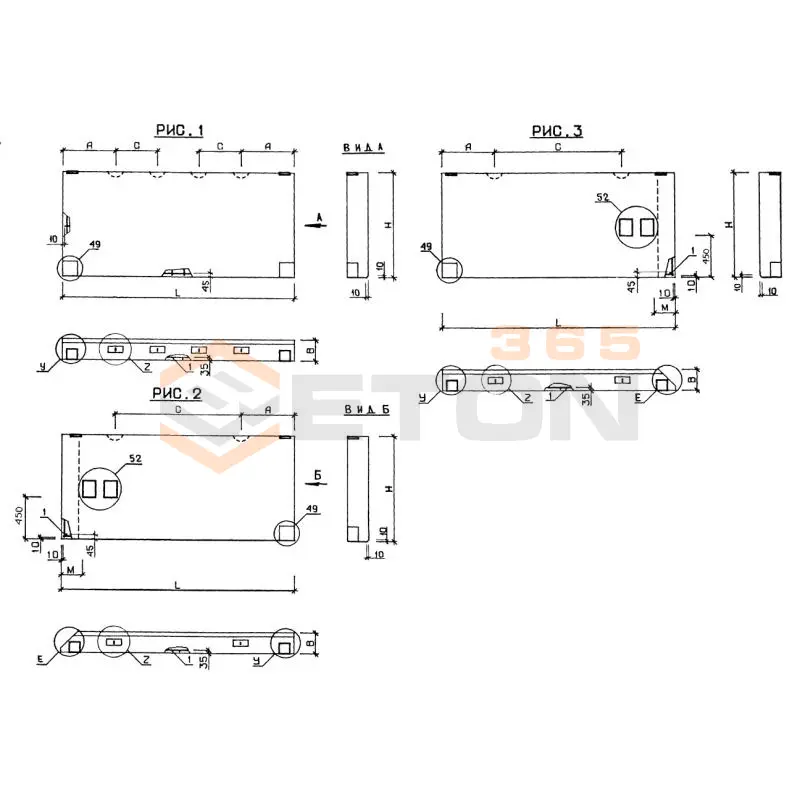
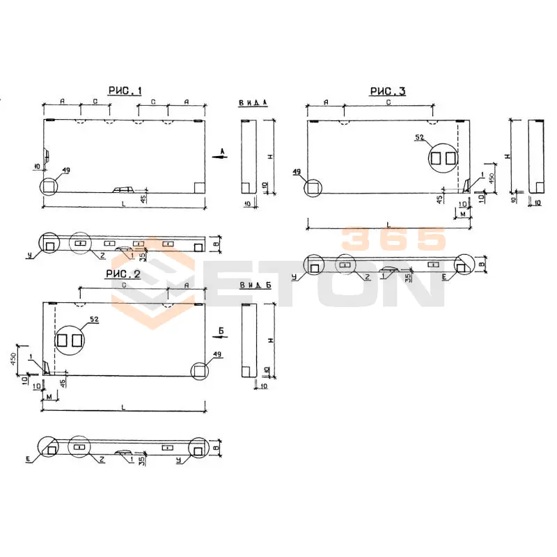
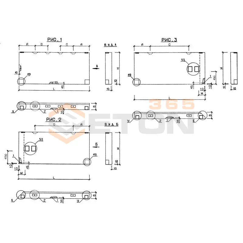
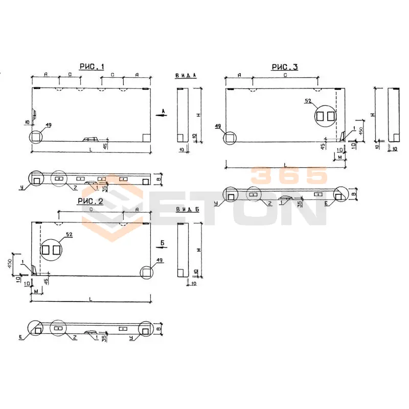
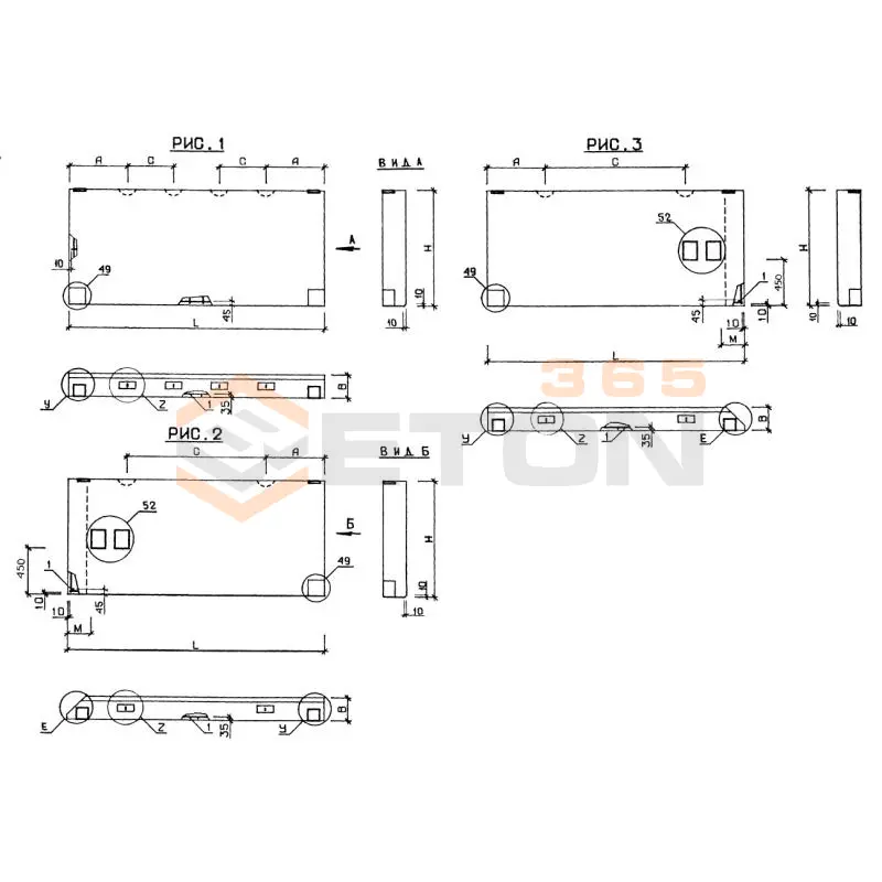
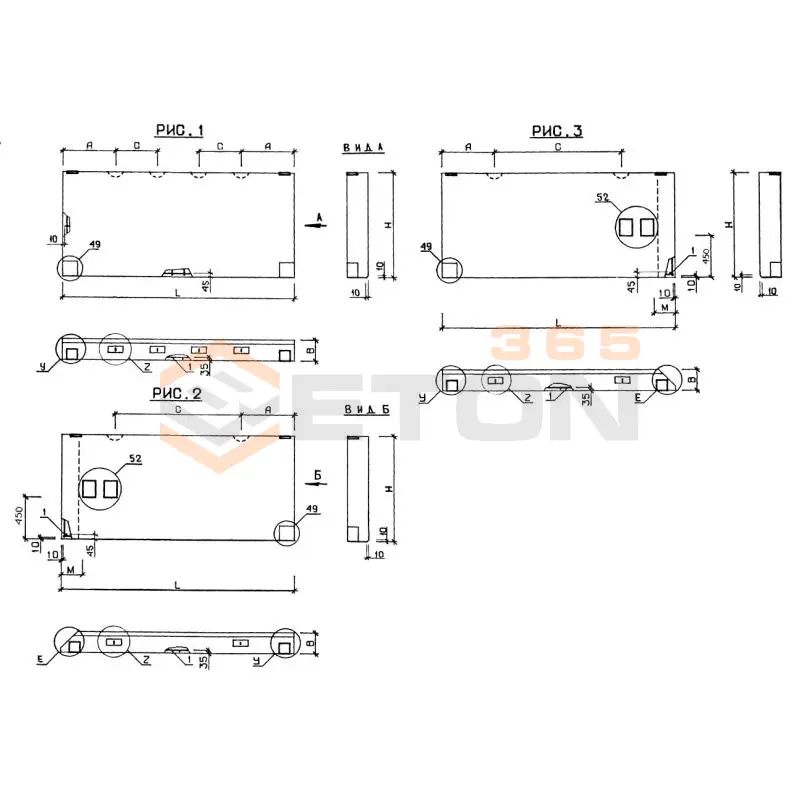
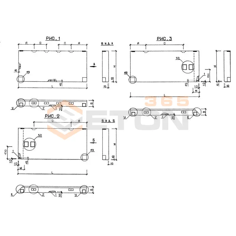
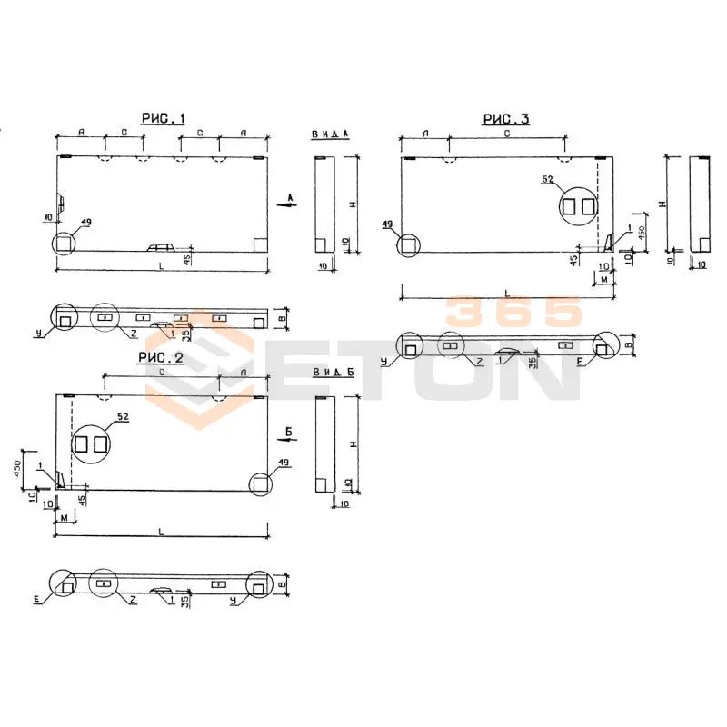
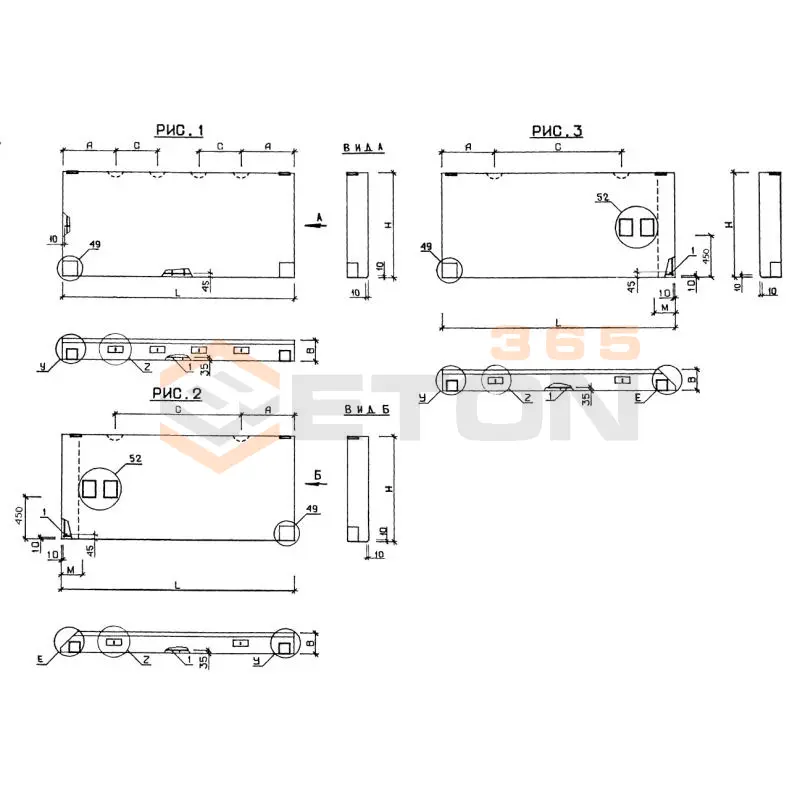
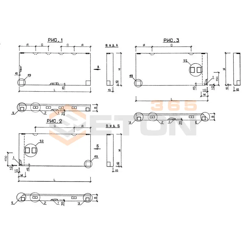
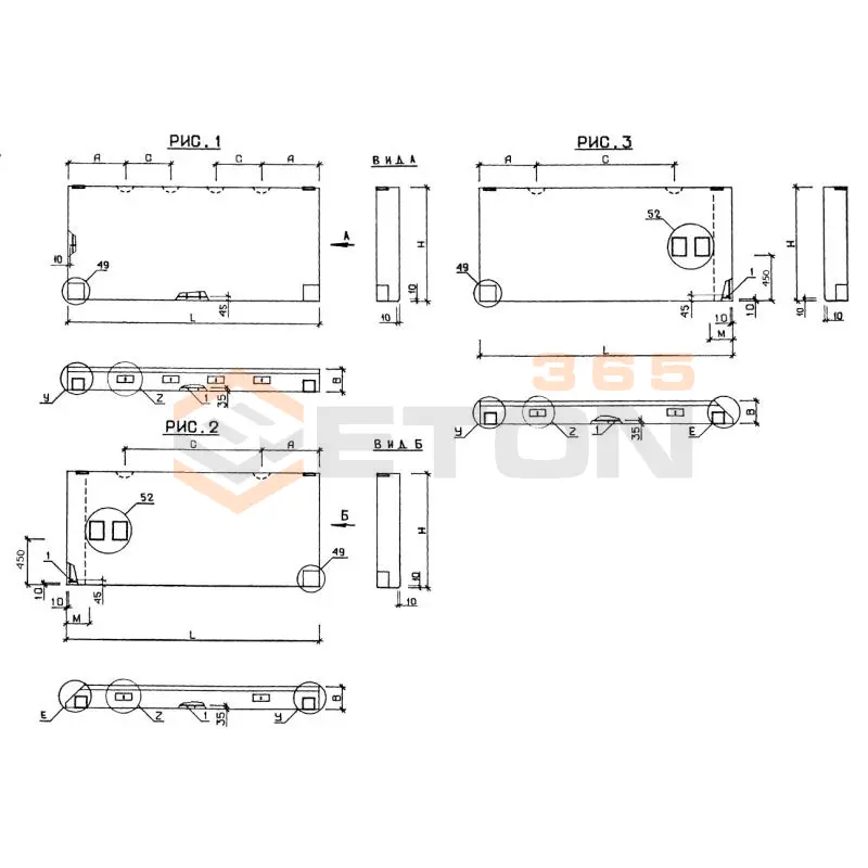
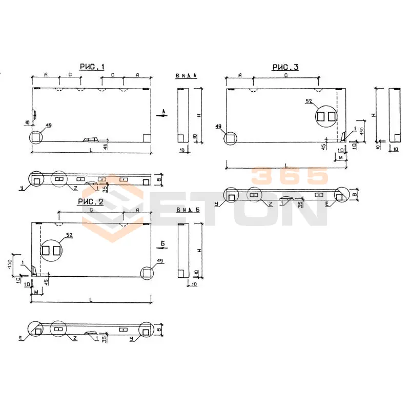
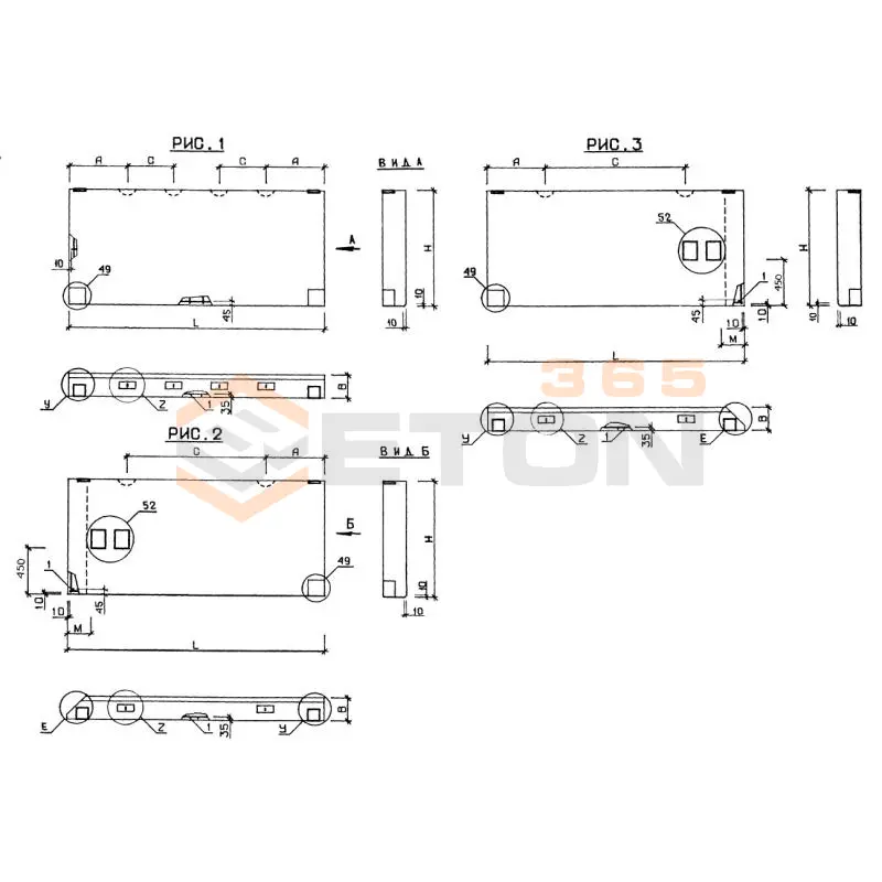
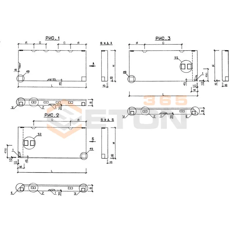
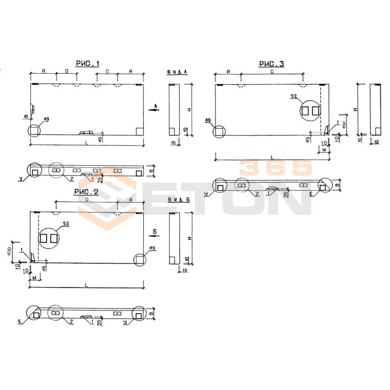
Документ Серия 1.020-1 описывает область применения, номенклатуру и ключевые требования, опираясь на действующие нормы и практику проектирования. Серия 1.020-1 была утверждена и введён в действие в действие в 1982 году. Основная сфера применения представленных в нормативном документе изделия и конструкции строительство многоэтажных общественных и производственных сооружений различного назначения. Конструкции могут использоваться в каркасах зданий, эксплуатируемых в I-V районах по весу снегового покрова, и в I-III районах по скоростному напору ветра.

Файлы для скачивания:
picture_as_pdf

5132.pdf

15,047.8 KB

скачать
picture_as_pdf

5133.pdf

6,425.3 KB

скачать
picture_as_pdf

5134.pdf

3,498.4 KB

скачать
picture_as_pdf

5135.pdf

1,671.6 KB

скачать
picture_as_pdf

5136.pdf

1,349.0 KB

скачать
picture_as_pdf

5137.pdf

4,207.9 KB

скачать
picture_as_pdf

5138.pdf

2,987.1 KB

скачать
picture_as_pdf

5139.pdf

3,084.1 KB

скачать
picture_as_pdf

5140.pdf

2,367.6 KB

скачать
picture_as_pdf

5141.pdf

15,273.6 KB

скачать
picture_as_pdf

5142.pdf

8,772.1 KB

скачать
picture_as_pdf

5143.pdf

2,657.8 KB

скачать
picture_as_pdf

5144.pdf

3,820.6 KB

скачать
picture_as_pdf

5145.pdf

2,582.1 KB

скачать
picture_as_pdf

5146.pdf

458.2 KB

скачать
picture_as_pdf

5147.pdf

2,632.5 KB

скачать
picture_as_pdf

5148.pdf

2,256.0 KB

скачать
picture_as_pdf

5149.pdf

4,462.8 KB

скачать
picture_as_pdf

5150.pdf

7,114.7 KB

скачать
picture_as_pdf

5151.pdf

2,123.7 KB

скачать
picture_as_pdf

5152.pdf

2,411.6 KB

скачать
picture_as_pdf

5153.pdf

4,130.7 KB

скачать
picture_as_pdf

5154.pdf

7,038.3 KB

скачать
picture_as_pdf

5155.pdf

3,708.3 KB

скачать
picture_as_pdf

5156.pdf

2,531.2 KB

скачать
picture_as_pdf

5157.pdf

7,912.0 KB

скачать
picture_as_pdf

5158.pdf

527.5 KB

скачать
picture_as_pdf

5159.pdf

1,839.8 KB

скачать
picture_as_pdf

5160.pdf

14,427.0 KB

скачать
picture_as_pdf

5161.pdf

7,287.7 KB

скачать
picture_as_pdf

5162.pdf

7,969.9 KB

скачать
picture_as_pdf

5163.pdf

4,921.3 KB

скачать
picture_as_pdf

5164.pdf

795.6 KB

скачать
picture_as_pdf

5165.pdf

3,814.1 KB

скачать
picture_as_pdf

5166.pdf

1,428.1 KB

скачать
picture_as_pdf

5167.pdf

3,315.5 KB

скачать
picture_as_pdf

5168.pdf

1,857.3 KB

скачать
picture_as_pdf

5169.pdf

2,135.8 KB

скачать
picture_as_pdf

5170.pdf

2,008.0 KB

скачать
picture_as_pdf

5171.pdf

1,781.6 KB

скачать
picture_as_pdf

5172.pdf

3,111.4 KB

скачать
picture_as_pdf

5173.pdf

5,321.1 KB

скачать
picture_as_pdf

5174.pdf

1,695.2 KB

скачать
Товары Серия 1.020-1 (60)
2ПСН 28-18-3,5 п (1.020-1)
Панели наружных стен навесные Серия 1.020-1
  • Длина 2750 мм.
  • Ширина 350 мм.
  • Высота 1785 мм.
  • Вес 1700 кг.
  • Объем бетона 1,443 м3
  • Геометрический объем 1,7181 м3
Цена: 48990 руб.
Подробнее
2ПСН 28-18-2,5 я (1.020-1)
Панели наружных стен навесные Серия 1.020-1
  • Длина 2750 мм.
  • Ширина 250 мм.
  • Высота 1785 мм.
  • Вес 1000 кг.
  • Объем бетона 1,165 м3
  • Геометрический объем 1,2272 м3
Цена: 39552 руб.
Подробнее
2ПСН 28-18-4,0 п (1.020-1)
Панели наружных стен навесные Серия 1.020-1
  • Длина 2750 мм.
  • Ширина 400 мм.
  • Высота 1785 мм.
  • Вес 1900 кг.
  • Объем бетона 1,657 м3
  • Геометрический объем 1,9635 м3
Цена: 56255 руб.
Подробнее
2ПСН 28-21-2,5 п (1.020-1)
Панели наружных стен навесные Серия 1.020-1
  • Длина 2750 мм.
  • Ширина 250 мм.
  • Высота 2085 мм.
  • Вес 1500 кг.
  • Объем бетона 1,172 м3
  • Геометрический объем 1,4334 м3
Цена: 39789 руб.
Подробнее
2ПСН 28-21-3,0 п (1.020-1)
Панели наружных стен навесные Серия 1.020-1
  • Длина 2750 мм.
  • Ширина 300 мм.
  • Высота 2085 мм.
  • Вес 1700 кг.
  • Объем бетона 1,432 м3
  • Геометрический объем 1,7201 м3
Цена: 48616 руб.
Подробнее
2ПСН 28-21-4,0 п (1.020-1)
Панели наружных стен навесные Серия 1.020-1
  • Длина 2750 мм.
  • Ширина 400 мм.
  • Высота 2085 мм.
  • Вес 2200 кг.
  • Объем бетона 1,936 м3
  • Геометрический объем 2,2935 м3
Цена: 65727 руб.
Подробнее
2ПСН 57-12-2,5 я (1.020-1)
Панели наружных стен навесные Серия 1.020-1
  • Длина 5700 мм.
  • Ширина 250 мм.
  • Высота 1185 мм.
  • Вес 1400 кг.
  • Объем бетона 1,645 м3
  • Геометрический объем 1,6886 м3
Цена: 55848 руб.
Подробнее
2ПСН 57-12-2,5 п (1.020-1)
Панели наружных стен навесные Серия 1.020-1
  • Длина 5700 мм.
  • Ширина 250 мм.
  • Высота 1185 мм.
  • Вес 1800 кг.
  • Объем бетона 1,415 м3
  • Геометрический объем 1,6886 м3
Цена: 48039 руб.
Подробнее
2ПСН 57-12-3,0 п (1.020-1)
Панели наружных стен навесные Серия 1.020-1
  • Длина 5700 мм.
  • Ширина 300 мм.
  • Высота 1185 мм.
  • Вес 2100 кг.
  • Объем бетона 1,737 м3
  • Геометрический объем 2,0263 м3
Цена: 58971 руб.
Подробнее
2ПСН 57-12-3,0 я (1.020-1)
Панели наружных стен навесные Серия 1.020-1
  • Длина 5700 мм.
  • Ширина 300 мм.
  • Высота 1185 мм.
  • Вес 1700 кг.
  • Объем бетона 1,967 м3
  • Геометрический объем 2,0263 м3
Цена: 66780 руб.
Подробнее
2ПСН 57-12-3,5 п (1.020-1)
Панели наружных стен навесные Серия 1.020-1
  • Длина 5700 мм.
  • Ширина 350 мм.
  • Высота 1185 мм.
  • Вес 2400 кг.
  • Объем бетона 2,057 м3
  • Геометрический объем 2,3641 м3
Цена: 69835 руб.
Подробнее
2ПСН 57-12-4,0 п (1.020-1)
Панели наружных стен навесные Серия 1.020-1
  • Длина 5700 мм.
  • Ширина 400 мм.
  • Высота 1185 мм.
  • Вес 2700 кг.
  • Объем бетона 2,374 м3
  • Геометрический объем 2,7018 м3
Цена: 80597 руб.
Подробнее
2ПСН 57-13-2,5 я (1.020-1)
Панели наружных стен навесные Серия 1.020-1
  • Длина 5700 мм.
  • Ширина 250 мм.
  • Высота 1285 мм.
  • Вес 1500 кг.
  • Объем бетона 1,782 м3
  • Геометрический объем 1,8311 м3
Цена: 60499 руб.
Подробнее
2ПСН 57-13-3,0 п (1.020-1)
Панели наружных стен навесные Серия 1.020-1
  • Длина 5700 мм.
  • Ширина 300 мм.
  • Высота 1285 мм.
  • Вес 2300 кг.
  • Объем бетона 1,882 м3
  • Геометрический объем 2,1974 м3
Цена: 63894 руб.
Подробнее
2ПСН 57-13-3,0 я (1.020-1)
Панели наружных стен навесные Серия 1.020-1
  • Длина 5700 мм.
  • Ширина 300 мм.
  • Высота 1285 мм.
  • Вес 1800 кг.
  • Объем бетона 2,131 м3
  • Геометрический объем 2,1974 м3
Цена: 72347 руб.
Подробнее
2ПСН 57-13-2,5 п (1.020-1)
Панели наружных стен навесные Серия 1.020-1
  • Длина 5700 мм.
  • Ширина 250 мм.
  • Высота 1285 мм.
  • Вес 1900 кг.
  • Объем бетона 1,532 м3
  • Геометрический объем 1,8311 м3
Цена: 52011 руб.
Подробнее
2ПСН 57-13-3,5 п (1.020-1)
Панели наружных стен навесные Серия 1.020-1
  • Длина 5700 мм.
  • Ширина 350 мм.
  • Высота 1285 мм.
  • Вес 2600 кг.
  • Объем бетона 2,229 м3
  • Геометрический объем 2,5636 м3
Цена: 75675 руб.
Подробнее
2ПСН 57-15-2,5 п (1.020-1)
Панели наружных стен навесные Серия 1.020-1
  • Длина 5700 мм.
  • Ширина 250 мм.
  • Высота 1485 мм.
  • Вес 2300 кг.
  • Объем бетона 1,775 м3
  • Геометрический объем 2,1161 м3
Цена: 60261 руб.
Подробнее
2ПСН 57-15-3,0 п (1.020-1)
Панели наружных стен навесные Серия 1.020-1
  • Длина 5700 мм.
  • Ширина 300 мм.
  • Высота 1485 мм.
  • Вес 2600 кг.
  • Объем бетона 2,179 м3
  • Геометрический объем 2,5394 м3
Цена: 73977 руб.
Подробнее
2ПСН 57-15-2,5 я (1.020-1)
Панели наружных стен навесные Серия 1.020-1
  • Длина 5700 мм.
  • Ширина 250 мм.
  • Высота 1485 мм.
  • Вес 1800 кг.
  • Объем бетона 2,063 м3
  • Геометрический объем 2,1161 м3
Цена: 70039 руб.
Подробнее
2ПСН 57-13-4,0 п (1.020-1)
Панели наружных стен навесные Серия 1.020-1
  • Длина 5700 мм.
  • Ширина 400 мм.
  • Высота 1285 мм.
  • Вес 2900 кг.
  • Объем бетона 2,572 м3
  • Геометрический объем 2,9298 м3
Цена: 87319 руб.
Подробнее
2ПСН 57-15-3,0 я (1.020-1)
Панели наружных стен навесные Серия 1.020-1
  • Длина 5700 мм.
  • Ширина 300 мм.
  • Высота 1485 мм.
  • Вес 2100 кг.
  • Объем бетона 2,466 м3
  • Геометрический объем 2,5394 м3
Цена: 83721 руб.
Подробнее
2ПСН 57-15-3,5 п (1.020-1)
Панели наружных стен навесные Серия 1.020-1
  • Длина 5700 мм.
  • Ширина 350 мм.
  • Высота 1485 мм.
  • Вес 3000 кг.
  • Объем бетона 2,579 м3
  • Геометрический объем 2,9626 м3
Цена: 87557 руб.
Подробнее
2ПСН 57-15-4,0 п (1.020-1)
Панели наружных стен навесные Серия 1.020-1
  • Длина 5700 мм.
  • Ширина 400 мм.
  • Высота 1485 мм.
  • Вес 3400 кг.
  • Объем бетона 2,976 м3
  • Геометрический объем 3,3858 м3
Цена: 101035 руб.
Подробнее
2ПСН 57-18-2,5 п (1.020-1)
Панели наружных стен навесные Серия 1.020-1
  • Длина 5700 мм.
  • Ширина 250 мм.
  • Высота 1785 мм.
  • Вес 2700 кг.
  • Объем бетона 2,134 м3
  • Геометрический объем 2,5436 м3
Цена: 72449 руб.
Подробнее
2ПСН 57-18-3,0 п (1.020-1)
Панели наружных стен навесные Серия 1.020-1
  • Длина 5700 мм.
  • Ширина 300 мм.
  • Высота 1785 мм.
  • Вес 3200 кг.
  • Объем бетона 2,62 м3
  • Геометрический объем 3,0524 м3
Цена: 88949 руб.
Подробнее
2ПСН 57-18-3,0 я (1.020-1)
Панели наружных стен навесные Серия 1.020-1
  • Длина 5700 мм.
  • Ширина 300 мм.
  • Высота 1785 мм.
  • Вес 2500 кг.
  • Объем бетона 2,966 м3
  • Геометрический объем 3,0524 м3
Цена: 100696 руб.
Подробнее
2ПСН 57-18-2,5 я (1.020-1)
Панели наружных стен навесные Серия 1.020-1
  • Длина 5700 мм.
  • Ширина 250 мм.
  • Высота 1785 мм.
  • Вес 2100 кг.
  • Объем бетона 2,482 м3
  • Геометрический объем 2,5436 м3
Цена: 84264 руб.
Подробнее
2ПСН 57-18-3,5 п (1.020-1)
Панели наружных стен навесные Серия 1.020-1
  • Длина 5700 мм.
  • Ширина 350 мм.
  • Высота 1785 мм.
  • Вес 3600 кг.
  • Объем бетона 3,103 м3
  • Геометрический объем 3,5611 м3
Цена: 105347 руб.
Подробнее
2ПСН 57-18-4,0 п (1.020-1)
Панели наружных стен навесные Серия 1.020-1
  • Длина 5700 мм.
  • Ширина 400 мм.
  • Высота 1785 мм.
  • Вес 4100 кг.
  • Объем бетона 3,579 м3
  • Геометрический объем 4,0698 м3
Цена: 121507 руб.
Подробнее
2ПСН 57-21-3,0 п (1.020-1)
Панели наружных стен навесные Серия 1.020-1
  • Длина 5700 мм.
  • Ширина 300 мм.
  • Высота 2085 мм.
  • Вес 3700 кг.
  • Объем бетона 3,062 м3
  • Геометрический объем 3,5654 м3
Цена: 103955 руб.
Подробнее
2ПСН 57-21-2,5 п (1.020-1)
Панели наружных стен навесные Серия 1.020-1
  • Длина 5700 мм.
  • Ширина 250 мм.
  • Высота 2085 мм.
  • Вес 3200 кг.
  • Объем бетона 2,494 м3
  • Геометрический объем 2,9711 м3
Цена: 84671 руб.
Подробнее
2ПСН 57-21-3,5 п (1.020-1)
Панели наружных стен навесные Серия 1.020-1
  • Длина 5700 мм.
  • Ширина 350 мм.
  • Высота 2085 мм.
  • Вес 4200 кг.
  • Объем бетона 3,624 м3
  • Геометрический объем 4,1596 м3
Цена: 123035 руб.
Подробнее
2ПСН 57-21-4,0 п (1.020-1)
Панели наружных стен навесные Серия 1.020-1
  • Длина 5700 мм.
  • Ширина 400 мм.
  • Высота 2085 мм.
  • Вес 4800 кг.
  • Объем бетона 4,181 м3
  • Геометрический объем 4,7538 м3
Цена: 141945 руб.
Подробнее
2ПСН 58-12-2,5 я (1.020-1)
Панели наружных стен навесные Серия 1.020-1
  • Длина 5750 мм.
  • Ширина 250 мм.
  • Высота 1185 мм.
  • Вес 1400 кг.
  • Объем бетона 1,66 м3
  • Геометрический объем 1,7034 м3
Цена: 56357 руб.
Подробнее
2ПСН 58-12-2,5 п (1.020-1)
Панели наружных стен навесные Серия 1.020-1
  • Длина 5750 мм.
  • Ширина 250 мм.
  • Высота 1185 мм.
  • Вес 1800 кг.
  • Объем бетона 1,428 м3
  • Геометрический объем 1,7034 м3
Цена: 48481 руб.
Подробнее
2ПСН 58-12-3,0 п (1.020-1)
Панели наружных стен навесные Серия 1.020-1
  • Длина 5750 мм.
  • Ширина 300 мм.
  • Высота 1185 мм.
  • Вес 2100 кг.
  • Объем бетона 1,753 м3
  • Геометрический объем 2,0441 м3
Цена: 59514 руб.
Подробнее
2ПСН 58-12-3,0 я (1.020-1)
Панели наружных стен навесные Серия 1.020-1
  • Длина 5750 мм.
  • Ширина 300 мм.
  • Высота 1185 мм.
  • Вес 1700 кг.
  • Объем бетона 1,984 м3
  • Геометрический объем 2,0441 м3
Цена: 67357 руб.
Подробнее
2ПСН 58-12-4,0 п (1.020-1)
Панели наружных стен навесные Серия 1.020-1
  • Длина 5750 мм.
  • Ширина 400 мм.
  • Высота 1185 мм.
  • Вес 2700 кг.
  • Объем бетона 2,395 м3
  • Геометрический объем 2,7255 м3
Цена: 81310 руб.
Подробнее
2ПСН 58-12-3,5 п (1.020-1)
Панели наружных стен навесные Серия 1.020-1
  • Длина 5750 мм.
  • Ширина 350 мм.
  • Высота 1185 мм.
  • Вес 2400 кг.
  • Объем бетона 2,076 м3
  • Геометрический объем 2,3848 м3
Цена: 70480 руб.
Подробнее
2ПСН 58-13-2,5 я (1.020-1)
Панели наружных стен навесные Серия 1.020-1
  • Длина 5750 мм.
  • Ширина 250 мм.
  • Высота 1285 мм.
  • Вес 1500 кг.
  • Объем бетона 1,798 м3
  • Геометрический объем 1,8472 м3
Цена: 61042 руб.
Подробнее
2ПСН 58-13-2,5 п (1.020-1)
Панели наружных стен навесные Серия 1.020-1
  • Длина 5750 мм.
  • Ширина 250 мм.
  • Высота 1285 мм.
  • Вес 2000 кг.
  • Объем бетона 1,546 м3
  • Геометрический объем 1,8472 м3
Цена: 52487 руб.
Подробнее
2ПСН 58-13-3,0 п (1.020-1)
Панели наружных стен навесные Серия 1.020-1
  • Длина 5750 мм.
  • Ширина 300 мм.
  • Высота 1285 мм.
  • Вес 2300 кг.
  • Объем бетона 1,899 м3
  • Геометрический объем 2,2166 м3
Цена: 64471 руб.
Подробнее
2ПСН 58-13-3,0 я (1.020-1)
Панели наружных стен навесные Серия 1.020-1
  • Длина 5750 мм.
  • Ширина 300 мм.
  • Высота 1285 мм.
  • Вес 1800 кг.
  • Объем бетона 2,15 м3
  • Геометрический объем 2,2166 м3
Цена: 72993 руб.
Подробнее
2ПСН 58-13-3,5 п (1.020-1)
Панели наружных стен навесные Серия 1.020-1
  • Длина 5750 мм.
  • Ширина 350 мм.
  • Высота 1285 мм.
  • Вес 2600 кг.
  • Объем бетона 2,249 м3
  • Геометрический объем 2,5861 м3
Цена: 76354 руб.
Подробнее
2ПСН 58-13-4,0 п (1.020-1)
Панели наружных стен навесные Серия 1.020-1
  • Длина 5750 мм.
  • Ширина 400 мм.
  • Высота 1285 мм.
  • Вес 3000 кг.
  • Объем бетона 2,596 м3
  • Геометрический объем 2,9555 м3
Цена: 88134 руб.
Подробнее
2ПСН 58-15-2,5 я (1.020-1)
Панели наружных стен навесные Серия 1.020-1
  • Длина 5750 мм.
  • Ширина 250 мм.
  • Высота 1485 мм.
  • Вес 1800 кг.
  • Объем бетона 2,082 м3
  • Геометрический объем 2,1347 м3
Цена: 70684 руб.
Подробнее
2ПСН 58-15-3,0 п (1.020-1)
Панели наружных стен навесные Серия 1.020-1
  • Длина 5750 мм.
  • Ширина 300 мм.
  • Высота 1485 мм.
  • Вес 2700 кг.
  • Объем бетона 2,198 м3
  • Геометрический объем 2,5616 м3
Цена: 74622 руб.
Подробнее
2ПСН 58-15-2,5 п (1.020-1)
Панели наружных стен навесные Серия 1.020-1
  • Длина 5750 мм.
  • Ширина 250 мм.
  • Высота 1485 мм.
  • Вес 2300 кг.
  • Объем бетона 1,791 м3
  • Геометрический объем 2,1347 м3
Цена: 60804 руб.
Подробнее
2ПСН 58-15-3,0 я (1.020-1)
Панели наружных стен навесные Серия 1.020-1
  • Длина 5750 мм.
  • Ширина 300 мм.
  • Высота 1485 мм.
  • Вес 2500 кг.
  • Объем бетона 2,992 м3
  • Геометрический объем 2,5616 м3
Цена: 101578 руб.
Подробнее
2ПСН 58-15-3,5 п (1.020-1)
Панели наружных стен навесные Серия 1.020-1
  • Длина 5750 мм.
  • Ширина 350 мм.
  • Высота 1485 мм.
  • Вес 3000 кг.
  • Объем бетона 2,603 м3
  • Геометрический объем 2,9886 м3
Цена: 88372 руб.
Подробнее
2ПСН 58-15-4,0 п (1.020-1)
Панели наружных стен навесные Серия 1.020-1
  • Длина 5750 мм.
  • Ширина 400 мм.
  • Высота 1485 мм.
  • Вес 3400 кг.
  • Объем бетона 3,003 м3
  • Геометрический объем 3,4155 м3
Цена: 101952 руб.
Подробнее
2ПСН 58-18-2,5 п (1.020-1)
Панели наружных стен навесные Серия 1.020-1
  • Длина 5750 мм.
  • Ширина 250 мм.
  • Высота 1785 мм.
  • Вес 2700 кг.
  • Объем бетона 2,154 м3
  • Геометрический объем 2,5659 м3
Цена: 73128 руб.
Подробнее
2ПСН 58-18-3,0 п (1.020-1)
Панели наружных стен навесные Серия 1.020-1
  • Длина 5750 мм.
  • Ширина 300 мм.
  • Высота 1785 мм.
  • Вес 3200 кг.
  • Объем бетона 2,664 м3
  • Геометрический объем 3,0791 м3
Цена: 90443 руб.
Подробнее
2ПСН 58-18-3,0 я (1.020-1)
Панели наружных стен навесные Серия 1.020-1
  • Длина 5750 мм.
  • Ширина 300 мм.
  • Высота 1785 мм.
  • Вес 3200 кг.
  • Объем бетона 2,664 м3
  • Геометрический объем 3,0791 м3
Цена: 90443 руб.
Подробнее
2ПСН 58-18-2,5 я (1.020-1)
Панели наружных стен навесные Серия 1.020-1
  • Длина 5750 мм.
  • Ширина 250 мм.
  • Высота 1785 мм.
  • Вес 2100 кг.
  • Объем бетона 2,504 м3
  • Геометрический объем 2,5659 м3
Цена: 85011 руб.
Подробнее
2ПСН 58-18-3,5 п (1.020-1)
Панели наружных стен навесные Серия 1.020-1
  • Длина 5750 мм.
  • Ширина 350 мм.
  • Высота 1785 мм.
  • Вес 3600 кг.
  • Объем бетона 3,13 м3
  • Геометрический объем 3,5923 м3
Цена: 106264 руб.
Подробнее
2ПСН 58-18-4,0 п (1.020-1)
Панели наружных стен навесные Серия 1.020-1
  • Длина 5750 мм.
  • Ширина 400 мм.
  • Высота 1785 мм.
  • Вес 4100 кг.
  • Объем бетона 3,611 м3
  • Геометрический объем 4,1055 м3
Цена: 122593 руб.
Подробнее
2ПСН 58-21-2,5 п (1.020-1)
Панели наружных стен навесные Серия 1.020-1
  • Длина 5750 мм.
  • Ширина 250 мм.
  • Высота 2085 мм.
  • Вес 3200 кг.
  • Объем бетона 2,517 м3
  • Геометрический объем 2,9972 м3
Цена: 85452 руб.
Подробнее
2ПСН 58-21-4,0 п (1.020-1)
Панели наружных стен навесные Серия 1.020-1
  • Длина 5750 мм.
  • Ширина 400 мм.
  • Высота 2085 мм.
  • Вес 4800 кг.
  • Объем бетона 4,219 м3
  • Геометрический объем 4,7955 м3
Цена: 143235 руб.
Подробнее

Уведомление о файлах cookie

Мы используем файлы cookie для улучшения вашего опыта просмотра и анализа трафика. Нажимая "Принять все", вы соглашаетесь с нашей политикой конфиденциальности и политикой обработки файлов cookie.

Дзен Телеграм Вконтакте vk