mobile_sound +7 (930) 655-55-90

Типовые конструкции и железобетонные изделия. Рабочие чертежи (Серия 1.020-1)

Поделиться:
Поделиться:

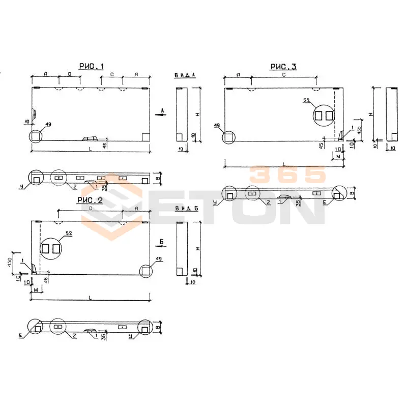
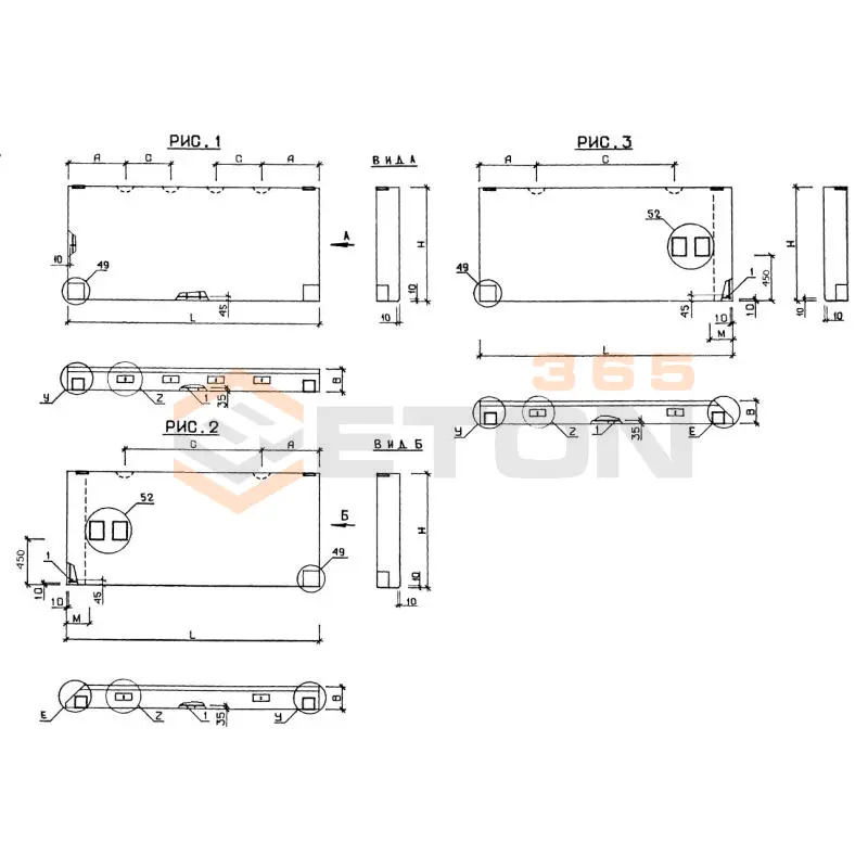
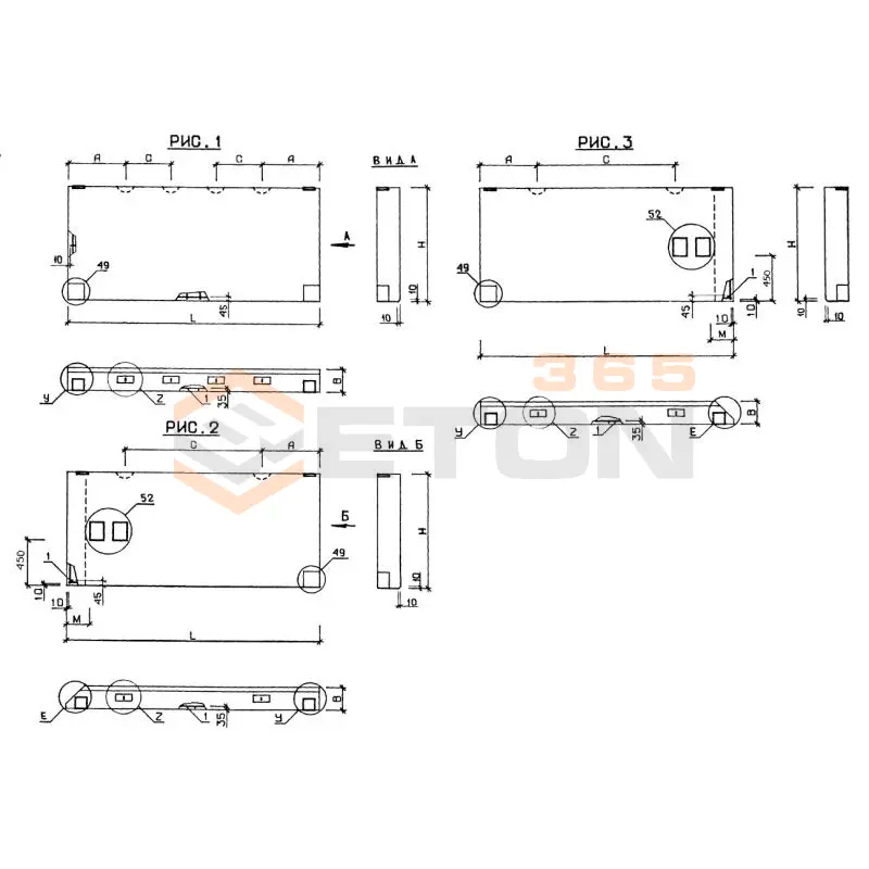
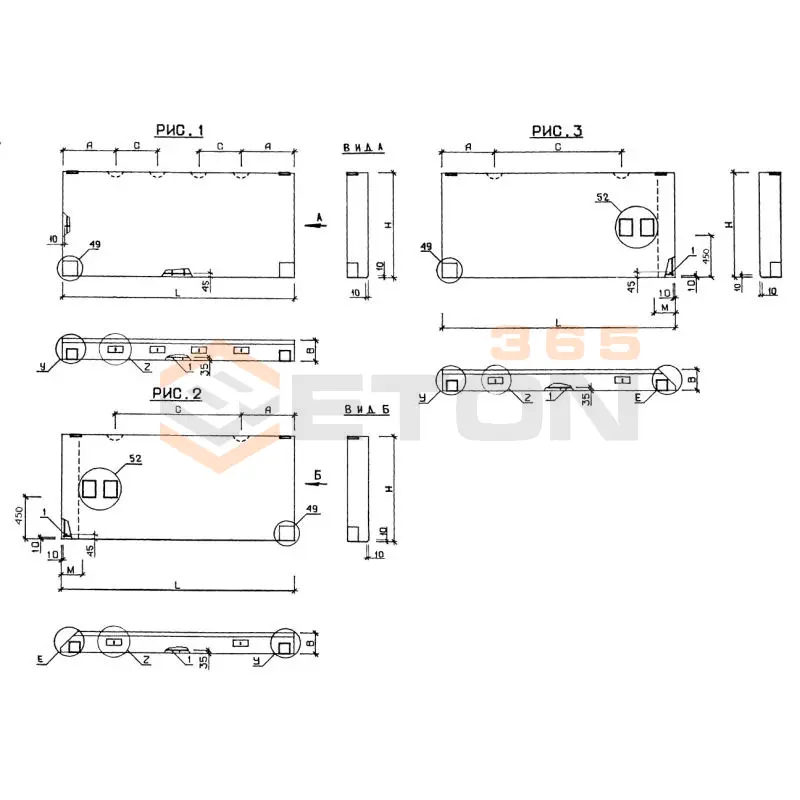
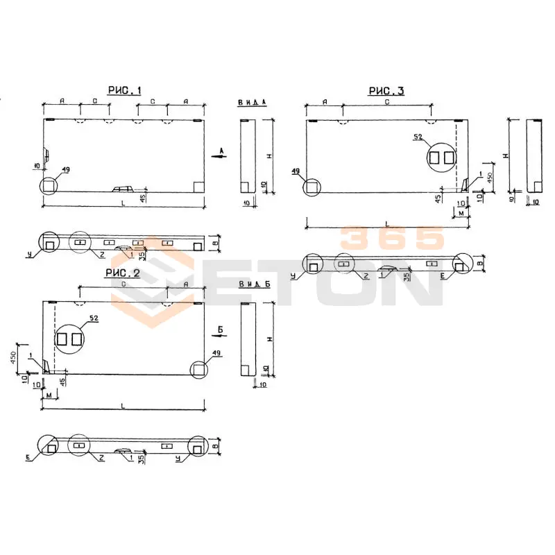
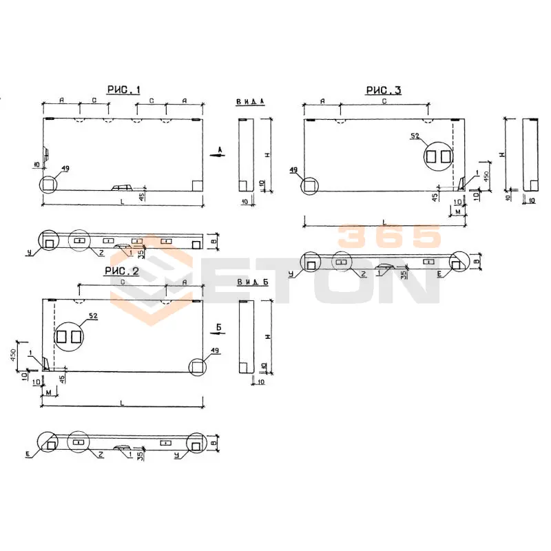
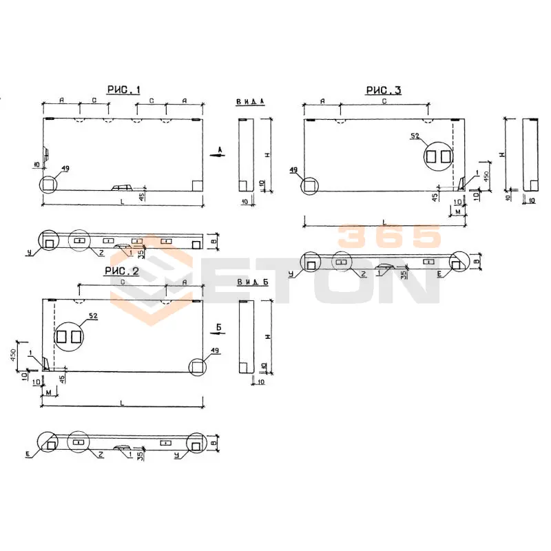
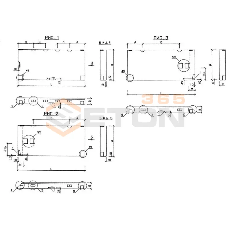
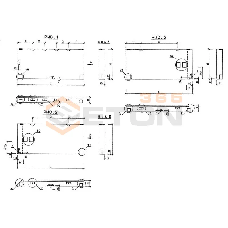
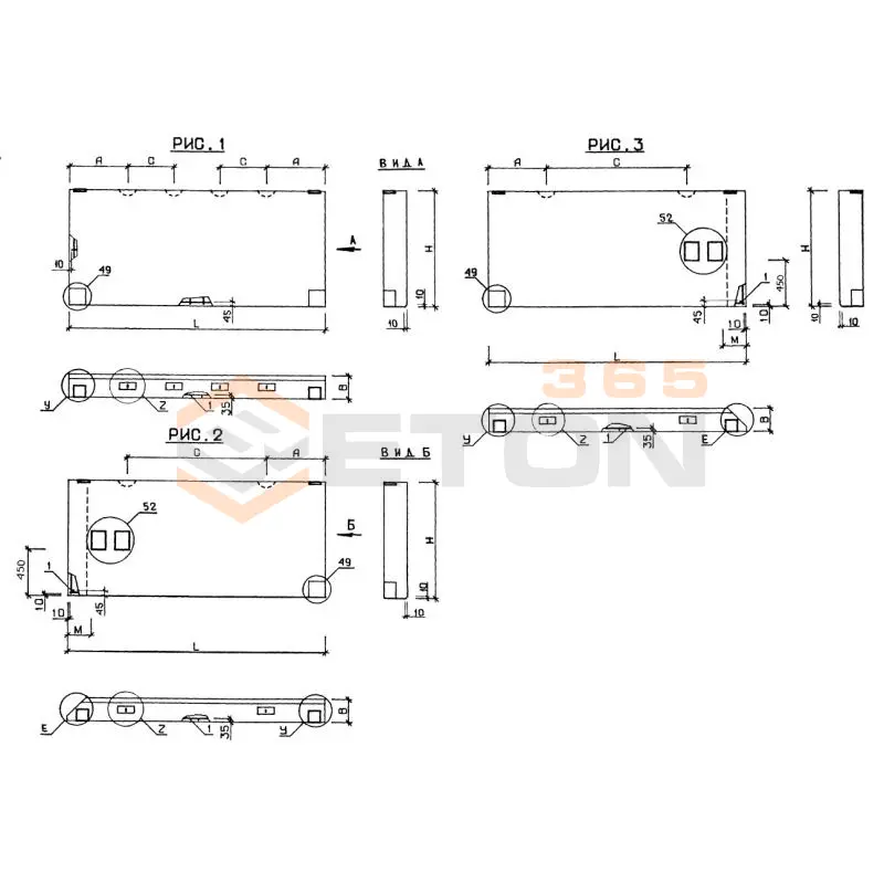
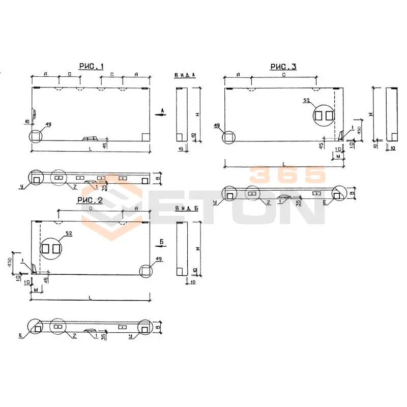
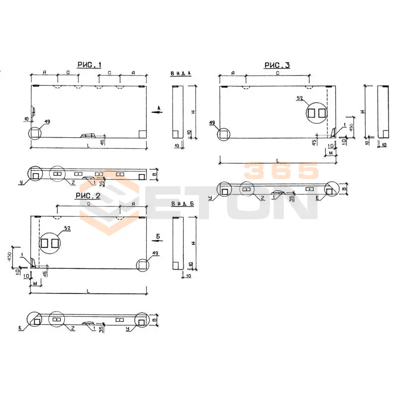
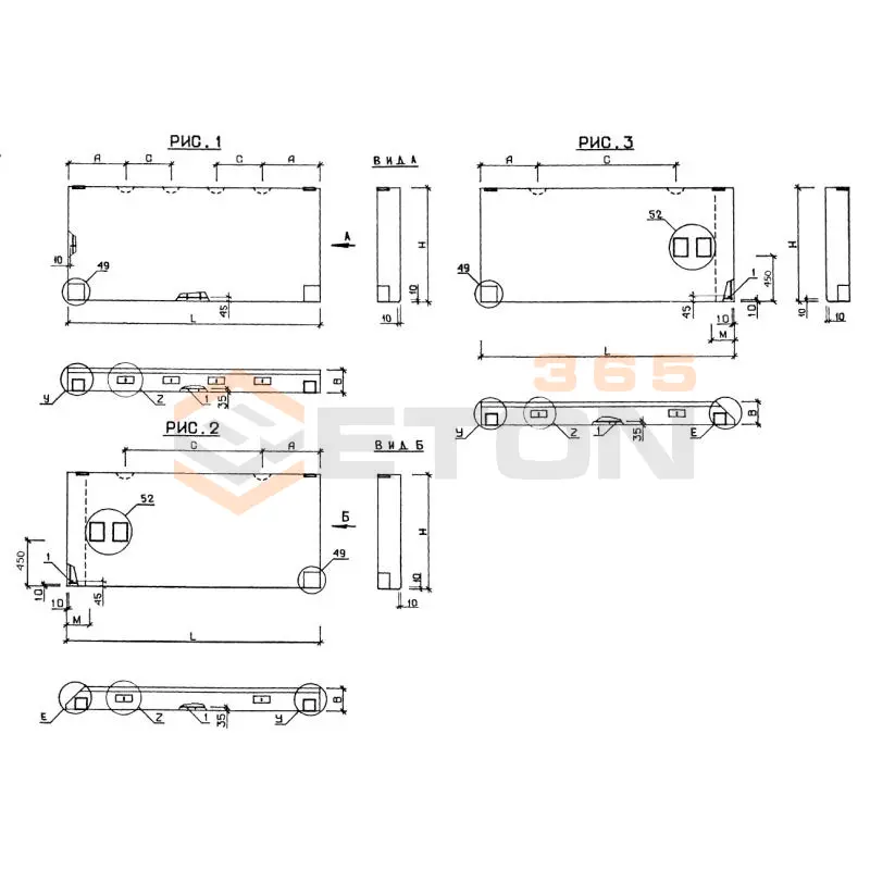
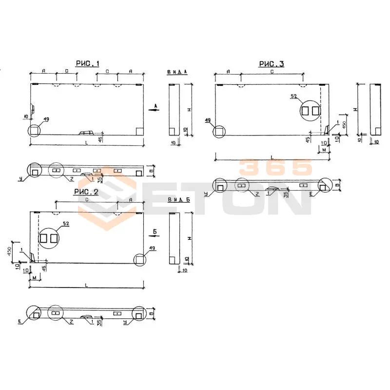
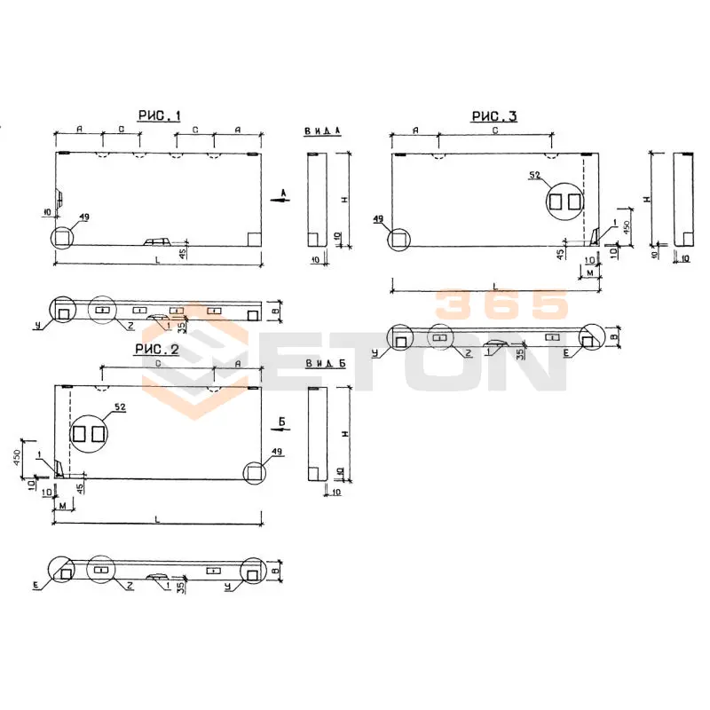
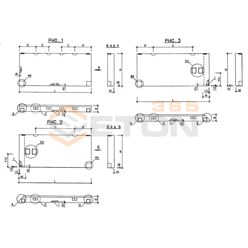
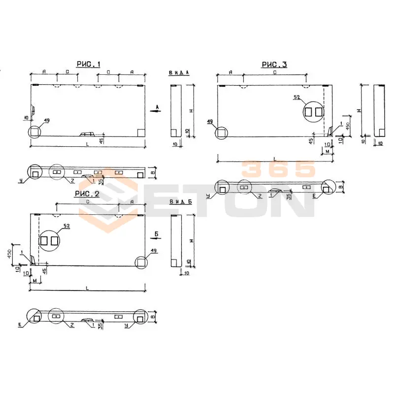
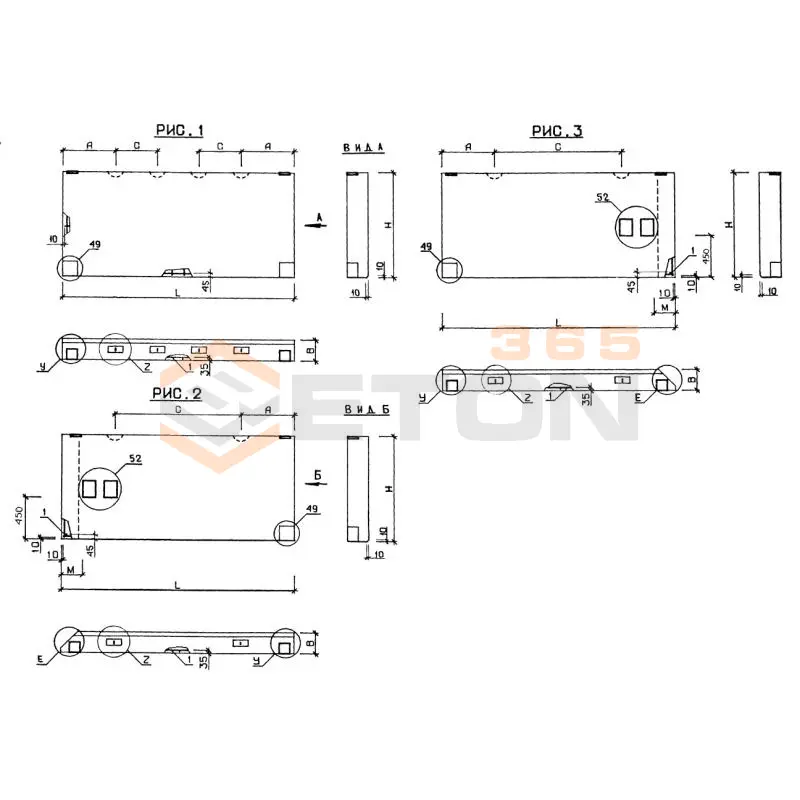
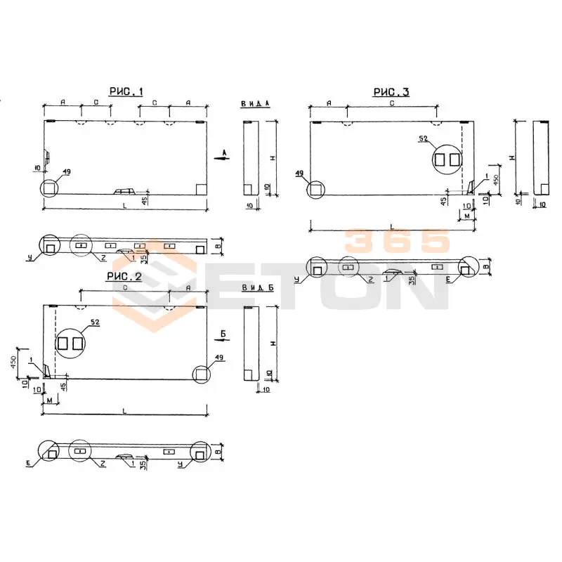
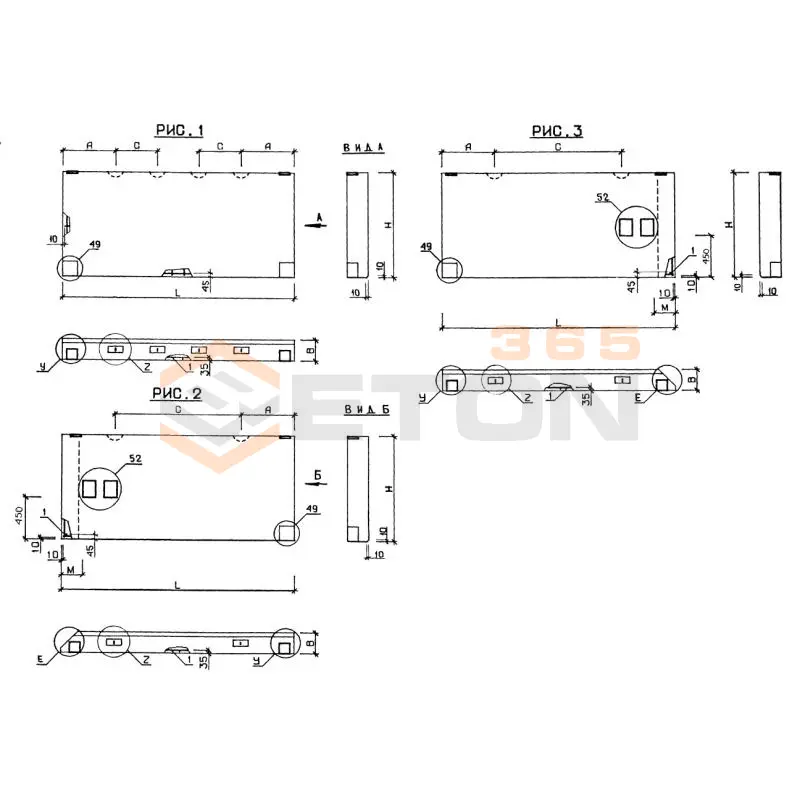
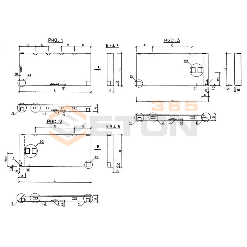
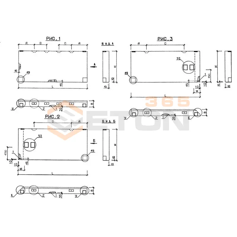
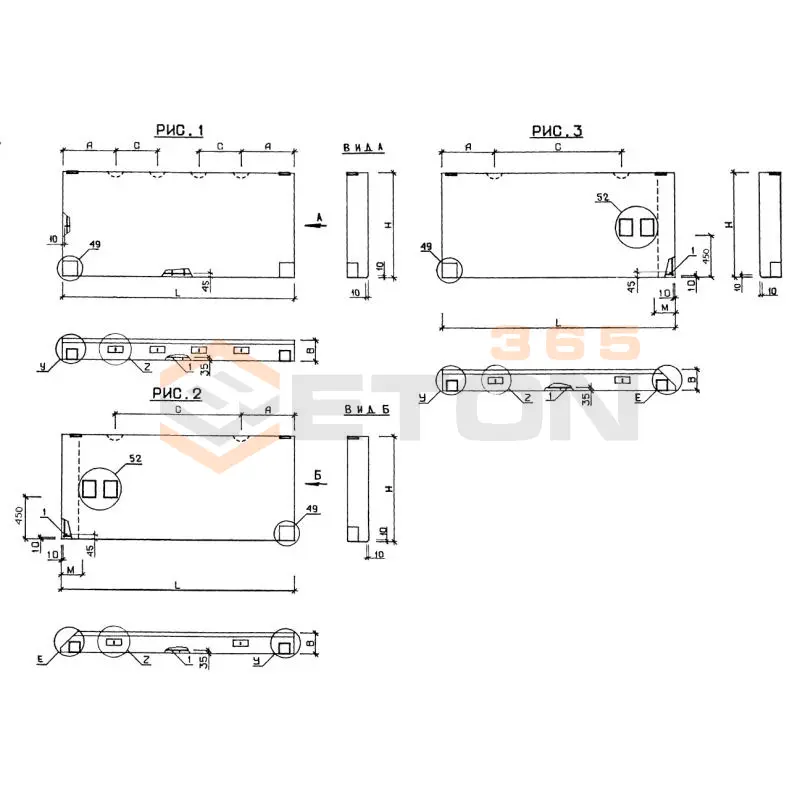
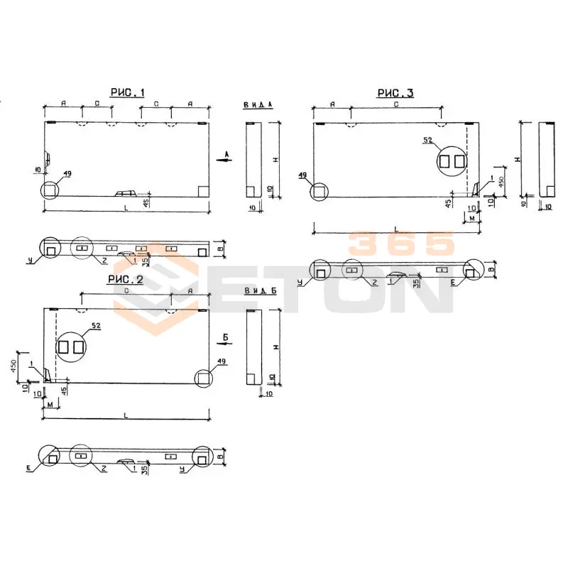
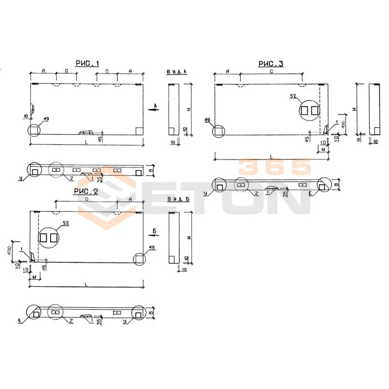
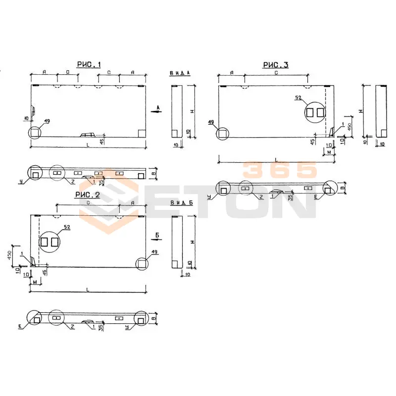
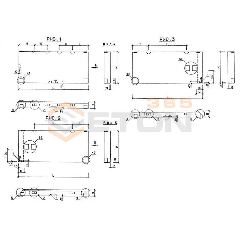
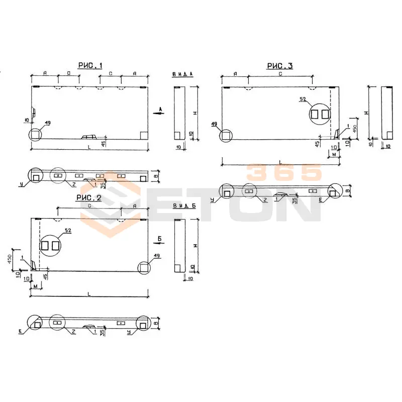
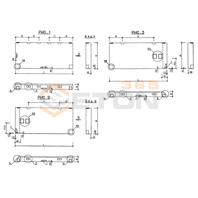
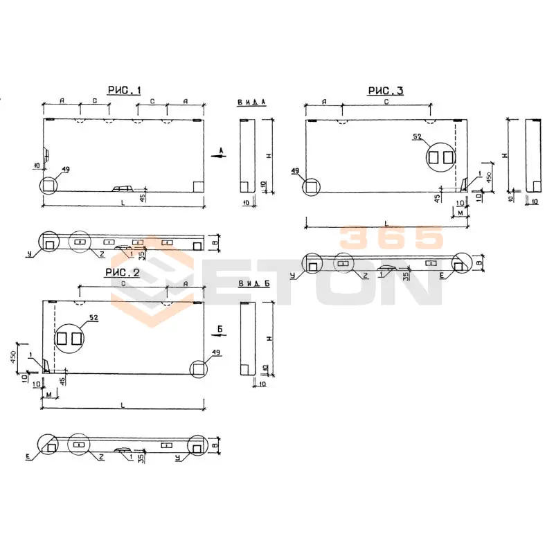
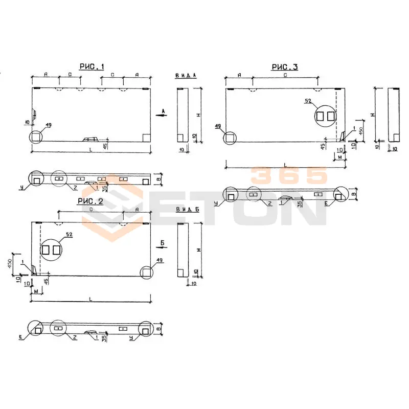
Документ Серия 1.020-1 описывает область применения, номенклатуру и ключевые требования, опираясь на действующие нормы и практику проектирования. Серия 1.020-1 была утверждена и введён в действие в действие в 1982 году. Основная сфера применения представленных в нормативном документе изделия и конструкции строительство многоэтажных общественных и производственных сооружений различного назначения. Конструкции могут использоваться в каркасах зданий, эксплуатируемых в I-V районах по весу снегового покрова, и в I-III районах по скоростному напору ветра.

Файлы для скачивания:
picture_as_pdf

5132.pdf

15,047.8 KB

скачать
picture_as_pdf

5133.pdf

6,425.3 KB

скачать
picture_as_pdf

5134.pdf

3,498.4 KB

скачать
picture_as_pdf

5135.pdf

1,671.6 KB

скачать
picture_as_pdf

5136.pdf

1,349.0 KB

скачать
picture_as_pdf

5137.pdf

4,207.9 KB

скачать
picture_as_pdf

5138.pdf

2,987.1 KB

скачать
picture_as_pdf

5139.pdf

3,084.1 KB

скачать
picture_as_pdf

5140.pdf

2,367.6 KB

скачать
picture_as_pdf

5141.pdf

15,273.6 KB

скачать
picture_as_pdf

5142.pdf

8,772.1 KB

скачать
picture_as_pdf

5143.pdf

2,657.8 KB

скачать
picture_as_pdf

5144.pdf

3,820.6 KB

скачать
picture_as_pdf

5145.pdf

2,582.1 KB

скачать
picture_as_pdf

5146.pdf

458.2 KB

скачать
picture_as_pdf

5147.pdf

2,632.5 KB

скачать
picture_as_pdf

5148.pdf

2,256.0 KB

скачать
picture_as_pdf

5149.pdf

4,462.8 KB

скачать
picture_as_pdf

5150.pdf

7,114.7 KB

скачать
picture_as_pdf

5151.pdf

2,123.7 KB

скачать
picture_as_pdf

5152.pdf

2,411.6 KB

скачать
picture_as_pdf

5153.pdf

4,130.7 KB

скачать
picture_as_pdf

5154.pdf

7,038.3 KB

скачать
picture_as_pdf

5155.pdf

3,708.3 KB

скачать
picture_as_pdf

5156.pdf

2,531.2 KB

скачать
picture_as_pdf

5157.pdf

7,912.0 KB

скачать
picture_as_pdf

5158.pdf

527.5 KB

скачать
picture_as_pdf

5159.pdf

1,839.8 KB

скачать
picture_as_pdf

5160.pdf

14,427.0 KB

скачать
picture_as_pdf

5161.pdf

7,287.7 KB

скачать
picture_as_pdf

5162.pdf

7,969.9 KB

скачать
picture_as_pdf

5163.pdf

4,921.3 KB

скачать
picture_as_pdf

5164.pdf

795.6 KB

скачать
picture_as_pdf

5165.pdf

3,814.1 KB

скачать
picture_as_pdf

5166.pdf

1,428.1 KB

скачать
picture_as_pdf

5167.pdf

3,315.5 KB

скачать
picture_as_pdf

5168.pdf

1,857.3 KB

скачать
picture_as_pdf

5169.pdf

2,135.8 KB

скачать
picture_as_pdf

5170.pdf

2,008.0 KB

скачать
picture_as_pdf

5171.pdf

1,781.6 KB

скачать
picture_as_pdf

5172.pdf

3,111.4 KB

скачать
picture_as_pdf

5173.pdf

5,321.1 KB

скачать
picture_as_pdf

5174.pdf

1,695.2 KB

скачать
Товары Серия 1.020-1 (60)
1ПСН 45-21-3,0 п (1.020-1)
Панели наружных стен навесные Серия 1.020-1
  • Длина 4480 мм.
  • Ширина 300 мм.
  • Высота 2085 мм.
  • Вес 2900 кг.
  • Объем бетона 2,463 м3
  • Геометрический объем 2,8022 м3
Цена: 83619 руб.
Подробнее
1ПСН 60-12-2,5 я (1.020-1)
Панели наружных стен навесные Серия 1.020-1
  • Длина 5980 мм.
  • Ширина 250 мм.
  • Высота 1185 мм.
  • Вес 1500 кг.
  • Объем бетона 1,759 м3
  • Геометрический объем 1,7716 м3
Цена: 59718 руб.
Подробнее
1ПСН 60-12-3,0 п (1.020-1)
Панели наружных стен навесные Серия 1.020-1
  • Длина 5980 мм.
  • Ширина 300 мм.
  • Высота 1185 мм.
  • Вес 2200 кг.
  • Объем бетона 1,865 м3
  • Геометрический объем 2,1259 м3
Цена: 63317 руб.
Подробнее
1ПСН 60-12-2,5 п (1.020-1)
Панели наружных стен навесные Серия 1.020-1
  • Длина 5980 мм.
  • Ширина 250 мм.
  • Высота 1185 мм.
  • Вес 1900 кг.
  • Объем бетона 1,511 м3
  • Геометрический объем 1,7716 м3
Цена: 51298 руб.
Подробнее
1ПСН 60-12-4,0 п (1.020-1)
Панели наружных стен навесные Серия 1.020-1
  • Длина 5980 мм.
  • Ширина 400 мм.
  • Высота 1185 мм.
  • Вес 2900 кг.
  • Объем бетона 2,574 м3
  • Геометрический объем 2,8345 м3
Цена: 87387 руб.
Подробнее
1ПСН 60-13-2,5 я (1.020-1)
Панели наружных стен навесные Серия 1.020-1
  • Длина 5980 мм.
  • Ширина 250 мм.
  • Высота 1285 мм.
  • Вес 1600 кг.
  • Объем бетона 1,903 м3
  • Геометрический объем 1,9211 м3
Цена: 64607 руб.
Подробнее
1ПСН 60-12-3,0 я (1.020-1)
Панели наружных стен навесные Серия 1.020-1
  • Длина 5980 мм.
  • Ширина 300 мм.
  • Высота 1185 мм.
  • Вес 1800 кг.
  • Объем бетона 2,113 м3
  • Геометрический объем 2,1259 м3
Цена: 71736 руб.
Подробнее
1ПСН 60-13-2,5 п (1.020-1)
Панели наружных стен навесные Серия 1.020-1
  • Длина 5980 мм.
  • Ширина 250 мм.
  • Высота 1285 мм.
  • Вес 2100 кг.
  • Объем бетона 1,634 м3
  • Геометрический объем 1,9211 м3
Цена: 55474 руб.
Подробнее
1ПСН 60-12-3,5 п (1.020-1)
Панели наружных стен навесные Серия 1.020-1
  • Длина 5980 мм.
  • Ширина 350 мм.
  • Высота 1185 мм.
  • Вес 2600 кг.
  • Объем бетона 2,22 м3
  • Геометрический объем 2,4802 м3
Цена: 75369 руб.
Подробнее
1ПСН 60-13-3,0 п (1.020-1)
Панели наружных стен навесные Серия 1.020-1
  • Длина 5980 мм.
  • Ширина 300 мм.
  • Высота 1285 мм.
  • Вес 2400 кг.
  • Объем бетона 2,019 м3
  • Геометрический объем 2,3053 м3
Цена: 68545 руб.
Подробнее
1ПСН 60-13-3,0 я (1.020-1)
Панели наружных стен навесные Серия 1.020-1
  • Длина 5980 мм.
  • Ширина 300 мм.
  • Высота 1285 мм.
  • Вес 1900 кг.
  • Объем бетона 2,288 м3
  • Геометрический объем 2,3053 м3
Цена: 77678 руб.
Подробнее
1ПСН 60-15-3,0 п (1.020-1)
Панели наружных стен навесные Серия 1.020-1
  • Длина 5980 мм.
  • Ширина 300 мм.
  • Высота 1485 мм.
  • Вес 2800 кг.
  • Объем бетона 2,341 м3
  • Геометрический объем 2,6641 м3
Цена: 79477 руб.
Подробнее
1ПСН 60-13-4,0 п (1.020-1)
Панели наружных стен навесные Серия 1.020-1
  • Длина 5980 мм.
  • Ширина 400 мм.
  • Высота 1285 мм.
  • Вес 3200 кг.
  • Объем бетона 2,787 м3
  • Геометрический объем 3,0737 м3
Цена: 94619 руб.
Подробнее
1ПСН 60-15-2,5 п (1.020-1)
Панели наружных стен навесные Серия 1.020-1
  • Длина 5980 мм.
  • Ширина 250 мм.
  • Высота 1485 мм.
  • Вес 2400 кг.
  • Объем бетона 1,897 м3
  • Геометрический объем 2,2201 м3
Цена: 64403 руб.
Подробнее
1ПСН 60-15-2,5 я (1.020-1)
Панели наружных стен навесные Серия 1.020-1
  • Длина 5980 мм.
  • Ширина 250 мм.
  • Высота 1485 мм.
  • Вес 1900 кг.
  • Объем бетона 2,207 м3
  • Геометрический объем 2,2201 м3
Цена: 74928 руб.
Подробнее
1ПСН 60-13-3,5 п (1.020-1)
Панели наружных стен навесные Серия 1.020-1
  • Длина 5980 мм.
  • Ширина 350 мм.
  • Высота 1285 мм.
  • Вес 2800 кг.
  • Объем бетона 2,403 м3
  • Геометрический объем 2,6895 м3
Цена: 81582 руб.
Подробнее
1ПСН 60-15-3,0 я (1.020-1)
Панели наружных стен навесные Серия 1.020-1
  • Длина 5980 мм.
  • Ширина 300 мм.
  • Высота 1485 мм.
  • Вес 2300 кг.
  • Объем бетона 2,651 м3
  • Геометрический объем 2,6641 м3
Цена: 90001 руб.
Подробнее
1ПСН 60-15-3,5 п (1.020-1)
Панели наружных стен навесные Серия 1.020-1
  • Длина 5980 мм.
  • Ширина 350 мм.
  • Высота 1485 мм.
  • Вес 3200 кг.
  • Объем бетона 2,785 м3
  • Геометрический объем 3,1081 м3
Цена: 94551 руб.
Подробнее
1ПСН 60-18-2,5 п (1.020-1)
Панели наружных стен навесные Серия 1.020-1
  • Длина 5980 мм.
  • Ширина 250 мм.
  • Высота 1785 мм.
  • Вес 2900 кг.
  • Объем бетона 2,282 м3
  • Геометрический объем 2,6686 м3
Цена: 77474 руб.
Подробнее
1ПСН 60-18-2,5 я (1.020-1)
Панели наружных стен навесные Серия 1.020-1
  • Длина 5980 мм.
  • Ширина 250 мм.
  • Высота 1785 мм.
  • Вес 2300 кг.
  • Объем бетона 2,656 м3
  • Геометрический объем 2,6686 м3
Цена: 90171 руб.
Подробнее
1ПСН 60-15-4,0 п (1.020-1)
Панели наружных стен навесные Серия 1.020-1
  • Длина 5980 мм.
  • Ширина 400 мм.
  • Высота 1485 мм.
  • Вес 3700 кг.
  • Объем бетона 3,229 м3
  • Геометрический объем 3,5521 м3
Цена: 109625 руб.
Подробнее
1ПСН 60-18-2,5 па (1.020-1)
Панели наружных стен навесные Серия 1.020-1
  • Длина 5980 мм.
  • Ширина 250 мм.
  • Высота 1785 мм.
  • Вес 2900 кг.
  • Объем бетона 2,29 м3
  • Геометрический объем 2,6686 м3
Цена: 77746 руб.
Подробнее
1ПСН 60-18-2,5 яа (1.020-1)
Панели наружных стен навесные Серия 1.020-1
  • Длина 5980 мм.
  • Ширина 250 мм.
  • Высота 1785 мм.
  • Вес 2300 кг.
  • Объем бетона 2,669 м3
  • Геометрический объем 2,6686 м3
Цена: 90613 руб.
Подробнее
1ПСН 60-18-3,0 па (1.020-1)
Панели наружных стен навесные Серия 1.020-1
  • Длина 5980 мм.
  • Ширина 300 мм.
  • Высота 1785 мм.
  • Вес 3400 кг.
  • Объем бетона 2,82 м3
  • Геометрический объем 3,2023 м3
Цена: 95739 руб.
Подробнее
1ПСН 60-18-3,0 п (1.020-1)
Панели наружных стен навесные Серия 1.020-1
  • Длина 5980 мм.
  • Ширина 300 мм.
  • Высота 1785 мм.
  • Вес 3400 кг.
  • Объем бетона 2,816 м3
  • Геометрический объем 3,2023 м3
Цена: 95603 руб.
Подробнее
1ПСН 60-18-3,0 я (1.020-1)
Панели наружных стен навесные Серия 1.020-1
  • Длина 5980 мм.
  • Ширина 300 мм.
  • Высота 1785 мм.
  • Вес 2700 кг.
  • Объем бетона 3,19 м3
  • Геометрический объем 3,2023 м3
Цена: 108301 руб.
Подробнее
1ПСН 60-18-3,5 п (1.020-1)
Панели наружных стен навесные Серия 1.020-1
  • Длина 5980 мм.
  • Ширина 350 мм.
  • Высота 1785 мм.
  • Вес 3900 кг.
  • Объем бетона 3,35 м3
  • Геометрический объем 3,736 м3
Цена: 113733 руб.
Подробнее
1ПСН 60-18-3,0 яа (1.020-1)
Панели наружных стен навесные Серия 1.020-1
  • Длина 5980 мм.
  • Ширина 300 мм.
  • Высота 1785 мм.
  • Вес 2700 кг.
  • Объем бетона 3,202 м3
  • Геометрический объем 3,2023 м3
Цена: 108708 руб.
Подробнее
1ПСН 60-18-3,5 па (1.020-1)
Панели наружных стен навесные Серия 1.020-1
  • Длина 5980 мм.
  • Ширина 350 мм.
  • Высота 1785 мм.
  • Вес 3900 кг.
  • Объем бетона 3,36 м3
  • Геометрический объем 3,736 м3
Цена: 114072 руб.
Подробнее
1ПСН 60-18-4,0 па (1.020-1)
Панели наружных стен навесные Серия 1.020-1
  • Длина 5980 мм.
  • Ширина 400 мм.
  • Высота 1785 мм.
  • Вес 4400 кг.
  • Объем бетона 3,89 м3
  • Геометрический объем 4,2697 м3
Цена: 132066 руб.
Подробнее
1ПСН 60-21-2,5 п (1.020-1)
Панели наружных стен навесные Серия 1.020-1
  • Длина 5980 мм.
  • Ширина 250 мм.
  • Высота 2085 мм.
  • Вес 3400 кг.
  • Объем бетона 2,668 м3
  • Геометрический объем 3,1171 м3
Цена: 90579 руб.
Подробнее
1ПСН 60-21-3,0 п (1.020-1)
Панели наружных стен навесные Серия 1.020-1
  • Длина 5980 мм.
  • Ширина 300 мм.
  • Высота 2085 мм.
  • Вес 4000 кг.
  • Объем бетона 3,291 м3
  • Геометрический объем 3,7405 м3
Цена: 111729 руб.
Подробнее
1ПСН 60-18-4,0 п (1.020-1)
Панели наружных стен навесные Серия 1.020-1
  • Длина 5980 мм.
  • Ширина 400 мм.
  • Высота 1785 мм.
  • Вес 4400 кг.
  • Объем бетона 3,884 м3
  • Геометрический объем 4,2697 м3
Цена: 131862 руб.
Подробнее
1ПСН 60-21-3,5 п (1.020-1)
Панели наружных стен навесные Серия 1.020-1
  • Длина 5980 мм.
  • Ширина 350 мм.
  • Высота 2085 мм.
  • Вес 4500 кг.
  • Объем бетона 3,915 м3
  • Геометрический объем 4,3639 м3
Цена: 132914 руб.
Подробнее
1ПСН 60-21-4,0 п (1.020-1)
Панели наружных стен навесные Серия 1.020-1
  • Длина 5980 мм.
  • Ширина 400 мм.
  • Высота 2085 мм.
  • Вес 5200 кг.
  • Объем бетона 4,538 м3
  • Геометрический объем 4,9873 м3
Цена: 154065 руб.
Подробнее
1ПСН 72-12-3,0 п (1.020-1)
Панели наружных стен навесные Серия 1.020-1
  • Длина 7180 мм.
  • Ширина 300 мм.
  • Высота 1185 мм.
  • Вес 2800 кг.
  • Объем бетона 2,242 м3
  • Геометрический объем 2,5525 м3
Цена: 76116 руб.
Подробнее
1ПСН 72-12-3,5 п (1.020-1)
Панели наружных стен навесные Серия 1.020-1
  • Длина 7180 мм.
  • Ширина 350 мм.
  • Высота 1185 мм.
  • Вес 3400 кг.
  • Объем бетона 2,889 м3
  • Геометрический объем 2,9779 м3
Цена: 98082 руб.
Подробнее
1ПСН 72-12-2,5 п (1.020-1)
Панели наружных стен навесные Серия 1.020-1
  • Длина 7180 мм.
  • Ширина 250 мм.
  • Высота 1185 мм.
  • Вес 2400 кг.
  • Объем бетона 1,817 м3
  • Геометрический объем 2,1271 м3
Цена: 61687 руб.
Подробнее
1ПСН 72-12-3,5 п (1.020-1)
Панели наружных стен навесные Серия 1.020-1
  • Длина 7180 мм.
  • Ширина 350 мм.
  • Высота 1185 мм.
  • Вес 3200 кг.
  • Объем бетона 2,668 м3
  • Геометрический объем 2,9779 м3
Цена: 90579 руб.
Подробнее
1ПСН 72-12-4,0 п (1.020-1)
Панели наружных стен навесные Серия 1.020-1
  • Длина 7180 мм.
  • Ширина 400 мм.
  • Высота 1185 мм.
  • Вес 3600 кг.
  • Объем бетона 3,093 м3
  • Геометрический объем 3,4033 м3
Цена: 105007 руб.
Подробнее
1ПСН 72-13-2,5 п (1.020-1)
Панели наружных стен навесные Серия 1.020-1
  • Длина 7180 мм.
  • Ширина 250 мм.
  • Высота 1285 мм.
  • Вес 2600 кг.
  • Объем бетона 1,966 м3
  • Геометрический объем 2,3066 м3
Цена: 66746 руб.
Подробнее
1ПСН 72-13-3,0 п (1.020-1)
Панели наружных стен навесные Серия 1.020-1
  • Длина 7180 мм.
  • Ширина 300 мм.
  • Высота 1285 мм.
  • Вес 3000 кг.
  • Объем бетона 2,427 м3
  • Геометрический объем 2,7679 м3
Цена: 82397 руб.
Подробнее
1ПСН 72-13-4,0 п (1.020-1)
Панели наружных стен навесные Серия 1.020-1
  • Длина 7180 мм.
  • Ширина 400 мм.
  • Высота 1285 мм.
  • Вес 3900 кг.
  • Объем бетона 3,35 м3
  • Геометрический объем 3,6905 м3
Цена: 113733 руб.
Подробнее
1ПСН 72-15-3,5 п (1.020-1)
Панели наружных стен навесные Серия 1.020-1
  • Длина 7180 мм.
  • Ширина 350 мм.
  • Высота 1485 мм.
  • Вес 3900 кг.
  • Объем бетона 3,346 м3
  • Геометрический объем 3,7318 м3
Цена: 113597 руб.
Подробнее
1ПСН 72-15-2,5 п (1.020-1)
Панели наружных стен навесные Серия 1.020-1
  • Длина 7180 мм.
  • Ширина 250 мм.
  • Высота 1485 мм.
  • Вес 3000 кг.
  • Объем бетона 2,28 м3
  • Геометрический объем 2,6656 м3
Цена: 77406 руб.
Подробнее
1ПСН 72-15-3,0 п (1.020-1)
Панели наружных стен навесные Серия 1.020-1
  • Длина 7180 мм.
  • Ширина 300 мм.
  • Высота 1485 мм.
  • Вес 3400 кг.
  • Объем бетона 2,813 м3
  • Геометрический объем 3,1987 м3
Цена: 95501 руб.
Подробнее
1ПСН 72-15-4,0 п (1.020-1)
Панели наружных стен навесные Серия 1.020-1
  • Длина 7180 мм.
  • Ширина 400 мм.
  • Высота 1485 мм.
  • Вес 4500 кг.
  • Объем бетона 3,879 м3
  • Геометрический объем 4,2649 м3
Цена: 131692 руб.
Подробнее
1ПСН 72-18-3,5 п (1.020-1)
Панели наружных стен навесные Серия 1.020-1
  • Длина 7180 мм.
  • Ширина 350 мм.
  • Высота 1785 мм.
  • Вес 4700 кг.
  • Объем бетона 4,025 м3
  • Геометрический объем 4,4857 м3
Цена: 136649 руб.
Подробнее
1ПСН 72-18-3,0 п (1.020-1)
Панели наружных стен навесные Серия 1.020-1
  • Длина 7180 мм.
  • Ширина 300 мм.
  • Высота 1785 мм.
  • Вес 4100 кг.
  • Объем бетона 3,384 м3
  • Геометрический объем 3,8449 м3
Цена: 114887 руб.
Подробнее
1ПСН 72-18-2,5 п (1.020-1)
Панели наружных стен навесные Серия 1.020-1
  • Длина 7180 мм.
  • Ширина 250 мм.
  • Высота 1785 мм.
  • Вес 3600 кг.
  • Объем бетона 2,743 м3
  • Геометрический объем 3,2041 м3
Цена: 93125 руб.
Подробнее
1ПСН 72-21-2,5 п (1.020-1)
Панели наружных стен навесные Серия 1.020-1
  • Длина 7180 мм.
  • Ширина 250 мм.
  • Высота 2085 мм.
  • Вес 4100 кг.
  • Объем бетона 3,206 м3
  • Геометрический объем 3,7426 м3
Цена: 108844 руб.
Подробнее
1ПСН 72-18-4,0 п (1.020-1)
Панели наружных стен навесные Серия 1.020-1
  • Длина 7180 мм.
  • Ширина 400 мм.
  • Высота 1785 мм.
  • Вес 5300 кг.
  • Объем бетона 4,665 м3
  • Геометрический объем 5,1265 м3
Цена: 158377 руб.
Подробнее
1ПСН 72-21-3,5 п (1.020-1)
Панели наружных стен навесные Серия 1.020-1
  • Длина 7180 мм.
  • Ширина 350 мм.
  • Высота 2085 мм.
  • Вес 5500 кг.
  • Объем бетона 4,703 м3
  • Геометрический объем 5,2396 м3
Цена: 159667 руб.
Подробнее
1ПСН 90-12-2,5 п (1.020-1)
Панели наружных стен навесные Серия 1.020-1
  • Длина 8980 мм.
  • Ширина 250 мм.
  • Высота 1185 мм.
  • Вес 3000 кг.
  • Объем бетона 2,275 м3
  • Геометрический объем 2,6603 м3
Цена: 77236 руб.
Подробнее
1ПСН 72-21-3,0 п (1.020-1)
Панели наружных стен навесные Серия 1.020-1
  • Длина 7180 мм.
  • Ширина 300 мм.
  • Высота 2085 мм.
  • Вес 4800 кг.
  • Объем бетона 3,955 м3
  • Геометрический объем 4,4911 м3
Цена: 134272 руб.
Подробнее
1ПСН 90-12-3,0 п (1.020-1)
Панели наружных стен навесные Серия 1.020-1
  • Длина 8980 мм.
  • Ширина 300 мм.
  • Высота 1185 мм.
  • Вес 3500 кг.
  • Объем бетона 2,807 м3
  • Геометрический объем 3,1924 м3
Цена: 95298 руб.
Подробнее
1ПСН 72-21-4,0 п (1.020-1)
Панели наружных стен навесные Серия 1.020-1
  • Длина 7180 мм.
  • Ширина 400 мм.
  • Высота 2085 мм.
  • Вес 6200 кг.
  • Объем бетона 5,452 м3
  • Геометрический объем 5,9881 м3
Цена: 185095 руб.
Подробнее
1ПСН 90-12-3,5 п (1.020-1)
Панели наружных стен навесные Серия 1.020-1
  • Длина 8980 мм.
  • Ширина 350 мм.
  • Высота 1185 мм.
  • Вес 4000 кг.
  • Объем бетона 3,339 м3
  • Геометрический объем 3,7245 м3
Цена: 113359 руб.
Подробнее
1ПСН 90-12-4,0 п (1.020-1)
Панели наружных стен навесные Серия 1.020-1
  • Длина 8980 мм.
  • Ширина 400 мм.
  • Высота 1185 мм.
  • Вес 4500 кг.
  • Объем бетона 3,871 м3
  • Геометрический объем 4,2565 м3
Цена: 131420 руб.
Подробнее
1ПСН 90-15-4,0 п (1.020-1)
Панели наружных стен навесные Серия 1.020-1
  • Длина 8980 мм.
  • Ширина 400 мм.
  • Высота 1485 мм.
  • Вес 5600 кг.
  • Объем бетона 4,855 м3
  • Геометрический объем 5,3341 м3
Цена: 164827 руб.
Подробнее

Уведомление о файлах cookie

Мы используем файлы cookie для улучшения вашего опыта просмотра и анализа трафика. Нажимая "Принять все", вы соглашаетесь с нашей политикой конфиденциальности и политикой обработки файлов cookie.

Дзен Телеграм Вконтакте vk