mobile_sound +7 (930) 655-55-90

Техническая документация и чертежи (ИНВ 42055м)

Поделиться:
Поделиться:

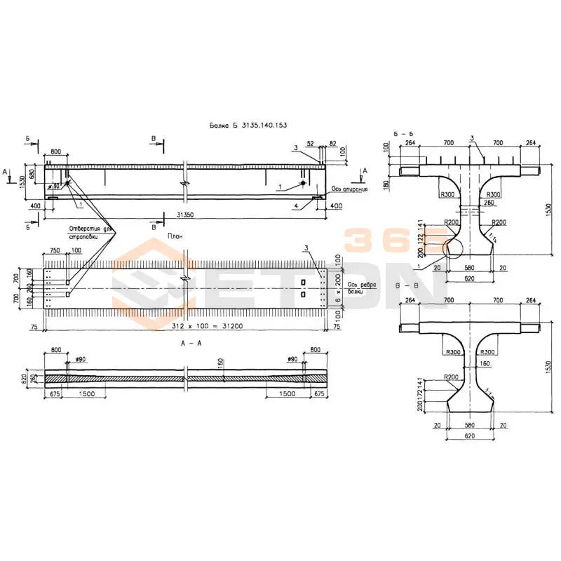
Документ ИНВ 42055м описывает область применения, номенклатуру и ключевые требования, опираясь на действующие нормы и практику проектирования. Рабочие чертежи ИНВ 42055м были разработаны институтом Союзпроект и введены в действие с 2000 года. Регламент проектировался специально для использования при строительстве сборных железобетонных пролетных для строений путепроводов на станции Смоленск-Центральный, рассчитанных под колесную нагрузку класса А14 и НК80. В нормативном документе приведены балки двутаврового сечения длиной 31,35 метра и высотой 1,53 метра под пролетные строения.

Файлы для скачивания:
picture_as_pdf

5817.pdf

1,156.1 KB

скачать
Товары ИНВ 42055м (1)
Б 3135-140-153 к7 АIII (ИНВ 42055м)
Балки пролетного строения ИНВ 42055м
  • Длина 31350 мм.
  • Ширина 1400 мм.
  • Высота 1530 мм.
  • Вес 51500 кг.
  • Объем бетона 20,6 м3
  • Геометрический объем 67,1517 м3
Цена: 1338794 руб.
Подробнее

Уведомление о файлах cookie

Мы используем файлы cookie для улучшения вашего опыта просмотра и анализа трафика. Нажимая "Принять все", вы соглашаетесь с нашей политикой конфиденциальности и политикой обработки файлов cookie.

MAX Дзен Телеграм Вконтакте vk