mobile_sound +7 (930) 655-55-90

Панели шахт лифтов Серия 1.089.1-2

Поделиться:
Фильтр по характеристикам
Длина (мм.)
keyboard_arrow_down
мм.
мм.
Ширина (мм.)
keyboard_arrow_down
мм.
мм.
Высота (мм.)
keyboard_arrow_down
мм.
мм.
Вес (кг.)
keyboard_arrow_down
кг.
кг.
Поделиться:

Завод "Бетон365" производит панели шахт лифтов серии 1.089.1-2 – ключевые элементы для быстрого монтажа лифтовых конструкций в жилых и коммерческих зданиях. Эти железобетонные изделия обеспечивают необходимую жесткость шахты, равномерно распределяют нагрузку и соответствуют строгим требованиям ГОСТ, что гарантирует безопасность и долговечность эксплуатации. Использование готовых панелей значительно сокращает сроки строительства и упрощает процесс сборки.

В Москве и МО вы можете купить панели шахт лифтов серии 1.089.1-2 непосредственно от производителя по конкурентной цене, без посредников. Мы обеспечиваем оперативную доставку на объект и предоставляем гарантию на всю продукцию. Для расчета стоимости и оформления заказа свяжитесь с нашими специалистами – поможем подобрать оптимальное решение для вашего проекта.

ПШЛ 100-30-1 (1.089.1-2)
Панели шахт лифтов Серия 1.089.1-2
  • Длина 2160 мм.
  • Ширина 140 мм.
  • Высота 2980 мм.
  • Вес 1380 кг.
  • Объем бетона 0,55 м3
  • Геометрический объем 0,9012 м3
Цена: 19740 руб.
Подробнее
ПШЛ 100-30-2 (1.089.1-2)
Панели шахт лифтов Серия 1.089.1-2
  • Длина 2160 мм.
  • Ширина 140 мм.
  • Высота 2980 мм.
  • Вес 2250 кг.
  • Объем бетона 0,9 м3
  • Геометрический объем 0,9012 м3
Цена: 32301 руб.
Подробнее
ПШЛ 100-30-3 (1.089.1-2)
Панели шахт лифтов Серия 1.089.1-2
  • Длина 2160 мм.
  • Ширина 140 мм.
  • Высота 2980 мм.
  • Вес 2250 кг.
  • Объем бетона 0,9 м3
  • Геометрический объем 0,9012 м3
Цена: 32301 руб.
Подробнее
ПШЛ 100-33-2 (1.089.1-2)
Панели шахт лифтов Серия 1.089.1-2
  • Длина 2160 мм.
  • Ширина 140 мм.
  • Высота 3280 мм.
  • Вес 2480 кг.
  • Объем бетона 0,99 м3
  • Геометрический объем 0,9919 м3
Цена: 35531 руб.
Подробнее
ПШЛ 100-33-1 (1.089.1-2)
Панели шахт лифтов Серия 1.089.1-2
  • Длина 2160 мм.
  • Ширина 140 мм.
  • Высота 3280 мм.
  • Вес 1600 кг.
  • Объем бетона 0,64 м3
  • Геометрический объем 0,9919 м3
Цена: 22970 руб.
Подробнее
ПШЛ 100-30-4 (1.089.1-2)
Панели шахт лифтов Серия 1.089.1-2
  • Длина 2160 мм.
  • Ширина 140 мм.
  • Высота 2980 мм.
  • Вес 2250 кг.
  • Объем бетона 0,9 м3
  • Геометрический объем 0,9012 м3
Цена: 32301 руб.
Подробнее
ПШЛ 100-33-4 (1.089.1-2)
Панели шахт лифтов Серия 1.089.1-2
  • Длина 2160 мм.
  • Ширина 140 мм.
  • Высота 3280 мм.
  • Вес 2480 кг.
  • Объем бетона 0,99 м3
  • Геометрический объем 0,9919 м3
Цена: 35531 руб.
Подробнее
ПШЛ 100-33-3 (1.089.1-2)
Панели шахт лифтов Серия 1.089.1-2
  • Длина 2160 мм.
  • Ширина 140 мм.
  • Высота 3280 мм.
  • Вес 2480 кг.
  • Объем бетона 0,99 м3
  • Геометрический объем 0,9919 м3
Цена: 35531 руб.
Подробнее
ПШЛ 100-36-2 (1.089.1-2)
Панели шахт лифтов Серия 1.089.1-2
  • Длина 2160 мм.
  • Ширина 140 мм.
  • Высота 3580 мм.
  • Вес 2710 кг.
  • Объем бетона 1,08 м3
  • Геометрический объем 1,0826 м3
Цена: 38761 руб.
Подробнее
ПШЛ 100-36-4 (1.089.1-2)
Панели шахт лифтов Серия 1.089.1-2
  • Длина 2160 мм.
  • Ширина 140 мм.
  • Высота 3580 мм.
  • Вес 2710 кг.
  • Объем бетона 1,08 м3
  • Геометрический объем 1,0826 м3
Цена: 38761 руб.
Подробнее
ПШЛ 100-36-3 (1.089.1-2)
Панели шахт лифтов Серия 1.089.1-2
  • Длина 2160 мм.
  • Ширина 140 мм.
  • Высота 3580 мм.
  • Вес 2710 кг.
  • Объем бетона 1,08 м3
  • Геометрический объем 1,0826 м3
Цена: 38761 руб.
Подробнее
ПШЛ 100-36-1 (1.089.1-2)
Панели шахт лифтов Серия 1.089.1-2
  • Длина 2160 мм.
  • Ширина 140 мм.
  • Высота 3580 мм.
  • Вес 1820 кг.
  • Объем бетона 0,73 м3
  • Геометрический объем 1,0826 м3
Цена: 26200 руб.
Подробнее
ПШЛ 100-42-1 (1.089.1-2)
Панели шахт лифтов Серия 1.089.1-2
  • Длина 2160 мм.
  • Ширина 140 мм.
  • Высота 4180 мм.
  • Вес 2280 кг.
  • Объем бетона 0,91 м3
  • Геометрический объем 1,264 м3
Цена: 32660 руб.
Подробнее
ПШЛ 100-42-4 (1.089.1-2)
Панели шахт лифтов Серия 1.089.1-2
  • Длина 2160 мм.
  • Ширина 140 мм.
  • Высота 4180 мм.
  • Вес 3160 кг.
  • Объем бетона 1,26 м3
  • Геометрический объем 1,264 м3
Цена: 45221 руб.
Подробнее
ПШЛ 100-42-2 (1.089.1-2)
Панели шахт лифтов Серия 1.089.1-2
  • Длина 2160 мм.
  • Ширина 140 мм.
  • Высота 4180 мм.
  • Вес 3160 кг.
  • Объем бетона 1,26 м3
  • Геометрический объем 1,264 м3
Цена: 45221 руб.
Подробнее
ПШЛ 100Гр-30-5 (1.089.1-2)
Панели шахт лифтов Серия 1.089.1-2
  • Длина 2160 мм.
  • Ширина 140 мм.
  • Высота 2980 мм.
  • Вес 1000 кг.
  • Объем бетона 0,4 м3
  • Геометрический объем 0,9012 м3
Цена: 14356 руб.
Подробнее
ПШЛ 100Гр-30-4 (1.089.1-2)
Панели шахт лифтов Серия 1.089.1-2
  • Длина 2160 мм.
  • Ширина 140 мм.
  • Высота 2980 мм.
  • Вес 2250 кг.
  • Объем бетона 0,9 м3
  • Геометрический объем 0,9012 м3
Цена: 32301 руб.
Подробнее
ПШЛ 100Гр-30-2 (1.089.1-2)
Панели шахт лифтов Серия 1.089.1-2
  • Длина 2160 мм.
  • Ширина 140 мм.
  • Высота 2980 мм.
  • Вес 2250 кг.
  • Объем бетона 0,9 м3
  • Геометрический объем 0,9012 м3
Цена: 32301 руб.
Подробнее
ПШЛ 100-43-3 (1.089.1-2)
Панели шахт лифтов Серия 1.089.1-2
  • Длина 2160 мм.
  • Ширина 140 мм.
  • Высота 4180 мм.
  • Вес 3160 кг.
  • Объем бетона 1,26 м3
  • Геометрический объем 1,264 м3
Цена: 45221 руб.
Подробнее
ПШЛ 100Гр-30-1 (1.089.1-2)
Панели шахт лифтов Серия 1.089.1-2
  • Длина 2160 мм.
  • Ширина 140 мм.
  • Высота 2980 мм.
  • Вес 1000 кг.
  • Объем бетона 0,4 м3
  • Геометрический объем 0,9012 м3
Цена: 14356 руб.
Подробнее
ПШЛ 100Гр-33-1 (1.089.1-2)
Панели шахт лифтов Серия 1.089.1-2
  • Длина 2160 мм.
  • Ширина 140 мм.
  • Высота 3280 мм.
  • Вес 1220 кг.
  • Объем бетона 0,49 м3
  • Геометрический объем 0,9919 м3
Цена: 17586 руб.
Подробнее
ПШЛ 100Гр-33-2 (1.089.1-2)
Панели шахт лифтов Серия 1.089.1-2
  • Длина 2160 мм.
  • Ширина 140 мм.
  • Высота 3280 мм.
  • Вес 2480 кг.
  • Объем бетона 0,99 м3
  • Геометрический объем 0,9919 м3
Цена: 35531 руб.
Подробнее
ПШЛ 100Гр-33-5 (1.089.1-2)
Панели шахт лифтов Серия 1.089.1-2
  • Длина 2160 мм.
  • Ширина 140 мм.
  • Высота 3280 мм.
  • Вес 1220 кг.
  • Объем бетона 0,49 м3
  • Геометрический объем 0,9919 м3
Цена: 17586 руб.
Подробнее
ПШЛ 100Гр-36-1 (1.089.1-2)
Панели шахт лифтов Серия 1.089.1-2
  • Длина 2160 мм.
  • Ширина 140 мм.
  • Высота 3580 мм.
  • Вес 1450 кг.
  • Объем бетона 0,58 м3
  • Геометрический объем 1,0826 м3
Цена: 20816 руб.
Подробнее
ПШЛ 100Гр-33-4 (1.089.1-2)
Панели шахт лифтов Серия 1.089.1-2
  • Длина 2160 мм.
  • Ширина 140 мм.
  • Высота 3280 мм.
  • Вес 2480 кг.
  • Объем бетона 0,99 м3
  • Геометрический объем 0,9919 м3
Цена: 35531 руб.
Подробнее
ПШЛ 100Гр-36-2 (1.089.1-2)
Панели шахт лифтов Серия 1.089.1-2
  • Длина 2160 мм.
  • Ширина 140 мм.
  • Высота 3580 мм.
  • Вес 2710 кг.
  • Объем бетона 1,08 м3
  • Геометрический объем 1,0826 м3
Цена: 38761 руб.
Подробнее
ПШЛ 100Гр-36-4 (1.089.1-2)
Панели шахт лифтов Серия 1.089.1-2
  • Длина 2160 мм.
  • Ширина 140 мм.
  • Высота 3580 мм.
  • Вес 2710 кг.
  • Объем бетона 1,08 м3
  • Геометрический объем 1,0826 м3
Цена: 38761 руб.
Подробнее
ПШЛ 100Гр-36-6 (1.089.1-2)
Панели шахт лифтов Серия 1.089.1-2
  • Длина 2160 мм.
  • Ширина 140 мм.
  • Высота 3580 мм.
  • Вес 2710 кг.
  • Объем бетона 1,08 м3
  • Геометрический объем 1,0826 м3
Цена: 38761 руб.
Подробнее
ПШЛ 100Гр-36-5 (1.089.1-2)
Панели шахт лифтов Серия 1.089.1-2
  • Длина 2160 мм.
  • Ширина 140 мм.
  • Высота 3580 мм.
  • Вес 1450 кг.
  • Объем бетона 0,58 м3
  • Геометрический объем 1,0826 м3
Цена: 20816 руб.
Подробнее
ПШЛ 100Гр-36-7 (1.089.1-2)
Панели шахт лифтов Серия 1.089.1-2
  • Длина 2160 мм.
  • Ширина 140 мм.
  • Высота 3580 мм.
  • Вес 2710 кг.
  • Объем бетона 1,08 м3
  • Геометрический объем 1,0826 м3
Цена: 38761 руб.
Подробнее
ПШЛ 100Гр-42-2 (1.089.1-2)
Панели шахт лифтов Серия 1.089.1-2
  • Длина 2160 мм.
  • Ширина 140 мм.
  • Высота 4180 мм.
  • Вес 3160 кг.
  • Объем бетона 1,26 м3
  • Геометрический объем 1,264 м3
Цена: 45221 руб.
Подробнее
ПШЛ 100Гр-42-1 (1.089.1-2)
Панели шахт лифтов Серия 1.089.1-2
  • Длина 2160 мм.
  • Ширина 140 мм.
  • Высота 4180 мм.
  • Вес 1900 кг.
  • Объем бетона 0,76 м3
  • Геометрический объем 1,264 м3
Цена: 27276 руб.
Подробнее
ПШЛ 100Гр-42-5 (1.089.1-2)
Панели шахт лифтов Серия 1.089.1-2
  • Длина 2160 мм.
  • Ширина 140 мм.
  • Высота 4180 мм.
  • Вес 1900 кг.
  • Объем бетона 0,76 м3
  • Геометрический объем 1,264 м3
Цена: 27276 руб.
Подробнее
ПШЛ 100Гр-42-4 (1.089.1-2)
Панели шахт лифтов Серия 1.089.1-2
  • Длина 2160 мм.
  • Ширина 140 мм.
  • Высота 4180 мм.
  • Вес 3160 кг.
  • Объем бетона 1,26 м3
  • Геометрический объем 1,264 м3
Цена: 45221 руб.
Подробнее
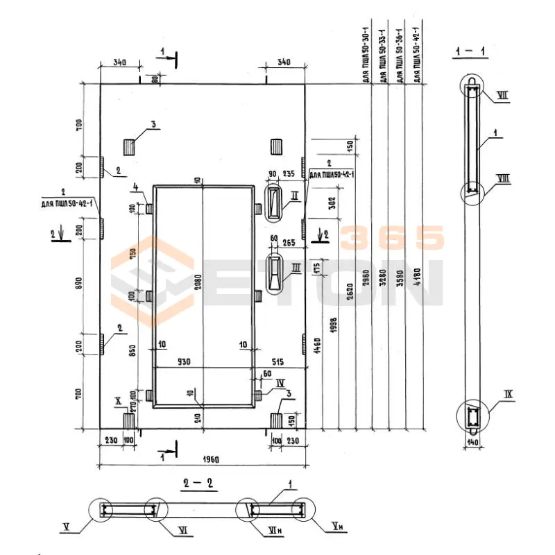
ПШЛ 50-30-1 (1.089.1-2)
Панели шахт лифтов Серия 1.089.1-2
  • Длина 1960 мм.
  • Ширина 140 мм.
  • Высота 2980 мм.
  • Вес 1350 кг.
  • Объем бетона 0,54 м3
  • Геометрический объем 0,8177 м3
Цена: 19381 руб.
Подробнее
ПШЛ 50-30-3 (1.089.1-2)
Панели шахт лифтов Серия 1.089.1-2
  • Длина 1960 мм.
  • Ширина 140 мм.
  • Высота 2980 мм.
  • Вес 2050 кг.
  • Объем бетона 0,82 м3
  • Геометрический объем 0,8177 м3
Цена: 29430 руб.
Подробнее
ПШЛ 50-30-2 (1.089.1-2)
Панели шахт лифтов Серия 1.089.1-2
  • Длина 1960 мм.
  • Ширина 140 мм.
  • Высота 2980 мм.
  • Вес 2050 кг.
  • Объем бетона 0,82 м3
  • Геометрический объем 0,8177 м3
Цена: 29430 руб.
Подробнее
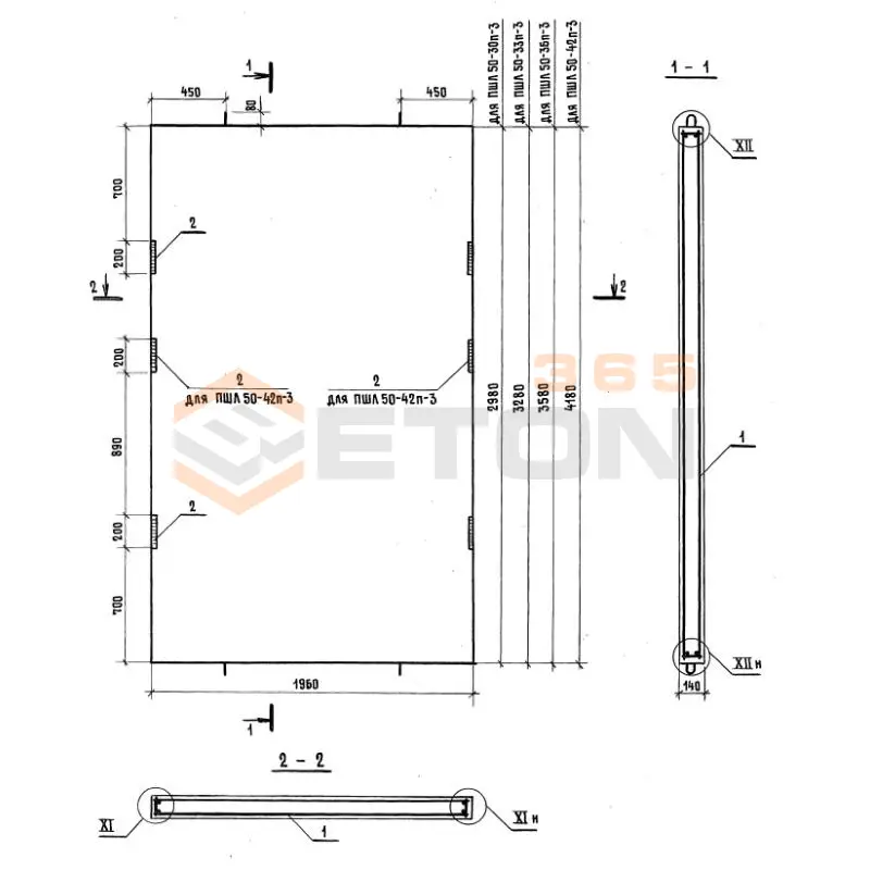
ПШЛ 50-30п-3 (1.089.1-2)
Панели шахт лифтов Серия 1.089.1-2
  • Длина 1960 мм.
  • Ширина 140 мм.
  • Высота 2980 мм.
  • Вес 2050 кг.
  • Объем бетона 0,82 м3
  • Геометрический объем 0,8177 м3
Цена: 29430 руб.
Подробнее
ПШЛ 50-30п-2 (1.089.1-2)
Панели шахт лифтов Серия 1.089.1-2
  • Длина 1660 мм.
  • Ширина 140 мм.
  • Высота 2980 мм.
  • Вес 1730 кг.
  • Объем бетона 0,69 м3
  • Геометрический объем 0,6926 м3
Цена: 24764 руб.
Подробнее
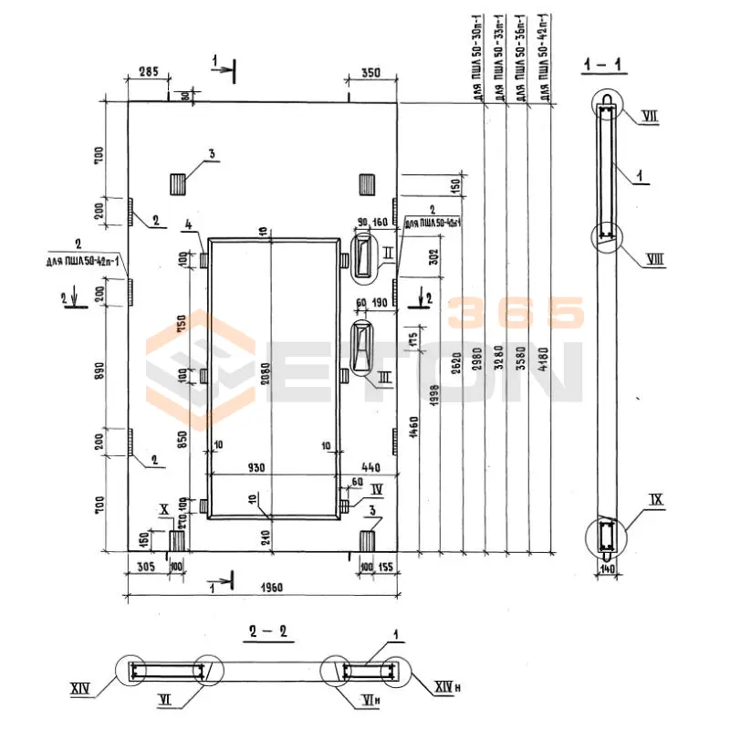
ПШЛ 50-30п-1 (1.089.1-2)
Панели шахт лифтов Серия 1.089.1-2
  • Длина 1960 мм.
  • Ширина 140 мм.
  • Высота 2980 мм.
  • Вес 1350 кг.
  • Объем бетона 0,54 м3
  • Геометрический объем 0,8177 м3
Цена: 19381 руб.
Подробнее
ПШЛ 50-30-4 (1.089.1-2)
Панели шахт лифтов Серия 1.089.1-2
  • Длина 1960 мм.
  • Ширина 140 мм.
  • Высота 2980 мм.
  • Вес 2050 кг.
  • Объем бетона 0,82 м3
  • Геометрический объем 0,8177 м3
Цена: 29430 руб.
Подробнее
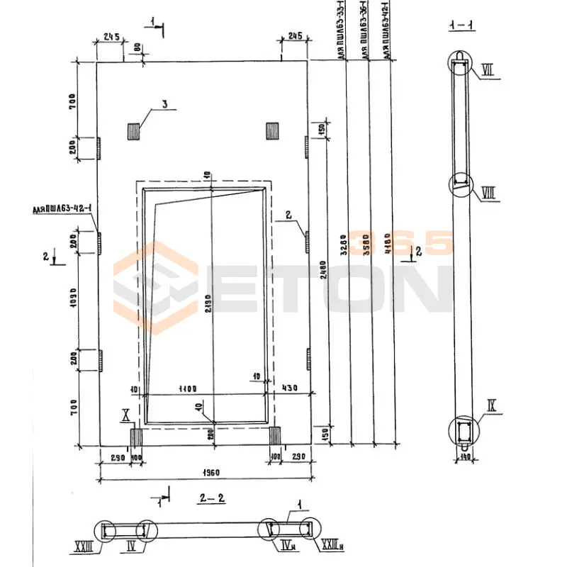
ПШЛ 50-33-1 (1.089.1-2)
Панели шахт лифтов Серия 1.089.1-2
  • Длина 1960 мм.
  • Ширина 140 мм.
  • Высота 3280 мм.
  • Вес 1550 кг.
  • Объем бетона 0,62 м3
  • Геометрический объем 0,9 м3
Цена: 22252 руб.
Подробнее
ПШЛ 50-30п-4 (1.089.1-2)
Панели шахт лифтов Серия 1.089.1-2
  • Длина 1660 мм.
  • Ширина 140 мм.
  • Высота 2980 мм.
  • Вес 1730 кг.
  • Объем бетона 0,69 м3
  • Геометрический объем 0,6926 м3
Цена: 24764 руб.
Подробнее
ПШЛ 50-33-2 (1.089.1-2)
Панели шахт лифтов Серия 1.089.1-2
  • Длина 1960 мм.
  • Ширина 140 мм.
  • Высота 3280 мм.
  • Вес 2250 кг.
  • Объем бетона 0,9 м3
  • Геометрический объем 0,9 м3
Цена: 32301 руб.
Подробнее
ПШЛ 50-33п-2 (1.089.1-2)
Панели шахт лифтов Серия 1.089.1-2
  • Длина 1660 мм.
  • Ширина 140 мм.
  • Высота 3280 мм.
  • Вес 1900 кг.
  • Объем бетона 0,76 м3
  • Геометрический объем 0,7623 м3
Цена: 27276 руб.
Подробнее
ПШЛ 50-33-3 (1.089.1-2)
Панели шахт лифтов Серия 1.089.1-2
  • Длина 1960 мм.
  • Ширина 140 мм.
  • Высота 3280 мм.
  • Вес 2250 кг.
  • Объем бетона 0,9 м3
  • Геометрический объем 0,9 м3
Цена: 32301 руб.
Подробнее
ПШЛ 50-33п-1 (1.089.1-2)
Панели шахт лифтов Серия 1.089.1-2
  • Длина 1960 мм.
  • Ширина 140 мм.
  • Высота 3280 мм.
  • Вес 1550 кг.
  • Объем бетона 0,62 м3
  • Геометрический объем 0,9 м3
Цена: 22252 руб.
Подробнее
ПШЛ 50-33-4 (1.089.1-2)
Панели шахт лифтов Серия 1.089.1-2
  • Длина 1960 мм.
  • Ширина 140 мм.
  • Высота 3280 мм.
  • Вес 2250 кг.
  • Объем бетона 0,9 м3
  • Геометрический объем 0,9 м3
Цена: 32301 руб.
Подробнее
ПШЛ 50-33п-3 (1.089.1-2)
Панели шахт лифтов Серия 1.089.1-2
  • Длина 1960 мм.
  • Ширина 140 мм.
  • Высота 3280 мм.
  • Вес 2250 кг.
  • Объем бетона 0,9 м3
  • Геометрический объем 0,9 м3
Цена: 32301 руб.
Подробнее
ПШЛ 50-33п-4 (1.089.1-2)
Панели шахт лифтов Серия 1.089.1-2
  • Длина 1660 мм.
  • Ширина 140 мм.
  • Высота 3280 мм.
  • Вес 1900 кг.
  • Объем бетона 0,76 м3
  • Геометрический объем 0,7623 м3
Цена: 27276 руб.
Подробнее
ПШЛ 50-36-2 (1.089.1-2)
Панели шахт лифтов Серия 1.089.1-2
  • Длина 1960 мм.
  • Ширина 140 мм.
  • Высота 3580 мм.
  • Вес 2450 кг.
  • Объем бетона 0,98 м3
  • Геометрический объем 0,9824 м3
Цена: 35172 руб.
Подробнее
ПШЛ 50-36-3 (1.089.1-2)
Панели шахт лифтов Серия 1.089.1-2
  • Длина 1960 мм.
  • Ширина 140 мм.
  • Высота 3580 мм.
  • Вес 2450 кг.
  • Объем бетона 0,98 м3
  • Геометрический объем 0,9824 м3
Цена: 35172 руб.
Подробнее
ПШЛ 50-36-1 (1.089.1-2)
Панели шахт лифтов Серия 1.089.1-2
  • Длина 1960 мм.
  • Ширина 140 мм.
  • Высота 3580 мм.
  • Вес 1750 кг.
  • Объем бетона 0,7 м3
  • Геометрический объем 0,9824 м3
Цена: 25123 руб.
Подробнее
ПШЛ 50-36-4 (1.089.1-2)
Панели шахт лифтов Серия 1.089.1-2
  • Длина 1960 мм.
  • Ширина 140 мм.
  • Высота 3580 мм.
  • Вес 2450 кг.
  • Объем бетона 0,98 м3
  • Геометрический объем 0,9824 м3
Цена: 35172 руб.
Подробнее
ПШЛ 50-36п-1 (1.089.1-2)
Панели шахт лифтов Серия 1.089.1-2
  • Длина 1960 мм.
  • Ширина 140 мм.
  • Высота 3580 мм.
  • Вес 1750 кг.
  • Объем бетона 0,7 м3
  • Геометрический объем 0,9824 м3
Цена: 25123 руб.
Подробнее
ПШЛ 50-36п-3 (1.089.1-2)
Панели шахт лифтов Серия 1.089.1-2
  • Длина 2160 мм.
  • Ширина 140 мм.
  • Высота 3580 мм.
  • Вес 2450 кг.
  • Объем бетона 0,98 м3
  • Геометрический объем 1,0826 м3
Цена: 35172 руб.
Подробнее
ПШЛ 50-36п-2 (1.089.1-2)
Панели шахт лифтов Серия 1.089.1-2
  • Длина 1660 мм.
  • Ширина 140 мм.
  • Высота 3580 мм.
  • Вес 2080 кг.
  • Объем бетона 0,83 м3
  • Геометрический объем 0,832 м3
Цена: 29789 руб.
Подробнее
ПШЛ 50-42-1 (1.089.1-2)
Панели шахт лифтов Серия 1.089.1-2
  • Длина 1960 мм.
  • Ширина 140 мм.
  • Высота 4180 мм.
  • Вес 2150 кг.
  • Объем бетона 0,86 м3
  • Геометрический объем 1,147 м3
Цена: 30865 руб.
Подробнее
ПШЛ 50-36п-4 (1.089.1-2)
Панели шахт лифтов Серия 1.089.1-2
  • Длина 1660 мм.
  • Ширина 140 мм.
  • Высота 3580 мм.
  • Вес 2080 кг.
  • Объем бетона 0,83 м3
  • Геометрический объем 0,832 м3
Цена: 29789 руб.
Подробнее
ПШЛ 50-42-2 (1.089.1-2)
Панели шахт лифтов Серия 1.089.1-2
  • Длина 1960 мм.
  • Ширина 140 мм.
  • Высота 4180 мм.
  • Вес 2870 кг.
  • Объем бетона 1,15 м3
  • Геометрический объем 1,147 м3
Цена: 41274 руб.
Подробнее

Как правильно выбрать - Панели шахт лифтов Серия 1.089.1-2

Панели шахт лифтов Серия 1.089.1-2 представляют собой сборные железобетонные элементы, предназначенные для возведения ограждающих конструкций лифтовых шахт в жилых, общественных и промышленных зданиях. Их ключевая функция – формирование жесткого каркаса шахты, обеспечивающего безопасную эксплуатацию лифтового оборудования. Долговечность и надежность всей системы зависят от грамотного выбора панелей шахт лифтов Серии 1.089.1-2 в строгом соответствии с проектными решениями и условиями строительства.

Критерии выбора

  • Технические параметры бетона: Панели должны изготавливаться из тяжелого бетона марки не ниже М300, с показателями морозостойкости F150-F200 и водонепроницаемости W4-W6, что критично для обеспечения долговечности конструкции.
  • Армирование: Обращайте внимание на класс арматуры (например, А400-А500С) и схему армирования, которая обеспечивает восприятие монтажных и эксплуатационных нагрузок, включая распор от лифтового оборудования.
  • Геометрия и конфигурация: Строго сверяйте типоразмеры (высоту, толщину, наличие и расположение проемов) с рабочими чертежами. Наличие монтажных петель и закладных деталей для стыковки является обязательным.
  • Соответствие нормам: Все изделия должны полностью соответствовать требованиям серии 1.089.1-2 и ГОСТ 13015-2012, что подтверждается паспортом качества и сертификатами.
  • Эксплуатационные нагрузки: Убедитесь, что выбранные панели шахт лифтов рассчитаны на конкретные нагрузки от оборудования и ветровые воздействия, характерные для региона строительства.

Рекомендации по подбору и монтажу

При закупке панелей шахт лифтов Серии 1.089.1-2 требуйте у поставщика полный комплект технической документации, включая схемы строповки и чертежи узлов сопряжения. Особое внимание уделите проверке геометрии и целостности кромок, так как даже незначительные отклонения усложнят монтаж и нарушат герметичность шахты. При проектировании необходимо заранее учесть расположение и тип анкерных креплений, а также совместимость с элементами примыкания перекрытий.

Монтаж панелей шахт лифтов данной серии должен выполняться на подготовленное основание с точным выверением вертикальности. Стыки между панелями необходимо герметизировать согласно проекту, чтобы исключить продувание и проникновение влаги. Использование грузоподъемной техники должно строго соответствовать схеме строповки, указанной в паспорте изделия, для предотвращения появления трещин.

Ответы экспертов на ваши вопросы

Основные преимущества включают:

  1. Сокращение сроков строительства за счет применения готовых железобетонных элементов
  2. Высокое качество заводского изготовления с точными геометрическими параметрами
  3. Снижение трудозатрат на строительной площадке
  4. Стандартизированные решения, проверенные многолетней практикой применения
  5. Возможность ведения работ в любое время года

Панели серии 1.089.1-2 изготавливаются из тяжелого бетона класса В15-В25, с армированием стальными каркасами. Основные размеры:

  • Высота: 2680 мм, 2980 мм
  • Толщина: 140 мм, 160 мм
  • Ширина: от 1180 мм до 2980 мм (в зависимости от типа панели)
  • Масса: от 1,0 до 2,5 тонн

Требования к монтажу и транспортировке:

  1. Транспортировка должна осуществляться в вертикальном положении с надежным креплением
  2. Монтаж производится с помощью кранов грузоподъемностью не менее 3-5 тонн
  3. Обязательна проверка вертикальности установки с помощью нивелира или теодолита
  4. Стыки между панелями герметизируются цементно-песчаным раствором
  5. Монтажные петли после установки должны загибаться вовнутрь

Для сейсмических районов предусмотрены специальные требования:

  1. Дополнительное армирование угловых зон и мест сопряжений
  2. Увеличение класса бетона до В25 и выше
  3. Применение дополнительных связей между панелями
  4. Обязательное анкерование панелей к междуэтажным перекрытиям
  5. Для районов с сейсмичностью 7-9 баллов требуется индивидуальное проектирование

Ограничения и условия хранения:

  1. Запрещается складирование панелей в горизонтальном положении более чем в 2 ряда
  2. Подкладки под панели должны располагаться вертикально друг над другом
  3. Не допускается хранение панелей с видимыми трещинами шириной более 0,3 мм
  4. Панели должны быть защищены от прямого воздействия атмосферных осадков
  5. Не рекомендуется применение при температуре ниже -40°C без дополнительных расчетов
Ранее смотрели
Балки Альбом СК Б 3 (Альбом СК)
Б 3 (Альбом СК)
Балки Альбом СК
Звенья железобетонные круглых водопропускных труб под железные и автомобильные дороги (Шифр 57-368) Блок 84 (полукольцо R-0,75)
Блок 84 (полукольцо R-0,75)
Звенья железобетонные круглых водопропускных труб под железные и автомобильные дороги (Шифр 57-368)
Обоймы усиления монолитные Серия Б3.008.1-2.08 ОУ 1 (Б3.008.1-2.08)
ОУ 1 (Б3.008.1-2.08)
Обоймы усиления монолитные Серия Б3.008.1-2.08
КЧ 11-17-16-150 т
КЧ 11-17-16-150 т
Контрфорсы Серия 1.169.1-1

Уведомление о файлах cookie

Мы используем файлы cookie для улучшения вашего опыта просмотра и анализа трафика. Нажимая "Принять все", вы соглашаетесь с нашей политикой конфиденциальности и политикой обработки файлов cookie.

Дзен Телеграм Вконтакте vk