mobile_sound +7 (930) 655-55-90

Панели стеновые плоские Серия 3.900.1-10

Поделиться:
Фильтр по характеристикам
Длина (мм.)
keyboard_arrow_down
мм.
мм.
Ширина (мм.)
keyboard_arrow_down
мм.
мм.
Высота (мм.)
keyboard_arrow_down
мм.
мм.
Вес (кг.)
keyboard_arrow_down
кг.
кг.
Поделиться:

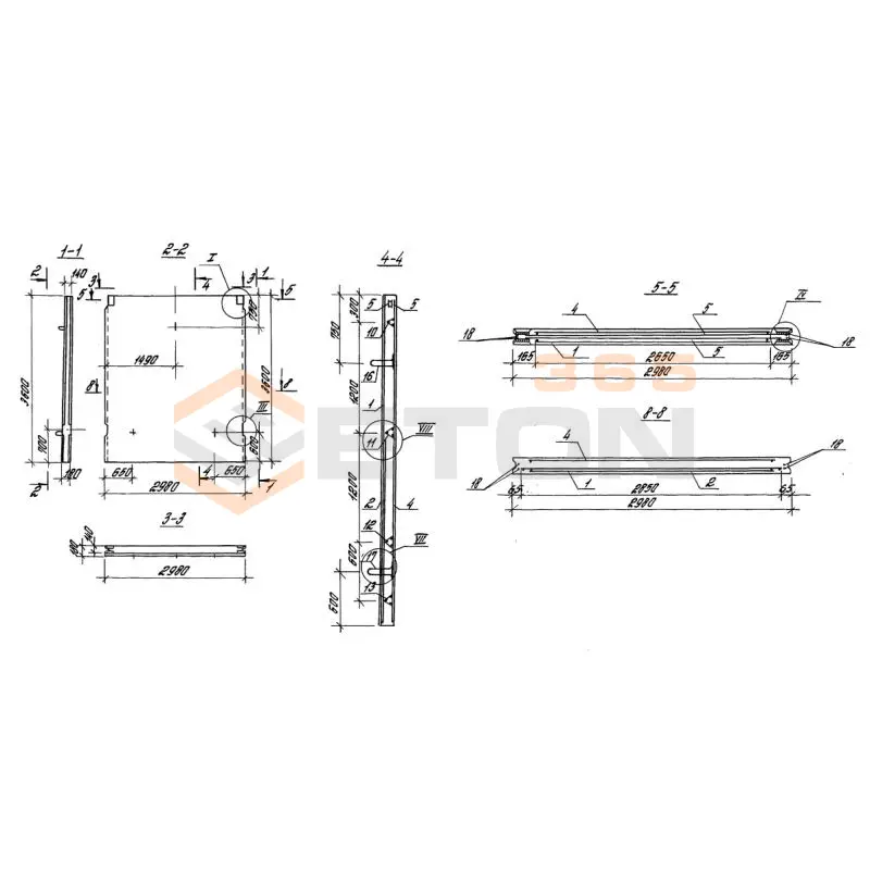
Завод "Бетон365" производит панели стеновые плоские серии 3.900.1-10 – универсальные железобетонные изделия для возведения несущих стен гражданских и промышленных зданий. Эти панели отличаются повышенной прочностью и точными геометрическими параметрами, что обеспечивает идеальную соосность конструкций и равномерное распределение нагрузок. Использование готовых стеновых элементов по ГОСТу позволяет значительно сократить сроки строительства и гарантировать долговечность объекта за счет исключения "мокрых" процессов и технологических простоев.

Мы реализуем стеновые панели серии 3.900.1-10 в Москве и Московской области по конкурентной цене от производителя. Вам доступны различные варианты поставки с гарантией качества и оперативной доставкой на объект. Для расчета стоимости и подбора оптимальных технических решений предлагаем связаться с нашими специалистами – они помогут оформить заказ и ответят на все вопросы.

ПС 1-24 б
Панели стеновые плоские Серия 3.900.1-10
  • Длина 2980 мм.
  • Ширина 2400 мм.
  • Высота 250 мм.
  • Вес 2700 кг.
  • Объем бетона 1,08 м3
  • Геометрический объем 1,788 м3
Цена: 36666 руб.
Подробнее
ПС 1-30 б
Панели стеновые плоские Серия 3.900.1-10
  • Длина 2980 мм.
  • Ширина 3000 мм.
  • Высота 250 мм.
  • Вес 3300 кг.
  • Объем бетона 1,33 м3
  • Геометрический объем 2,235 м3
Цена: 45154 руб.
Подробнее
ПС 1-42 б
Панели стеновые плоские Серия 3.900.1-10
  • Длина 2980 мм.
  • Ширина 4200 мм.
  • Высота 350 мм.
  • Вес 6100 кг.
  • Объем бетона 2,45 м3
  • Геометрический объем 4,3806 м3
Цена: 83178 руб.
Подробнее
ПС 1-48 б
Панели стеновые плоские Серия 3.900.1-10
  • Длина 2980 мм.
  • Ширина 4800 мм.
  • Высота 350 мм.
  • Вес 7100 кг.
  • Объем бетона 2,85 м3
  • Геометрический объем 5,0064 м3
Цена: 96758 руб.
Подробнее
ПС 1-36 б
Панели стеновые плоские Серия 3.900.1-10
  • Длина 2980 мм.
  • Ширина 3600 мм.
  • Высота 350 мм.
  • Вес 4700 кг.
  • Объем бетона 1,86 м3
  • Геометрический объем 3,7548 м3
Цена: 63147 руб.
Подробнее
ПС 1-60 б
Панели стеновые плоские Серия 3.900.1-10
  • Длина 2980 мм.
  • Ширина 6000 мм.
  • Высота 350 мм.
  • Вес 10600 кг.
  • Объем бетона 4,23 м3
  • Геометрический объем 6,258 м3
Цена: 143609 руб.
Подробнее
ПС 2-24 к
Панели стеновые плоские Серия 3.900.1-10
  • Длина 2980 мм.
  • Ширина 2400 мм.
  • Высота 140 мм.
  • Вес 250 кг.
  • Объем бетона 0,99 м3
  • Геометрический объем 1,0013 м3
Цена: 33611 руб.
Подробнее
ПС 2-24 к у
Панели стеновые плоские Серия 3.900.1-10
  • Длина 2980 мм.
  • Ширина 2400 мм.
  • Высота 140 мм.
  • Вес 2500 кг.
  • Объем бетона 0,99 м3
  • Геометрический объем 1,0013 м3
Цена: 33611 руб.
Подробнее
ПС 1-54 б
Панели стеновые плоские Серия 3.900.1-10
  • Длина 2980 мм.
  • Ширина 5400 мм.
  • Высота 350 мм.
  • Вес 9200 кг.
  • Объем бетона 3,66 м3
  • Геометрический объем 5,6322 м3
Цена: 124257 руб.
Подробнее
ПС 2-30 к
Панели стеновые плоские Серия 3.900.1-10
  • Длина 2980 мм.
  • Ширина 3000 мм.
  • Высота 140 мм.
  • Вес 3100 кг.
  • Объем бетона 1,24 м3
  • Геометрический объем 1,2516 м3
Цена: 42098 руб.
Подробнее
ПС 2-24 кн у
Панели стеновые плоские Серия 3.900.1-10
  • Длина 2980 мм.
  • Ширина 2400 мм.
  • Высота 140 мм.
  • Вес 2500 кг.
  • Объем бетона 0,99 м3
  • Геометрический объем 1,0013 м3
Цена: 33611 руб.
Подробнее
ПС 2-24 кн
Панели стеновые плоские Серия 3.900.1-10
  • Длина 2980 мм.
  • Ширина 2400 мм.
  • Высота 140 мм.
  • Вес 2500 кг.
  • Объем бетона 0,99 м3
  • Геометрический объем 1,0013 м3
Цена: 33611 руб.
Подробнее
ПС 2-30 кн
Панели стеновые плоские Серия 3.900.1-10
  • Длина 2980 мм.
  • Ширина 3000 мм.
  • Высота 140 мм.
  • Вес 3100 кг.
  • Объем бетона 1,24 м3
  • Геометрический объем 1,2516 м3
Цена: 42098 руб.
Подробнее
ПС 2-30 к у
Панели стеновые плоские Серия 3.900.1-10
  • Длина 2980 мм.
  • Ширина 3000 мм.
  • Высота 140 мм.
  • Вес 3100 кг.
  • Объем бетона 1,24 м3
  • Геометрический объем 1,2516 м3
Цена: 42098 руб.
Подробнее
ПС 2-36 кн
Панели стеновые плоские Серия 3.900.1-10
  • Длина 2980 мм.
  • Ширина 3600 мм.
  • Высота 180 мм.
  • Вес 4300 кг.
  • Объем бетона 1,7 м3
  • Геометрический объем 1,931 м3
Цена: 57715 руб.
Подробнее
ПС 2-36 к у
Панели стеновые плоские Серия 3.900.1-10
  • Длина 2980 мм.
  • Ширина 3600 мм.
  • Высота 180 мм.
  • Вес 4300 кг.
  • Объем бетона 1,7 м3
  • Геометрический объем 1,931 м3
Цена: 57715 руб.
Подробнее
ПС 2-30 кн у
Панели стеновые плоские Серия 3.900.1-10
  • Длина 2980 мм.
  • Ширина 3000 мм.
  • Высота 250 мм.
  • Вес 3100 кг.
  • Объем бетона 1,24 м3
  • Геометрический объем 2,235 м3
Цена: 42098 руб.
Подробнее
ПС 2-36 к
Панели стеновые плоские Серия 3.900.1-10
  • Длина 2980 мм.
  • Ширина 3600 мм.
  • Высота 180 мм.
  • Вес 4300 кг.
  • Объем бетона 1,7 м3
  • Геометрический объем 1,931 м3
Цена: 57715 руб.
Подробнее
ПС 2-36 б
Панели стеновые плоские Серия 3.900.1-10
  • Длина 2980 мм.
  • Ширина 3600 мм.
  • Высота 180 мм.
  • Вес 4300 кг.
  • Объем бетона 1,7 м3
  • Геометрический объем 1,931 м3
Цена: 57715 руб.
Подробнее
ПС 2-36 кн у
Панели стеновые плоские Серия 3.900.1-10
  • Длина 2980 мм.
  • Ширина 3600 мм.
  • Высота 180 мм.
  • Вес 4300 кг.
  • Объем бетона 1,7 м3
  • Геометрический объем 1,931 м3
Цена: 57715 руб.
Подробнее
ПС 2-42 к
Панели стеновые плоские Серия 3.900.1-10
  • Длина 2980 мм.
  • Ширина 4200 мм.
  • Высота 230 мм.
  • Вес 3100 кг.
  • Объем бетона 1,24 м3
  • Геометрический объем 2,8787 м3
Цена: 42098 руб.
Подробнее
ПС 2-42 кн
Панели стеновые плоские Серия 3.900.1-10
  • Длина 2980 мм.
  • Ширина 4200 мм.
  • Высота 230 мм.
  • Вес 5700 кг.
  • Объем бетона 2,29 м3
  • Геометрический объем 2,8787 м3
Цена: 77746 руб.
Подробнее
ПС 2-48 б
Панели стеновые плоские Серия 3.900.1-10
  • Длина 2980 мм.
  • Ширина 4800 мм.
  • Высота 240 мм.
  • Вес 6700 кг.
  • Объем бетона 2,69 м3
  • Геометрический объем 3,433 м3
Цена: 91326 руб.
Подробнее
ПС 2-42 к у
Панели стеновые плоские Серия 3.900.1-10
  • Длина 2980 мм.
  • Ширина 4200 мм.
  • Высота 230 мм.
  • Вес 5700 кг.
  • Объем бетона 2,29 м3
  • Геометрический объем 2,8787 м3
Цена: 77746 руб.
Подробнее
ПС 2-48 к
Панели стеновые плоские Серия 3.900.1-10
  • Длина 2980 мм.
  • Ширина 4800 мм.
  • Высота 240 мм.
  • Вес 6700 кг.
  • Объем бетона 2,69 м3
  • Геометрический объем 3,433 м3
Цена: 91326 руб.
Подробнее
ПС 2-42 кн у
Панели стеновые плоские Серия 3.900.1-10
  • Длина 2980 мм.
  • Ширина 4200 мм.
  • Высота 230 мм.
  • Вес 5700 кг.
  • Объем бетона 2,29 м3
  • Геометрический объем 2,8787 м3
Цена: 77746 руб.
Подробнее
ПС 2-48 к у
Панели стеновые плоские Серия 3.900.1-10
  • Длина 2980 мм.
  • Ширина 4800 мм.
  • Высота 240 мм.
  • Вес 6700 кг.
  • Объем бетона 2,69 м3
  • Геометрический объем 3,433 м3
Цена: 91326 руб.
Подробнее
ПС 2-48 кн у
Панели стеновые плоские Серия 3.900.1-10
  • Длина 2980 мм.
  • Ширина 4800 мм.
  • Высота 240 мм.
  • Вес 6700 кг.
  • Объем бетона 2,69 м3
  • Геометрический объем 3,433 м3
Цена: 91326 руб.
Подробнее
ПС 2-54 к
Панели стеновые плоские Серия 3.900.1-10
  • Длина 2980 мм.
  • Ширина 5400 мм.
  • Высота 300 мм.
  • Вес 8800 кг.
  • Объем бетона 3,5 м3
  • Геометрический объем 4,8276 м3
Цена: 118825 руб.
Подробнее
ПС 2-54 кн
Панели стеновые плоские Серия 3.900.1-10
  • Длина 2980 мм.
  • Ширина 5400 мм.
  • Высота 300 мм.
  • Вес 8800 кг.
  • Объем бетона 3,5 м3
  • Геометрический объем 4,8276 м3
Цена: 118825 руб.
Подробнее
ПС 2-48 кн
Панели стеновые плоские Серия 3.900.1-10
  • Длина 2980 мм.
  • Ширина 4800 мм.
  • Высота 240 мм.
  • Вес 6700 кг.
  • Объем бетона 2,69 м3
  • Геометрический объем 3,433 м3
Цена: 91326 руб.
Подробнее
ПС 2-54 к у
Панели стеновые плоские Серия 3.900.1-10
  • Длина 2980 мм.
  • Ширина 5400 мм.
  • Высота 300 мм.
  • Вес 8800 кг.
  • Объем бетона 3,5 м3
  • Геометрический объем 4,8276 м3
Цена: 118825 руб.
Подробнее
ПС 2-54 кн у
Панели стеновые плоские Серия 3.900.1-10
  • Длина 2980 мм.
  • Ширина 5400 мм.
  • Высота 300 мм.
  • Вес 8800 кг.
  • Объем бетона 3,5 м3
  • Геометрический объем 4,8276 м3
Цена: 118825 руб.
Подробнее
ПС 2-60 к
Панели стеновые плоские Серия 3.900.1-10
  • Длина 2980 мм.
  • Ширина 6000 мм.
  • Высота 320 мм.
  • Вес 10200 кг.
  • Объем бетона 4,07 м3
  • Геометрический объем 5,7216 м3
Цена: 138177 руб.
Подробнее
ПС 2-60 кн у
Панели стеновые плоские Серия 3.900.1-10
  • Длина 2980 мм.
  • Ширина 6000 мм.
  • Высота 320 мм.
  • Вес 10200 кг.
  • Объем бетона 4,07 м3
  • Геометрический объем 5,7216 м3
Цена: 138177 руб.
Подробнее
ПС 2-60 кн
Панели стеновые плоские Серия 3.900.1-10
  • Длина 2980 мм.
  • Ширина 6000 мм.
  • Высота 320 мм.
  • Вес 10200 кг.
  • Объем бетона 4,07 м3
  • Геометрический объем 5,7216 м3
Цена: 138177 руб.
Подробнее
ПС 2-60 к у
Панели стеновые плоские Серия 3.900.1-10
  • Длина 2980 мм.
  • Ширина 6000 мм.
  • Высота 320 мм.
  • Вес 10200 кг.
  • Объем бетона 4,07 м3
  • Геометрический объем 5,7216 м3
Цена: 138177 руб.
Подробнее

Как правильно выбрать - Панели стеновые плоские Серия 3.900.1-10

Панели стеновые плоские Серия 3.900.1-10 предназначены для возведения несущих и самонесущих стен промышленных, гражданских и сельскохозяйственных зданий. Они обеспечивают пространственную жесткость каркаса и формируют тепловой контур сооружения. Долговечность и надежность всей конструкции напрямую зависят от грамотного выбора панелей, соответствующих проектным расчетам и специфическим условиям площадки.

Критерии выбора

  • Класс бетона и морозостойкость: Для большинства изделий серии 3.900.1-10 применяется тяжелый бетон класса не ниже В15 (М200) с морозостойкостью F100-F150, что обеспечивает необходимую несущую способность и долговечность в условиях российского климата.
  • Типоразмеры и конфигурация: Внимательно сверяйте габаритные размеры (длину, высоту, толщину) и схему армирования с рабочими чертежами. Панели могут иметь различную толщину, определяющую их теплотехнические свойства.
  • Наличие закладных деталей: Проверьте расположение и тип монтажных петель, а также других закладных элементов (для крепления облицовки, связей с каркасом). Их соответствие проекту критически важно для безопасного монтажа.
  • Расчетные нагрузки: Убедитесь, что выбранные панели стеновые плоские рассчитаны на восприятие ветровых нагрузок, нагрузок от вышележащих конструкций и собственного веса, указанных в проектной документации.
  • Соответствие нормам: Все изделия должны изготавливаться в строгом соответствии с требованиями серии 3.900.1-10 и ГОСТ 12504-80, что подтверждается паспортом качества завода-изготовителя.

Рекомендации по подбору и монтажу

При составлении спецификации на панели стеновые плоские Серия 3.900.1-10 обязательно учитывайте климатический район строительства для корректного подбора марки бетона по морозостойкости. Требуйте от поставщика комплектную отгрузку партии с полным комплектом паспортов, чтобы избежать задержек из-за несоответствия документации.

На этапе монтажа особое внимание уделите подготовке опорной поверхности. Укладка панелей должна производиться на выверенный по проектным отметкам слой цементно-песчаного раствора. Строповку выполняйте за все предусмотренные монтажные петли, исключая перекосы. Сразу после установки закрепите панели сваркой закладных деталей к элементам каркаса для обеспечения устойчивости до окончательной обвязки всего контура здания.

Ответы экспертов на ваши вопросы

Панели стеновые плоские серии 3.900.1-10 предназначены для возведения наружных и внутренних стен в жилых, общественных и промышленных зданиях. Они широко используются в панельном домостроении, при строительстве административных зданий, а также в качестве ограждающих конструкций в производственных помещениях. Панели обеспечивают высокую скорость монтажа и соответствуют современным требованиям по тепловой защите зданий.

Основные преимущества включают: высокую заводскую готовность (панели поступают на объект с готовой отделкой), значительную скорость возведения здания, высокую прочность и долговечность, соответствие требованиям пожарной безопасности, а также хорошие теплотехнические характеристики при правильном исполнении. Это позволяет сократить сроки строительства и трудозатраты на объекте.

Панели серии 3.900.1-10 имеют типовые размеры: высота этажа (обычно 2,8 м), длина может варьироваться от 3,0 до 6,0 м с шагом 0,3 м, толщина составляет 300, 350 или 400 мм в зависимости от климатического района строительства. Маркировка включает буквенно-цифровое обозначение, где указывается тип панели (например, НС - наружная стеновая), размеры в дециметрах и дополнительные характеристики.

Панели изготавливаются из тяжелого бетона классов В15-В25, с армированием стальной арматурой классов А-I, А-III. Конструктивно представляют собой трехслойные изделия: наружный и внутренний бетонные слои, между которыми расположен эффективный утеплитель (минераловатные плиты или пенополистирол). Слои соединены между собой гибкими связями из нержавеющей или оцинкованной стали.

При монтаже необходимо обеспечить: точную установку панелей по проектным отметкам, правильное заполнение вертикальных и горизонтальных стыков герметизирующими материалами, надежное соединение панелей между собой и с другими конструкциями здания с помощью закладных деталей. Особое внимание уделяется теплозащите стыков и отсутствию мостиков холода. Монтаж осуществляется с применением грузоподъемных механизмов соответствующей грузоподъемности.

Ранее смотрели
Откосные стенки серия 3.501.1-144 ( Серия 3.501-59, шифр 1484 ) Блок 78 л
Блок 78 л
Откосные стенки серия 3.501.1-144 ( Серия 3.501-59, шифр 1484 )
Плиты тротуарные Серия 3.501-108 П 4 с (3.501-108)
П 4 с (3.501-108)
Плиты тротуарные Серия 3.501-108
Колонны витринные Альбом 55 НТ КВ 240 (Альбом 55 НТ)
КВ 240 (Альбом 55 НТ)
Колонны витринные Альбом 55 НТ
Плиты тротуарные Серия 3.501-108 П 17 с
П 17 с
Плиты тротуарные Серия 3.501-108
Плиты тротуарные Серия 3.501-108 П 3 с (3.501-108)
П 3 с (3.501-108)
Плиты тротуарные Серия 3.501-108
Плиты тротуарные Серия 3.501-108 П 5 с (3.501-108)
П 5 с (3.501-108)
Плиты тротуарные Серия 3.501-108
Панели перекрытия ребристые Серия 1.220.1-2 ПР 58-15-8 АтVт
ПР 58-15-8 АтVт
Панели перекрытия ребристые Серия 1.220.1-2
Насадки для устоев и промежуточных опор Серия 3.501.1-150 3НУм 27-1
3НУм 27-1
Насадки для устоев и промежуточных опор Серия 3.501.1-150

Уведомление о файлах cookie

Мы используем файлы cookie для улучшения вашего опыта просмотра и анализа трафика. Нажимая "Принять все", вы соглашаетесь с нашей политикой конфиденциальности и политикой обработки файлов cookie.

Дзен Телеграм Вконтакте vk