mobile_sound +7 (930) 655-55-90

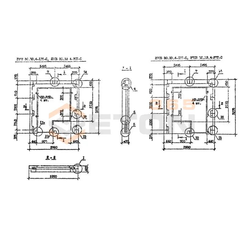
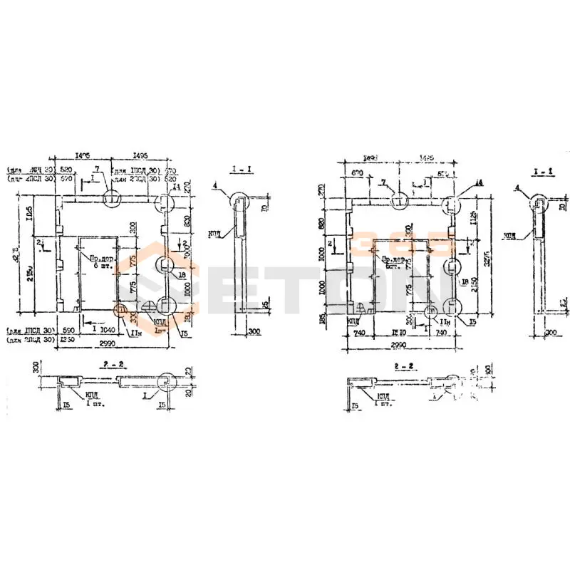
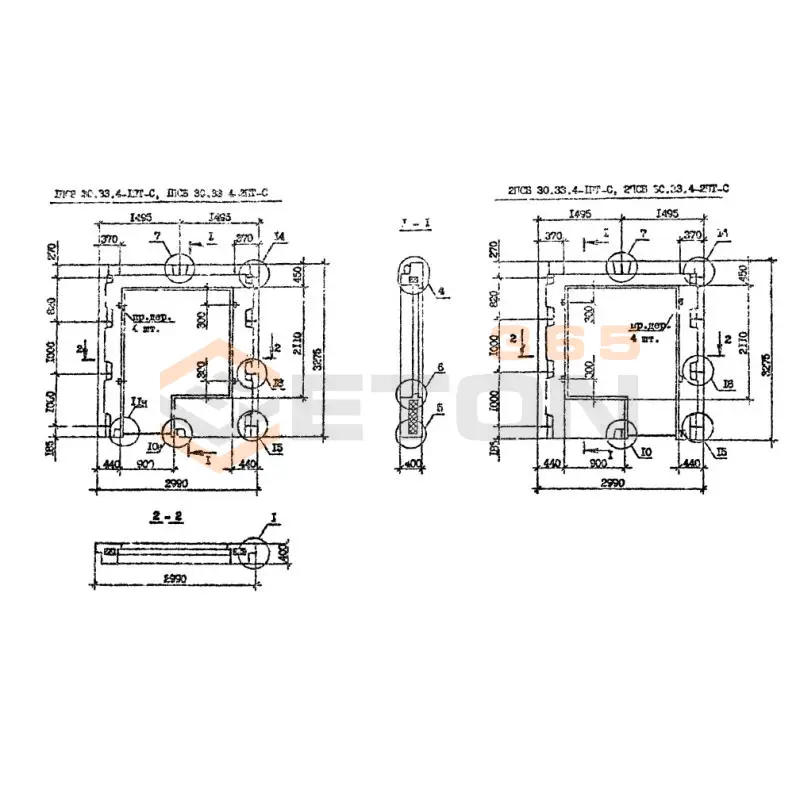
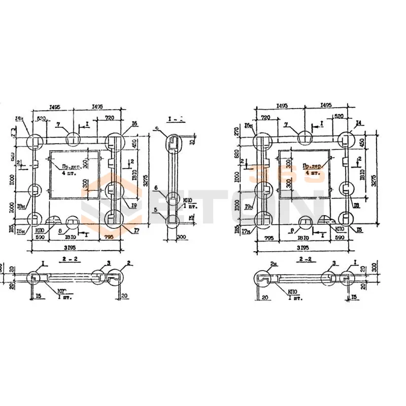
Панели наружных стен Серия 1.090.1-7с

Поделиться:
Фильтр по характеристикам
Длина (мм.)
keyboard_arrow_down
мм.
мм.
Ширина (мм.)
keyboard_arrow_down
мм.
мм.
Высота (мм.)
keyboard_arrow_down
мм.
мм.
Вес (кг.)
keyboard_arrow_down
кг.
кг.
Объем бетона (м3)
keyboard_arrow_down
м3
м3
Поделиться:

Завод "Бетон365" производит панели наружных стен серии 1.090.1-7с – ключевые элементы для быстрого возведения надежных ограждающих конструкций зданий различного назначения. Эти железобетонные изделия соответствуют строгим требованиям ГОСТ и характеризуются повышенной морозостойкостью, что обеспечивает долговечность фасадной системы и оптимальные теплотехнические показатели. Применение готовых стеновых панелей позволяет существенно сократить сроки монтажа при одновременном обеспечении высокой пространственной жесткости сооружения.

Мы реализуем панели наружных стен серии 1.090.1-7с в Москве и МО по конкурентной цене от производителя, с полным комплектом документов и гарантией качества. Предлагаем профессиональный расчет необходимого количества изделий и оперативную доставку на объект специальным транспортом. Для получения детальной консультации и оформления заказа свяжитесь с нашими специалистами!

1ПС 15-33-4 птс9 (1.090.1-7с)
Панели наружных стен Серия 1.090.1-7с
  • Длина 1495 мм.
  • Ширина 400 мм.
  • Высота 3275 мм.
  • Вес 1600 кг.
  • Объем бетона 1,33 м3
  • Геометрический объем 1,9585 м3
Цена: 45154 руб.
Подробнее
1ПС 15-33-4 пс (1.090.1-7с)
Панели наружных стен Серия 1.090.1-7с
  • Длина 1495 мм.
  • Ширина 400 мм.
  • Высота 3275 мм.
  • Вес 1670 кг.
  • Объем бетона 1,52 м3
  • Геометрический объем 1,9585 м3
Цена: 51604 руб.
Подробнее
1ПС 14-33-3 пс (1.090.1-7с)
Панели наружных стен Серия 1.090.1-7с
  • Длина 1395 мм.
  • Ширина 300 мм.
  • Высота 3275 мм.
  • Вес 1270 кг.
  • Объем бетона 1,06 м3
  • Геометрический объем 1,3706 м3
Цена: 35987 руб.
Подробнее
1ПС 15-33-4 птс (1.090.1-7с)
Панели наружных стен Серия 1.090.1-7с
  • Длина 1495 мм.
  • Ширина 400 мм.
  • Высота 3275 мм.
  • Вес 1600 кг.
  • Объем бетона 1,33 м3
  • Геометрический объем 1,9585 м3
Цена: 45154 руб.
Подробнее
1ПС 14-33-3 пс9 (1.090.1-7с)
Панели наружных стен Серия 1.090.1-7с
  • Длина 1395 мм.
  • Ширина 300 мм.
  • Высота 3275 мм.
  • Вес 1330 кг.
  • Объем бетона 1,06 м3
  • Геометрический объем 1,3706 м3
Цена: 35987 руб.
Подробнее
1ПС 15-33-4 пс9 (1.090.1-7с)
Панели наружных стен Серия 1.090.1-7с
  • Длина 1495 мм.
  • Ширина 400 мм.
  • Высота 3275 мм.
  • Вес 1670 кг.
  • Объем бетона 1,52 м3
  • Геометрический объем 1,9585 м3
Цена: 51604 руб.
Подробнее
1ПС 32-33-3 пс (1.090.1-7с)
Панели наружных стен Серия 1.090.1-7с
  • Длина 3195 мм.
  • Ширина 300 мм.
  • Высота 3275 мм.
  • Вес 3140 кг.
  • Объем бетона 2,66 м3
  • Геометрический объем 3,1391 м3
Цена: 90307 руб.
Подробнее
1ПС 32-25-3 пс9 (1.090.1-7с)
Панели наружных стен Серия 1.090.1-7с
  • Длина 3195 мм.
  • Ширина 300 мм.
  • Высота 2460 мм.
  • Вес 2270 кг.
  • Объем бетона 1,86 м3
  • Геометрический объем 2,3579 м3
Цена: 63147 руб.
Подробнее
1ПС 32-25-3 пс (1.090.1-7с)
Панели наружных стен Серия 1.090.1-7с
  • Длина 3195 мм.
  • Ширина 300 мм.
  • Высота 2460 мм.
  • Вес 2270 кг.
  • Объем бетона 1,86 м3
  • Геометрический объем 2,3579 м3
Цена: 63147 руб.
Подробнее
1ПС 32-9-3 пс9 (1.090.1-7с)
Панели наружных стен Серия 1.090.1-7с
  • Длина 3195 мм.
  • Ширина 300 мм.
  • Высота 875 мм.
  • Вес 820 кг.
  • Объем бетона 0,66 м3
  • Геометрический объем 0,8387 м3
Цена: 22407 руб.
Подробнее
1ПС 33-25-4 пс (1.090.1-7с)
Панели наружных стен Серия 1.090.1-7с
  • Длина 3295 мм.
  • Ширина 400 мм.
  • Высота 2460 мм.
  • Вес 3080 кг.
  • Объем бетона 2,59 м3
  • Геометрический объем 3,2423 м3
Цена: 87931 руб.
Подробнее
1ПС 32-33-3 пс9 (1.090.1-7с)
Панели наружных стен Серия 1.090.1-7с
  • Длина 3195 мм.
  • Ширина 300 мм.
  • Высота 3275 мм.
  • Вес 3300 кг.
  • Объем бетона 2,66 м3
  • Геометрический объем 3,1391 м3
Цена: 90307 руб.
Подробнее
1ПС 32-9-3 пс (1.090.1-7с)
Панели наружных стен Серия 1.090.1-7с
  • Длина 3195 мм.
  • Ширина 300 мм.
  • Высота 875 мм.
  • Вес 820 кг.
  • Объем бетона 0,66 м3
  • Геометрический объем 0,8387 м3
Цена: 22407 руб.
Подробнее
1ПС 33-25-4 пс9 (1.090.1-7с)
Панели наружных стен Серия 1.090.1-7с
  • Длина 3295 мм.
  • Ширина 400 мм.
  • Высота 2460 мм.
  • Вес 3080 кг.
  • Объем бетона 2,59 м3
  • Геометрический объем 3,2423 м3
Цена: 87931 руб.
Подробнее
1ПС 33-33-4 пс9 (1.090.1-7с)
Панели наружных стен Серия 1.090.1-7с
  • Длина 3295 мм.
  • Ширина 400 мм.
  • Высота 3275 мм.
  • Вес 4080 кг.
  • Объем бетона 3,7 м3
  • Геометрический объем 4,3164 м3
Цена: 125615 руб.
Подробнее
1ПС 33-25-4 птс9 (1.090.1-7с)
Панели наружных стен Серия 1.090.1-7с
  • Длина 3295 мм.
  • Ширина 400 мм.
  • Высота 2460 мм.
  • Вес 2450 кг.
  • Объем бетона 2,22 м3
  • Геометрический объем 3,2423 м3
Цена: 75369 руб.
Подробнее
1ПС 33-33-4 пс (1.090.1-7с)
Панели наружных стен Серия 1.090.1-7с
  • Длина 3295 мм.
  • Ширина 400 мм.
  • Высота 3275 мм.
  • Вес 4080 кг.
  • Объем бетона 3,7 м3
  • Геометрический объем 4,3164 м3
Цена: 125615 руб.
Подробнее
1ПС 33-33-4 птс (1.090.1-7с)
Панели наружных стен Серия 1.090.1-7с
  • Длина 3295 мм.
  • Ширина 400 мм.
  • Высота 3275 мм.
  • Вес 3770 кг.
  • Объем бетона 3,12 м3
  • Геометрический объем 4,3164 м3
Цена: 105924 руб.
Подробнее
1ПС 33-25-4 птс (1.090.1-7с)
Панели наружных стен Серия 1.090.1-7с
  • Длина 3295 мм.
  • Ширина 400 мм.
  • Высота 2460 мм.
  • Вес 2450 кг.
  • Объем бетона 2,22 м3
  • Геометрический объем 3,2423 м3
Цена: 75369 руб.
Подробнее
1ПС 33-33-4 птс9 (1.090.1-7с)
Панели наружных стен Серия 1.090.1-7с
  • Длина 3295 мм.
  • Ширина 400 мм.
  • Высота 3275 мм.
  • Вес 3770 кг.
  • Объем бетона 3,12 м3
  • Геометрический объем 4,3164 м3
Цена: 105924 руб.
Подробнее
1ПС 33-9-4 пс (1.090.1-7с)
Панели наружных стен Серия 1.090.1-7с
  • Длина 3295 мм.
  • Ширина 400 мм.
  • Высота 875 мм.
  • Вес 1080 кг.
  • Объем бетона 0,9 м3
  • Геометрический объем 1,1533 м3
Цена: 30555 руб.
Подробнее
1ПС 33-9-4 птс (1.090.1-7с)
Панели наружных стен Серия 1.090.1-7с
  • Длина 3295 мм.
  • Ширина 400 мм.
  • Высота 875 мм.
  • Вес 920 кг.
  • Объем бетона 0,83 м3
  • Геометрический объем 1,1533 м3
Цена: 28179 руб.
Подробнее
1ПС 33-9-4 пс9 (1.090.1-7с)
Панели наружных стен Серия 1.090.1-7с
  • Длина 3295 мм.
  • Ширина 400 мм.
  • Высота 875 мм.
  • Вес 1080 кг.
  • Объем бетона 0,9 м3
  • Геометрический объем 1,1533 м3
Цена: 30555 руб.
Подробнее
1ПСБ 30-33-3-1 пс (1.090.1-7с)
Панели наружных стен Серия 1.090.1-7с
  • Длина 2990 мм.
  • Ширина 300 мм.
  • Высота 3275 мм.
  • Вес 1320 кг.
  • Объем бетона 1,14 м3
  • Геометрический объем 2,9377 м3
Цена: 38703 руб.
Подробнее
1ПС 33-9-4 птс9 (1.090.1-7с)
Панели наружных стен Серия 1.090.1-7с
  • Длина 3295 мм.
  • Ширина 400 мм.
  • Высота 875 мм.
  • Вес 920 кг.
  • Объем бетона 0,83 м3
  • Геометрический объем 1,1533 м3
Цена: 28179 руб.
Подробнее
1ПСБ 30-33-3-2 пс (1.090.1-7с)
Панели наружных стен Серия 1.090.1-7с
  • Длина 2990 мм.
  • Ширина 300 мм.
  • Высота 3275 мм.
  • Вес 1320 кг.
  • Объем бетона 1,14 м3
  • Геометрический объем 2,9377 м3
Цена: 38703 руб.
Подробнее
1ПСБ 30-33-3-1 пс9 (1.090.1-7с)
Панели наружных стен Серия 1.090.1-7с
  • Длина 2990 мм.
  • Ширина 300 мм.
  • Высота 3275 мм.
  • Вес 1400 кг.
  • Объем бетона 1,14 м3
  • Геометрический объем 2,9377 м3
Цена: 38703 руб.
Подробнее
1ПСБ 30-33-3-2 пс9 (1.090.1-7с)
Панели наружных стен Серия 1.090.1-7с
  • Длина 2990 мм.
  • Ширина 300 мм.
  • Высота 3275 мм.
  • Вес 1400 кг.
  • Объем бетона 1,14 м3
  • Геометрический объем 2,9377 м3
Цена: 38703 руб.
Подробнее
1ПСБ 30-33-4-1 пс (1.090.1-7с)
Панели наружных стен Серия 1.090.1-7с
  • Длина 2990 мм.
  • Ширина 400 мм.
  • Высота 3275 мм.
  • Вес 1670 кг.
  • Объем бетона 1,53 м3
  • Геометрический объем 3,9169 м3
Цена: 51944 руб.
Подробнее
1ПСБ 30-33-4-1 птс9 (1.090.1-7с)
Панели наружных стен Серия 1.090.1-7с
  • Длина 2990 мм.
  • Ширина 400 мм.
  • Высота 3275 мм.
  • Вес 1690 кг.
  • Объем бетона 1,4 м3
  • Геометрический объем 3,9169 м3
Цена: 47530 руб.
Подробнее
1ПСБ 30-33-4-1 пс9 (1.090.1-7с)
Панели наружных стен Серия 1.090.1-7с
  • Длина 2990 мм.
  • Ширина 400 мм.
  • Высота 3275 мм.
  • Вес 1670 кг.
  • Объем бетона 1,53 м3
  • Геометрический объем 3,9169 м3
Цена: 51944 руб.
Подробнее
1ПСБ 30-33-4-2 пс (1.090.1-7с)
Панели наружных стен Серия 1.090.1-7с
  • Длина 2990 мм.
  • Ширина 400 мм.
  • Высота 3275 мм.
  • Вес 1670 кг.
  • Объем бетона 1,53 м3
  • Геометрический объем 3,9169 м3
Цена: 51944 руб.
Подробнее
1ПСБ 30-33-4-2 пс9 (1.090.1-7с)
Панели наружных стен Серия 1.090.1-7с
  • Длина 2990 мм.
  • Ширина 400 мм.
  • Высота 3275 мм.
  • Вес 1670 кг.
  • Объем бетона 1,53 м3
  • Геометрический объем 3,9169 м3
Цена: 51944 руб.
Подробнее
1ПСБ 30-33-4-1 птс (1.090.1-7с)
Панели наружных стен Серия 1.090.1-7с
  • Длина 2990 мм.
  • Ширина 400 мм.
  • Высота 3275 мм.
  • Вес 1690 кг.
  • Объем бетона 1,4 м3
  • Геометрический объем 3,9169 м3
Цена: 47530 руб.
Подробнее
1ПСБ 30-33-4-2 птс (1.090.1-7с)
Панели наружных стен Серия 1.090.1-7с
  • Длина 2990 мм.
  • Ширина 400 мм.
  • Высота 3275 мм.
  • Вес 1690 кг.
  • Объем бетона 1,4 м3
  • Геометрический объем 3,9169 м3
Цена: 47530 руб.
Подробнее
1ПСД 30-33-3-1 пс (1.090.1-7с)
Панели наружных стен Серия 1.090.1-7с
  • Длина 2990 мм.
  • Ширина 300 мм.
  • Высота 3275 мм.
  • Вес 2270 кг.
  • Объем бетона 1,84 м3
  • Геометрический объем 2,9377 м3
Цена: 62468 руб.
Подробнее
1ПСД 30-33-3-1 пс9 (1.090.1-7с)
Панели наружных стен Серия 1.090.1-7с
  • Длина 2990 мм.
  • Ширина 300 мм.
  • Высота 3275 мм.
  • Вес 2290 кг.
  • Объем бетона 1,84 м3
  • Геометрический объем 2,9377 м3
Цена: 62468 руб.
Подробнее
1ПСБ 30-33-4-2 птс9 (1.090.1-7с)
Панели наружных стен Серия 1.090.1-7с
  • Длина 2990 мм.
  • Ширина 400 мм.
  • Высота 3275 мм.
  • Вес 1690 кг.
  • Объем бетона 1,4 м3
  • Геометрический объем 3,9169 м3
Цена: 47530 руб.
Подробнее
1ПСД 30-33-4-1 пс (1.090.1-7с)
Панели наружных стен Серия 1.090.1-7с
  • Длина 2990 мм.
  • Ширина 400 мм.
  • Высота 3275 мм.
  • Вес 2880 кг.
  • Объем бетона 2,61 м3
  • Геометрический объем 3,9169 м3
Цена: 88610 руб.
Подробнее
1ПСД 30-33-4-1 пс9 (1.090.1-7с)
Панели наружных стен Серия 1.090.1-7с
  • Длина 2990 мм.
  • Ширина 400 мм.
  • Высота 3275 мм.
  • Вес 2880 кг.
  • Объем бетона 2,61 м3
  • Геометрический объем 3,9169 м3
Цена: 88610 руб.
Подробнее
1ПСД 30-33-4-1 птс (1.090.1-7с)
Панели наружных стен Серия 1.090.1-7с
  • Длина 2990 мм.
  • Ширина 400 мм.
  • Высота 3275 мм.
  • Вес 2710 кг.
  • Объем бетона 2,24 м3
  • Геометрический объем 3,9169 м3
Цена: 76048 руб.
Подробнее
1ПСД 30-33-4-1 птс9 (1.090.1-7с)
Панели наружных стен Серия 1.090.1-7с
  • Длина 2990 мм.
  • Ширина 400 мм.
  • Высота 3275 мм.
  • Вес 2710 кг.
  • Объем бетона 2,24 м3
  • Геометрический объем 3,9169 м3
Цена: 76048 руб.
Подробнее
1ПСО 30-33-3-1 пс9 (1.090.1-7с)
Панели наружных стен Серия 1.090.1-7с
  • Длина 2990 мм.
  • Ширина 300 мм.
  • Высота 3275 мм.
  • Вес 1610 кг.
  • Объем бетона 1,3 м3
  • Геометрический объем 2,9377 м3
Цена: 44135 руб.
Подробнее
1ПСО 30-33-3-1 пс (1.090.1-7с)
Панели наружных стен Серия 1.090.1-7с
  • Длина 2990 мм.
  • Ширина 300 мм.
  • Высота 3275 мм.
  • Вес 1530 кг.
  • Объем бетона 1,3 м3
  • Геометрический объем 2,9377 м3
Цена: 44135 руб.
Подробнее
1ПСО 30-33-3-2 пс (1.090.1-7с)
Панели наружных стен Серия 1.090.1-7с
  • Длина 2990 мм.
  • Ширина 300 мм.
  • Высота 3275 мм.
  • Вес 1530 кг.
  • Объем бетона 1,3 м3
  • Геометрический объем 2,9377 м3
Цена: 44135 руб.
Подробнее
1ПСО 30-33-4-1 пс9 (1.090.1-7с)
Панели наружных стен Серия 1.090.1-7с
  • Длина 2990 мм.
  • Ширина 400 мм.
  • Высота 3275 мм.
  • Вес 1950 кг.
  • Объем бетона 1,77 м3
  • Геометрический объем 3,9169 м3
Цена: 60092 руб.
Подробнее
1ПСО 30-33-3-2 пс9 (1.090.1-7с)
Панели наружных стен Серия 1.090.1-7с
  • Длина 2990 мм.
  • Ширина 300 мм.
  • Высота 3275 мм.
  • Вес 1610 кг.
  • Объем бетона 1,3 м3
  • Геометрический объем 2,9377 м3
Цена: 44135 руб.
Подробнее
1ПСО 30-33-4-1 пс (1.090.1-7с)
Панели наружных стен Серия 1.090.1-7с
  • Длина 2990 мм.
  • Ширина 400 мм.
  • Высота 3275 мм.
  • Вес 1950 кг.
  • Объем бетона 1,77 м3
  • Геометрический объем 3,9169 м3
Цена: 60092 руб.
Подробнее
1ПСО 30-33-4-1 птс (1.090.1-7с)
Панели наружных стен Серия 1.090.1-7с
  • Длина 2990 мм.
  • Ширина 400 мм.
  • Высота 3275 мм.
  • Вес 1940 кг.
  • Объем бетона 1,6 м3
  • Геометрический объем 3,9169 м3
Цена: 54320 руб.
Подробнее
1ПСО 30-33-4-1 птс9 (1.090.1-7с)
Панели наружных стен Серия 1.090.1-7с
  • Длина 2990 мм.
  • Ширина 400 мм.
  • Высота 3275 мм.
  • Вес 1940 кг.
  • Объем бетона 1,6 м3
  • Геометрический объем 3,9169 м3
Цена: 54320 руб.
Подробнее
1ПСО 30-33-4-2 пс (1.090.1-7с)
Панели наружных стен Серия 1.090.1-7с
  • Длина 2990 мм.
  • Ширина 400 мм.
  • Высота 3275 мм.
  • Вес 1950 кг.
  • Объем бетона 1,77 м3
  • Геометрический объем 3,9169 м3
Цена: 60092 руб.
Подробнее
1ПСО 30-33-4-2 пс9 (1.090.1-7с)
Панели наружных стен Серия 1.090.1-7с
  • Длина 2990 мм.
  • Ширина 400 мм.
  • Высота 3275 мм.
  • Вес 1950 кг.
  • Объем бетона 1,77 м3
  • Геометрический объем 3,9169 м3
Цена: 60092 руб.
Подробнее
1ПСО 30-33-4-2 птс (1.090.1-7с)
Панели наружных стен Серия 1.090.1-7с
  • Длина 2990 мм.
  • Ширина 400 мм.
  • Высота 3275 мм.
  • Вес 1940 кг.
  • Объем бетона 1,6 м3
  • Геометрический объем 3,9169 м3
Цена: 54320 руб.
Подробнее
1ПСО 30-33-4-2 птс9 (1.090.1-7с)
Панели наружных стен Серия 1.090.1-7с
  • Длина 2990 мм.
  • Ширина 400 мм.
  • Высота 3275 мм.
  • Вес 1940 кг.
  • Объем бетона 1,6 м3
  • Геометрический объем 3,9169 м3
Цена: 54320 руб.
Подробнее
1ПСО 32-33-3-1 пс (1.090.1-7с)
Панели наружных стен Серия 1.090.1-7с
  • Длина 3195 мм.
  • Ширина 300 мм.
  • Высота 3275 мм.
  • Вес 2060 кг.
  • Объем бетона 1,73 м3
  • Геометрический объем 3,1391 м3
Цена: 58734 руб.
Подробнее
1ПСО 32-33-3-1 пс9 (1.090.1-7с)
Панели наружных стен Серия 1.090.1-7с
  • Длина 3195 мм.
  • Ширина 300 мм.
  • Высота 3275 мм.
  • Вес 2160 кг.
  • Объем бетона 1,73 м3
  • Геометрический объем 3,1391 м3
Цена: 58734 руб.
Подробнее
1ПСО 32-33-3-2 пс9 (1.090.1-7с)
Панели наружных стен Серия 1.090.1-7с
  • Длина 3195 мм.
  • Ширина 300 мм.
  • Высота 3275 мм.
  • Вес 2160 кг.
  • Объем бетона 1,73 м3
  • Геометрический объем 3,1391 м3
Цена: 58734 руб.
Подробнее
1ПСО 33-33-4-1 пс9 (1.090.1-7с)
Панели наружных стен Серия 1.090.1-7с
  • Длина 3295 мм.
  • Ширина 400 мм.
  • Высота 3275 мм.
  • Вес 2710 кг.
  • Объем бетона 2,45 м3
  • Геометрический объем 4,3164 м3
Цена: 83178 руб.
Подробнее
1ПСО 32-33-3-2 пс (1.090.1-7с)
Панели наружных стен Серия 1.090.1-7с
  • Длина 3195 мм.
  • Ширина 300 мм.
  • Высота 3275 мм.
  • Вес 2060 кг.
  • Объем бетона 1,73 м3
  • Геометрический объем 3,1391 м3
Цена: 58734 руб.
Подробнее
1ПСО 33-33-4-1 пс (1.090.1-7с)
Панели наружных стен Серия 1.090.1-7с
  • Длина 3295 мм.
  • Ширина 400 мм.
  • Высота 3275 мм.
  • Вес 2710 кг.
  • Объем бетона 2,45 м3
  • Геометрический объем 4,3164 м3
Цена: 83178 руб.
Подробнее

Как правильно выбрать - Панели наружных стен Серия 1.090.1-7с

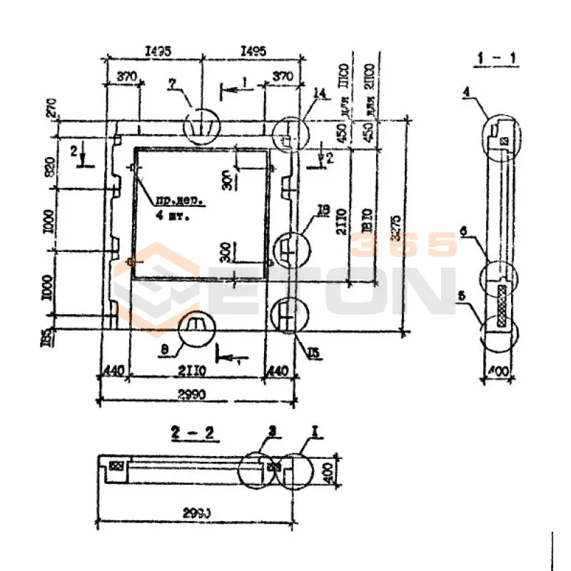
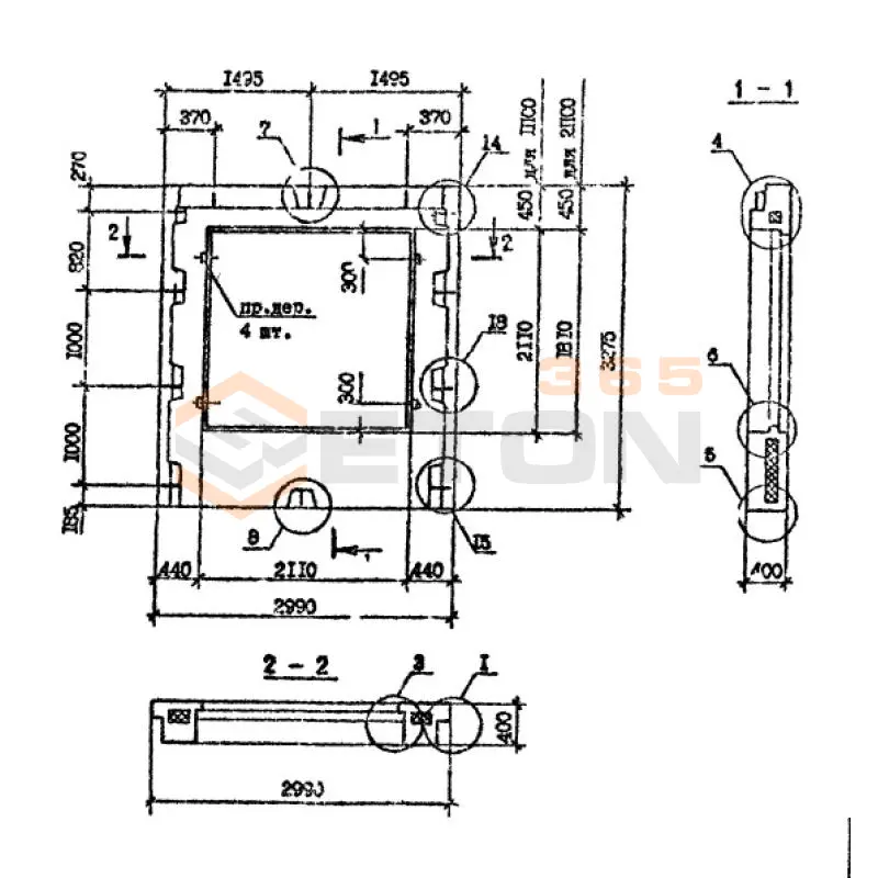
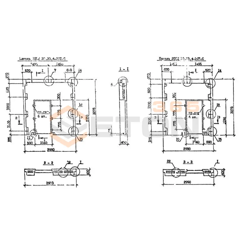
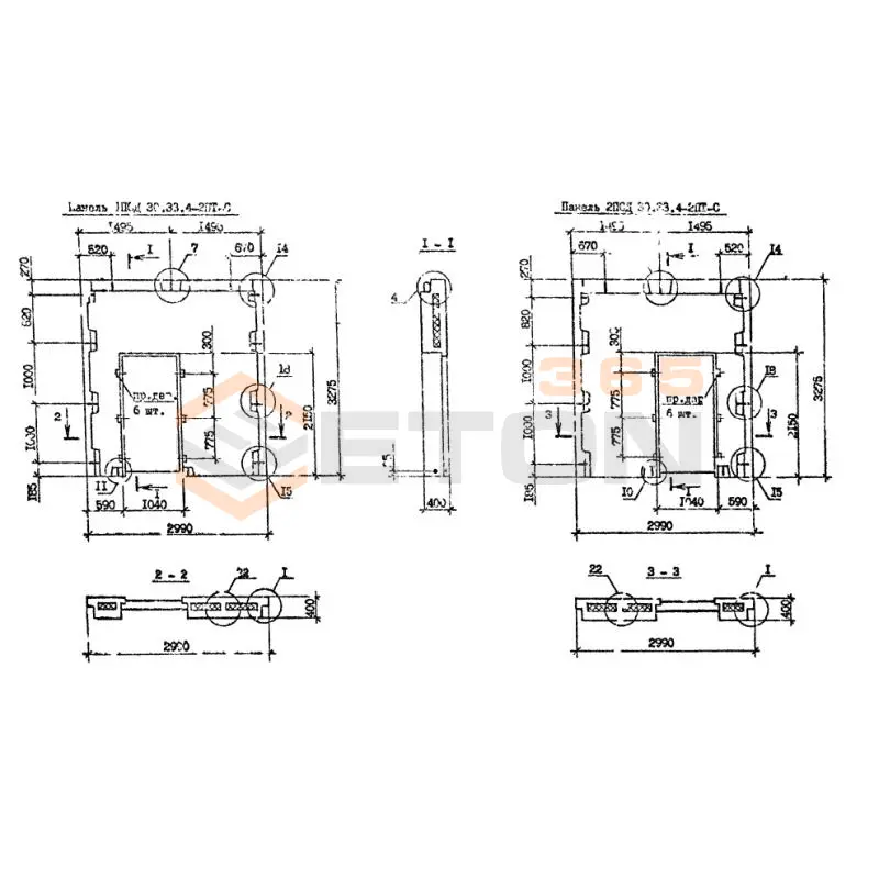
Панели наружных стен Серия 1.090.1-7с предназначены для возведения несущих и самонесущих стеновых ограждений жилых, общественных и промышленных зданий. Они выполняют ключевую функцию по обеспечению теплоизоляции, прочности и геометрической стабильности наружного контура здания. Долговечность всей конструкции в значительной степени определяется соответствием выбранных панелей проектным расчетным схемам и реальным условиям эксплуатации.

Критерии выбора

  • Марка и класс бетона: Для панелей серии 1.090.1-7с, как правило, применяется тяжелый бетон класса не ниже В15 (марка М200) с показателями морозостойкости F100-F200 и водонепроницаемости W4-W6, что критично для наружных конструкций.
  • Армирование: Обращайте внимание на класс и схему расположения арматуры. Чаще используется сталь классов А-I, А-III, обеспечивающая восприятие нагрузок от собственного веса, ветра и температурных деформаций.
  • Типоразмеры и конфигурация: Панели наружных стен Серия 1.090.1-7с имеют строго регламентированные габариты (длину, высоту, толщину) и могут быть рядовыми, угловыми или доборными. Проверяйте соответствие паспортных размеров проектным.
  • Наличие закладных деталей: Обязательно наличие монтажных петель или иных закладных деталей для строповки, а также элементов для связи с каркасом здания и смежными панелями.
  • Нормативная база: Все изделия должны строго соответствовать требованиям рабочих чертежей серии 1.090.1-7с и ГОСТ на железобетонные изделия.

Рекомендации по подбору и монтажу

При закупке панелей наружных стен Серия 1.090.1-7с требуйте полный комплект технической документации, включая паспорта качества с указанием фактических прочностных характеристик бетона и результатов контроля сварных соединений закладных деталей. Убедитесь, что поставка комплектная и включает все позиции по спецификации, включая доборные элементы, чтобы избежать простоев на объекте.

На этапе монтажа критически важна правильная подготовка опорной поверхности и точная выверка положения первой панели. Строповку производите за все предусмотренные петли, используя траверсы для исключения косых усилий. Немедленно после установки и выверки по вертикали и горизонтали закрепите панель с помощью сварки закладных деталей к каркасу здания или смежным панелям, обеспечив проектную жесткость узлов сопряжения.

Ответы экспертов на ваши вопросы

Панели наружных стен серии 1.090.1-7с представляют собой однослойные железобетонные панели, изготовленные из легкого или конструктивного бетона. Их толщина, как правило, составляет 300-400 мм. Панели армируются пространственными каркасами и сетками, имеют по периметру контурные ребра для обеспечения жесткости. С внутренней стороны панель имеет подготовку под отделку, с наружной — фактурный декоративный слой. Конструкция предусматривает монтажные петли и закладные детали для крепления.

Для изготовления панелей серии 1.090.1-7с применяются легкие бетоны на пористых заполнителях (например, керамзитобетон) марок по плотности D1200-D1400 и по прочности на сжатие В15-В20 (класс прочности). Трехслойные панели могут использовать тяжелый бетон класса В25 для внутреннего несущего слоя. Морозостойкость бетона наружных слоев составляет не менее F75-F100, водонепроницаемость — W4-W6. Расчетное сопротивление теплопередаче панели должно обеспечивать требования СНиП для соответствующего климатического района.

Теплотехническая эффективность ограждающей конструкции обеспечивается как однородностью материала панели (в случае однослойных), так и применением эффективных утеплителей в трехслойных конструкциях. Герметичность стыков — ключевой вопрос панельного строительства. В серии 1.090.1-7с применяются уплотнительные прокладки из гернита или поропласта, которые закладываются в вертикальные и горизонтальные стыки на этапе монтажа. После установки панелей стыковые полости заполняются упругими теплоизоляционными материалами (например, вилатермом) и герметизируются снаружи морозостойкими мастиками (тиоколовыми, уретановыми) для защиты от продувания и атмосферной влаги.

Основные преимущества:

  • Высокая скорость возведения здания за счет заводской готовности крупноразмерных элементов.
  • Снижение трудоемкости на строительной площадке.
  • Стабильное и контролируемое качество изделий, достигаемое в заводских условиях.
  • Высокая прочность и долговечность конструкции при соблюдении технологии.

Основные недостатки (ограничения):

  • Жесткость планировочных решений, привязка к определенной модульной сетке.
  • Высокая зависимость качества здания от тщательности выполнения монтажных работ, особенно герметизации стыков.
  • Потенциальные проблемы с теплотехнической однородностью в зоне стыков ("мостики холода") при старении или некачественном монтаже уплотнений.
  • Большая масса элементов, требующая применения мощной грузоподъемной техники.

При работе с панелями серии 1.090.1-7с необходимо руководствоваться следующим основным пакетом нормативной документации:

  1. Сама серия 1.090.1-7с — рабочие чертежи и альбомы, которые являются основным рабочим документом.
  2. ГОСТ 13015-2012 "Изделия бетонные и железобетонные для строительства. Общие технические требования. Правила приемки, маркировки, транспортирования и хранения".
  3. СП 70.13330.2012 "Несущие и ограждающие конструкции" (актуализированная редакция СНиП 3.03.01-87).
  4. СП 48.13330.2019 "Организация строительства" (актуализированная редакция СНиП 12-01-2004).
  5. ГОСТ 31310-2016 "Панели стеновые трехслойные железобетонные с эффективным утеплителем. Общие технические условия" (для трехслойных модификаций).
  6. СП 50.13330.2012 "Тепловая защита зданий" (актуализированная редакция СНиП 23-02-2003).
Ранее смотрели
Плиты многопустотные Шифр 0-312 1П 27-15-44,5 к-7(9) т (Шифр 0-312)
1П 27-15-44,5 к-7(9) т (Шифр 0-312)
Плиты многопустотные Шифр 0-312
Плиты многопустотные Шифр 0-312 1П 31-6-21 ВрII(5) т (Шифр 0-312)
1П 31-6-21 ВрII(5) т (Шифр 0-312)
Плиты многопустотные Шифр 0-312
Плиты многопустотные Шифр 0-312 1П 27-12-18,5 ВрII(5) т (Шифр 0-312)
1П 27-12-18,5 ВрII(5) т (Шифр 0-312)
Плиты многопустотные Шифр 0-312
Плиты многопустотные Шифр 0-312 1П 27-12-20,5 к-7(6) (Шифр 0-312)
1П 27-12-20,5 к-7(6) (Шифр 0-312)
Плиты многопустотные Шифр 0-312
Плиты многопустотные Шифр 0-312 1П 31-9-21 ВрII(5) т (Шифр 0-312)
1П 31-9-21 ВрII(5) т (Шифр 0-312)
Плиты многопустотные Шифр 0-312
Плиты многопустотные Шифр 0-312 1П 30-6-23,5 ВрII(5) т (Шифр 0-312)
1П 30-6-23,5 ВрII(5) т (Шифр 0-312)
Плиты многопустотные Шифр 0-312
Плиты многопустотные Шифр 0-312 1П 27-6-13,5 ВрII(5) т (Шифр 0-312)
1П 27-6-13,5 ВрII(5) т (Шифр 0-312)
Плиты многопустотные Шифр 0-312
Плиты многопустотные Шифр 0-312 1П 24-9-26 ВрII(5) т (Шифр 0-312)
1П 24-9-26 ВрII(5) т (Шифр 0-312)
Плиты многопустотные Шифр 0-312

Уведомление о файлах cookie

Мы используем файлы cookie для улучшения вашего опыта просмотра и анализа трафика. Нажимая "Принять все", вы соглашаетесь с нашей политикой конфиденциальности и политикой обработки файлов cookie.

Дзен Телеграм Вконтакте vk